Panelen

Page 1

Damlaan

schetsimpressie aanzicht Damlaandoorsteek

DamlaanRijnlandstraat schetsimpressie aanzicht doorsteek

ARCHITECTUUR
DAMLAANONTWIKKELING.NL ONTWIKKELING

Damlaan

schetsimpressie aanzicht binnenterrein en Rijnlandstraat schetsimpressie aanzicht binnenterrein ARCHITECTUUR doorsteek RijnlandstraatDamlaan DAMLAANONTWIKKELING.NL ONTWIKKELING

Damlaan

ONTWIKKELING

Er is een gevarieerd aanbod van woninggroottes voor een brede doelgroep. 60% Van het aanbod valt onder de NHG-grens (per 1 januari 2022 € 355.000).

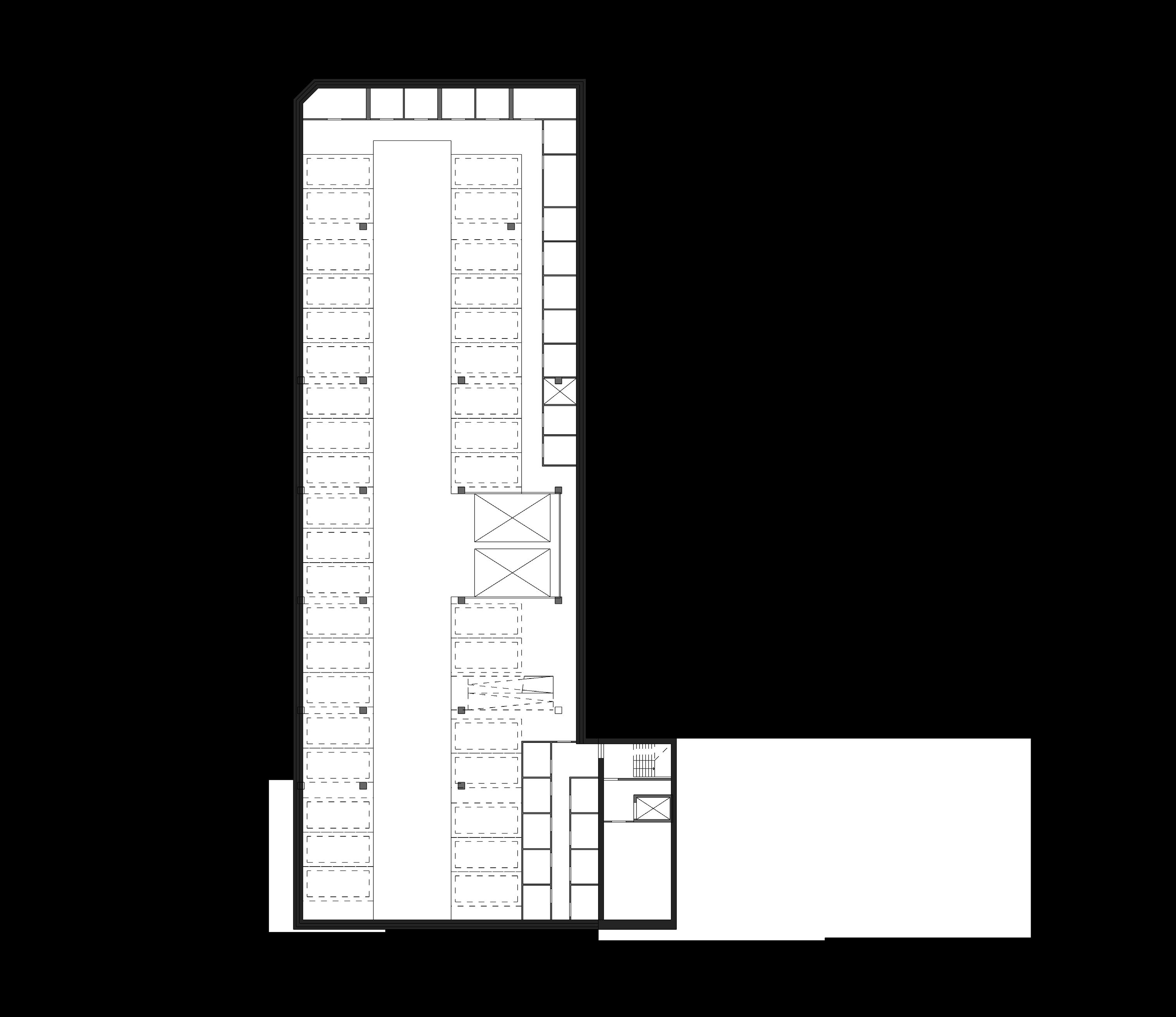
facilitair: verkeersruimte, bergingen, overig één-kamer buitenruimten:ééngezinswoningenwoon/werkdrie-kamertwee-kamerwoningenwoningenwoningenwoningendelftsestoep, balkon, daktuin toegang woning + hoofdtoegang omliggende bebouwing

begane grond eerste verdieping tweede verdieping derde verdieping vierde verdieping

PROGRAMMA
26x13x5x4x7x
doorsteek doorsteekdoorsteekdoorsteekdoorsteek DAMLAANONTWIKKELING.NL

Damlaan

14 parkeerplekken ondertoegangdaktuinenbinnenterrein via Rijnlandstraattelecom gemeenschappelijkefietsenberging

doorgaande ontsluitingsweg aanliggende percelen

22 parkeerplekken op het binnenterrein

Voor de 55 woningen zijn 74 parkeerplekken voorzien. Verspreid over het binnenterrein, onder de daktuinen en in de kelder. Het binnenterrein is via de Rijnlandstraat toegankelijk, waarbij de bestaande ontsluiting voor de huidige gebruikers blijft gewaarborgd. De kelder is bereikbaar met de auto via twee autoliften.

hellingbaanautoliftautoliftmaaiveldparkeer36plekken PARKEREN
toegangtoegangkelder
PPPPPPPPPPPP P P P P P P P P P P P P P P P P PPPP P P P PPPPP P P P P P P P P P P P box P hellingbaanautoliftautoliftboxkelder P P PP P P P P PP PP PPPP PPPP PP Damlaan doorsteek DAMLAANONTWIKKELING.NL ONTWIKKELING

Damlaan

Rijnlandstraat
SITUATIETEKENING Damlaan
binnenterrein doorsteek 3644 DAMLAANONTWIKKELING.NL ONTWIKKELING
BEZONNING Maart 15.00 uur | Bestaande Situatie Maart 15.00 uur | Nieuwe Situatie Juni 15.00 uur | Bestaande Situatie Juni 15.00 uur | Nieuwe Situatie DAMLAANONTWIKKELING.NL ONTWIKKELING Damlaan
PLANNING 22 INLOOPBIJEENKOMSTseptember TERUGKOPPELING VRAGEN EN INLOOPBIJEENKOMSTOPMERKINGEN PARTICIPATIEAFRONDING RO-PROCEDURESTART Tijdlijn participatie Q4 2022Q3 2022 Q1 2023 Q2 2023 DAMLAANONTWIKKELING.NL ONTWIKKELING Damlaan

Turn static files into dynamic content formats.

Create a flipbook
Issuu converts static files into: digital portfolios, online yearbooks, online catalogs, digital photo albums and more. Sign up and create your flipbook.