ENTREGA DE HISTORIA

Page 1

HISTORIA IV

BRAYAN JOSEPH DAVILA PAREDES UNIVERSIDAD
PERUANA UNION

AEROPUERTO INTERNACIONAL JORGE CHAVEZ

ORREGO, ANTENOR

Antenor Orrego (1931) se graduó como arquitecto de la Universidad de Ingeniería en 1956. Dos años más tarde, conforma la oficina Arana – Orrego – Torres Arquitectos (AOT) junto a los arquitectos Carlos Arana y Juan Torres. A lo largo de su carrera profesional, fue miembro del Instituto de Urbanismo y Planificación del Perú y de numerosas comisiones técnicas distritales. Asimismo, fue consultor del Gobierno de los Estados Unidos, y presidente del Consejo Consultivo del Ministerio de Vivienda.

TORRES, JUAN

Juan Torres (1933-1992) se graduó como arquitecto de la Universidad de Ingeniería en 1956. Dos años más tarde, conforma la oficina Arana – Orrego – Torres Arquitectos (AOT) junto a los arquitectos Carlos Arana y Antenor Orrego. Entre 1971 y 1972 fue Decano del Colegio de Arquitectos del Perú. Posteriormente, fue miembro del Consejo Superior del Ministerio de Vivienda y Construcción y profesor titular de Diseño en la Universidad Nacional de Ingeniería.

HISTORIA IV
https://arquitectura.pucp.edu.pe/archivo-de-arquitectura-pucp/colecciones/

CONCEPTO ARQUITECTONICO

SEGUN CRITERIO

SISTEMA CONSTRUCTIVO:

CONCEPTO:

1 2

La estructura del Aeropuerto internacional Lima - Callao, Jorge Chavez se caracteriza por predominar el material de concreto pretensado. El concreto pretensado es el material más novedoso de la ingeniería estructural moderna. Resulta de la incorporación al concreto de cables de acero de elevada resistencia que han sido previamente estirados, y que al pretender recobrar su longitud original comprimen al concreto, confiriéndole propiedades excepcionales que lo hacen aplicable a la solución de grandes espacios sin apoyos o a la resistencia de cargas muy elevadas.

CONTRUCCION:

1960 - 1965

AREA DE TERRENO:

2.500.000 M2

AREA CONSTRUIDA:

36.506 M2

DESCRIPCION:

Como volumetria podemos observar que este cuenta con una forma irregular la cual lo podemos apresiarcon sus formas curvas y rectas, en vista de planta e isometria, la aforma a la cual se asemeja en estas dos etapas la primera a un sudmarino , este fue la primera construccion que se dio en 1960 y en la segunda forma se asemeja aun monitor curvo

El edificio principal es un volumen de 290.40de largo t 56.40 de ancho y 9.00 de alto, al cual se anexan dos Espigones que avanzan hacia el campo de aterrizaje, los cuales tiene cada uno 10 metros de ancho y 145 metros de largo y 4.5 metros de alto. Hacia la zona de estacionamiento sale el edifio principal, un puente de peatones que une al mezzanine con la plaza en el cual se encuentra la fuente luminoza de cristales. En ellos se realiza las funciones de terminal de Pasajeros.

HISTORIA IV

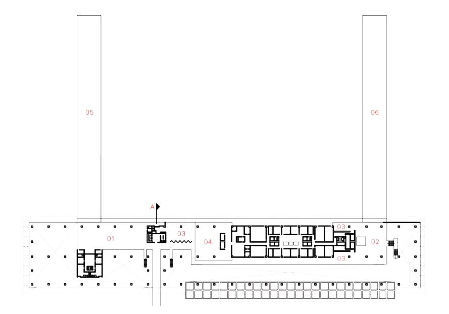
PLANTAS - CORTES

LEYENDA - ANALISIS

ANALISIS:

Los 10 pisos del edificio estan distribuidos de la siguiente manera: el primer piso y segundo piso para la atencio de los pasajeros, el tercer piso se ubico el salon de conferencias y proyeccion de peliculas aeronauticas. El cuarto y quinto piso para alquiler de oficinas el sexto, septimo y octavo se encuentran las oficinas administrativas en noveto piso para los aparatos electronicos y el ultimo para la torre de control de trafico aereo

GENERAL:

Hall de vuelos internaciones

Mostradores aerolinales

Hall de vuelos Nacionales

Hall de salida de pasajeros en transito

Carruseles de Equipaje

Aduana

Sala de embarque de vuelos internacionales

Sala de embarque de vuelos vnacionales

Hall de vuelos internaciones

Hall de vuelos nacionales

Cafeteria

Hall de salida de pasajeros en transito

Comedor

Terraza espigon internacional

Terraza espigon nacional

Puente de peatones

PLANTA
Planta Primer Piso Planta Segundo Piso
HISTORIA IV 3

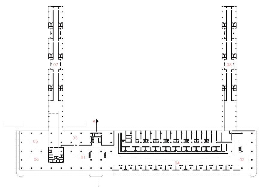
ALZADOS - CONCLUSION

ALZADO - RESUMEN

ALZADO A - A CONCLUSION

- Como conclusion podemos decir que el aeropuerto Jorge chaves dio mucha mas fluides al movimiento economico del peru tanto en el aspecto positivo como en el negativo

- En el aspecto de como fue el impacto del aeropuerto Jorge chaves dentro de su radio de entorno fue muy notable , esto lo podemos observar tano en la contaminacion sonora, contaminacion audio visual y tamnbien en la vial ya que este fue un movimiento que marco un antes y un despues dentro del pais

En este alzado se puyede obsertar tan como el edificio principal que lleva a las salas de embarque como el edifio donde se encuentra la sala de control

CORTE A - A

En este corte se observar mejor los 10 niveles en total que existen dentro del aeropuerto interncacion jorge chavez

- En el aspecto social y social esto se vio favorecido a los ciudadanos ya que se crearon muchos mas puestos de trabajo por las diferentes actividades que se desarrollaron y los negocios que se crearon a causa del desarrollo del aeropuerto jorge chaves y el desarrollo economico que se dio.

RECOMENDACION:

Si bien es cierto existe en la actualidad una propuesta de ampliacion y modificacion del aeropuesto Jorge Chavez , propuesto para el año 2025 se recomendaria no cometer los mismos errores que se comentieron en el desarrollo del actual aeropuerto

BIBLIOGRAFIA: APA

() E. Q. (s/f). AEROPUERTO INTERNACIONAL JORGE CHÁVEZ. Edu.pe. Recuperado el 17 de abril de 2023, de https://cammp.ulima.edu.pe/edificios/aeropuerto-internacional-jorge-chavez-2/

Surhone, L. M., Tennoe, M. T., & Henssonow, S. F. (Eds.). (2010). Aeropuerto internacional Jorge Chavez. Betascript Publishing.

Landeo, J. Q. (s/f). Aeropuerto jorge chavez. Slideshare.net. Recuperado el 17 de abril de 2023, de https://es.slideshare.net/JulioQuispeLandeo/aeropuerto-jorge-chavez

HISTORIA IV 4

Turn static files into dynamic content formats.

Create a flipbook
Issuu converts static files into: digital portfolios, online yearbooks, online catalogs, digital photo albums and more. Sign up and create your flipbook.
ENTREGA DE HISTORIA by Brayan Davila Paredes - Issuu