Architecture Portfolio | Admitted to Harvard GSD, Yale SoA, Columbia GSAPP, Princeton SoA

Page 1

BRANDON HING

ARCHITECTURE PORTFOLIO | SELECTED WORKS 2019-2022

UNIVERSITY OF SOUTHERN CALIFORNIA | UNDERGRADUATE

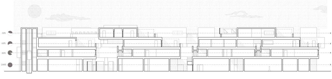
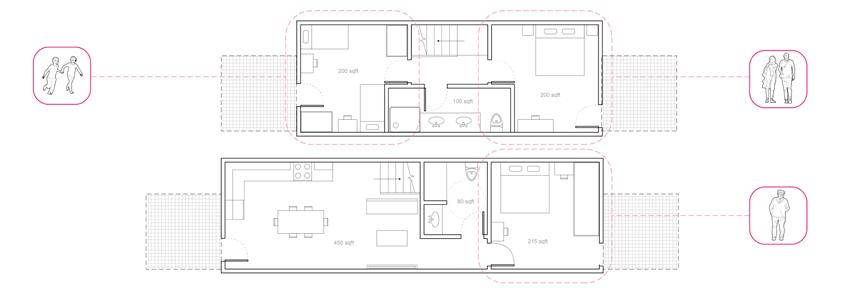
SHIFTING GENERATIONS

CO-OP HOUSING, MEDITATION CENTER | ARCH 302A | INDIVIDUAL WORK

USC | FALL 2021 | ADVISOR : ERIC NULMAN | COORDINATOR: SASCHA DELZ

IN AN ERA WHERE GENERATIONAL DIFFERENCES COULDN’T BE MORE DISTANT, SHARED PATIOS ARE THE KEY TO INTERCONNECTION. THESE OUTDOOR SPACES, PLACED AT THE CROSSING OF RESIDENTIAL UNITS, OPEN OPPORTUNITIES FOR DIALOGUE BETWEEN ALL AGES, LINKING THE PAST AND PRESENT. THE MIXTURE OF DEMOGRAPHICS OFFERS UNIQUE RELATIONSHIPS, REFLECTED IN THE PERSONALIZATION OF EACH PATIO BY THE OCCUPANTS. EACH SPACE EXHIBITS CHARACTER, EVOLVING AS NEW TENANTS MOVE IN AND THE SAME ONES GROW OLD.

THE PROJECT OFFERS A NEW SOLUTION TO COOPERATIVE HOUSING, MENDING COLLECTIVE LIVING, AND RECREATIONAL WELLNESS ACTIVITIES. THE FORMAL SHIFT ENCOURAGES COMMUNICATION WHILE ALSO ADDRESSING AREAS IN PRE-FABRICATION AND SUSTAINABILITY.

01
2
OVERLOOKING WATERFALL MEDITATION FROM UNIT PATIOS 3
4
5

MULTI-FAMILY REVIVAL

THE PROJECT FILLS THE “MISSING” PROGRAM BY BRINGING BACK MULTI-FAMILY HOUSING. OVER THE YEARS, THESE PROPERTIES HAVE BEEN CONVERTED INTO STUDENT HOUSING.

POVERTY THRESHOLD

WHY MEDITATION?

MEDITATION OFFERS RESIDENTS AN OUTLET TO ESCAPE THE COMMOTION OF THE CITY. IT PROVIDES A PROGRAM NOT COMMONLY AFFORDABLE AND PROMOTES NEW RESOURCES FOR A HEALTH AND WELLNESS-DRIVEN COMMUNITY

A NOISY CONTEXT 6

DATUM: A SPINE FOR COMMUNITY

A CENTRAL PASEO MIMICS THE SKINNY NATURE OF VERMONT AVENUE. IT BECOMES THE ORGANIZING PRINCIPLE THAT CONNECTS PROGRAMS LINEARLY TO BECOME A MICROCOSM OF THE STREET.

7

MATERIAL TO MEDITATION

GFRC - GLASS FIBER REINFORCED CONCRETEWAS SELECTED TO MATCH THE TEXTURE OF THE SURROUNDING BUILDINGS. INHERENTLY, IT IS LIGHTWEIGHT MATERIAL THAT PERFECTLY EXPRESSES THE PROGRAM: A MEDITATION SPACE WHERE THE UNITS AND MIND “FLOAT.”

FORMAL STUDY, CONCEPTUAL RELIEF MODEL SINGLE SILICON MOLD, GFRC CASTED

8.5”x 11”x 2”

UP RIGHT

FINAL MASSING MODEL GFRC CASTED, DYED

16”x 6”x 4”, 1/32”=1’ SCALE

8
9

STRANGERS

- PATIO IS UNDERUSED, - NOTHING VALUABLE IS LEFT OUTSIDE

NEIGHBORS

- BUILT FAMILIARITY AND TRUST

- SOME ITEMS ARE SHARED BUT THE PATIO REMAINS USED SEPERATELY

FAMILY

- GENERATIONS OF NEIGHBORS WHO HAVE GROWN UP TOGETHER

- PATIO FUNCTIONS AS A SINGLE SPACE

+0 +15

YEAR +30

ENVELOPE INSTALLED, REMNANTS OF OLD TILING REMAIN

EVOLUTION OF THE PATIO

THE CHARACTER OF THE PATIO EVOLVES AS TENANTS INTERACT WITH THEIR NEIGHBORS. AS TIME PASSES, THE PATIO REFLECTS A STRENGTHENING CONNECTION. THE MOST SUCCESSFUL PATIOS FUNCTION AS A BRIDGE BETWEEN UNITS.

PHYSICALLY DIVIDED

SPATIALLY DIVIDED

SHARED PATIO

DEFAULT PATIO
NEW TILING INSTALLED
10

WRAPPER

MOMENTARY ENVELOPES WERE INTRODUCED TO DISRUPT THE MODULARITY OF THE UNITS AND HIGHLIGHT THE PATIO SPACES. PATTERNS ARE INSPIRED BY NATIVE L.A. TEXTILES, WHICH ALSO FUNCTION MODULARLY. IRONICALLY, COMBINING THESE WITH MODULAR UNITS PRODUCED VARIATION.

11

FORMAL STRATEGY

MODULAR VOLUME

SPLIT PRIVACY BETWEEN UNITS PLAN DIVISIONS

SHIFT

FORMS COURTYARDS

MIRROR

SITE RESPONSE

PRODUCT

FLOOR PLAN 2

YOUNGER GENERATION

ELDER GENERATION

PASEO

ELDER GENERATION

YOUNGER GENERATION

SINGLE UNIT

BUILDING SCALE MODULAR SCALE

LEVEL 1

HORIZONTAL UNIT

IN PLAN, THE SIMPLE FORMAL SHIFT ALLOWS PATIO SPACES TO FILL BETWEEN UNITS. THESE PATIOS PROVIDE BUFFERS WHILE OFFERING ACCESS TO THE OUTSIDE. GENERATIONS ARE ORGANIZED IN ROWS TO ENSURE THAT EACH UNIT INTERACTS WITH A YOUNGER AND OLDER GENERATION.

GENERATION 1 GENERATION 2 GENERATION 3
12

FORMAL STRATEGY

MODULAR VOLUME SPLIT

SECTIONAL DIVISIONS

PRIVACY BETWEEN UNITS

FORMS COURTYARDS ALLOWS LIGHT TO LOWER FLOORS SUBTRACT

SECTION

BUILDING SCALE

SINGLE UNIT

MODULAR SCALE

LEVEL 2

LEVEL 1

VERTICAL UNIT

IN SECTION, THE SHIFT ALLOWS LIGHT TO TRAVEL TO THE LOWER FLOORS. A GRADIENT OF UNIT DENSITY PER LEVEL FORMS VISUAL CONNECTION. A SECONDARY UNIT IS INTRODUCED, WHICH CONNECTS TWO FLOORS, INCREASING THE INTERACTION BETWEEN NEIGHBORS.

GENERATION 3 GENERATION 2 GENERATION 1 SHIFT
BUILDING DENSITY
13
PRODUCT

NARRATING LOS ANGELES

// MY DESIRE FOR THE PHYSICAL NATURE OF DESIGN DURING THE PANDEMIC AND ONLINE LEARNING LEAD TO AN UNFORESEEN HOBBY IN DIGITAL ILLUSTRATION BY HAND. THE SECTION COMMUNICATES THE POSSIBILITY OF STORYTELLING IN ARCHITECTURE WHEN COMBINING THESE MEDIUMS.

MY FAVORITE ILLUSTRATOR: MOEBIUS

14
15

DOUBLE INTERSECTION

PARALYMPIC BASKETBALL FACILITY | ARCH 302B | INDIVIDUAL WORK

USC | SPRING 2022 |

ADVISOR : MARIO CIPRESSO

THE PROJECT ADDRESSES THE LOS ANGELES 2028 OLYMPICS. THE PROJECT CONSIDERS THE INTERSECTION OF TWO PARTS. 1) FORMALLY, IT DRAWS FROM THE INTERSECTION OF TWO URBAN GRIDS. 2) SOCIALLY, IT CONSIDERS THE INTERSECTION OF VARIOUS COMMUNITIES: USC, PARALYMPIC ATHLETES, AND THE L.A. NEIGHBORHOOD. THE PROJECT BECOMES A CENTER FOR INTERACTION, OFFERING AN INDOOR TRAINING FACILITY AND AN ADAPTABLE OUTDOOR COURT TO HOST EVENTS. THE UNIFIED COMMUNITY IS EXPRESSED UNDER A UNIFORM ROOF.

02
16
FUNNELED ENTRY FROM MCCLINTOK AVE. 17

HISTORICAL GRIDS

WHILE STREET GRIDS USUALLY DIVIDE ALONG HOOVER STREET, THE USC VILLAGE IS A UNIQUE SITE WHERE THE EXISTING BUILDING TYPOLOGY BORROWS FROM TWO HISTORIC CARTOGRAPHIC STANDARDS. THIS FORMAL INTERSECTION, A REPRESENTATION OF A SYNCHRONOUS PAST AND PRESENT, PAIRED WITH THE INTEGRATION OF VARIOUS COMMUNITIES, BECAME THE DRIVING FORCE BEHIND THE CONCEPT.

18

2ND FLOOR VIEWING ROTATION

A BRIDGE RECONNECTS THE BUILDINGS WHILE OFFERING VIEWS OF THE COURTS AND SITE FROM ABOVE.

1ST FLOOR PUBLIC PERMEABILITY

THE BUILDING MASS IS SPLIT TO ENCOURAGE ENTRY ALONG THE ACTIVE MCCLINTOCK STREET WHILE FORMING A CONNECTION BETWEEN USC AND THE NEIGHBORHOOD COMMUNITY.

THE USC VILLAGE “ISLAND”

WHILE LARGER ROADS ISOLATE THE SITE, THEY PROVIDE EASIER ACCESS TO AREAS OUTSIDE THE USC CAMPUS.

WORK-PLAY SEQUENCE

SERIAL SECTIONS REVEAL THE EXPANSION OF SPACE STARTING FROM THE MAIN ENTRIES. SMALLER ADMIN PROGRAMS EVENTUALLY FEED INTO THE 2-STORY HEIGHT COURTS.

19
20

FORMAL-EXPLORATION THROUGH ITERATIVE SKETCHES

HAND-CUT BASS WOOD SECTIONAL MODEL

PERFORATION PRODUCED WITH KNIFE-PLOTTER

GRAPHITE ON BRISTOL PAPER 24”x 20”x 8”, 1/16”=1’ SCALE
21
22

ROOF FORMS WERE DEVELOPED BY FOLDING ALONG THE ESTABLISHED URBAN GRIDS. ROOF ANGLES WERE SELECTED WHILE CONSIDERING LIGHT. THE SCALE OF THE INCISIONS INDICATES THE PROGRAM BENEATH.

PART 1: ROOF SYSTEM
23
24

THE UNROLLED ELEVATION OFFERS AN UNDERSTANDING OF MATERIAL, SHADE, AND LIGHT. THE UNDULATING FACADE DIRECTS VISITORS TO PRIMARY ENTRIES.

// THE CHAIN-LINK FENCE RECALLS THE COUNTLESS VISITS I’VE MADE TO OUTDOOR BASEBALL AND BASKETBALL EVENTS AND THE FOND MEMORIES OF PLAYING ALONGSIDE FRIENDS.

PART 2: ELEVATIONAL STUDY
25
1ST FLOOR PLAN A. LOBBY B. LOCKERS C. RESTROOM D. INDOOR COURT E. OUTDOOR COURT F. ADMINISTRATION G. VOLUNTEER SPACE + KITCHEN H. UTILITY 01 02 03 A A B B C C D H H H E G G F C C 26

GROUND FLOOR ACCESSIBILITY

PUBLIC INVITATION

DOUBLE-STORY GLASS DENOTES THE BUILDING ENTRANCES WHILE REVEALING ITS INTERIOR SPACES TO THE STREET.

SENSORY PANORAMA

THE SUSPENDED WALK OFFERS A 360° VIEW OF BOTH COURTS.

TO BLEACHERS

FROM ENTRY

OPEN-AIR SOLUTION

THE OUTDOOR COURT IMPROVES NATURAL VENTILATION AND REDUCED ENERGY USAGE.

W 30TH STREET MCLINTOCK AVE OUTDOOR COURT 01 02 03
OUTDOOR COURT INDOOR COURT
27
28
29

THE URBAN ANTHRO-SCAPE

STREET OF TOMORROW COMPETITION | 2ND PLACE AWARD | GROUP WORK

ARCHISOURCE DRAWING OF THE YEAR 2022 | 1ST PLACE | NARRATIVE AWARD

NON-ACADEMIC | FALL 2022 | PARTNER: ALEX JEONG

THE NATIONAL ASSOCIATION OF CITY TRANSPORTATION HAS FAMOUSLY STATED THAT “STREETS MAKE UP MORE THAN 80 PERCENT OF ALL PUBLIC SPACE IN CITIES.” BUT HOW MUCH OF PUBLIC SPACE IS TRULY PUBLIC? THE WAY THAT STREETS WERE DESIGNED IN AN URBAN GRID, PRODUCTIVITY WAS PRIORITIZED IN THE DEVELOPMENT OF THE URBAN NARRATIVE. STREETS WERE CATERED TOWARDS VEHICULAR ACCESS, PRIORITIZING GETTING FROM POINT A TO POINT B IN THE FASTEST, MOST EFFICIENT WAY POSSIBLE. AS A RESULT, HUMAN INTERACTION ON THE STREET SCALE BECAME AN AFTERTHOUGHT.

THE PROPOSAL AIMS TO FLIP THIS SCRIPT AND DISTURB THE NARRATIVE WHICH HAS DOMINATED HOW URBAN STREETS WERE DESIGNED TO BE EXPERIENCED. WHY COULDN’T WE ELIMINATE THE NEED TO TRAVEL BY HAVING OUR DESTINATION COME TO US, FILLING THE PUBLIC SPACE WITH A VIBRANTLY INTERACTIVE STREETSCAPE?

THROUGH THE URBAN ANTHRO-SCAPE, WE AIM TO SEE THE STREET OF TOMORROW AS A DESTINATION, A PLACE OF EXPERIENCE, PRIORITIZING THE INTIMATE RELATIONSHIP BETWEEN THE PUBLIC AND THE PEOPLE.

MANHATTAN, NY SAN FRANCISCO, CA

03
30
“GRAND OPENING” 31

MECHANICALLY DRIVEN

A GEAR SYSTEM COMBINES VEHICULAR TRANSPORTATION WITH PUBLIC SPACE.

ALTERNATING AUTOWALKS

THE NEW LATITUDINAL NAVIGATION RESULTS IN A MORE PERMEABLE STREET.

32

INTERACTIVE STREET MODEL

5’0” x 1’8” x 1’0”, 1/8”=1’ SCALE
33
WALNUT WOOD CONTEXT, ACRYLIC GEARS, AND FRITTED GLASS STREET
STREET OBJECT TRANSFORMATIONS PRECEDENT OPERATION PRODUCT EXPERIENCE EPOXY CASTED ELEMENTS 34
FINAL COMPOSITION 35

PUZZLE OF VISIBILITY

CONCEPTUAL CUBE | ARCH 102A | INDIVIDUAL WORK

USC | FALL 2019 | ADVISOR : SANDRA YUM

PUZZLE OF VISIBILITY IS A REDEFINED 9’X9’ ROOM DERIVED FROM THE 2-46-8 HOUSE PRECEDENT. SPATIAL DECISIONS ARE DETERMINED BY A 3-AXIS

GRID, BLENDING MASS AND SURFACE TO FORM A VARIETY OF LIVING EXPERIENCES. THE CUBE EXPLORES VISIBILITY AND ITS RELATIONSHIP BETWEEN PUBLIC AND PRIVATE SPACES IN ARCHITECTURE.

A. GROUND PLAN

B. INTERIOR WALL ELEVATIONS

C. AERIAL PLAN

D. EXTERIOR WALL ELEVATIONS

A B C D
IN RELATION TO SHEARING
SOLID VS. SURFACE MAP
04
36
THIS PROJECT WAS COMPLETED WITHOUT THE AID OF A 3D-MODELING SOFTWARE.
TURNING PROJECTIONS SHEARING GRID 37

SPATIAL DEVELOPMENT

DEVELOPMENT OF THE REDEFINED CUBE REFERENCED SPATIAL DIVISIONS FORMED BY 4 VARYING SIZED WINDOWS.

VIEW FROM STREET
1 1
ANALYSIS PRECEDENT
2 2 4 3 3 38
PRECEDENT
REDEFINEDCUBEREDEFINEDCUBEANALYSIS
4 39

GRIDS OF SEQUENCE

CONCEPTUAL HOUSE |ARCH 102A | INDIVIDUAL WORK

USC | FALL 2019 | ADVISOR : SANDRA YUM

GRIDS OF SEQUENCE IS A CONTINUATION OF PUZZLE OF VISIBILITY. IT INVESTIGATES THE ORTHOGONAL AND IRREGULAR GRID, TRANSITIONING BETWEEN THEM IN A LINEAR SEQUENCE. THE PROJECT STUDIES THE PROGRESSION OF THE GRIDS AND THEIR EFFECT ON SPACE, FORM, LIGHT, AND VISIBILITY.

THIS PROJECT WAS COMPLETED WITHOUT THE AID OF A 3D-MODELING SOFTWARE.

05
40
HAND-CUT 2-PLY MUSEUM BOARD MODEL, 1/8” SCALE

3-AXIS GRID GUIDES FORMAL DECISIONS

Z-AXIS X-AXIS Y-AXIS 41
SHORT DIVISIONS LONG DIVISIONS ELEVATIONAL DIVISIONS
PROGRAMATIC CHANGING 2:00PM | SITE ANALYSIS ALLEY VENICE, LOS ANGELES. RESIDENTIAL NEIGHBORHOOD AMOROSO PI
AMOROSO
PERPENDICULAR TRAFFIC INFORMS ENTRIES DISPROPORTIONATE ENTRIES SUGGEST A PUBLIC / PRIVATE GRADIENT GATHERING/TRANSITION IN RELATION TO BRANCHING CIRCULATION 42
(ALLEY)
CT (STREET)

LOWEST DENSITY ROOMS RECEIVE MAXIMUM SUNLIGHT

PROGRAMATIC GRADIENT DETERMINES CHANGING GEOMETRY
OPEN STREET-SIDE ENTRY 43

MODULAR MARKET

ROBOTIC BOOK MARKET | ARCH 202B | INDIVIDUAL WORK

USC | SPRING 2021 | ADVISOR: ANDREW KOVACS

SINCE ITS BEGINNING, THE TERM “AUTOMATION” HAS BEEN ASSESSED BY EFFICIENCY. MODULAR MARKET POSES ANOTHER USE FOR AUTOMATION, PRIORITIZING EXPERIENCE OVER EFFICIENCY. THE CONTRAST BETWEEN THE BUILDING’S SMALL FOOTPRINT AND THE MACHINE CAUSES THE STRUCTURE TO FEEL OVER-ENGINEERED. THE SPACE PERPETUALLY TRANSFORMS; CARTS ON FRAMED RAILS ABOVE THE AUDIENCE SNAKE FROM ONE EDGE OF THE STRUCTURE TO THE OTHER WHILE ROBOTIC HANDS MOVE SPORADICALLY TO PERFORM SIMPLE TASKS. WHILE THESE PROCESSES ARE OFTEN CONVOLUTED, THE VIEWING OF EACH MOVEMENT PROVIDES ENTERTAINMENT: THE ULTIMATE ANTICIPATION TO WITNESS WHAT WILL UNFOLD NEXT. THIS DIALOGUE BETWEEN THE HUMAN AND MACHINE OFFERS A WHIMSICAL AND, AT TIMES, SURREAL EXPERIENCE. INTERACTIONS CREATE A PLAYFUL ATMOSPHERE COMPARABLE TO THE RUBE GOLDBERG MACHINE, ALTHOUGH IT FUNCTIONS FREELY AND AUTONOMOUSLY.

THE JUXTAPOSITION BETWEEN PHYSICAL BOOKS AND ROBOTIC TECHNOLOGY BECOMES A METAPHOR FOR THE MARKET. WHILE E-BOOKS CAN PROVIDE EFFICIENCY, THEY CAN’T REPLACE THE EXPERIENCE OF TURNING PHYSICAL PAGES AND THE VERY WEIGHT OF A BOOK. IN OUR PRESENT-DAY, ARCHITECTURE IS OFTEN AWARDED FOR ITS FUNCTIONALITY DOWN TO ITS BASIC FORM. RARELY DO WE CONSIDER HOW THE OPPOSITE CAN PROVIDE FUN, UNIQUE, AND PROVOCATIVE EXPERIENCES.

07
44
PITCHED FABRICS AND ADJUSTABLE FRAMES 45

MODULES ARE CONNECTED BY STEEL RAILS

ROBOT POV
46
MODULES INCORPORATE AN ASSORTMENT OF MATERIALS FOUND ON SITE

MODULES STACK TO FORM A MULTIPLE “STORIES”

HUMAN AND MACHINE HARMONY 47
SHOPPING ENTERING THE MARKETPLACE 48
SHOPPING WITH INTEGRATED ROBOTS
49
RETURNING BOOKS FROM ABOVE

Turn static files into dynamic content formats.

Create a flipbook
Issuu converts static files into: digital portfolios, online yearbooks, online catalogs, digital photo albums and more. Sign up and create your flipbook.
Architecture Portfolio | Admitted to Harvard GSD, Yale SoA, Columbia GSAPP, Princeton SoA by Brandon Hing - Issuu