
22 minute read
5.3 Existing Branch Redevelopment Strategy
Chinguacousy Branch
Chinguacousy Branch forms part of the Brampton Civic Centre complex co-located with the Lester B. Pearson Theatre. This multistorey branch is centrally located within the city and primarily services the Bramalea neighbourhood, and has strong access by public transportation and other means by virtue of its proximity to the Queen Street corridor.
• Chinguacousy Branch forms part of a broader community hub at the Brampton Civic Centre where space exists for a number of social services and for-profit enterprises. Chinguacousy Park, Bramalea City Centre, and a Region of Peel building are also located nearby that provide a mix of recreation, retail, entertainment and social-centred services.
• The Chinguacousy Branch is the largest and busiest branch in the Brampton Library system, consistently attracting the most foot traffic over the past 5 years - with the exception of 2017 due to a major renovation - recording over 464,000 inperson visits in 2019.
• The Chinguacousy Branch’s renovation and modernization project in 2017 included the integration of a professional audio recording studio and self-directed makerspace and allowed it to offer more programs (1,300) than any other branch.
Although the renovation reduced the amount of space for physical collections, Chinguacousy Branch had the second highest physical circulation rate in 2019 (572,700 items, trailing only the Cyril Clark Branch) while processing the highest number of holds (52,400) and hosting the most computer sessions (97,800) within the Library system.
• Within a 3-kilometre catchment area for the branch - roughly defined by Bovaird Drive, Airport Road, Steeles Avenue and
Kennedy Road – are an estimated 90,000 persons.1 The catchment area population estimate is 12% higher than 2016
Census data, and strong future growth continues to be anticipated as the City implements the higher density urban structure advanced in its Brampton 2040 Vision and an updated Official Plan (in progress). Chinguacousy Branch is located in a Major Growth Area referred to as ‘Bramalea New
Town and the Queens Boulevard’ where the Brampton 2040
Vision places the branch within a ‘High Street District’ that also includes an envisioned performing art centre, a town square, high and mid-rise residential and retail.
Chinguacousy Branch
Address: 150 Central Park Dr. Year Opened: 1973 Major Reno: 2017 Gross Floor Area: 43,590 ft2 Visits (2019): 464,112


1 Estimates created by Brampton Library using Esri tools and Environics data for the year 2020.
• The median age of the catchment area population is 39 years (older by 3 years than the city-wide median), the average household size is 3.0 persons (compared to 3.7 persons for the entire city), and the average household income of $81,250 is the second lowest among all branches at approximately $17,000 below the Brampton average.2
The Chinguacousy Branch renovation in 2017 has positioned it well to respond to future needs and thus only minor actions are deemed to be required over the next 10 years. While the renovation incorporated Brampton Library’s new branding colour scheme, it was done primarily through surface applications such as painting walls, adding text and films to glazing, etc. Compared to the Library’s more recent branch developments and renovations, Chinguacousy Branch’s aesthetic finishes - while an improvement to before - do not necessarily impart an impression of a quality, warm or welcoming environment. Opportunities for consideration over the next 10 years are as follows:
• Reconfigure the ground floor stacks that are presently found below taller ceiling area, and move study and seating areas found under the lower ceiling area for improved acoustics;
• Review options for acoustic baffles or barriers around children’s area;
• Devote some floor space on the ground floor to display objects that are created in the makerspace;
• Add individual study pods along with small rooms for video conferencing or 1 to 2 person meetings;
• Expand the second-floor multi-purpose rooms for added functionality;
• Review the size of space devoted to collections in favour of repurposing some of this area for collaborative space (particularly on the second floor below the overhang where staff offices are housed above);
• Expand the makerspace into the Teen corner while consolidating or redistributing the existing
Teen collection and lounge to improve sightlines for staff supervision; and/or
• Creating a “Green Room” in the space immediately adjacent to the recording studio.
2 Ibid. Brampton Library estimates.


Cyril Clark Branch
The Cyril Clark Branch is a stand-alone library that forms part of a broader civic campus that includes the Loafer’s Lake Recreation Centre in north Brampton. In 2018, Cyril Clark Branch had the highest number of books and DVDs borrowed of all branches in the local library system. Notable recent renovations include an improved lecture theatre and program room.
• Like a number of branches in the Brampton Library system, in-person visits to Cyril Clark Branch have been consistently trending downwards over the past 5 years.
The 214,250 visits to the branch in 2019 was the lowest in the library system with the exception of the South West branch that opened that same year. The opening of the
Springdale Branch has also contributed to fewer inperson visits to the Cyril Clark Branch compared to past years.
• Despite its low visitation, Cyril Clark Branch had the highest physical borrowing rate (581,250 items) of any branch within the library system and processed the second highest number of holds (46,700) in 2019. The branch offered the fewest number of programs (506) and the 16,700 computer sessions were the lowest of any branch due in part to a lower than average number of public workstations relative to the rest of the library system.
• A 3-kilometre catchment area for the branch - roughly defined by Mayfield Road, Great Lakes Drive, Williams
Parkway and McLaughlin Road – results in an estimated population of 92,000 persons,3 an increase of 17% compared to 2016. Population over the next 10 years is anticipated to grow as a result of approved development plans.
• The median age of the catchment area is 37 years (older by 1 year compared to the city-wide median), the average household size is 3.6 persons (similar to the entire city), and the average household income of $108,000 in is approximately $9,000 above the Brampton average.4
Cyril Clark Branch

Address: 20 Loafer’s Lake Lane Year Opened: 1985 Major Reno: 2010 Gross Floor Area: 25,354 ft2 Visits (2019): 214,254


3 Estimates created by Brampton Library using Esri tools and Environics data for the year 2020. 44 Ibid. Brampton Library estimates.
The 2010 renovation has helped to create a strong “look and feel” to the Cyril Clark Branch. It is a comfortable and inviting place containing quality materials and offering pleasant views to adjacent green spaces on two sides. Opportunities for consideration over the next 10 years are as follows:
• Convert the community program room into a quiet study area given it has the benefit of offering direct exterior access for after-hours use and branch staff frequently ask studiers to relocate in noisier areas of the branch when a program is scheduled;
• Carry out an Accessibility Audit or similar assessment for the entire branch in order to identify upgrades for persons with disabilities, particularly if accessing the theatre and its back-of-house areas on the basement level;
• Explore the potential to utilize the basement level for library programs and services in response to anticipated increased demands arising from population growth in the surrounding area;
• Update the furniture to refresh the space, increase accessibility and integrate furniture or equipment that enables greater access to power outlets;
• Reconfigure stacks to open up floor area found below the vaulted ceiling to accommodate larger events and offer flexible seating when no events are taking place; and/or
• Add a maker space along small study rooms to address current needs and trends being generated by the surrounding community.



Four Corners Branch
Four Corners Branch is a multi-storey stand-alone library that is centrally located along the Queen Street corridor in Brampton’s downtown. The branch was constructed next to the original Carnegie Library with library operations transferred to the Four Corners Branch following amalgamation of the former Chinguacousy Township with the City of Brampton in the mid-1970s. Brampton Library’s corporate administration offices are housed on the second floor of this branch.
• In-person visits to Four Corners Branch and number of programs offered were the second fewest in the library system, potentially influenced by limited onsite parking by virtue of its downtown location as well as some historical usage transitioning to the newly opened Springdale Branch.
That said, the number of visits has been generally exhibiting an upwards trend over the past 5 years as residential and employment populations grow in the city’s core.
• Four Corners Branch’s 54,200 computer sessions were second to only the Chinguacousy Branch and can be partly attributed to the above-average number of public workstations that are available.

• The Four Corners Branch is located in the Brampton 2040
Vision’s Downtown that will attract tens of thousands of new residents and jobs, while being positioned as an area oriented to arts and culture, academia and employment through various sub-districts. Future development in the Downtown has the potential to continue the trend of increasing inperson visits to the branch along with placing pressures on existing services such as borrowing, access to computer workstations, and creating greater demands for programs.
• Approximately 110,500 persons are presently estimated to live within 3 kilometres of the branch - roughly defined by
Chinguacousy Road, Steeles Avenue, West Drive, and
Bovaird Drive.5 Based on this figure, only the Springdale
Branch had more people living within its catchment area. The 2020 population estimate is 14% above 2016 levels, with the catchment area population expected to grow and diversify over the next 10 years as a result of intensification through implementation of the Brampton 2040 Vision.
• The median age of the catchment area is 39 years (which is 3 years above the city-wide median), the average household size is 2.9 persons (compared to 3.7 persons for the city), and the average household income of $80,900 is the lowest among all branches sitting 18% below the city average.6
Four Corners Branch
Address: 65 Queen St. E. Year Opened: 1973 Major Reno: 1991, 2005 Gross Floor Area: 38,939 ft2 Visits (2019): 239,027


5 Estimates created by Brampton Library using Esri tools and Environics data for the year 2020. 6 Ibid. Brampton Library estimates.
The aesthetic appearance of Four Corners Branch reflects its era of design and construction, albeit its interior finishes are of a high quality and warm in tone thus leading to it being a warm and welcoming space. As noted in Section 5.1, however, the Four Corners Branch would become redundant in its current location should a new Central Library be constructed as part of the Brampton Centre For Innovation located a short distance away.
In the event that the timing of the new Central Library/Centre For Innovation is delayed past the 2023 construction target, Brampton Library may consider the following minor upgrades pending further analysis of its return on investment relative to the time that the branch is to remain open:
• Minor improvements to the multi-purpose room sometimes referred to as the “auditorium” in order to allow a greater range of in-branch programming and leverage its separate exterior access for quiet study and after-hours use.
• Expand the ground floor and second floor washrooms, while possibly integrating a universal washroom (noting this could be capitally intensive and thus warranted if the branch would continue to operate for at least 7 to 10 years from the time of investment);
• Lower the book stacks on both floors to improve staff sightlines for supervision and safety.




Gore Meadows Branch
The Gore Meadows Branch forms part of the multi-use Gore Meadows Community Centre located in Brampton’s north-east.
• Being part of a multi-use community centre helps Gore
Meadows Branch attract strong visitation and program attendance by virtue of sharing foot traffic and program rooms with other community centre components. The 388,000 visits to the branch in 2019 were the third highest in the library system while programs offered (1,100) and program attendance (26,300) trailed only the Chinguacousy
Branch.
• A 3-kilometre catchment area for the branch - roughly defined by Airport Road, Queen Street, Clarkway Drive, and
Mayfield Road – encompassed an estimated 56,500 residents in 2020,7 an increase of 18% compared to the 2016 population due to the ongoing development of residential subdivisions. The Gore Meadows Branch is located in the
‘Bram East Town Centre’ established through the Brampton 2040 Vision; Town Centres are intended to provide localized live-work opportunities through complete, full-service, mixed-use and diverse communities and thus the branch will be an important part of helping to fulfill such a vision.
• Continued population growth is expected to place additional pressures upon existing library services available at Gore
Meadows Branch including program needs for multiple age and socio-economic groups, computer access and borrowing. The recent opening of the Springdale Branch will likely serve to address a degree of future needs given a portion of its catchment area overlaps with Gore Meadows
Branch and there is already evidence that Springdale Branch has captured a portion of historical Gore Meadows Branch users.
• The median age of the catchment area population is 34.7 years (which is 1.5 years younger than the city-wide median), the average household size is 4.7 persons (higher than the 3.7 persons per household for the entire city), and the average household income of $116,300 is 18% above the Brampton average.8
Gore Meadows Branch

Address: 10150 The Gore Rd. Year Opened: 2013 Gross Floor Area: 32,000 ft2 Visits (2019): 388,227


7 Estimates created by Brampton Library using Esri tools and Environics data for the year 2020. 8 Ibid. Brampton Library estimates.
The Gore Meadows Branch employs a highly flexible floor plan with generous ceiling height and ample natural light. A renovation is presently approved to add a makerspace, expanding into a floor space previously occupied by the City of Brampton. Opportunities for consideration over the next 10 years are as follows:
• Integrate a washroom as part of the current renovation/expansion project given that library customers must presently traverse a lengthy distance down the community centre’s corridor which can be problematic for library users in the far end of the branch (e.g., the children’s area);
• Review acoustics within the space noting that as a large single space, there is little isolation between the library’s different zones (baffles or softer furniture could help to absorb some sounds);
• Thoroughly review study areas, which are the predominant use of the branch, with consideration to ”zone” the different types of study areas and segregate individual or small group study spaces;
• Improve acoustics and temperature comforts within the existing group study rooms, potentially by employing an operable wall to open up the rooms to the larger space so that they may function as an alcove rather than an enclosed room; and/or
• Add power outlets to the existing computer lab, potentially around its perimeter, in order to support its new use as a quiet study room.



Mount Pleasant Village Branch
Mount Pleasant Village Branch is a multi-storey library that is colocated with an elementary school, serving as the library for the school and the surrounding community in north-west Brampton.
• Mount Pleasant Village Branch attracted more than 418,700 visits in 2019, making it the second-most visited branch in the Brampton Library system. More notably, however, is the fact that Mount Pleasant Branch recorded the greatest percentage increase in the number of visits over the past 5 years while it is the only branch where physical borrowing increased; these trends can be attributed to residential growth within its catchment area.
• The catchment area population – living within a 3 kilometre service radius of the branch is roughly defined by Wanless Drive, McLaughlin Road, Queen Street, and
Heritage Road - is estimated to be 101,500 persons.9
This represents an increase of 21% compared to the 2016 population due to the development of new residential subdivisions and continued population growth is forecasted over the next 10 years, particularly west of Heritage Drive, which can be expected to further drive usage at this branch.
• The median age of the catchment area population is 33.6 years (which is 2.5 years younger than the city-wide median), making it the youngest among of all branches.
The average household size is 4.1 persons (higher than the 3.7 persons per household for the entire city), and the average household income of $111,250 is approximately 13% above the Brampton average.10
The Mount Pleasant Village Branch is a welcoming space with quality finishes and warm colour tones, not to mention its historical connection within a converted train station. The following potential improvements are recommended over the next 10 years:
• Addition of a makerspace, either within a closed room on the ground floor or in an open area on the second floor (a partnership with the adjacent school should be explored); and/or
• Carrying out an Accessibility Audit or similar assessment to determine upgrades may be needed to facilitate greater access between the two floors.
Mount Pleasant Village Branch

Address: 100 Commuter Dr. Year Opened: 2011 Gross Floor Area: 16,500 ft2 Visits (2019): 418,731


9 Estimates created by Brampton Library using Esri tools and Environics data for the year 2020. 10 Ibid. Brampton Library estimates.


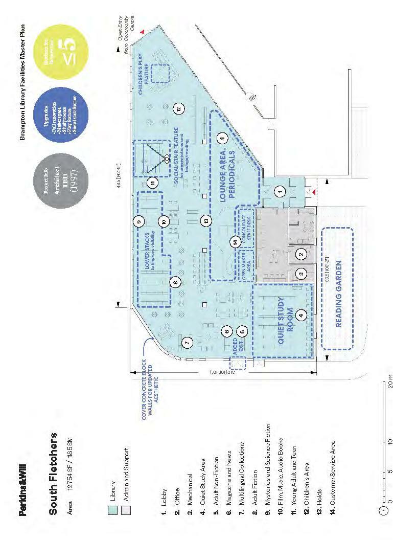
South Fletcher’s Branch
South Fletcher’s Branch forms part of the multi-use South Fletcher’s Sportsplex. A 3-kilometre service radius of the branch is roughly defined by Queen Street, Highway 410, Derry Road and James Potter Road in which the following notable characteristics are prevalent:
• Although South Fletcher’s Branch benefits from foot traffic shared with its multi-use community centre, its number of visits and program attendance is below the
Brampton Library average. This is a likely result of the branch’s limited square footage (only the South West
Branch is smaller) and it is the only branch that does not have its own meeting/program room thereby its programs compete for time with other City programs being run out of the community centre.
• South Fletcher’s Branch is located in the Uptown identified by the Brampton 2040 Vision as an area that is envisioned to become a transit-oriented live-work civic core for business, commerce, leisure and tourism. More specifically, the branch forms part of a civic/institutional sub-district anchored by Sheridan College through the
Brampton 2040 Vision.
• The catchment area population was an estimated 104,500 persons in 2020,11 an increase of 14% compared to 2016. Despite the large number of people living within its catchment area, South Fletcher’s Branch’s physical footprint of 12,754 square feet makes it one of the smallest branches (only the South West Branch is smaller). The population is anticipated to grow and diversify over the next 10 years as a result of intensification/infill developments and implementation of the Brampton 2040 Vision.
• The median age of the catchment area population is 36 years (which is on par the city-wide median), the average household size is 3.5 persons (slightly below the city average), and the average household income of $93,300 is $5,000 below the Brampton average.12
South Fletcher’s Branch

Address: 500 Ray Lawson Blvd. Year Opened: 1996 Gross Floor Area: 12,754 ft2 Visits (2019): 299,346


11 Estimates created by Brampton Library using Esri tools and Environics data for the year 2020. 12 Ibid. Brampton Library estimates.
South Fletcher’s Branch employs a flexible, open plan with a high ceiling. Its exposed concrete block, hollow metal framed, wired glass windows to adjacent indoor spaces, outdated colours and furnishings all contribute to an ‘institutional’ feeling in the space. Opportunities for consideration over the next 10 years are as follows:
• Expand the library into the outdoors with a reading garden in order to announce the library on the exterior and create a more welcoming entry for customers;
• Cover the aforementioned concrete blocks while upgrading the glazing, ceiling system, flooring, etc. in order to contribute to an improved aesthetic experience;
• Carry out a full interior renovation that is coordinated with a broader community centre upgrade to determine how to make better use of the adjacent corridors and improve overall safety and sightlines to discourage negative behaviours that have been taking place in those areas;
• Reconfigure the entry sequence and activate the wall shared with the corridor in order to introduce passive supervision of the spaces shared with the community centre; and/or
• Make use of the door to the community centre and expand out into the lobby of the community centre with a kiosk or activity area.



South West Branch
The South West Branch is the newest library in Brampton, opening in 2020. It is a purpose-built, stand-alone branch situated within a retail plaza that is intended to be an “interim branch” to serve populations in the city’s burgeoning south-west until a larger, permanent branch is constructed for the area.
• As a new branch, visitation and programming information has not been made available since 2020 represents the first full year of operation and data is still being compiled at time of writing. It bears noting that any data for 2020 and 2021 will be subject to the effects of branch closures resulting from the COVID-19 pandemic.
• A 3-kilometre catchment area for the branch - roughly defined by Queen Street, Chinguacousy Road, Winston
Churchill Boulevard and Highway 407 – contains an estimated population of 39,000 persons in 2020.
Whereas the land was largely undeveloped prior to 2011, the southwest is one of Brampton’s last remaining tracts of greenfield development and strong population growth is projected over the next 10 years and beyond.
• Longer-term growth is also anticipated by virtue of the library’s location within the Bram West Town Centre as established in the Brampton 2040 Vision. Town Centres are intended to provide localized live-work opportunities through complete, full-service, mixed-use and diverse communities and thus the South West Branch will be an important part of helping to fulfill such a vision.
• The median age of the catchment area population was 35 years (1 year below the city-wide median), the average household size is 3.9 persons (similar to the city average), and the average household income of $127,000 in 2015 made it one of the most affluent areas of the city.
The South West Branch offers a retail-style environment with a colour scheme that creates a similar look and feel as the Chinguacousy branch. As an interim branch, no design direction is offered in recognition that this branch will cease operations upon opening of the proposed Embleton District Branch assuming the facility implementation strategy identified in Section 5.2 is followed.
South West Branch

Address: 8405 Financial Dr. Year Opened: 2020 Gross Floor Area: 6,000 ft2 Visits (2020): n/a due to COVID-19



Springdale Branch
The Springdale Branch is another recent addition to the Brampton Library portfolio, opening in 2018 as a stand-alone branch and designed to achieve a LEED Gold certification for energy efficiency.
• As a new branch, use of library services at Springdale
Branch is expected to grow into the future. Brampton
Library has found that Springdale Branch has already captured a portion of users from Gore Meadows Branch,
Cyril Clark Branch and Four Corners Branch.
• Springdale Branch has already become one of the most important branches for library programming. In 2019, over 850 programs were attended by more than 24,000 people resulting in an average of 28 participants per program; the average program participation rate is the highest of all branches (and 32% above the system-wide average). Springdale Branch also hosted the second highest number of computer sessions across the system.
• The branch catchment population - within a 3-kilometre service radius roughly defined by Mayfield Road, Airport
Road, North Park Drive and Heart Lake Road - is the highest of any branch in the Brampton Library system with an estimated 124,000 persons,13 an increase of 19% compared to 2016. Population growth over the next 10 years will primarily be attributable to new subdivisions located north of Countryside Drive.
• The median age of the catchment area population was 35.4 years (similar to the city-wide median), the average household size is 4.2 persons (above the city average of 3.7 persons), and the average household income of $102,000 is $4,000 above the Brampton average.14
Springdale Branch is an award-winning modern design with high quality finishes and good access to natural light and views. The bold design results in it being a showpiece within the library system. No upgrades or changes recommended over the next 10 years.
Springdale Branch

Address: 10705 Bramalea Rd. Year Opened: 2018 Gross Floor Area: 25,000 ft2 Visits (2019): 296,517


13 Estimates created by Brampton Library using Esri tools and Environics data for the year 2020. 14 Ibid. Brampton Library estimates.







