Tierra de Tránsito

Transit Land
Points of Opportunity
![]()

Transit Land
Points of Opportunity
University:
Programme:
Date:
Amsterdam University of the Arts Academy of Architecture
MSc in Architecture August, 2025
Student:
Committee:
David Alejandro Vaca Cartagena david95vaca@gmail.com david.vacacartagena@student.ahk.nl
Machiel Spaan (Mentor), David Keuning, Patrick Roegiers
This project began through long conversations with people on the move—migrants whose stories surfaced in moments of quiet honesty during my years of social service work. Their words, filled with courage, exhaustion, and hope, left a lasting impression I couldn’t ignore. It was then that I began to understand migration not just as a route, but as a condition shaped by vulnerability, adaptation, and the pursuit of survival.
As an architecture student, I encountered something different in the migrant journey: a need for spaces that respond not only to function, but to urgency. Spaces built not from ideal materials, but from what’s at hand: discarded wood, plastic sheeting, bamboo, cardboard. In these fragments, I recognized resilience, ingenuity, and dignity.
This book is a compilation of that understanding. It does not present fixed interventions or perfected shelters. Instead, it offers a toolkit of possibilities, prototypes rooted in real landscapes, constraints, and needs. It explores how architecture can operate not only through construction, but also through the creation of opportunities: to shelter, to rest, to travel, to drink, and to engage in leisure.
It is an attempt to listen, to discover, and to experiment.

These photographs capture moments from the migrant journey through Mexico. Brief yet powerful glimpses of resilience, vulnerability, and hope. They are dedicated to all who have traveled these paths, crossed these rivers, and pursued their dreams against all odds.
They inspired me to continue this research and to develop this project further. Each face, gesture, and landscape serves as a reminder that even the smallest interventions: a place to rest, a meal to share, a moment of safety, can make a profound difference. This work is for them, and for the hope that dignity and safety can accompany every step of the journey.




























Introduction to the migration context: time, risk, origin, and destination.
Each year, hundreds of thousands of migrants cross into Mexico through its southern border, many of them teenagers, and many traveling alone. These individuals are fleeing violence, poverty, political instability, or broken systems in their home countries, primarily Honduras, El Salvador, Guatemala, and Venezuela. What awaits them is not just a physical journey across a vast territory, but a daily negotiation with fear, exposure, and survival.
According to “Estadística sobre Movilidad y Migración en México”, nearly 925,000 migrants entered the country irregularly in 2024 alone. Among them, a rising number are unaccompanied minors and teenagers, some as young as 12 or 13 years old, who travel without parents or legal guardians. Their goal is often clear: to reunite with family members in the United States or to seek the possibility of a dignified life beyond the limitations they were born into.
Yet, the path north is perilous. Migrants face extortion, kidnapping, sexual violence, forced labor, and recruitment by criminal groups. Many ride atop freight trains like La Bestia, walk for days through jungle or desert terrain, or sleep under bridges, in abandoned lots, or in overcrowded shelters. Along the way, they depend on informal networks, shelters, and luck.

Migrants crossing Mexico toward the United States do so under precarious and often dangerous conditions, relying on a mix of walking, riding buses, or traveling aboard freight trains, most notably La Bestia. Each method carries its risks, limitations, and emotional toll, shaped by the migrants’ financial means, physical endurance, and luck.
For many, the journey begins at the southern border in Tapachula (Chiapas) or Tenosique (Tabasco), continuing through central states like Veracruz, Oaxaca, Puebla, and San Luis Potosí, before reaching the northern border cities such as Piedras Negras, Reynosa, or Ciudad Juárez.
While some migrants attempt to pay for intercity buses to cover longer distances quickly (averaging 1,500–2,000 km in about 2–3 days), most are forced to walk for stretches of days or even weeks, especially after being stopped or deported. Traveling on foot can extend the journey to over a month, often under intense heat, rain, and unsafe conditions.
However, the most common form of travel is by train. La Bestia, a series of cargo trains not designed for human passengers, is both a symbol of hope and a source of danger. Migrants climb atop moving wagons or cling to narrow ledges and ladders. While the train can carry them across hundreds of kilometers in a few days, it exposes them to robbery, extortion, physical injury, and fatal accidents. Trains may stop without warning in remote areas, leaving migrants vulnerable to the elements or potential criminal activity.
The journey’s duration is highly unpredictable. In ideal conditions, a migrant could reach the U.S. border from southern Mexico in 7 to 14 days by train, 3–4 weeks on foot, or 2–3 days by bus. But detentions by immigration authorities (INM), checkpoints, deportations, cartel control zones, and shelter wait times can extend this timeline to several months.
This diversity of routes and methods reflects not only the desperation but also the resilience and emotional weight of those on the move. For many

migrants, the journey is not only a physical test but also a psychological and emotional one, marked by moments of fear, hope, exhaustion, and fleeting relief. Every step forward carries the weight of uncertainty, the memory of what was left behind, and the fragile hope of a safer future. These pathways, carved not just into maps but into lived memory, tell a story of survival and courage along the way.
Traveling through Mexico as a teenager is becoming an increasingly common experience. Between January and August 2024, Mexican authorities recorded over 100,000 minors in transit. While most were traveling as part of family groups, 4,283 were unaccompanied minors, highlighting a disturbing reality: even children under the age of 11 are navigating Mexico on their own. Their reasons for undertaking such a dangerous journey are heartfelt and driven by the need to escape violence, extreme poverty, or to reunite with family in the United States. However, few are fully aware of the dangers they will face: broken trust, harsh terrain, extortion, kidnapping, and even sexual violence. Many begin their journey with hope in their hearts, but that innocence quickly fades under the weight of Mexico’s brutal conditions.
What begins as a hopeful trip soon transforms into a crucible of suffering and survival. These teenagers witness horrific events like abuse, theft, and worse, but often feel too fearful to speak out, knowing that doing so could result in reprisal or abandonment. The physical exhaustion from walking for days, coupled with exposure to extreme weather conditions, only deepens their sense of emotional disconnection. Over time, many stop smiling, isolate themselves, and become hypervigilant, simply to survive the next day.
Despite their vulnerability, these teenagers often display remarkable resilience and solidarity.

They form makeshift “families” with other travelers or teenagers traveling in similar conditions, sharing food, water, or whatever semblance of safety they can find. Their resourcefulness shines through as they navigate with borrowed phones, find shade in the sweltering heat, and help each other across difficult terrain. However, with each step of the journey, their innocence continues to be shattered, and the loss of childhood transforms into determination.

Migrants as individuals vs. part of a collective.
The migrant journey across Mexico is marked by extreme contrast—between solitude and solidarity, danger and relief. These dualities are most evident in how teenage migrants experience both deep individualism and fleeting moments of collectivity.
Early in the journey, particularly when riding La Bestia through remote jungle or desert regions, teenagers are often forced into heightened states of alertness. Even when traveling in small groups, each person must first protect themselves. Encounters with cartels, extortionists, or local thieves mean trust is a rare currency. Fear fosters individual survival. Teenagers become withdrawn, prioritizing hiding, conserving water, and remaining unnoticed, especially when shelter or guidance is uncertain.
But the journey is not all isolation as migrants approach shelters, such as Casas del Migrante, the dynamic shifts. Here, community emerges, not only among migrants, but through support from volunteers, aid workers, and local citizens. Shared food, blankets, and stories foster brief but powerful moments of human connection. These resting points offer more than physical recovery; they restore dignity. Young migrants may join in simple games, conversations, or collective shelter-building, reawakening a sense of belonging before the journey pulls them back into motion.


Architecture in this context must acknowledge both realities. It must protect the individual in times of risk and nourish the community when it becomes possible. The tension between solitude and support defines the spatial, emotional, and material conditions of this journey.
Traveling through Mexico as a migrant teenager means enduring long stretches of solitude, even when surrounded by others. In the most challenging moments of the journey, individual survival takes precedence. Young migrants become quiet observers of danger, constantly evaluating who and what to trust. Their primary instinct is to remain unseen, hiding between wagons, under tarps, behind trees. Moving without drawing attention becomes a form of protection, especially after witnessing or hearing about others who were robbed, kidnapped, or harmed for being vulnerable.
Basic needs become constant burdens: finding a sip of water, a bite to eat, a safe place to rest, even for a few minutes. There is rarely certainty about where they are or how far the next shelter may be. Without maps, a lack of phone signal in some places of the routes, or people to ask, orientation is lost. Some carry vague memories of city names or stories from others who passed before them. But in the silence of the mountains or under the burning sun in the desert, that knowledge fades into anxiety and guesswork.
At night or in brief moments of quiet, thoughts return to what was left behind. A parent’s voice, a sibling’s laughter, the corner of a familiar street. Yet, despite fear and fatigue, something keeps them going, a dream of reaching the other side, of reuniting with family, of finding a place where they can be safe. In these moments of isolation, their courage is tested. They walk forward not only through unknown terrain, but through a deep inner landscape of memory, survival, and hope.



















In contrast to the solitary moments of the journey, collectivity emerges at key points, often around shelters, resting areas, and aid stations. These places are more than just buildings; they become temporary communities shaped by shared experiences, mutual support, and survival. Religious groups, humanitarian organizations, and volunteers from the surrounding towns often run shelters like Casa del Migrante or community kitchens. They offer food, water, basic medical aid, and a place to rest, even if just for a day. For many teenagers, this is the first moment of safety after weeks of travel.
Local communities also play a vital role. Residents may leave out water jugs, prepare meals, or offer clothes and supplies to passing migrants. These acts of kindness create a fragile but vital support network. Within this collective space, migrants exchange information about where the next shelter might be, what parts of the route are dangerous, and when a train might pass. This shared knowledge forms an informal map of the journey, passed from person to person.
Yet, even within this community, the needs remain pressing. Shelters are often overcrowded, and many migrants sleep outside on the ground or under bridges. For teenagers, especially, there are few safe places to rest, no spaces designed for leisure or emotional recovery. There’s little room for play, despite their youth. And still, they find moments to connect, with a shared meal, a laugh, or a whispered plan for the next step forward.
Collectivity offers a brief pause in the journey’s harsh rhythm. In these spaces of togetherness, teenagers find not only support but also the strength to imagine a future, and the courage to keep moving toward it.


























A map of the journey: geography, danger zones, seasons, and critical nodes.
This migration route is one of the most frequently traveled paths by families and teenagers entering Mexico on their way to the United States. Tenosique, located near Mexico’s southeastern border with Guatemala, has become a primary entry point for many migrants. Unlike the congested crossings near Tapachula, Chiapas, the route through Tenosique is perceived as slightly less chaotic and violent. For this reason, it has become the preferred option for many families with children and unaccompanied teenagers looking for a safer passage into Mexico.
From Tenosique, migrants board the freight train known as La Bestia or travel on foot, beginning a northbound journey that cuts through the country’s dense jungles, central plateaus, and arid deserts. The route stretches more than 2,000 kilometers, with migrants typically passing through states such as Veracruz, Oaxaca, Puebla, San Luis Potosí, and Nuevo León before reaching the border city of Piedras Negras in Coahuila. The journey may take between 3 to 8 weeks, depending on interruptions, detentions, or periods of rest in shelters.
The challenges along this path are immense. Migrants endure extreme climates, from the intense heat and humidity of southern jungles to the cold nights in the northern highlands. They face risks of violence, including robbery, assault, extortion, and kidnapping, often carried out by organized crime groups, corrupt officials, or opportunistic locals. The physical toll is equally demanding, especially for teenagers: long stretches of walking, dehydration, lack of sleep, and moments of psychological trauma brought by witnessing violence or losing contact with loved ones.
Despite the dangers, migrants keep moving, driven by the hope of reaching the border and reuniting with family or seeking better opportunities. Along the way, temporary shelter can be found in a network of casas del migrante (migrant shelters), though space is limited and stays are short. In the face of all hardship, the journey from Tenosique to Piedras Negras becomes more than a physical passage; it becomes a test of endurance, resilience, and, for many teenagers, a defining period of their young lives.


Between Tenosique and Piedras Negras, nineteen casas del migrante (migrant shelters) form a fragile network of support for those making the long, dangerous journey to north. These shelters offer a temporary pause, providing food, rest, basic medical care, and a moment of safety, especially for teenagers traveling alone.
Most are run by religious groups, civil organizations, and local volunteers. Shelters like La 72 in Tenosique and Frontera Digna in Piedras Negras are known for their commitment despite scarce resources. Stay durations are often limited to 24 to 48 hours, with some migrants sleeping outside due to overcrowding.
Though basic, these shelters offer critical moments of stability. Meals are served at set times, clothes are donated, and some locations organize orientation sessions to inform migrants about the road ahead. For teenagers, occasional games, drawing materials, or informal lessons provide rare moments of joy and connection.
Still, conditions are far from ideal. Many sleep on floors or thin mats in cramped rooms. Medical attention and emotional support are limited, and the shelters often operate at full capacity. Despite this, they remain essential spaces of care and community.
Each shelter is a point of collective effort; places where exhausted travelers are reminded they are not entirely alone. These spaces give not just food or shelter, but something deeper: a brief restoration of dignity and hope amid a harsh and uncertain journey.


Migrants traveling through Mexico from Tenosique to Piedras Negras often rely on a variety of transport methods, each with its risks, costs, and challenges. One of the most notorious forms of transport is the train known as La Bestia. The journey by train can take anywhere from several days to weeks, depending on delays and conditions. Still, it exposes migrants to risks such as falls, accidents, extortion, and sometimes even violence from criminal groups. While La Bestia is free, it is perilous, especially for minors who often choose to board alone to avoid the crowded and risky conditions of buses or other forms of transport.
Buses are another standard mode of transport, offering more safety and comfort than the train. However, they come with a higher cost, which many migrants struggle to afford. Bus journeys from Tenosique to Piedras Negras typically take one to two days, depending on the number of stops and road conditions. Despite being a safer option, buses are still vulnerable to extortion and robbery by cartels or corrupt officials.
Ridesharing or hitchhiking is another option, though it is less reliable and more dangerous, as migrants are vulnerable to exploitation by drivers. Walking is often the last resort, usually when transport is unavailable or too expensive. Migrants walking through Mexico can take weeks to complete the journey, enduring extreme weather, exhaustion, and constant fear of violence.
Teenagers often choose to travel alone, especially on La Bestia, in search of independence or to avoid dangerous situations with family members. However, along the way, they tend to form temporary bonds with other migrants, sharing food and offering protection, thus creating makeshift communities for survival.


Migrants traveling from Tenosique to Piedras Negras face different vulnerabilities depending on whether they are traveling alone, with family, or as part of a caravan.
Traveling alone, especially on La Bestia or while hitchhiking, exposes migrants to significant risks. Teenagers and individuals without families often seek independence but face extreme dangers such as exploitation, violence, and extortion. They are more vulnerable to criminals and have no immediate support in emergencies. Despite these risks, solo travelers often form temporary bonds with others, creating makeshift communities for mutual survival.
Families provide each other emotional support and safety, but they are also visible targets for exploitation and abuse. Parents bear the emotional burden of protecting their children, which adds to the challenges. While families are more visible targets for criminals, they also offer each other resilience through shared purpose and mutual protection, making the journey more bearable despite the heightened risk.
Caravans provide a sense of collective protection and solidarity, as migrants travel together for mutual support. However, caravans attract attention from authorities, increasing the risk of detention or deportation. The risks also arise when individual members falter, affecting the group’s overall resilience.
The moments of most vulnerability occur during night travel, or under extreme weather conditions. Solo travelers experience the most fear, families find strength in unity, and caravans rely on group solidarity.


The journey has claimed the lives of thousands of migrants, including teenagers. The International Organization for Migration (IOM) reported over 1,457 deaths and disappearances throughout the Americas in 2022 alone, with many occurring along the Mexico-U.S. border.
The causes of death are varied and often brutal:
Train Accidents: Many migrants, especially teenagers, board La Bestia, a freight train notorious for its dangers. Accidents occur when migrants fall asleep and are jolted off the moving train, leading to fatal injuries. In 2013, a derailment in Huimanguillo, Tabasco, resulted in 12 deaths and 22 injuries among migrants aboard La Bestia.
Dehydration and Heatstroke: Crossing the arid deserts exposes migrants to extreme temperatures, leading to dehydration and heatstroke. The IOM documented 232 fatalities in the first quarter of 2024, primarily due to drowning along maritime routes, highlighting the enduring risks faced by those engaged in such movements.
Violence and Crime: Migrants are vulnerable to assaults, extortion, and kidnapping by criminal groups. Reports indicate that armed groups linked to drug cartels often target the train and surrounding areas to rob, extort, and kidnap migrants.
For the relatives of the victims, the loss of a loved one is devastating. Families left behind often suffer from the anguish of not knowing the fate of their loved ones. The uncertainty can lead to prolonged emotional distress, and in many cases, families are forced to live with the pain of loss without closure.
The journey is fraught with dangers that disproportionately affect vulnerable migrants. The high incidence of deaths and disappearances underscores the urgent need for comprehensive measures to protect migrants and address the root causes of their perilous journeys.



The migrant route crosses a remarkable range of climates, each shaping the landscapes and the challenges faced along the way.
The journey begins in a warm subhumid region, where high temperatures combine with seasonal rains. Vegetation is lush and tropical, offering shade yet trapping heat and humidity, which can lead to fatigue. Soon, the route passes through areas of warm, humid climate, marked by frequent rainfall, fertile lowlands, and rivers that can both aid travel and present dangerous crossings.
Gradually, the climate shifts toward warm, dry conditions. Here, rainfall is scarce, the vegetation becomes more open, and shade is limited. Water sources are less frequent, increasing the risk of dehydration. This transition intensifies upon entering very dry zones, semi-desert regions with intense sun exposure, dusty winds, and vast stretches where both shelter and water are challenging to find.
Large inland portions of the route fall under a dry climate, where days can be extremely hot, but nights often turn cool. The terrain varies between open plains and rugged hills, requiring physical endurance.
As the route climbs to higher elevations, migrants encounter temperate humid climates, where cooler temperatures and regular rainfall sustain forested slopes and greener valleys. In temperate subhumid areas, the air remains cooler than in the lowlands, but rainfall decreases, creating a mix of grasslands and open woodland.
This constant shift, from humid tropics to arid deserts and cooler highlands, forces migrants to adapt continuously. Each zone demands different strategies for hydration, shelter, and rest, and the abrupt climate changes can quickly impact both physical condition and morale.


The journey from Tenosique, Tabasco, to Piedras Negras, Coahuila, crosses regions with different seasonal advantages and challenges. Choosing the right time of year can make a significant difference in safety, endurance, and overall conditions.
In the south, Tabasco and Veracruz are best traveled in the fall or winter. During summer, high humidity and heat create exhausting conditions, increasing the risk of dehydration and heat-related illness. Cooler months reduce these risks, and although rainfall can still occur, it is less intense than in the peak wet season.
Moving into Puebla, Tlaxcala, and parts of Hidalgo, fall remains favorable, but winter is also manageable. Higher altitudes bring cooler air year-round, though winter nights can be cold. Avoiding summer here helps migrants sidestep intense midday heat during climbs and walks across hilly terrain. In Querétaro, Guanajuato, and San Luis Potosí, fall is ideal, with moderate temperatures and reduced rainfall. Summers in these regions can be hot and dry, draining energy quickly, while winter can be tolerable but sometimes cold at night, especially in open areas.
Approaching the north, in Coahuila, winter is generally the most favorable season. Summers in this arid region bring extreme heat, while spring and early fall can still be very hot. Winter offers cooler days for long walks, but migrants must be prepared for cold nights, particularly in open desert landscapes.
Overall, fall provides the most balanced conditions along the entire route, offering moderate temperatures, less extreme humidity, and reduced risks from both heat and cold. Winter is a close second, especially in the northern deserts, though extra preparation is needed for low nighttime temperatures.




Tierra
Bojay
Mons.
Ranzahuer
Decanal
Las
La
San
Un
El
Gonzaléz
Manos
Casa

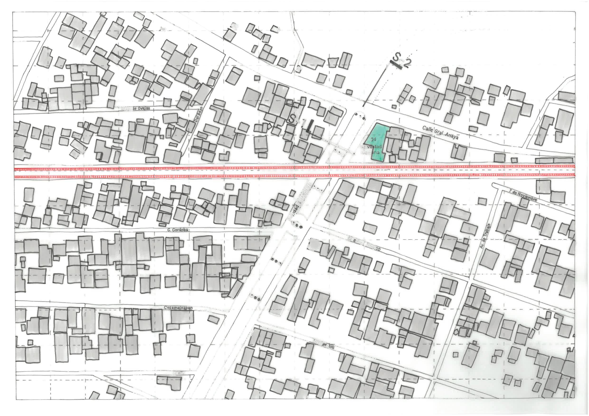
This map compiles essential information on the migrant journey from Tenosique to Piedras Negras, indicating shelter locations, unsafe areas, migration control points, average temperatures, and the most favorable travel seasons. Created as a practical tool for shelters and humanitarian organizations, its goal is to support informed decision-making, improve safety, and guide assistance strategies. By providing clear and accessible data, the map aims to help protect migrants, reduce risks, and strengthen the network of support along the route.

The migrant journey from Tenosique to Piedras Negras passes through several high-risk zones where survival is challenged not only by natural conditions but also by human threats.
At the southern border, the dense jungle near Tenosique presents one of the first dangers. Thick vegetation, extreme humidity, and heat exhaust travelers quickly, while rivers and remote terrain make navigation and escape from danger difficult. In this isolation, migrants are vulnerable to both the elements and criminal groups that patrol crossing points.
The state of Veracruz is another critical point. Known for its strategic train routes, it has become a hotspot for violence, extortion, and assaults on migrants, often occurring near train tracks or boarding points. Traveling through this area usually means facing organized crime, corrupt officials, and limited safe shelter options.
Train tracks, stretching through multiple states, carry their dangers. Traveling on La Bestia can lead to severe injuries from falls, exhaustion, or even death. Criminal assaults on the train are also frequent.
As the journey moves north, the desert regions become a life-threatening challenge. With extreme heat by day, cold at night, and scarce water sources, dehydration and exhaustion are constant risks. Many migrants underestimate the physical toll, leading to fatal outcomes.
Finally, the northern border cities, such as Piedras Negras, are known for kidnappings, extortion, and targeted violence against migrants waiting to cross. These urban zones are often controlled by organized crime, making them some of the most dangerous areas of the journey.
This map marks the general locations of these danger zones. Zoom in on the floor plan to identify the migrant journey on a larger scale and visit the areas where migrants travel with their context.












S1 - Section


S2 - Section

S3 - Section









































S1 - Section


S2 - Section

S3 - Section
































S1 - Section


S2 - Section


Materials found along the journey list and possibilities of the journey


At the beginning of the migrant journey, particularly upon arrival in Tenosique, teenage migrants often carry only the most essential items, sometimes nothing more than a backpack and a sense of urgency. Their belongings reflect the need for mobility, discretion, and survival.
Many arrive at shelters or temporary aid stations, such as the Red Cross camp, where they are offered basic supplies. A common item distributed is the safety blanket: lightweight, reflective, and vital for warmth at night. Most receive four or five blankets, which are used not only for sleeping but also as makeshift protection from rain or sun.
Inside their backpacks, teenagers often carry bottled water, a small amount of food, and, in some cases, a second pair of clothes. Some bring blankets or tarps from home, which are used for shelter during rest stops. Others carry phones, even if without service, as a way to stay connected when Wi-Fi is available, or to keep photos and memories.
These few items become central to their journey, worn, reused, repurposed. Rarely do they carry anything sentimental or heavy. Instead, every object has a purpose: to protect, to nourish, or to help them move forward.
This moment, when teenagers stand at the threshold of the unknown with only a handful of possessions, speaks of both vulnerability and strength. What they carry reflects not only what they have, but what they hope will be enough.
Migrants receive safety blankets in shelters, offering warmth and basic protection. from home for warmth, shelter, and basic protection during rest.
Even without service, phones serve as tools for maps, communication, photos, and digital memories.
It holds all belongings: food, water, clothes. It is light enough to move quickly and unnoticed.
Essential for survival, refilling whenever safe sources appear.
to stay nourished during long travel stretches.




Emergency (Safety) Blankets are lightweight, compact sheets made of aluminized plastic, typically aluminized PET, that measure approximately 160 × 210 cm, offering full-body coverage in emergencies. They are dual-sided: the silver side reflects sunlight and reduces heat gain, keeping users cool in hot environments, while the golden side reflects body heat back inward, helping retain warmth and prevent hypothermia.
Well-maintained and intact, these blankets are highly effective as emergency covers: they reduce convective heat loss, slow evaporation, and reflect radiant heat, retaining up to 90 % of body heat. Their ultra-thin, reflective surface also makes them visible, a helpful feature in signaling or distress situations.
However, the material is fragile. Once creased or torn, it can rip easily, and its durability diminishes significantly after damage. Yet even when partially torn, remnants can be upcycled: strips may serve as handmade ropes or woven into improvised crafts, making ice heaters or insulation patches, demonstrating creative reuse.
Despite fragility, in good condition, emergency blankets remain highly reliable, offering essential thermal protection with minimal weight and volume, a vital tool for migrants traversing unpredictable environments.








Bamboo is an up-and-coming resource for migrant youth in transit; adaptable, lightweight, and readily available. Young bamboo culms between six months and one year old reach diameters of 1–3 cm and heights of 1–4 meters, striking a balance between flexibility and manual workability, making them ideal for crafting temporary, movable structures (Yan-hui, 2012).
Moreover, bamboo’s high strength-to-weight ratio gives it structural integrity despite its lightness, and its flexibility enables it to bend or form curves using only basic tools or hands, qualities well-suited for building makeshift shelters, frames, or supports along migratory routes (Humanitarian Bamboo Guidelines, 2018). In emergency contexts, such as refugee camps or disaster zones, bamboo has proven its worth as a durable, portable, and quickly assembled construction material, offering shelter that is insulative, fire-resistant, and culturally adaptable (Bamboo Shelter PDF).
What makes bamboo compelling in the context of teenage migration is not only its physical properties but its human touch. The ability of a young migrant to select, cut, and bend bamboo into a simple shelter is an act that restores agency and a sense of capacity. Bamboo becomes more than a material; it becomes a tool of empowerment, a design element that can be grasped, shaped, and reimagined by the very people it serves.
Understanding bamboo in this flexible, low-resource context underscores a broader architectural ethos: interventions should be site-aware, materialaware, and human-aware, rooted in what is at hand, what is needed, and who will make it real.







Cardboard, a widely available and often discarded material, varies in structure from single-layer paperboard to multi-layer corrugated fiberboard. Corrugated types typically consist of one or more fluted inner layers sandwiched between flat liners, offering strength, insulation, and flexibility (GWP Group, n.d.; Recycling.com, n.d.). Most commonly, single- or double-wall corrugated cardboard is used in packaging, making it both plentiful and practical for reuse.
Despite its usefulness, cardboard is frequently treated as waste. However, its high recyclability and structural qualities make it an adaptable and accessible material, particularly valuable for migrants traveling through Mexico. For example, corrugated sheets can be repurposed into resting platforms, insulation layers, protective barriers, or even simple flooring. When damaged, cardboard can still be shredded or layered to form insulation pads or temporary sleeping surfaces.
In the city of Coatzacoalcos, Veracruz, growing awareness of waste management has led to a series of local recycling initiatives. A primary school campaign collected over five tonnes of recyclables, including cardboard (MasNoticias, 2025a). This was followed by the city’s first “Papelotón”, a public cardboard recycling event aimed at education and community involvement (MasNoticias, 2025b). Larger efforts, like Misión Tlacuache, have since gathered more than 14 tonnes of urban waste, directly improving environmental conditions (MasNoticias, 2025c).
These types of recycling programs already active in Coatzacoalcos could open valuable alliances with migrant shelters, helping redirect discarded cardboard toward protective and constructive uses. In doing so, waste management becomes a tool of humanitarian support, turning what is thrown away into something migrants can carry, sleep on, or build with during their journey.







This catalog is a compilation of materials found along the migrant journey from Tenosique to Piedras Negras, divided into natural and man-made resources. It presents a selection of examples that may appear along the route, accompanied by illustrations and short descriptions of each material’s potential use.
More than a technical guide, this catalog is meant as a tool of recognition and adaptation, helping migrants better understand their surroundings and identify possible resources that could support them during the journey.
Each material is explored through its multiple functions: as a building element (such as structure, roof, shelter, or wall); but also in more immediate, vital forms, as sources of food, means for fire, tools for healing, ropes for carrying, or even as blankets for warmth.
The selection does not aim to be exhaustive, but rather inspirational and practical, offering ideas that encourage resourcefulness and resilience. Often, small materials or simple objects can become the difference between hardship and survival.
This catalog aims to serve migrants by reflecting on how available resources can be transformed into helpful tools.
Materials that could be used as shelters along the migrant journey offer essential protection from the environment, providing respite from extreme heat, cold, or rain. These materials could serve to create temporary coverage, shielding individuals from harsh conditions. These shelters allow migrants to rest, sleep, and recover, offering them brief moments of safety and comfort.
A roof is a protective covering that provides shelter and shields from environmental elements, such as sun, rain, and wind. In the migrant journey, a roof is essential for safety, offering a place to rest and regain strength. It protects from harsh weather conditions, contributing to physical and psychological well-being.
A wall is a vertical structure that provides enclosure and support. It could offer protection from external elements like wind or heat by bringing shade, ensuring privacy and security. For migrants, a wall serves as a barrier against environmental conditions and potential threats. It defines boundaries, creates a sense of safety, and offers shelter from the outside world, which could aid in their journey.
A floor is the lower surface of a space that provides a stable base for standing or resting. It protects individuals from the ground’s harsh conditions, offering insulation from cold or heat. For migrants, a floor is essential for rest, providing comfort and hygiene. It prevents direct contact with dirt, water, or insects, helping create a safer, more stable place for sleep and recovery during their journey.
A structure is the framework that supports and holds together a space. It ensures stability and safety, allowing the space to withstand external forces like weight. In the migrant journey, a well-designed structure creates a secure environment, complementing other materials like walls and roofs. It enables better use of space, providing essential protection and comfort, while maintaining durability and flexibility to adapt to different conditions.
Health refers to the physical well-being and recovery from injuries or illnesses. For migrants, materials can play a crucial role in supporting healing, for example, medical plants. Also, migrants could use materials like sticks or bamboo to make first-aid tools that protect wounds, in case of an emergency or broken bones.
Fire could be an essential tool in the migrant journey, providing warmth, cooking opportunities, and a means to purify water. It can help create a sense of security by deterring predators and providing light in dark, isolated areas. Fire also helps in drying wet materials, preserving food, and offering a gathering point for socializing or sharing resources, making it essential for survival in harsh conditions.
A material transformation into a rope could offer versatility for survival. Migrants could use ropes for securing shelter materials, tying down belongings, or creating makeshift structures. Ropes can aid in climbing over obstacles, securing water containers, or even as a lifeline during river crossings. In emergencies, it can be used for rescue, first aid, or creating barriers for protection, making it an invaluable resource throughout the journey.
Blanket
A material used as a blanket is essential for the survival of migrants, providing warmth and protection. It can serve as a cover during the cold nights, offering some comfort and insulation against the elements. Blankets can also be used as a mat to sleep on, a shield from the sun, or as a means to carry belongings. In emergencies, it can be used for first aid, as a stretcher, or to create temporary shelter.
Food
Materials found along the journey can play an essential role in securing food. Man-made materials, such as containers, plastic bottles, or makeshift bags, can be used to collect food or water. In addition, knowledge about what to eat is crucial for survival during a migrant’s journey. Migrants need to identify edible plants, fruits, and roots along the route. They must also know which plants are safe to consume and which are poisonous.

Locations:
Is a lightweight, flexible, and highly durable material, making it ideal for emergency shelters. It grows quickly and abundantly in regions like southern Mexico, providing a sustainable resource. Its natural strength allows for structural frames, while its hollow interior makes it easy to transport and assemble into temporary shelters
Functions:

Locations:
Are lightweight, flexible, and naturally water-resistant, making them ideal for roofing and insulation in emergency shelters. Widely available in southern Mexico, they provide shade, ventilation, and rain protection. Easily woven together, they can be used for walls, roofs, or mats,
Functions:

Locations:
Abundant in tropical areas in the southern Mexico, are broad, durable, and waterresistant, making them highly effective for migrant shelter construction. When layered, they provide roofing for shade and rain protection. Their flexible stems can be woven into mats, walls, or sleeping pads. Lightweight and easy to handle, they are a resource that offers comfort, cover, and insulation during rest stops.
Functions: Lianas

Tree Bark
Locations:
From Ceiba, or Mahogany. The bark offers versatile survival uses for migrants. Thick bark can be peeled and used as insulation for shelter walls, offering protection from rain and heat. Its soft, fibrous layers can be repurposed as makeshift seating or padding on La Bestia to reduce discomfort during long train rides. Some bark types also have water-resistant properties for crafting simple mats or coverings.
Functions:

Locations:
Locations:
Abundant in tropical areas in the southern Mexico, are broad, durable, and waterresistant, making them highly effective for migrant shelter construction. When layered, they provide roofing for shade and rain protection. Their flexible stems can be woven into mats, walls, or sleeping pads. Lightweight and easy to handle, they are a resource that offers comfort, cover, and insulation during rest stops.
It provides sturdy, readily available materials for migrants. Large branches can be used for temporary seating, firewood for cooking, or walking sticks for stability on rough terrain. Smaller branches can be fashioned into tent poles, rail grips, or simple tools for cutting and fastening. Their natural durability and accessibility make them essential for survival and shelter construction.
Functions:
Functions:

Lianas
Locations:
Are strong, flexible climbing plants ideal for binding shelters, securing loads, or gripping train surfaces. Could beuse as natural ropes to fasten bamboo structures, create harnesses, or tie onto train wagons for stability while traveling on La Bestia.
Functions:

Locations:
Found near riverbanks, and lowland areas, offer natural insulation and protectaion. When dried, mud can be formed into bricks for temporary wind barriers or coated on bamboo shelters for cooling and waterproofing. Clay, if shaped and fired, can create small water storage containers. Though drying takes hours to days, quick mud layering provides instant cooling and sun protection in extreme heat.
Functions:

Locations:
Are large, flexible, and water-resistant, making them ideal for temporary roofing, ground cover, or rain protection. Migrants can use them as natural umbrellas for shade, wrap food to preserve freshness, or weave them into makeshift mats for sleeping. When layered, they provide effective waterproofing for shelters. Their broad surface area makes them a lightweight, easily transportable survival tool.
Functions:

Locations:
Found near coastal areas and riverbanks along the migrant route, provide hydration, nutrition, and medicinal benefits. The water inside helps prevent dehydration, while the flesh offers energy-rich food. The shell can be used as a bowl or container. To open, migrants can crack it against rocks or use sharpened branches. The husk’s fibers can be twisted into rope or used as padding for train travel.
Functions:

Locations:
Are nutritious, medicinal, and widely available. Rich in vitamins and protein, they must be boiled before eating to remove toxins. Their broad, sturdy leaves provide shade when layered for temporary shelter roofing. Chaya is also used medicinally to treat fatigue and inflammation. Migrants can crush the leaves into a poultice for wound relief or insect bites, making it a valuable survival resource.
Functions:

Locations:
Locations:

Found in dry regions. It is a nutritious and hydrating cactus fruit. The pads (nopales) can be cooked for food, while the fruit provides natural sugars and water. Migrants can remove spines by burning or scraping them off. The gel inside the pads soothes burns and wounds, and the thick pads can be used as makeshift shade or wind barriers in the desert.
Functions:
Functions:
Coconut 13
Found near coastal areas and riverbanks along the migrant route, provide hydration, nutrition, and medicinal benefits. The water inside helps prevent dehydration, while the flesh offers energy-rich food. The shell can be used as a bowl or container. To open, migrants can crack it against rocks or use sharpened branches. The husk’s fibers can be twisted into rope or used as padding for train travel.
Locations:
Found in warm, tropical areas like Tenosique and Coatzacoalcos, is a nutritious and easily accessible fruit for migrants. The ripe flesh provides hydration and energy, while the seeds have medicinal properties for digestion. The leaves can be used as natural plates or wound wraps. To eat, migrants can split the soft fruit open by hand or with a stick, making it a quick and valuable survival food.
Functions:

- Dragon Fruit
Locations:
Grows on cactus plants in arid regions like San Luis Potosí and Coahuila, offering hydration and energy to migrants. The soft, sweet flesh is full of vitamins and can be eaten raw by simply peeling away the thick outer skin. The seeds aid digestion, while the cactus itself stores water. Its spiny exterior provides natural protection, and the dried stems can be used as fuel for fire.
Functions:


Locations:
Found in farmlands along migrant routes, provide both food and building materials. The kernels offer energy-rich sustenance, while the husks can be woven into mats or used as insulation. Dried stalks serve as fuel for fire or lightweight roofing material. The fibrous stalks can also be tied together to create temporary wind barriers, making them a versatile survival resource for migrants.
Functions:

Locations:
Are strong, flexible, and abundant in jungle regions, making them useful for binding and reinforcing structures. They can be woven into ropes, nets, or lattice frameworks for tents. Their natural durability allows for fast, tool-free construction, providing secure, biodegradable, and adaptable support into structures.
Functions:
Nopal - Cactus

Locations:
Found near rivers, coastal areas, and washed-up zones, is a lightweight durable material useful for migrants. It can be used as firewood for cooking and warmth, or as support poles for makeshift shelters. Its smooth, sun-dried surface makes it easy to carry and handle. Migrants also use driftwood for seating, tool handles, or walking sticks, making it a versatile resource in natural environments.
Functions:

Locations:
Locations:
Are strong, flexible, and abundant in jungle regions, making them useful for binding and reinforcing structures. They can be woven into ropes, nets, or lattice frameworks for tents. Their natural durability allows for fast, tool-free construction, providing secure, biodegradable, and adaptable support into structures.
Near wetlands, riverbanks, and marshy areas, are lightweight, flexible, and naturally insulating. It can be bundle to create walls, roofs, or mats for temporary shelters. When woven, reeds offer shade, privacy, and protection from wind and light rain. Their easy handling and quick assembly make them ideal for low-cost, biodegradable structures, offering comfort and cover in exposed points.
Functions:
Functions:

Locations:
Common in arid regions like San Luis Potosí and Coahuila, is a nutritious, waterrich, and medicinal plant. Its pads (nopales) can be cooked for food and are high in fiber and vitamins. The gel inside soothes burns and wounds, offering natural first aid. Nopal pads can also be used as shade barriers or ground insulation.
Functions:

Agave - Cactus
Locations:
Found in dry regions is a resilient, fibrous, and multipurpose plant useful for migrants. Its thick leaves offer natural shade and can be arranged as shelter walls or roofing. The fibers can be stripped and twisted into rope, while the sap has medicinal properties for skin irritation. Agave also provides moisture and fuel.
Functions:


Sotol
Locations:
Native to northern Mexico’s arid regions, is a hardy, spiky plant valued for its resilience and usefulness. Its long, fibrous leaves can be stripped and woven into cords, mats, or roofing materials. The plant’s core holds moisture, offering limited hydration in emergencies. Also provides shade and protection, while its dried leaves and stalks can be used as fire-starting material or structural support.
Functions:
Locations:
Common in northern Mexico, is a resilient and versatile plant. Its fibrous leaves can be used to make ropes, mats, or bindings for temporary shelters. The roots and flowers are edible in some species, offering emergency nutrition. Yucca’s stiff leaves and tall stalks provide windbreaks or structural support, while its hardiness in dry, harsh climates makes it a reliable natural survival resource.
Functions:

Locations:
Found in dry regions like northern, is a resilient, fast-growing tree that offers multiple benefits. Its thorny branches provide natural barriers for protection, and its dense canopy gives valuable shade from intense sun. The wood burns well for cooking or warmth, while its seed pods are edible in some species. Acacia’s strong, flexible branches can also be used for simple shelter construction or tools.
Functions:


- Desert Shrub
Locations:
Locations:
Common in northern Mexico, is a resilient and versatile plant. Its fibrous leaves can be used to make ropes, mats, or bindings for temporary shelters. The roots and flowers are edible in some species, offering emergency nutrition. Yucca’s stiff leaves and tall stalks provide windbreaks or structural support, while its hardiness in dry, harsh climates makes it a reliable natural survival resource.
Found in tropical and coastal areas like southern Mexico, are lightweight, flexible, and highly flammable. They can be used for weaving ropes, mats, or insulation layers. Their quick-drying and breathable nature helps provide shade and padding, while also serving as kindling for fire. Easily collected and bundled, dry palm fibers are a versatile, biodegradable material.
Functions:
Functions:
Locations:
A hardy tree common in northern Mexico’s deserts, grows abundantly in arid soils and provides essential resources for migrants. Its dense wood burns slowly, making it excellent for cooking and warmth. The pods are edible, offering natural sugars and protein, while the tree’s canopy provides shade in the scorching heat. Mesquite’s deep roots make it drought-resistant.
Functions:

Locations:
Abundant in desert regions, may seem harsh but offers several survival benefits for migrants. It provides natural insulation, keeping body heat in at night and offering a cool surface during the day. Sand can be used to anchor tent structures, fill bags for wind barriers, or create fire pits. Its malleability and availability make it a practical material for basic shelter and protection.
Functions:

Locations:
Found throughout mountainous and desert regions, offer natural protection and refuge. They provide shade, windbreaks, and shelter from rain or sun, especially in open landscapes. Crevices and overhangs can serve as temporary resting spots or hiding places. Rocks retain coolness during the day and warmth at night, offering thermal comfort, while flat stones can be used for seating, cooking surfaces.
Functions:

Locations:
Offers hydration and relief for migrants near the U.S.-Mexico border. It can be used for bathing, or cooling down, especially in extreme heat. However, the river also poses serious risks. Its strong currents, polluted sections, and sudden depth changes can lead to drownings. While a vital resource, accessing its water requires caution, and balancing survival with safety in a perilous environment.
Functions:

Locations:
Often found near roadsides, train tracks, and urban areas, provide lightweight, waterproof protection for migrants. Flexible and malleable, they can be used as rain covers, ground insulation, or wind barriers. When tied to branches or poles, they create makeshift tents. Transparent sheets allow solar heating, while darker ones offer shade and concealment. They are durabable and ease of transport
Functions:


Locations:
Are lightweight, durable, and waterproof. Found near construction sites, abandoned shelters, or donated by aid groups, they provide shade, rain protection, and wind barriers. Their tear-resistant material lasts longer than plastic sheets, and they are easy to fold and carry. With ropes or poles, they can be transformed into tents, offering privacy and security in exposed environments like deserts or train tracks.
Functions:

Brick
Locations:
Found near construction sites, abandoned buildings, or roadsides, is a sturdy, heatresistant material. They can be used to build temporary fire pits for cooking, create wind barriers, or weigh down tarps for makeshift shelters. Bricks also retain heat, offering warmth during cold nights. Though heavy, they are durable, making them a resource when sheltering near urban or rural construction areas.
Functions:


Locations:
Found along fences, train tracks, and border areas, is typically a barrier. However, migrants can repurpose it for protection, creating makeshift enclosures to deter threats while resting. Though dangerous to handle, it can be used to reinforce temporary shelters or mark safe zones. Its main drawback is the risk of injury, but if carefully managed, it provides security against theft and intrusion.
Functions:


Locations:
Locations:
Found near construction sites, abandoned buildings, or roadsides, is a sturdy, heatresistant material. They can be used to build temporary fire pits for cooking, create wind barriers, or weigh down tarps for makeshift shelters. Bricks also retain heat, offering warmth during cold nights. Though heavy, they are durable, making them a resource when sheltering near urban or rural construction areas.
Functions:
Functions:
Brick 25
Found in fences along farmlands, train tracks, and rural paths, are sturdy, lightweight. They can be used to support makeshift shelters, walking sticks for stability, or firewood for warmth. When tied together, they create protective barriers against wind and animals. Their availability and ease of modification make them a practical material for temporary refuge and structural support.
Locations:
Found near construction zones or abandoned structures. Though heavy and irregular, it can be used to build windbreaks, elevate sleeping surfaces from wet ground, or anchor tarps. Rubble also offers thermal mass, retaining warmth during cool nights. Its solid structure can create makeshift steps, seats, or boundaries, providing basic stability and protection in improvised resting areas along the journey
Functions:


Locations:
Found near industrial zones or along railways, offer strong, reusable materials for migrants. These can be used to reinforce shelter structures, create support frames, or secure roofs and tarps. Mesh can serve as ventilated walls, while pipes aid in rainwater collection. Though heavy and hard to cut, metal’s durability, rigidity, and weather resistance make it valuable for longer-lasting, protective structures.
Functions:

Locations:
Found along roadsides, camps, and urban waste areas, are lightweight, durable, and multifunctional. Can be use to store drinking water, collect rain, or keep dry food and supplies. When filled with sand or air, they can be used as insulating bricks for walls or padding for shelter floors. Cut and reshaped, bottles also become funnels, scoops, or light diffusers.
Functions:

Locations:
Discarded near markets, roads, or construction sites, are sturdy, waterproof, and reusable. They can be used to store water, food, or medical supplies, and when cut, they become bowls, scoops, or planters. Larger containers serve as seats, storage boxes, or shelter anchors. Their rigid form and durability make them ideal for organizing essentials and supporting daily needs during long journeys.
Functions:
Fabric Discards - Clothing, Sacks & Blankets

Locations:
Available near construction sites, flood zones, or border areas. Are sturdy, stackable, making them useful for temporary shelter walls, windbreaks, or seating. When filled, they provide thermal insulation and stability, ideal for resting spots in exposed areas. They offer protection from harsh winds, rain, and even bullets, giving migrants a option for defense and structure during their journey.
Functions:

Locations:
Locations:
Discarded near markets, roads, or construction sites, are sturdy, waterproof, and reusable. They can be used to store water, food, or medical supplies, and when cut, they become bowls, scoops, or planters. Larger containers serve as seats, storage boxes, or shelter anchors. Their rigid form and durability make them ideal for organizing essentials and supporting daily needs during long journeys.
Found near construction zones or abandoned structures, are strong, weatherresistant, and reusable. They provide solid roofing or walling, offering protection from rain, wind, and intense sun. Difficult to transport. They are durable, ideal for semipermanent structures. When secured properly, they create a safer, more stable environment, giving migrants a sense of security and physical comfort.
Functions:
Functions:

Locations:


Donated by communities or found along the migrant route. These items provide warmth, privacy, and cushioning. Migrants use them as blankets, shade cloths, makeshift bags, or ground insulation. Fabric is lightweight, foldable, and easy to tie, making it ideal for temporary shelters, head coverings, or wrapping food and belongings, offering comfort and survival utility.
Functions:
Locations:

Often discarded near warehouses, transport hubs, or markets, are strong, modular, and easy to repurpose. Can be use to build raised sleeping platforms, walls, or furniture, protecting against cold, moisture, and insects. Communities along the route can help by assembling temporary shelters, seating areas, or storage units using pallets. Good for collaborative construction
Functions:

Locations:
Locations:
Found near roadsides, dumps, or transport areas, are durable, shock-absorbent, and weather-resistant, making them ideal for foundation support in temporary shelters. They can be stacked and filled with earth to create stable, insulated bases, or used as seats, storage bins, or windbreaks. Their flexibility and strength provide longlasting structure, especially on uneven terrain.
Found near construction sites, railways, are sturdy, flat, and versatile. They can be used to build shelter frames, walking platforms over mud, or seating surfaces. When combined with tarps or fabric, planks create stable, weatherresistant structures. Their durability and load-bearing quality make them ideal for protective walls, roofing support, or temporary furniture.
Functions:
Functions:

Locations:
Often found near urban areas, markets, or donation centers, is a lightweight, insulating, and easily foldable material. It can be used as ground insulation, sleeping mats, windbreaks, or temporary roofing. When layered, it offers protection from cold and moisture. Cardboard is also easy to carry, shape, and repurpose for privacy screens or makeshift signage. It’s a widely available and adaptable.
Functions:

Locations:
Found near markets, warehouses, or transport hubs, are sturdy, stackable, and reusable. They can be used as seats, storage units, or building blocks for temporary shelters. When disassembled, the planks serve as roofing or flooring materials. Crates also offer elevated surfaces to keep belongings dry or protected.
Functions:

Locations:
Often donated by local communities, or aid groups, provide essential comfort. They offer a soft, supportive surface for rest, protecting against cold, hard, or damp ground. Used in overcrowded shelters or outdoor camps, even worn-out mattresses improve sleep quality and reduce fatigue. They are sometimes shared or left behind becoming a symbol of temporary refuge and community support along the journey.
Functions:

Locations:
Found near roadsides, dumps, or transport areas, are durable, shock-absorbent, and weather-resistant, making them ideal for foundation support in temporary shelters. They can be stacked and filled with earth to create stable, insulated bases, or used as seats, storage bins, or windbreaks. Their flexibility and strength provide longlasting structure, especially on uneven terrain.
Functions:
An outline of design parameters that shape the design intentions of the interventions for migrants through their journey















Designs remain open to transformation. A single element can shift purpose depending on need: covering, containing, supporting, or protecting. Its value lies in adaptability, not fixed function. Materials should invite reconfiguration, allowing those who use them to redefine their purpose moment by moment, place by place.
Interventions are not meant to last, but to accompany. Their strength lies in flexibility: to fold, to disappear, to reappear elsewhere. They respond to shifting landscapes and circumstances, offering support without anchoring. Design here is temporary by nature, shaped to move with the body, the path, the needs.

Designs should be intuitive, easy to build, adapt, and understand, even with no tools or training. Teenagers become makers through doing. Simplicity invites action, and each element becomes a starting point for learning, evolving with the hands that shape it and the needs that guide its transformation.




















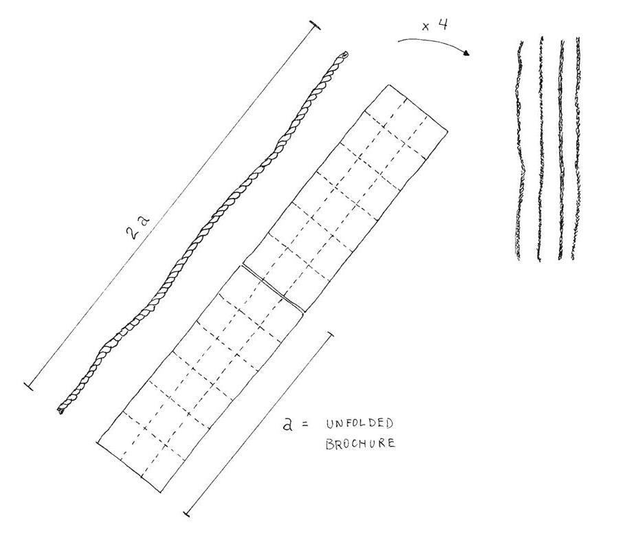
Lightweight, mobile shelters made with bamboo, tarps, or safety blankets
Luis, Emilio, and Sara, three teenagers from Honduras, had been traveling together since crossing into Mexico. After boarding La Bestia in Tenosique, the train carried them deep into the jungle corridor toward Coatzacoalcos, until it suddenly stopped in the middle of nowhere, surrounded by thick trees and tangled brush.
The heat was stifling, over 40°C, and their water was nearly gone. They had heard stories of thieves hiding nearby, but dehydration and exhaustion were more urgent than fear. The sun was beginning to set, and they knew they needed shelter, something to protect them from the insects, the weather, and anyone who might come through the trees. But how? They had no idea what to build or where to hide.
They followed other migrants into the forest, hoping to find fruit or water, but with each hour, the jungle grew darker, the air heavier. They needed rest. They needed cover.







These sketches represent my first explorations into how a shelter could become movable and portable, adapting to the unpredictable conditions of the migrant journey. I began with abstract ideas of mobile structures and portable objects, testing forms that could unfold, be carried, or assembled quickly. The process was not about reaching a final object, but about understanding what I wanted to accomplish: a light, flexible space of protection. Through this study, I realized that the safety blanket — already commonly carried by migrants — offered the most feasible material. Combined with simple sticks as structure, it could transform into a portable tent shelter, easy to assemble in emergencies and capable of offering both cover and temporary relief.































































































corners




5 attach longer stick to the corners of top & bottom triangles lift one triangle up & leave another on the ground 4 6 unfold the blanket


5 attach longer stick to the corners of top & bottom triangles lift one triangle up & leave another on the ground 4 6 unfold the blanket
5 attach longer stick to the corners of top & bottom triangles lift one triangle up & leave another on the ground 4 6 unfold the blanket


5 attach longer stick to the corners of top & bottom triangles lift one triangle up & leave another on the ground 4 6 unfold the blanket










triangles


















































sticks 5 attach longer stick to the corners of top & bottom triangles lift one triangle up & leave another on the ground 4 6 unfold the blanket

























Community-based temporary sleeping structures
Alejandro, 14, from Venezuela, and Kevin, 13, from Honduras, met on the road weeks ago and became fast friends. After crossing dangerous territory together, they finally arrived in Coatzacoalcos, hoping for a bit of rest at the local migrant shelter. But like so many others, they were only allowed to stay for 24 hours. The shelter was overcrowded.
Now, they sleep under the Soledad del Doblado bridge, alongside dozens of others, waiting for La Bestia to pass through again. The ground is hard, and the nights are restless. The heat during the day is suffocating, and the noise of passing trucks never stops. Alejandro is starting to cough, but they have no medicine. Kevin watches the tracks nervously, listening to stories of gangs who patrol nearby and take advantage of migrants sleeping in the open.
Despite everything, they try to remain hopeful. They talk about reuniting with family, about crossing to the other side. But with each passing night under the bridge, the weight of uncertainty grows heavier, and the road ahead feels longer than ever.






These sketches explore the possibility of creating a shelter beneath the structure of a bridge. By observing the site, I noticed that the space between the concrete beams remains unused and hidden, yet it offers potential for protection. Here, I saw the opportunity to introduce recycled cardboard, a material already abundant in Coatzacoalcos through local recycling initiatives. By analyzing the geometry of the beams, I began to design a system of interlocking cardboard modules, like a Lego mechanism, that could adapt to the shape of the structure. This intervention would lift the shelter off the ground, providing safety, discretion, and dryness. It represents an attempt to reimagine an overlooked void as a space of refuge.






































































































































































































1 4








unfold the box & cut the edges make the folds in the top folds in the size of the straps


2






3 measure & draw folding lines









2 3 measure & draw folding lines






measure & draw strap lines 5 6 put on top a flat cardboard used as sleeping surface secure the straps of the cardboard base unfold the box & cut the edges make the folds in the top folds in the size of the straps 1 4 2 3 measure & draw folding lines



measure & draw strap lines 5 6 put on top a flat cardboard used as sleeping surface secure the straps of the cardboard base unfold the box & cut the edges make the folds in the top folds in the size of the straps 1 4

measure & draw strap lines 5 6 put on top a flat cardboard used as sleeping surface secure the straps of the cardboard base


measure & draw strap lines 5 6 put on top a flat cardboard used as sleeping surface secure the straps of the cardboard base unfold the box & cut the edges make the folds in the top folds in the size of the straps 1 4 2 3 measure & draw folding lines measure & draw strap lines 5 6 put on top a flat cardboard used as sleeping surface secure the straps of the cardboard base unfold the box & cut the edges make the folds in the top folds in the size of the straps 1 4 2 3 measure & draw folding lines
measure & draw strap lines 5 6 put on top a flat cardboard used as sleeping surface secure the straps of the cardboard base unfold the box & cut the edges make the folds in top folds in the size of the straps 1 4 2 3 measure & draw folding lines



































Strategies for safer travel on “La Bestia”.
Manuel, Cristian, and Ángel, three teenagers traveling alone, had boarded La Bestia days earlier, hoping to cross Mexico and eventually reach the United States. As the train rumbled past Acayucan, their journey took a terrifying turn. A group of armed men jumped onto the moving train and began walking from wagon to wagon, demanding money from the migrants. Those who didn’t pay were beaten or thrown off. The boys had barely anything: Cristian wore a cheap watch, and Manuel had a small phone hidden under his shirt, the last connection to his family.
The thieves quickly found them, took what little they had, and showed no mercy. As punishment for having almost nothing, the teenagers were forced off the top of the train and ordered to climb down between the wagons. Clinging to the narrow, freezing metal rungs of the ladder, the boys were left to ride the rest of the way in silence and fear, each bump of the train a threat to their grip. Every second felt like an eternity. Exhausted, cold, and shaken, they held on, not just to the train, but to the fragile hope that they might survive and see the next stop.



Uncertainty of arrival to next step Assaults and aggression at the train Immense risk of falling





scale 1:200
The coupler area, the connection between train wagons, is one of the most dangerous places to travel. As the train moves, it constantly shifts, making it highly unstable and unpredictable. Migrants who attempt to ride here risk serious injury: sudden jolts can cause falls, while the heavy mechanisms can crush or sever limbs.

Detail - anchoring handrail


Handrail attachments

Handrail detail fixture


These drawings represent a study of the train and its dangerous in-between spaces. I began by imagining an intervention located between the wagons — a space usually avoided because of its instability and risk. The first idea was to design a protective structure, but as the sketches evolved, the concept shifted into something more feasible: a simple seating platform, and later a swing-like element that responds to movement and weight. Rather than aiming for a definitive solution, these explorations map out a series of possibilities — experiments in how space can be occupied differently, even in precarious conditions. They reflect a method of design that values testing, adapting, and reimagining, rather than fixing a final object.



























































































































Water collection methods in zones with low resources
After fleeing a traumatic event on La Bestia, 13-year-old Manuel found himself stranded in the cold, fog-covered mountains between San Luis Potosí and Nuevo León. The train had stopped briefly in an isolated area, and out of fear, Manuel jumped off. But the train didn’t return. The thick fog settled around him, hiding the tracks and any signs of help. He was alone—no food, no water, and no direction.
It was nearly winter, and the cold bit through his thin clothes. The silence of the mountains was eerie, interrupted only by the wind and distant animal sounds. With no shelter, Manuel wandered for hours until he found a rocky ledge to curl under. His body trembled from cold and fear, and the echoes of what he had witnessed on the train haunted him.
Manuel’s journey had turned into a test of endurance. Each moment was about surviving the next. There was no one to ask for help, no light to follow—only fog, silence, and uncertainty. Still, he clung to the faint hope that the mist might lift and that another train would appear to carry him forward.





Harvesting water - Fog catcher
Location - mountains
Dew water collection
Desert - early mornings









These sketches focus on the urgent need for water along the migrant journey, explored through two main approaches: dew collection and fog catchers. My process began with research into existing systems already used in arid and mountainous regions, studying their schematics, efficiency, and material logic. Fog catchers, for instance, can harvest between 0.2 and 5 liters of water per square meter per day, depending on density, while dew collection methods rely on early morning condensation.
From these references, I translated the principles into portable, lightweight structures that could be carried and adapted during the journey. The challenge was not only to replicate water collection but to make it feasible in the conditions of migration. These designs, therefore, explore how survival technologies can become compact, flexible, and accessible tools that empower migrants to gather a vital resource on the move.















































































































































































































Spaces for teenage leisure, play, and social connection
Gabriel, a 15-year-old from Venezuela, had finally made it to Casa del Migrante in Piedras Negras. After months of walking, riding La Bestia; he had reached the final stop before the U.S. border. His heart raced with the thought of reuniting with his mother, who had been working in Texas for nearly two years. She was doing everything she could to gather enough money to pay a pollero, someone who could guide him across the river.
The shelter was a temporary relief. He had a place to sleep, food, and other teens to talk to, but it was overcrowded. Many slept in the open yard, and as the days passed, the heat became unbearable. There was barely any shade. Outside, people whispered about the dangers—cartels, kidnappings, and the risk of being taken while waiting too close to the riverbanks. Some migrants had disappeared, their stories ending in silence.
Gabriel tried to stay hopeful. He kept checking his small phone for a message from his mom. Every night, he prayed this wouldn’t be the place where everything went wrong—not so close to the dream.





Provide shadow
Current condition
Prototype
Gathering & leisure

These sketches explore the intention of supporting leisure and gathering activities within the shelter at Piedras Negras. My research revealed that the existing open plaza is rarely used during the day due to the region’s extreme heat; instead, people gather only at night when temperatures cool down. This observation inspired the idea of a flexible modular structure capable of creating shaded areas, enabling people to meet comfortably during the day for conversations, collective gatherings, or religious activities. The design emphasizes adaptability: when folded, the same modules can transform into soccer goals, offering teenagers an outlet for play and energy while waiting at the shelter.


A place to gather outside

A place of leisure for teenagers


























































































































































































































































Navigation, communication, and survival through geolocated tools and apps.
Valeria and Andrés, both 16, had been traveling together. After weeks on the road, they found space on a freight train heading north. But somewhere in Coahuila, they realized they had taken the wrong train, one that diverted deep into the desert. Now, the train had stopped in the middle of nowhere. It had been sitting still for over three hours under the sun.
With no shade and their water nearly gone, the heat pressed down on them like a weight. The surrounding desert stretched endlessly, dry and silent. No towns, no people, no sign of movement, just the occasional buzz of wind through the sand.
As the sun dipped toward the horizon, Valeria’s hands trembled. Night would bring cold and fear. They had no blankets, no shelter, just each other. “Do you think other migrants will come?” Andrés asked quietly. Valeria nodded, even though she wasn’t sure. All they could do was wait, and hope that when morning came, someone might pass by and show them the way forward. For now, they sat in silence, surrounded by desert and uncertainty.

Uncertainty of arrival to next step



App for network and knowledge for migrants




This app is designed as a practical tool for teenage migrants traveling through Mexico, helping them navigate the challenges of their journey. It compiles the locations of shelters across the country, providing essential information such as contact details, services, and accessibility. Beyond shelter, the app also includes a summary of toolkits and manuals developed through this research, offering guidance on how to create temporary solutions such as a cardboard bed, a movable tent, or simple water collection systems. In this way, the app becomes both a map and a survival guide: a resource to understand where you are, where help can be found, and how to respond to urgent needs with the knowledge gathered throughout this project.

Hand-drawn sections summarize the interventions within the landscape, showing them in context, revealing how small spatial acts create resilient, alternative possibilities.
Section through the Jungle


Section through the bridgeCoatzacoalcos

Section through Coatzacoalcos - Mexico




Section through San Luis Potosi - Saltillo

Section through the Desert

Section through the Border City Piedras Negras






Reflection on what migrants leave behind and what they carry, and the project
The migration of teenagers through Mexico is not a choice made in freedom, but in desperation. It emerges from the collapse of systems, political, economic, and social, that were meant to protect them. These journeys begin long before the border; they are shaped by poverty, gang violence, environmental instability, and the absence of opportunity in their countries of origin. For many, leaving becomes the only option.
Throughout this journey, teenagers often travel alone, unaccompanied by family, exposed to dangers most adults would struggle to endure. They navigate borders, jungles, cities, train tracks, and deserts, with little more than a backpack and the will to survive.
It is essential to become conscious of this route; to recognize it not as a distant or foreign issue, but as a lived reality cutting across an entire territory. The journey is not only physical; it is also social, economic, and spatial. Awareness is the first step toward meaningful engagement.
Architecture alone cannot fix this crisis. But it can respond with care, attention, and dignity. By acknowledging the conditions along the route, we can begin to imagine interventions (small, spatial gestures) that offer protection, rest, or orientation. These are not solutions, but tools of support. The urgency is not just in the scale of the problem, but in the absence of spaces that respond to it.
What is a home? In architecture, the answer is often tied to permanence: a structure made of walls, a roof, and foundations. A space defined by ownership, privacy, and stability. But for those who are displaced, who are in motion, who carry their lives in bags and memories, this definition becomes not only unreachable but irrelevant.
For teenagers migrating through Mexico, the idea of “home” transforms. Home is not a house, it becomes something temporary, improvised, and deeply emotional. It is not four walls and a front door, but the moment you can sleep without fear, the chance to rest on something other than concrete, the comfort of not being alone. A piece of cardboard under a bridge, a blanket strung between trees, the quiet edge of a shelter where one can breathe; these become homes, even if only for a night.
In this project, I translated that awareness into architectural thinking. My interventions do not claim to build houses, but to create moments of spatial care, small, responsive structures that offer fragments of what a home can be: protection, warmth, belonging. A place to rest becomes an act of survival, and survival becomes a form of resistance.
“Home” is also psychological; it is where the journey starts and where it hopes to end. It is a routine, a memory, a direction. Through each intervention, I asked how architecture could help carry that sense, not as a fixed destination, but as a portable condition. A home, in this context, is not a place to arrive, but a way to continue. A small hope that allows someone to take the next step forward.
In this project, materials are not delivered; they are found. The interventions I propose begin not with fixed drawings or building plans, but with what is available on the ground. Cardboard, branches, plastic, fabric, discarded objects, these are not inferior materials; they are what define the architecture of the journey.
Understanding the site means understanding the materials it offers. Each location across the migrant route brings with it a different climate, terrain, and set of possibilities. Rather than imposing a design on a place, I opted to respond by experimenting, crafting with my hands, and testing how these materials behave, fail, or adapt. These experiments became my method of drawing. It is not a question of perfect form, but of feasibility, resilience, and responsiveness. By working this way, I started to see architecture not as something that begins with a building, but as something that starts with a moment of recognition, seeing the potential in what’s around us. That awareness becomes the starting point for creating space: a roof from a blanket, a wall from folded cardboard, a support beam from a piece of bamboo.
In these fragile and shifting contexts, materials are not just components; they are opportunities. The ability to transform them is a spatial skill. It is also a form of survival. This process taught me that architecture, in the context of migration, must be as mobile and adaptable as the people it hopes to support.
This project does not aim to design buildings. It aims to design tools of support that shape space in adaptable ways. These tools are not tied to specific materials or final forms; they are created to respond to needs. Shelter, rest, water, warmth. Each intervention is a way to translate those needs into space through action.
In that sense, this is a project about a different way of designing. A way that is not about imposing form, but about offering possibilities. Each tool I created, from a cardboard bed to a water catcher, from a membrane tent to a train harness, is not a final object, but a starting point. The manuals help make them understandable and repeatable. They serve as frameworks, parameters that invite others to imagine, adapt, and recreate based on their surroundings and challenges.
By using tools as the language of design, the project becomes more inclusive. It makes space-making accessible to those without training or resources. It reflects a shift in architecture: from authorship to empowerment, from building for someone to building with someone, even if they may never meet.
In fragile and temporary conditions like migration, design is not about permanence. It is about presence. These tools offer that presence, ways to act, to make, to shape. They reframe what architecture can be: not a product, but a process that responds directly to people, to urgency, to context. A method that creates spaces not from drawings, but from human needs.
This project moves between scales, from the scale of a country to the scale of a folded blanket. This method of working across layers is not only architectural, but also symbolic. Migration happens across vast territories, yet it is experienced one step, one pause, one struggle at a time. Teenagers moving through Mexico are aware they’re crossing an entire country, but they live it day by day, place by place.
This way of understanding the journey shaped my process: from mapping climate zones, danger points, and transit routes, to zooming into shelters, roadside spaces, or the underside of a bridge. The large scale helps recognize patterns, where similar conditions repeat, and where specific design strategies might apply. The small scale reveals how to act: what to build, how to rest, what can protect someone.
Each layer of research (geographic, material, social) adds another lens. When read together, they form a more complete picture of the journey’s complexity. This approach doesn’t simplify the issue, but makes it graspable through space.
Working across scales also helps translate architectural thinking into something active. A national map might show risk zones, but a tool made of string and fabric answers the question: what now, right here?. This movement between layers is how the project stays grounded to the migrant route, always returning to the human scale, where design can make a difference.
Tierra de Tránsito does not offer final solutions, because there are none. Migration is not a single path, nor a single story. Every teenager on the road carries their reasons, their losses, and their hopes. A unique combination of danger, resistance, survival, and strength shapes each journey. And because of this, no single intervention, no single strategy, can respond to them all.
What this project does offer is a way of thinking, a method grounded in empathy, observation, and response. It starts by understanding the context: the materials available, the risks present, the geography, and the physical and emotional fatigue. Then it asks: what can be done here, with what is at hand, to make things more bearable?
The fixed principles are not formal; they are attitudinal. They are about listening before drawing. Prototyping instead of imposing. Working with what exists, not waiting for what’s ideal. The outcomes, spatial interventions, tools, maps, and guides are always open to change. They can and should evolve, depending on who uses them, where, and for what purpose.
This is also an invitation: to other architects and designers to take these principles and carry them further. To adapt them to new contexts, new stories, and needs. Because the migrant journey is not a fixed path, and neither is the role of architecture within it.
This project is a starting point, not a conclusion. A reminder that sometimes, the most meaningful form of design is not the most polished, but the one that understands what it means to act, with care, when and where it matters most.
Here, I want to thank all those who supported me throughout this project, through advice, conversations, and encouragement.
First, I thank my family. Without their constant presence and belief in me during all my years at the Academy, I would not be where I am today.
To the migrants who shared their time and stories with me: thank you. You allowed me to understand the harsh conditions of the journey from your own perspective, showing me how small actions can mean something immense when survival and dignity are at stake.
To my graduation committee: your guidance shaped the path of this project. Thank you, Machiel, for mentoring me with clarity and strength, teaching me that every step forward matters, and helping me see how architecture can hold both research and the human story. Thank you, Patrick, for constantly reminding me to return to the people and keep the focus on those for whom this work is intended. Thank you, David, for staying with me from the very beginning, listening to countless stories, and helping me translate research into design and design back into research.
To my office, and to Mark, thank you for always supporting my work at the Academy, listening to ideas, and encouraging me to keep moving forward. To my friends, especially Mindy and Pasha, who helped me build and complete this project, and who carried excitement for it as if it were their own.
And finally, to Eva: your unwavering support from beginning to end, your presence in every moment, and your help in every detail made this journey possible.
Tierra de Tránsito is a reminder that architecture is never the work of one individual. It is the result of a network of care, guidance, and shared effort. From the beginning to the end, this project is built on the strength of those who accompanied me, just as migrants rely on others along their journey, and as future journeys will continue to unfold. This work does not seek to glorify migration, but to imagine how alternatives and small interventions might offer safety to those who must travel, especially the teenagers who will face this road tomorrow.
Thank you.
- Animal Político. (n.d.). Migrantes: Bestia tren Huehuetoca. Animal Político. Retrieved August 25, 2025, from https://animalpolitico.com/sociedad/ migrantes-bestia-tren-huehuetoca
- Animal Político. (n.d.). ONG exigen acciones legales por la detención ilegal de migrantes en Huehuetoca. Animal Político. Retrieved August 25, 2025, from https://animalpolitico.com/sociedad/ong-exigen-acciones-legalespor-la-detencion-ilegal-de-migrantes-en-huehuetoca
- Avina. (n.d.). Reprimir las caravanas de migrantes suma violencia a la desesperación. Fundación Avina. Retrieved August 25, 2025, from https:// www.avina.net/reprimir-las-caravanas-de-migrantes%E2%80%AFsuma%E2 %80%AFviolencia-a%E2%80%AFla%E2%80%AFdesesperacion/
- Clarín. (n.d.). Desafío logístico: Reunir familias migrantes separadas por el gobierno Donald Trump. Clarín. Retrieved August 25, 2025, from https://www. clarin.com/mundo/desafio-logistico-reunir-familias-migrantes-separadasgobierno-donald-trump_0_mXIG2ldlS.html
- Clarín. (n.d.). Violencia física, psicológica y sexual: El calvario de migrantes en México. Clarín. Retrieved August 25, 2025, from https://www. clarin.com/mundo/violencia-fisica-psicologica-sexual-calvario-migrantesmexico_0_sia0-Odkx.html
- Desde Puebla. (2021, April 21). Se dispara el número de niños migrantes en México durante los tres primeros meses de 2021. Desde Puebla. Retrieved August 25, 2025, from https://desdepuebla.com/2021/04/21/se-dispara-elnumero-de-ninos-migrantes-en-mexico-durante-los-tres-primeros-mesesde-2021/
- Direct Relief. (2024, March). Living in wait: Migrants work to survive in North America’s largest city. Direct Relief. Retrieved August 25, 2025, from https://www.directrelief.org/2024/03/living-in-wait-migrants-work-to-survivein-north-americas-largest-city
- Forbes Centroamérica. (2022, February 22). Casi 10,000 niños, niñas y adolescentes migrantes no acompañados viajaron a EE.UU. en 2021. Forbes Centroamérica. Retrieved August 25, 2025, from https://forbescentroamerica. com/2022/02/22/casi-10000-ninos-ninas-y-adolescentes-migrantes-noacompanados-viajaron-a-ee-uu-en-2021
- Gobierno de México – DIF Nacional. (n.d.). Alistan ruta de protección integral de niñas, niños y adolescentes migrantes no acompañados. Gobierno de México. Retrieved August 25, 2025, from https://www.gob.mx/difnacional/ articulos/alistan-ruta-de-proteccion-integral-de-ninas-ninos-y-adolescentesmigrantes-no-acompanados
- Ibero. (n.d.). Niñez en contexto de movilidad: Motivos, riesgos y peligros.
Universidad Iberoamericana. Retrieved August 25, 2025, from https://ibero. mx/prensa/ninez-en-contexto-de-movilidad-motivos-riesgos-y-peligros
- News UN. (2021, April). La peor crisis migrante en la historia de América. United Nations News. Retrieved August 25, 2025, from https://news.un.org/es/ story/2021/04/1491052
- Noroeste. (n.d.). Más de 9 mil 500 niños y adolescentes migrantes fueron detenidos al mes en México en 2023. Noroeste. Retrieved August 25, 2025, from https://www.noroeste.com.mx/nacional/mas-de-9-mil-500-ninosy-adolescentes-migrantes-fueron-detenidos-al-mes-en-mexico-en-2023BY5706627
- OEM – El Sol de Durango. (n.d.). Migrantes logran abordar La Bestia en Gómez Palacio este martes. Organización Editorial Mexicana. Retrieved August 25, 2025, from https://oem.com.mx/elsoldedurango/local/migranteslogran-abordar-la-bestia-en-gomez-palacio-este-martes-13285496
- Prensa Libre. (n.d.). Critican poca difusión de plan de refugio a centroamericanos. Prensa Libre. Retrieved August 25, 2025, from https:// www.prensalibre.com/guatemala/migrantes/critican-poca-difusion-de-plande-refugio-a-centroamericanos/
- United Nations. (2017, October 5). Riding the Beast: Child migrants reveal full horror of their journeys to the US. The Guardian. Retrieved August 25, 2025, from https://www.theguardian.com/inequality/2017/oct/05/ridingthe-beast-child-migrants-reveal-full-horror-of-their-journeys-to-us
- Vice. (n.d.). Estas mujeres centroamericanas encuentran migrantes desaparecidos en México. Vice. Retrieved August 25, 2025, from https://www. vice.com/es/article/estas-mujeres-centroamericanas-encuentran-migrantesdesaparecidos-en-mexico/
- Yo Influyo. (n.d.). La falta de recursos para ayudar a la niñez migrante es indiferencia de las autoridades. Yo Influyo. Retrieved August 25, 2025, from https://www.yoinfluyo.com/mexico/analisis-social/la-falta-de-recursos-paraayudar-a-la-ninez-migrante-es-indiferencia-de-las-autoridades-wvm/
- B. Castillo, Oscar. (2023, March 6). ‘Tú puedes hacerlo, mi amor’: un trayecto peligroso en busca de una vida mejor. https://www.nytimes.com/es/2023/03/06/espanol/ opinion/bestia-tren-migrantes-estados-unidos.html
- Bamboo Shelter. (n.d.). Bamboo shelters are durable, low cost, quick to build, portable, fire resistant, safe, and wind resistant, using locally available bamboo. Retrieved August 20, 2025, from https://www.humanitarianlibrary.org/sites/default/files/2013/07/ bamboo_shelter.pdf
- BBVA Research, Médicos Sin Fronteras (MSF), Organización Internacional para las Migraciones (OIM), Red de Documentación de las Organizaciones Defensoras de Migrantes (REDODEM), & Comité Internacional de la Cruz Roja (CICR). (2020). Mapa de casas del migrante, albergues y comedores en las principales rutas de migración por México, 2020. https://www.bbvaresearch.com/wp-content/uploads/2020/02/ Mapa_2020_Albergues_Migrantes_Portable.pdf
- Casas de Menores Migrantes/YMCA MÉXICO. (n.d.). https://www.ymca.org.mx/ PY_CMM.html
- Chávez González, S. (2020, February 17). Arriban más migrantes a Tultitlán y Huehuetoca. https://www.jornada.com.mx/2020/02/17/estados/027n1est
- Contreras, L. (2023, September 21). Éste es el recorrido que sigue La Bestia, la red de trenes que transporta a migrantes. Infobae. https://www.infobae.com/mexico/2023/09/21/ este-es-el-recorrido-que-sigue-la-bestia-la-red-de-trenes-que-transporta-a-migrantes/
- De Medios SA De CV Demos, D. (2020, February 17). La Jornada: Arriban más migrantes a Tultitlán y Huehuetoca. La Jornada. https://www.jornada.com.mx/2020/02/17/ estados/027n1est
- De Población, C. N. (n.d.). Población migrante en situación irregular en México, 2023. gob.mx. https://www.gob.mx/conapo/documentos/poblacion-migrante-en-situacionirregular-en-mexico-2023#:~:text=La%20poblaci%C3%B3n%20migrante%20en%20 situaci%C3%B3n,estancia%20legal%20en%20el%20pa%C3%ADs
- El peligroso viaje en “La bestia” para conseguir el sueño americano. (2019, January 14). France24. Retrieved May 5, 2024, from https://www.france24.com/es/20181217bestia-migrantes-eeuu-mexico-honduras
- Estadisticas Sobre Movilidad y Migración en México. (2024, March). https:// portales.segob.gob.mx/es/PoliticaMigratoria/tablero_estadistica
- Green, E. (2019, September 16). Trump’s Asylum Policies Sent Him Back to Mexico. He Was Kidnapped 5 Hours Later by a Cartel. Vice News. https://www.vice.com/ en/article/pa7kkg/trumps-asylum-policies-sent-him-back-to-mexico-he-was-kidnappedfive-hours-later-by-a-cartel
- GWP Group. (n.d.). Corrugated board grades explained: Different types of cardboard. GWP Group. Retrieved August 15, 2025, from https://www.gwp.co.uk/guides/ corrugated-board-grades-explained/
- Hasta 100 por día buscan asilo en Casa del Migrante de Piedras Negras (video). (n.d.). La Rancherita Del Aire. https://rancherita.com.mx/noticias/detalles/145782/hasta100-por-dia-buscan-asilo-en-casa-del-migrante-de-piedras-negras-video.html
- How the Other Side Leaves - This American Life. (2022, September 9). This American Life. https://www.thisamericanlife.org/770/my-lying-eyes/act-two-11
- Humanitarian Bamboo Guidelines. (2018). Bamboo’s combination of high tensile strength and lightness make it an ideal material for rapid construction of emergency shelters, or for transitional shelter. Retrieved August 20, 2025, from https://www. humanitarianbamboo.com/wp-content/uploads/2023/06/Humanitarian-BambooGuidelines-2018.pdf
- La 72, Hogar-Refugio para Personas Migrantes | Defendemos los Derechos Humanos de las personas en Movilidad | Tenosique, Tabasco, Mexico. (n.d.). La 72. https://www.la72tenosique.org/
- Las Américas | Missing Migrants Project. (2023, January 2). https://missingmigrants. iom.int/es/region/las-americas
- Log in or sign up to view. (n.d.). https://www.facebook.com/p/Albergue-CasaBetania-AC-100079456603603/
- López Colín, D. (2023, October 31). La Casa del Migrante San Juan Diego: Un refugio en la ruta por México. https://www.aciprensa.com/noticias/101817/la-casa-delmigrante-san-juan-diego-refugio-en-la-ruta-por-mexico. Retrieved April 15, 2024, from https://www.aciprensa.com/noticias/101817/la-casa-del-migrante-san-juan-diegorefugio-en-la-ruta-por-mexico
- Mapa 2020 de casas del migrante, albergues y comedores para migrantes en México. (2020). In Chrome extension://Efaidnbmnnnibpcajpcglclefindmkaj/https:// www.bbvaresearch.com/wp-content/uploads/2020/02/Mapa_2020_Albergues_ Migrantes_Observatorio.pdf BBVA Research. Retrieved April 15, 2024, from https:// www.bbvaresearch.com/publicaciones/mapa-2020-de-casas-del-migrante-albergues-ycomedores-para-migrantes-en-mexico/
- MasNoticias. (2025a, January 22). Aplican campaña de reciclaje en primaria de Coatzacoalcos. Más Noticias. Retrieved August 15, 2025, from https://www.masnoticias. mx/aplican-campana-de-reciclaje-en-primaria-de-coatzacoalcos/
- MasNoticias. (2025b, January 25). Realizarán primer “Papelotón” en Coatzacoalcos. Más Noticias. Retrieved August 15, 2025, from https://www.masnoticias. mx/realizaran-primer-papeloton-en-coatzacoalcos/
- MasNoticias. (2025c, January 28). Más de 14 toneladas de residuos fueron recolectadas en Coatzacoalcos. Más Noticias. Retrieved August 15, 2025, from https:// www.masnoticias.mx/mas-de-14-toneladas-de-residuos-fueron-recolectadas-encoatzacoalcos/
- México - Monitoreo de flujos migratorios en Tapachula y Tenosique, Ronda 2
(Abril 2022) | Displacement Tracking Matrix. (2024, April 29). https://dtm.iom.int/reports/ mexico-monitoreo-de-flujos-migratorios-en-tapachula-y-tenosique-ronda-2-abril-2022
- Ramon, P. (2023, December 15). Ampliación del muro fronterizo MéxicoEUA amenaza a decenas de animales. Newsweek. https://es-us.noticias.yahoo. com/ampliaci%C3%B3n-muro-fronterizo-m%C3%A9xico-eua-183328609. html?guccounter=1&guce_referrer=aHR0cHM6Ly93d3cuZ29vZ2xlLmNvbS8&guce_ referrer_sig=AQAAACaV0p-iTXeYN32cNLSG5rkQi-QqPz0uhPisKDX8AqUH17x1Ws2T qqUXWulR1HGYHFQiexuER7YZsW1xj5iVfUaL7Qsnlcb5GIFnYjXdT0eqbiTvcfnLohs2a 520qxaimBPTl9rUDCI74ao5TiSaaccpmNVKN0XjunkmYIVOhN9v
- Recycling.com. (n.d.). Types of cardboard. Recycling.com. Retrieved August 15, 2025, from https://www.recycling.com/types-of-cardboard/
- SCTRay. (n.d.). Cardboard recycling and types of cardboard. SCTRay. Retrieved August 15, 2025, from https://www.sctray.com/en/lorem-ipsum-dolor-sit-ametconsectetur-adipiscing-elit-4-copy-2-copy/
- Take the long way home - this American life. (2021, August 26). This American Life. https://www.thisamericanlife.org/688/the-out-crowd/act-two-9
- Vaquero Simancas, J. (2024, March 4). México, el muro de los migrantes que quieren llegar a Estados Unidos. https://elpais.com/mexico/2024-03-04/mexico-elmuro-de-los-migrantes-que-quieren-llegar-a-estados-unidos.html. Retrieved April 10, 2024, from https://elpais.com/mexico/2024-03-04/mexico-el-muro-de-los-migrantesque-quieren-llegar-a-estados-unidos.html
- Wikipedia contributors. (n.d.). Corrugated fiberboard. Wikipedia. Retrieved August 15, 2025, from https://en.wikipedia.org/wiki/Corrugated_fiberboard
- Yahoo is part of the Yahoo family of brands. (n.d.). https://es-us.noticias. yahoo.com/ampliaci%C3%B3n-muro-fronterizo-m%C3%A9xico-eua-183328609. html?guccounter=1&guce_referrer=aHR0cHM6Ly93d3cuZ29vZ2xlLmNvbS8&guce_ referrer_sig=AQAAACaV0p-iTXeYN32cNLSG5rkQi-QqPz0uhPisKDX8AqUH17x1Ws2T qqUXWulR1HGYHFQiexuER7YZsW1xj5iVfUaL7Qsnlcb5GIFnYjXdT0eqbiTvcfnLohs2a 520qxaimBPTl9rUDCI74ao5TiSaaccpmNVKN0XjunkmYIVOhN9v
- Yan-hui, H. (2012). Plant age effect on mechanical properties of moso bamboo. WFS. Retrieved August 20, 2025, from https://wfs.swst.org/index.php/wfs/article/ download/415/415/0
- Ymca. (2022, November 29). ¿Sabías que YMCA tiene Casas para Menores Migrantes en la frontera de México y EE.UU.? YMCA. https://www.ymca.es/formacion/ sabias-que-ymca-tiene-casas-para-menores-migrantes-en-la-frontera-de-mexico-y-eeuu/