WorkSamples_Blake_Minster

Page 1

DENVER INTERNATIONAL AIRPORT | Stantec & RNN Architects

Construction Administration - Construction documentation

Project Lead: Carl Hole

CA Lead: Nathan Martin, Rusty Lamb

Softwares: Revit, Trimble ProjectSight, Bluebeam Program: Aviation Terminal interior renovation Location: Denver, Colorado

PROJECT OVERVIEW

Work includes moving all TSA Security Lines from Level 5 to Level 6 while reconfiguring ticketing and baggage check-in at Level 6. Vertical circulation to / from the Level 4 train departure platform is being expanded and MEP / COM / Security systems are being reconfigured from Level 3 through Level 7 roof to accommodate alternations to the terminal. Baggage Handling Systems from Level 6 to Level 4 are undergoing major renovations / changes. Retail spaces are also undergoing relocation and reallocation where possible. The Terminal is identified by three modules: MOD 1, 2 and 3 and the project consists of three phases. The first two Design/Construction Phases are scheduled to be completed within the original $770 million budget and involve the middle third (Mod 2) in its entirety and the west half of the north third (Mod 1) of the existing terminal building. The initial 2 phases focus strictly on installing new ticketing / check-in space on Level 6 for selected airlines in Mod 2, reconditioning all of Level 5 in Mod 2 as well as a new TSA security checkpoint in the west half of Mod 1, level 6 of the north area of the main terminal. Modifications to Level 4 AGTS (train) platform and new MEP systems are included in this initial work.

Personal Duties:

• Aided Stantec with the Construction Administration process.

• Managed ‘As-Built’ Drawing set in BIM.

• Formulated sketches in response to RFI’s

• Conducted frequent observation walks with contractors.

• Aided with Punch walks for approval of construction.

• Submittal reviews.

• Attended coordination meetings between MEP and structural.

• Reviewed Shop Drawings

• Construction Document production for Phase 2

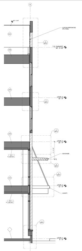
01.\
01.\ (585)-905-5651| bminster333@gmail.com SS N16 N22 EW E2 E3 E4 E5 E6 E7 E8 E9 E10 E1 N17 N18 N19 N21 A5.1561 A5.1561 A5.1564 A5.1563 TML_05_11E_011 ELEVATOR LOBBY (E) STAIR 19 (E)TE-06N (E)TE-06S TML_05_11E_048 (E) BAGGAGE BOH TML_05_11E_CR03 VESTIBULE TML_05_11E_097 LIFT SYSTEM TML_05_11E_040 TML_05_11E_044 CONVEYOR TML_05_11E_MS36 (E) BAGGAGE SHAFT (E)TE-92 (E)TE-91 (E)TE-90 A5.1893TML_05_11E_186 ENTRANCE A5.1821 MS37 (E) MECH. SHAFT TML_05_11E_122 ENTRANCE OPH A5.1881 A5.5301 E-GYP -0"N20 WP GYP-1 -8" GYP-1 -0" GYP-1 -0" GYP-1 -0" GYP-1 -0" Z1 -6" Z1 -6" Z1 10' -0" GYP-1 -11" ACT-2 14' -0" ACL 14' -0" Z1 -6" -6" GYP-1 -0" REMAIN. CLEAN, REPAIR AND REFRESH MATERIALS TO MAKE READY FOR PUBLIC USE. OTSOTSA5.5306SC-3 GYP-1 -6" ACM-8 -7" ACM-8 -7" GYP-1 -6" GYP-1 -6" ACT-1 12' -6" ACL 14' -0" OPP OPP A5.1764 TR-12.1 A5.4101 TML_05_11E_096 CIRCULATION TML_05_11E_110 AIRSIDE CIRCULATION TML_05_11W_080 AIRSIDE CIRCULATION TML_05_11E_060 RESTROOM TML_05_11E_121 CHASE TML_05_11E_086 RESTROOM TML_05_11E_126 JANITOR TML_05_11E_004 RESTROOM TML_05_11E_095 TML_05_11E_093 MECH SHAFT OTSOTSTML_05_11E_005 WHITE BOX TML_05_11E_115 WHITE BOX TML_05_11E_080 ELECTRICAL TML_05_11E_MS38 MECH. SHAFT A5.1821 A5.1821--QE 3 OPP SIM OPP SC-T 35 41 11' -6" OTSE-ACT -0" E-ACT -0" E-GYP -0" E-GYP 11' -6" E-GYP -6" E-ACT -0" RFI 2441 TML_05_11E_007 WHITE BOX TML_05_11E_009 TML_05_11E_010 WHITE BOX 2'-8 1/2"2'-10 3/4" 20'-11 1/4" 7'-8"1'-4 1/2" RFI 2673 RFI 2689 RFI 2689 35 GYP-1 -0" RFI 2772 RFI 2276 RFI 2276 4'-0" GYP-1 12' -3" RFI 2952 GYP-1 11' -6" 39 ACT-2 11' -6" GYP-1 -0" GYP-1 -0" RFI 2998 TML_05_11E_174 SHELL SPACE RFI 3015 OTSGYP-1 -6" RFI 2998R1 ACOUSTIC CEILING TILE 4'X4' TEGULAR CEILING MATERIAL LEGEND ACT-3 PERFORATED METAL LAY-IN TEGULAR PERFORATED LINEAR METAL PANEL INSULATED METAL PANEL. GYPSUM BOARD CEILING Z1, Y1, X1, W1 A5.7020 SCHEDULE SC-1 SC-2 SC-3 SMOKE CURTAIN OPEN TO STRUCTURE GYP-S RE. TO A5.5701. CAC=35 TEMPORARY SMOKE CURTAIN CONFORMANCE WITH NFPA 204. DETAIL. FINISH TO MATCH OTE OPEN TO EXTERIOR 2HR FIRE RATED ACT-2 ACOUSTIC CEILING TILE 2'X4' TEGULAR ALUM. METAL LINEAR PANELS GYPSUM BOARD CEILING HATCH LEGEND ACOUSTICAL BATT INSULATION ABOVE OPEN GAPS FOR AIR RETURN BATT INSULATION ABOVE CEILING, MIN. REFER TO A5.5312 FOR ACCESS PANEL DETAILS. CEILING FIXTURE LEGEND FIXTURE 4" WIDE MAX. LINEAR DIFFUSER WIDE MAX. SQUARE LAY-IN AIR DIFFUSER SUSPENDED LINEAR LIGHTING FIXTURE SQUARE LAY-IN LIGHTING FIXTURE SQUARE LAY-IN AIR CAMERAS RADIO ANTENNA SPEAKER RETURN AIR GRILLE DAYLIGHT SENSOR WIFI AP OMNI SPEAKER COLUMN ALL DEVICES LOCATED ACL CEILING TO HAVE BLACK FINISH. ALL DEVICES LOCATED CEILING OTHER THAN ACL TO HAVE WHITE FINISH. RE: CEILING MATERIAL LEGEND. SPRINKLER (FIRE EXTINGUISING) FIRE ALARM ARROW INDICATES STARTING LAYOUT WORKPOINT LEGEND WP LINEAR RECESSED EMERGENCY LIGHTING FIXTURE S EVN OF R ND Y C TY CO CITY & COUNTY of DENVER DENVER INTERNATIONAL AIRPORT SHEET NO. BIM FILE NO. VOLUME NAME: CHECKED BY: DRAWN BY: ISSUE RECORD SCALE: SHEET TITLE As indicated STANTEC 1050 17TH ST., #A200, DENVER, CO 80265 A5.1562 PHASE 1 03/04/2021 RNN Architects 201839412 8400 Peña Blvd., Denver CO 80249 GREAT HALL COMPLETION RCP - LEVELPLAN 11B 24 16 1/8" 1'-0" 11B GENERAL NOTES: REFER TO MECH., FIRE PROTECTION, PLUMBING, LECTRICAL AND TELECOM DRAWINGS FOR TYPES OF ASSOCIATED APPURTENANCES. FOR CEILING TRIMS, TRANSITIONS AND EDGES, RE:A5.5301-A5.5314 CEILING DETAILS. ALL RESTROOMS SHALL HAVE WATER RESISTANT CEILING FINISHES. GRAY SHADED AREAS ARE OUT OF SCOPE. GRAY SHADED ELEMENTS ARE EXISTING. BLACK CROSSHATCH INDICATES OUT OF PHASE. ALL "ACL" TYPE CURVED CEILINGS TO BE PROVIDED WITH FACTORY MITER CUTS AND FACTORY ASSEMBLED CURVED CARRIERS TO MATCH EXACT DIMENSIONS AND ANGLES "ACL" TYPE CEILING LAYOUT WILL HAVE STAGGERED INTS WITH AT LEAST THREE ALL CEILING TILES AND METAL PLANKS SHALL ACCESSIBLE IN ORDER TO PROVIDE UNLESS OTHERWISE NOTED, ALL END DEVICES MUST BE CENTERED TO CEILING SPACE AND TO CLOSEST CEILING TILE, PANEL OR GYPSUM SOFFIT 9.CEILING SUSP. SYSTEM TO BE DESIGNED BY CONTRACTOR ENGINEER WHO DUCTWORK SUSP. SYSTEM SHALL NOT BE USED TO HANG CEILING BELOW UNLESS 10.AT LEVEL RCP, V.I.F AND COORDINATE EXISTING MECHANICAL, FIRE PROTECTION, IT, ELECTRICAL, TELECOM DEVICES AND ACCESS PANELS. MEP LEVEL NOT INCLUDED PRESENT PERMIT PACKAGE U.N.O DRAWINGS. 12. ALL CEILING HEIGHTS REFER TO FINISHED FLOOR ELEVATION. WITH STRUCTURAL GRID AND WALL CONTROL JOINTS. RE: 5.5301. 15. ALL CEILING ELEMENTS WITHIN ACT CEILINGS TO BE CENTERED FULL TILE U.N.O SHEET KEYNOTES RCP 24EXISTING SLOPED EXTERIOR CEILING. OUT OF SCOPE. 26SECURITY GRILLE 31ACT CEILINGS IN AGTS ARRIVAL PLATFORM MATCH EXISTING HEIGHT AT ELEVATOR LOBBIES. HEIGHT FIELD VERIFIED. 33EXISTING CEILING REMAIN 35SUSPENDED SIGNAGE. REFER WAYFINDING DRAWINGS. 37WALL-MOUNTED SIGNAGE. REFER TO WAYFINDING DRAWINGS. 39REINSTATE EXISTING WALL FACE ABOVE AND TIE TO NEW GYPSUM SOFFIT BORDER. 41EXISTING LIGHTING AND DIFFUSERS TO BE RE-HOUSED NEW CEILING. REFER ENGINEERING DRAWINGS FOR OTHER NEW DEVICES. LAYOUT TO COORDINATED SITE. 43EXISTING PROJECTOR TO BE RELOCATED SHEET KEYNOTES RCP 1SLOPED CEILING. REFER A5.3100 SERIES FOR POSITION, SLOPE AND DIMENSIONS. 3EXISTING BAGGAGE CONVEYOR. 5SMOKE CURTAIN. REFER A5.5305 FOR DETAILS. NEW MOKE CURTAIN TO TIE INTO EXISTING PHASE DEMARCATION. 7SET OFF LINE FOR LOW END OF CURVED CEILING. 9EXISTING LOUVER TO REMAIN. 11FORMED METAL POCKET. 13SUSPENDED FIXTURE TRACK. REFER TO A5.5501 FOR DETAILS. 15CEILING HEIGHTS BASED ON CENTRAL CORRIDOR HEIGHT. 17V.I.F CEILING HEIGHT MATCH EXISTING CONDITION. 19MAINTAIN CONTINUITY OF FINISHES ONCE THE TEMPORAR SMOKE CURTAIN REMOVED. 21SLAB EDGE REFERENCE LINE. 23SUSPENDED ART INSTALLATION TO BE REINSTALLED. SUSPENSION SYSTEM DESIGNED STRUCTURAL ENGINEER AND INSTALLATION COORDINATED WI CEILING SYSTEM. ARTWORK INSTALLATION REQUIREMENTS TO BE COORDINATED AND APPROVED BY DEN AND THE ARTIST. PRC PHASE LEGEND: OUT OF SCOPE EXISTING TO REMAIN RFI 2509 RFI 2509 RFI 2509 RFI 2509 RFI 2509 NO.BYPURPOSEDATECKD RFI 2946 RFI 2998R1

BCHA- The Spoke on Coffman | RNN Architects

Design Development - Construction Documentation

Project Lead: Jerry Boland, Rea Jackson

Softwares: Revit

Program: Affordable Multi-Family housing Location: Longmont, Colorado

PROJECT OVERVIEW

Boulder County Housing Authority developed 518 Coffman Street which is approximately a 1.3-acre site into a mixed-use facility. The design is to become an integral part of the City of Longmont’s Coffman Street redevelopment-improvement project. The project site is located on the city block located along Coffman Street between 5th and 6th Street in Longmont’s Central Business District (CBD). The “mixed-use” facility has an approximate building area of 180,000 Sq. Ft, 240 parking garage spaces, approximately 10,000 Sq. Ft of commercial/office space, 75 affordable housing dwelling units (one, two and three bedrooms), leasing office, community room, various resident amenities and building services functions. The “Residence” portion of the building includes a centralized courtyard open to the weather, providing daylight to internally located dwelling units surrounding the courtyard perimeter and provide sat gathering space including amenities for residence and private groups to enjoy. This multi-family affordable housing portion of the project is to be constructed with conventional wood framing four stories in height as a modular of panelized system.

Personal Duties:

• BIM Production in DD and CD Phases

• Developed 3D views for client review.

• Produced axonometric drawings to convey design intent

• Attended coordination meetings between MEP and structural.

• Reviewed Shop Drawings

02.\
(585)-905-5651| bminster333@gmail.com DN UP A4.21 A4.21 A4.23 A4.21 A2.24 14 1 6 8 A B D E G D.1 3 8.9 A4.22 A4.20 A4.21 A4.23 -202 EE-204 EE-205 EE-206 WW-203 TELECOM CL STORAGE PEDESTRIAN WALKWAY 2U-B E-204 3U-B E-206 1U-A -208 1U-B E-210 1U-B E-212 1U-B -201 1U-B -203 1U-A -205 1U-B -207 1UW-213 1UW-211 1U-B W-209 1U-B W-207 1U-A W-205 1U-A W-203 1U-B W-202 2U-B W-204 1U-B -201C EE-204 EE-205 EE-206 FD JAN CL WW-201 W-201A A9.80 A4.22 A4.23A9.80 A4.20 A4.33 A4.33 1 C A4.33 PEDESTRIAN WALKWAY MECH W-201D W-201D PA PA1 PA2 PB1 PB2 PC A8.12 A8.21 70238 46 70 70 34' 3" 23' 1" 23' 23' 1" 23' 1" 23' 1" 23' 1" 10' 1/2" 66 66 10 13 66 65 66 66 A6.11 A6.14 A6.10 A6.13 1 A6.12 A6.15 A6.16 1 A6.17 A6.18 A6.19 OPEN TO BELOW OPEN TO BELOW A6.17 A6.10 A6.11 A6.12 A6.13 A6.14 A6.15 A6.16 2 A6.18 A6.19 E E E2 E2 E2 E2 E2 E2 G E 121222222222-B 2212-B 11-B2 12-B 1212- 12- 22225353-A 13- 13-A 13-A 13-A 1313-A 13-A 13- 13- 13-A 1313- 13-A 13BREAKROOM W-201B COMMUNITY ROOM WW-201A STAIRWAYS WW-201 GENDER NEUTRAL RESTROOM W-201C ST100 SF108 SF109 P1 ID.41 SF117 SF122 A4.23 A4.10 A4.22 1 WEST EGRESS BALCONY WW-202 A9.10 RESIDENTIAL PARKING GARAGE Copyright © RNN Architects Inc. www.rnnarchitects.com 863 SANTA FE DRIVE DENVER, CO 80204 PHONE 303.569.9914 www.rnnarchitects.com ISSUE: DATE: SCALE: DRAWN BY: CHECKED BY: JOB NUMBER: As Indicated A2.14 LEVEL 2 RESIDENTIAL FLOOR PLAN BCHATHE SPOKE ON COFFMAN COFFMAN STREET, LO NGMONT, CO 80501 BM 0907-16 KEY PLAN LEGEND SHEET NOTES GENERAL NOTES SCALE: 1/8" = 1'-0" 1 ENLARGED 2ND LEVEL RESIDENTIAL FLOOR PLAN north MATCHLINE 10RATED FIRE WALL 2HR 13MOP SINK 65GLULAM MEMBERS TYP. 66OPEN WALKWAY WITH METAL GUARD RAIL MKC WP-02 PERMIT SUBMITTAL 04-10-2020 WP-02 REVISION 08-14-2020 SCALE: 4 NORTH COURTYARD PERSPECTIVE PEDESTRIAN PATH PERSPECTIVE LOOKING EAST SCALE: 2 SOUTH COURTYARD PERSPECTIVE SCALE: VIEW FROM COFFMAN ST & 6TH VIEW FROM COFFMAN ST & 5TH SCALE: 4 NORTH COURTYARD PERSPECTIVE SCALE: 6 PEDESTRIAN PATH PERSPECTIVE LOOKING EAST SCALE: VIEW FROM 6TH AVE & ALLEY SCALE: 2 SOUTH COURTYARD PERSPECTIVE SCALE: VIEW FROM COFFMAN ST & 6TH SCALE: VIEW FROM COFFMAN ST & 5TH SCALE: 4 NORTH COURTYARD PERSPECTIVE SCALE: 6 PEDESTRIAN PATH PERSPECTIVE LOOKING EAST SCALE: VIEW FROM 6TH AVE & ALLEY LEVEL 1 0' - 0" LEVEL 2 12' - 0" LEVEL 3 22' - 0" LEVEL 4 32' - 0" T.O. WALL 40' - 5/8" 1 2 4 7 P2 P3 P4 P5 P6 P7 P8 P9 P10 P11 P12 8.9 T.O. CONC T.O. GCU T.O. GCU 35-A 15-A 44- 65-A P8.1 P9.1 T.O. GCU P1 A4.10 LEVEL 1 0' - 0" LEVEL 2 12' - 0" LEVEL 3 22' - 0" LEVEL 4 32' - 0" T.O. WALL 40' - 2 5/8" TENANT LEVEL -2' - 0" 1 2 5 6 8 3 P2 P3 P4 P5 P6 P7 P8 P9 P10 P11 P12 8.9 T.O. CONC T.O. GCU T.O. GCU T.O. GCU 153544- 15-A 15-A 65-A P8.1 P9.1 P1 5 A4.10 SCALE: 1/16" = 1'-0" 1 WEST BUILDING SECTION SCALE: 1/16" = 1'-0" 2 EAST BUILDING SECTION LEVEL 1 0' - 0" LEVEL 2 12' - 0" LEVEL 3 22' - 0" LEVEL 4 32' - 0" T.O. WALL 40' - 2 5/8" TENANT LEVEL -2' - 0" 1 2 4 5 6 7 8 3 P2 P3 P4 P5 P6 P7 P8 P9 P10 P11 P12 8.9 T.O. CONC T.O. GCU T.O. GCU T.O. GCU 15-A 35-A 44-A 15-A 15-A 65-A P8.1 P9.1 P1 5 A4.10 LEVEL 1 0' - 0" LEVEL 2 12' - 0" LEVEL 3 22' - 0" LEVEL 4 32' - 0" T.O. WALL 40' - 2 5/8" A B D E F G D.1 C 44-A 15-A 65-A 55-A 35-A 65-A 15-A 15-A 65-A SCALE: 1/16" = 1'-0" EAST BUILDING SECTION SCALE: 1/16" = 1'-0" NORTH BUILDING SECTION 34' 3" 34' 3" VTAC 52-B 43134343-A 4331 1 2 1 31 0 211' 6" 11' 7" 11' 2"7" 18' 1" 8' 7" 3' 1/2" LIVING ROOM BATHROOM BATHROOM BEDROOM BEDROOM CLOSET BEDROOM CLOSET 2 BEDROOM 2 KITCHEN PANTRY ENTRY CLOSET LINEN CLOSET 43MECH A9.40 1 10" A9.91 A9.90 19 21 25 1 2 55 2 7' 3 1/2" E UFAS UNITS ONLY CENTERLINE BETWEEN DWELLING UNITS CENTERLINE BETWEEN DWELLING UNITS A9.90 122 11-11" 1/2" 18 1 2 J 26 26 1 1 26 6" 1/2" 7" NOTE: 1. RE: ENLARGED PLANS FOR EXTERIOR WALL ASSEMBLY TAGS 2. RE: ELEVATIONS FOR WINDOW TYPE VARIATIONS 28 27 31 32 17 30 18 20 23 31 26 LIVING ROOM BATHROOM 2 BATHROOM ENTRY CLOSET LINEN CLOSET 27 LIVING ROOM BATHROOM BATHROOM 1 BEDROOM 1 BEDROOM 2 KITCHEN 2'ALIGN 2'2' 6" 2' 6" AFF GB 7' - 0" AFF GB 7' - 0" AFF GBAFF GBAFF GBAFF GBAFF GB - 0" BEDROOM CLOSET BEDROOM CLOSET 2 PANTRY ENTRY CLOSET LINEN CLOSET AFF GBAFF GBAFF GBAFF GBAFF GBAFF GBAFF GB- 2" AFF GB- 2" AFF GBAFF GBAFF GBAFF GB- 2" AFF GB8' - 2" AFF GB- 2" 6" AFF GBAFF GB 7' - 0" A4.31 NOTE: AT LEVEL 01 UNITS ONLY, SOFFIT LEVELS TO BE 8'-8 5/8" AFF WHERE TAGGED AS 7'-0" ABOVE AND 10'-2" AFF WHERE TAGGED AS 8-2" AFF ABOVE LIVING ROOM BATHROOM 2 BATHROOM ENTRY CLOSET LINEN CLOSET M UNIT 2U-B WH-CL GYPSUM BOARD GYPSUM BOARD SOFFIT INSTALLED BELOW CONTINUOUS FRR F/C ASSEMBLY Copyright © RNN Architects Inc. www.rnnarchitects.com ISSUE: DATE: SCALE: DRAWN BY: CHECKED BY: JOB NUMBER: As Indicated A2.21 2-BED DWELLING UNIT FLOOR PLANS - ICC/ANSI TYPES A & B BCHATHE SPOKE ON COFFMAN COFFMAN STREET, LO NGMONT, CO 80501 BM 0907-16 LEGEND SCALE: 1/4" = 1'-0" 1 2-BED DWELLING UNIT -FRAMING PLAN SCALE: 1/4" = 1'-0" 4 2-BED DWELLING UNIT -FINISH PLAN SCALE: 1/4" = 1'-0" 3 2-BED DWELLING UNIT -REFLECTED CEILING PLAN SCALE: 1/4" = 1'-0" 2 2-BED DWELLING UNIT -TYP DOOR TYPE LAYOUT 30(5) ADJUSTABLE SHELVES 31(5) FIXED SHELVES 32FIXED SHELF 332x6 PLUMBING WALL 34 SHOWER GRAB BARS 35FIXED WINDOW 36DECORATIVE 4" ROUND STEEL POST 37JULIET BALCONY AT TYP UPPER LEVEL UNITS 38SLIDING GLASS DOOR AT TYP UPPER LEVEL UNITS; FIXED PANEL WITHIN 4 FT OF VTAC VENT 39PRE-MANUFACTURED PRE-FINISHED METAL FENCE WITH POSTS @ 4" O.C. MKC WP-02 PERMIT SUBMITTAL 04-10-2020 WP-02 REVISION 08-14-2020 2ND FLOOR PLAN 2 BEDROOM 2 BATH UNIT LONGITUDINAL SECTION TRANSVERSE SECTION PARTIAL AXON PARTIAL ELEVATION PARTIAL WALL SECTION

LA GORCE RESIDENCE | SAOTA, ARRCC, PorterFanna Architects

Interior Construction Documentation

Design Architect: SAOTA, ARRCC

Interior Architect: PorterFanna Architecture

Softwares: Revit, AutoCAD

Program: Luxury High-End Single Family Residence

Location: LA Gorce Island, Miami

PROJECT OVERVIEW

LA Gorce is a luxurious 20,000 SF single family residence located on an 82,000sf corner waterfront lot, in Miami Florida. The house feature bespoke custom millwork thought the house. Soft cove lighiting illumates all rooms on the interior. High end finished from travertine stone to brass inlays line the house.

Personal Duties:

• Developed details in AutoCAD for cove lighting, millwork, shade pockets and material finishes.

• BIM Production for interior construction drawings

• Procurment of materials from suppliers

• Worked with Owner Rep to select plumbing fixtures

TIERED COVE LIGHTING DETAIL COVE LIGHTING DETAIL WITH EXTRUDED PROFILE
03.\
03.\ (585)-905-5651| bminster333@gmail.com 41 42 43 44 46 47 45 48 49 50 51 52 53 54 35 36 37 55 56 58 203 BEDROOM A-266 206 BEDROOM A-267 209 BEDROOM A-268 212 BEDROOM A-269 207 BATHROOM A-207 210 BATHROOM A-208 204 BATHROOM A-206 213 BATHROOM A-209 205 TOILET RM A-206 201 GALLERY A-263 264 211 TOILET RM A-208 214 TOILET RM A-209 215 BEDROOM A-270 202 GYM A-265 221STEAMROOM A-211 219SALON A-272 218 200 PASSAGE A-260 A-261 A-262 A-270 216 CLOSET BD A-210 221SPAPASSAGE A-273 A-224 101 ELEVATOR 217 BATHROOM A-224 101A STAIRS 221ASHOWER A-211 78 18 77 24 64 62 57 60 63 4 20 23 53 1 32 23 32 28 13 13 13 13 65 69 19 69 19 65 19 53 66 59 59 27 30 30 33 33 67 38 55B 55A 55C 58 59 59 86 70 70 72 208 TOILET RM A-207 8 76 61 40 68 75 56 27 27 87 REVISIONS DATE NO. 06-01-2022 01-04-2022 109 CAPE 109 CAPE ARRCC 07-04-2022 12-14-2022 PARTIAL FLOOR PARTIAL SECOND FLOOR PLAN 01 A-101 SCALE: 3/16"=1'-0" SEE 01 A-104 MATCHLINE SEE 01 A-104 MATCHLINE SECOND 82LOOR KEYPLAN UP UP UP RHINOBOARD FIXED TO SUBSTRUCTURE WITH NON-CORROSIVE SCREWS TO MANUFACTURER'S SPECIFICATION AND ARCHITECTS APPROVAL.TO BE SKIMMED, PRIMED AND PAINTED. ALL JOINTS TO BE TAPED WITH SKIM WIRE AND SKIMMED OVER SUPAWOOD RHINOLITE SKIM Q-TRAN FLEXIBLE LINEAR LED CLADDED TO CEILING BY SPECIALIST CORNER BEADS TO REINFORCE OUTER EDGES OF CEILING CEILING STRUC. BY SPECIALIST WITH MANUFACTURERS SPECIFICATION 96 X SLT. SUPPLY/RETURN NOTA: H/AC SPECIALIST/ MECHANICAL ENGINEER TO BE CONSULTED REGARDING RETURN AND SUPPLY AIR -GRILLES 8" 2 7/8" 3 7/8" 1" 1 1/2" 1" 1 1/2" 4" 7/8" 4" 2 7/8" Q-TRAN FLEXIBLE LINEAR LED 1 1/8" 5" M33 G28 HVAC DIFFUSER MAY OCCUR VERIFY CEILING PACKAGE CLEARANCES WITH G.C. SUPAWOOD FINISH AS PER RCP PLAN CONCEALED LED STRIP LIGHTING CORNER BEADS TO REINFORCE OUTER EDGES OF CEILING 4" 2" VARIES RHINOBOARD FIXED TO SUBSTRUCTURE WITH NON-CORROSIVE SCREWS TO MANUFACTURER'S SPECIFICATION AND ARCHITECTS APPROVAL.TO BE SKIMMED, PRIMED AND PAINTED. ALL JOINTS TO BE TAPED WITH SKIM WIRE AND SKIMMED OVER CEILING STRUC. BY SPECIALIST WITH MANUFACTURERS SPECIFICATION 2" 4" 4" CEILING STRUC. BY SPECIALIST WITH MANUFACTURERS SPECIFICATION RHINOBOARD FIXED TO SUBSTRUCTURE WITH NON-CORROSIVE SCREWS TO MANUFACTURER'S SPECIFICATION AND ARCHITECTS APPROVAL.TO BE SKIMMED, PRIMED AND PAINTED. ALL JOINTS TO BE TAPED WITH SKIM WIRE AND SKIMMED OVER SUPAWOOD "RHINOLITE SKIM CONCEALED LED STRIP LIGHTING CORNER BEADS TO REINFORCE OUTER EDGES OF CEILING HVAC LINEAR SIDEWALL DIFFUSER MAY OCCUR VERIFY CEILING PACKAGE CLEARANCES WITH G.C P37 HVAC DUCT P37 RHINOBOARD FIXED TO SUBSTRUCTURE WITH NON-CORROSIVE SCREWS TO MANUFACTURER'S SPECIFICATION AND ARCHITECTS APPROVAL.TO BE SKIMMED, PRIMED AND PAINTED. ALL JOINTS TO BE TAPED WITH SKIM WIRE AND SKIMMED OVER SUPAWOOD "RHINOLITE SKIM WITH LEATHER/FABRIC CEILING FINISH AS PER DESIGN CONCEALED LED STRIP LIGHTING CORNER BEADS TO REINFORCE OUTER EDGES OF CEILING BRASS TRIM PROFILE PURPOSE MADE AS PER DESIGN 2" 5" 1/2" 1" 1/2" 4" 1" 2 1/2" BRASS PROFILE PURPOSE MADE AS PER DESIGN SUPAWOOD PROFILE PURPOSE MADE AS PER DESIGN CEILING STRUC. BY SPECIALIST WITH MANUFACTURERS SPECIFICATION 4" 5" P30 P33 CP30 CP30 RHINOBOARD FIXED TO SUBSTRUCTURE WITH NON-CORROSIVE SCREWS TO MANUFACTURER'S SPECIFICATION AND ARCHITECTS APPROVAL.TO BE SKIMMED, PRIMED AND PAINTED. ALL JOINTS TO BE TAPED WITH SKIM WIRE AND SKIMMED OVER SUPAWOOD "RHINOLITE SKIM CONCEALED LED STRIP LIGHTING CORNER BEADS TO REINFORCE OUTER EDGES OF CEILING BRASS PURPOSE MADE ANGLE TO HOUSE Q-TRAN FLEXIBLE LINEAR LED 4" 2" 1 1/2" 2" 3" 1" 1" CEILING STRUC. BY SPECIALIST WITH MANUFACTURERS SPECIFICATION Q-TRAN FLEXIBLE LINEAR LED 4" P37 P33 HVAC LINEAR SIDEWALL DIFFUSER MAY OCCUR VERIFY CEILING PACKAGE CLEARANCES WITH G.C HVAC DUCT REVISIONS DATE NO. ISSUE DATE: 12-14-2022 PLAN NORTH PORTERFANNA 45 MAIN STREET #212 BROOKLYN, NY 11201 P: 212-273-1100 INFO@PORTERFANNA.COM WWW.PORTERFANNA.COM ASSISTED BY: 100 LA GORCE CIRCLE INTERIOR ARCHITECTURE PACKAGE MIAMI BEACH, FLORIDA 30% CD 06-01-2022 60% CD 01-04-2022 109 HATFIELD STREET GARDENS CAPE TOWN 8001 SOUTH AFRICA WWW.SAOTA.COM LEAD DESIGNERS 109 HATFIELD STREET GARDENS CAPE TOWN 8001 SOUTH AFRICA WWW.ARRCC.COM LEAD DESIGNERS ARRCC 07-04-2022 90% CD 12-14-2022 100% CD ARCHITECTURE GENERAL DETAILS LIGHT COVES LIGHT COVES SECTION DETAIL 01 A-353 SCALE: 3"=1'-0" 215 - BEDROOM 6 LIGHT COVES SECTION DETAIL 02 A-353 SCALE: 3"=1'-0" 225 - THEATER 224 - ENTERTAIMENT ℄ ℄ ℄ ℄ LIGHT COVES SECTION DETAIL 03 A-353 SCALE: 3"=1'-0" 202 - GYM 106 - POWDER ROOM 111 - OFFICE 103 - LOUNGE 116 - CHANGE 120 - LOUNGE 112 - BEDROOM 1 222 - MASSAGE 223 -DEN 217 - BATHROOM 6 124 - GH BATH 1 ℄ DRAWER S14 S8 S9 103 LOUNGE A-228 A-229 A-228 A-229 104 VODKA BAR 22 A-229 02 03 04 01 S21 MULTI TEMP DRAWER S5 S4 R1 R1 R1 R1 R1 S33 103 LOUNGE A-228 A-229 CEILING HEIGHT 12'-0" CEILING HEIGHT 12''-7" CEILING HEIGHT 12'-0" CEILING HEIGHT 10'-0" A-228 A-229 104 VODKA BAR P21 P23 G28 P21 REVISIONS DATE NO. ISSUE DATE: PROJ. NO.: 12-14-2022 2012 PAGE: DWG NO.: PLAN NORTH PORTERFANNA 45 MAIN STREET #212 BROOKLYN, NY 11201 212-273-1100 INFO@PORTERFANNA.COM WWW.PORTERFANNA.COM ASSISTED BY: 100 LA GORCE CIRCLE INTERIOR ARCHITECTURE PACKAGE MIAMI BEACH, FLORIDA 30% CD 06-01-2022 60% CD01-04-2022 109 HATFIELD STREET GARDENS CAPE TOWN 8001 SOUTH AFRICA WWW.SAOTA.COM LEAD DESIGNERS 109 HATFIELD STREET GARDENS CAPE TOWN 8001 SOUTH AFRICA WWW.ARRCC.COM LEAD DESIGNERS ARRCC A-228.00 07-04-2022 90% CD 12-14-2022 100% CD ARCHITECTURE ENLARGED PLANS 24'-7" 1/2" 11" 1'-3 1/4" 2'-03/4" 2'-2 3/4" 5" 4'-0 1/4" 6'-9" 3'-6 3/4" 10'-2 1/4" 9 1/4" 16'-11 1/2" 1'-0 1/4" EQ EQ 1'-10" 2'-0 1/4" 103 LOUNGE 104 VODKA BAR PLAN 01 A-228 SCALE: 3/8"=1'-0" 103 LOUNGE 104 VODKA BAR RCP 02 A-228 SCALE: 3/8"=1'-0" 1'-7" 4'-9 1/4" 5'-5 1/4" 3" 4'-9 1/4" 5'-5 1/4" 3" 11" 8 1/2" 25'-3 3/4" 4" 4" 1'-2" 4" 1'-8 1/2" 01 A-351 A-302 03 A-302 03 04 A-350 01 A-320 01 A-370 02 A-320 A-302 04 A-302 05 A-302 03 A-302 05 A-302 03 A-302 05 A-302 05 01 A-301 02 A-350 02 A-350 02 A-350 02 A-350 02 A-353 03 A-310 01 A-310 01 A-310 02 A-312 01 A-313 03 A-310 02 A-313 01 A-313 02 A-313 01 A-821 01 A-319 SIM. LEGEND 00 X-000 DETAIL REFERENCE TAG 00 X-000 CALL OUT DETAIL TAG REVISION REFERENCE ALIGN ALIGN FINISH SURFACE TAG 000 DOOR TAG WALL TAG X0 X0 000 ROOM NAME X-000 ROOM TAG ℄ CENTER LINE CEILING HEIGHT 0'-0" CEILING HEIGHT TAG ELEVATION TAG FINISH TAG X-000 00 00 00 00 FLOOR FINISH TRANSITION A-000 00 CALL OUT BASE DETAIL TAG ELEVATION NUMBER SHEET NUMBER DETAIL NUMBER SHEET NUMBER DETAIL NUMBER SHEET NUMBER DETAIL NUMBER SHEET NUMBER FLOOR RECEPTACLE LINEAR DIFFUSER CEILING LIGHT NOTES: REFER TO LIGHTING DESIGNER DRAWINGS FOR LIGHTING SPECIFICATIONS 2- REFER TO MECHANICAL ENGINEER DRAWINGS FOR HVAC SPECIFICATIONS 3- ALL CABINETRY TO BE COORDINATED WITH MW. MW TO PROVIDE SHOP DRAWINGS FOR REVIEW. 4- ALL MILLWORK AND SPECIALTY ITEMS TO BE COORDINATED WITH AS-BUILT CONDITIONS 5- PLUMBER TO VERIFY LOCATION WITH MANUFACTURER SPEC AND CONTRACTOR IN FIELD LINEAR SIDEWALL DIFFUSER LINEAR DIFFUSER IN COVE (SEE HVAC SPECS) CONTINUOS CEILING REVEAL ALL AROUND RECESSED LIGHT FIXTURE (SEE SPECIFICATIONS) RECESSED LIGHT FIXTURE (SEE SPECIFICATIONS) SHADE POCKET (SEE DETAIL) SIDEWALL DIFFUSER IN COVE (SEE HVAC SPECS) LINEAR DIFFUSER IN COVE (SEE HVAC SPEC) LIGHT COVES (SEE DETAIL) SIDEWALL DIFFUSER IN COVE (SEE HVAC SPEC) RETRACTABLE TV HATCH SIDEWALL DIFFUSER COVE (SEE HVAC SPEC) LIGHT FIXTURE BUILT INTO CABINET. TBC WITH MILLWORKER DWGS. LIGHT FIXTURE BUILT INTO CABINET. TBC WITH MILLWORKER DWGS. FLOOR RECEPTACLE 33'-3 1/4" TV INTEGRATED INTO FURNITURE UNIT SHADE POCKET (SEE DETAIL) 11'-7" 4'-8 1/4" ℄ 4" 10" CONTRACTOR TO COORDINATE PRECISE LAYOUT OF CEILING DESIGN WITH ARCHITECT AND DESIGNER L/5 L/5 L/5 L/5 L/5 EQ EQ 3'-6" 3'-6" EQ EQ 3'-5" 4'-10" EQ EQ 1'-0" 4" 4" 21'-4 1/4" R3'-71/4" 10'-03/4" 1'-3" 4'-11/2" 9 1/4" R6'-43/4" R5'-21/2" 1'-0" 4" 4" 17'-9 3/4" 3'-93/4"R3'-8" 9'-91/4" 4'-53/4" R4'-4" 5'-7" 01 A-828 02 A-828 02 A-828 DINING ROOM RCP BESPOKE CUSTOM VANITY DETAIL SHADE POCKET DETAIL PARTIAL 2ND FLOOR PLAN REVISIONS DATE NO. ISSUE DATE: PROJ. NO.: 12-14-2022 2012 PAGE: DWG NO.: PLAN NORTH 100 LA GORCE INTERIOR ARCHITECTURE MIAMI BEACH, FLORIDA 30% CD 06-01-2022 60% CD01-04-2022 A803.00 07-04-2022 90% CD 12-14-2022 100% CD 121 - VANITY CABINET ELEVATION 02 A-803 SCALE: 1/2"=1'-0" 121 - VANITY CABINET SECTION 03 A-803 SCALE: 3"=1'-0" 124 - VANITY CABINET ELEVATION 06 A-803 SCALE: 1/2"=1'-0" 124 - VANITY CABINET SECTION 07 A-803 SCALE: 3"=1'-0" 1'-10 1/2" LED STRIP 6 1/2" 2" 1'-3" 1/2" 121 VANITY CABINET SECTION 04 A-803 SCALE: 3"=1'-0" 9 1/4" 1'-10 1/2" 1'-10 1/2" 1'-10 1/2" 9" 1'-3" 6 1/2" 2" 1/2" 9" 1'-0 1/4" 1'-4 1/4" 7'-5 3/4" ℄ 6 1/2" 2'-5 1/2" 6" 7 1/4" 1'-7 3/4" 6'-7 1/2" 2'-5 1/2" 11 1/2" 1" 1/2" 1'-1" 1'-3" 1'-4 1/4" 6" 1'-7 3/4" 1'-7 3/4" 1'-7 3/4" STRUCTURAL ENGINEER TO ADVISE ON FIXING DETAIL STRUCTURAL ENGINEER TO ADVISE ON FIXING DETAIL STRUCTURAL ENGINEER TO ADVISE ON FIXING DETAIL STRUCTURAL STEEL TUBE WELDED TO STEEL TUBE FRAME STRUCTURAL STEEL TUBE WELDED TO STEEL TUBE FRAME 3 1/4" 8" 3 1/4" LED STRIP LED STRIP BOTTOM PANEL TO BE DETACHABLE TO ALLOW FOR BOTTLE TRAP MAINTENANCE BOTTOM PANEL TO BE DETACHABLE TO ALLOW FOR BOTTLE TRAP MAINTENANCE COUNTERTOP S25 COUNTERTOP S29 DRAWER FRONT T22 DRAWER FRONT T22 DRAWER FRONT G30 M22 M22 3 1/4" STRUCTURAL STEEL TUBE WELDED TO STEEL TUBE FRAME FLOATING SHELF M22 1'-0" 1'-0" 3 1/4" 3 1/4" STRUCTURAL STEEL TUBE WELDED TO STEEL TUBE FRAME FLOATING SHELF M22 STRUCTURAL STEEL TUBE WELDED TO STEEL TUBE FRAME FLOATING SHELF M22 CABINETRY DETAILS ALIGN 1'-2" x 6" CURTAIN RECESS 2 1/4" 5 1/8" 10" RHINOBOARD 3/8" FIXED TO SUBSTRUCTURE WITH NON-CORROSIVE SCREWS TO MANUFACTURER'S SPECIFICATION AND ARCHITECTS APPROVAL.TO BE SKIMMED, PRIMED AND PAINTED. ALL JOINTS TO BE TAPED WITH SKIM WIRE AND SKIMMED OVER 2 5/8" MOTORISED BLACKOUT ROLLER BLIND (SEE SPECIFICATIONS) 1'-2" MOTORISED SHEER CURTAIN (SEE SPECIFICATIONS) 4" SEE WINDOW EXTERIOR ENVELOPE INSTALLATION FLASHING OF ALL EXTERIOR WINDOWS. 4" 2" 6" EQ. EQ. HVAC LINEAR SIDEWALL DIFFUSER MAY OCCUR VERIFY CEILING PACKAGE CLEARANCES WITH G.C. INTERIOR 5 1/8" 10" 2 5/8" MOTORISED BLACKOUT ROLLER BLIND (SEE SPECIFICATIONS) 1'-0" MOTORISED SHEER CURTAIN (SEE SPECIFICATIONS) 2" 8" 3" SEE WINDOW EXTERIOR ENVELOPE INSTALLATION FLASHING OF ALL EXTERIOR WINDOWS. 2 1/4" M33 INTERIOR SHADE POCKET SECTION DETAIL 01 A-324 SCALE: 3"=1'-0" 224 - ENTERTAIMENT (W-39) SHADE POCKET SECTION DETAIL 02 A-324 SCALE: 3"=1'-0" 112 - BEDROOM 01 (W-15) ℄ ℄ ℄ ℄ ℄ TYP. LINEAR DRAIN DETAIL 03 A-324 SCALE: 6"=1'-0" LINEAR DRAIN; REFER TO PLUMBING SCHEDULE FOR SPECIFICATION SUBFLOOR TILE FINISH LATICRETE WATERPROOF MEMBRANE LIQUID APPLIED DOUBLE PLY REINFORCING FABRIC @ COVES CORNERS EXISTING WALL MORTAR BED- 1" MIN. THICKNESS LATICRETE CEMENT BACKER BOARD SEALANT NEW TILE LATICRETE WATERPROOF MEMBRANE LIQUID APPLIED DOUBLE PLY REINFORCING FABRIC @ COVES CORNERS SLOPE

Schematic Design- Design Development - Construction Documentation - Permitting

Project Manager: Blake Minster, Alex Sanchez

Softwares: AutoCAD, Rhino, Twinmotion

Program: Brownstone Gut Renovation Location: Milltown, NJ

PROJECT OVERVIEW

Farrington Ave is an addition to existing 2 storey residence with a basement. This project is a 3 Storey 6000 sf house located in Milltown NJ. The project aims to maximize views to Lake Farrington while Providing privacy on the eastern facade of the house. The house features a garden Balcony accessible from the master bedroom and the 2nd and third floors. The ground floor features an expansive open floor plan that allows for owner to host numerous guests at thier house.

Personal Duties:

• Developed presentations for client meetings.

• 3D modeling in Rhino

• Developed renderings

• Drafted all phases of the project

• Underwent Permitting process

| PorterFanna Architects 05.\ 05.\ (585)-905-5651| bminster333@gmail.com
FARRINGTON AVE
106 KITCHEN 102 GARAGE 110 BEDROOM 111 BATHROOM 109 DINING LOUNGE 103 MUD ROOM CEILING HEIGHT 11'-0" CEILING HEIGHT 9'-0" CEILING HEIGHT 9'-0" CEILING HEIGHT 9'-0" 105 HALL DN UP DN DN DN DN 107 LIVING ROOM CEILING HEIGHT 13'-6" 108 LOUNGE CEILING HEIGHT 9'-0" 8'-2 1/2" 16'-8 1/2" 5'-6" 16'-6" 7'-0" 6'-11" 11'-10" 32'-0" 22'-0" 24'-6" 64'-1 1/2" 14'-4" 22'-8" 12'-11 1/2" 104 POWDER ROOM 18'-0 1/2" 47'-6" 101 ENTRY 4'-0" 5'-9 1/2" 16'-1 1/2" 3'-0" 6'-7" 5'-8" 67'-6" 1'-0" 9'-9 1/2" 5'-4" 9'-2 1/2" 5'-6" 4'-11 1/2" 11'-9" 3'-6" 18'-10" 3'-6" 6'-0" 2'-0" 20'-7 1/2" 6'-7" 4'-0" 2'-1" 6'-0" 4'-5" 7'-7 1/2" 67'-6" 3'-0" MIN 6'-0" 18'-0 1/2" CEILING HEIGHT 11'-0" CEILING HEIGHT 10'-0" CL CL CL CL 20'-5" 2'-0" 4'-4 1/2" 6'-0" R5'-0" 41'-0 1/2" 20'-6 1/2" 4'-0" 14'-7 1/2" CL 43'-11 1/2" 3'-7" 7'-10 1/2" GROMYAK RESIDENCE REVISIONS DATE NO. ISSUE DATE: PROJ. NO.: 06-16-2022 35 FARRINGTON AVE MILLTOWN, NJ 08850 2104 PAGE: DWG NO.: LARRY PORTER NJ LIC. 21AI02213500 45 MAIN STREET #212 BROOKLYN, NY 11201 212-273-1100 ARCHITECT NY LIC. 028760 PLAN A-101.00 NEW FIXED TEMPERED IGU WINDOW NEW EXTERIOR LINEAR DRAIN TIED TO WATER CATCH BASIN NEW TILT UP GARAGE DOORS NEW OPERABLE IGU WINDOWS NEW SLIDING TEMPERED GLASS DOOR NEW FIXED TEMPERED IGU WINDOW NEW SLIDING TEMPERED GLASS DOOR NEW SLIDING TEMPERED GLASS DOORS TEMPERED IGU WINDOW NEW FIXED TEMPERED IGU WINDOWS NEW FIXED TEMPERED IGU WINDOWS NEW SELF CLOSING ENTRY DOOR CANOPY COVERING ABOVE CANOPY COVERING ABOVE 2ND FLOOR OVERHANG ABOVE NEW BUILT IN PLANTER BOX NEW GUARDRAIL 3'-0" MINIMUM HEIGHT NEW STAIRS 7.5" RISERS 11" TREADS W/ NOSING NEW STAIRS 7.5" RISERS 11" TREADS W/ NOSING SOFFIT ABOVE SOFFIT ABOVE NEW KITCHEN ISLAND NEW SPARKFIRE 5FT DIRECT VENT FIREPLACE NEW STAIRS 7.5" RISERS 11" TREADS W/ NOSING NEW RESIDENTIAL ELEVATOR FLOOR PLANS EXISTING WALL TO REMAIN NEW WALL REMOVED WALLS EXISTING DOOR NEW DOOR NEW POCKET DOOR ELEVATION OR HEIGHT ABOVE BELOW NEW RATED SELF CLOSING ENTRY DOOR NEW EXTERIOR HOSE BIBB NEW EXTERIOR HOSE BIBB NEW EXTERIOR HOSE BIBB OPEN ABOVE DIA. STEEL COLUMN DIA. STEEL COLUMN DIA. STEEL COLUMN HANDRAIL 3'-0" MINIMUM HEIGHT NEW BUILT CLOSET NEW DRIVEWAY WITH PERMEABLE PAVERS 209 BEDROOM 02 CL 201 MASTER BEDROOM CEILING HEIGHT 9'-0" CEILING HEIGHT 9'-0" DN UP UP UP UP 210 BATHROOM 207 BEDROOM 01 CEILING HEIGHT 9'-0" CL 208 BATHROOM 204 MASTER BATHROOM CEILING HEIGHT 9'-0" 213 TERRACE 211 TERRACE 206 LOUNGE CEILING HEIGHT 9'-0" 203 WALK CLOSET 13'-10 1/2" 13'-4 1/2" 41'-0 1/2" 68'-5 1/2" 6'-10 1/2" 205 HALLWAY CEILING HEIGHT 9'-0" 5'-6" 5'-3" 3'-4" 13'-0 1/2" 35'-10 1/2" 41'-6 1/2" 212 TERRACE 14'-11 1/2" 7'-4" 3'-0" 2'-0" 6'-3" 15'-7 1/2" 11'-6" 11'-11" 8'-8" 8'-9 1/2" 9'-3" 4'-9" 2'-1" 3'-0" 14'-10 1/2" 9'-0 1/2" 8'-8" 9'-4 1/2" 3'-6" 5'-6" 5'-1" 14'-0" R5'-0" R5'-0" 2'-0" 3'-0" MIN 7'-8" 3'-0" MIN 3'-0" MIN CL CL CL 3'-0" MIN 1'-5" 22'-7 1/2" 2'-0" 4'-4 1/2" 6'-0" 6'-0" 214 STORAGE 16'-1 1/2" 6'-7" 3'-6" 3'-11" 13'-6 1/2" GROMYAK RESIDENCE REVISIONS DATE NO. ISSUE DATE: PROJ. NO.: 06-16-2022 35 FARRINGTON AVE MILLTOWN, NJ 08850 2104 PAGE: DWG NO.: LARRY J. PORTER NJ LIC. 21AI02213500 45 MAIN STREET #212 BROOKLYN, NY 11201 212-273-1100 ARCHITECT NY LIC. 028760 01 A-102 SECOND FLOOR PLAN SCALE: 1/4" 1'-0" A-102.00 NEW OPERABLE IGU WINDOW NEW OPERABLE TEMPERED IGU WINDOW NEW FIXED TEMPERED IGU WINDOWS NEW FIXED IGU WINDOW NEW FIXED IGU WINDOW NEW FIXED TEMPERED IGU WINDOWS NEW FIXED VERTICAL SUN SHADING LOUVERS NEW STAIRS 7.5" RISERS 11" TREADS W/ NOSING OPEN TO BELOW NEW TEMPERED GLASS GUARDRAIL 3'-0" MIN HEIGHT NEW FIXED TEMPERED IGU WINDOWS NEW OPERABLE IGU WINDOW NEW OPERABLE IGU WINDOW NEW RESIDENTIAL ELEVATOR NEW SOLID GUARDRAIL 3'-0" MIN HEIGHT NEW SOLID GUARDRAIL 3'-0" MIN HEIGHT NEW BUILT IN PLANTERS NEW SLIDING TEMPERED IGU DOOR FLOOR PLANS EXISTING WALL TO REMAIN NEW WALL REMOVED WALLS EXISTING DOOR NEW DOOR NEW POCKET DOOR ELEVATION OR HEIGHT ABOVE BELOW EXTERIOR HOSE BIBB NEW FIXED TEMPERED SKYLIGHT ABOVE NEW BUILT IN CABNIETRY NEW BUILT CABINETRY EXTERIOR PORCELAIN PAVERS ABOVE ROOFING MEMBRANE WINDOW SILL NEW BUILT CABINETRY NEW BUILT CABINETRY 301 OFFICE CEILING HEIGHT 8'-0" DN DN 302 TERRACE 20'-7 1/2" 9'-9" 21'-4 1/2" 11'-3" 19'-2" 26'-8" R5'-0" R4'-6" 13'-11" 5'-11" 19'-3" 3'-6" 1'-0" 13'-2 1/2" 3'-0" MIN 15'-5" 11'-9 1/2" 3'-9" 9'-5" 11'-2 1/2" 12'-1" 9'-9" 2'-8" 20'-6" 2'-0" CL 3'-0" 3'-0" 4'-11 1/2" 8'-0" 7'-4 1/2" ARCHITECT 01 A-103 THIRD FLOOR PLAN SCALE: 1/4" 1'-0" NEW SLIDING TEMPERED IGU DOOR NEW BUILT GAS FIRE APPLIANCE NEW BUILT SEATING NEW STAIRS 7.5" RISERS 11" TREADS W/ NOSING NEW STAIRS 7.5" RISERS 11" TREADS W/ NOSING NEW BUILT CABINETRY AND DESK NEW MILLWORK NEW EXTERIOR HOSE BIBB NEW ELEVATOR BULKHEAD NEW FIXED TEMPERED IGU SKYLIGHT 36" HIGH STEEL RAILING FIXED STAIR STRINGER AND FLOOR NEW BUILT CABINETRY AND DESK EXTERIOR PORCELAIN PAVERS OVER ROOFING MEMBRANE CANOPY ABOVE BENCH INTERIOR ENTRY RENDERING EXTERIOR FACADE RENDERING EXTERIOR FACADE RENDERING GARDEN BALCONY RENDERING GARDEN BALCONY RENDERING
FIRST FLOOR PLAN SECOND FLOOR PLAN THIRD FLOOR PLAN

SCI-Arc Fall 2019

Professors: Maxi Spina, Randy Jefferson

Softwares: Rhino, Grasshopper, Keyshot, Illustrator Collaboration: Saleh Jamsheer, Sixtina Maculan, Ozan Cicek

FACADE TRANSFORMATION

The Dalian International Conference center now features aluminum panels with a rigid, angular, and daunting aesthetic. Our transformation premise alters the aesthetic to a fluid, inflated membrane. The Building has been designed and constructed with an absurd amount of metal. The structure is comprised of w-section box trusses with concrete floor slabs. The skin of the building is supported by the primary steel structure that utilizes a three-meter-thick braced column framing.

The intentions of our transformation are to lighten the overall structure of the skin of the façade, while reducing the weight of the material used to enclose the building. The implementation of ETFE (Ethylene tetrafluoroethylene) pillows allow for various benefits to the building performance. ETFE is a fluorine-based plastic which possesses high corrosive resistance and strength of a large variance of temperatures. The cushions allow the flexibility to contain several different gasses to improve environmental performance of the skin. ETFE allows for longer spans of materials versus the aluminum panels.

TRANSFORMED FACADE CHUNK

DALIAN INTERNATIAL CONFERENCE CENTER

Advanced Materials and Tectonics. AS3200 Sixtina Maculan Saleh Jamsheer Blake Minster Ozan Cicek Precedent Study: Dalian Conference Center Envelope System: Perforated Aluminum Facade A1 FACADE DETAIL UPPER CORNER CONDITION ASSEMBLIES A2 FACADE DETAIL LOWER CORNER CONDITION ASSEMBLIES 5M 5M 4 3 9 Gauge (3.5 mm) QUADROCLAD Perforated Aluminum Panel 12 Gauge Auxiliary Structural Square Steel Tubing Primary Steel Framing 0.75M x 0.5M Exterior Facade Skin System Primary Structural Steel Laterally Braced Columns 2.75M x 1.0M A2 Floor Structural Truss System Composed of W-Sections With Welded Connections-Field Fabrication Floor Structural Truss System Composed of W-Sections With Welded Connections-Field Fabrication QUADROCLAD QC200 Aluminum Panels With Honeycomb Stiffening QUADROCLAD QC200 Aluminum Panels With Honeycomb Stiffening 20cm Rigid Foam Insulation With Vapor Barrier 20cm Rigid Foam Insulation With Vapor Barrier Steel Angle Joinery for Cladding of Aluminum Paneling System Steel Angle Joinery for Cladding of Aluminum Paneling System Horizontal Joinery for Aluminum Paneling System Double Glazing Rainscreen System 20mm Thickness Vision Glass Double Glazing Rainscreen System 20mm Thickness Vision Glass Metal Flashing Corner VFP LUXALON Lay On Tiles 15mm Grid Drop Ceiling Hangers T-Bar Frame for Drop Ceiling 40cm Poured In Place Concrete Slad With #9 Reinforcing Bar Extruded Aluminum Mullions Extruded Aluminum Mullions A3 A4 Advanced Materials and Tectonics. AS3200 Sixtina Maculan Saleh Jamsheer Blake Minster Ozan Cicek Precedent Study: Dalian Conference Center Envelope System: Perforated Aluminum Facade 4 5M 2 5M 5M 4 3 2 1 WORMS EYE CHUNK A6 - FACADE DETAIL ETFE SUBSTRUCTURE CONNECTION A7- FACADE DETAIL ETFE CONNECTION A6 A7 Floor Structural Truss System Composed of W-Sections With Welded Connections-Field Fabrication Secondary Bracing Structure ETFE Cushions 40cm Poured In Place Concrete Slad With #9 Reinforcing Bar Thermal Insulation, Steel Section; Composite sheet-metal and plastic-sheet gutter Triple Layer ETFE Cushions Sheet Steel bent to Shape Vision Glass Mullions Steel Tube Bird Deterrent Wires on Stainless Steel Carrier Concrete Floor Slabs Extruded Alloy Cap with Foamed Steel Carrier Floor Structural Truss System Composed of W-Sections With Welded Connections-Field Fabrication Extruded Aluminum Frame to Opening Flap Aluminum Cladding Keder Cushion Restraint Extruded Steel Sections For Mounting of ETFE Cushions Three Layer ETFE Cushion Substructure For ETFE Cushions
06.\ 06.\ (585)-905-5651| bminster333@gmail.com
MATERIALS & TECTONICS
PHYSICAL MODEL
GRASSHOPPER SCRIPT OF ETFE PANELIZATION

SCI-Arc 2020 Spring

Softwares: Rhino

Proffesors: Dwayne Oyler

Collaboration: Qiao Liu, Victoria Carvajal

This project dives into Japanese 3D puzzles as a precedent. Referencing Hanayama Japanese 3D puzzles we began to analyze

07.\ 07.\
3D PUZZLE
+A_02 +A_02 +R_02 +R_03
AXONONMETRIC ASSEMBLY +A_03

SCI-Arc 2019 Fall

Softwares: Rhino, Illustrator

Proffesors: Dwayne Oyler

Collaboration: Linzi Ai, Pinchih Liao

The Perplex detail take inspiration from Japanese Puzzle Boxes, where theintention of the design in to confuse or perplex an individual while attempting to open it. The project is explores the idea of a lock becoming more than just an accessory. The lock becomes integrated into the construction of the door. The only use of hardware if the pivot hinge that allows the door to swing. Our design utilizes a track system that allows the blocks to slide fluidly to unlock and lock. The detail engages the users with the door catalyzing an interaction with the door. The design features hints to solve the puzzle, as ornamentation is formed as a continuity when unlocked, and broken when locked. Windows are implemented into the window but alter when the blocks are moved for a more dynamic experience. The locking mechanism extends into the door frame allowing the door to not open.

PERPLEX DETAIL 08.\ 09.\ 08.\ BACKSIDE SEQUENCE 7 8 1 2 3 4 4 6 5 8 7 2 3 1 4 8 7 5 6 7 8 BACKSIDE SEQUENCE AXONOMETRIC SEQUENCE BACKSIDE SEQUENCE 5 7 1 3 4 6 5 8 7 2 3 1 4 6 5 8 7 2 3 1 5 7 FRONTSIDE SEQUENCE 1 2 3 4 5 6 7 8 FRONTSIDE SEQUENCE FRONTSIDE SEQUENCE AXONOMETRIC SEQUENCE BACKSIDE SEQUENCE 1 2 3 4 5 6 7 8 1 3 4 6 5 8 7 2 3 1 4 6 5 8 7 2 3 1 5 7

Turn static files into dynamic content formats.

Create a flipbook
Issuu converts static files into: digital portfolios, online yearbooks, online catalogs, digital photo albums and more. Sign up and create your flipbook.