NO_Broschyr_Dekktrucker_2025

Page 1


Dekktrucker

Uansett om du velger liggende eller stående dekkoppbevaring, har vi dekktrucker som effektiviserer håndteringen. For liggende oppbevaring tilbyr vi trucker som muliggjør lagring i høyden, med tilvalg som beskyttelsestak og kamera for økt sikkerhet. For stående oppbevaring finnes både hånddrevne og elektriske trucker tilpasset ditt system. Vi hjelper deg med å finne den rette løsningen for en smidig og sikker dekkhåndtering. Bla gjennom brosjyren for å finne din perfekte match!

Spørsmål? Ring +47 679 73 170 eller skann QR-koden ➜

Garantivilkår

Garantien omfatter reservedeler, batteri og lader i en periode på 12 måneder fra leveringsdato, med mindre annet er avtalt. Arbeidskostnader eller andre relaterte kostnader dekkes ikke. Leveringsgaranti gjelder i 30 dager fra leveringsdato. Ved reklamasjon under leveringsgarantien skal BLS AS kontaktes, hvoretter eventuelle garantikrav vurderes og beslutning tas om passende tiltak. Garantien opphører dersom produktet har blitt brukt feilaktig eller endringer er gjort på produktet uten skriftlig godkjenning fra oss. Vær oppmerksom på at garantien som beskrevet ovenfor ikke kan omgjøres til økonomisk kompensasjon.

ECO HOEIX 200

Liten og kompakt hånddrevet stabler med trekkstang, kjedestyring og trekkbøyler på stativet. Hydraulisk ventil for presis regulering av løfteog senkehastighet. Innebygd batterilader. Løftekapasitet på 200 kg og med løftehøyder fra 2 500 mm opp til 5 000 mm.

ECO HOEIX 200 2500D – 5000T

Egenvekt, uten batteri / med batteri kg / 251 / 283 / 324 / 352 –

* Mål fra styrehjul ** Gangbreddebehov inkl. 200 mm sikkerhetsavstand med gaflens dimensjon l (hjul Ø650 mm) og 90° stabling med gaflene i transportposisjon (senket posisjon).

OBS! Gangbreddebehov i henhold til standard SS-EN15620. Gangbredde ved håndtering uten sikkerhetsavstand anbefales ikke.

Merk at gangbreddebehovet endres ved bruk av tilbehør, annen gaflengde og beskyttelsestak.

Maksimal tillatt last

Teknisk informasjon ECO HOEIX 200

Gaffeldimensjon

Løftehastighet, uten last / med last

/ 0,17

/ 0,17

Senkehastighet, uten last / med last m/s 0,23 / 0,25 0,23 / 0,25

Hjultype støtteben Enkel Polyuretan Enkel Polyuretan

Hjuldimensjon støtteben mm Ø 85x75 Ø 85x75

Hjultype svinghjul Polyuretan Polyuretan

Hjuldimensjon svinghjul mm Ø 150x40 Ø 150x40

Parkeringsbrems Mekanisk fotbrems Mekanisk fotbrems

Styringssystem Kjedestyring Kjedestyring

Regulering løft og senk Hydraulisk ventil Hydraulventil

Løftemotor S3 10% kW 0,9 DC 0,9 DC

Batterispenning / kapasitet V/Ah 12 / 75 12 / 75

Lader spenning / kapasitet V/A 12 / 5 12 / 5

MULTI HLX 200

Kompakt og lettmanøvrert ledestabler for gående operatør. Trucken drives med batteri. Løftekapasitet 200 kg og løftehøyde fra 2 500 mm opp til 6 300 mm. Ulike tilbehør som beskyttelsestak og gaffelkamera gjør arbeidet både enklere, mer effektivt og sikrere.

MULTI HLX 200 2500D – 4500T

5000T – 6500T

* Mål fra styrehjul

** Gangbreddebehov inkl. 200 mm sikkerhetsavstand med gaflens dimensjon l (hjul Ø650 mm) og 90° stabling med gaflene i transportposisjon (senket posisjon).

OBS! Gangbreddebehov i henhold til standard SS-EN15620. Gangbredde ved håndtering uten sikkerhetsavstand anbefales ikke.

Merk at gangbreddebehovet endres ved bruk av tilbehør, annen gaflengde og beskyttelsestak.

Teknisk informasjon MULTI HLX 200

uten last / med last

Senkehastighet, uten last / med last

Kjørehastighet, uten last / med last

Hjultype støtteben

Hjuldimensjon støtteben

Ø 85x75

Hjultype svinghjul Polyuretan Polyuretan Polyuretan

Hjuldimensjon svinghjul mm Ø 100x40 Ø 100x40 Ø 100x40

Hjultype drivhjul mm Gummi Gummi Gummi

Hjuldimensjon drivhjul mm Ø 240x60 Ø 240x60 Ø 240x60

Färdbroms

Elektrisk drift Elektrisk drift Elektrisk drift

Parkeringsbrems Elektrisk drift Elektrisk drift Elektrisk drift

Styringssystem Styrestang Styrestang Styrestang

Regulering løft og senk

Proportionalventil Proportionalventil Proportionalventil

Reglering körhastighet Transistor Transistor Transistor

Batterispenning / kapasitet V/Ah

/

Lader spenning / kapasitet V/A 24/20 24/20 24/20

SMART HSSX 200

Rask, sterk og ergonomisk stablingsvogn for stående operatør. Løftekapasitet 200 kg og løftehøyder fra 3 500 mm opp til 7 000 mm. Tilbehør som gaffelkamera gjør arbeidet enklere, mer effektivt og sikrere.

SMART HSSX 200 3600D – 6300TF

høyde, senket posisjon

SMART HSSX 200 5400 – 7200TF

Laderspenning / kapasitet

Egenvekt,

Maksimal tillatt last

* inkl. lastbeskyttelseshøyde

** Gangbreddebehov inkl. 200 mm sikkerhetsavstand med gaflens dimensjon l (hjul Ø650 mm) og 90° stabling med gaflene i transportposisjon (senket posisjon).

OBS! Gangbreddebehov i henhold til standard SS-EN15620. Gangbredde ved håndtering uten sikkerhetsavstand anbefales ikke. Merk at gangbreddebehovet endres ved bruk av tilbehør, annen gaflengde og beskyttelsestak.

Teknisk informasjon SMART HSSX 200

uten last / med last

Senkehastighet, uten last / med last

Kjørehastighet, uten last / med last

/

/

/

Hjultype støtteben Enkel Vulk Enkel Vulk Enkel Vulk

Hjuldimensjon støtteben mm Ø 85x95 Ø 85x95 Ø 85x95

Hjultype svinghjul Vulkollan Vulkollan Vulkollan

Hjuldimensjon svinghjul mm Ø 150x60 Ø 150x60 Ø 150x60

Hjultype drivhjul mm Vulkollan Vulkollan Vulkollan

Hjuldimensjon drivhjul

Ø 250x80 Ø 250x80 Ø 250x80

Fartsbrems Elektrisk Elektrisk Elektrisk

Parkeringsbrems Mekanisk Mekanisk Mekanisk

Styringssystem Elservo Elservo Elservo

Regulering løft og senk Proportionalventil Proportionalventil Proportionalventil

Regulering kjørehastighet Transistor Transistor Transistor

SMILE HTSX 200

Kompakt og lettmanøvrert ledestabler for gående operatør. Trucken drives med batteri. Løftekapasitet 200 kg og løftehøyde fra 2 500 mm opp til 6 300 mm. Tilbehør som beskyttelsestak og gaffelkamera.

SMILE HTSX 200 3600D – 6300TF

SMILE HTSX 200 6750 – 7500TF

* inkl. lastbeskyttelseshøyde ** Gangbreddebehov inkl. 200 mm sikkerhetsavstand med gaflens dimensjon l (hjul Ø650 mm) og 90° stabling med gaflene i transportposisjon (senket posisjon). OBS! Gangbreddebehov i henhold til standard SSEN15620. Gangbredde ved håndtering uten sikkerhetsavstand anbefales ikke. Merk at gangbreddebehovet endres ved bruk av tilbehør, annen gaflengde og beskyttelsestak.

Maksimal tillatt last

Teknisk informasjon SMILE HTSX 200

Løftehastighet, uten last / med last

Senkehastighet, uten last / med last

/

/

/

/

Kjørehastighet, uten last / med last km/h 8 / 8 8 / 8 8 / 8

Hjultype støtteben Enkel Vulk Enkel Vulk Enkel Vulk

Hjuldimensjon støtteben mm Ø 85x95 Ø 85x95 Ø 85x95

Hjultype svinghjul Vulkollan Vulkollan Vulkollan

Hjuldimensjon svinghjul mm Ø 150x60 Ø 150x60 Ø 150x60

Hjultype drivhjul mm Vulkollan Vulkollan Vulkollan

Hjuldimensjon drivhjul mm Ø 250x80 Ø 250x80 Ø 250x80

Driftsbrems Elektrisk Elektrisk Elektrisk

Parkeringsbrems Mekanisk Mekanisk Mekanisk

Styringssystem Elservo Elservo Elservo

Regulering løft og senk Proportionalventil Proportionalventil Proportionalventil

Regulering kjørehastighet Transistor Transistor Transistor

Batterispenning / kapasitet V/Ah

/

/

/ 775

Sidestabilisatorer Tilvalg Tilvalg Tilvalg

Egenvekt, uten batteri / med batteri kg –

EFFECT HAX 200

Liten, kompakt og lett håndterbar dekklyfter. Hånddrevet med elhydraulisk løft og innebygd lader. Enkelt oppbygd med driftssikre komponenter for lang, bekymringsfri bruk. Løftekapasitet 200 kg og løftehøyde 1 500 mm.

EFFECT HAX 200

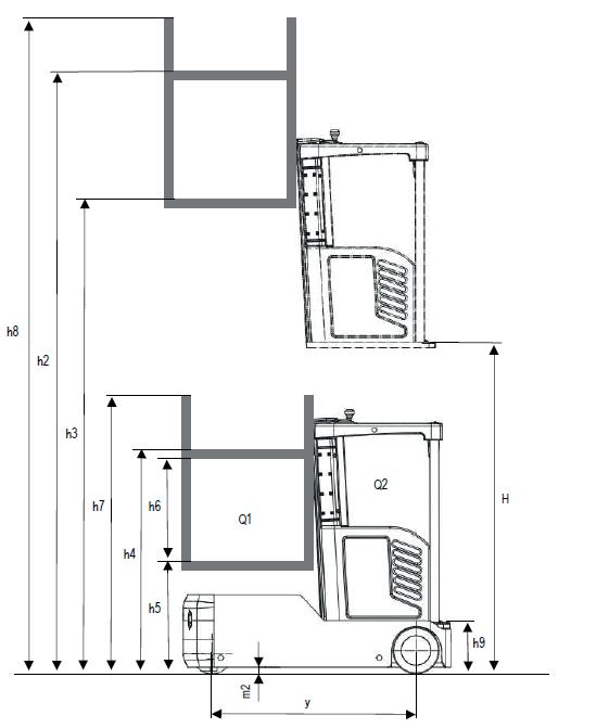
Løftehøyde H mm 1 500

Mastens høyde, senket posisjon h1 mm 1 885

Mastens høyde, hevet posisjon h4 mm 2 400

Total lengde l1 mm 870

Total bredde b1 mm 660

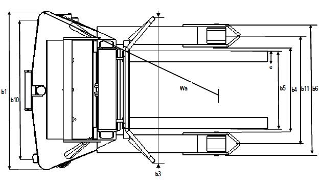
Svingradius (målt fra styrehjul) Wa mm 800

Gangbreddebehov* Ast mm 1 300*

** Gangbreddebehov inkl. 200 mm sikkerhetsavstand med gaflens dimensjon l (hjul Ø650 mm) og 90° stabling med gaflene i transportposisjon (senket posisjon). OBS! Gangbreddebehov i henhold til standard SS-EN15620. Gangbredde ved håndtering uten sikkerhetsavstand anbefales ikke. Merk at gangbreddebehovet endres ved bruk av tilbehør, annen gaflengde og beskyttelsestak.

Teknisk informasjon HAX 200

Drift

Mastetype Enkel Løftekapasitet / nominell last Q kg

tyngdepunktavstand

Gaffelhøyde, senket posisjon

Gaffeldimensjon

Bredde mellom gafler mm

Gaffelvognsbredde

/

/ 650

Løftehastighet, uten last / med last m/s 0,16 / 0,12

Senkehastighet, uten last / med last m/s 0,13 / 0,16

Hjultype støtteben Polyuretan

Hjuldimensjon støtteben mm Ø 80x30

Hjultype svinghjul Polyuretan

Hjuldimensjon svinghjul mm Ø 125x32

Hjultype drivhjul mm Gummi

Hjuldimensjon drivhjul mm Ø 240x60

Parkeringsbrems Mekanisk fotbrems

Styringssystem Svinghjul

Regulering løft og senk Trykknapper

Løftemotor kW 0,4 DC

Batterispenning / kapasitet V/Ah 12 / 75

Laderspenning / kapasitet V/A 12/5

Egenvekt, uten batteri / med batteri kg / 100

HANDY DPL 225

Plukktruck for stående dekkoppbevaring i stasjonære eller mobile dekkstativ eller dekkmagasin. Innebygd lader.

HANDY DPL

Løftehøyde H mm 3 000

Mastens høyde, senket posisjon h1 mm 1 680

Mastens høyde, hevet posisjon h4 mm 4 860

Total lengde l1 mm 1 450

Total bredde b1 mm 750

Svingradius Wa mm 1 260

Gangbreddebehov* Ast mm 950*

** Gangbreddebehov inkl. 200 mm sikkerhetsavstand.

OBS! Gangbreddebehov i henhold til standard SS-EN15620. Gangbredde ved håndtering uten sikkerhetsavstand anbefales ikke.

Ytelse og dimensjoner er angitt med forbehold om toleranser.

Teknisk informasjon HAX 200

Løftekapasitet / nominell last Q kg

Løftekapasitet / nominell last Q1 kg

Løftekapasitet / nominell last Q2 kg

Lastens

øvre lastplan

posisjon

Høyde

Maks akseltrykk, uten last, førerside / lastsiden kg

Hjultype drivhjul / dimensjon mm

Hjultype lasthjul / dimensjon mm

/ 430

Polyuretan / Ø 210x70

Gummi / Ø 250x100

Antall hjul, foran / bak (x = drivhjul) 1x, 2 / 2

Kjørehastighet lastet / ulastet (H:0–500 mm) km/h 6.0 / 6.6

Kjørehastighet lastet / ulastet (H:500–1000 mm) km/h 3

Kjørehastighet lastet / ulastet (H:1000–2000 mm) km/h 2

Kjørehastighet lastet / ulastet (H:2000–3000 mm) km/h 1

Løftehastighet lastet / ulastet Q2 m/s - / 0.225

Løftehastighet lastet / ulastet Q1 m/s - / 0.028

Løftehastighet lastet / ulastet Q2 m/s - / 0.233

Løftehastighet lastet / ulastet Q1 m/s - / 0.029

Maks stigningsevne, med / uten last % 5 / 8

Fartsbrems Elektromagnetisk

Styringssystem Elservo

Løftemotor S3 15% kW 2.2

Kjøremotor S2 60 min kW 0.65

Batterispenning / kapasitet V / Ah 24 / 120

Laderspenning V / A 24 / Innebygd

Egenvekt med batteri kg 800

WHEEL TROLLEY TOWER LIFT

Wheel Trolley Tower Lift er en kompakt og plassbesparende truck for ergonomisk korrekt og sikker håndtering av dekk og hjul i dekkreoler opptil 6,0 meter høye. Den krever kun 1,5 meter gangplass mellom reolene.

Mastens høyde, senket posisjon h1

Batteri (volt/amperetimer) V/Ah 24V/210Ah 24V/210Ah

Maks belastning kg 180 180

*Gangbreddebehov inkl. 200 mm sikkerhetsavstand med gaflens dimensjon l (hjul Ø650 mm) og 90° stabling med gaflene i transportposisjon (senket posisjon).

OBS! Gangbreddebehov i henhold til standard SSEN15620. Gangbredde ved håndtering uten sikkerhetsavstand anbefales ikke.

Merk Tabellene inneholder tekniske data for standardutførelse. De tekniske opplysningene kan variere for ikke-standardutførelser, med andre tilbehør eller andre kombinasjoner som vist ovenfor, med og uten gafler.

Teknisk information WHEEL TROLLEY TOWER LIFT

/ Batteri

(Godskasse + gafler + operatør)

Hjulmateriale

Maksimal høyde h4 mm 4630/4985/6075 4985/7055

Maksimal høyde førerhytte h3 mm 3200/3500/4200 3500/5000 Lengde (hylle innfelt)

Kjørehastighet (4. gir)

Batteri (volt/amperetimer) V/Ah 24V/210Ah 24V/210Ah

Styringssystem Elektrisk Elektrisk

Kjørekontrolltype AC AC

Bærekraftige lagersystemer for suksessrike bedrifter BLS står for Brännehylte Lagersystem. Siden 1987 har vi produsert ulike typer reoler og lagersystemer for bedrifter som ønsker å optimalisere sitt lagerlokale. Vi er med deg fra dag én og setter en ære i å levere holdbare og skreddersydde løsninger.

Vi har røtter i vill natur preget av myr, skog og innsjøer. Rett utenfor fabrikken ligger Store Mosse nasjonalpark – Sveriges største høymyrområde sør for Lappland. I det smålandske Kulltorp i Sverige finner du fabrikken vår.

BLS AS · 1414 Trollåsen +47 679 73 170 · blsas.no

Turn static files into dynamic content formats.

Create a flipbook
Issuu converts static files into: digital portfolios, online yearbooks, online catalogs, digital photo albums and more. Sign up and create your flipbook.