Bing Li - Portfolio

Page 1

portfolio Bing Li

Email: libing19910127@gmail.com

Phone: 213-880-8783

Bing LI

14 silverwood, Irvine, CA92604 || 213-880-8783 ||

SKILLS:

6+ EXPERIENCE:

Autocad

Sketchup

Revit

Photoshop

Indesign

3+ EXPERIENCE:

Vray Render

Bluebeam

Microsoft Office

1+EXPERIENCE:

Rhino

Adobe Illustrator

EXPERIENCE AT DAHLIN (2016-2023):

Firmin Court Affordable Housing: Los Angeles, CA || 64 Units || Work in Predesign-SD-DD-CD-CA phase

- In predesign phase, deliver a feasibility set and use model and drawings to convey design to client.

- Deliver entitlement package.

- Coordinate design with consultans and work closely with CASp consultants to address accessibility features in units and common areas.

- Work on code analysis and ensure building complies with code.

- Address RFI, Submittals and ASIs. Site visit to ensure project built per design intent.

Desert Marketplace Apartment: Las Vegas, NA || 320 Units || Work in SD-DD-CD phase

- Update color elevations, plans, sections and deliver SD package.

- Work on all aspects of building. Develop drawings and details for the building.

- Coordinate design with consultants and give instructions to designers/drafters.

- Work on code analysis and ensure building complies with code.

EDUCATION:

Master in Architecture University of SouthernCalifornia

Bachelor in Architecture

Sichuan University in China

AWARD:

HONORABLE MENTION 2016, ULI

HOBBIES/ ACTIVITIES:

SNOWBOARD CYCLING

Metro at Melrose Affordable Apartment: Placentia, CA || 190 Units || Work in Predesign, DD-CD phase

- Work on and win the RFP of this project.

- Deliver entitlement resubmittal.

- Work on DD and CD phase, design all the unit plans and build Revit model with team.

- Research code and work on code analysis.

Otay Ranch Affordable Housing: Chula Vista, CA || 114 Units || Work in predesign-SD-DD-CD phase

- Work on pre-design package, deliver design options to communicate with client.

- Deliver SD package, work on sketchup models, colored elevations, plans and sections.

- Work in DD and CD phase, work on all aspects of drawings.

Alvarado Senior Housing: Fallbrook, CA || 54 Units || Work in SD-DD-CD phase

-Senior housing, deliver SD package and present to owner.

-Coordinate with consultants to execute design intent.

-Deliver DD, CD submittals.

EXPERIENCE AT JAMISON PROPERTIES (2015-2016):

- Work with attorneys to figure out zoning constraints for the site.

- Work on feasibility study and entitlement.

- Work With affordable housing bonus, and find out the best combination for project.

libing19910127@gmail.com
X-XX SHEET 05.01.21 C5d : 8-Plex COUNTY of LOS ANGELES, CALIFORNIA PLAN 1 FLOOR AREA FIRST FLOOR FLOOR PLANS SECOND FLOOR THIRD FLOOR PLAN 1 FIRST FLOOR SECOND FLOOR THIRD FLOOR TOTAL COVERED PORCH COVERED PATIO COVERED DECK GARAGE X,XXX S.F. X,XXX S.F. X,XXX S.F. X,XXX S.F. XXX S.F. XXX S.F. XXX S.F. XXX S.F. 25124 SPRINGFIELD CT, SUITE 300 VALENCIA, CALIFORNIA 91355 (661) 255-4000 0 4 8 16 SCALE: "=1'-0" OF XX SHEETS 06.02.21 SHEET CG-7 LOS A- Standing seam metal B- Ext. cement plaster C- Burnished CMU Block D- Painted horizontal lap siding F- Roll Up Garage Door N- Metal Railing C5d : 8-Plex Stacked FlatsB B D B A A 2.Right 1.Left Roof Plan MECH. EQUIPMENT D N Front Left Right Rear 1 MODERN FARMHOUSE ELEVATIONS A A C C CONTENT
4. CROWTHER AVENUE FIRMIN COURT VALENCIA 8-PLEX GARDEN GROVE
1. 2. 3.
Bing Li | libing19910127@gmail.com

CROWTHER AVENUE

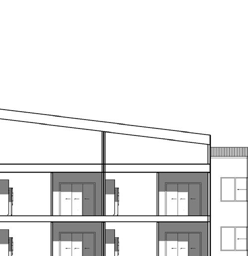
Metro at Melrose is an RFP-winning, 189-unit mixed-income, affordable housing project, located south of the future Metrolink station platform, and steps away from the City of Placentia’s bustling Old Town. It is located in the City’s Citrus Packing House District and consists of a four-story, wood framed building over two levels of parking lined with community-serving retail, leasing and amenities, as well as dwelling units. The community has been designed with the focus of having a prominent street presence on West Crowther Avenue, with ground floor entrances to the retail, leasing area, and west courtyard, and with residential unit windows, patios, and stoop entrances along an activated street frontage. Metro includes 272 on-site parking spaces which are housed within two structured parking levels.

1 CROWTHER AVENUE
Bing Li | libing19910127@gmail.com 2
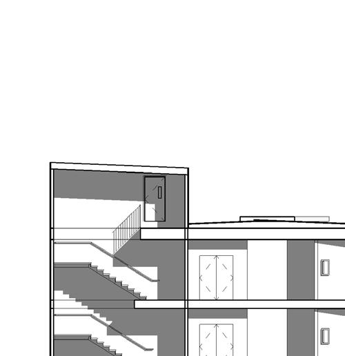
1/16" = 1'-0" 1 WEST-EAST SECTION BUILDING SECTION BUILDING ELEVATION
3 CROWTHER AVENUE T.O.C. LEVEL 1 215' - 6" T.O.C. LEVEL 2_228.5' 228' - 6" T.O.C. LEVEL 3 240' - 0" T.O.S.F. LEVEL 4 35' - 3 23/32" T.O.S.F. LEVEL 5 45' - 7 7/16" T.O.S.F. LEVEL 6 55' - 11 5/32" T.O.S.F. LEVEL - Roof 66' - 8 5/8" T.O.C. LEVEL 2_229' 229' - 0" T.O.C. LEVEL 2_223.5' 223' - 6"
Bing Li | libing19910127@gmail.com 4
PODIUM FLOOR PLAN (TYPICAL FLOOR SIMILAR)
1" = 20'-0" 1 LEVEL 3 OVERALL FLOOR PLAN 1" = 20'-0" 1 LEVEL 2 OVERALL FLOOR PLAN
SUBSTRUCTURE FLOOR PLAN
CROWTHER AVENUE 22 A922.5 7.83 T.O.C. LEVEL 2_228.5' 228' - 6" T.O.C. LEVEL 3 240' - 0" T.O.S.F. LEVEL 4 35' - 3 23/32" T.O.S.F. LEVEL 5 45' - 7 7/16" T.O.S.F. LEVEL 6 55' - 11 5/32" T.O.S.F. LEVEL - Roof 66' - 8 5/8" T.O.C. LEVEL 2_222' 222' - 0" T.O.C. LEVEL 2_223.5' 223' - 6" T.O.C. LEVEL 2_228.5' 228' - 6" T.O.C. LEVEL 3 240' - 0" T.O.S.F. LEVEL 4 35' - 3 23/32" T.O.S.F. LEVEL 5 45' - 7 7/16" T.O.S.F. LEVEL 6 55' - 11 5/32" T.O.S.F. LEVEL - Roof 66' - 8 5/8" T.O.C. LEVEL 2_222' 222' - 0" T.O.C. LEVEL 2_223.5' 223' - 6"

FIRMIN COURT

The Project consists of 63 affordable housing units plus a property manager unit for a total of 64 residential units including 28 studios, 17 one-bedroom, 15 two-bedroom, and four three-bedroom units in addition to a community room featuring a fully equipped kitchen and outdoor landscaped areas for the benefit of its residents. The Project will house 45 permanent supportive housing units with on-site counseling services.

The Spanish Colonial vernacular embraced by the proposed design features white stucco walls with color accents at recessed planes, trim bands, and overhanging roof eaves, barrel tile roof, wrought iron railing, header and sill trim to articulate window and door openings, and colorful ceramic tile accents.

Bing Li | libing19910127@gmail.com 6
7 FIRMIN COURT FIRMIN STREET OPEN TO BELOW PSH SUPPORTIVE SERVICE SERV. AREA 2 SERV. AREA 1 CONF. RM. KIT. COMMUNITY A1.1 ROOM T/R ST 1 S1 RR 1 RR 2 LEASING OFFICE IDF S1.1 S2 S3 45'-6" 100' MAX TO PED. ENTRANCE BUSINESS CENTER S1 S1 A1 S1 S1 LAU ELEVATOR RM STORAGE MAIL BOXES MAINTAIN 5' EGRESS PATH A2 MAIL ROOM A B C D 1 2 3 4 B.1 C.1 1.1 5 SHORT TERM BIKES 600 SF 18818 Teller Avenue Suite 260 Irvine, CA 92612 949-250-4680 FIRMIN COURT JOB NO. 1410.002 06-04-2018 DATE 2ND FLOOR PLAN (UPPER GROUND FLOOR) A2.2 0 16 8 UNIT MIX: STUDIO : 8 DU 1BR : 3 DU TOTAL: 11 DU B-B A3.2 A-A A3.1 COMMUNITY RM COMMON OPEN SPACE 726 SF FIRMIN STREET ST 1 COURTYARD COMMON OPEN SPACE 2,291 SF A1.2 A1.3 S2.1 B3 ST 2 S1 S1.2 A1 B1 B2 S2 REFER TO L1.03 FOR LANDSCAPE INFO. 18818 Teller Avenue Suite 260 Irvine, CA 92612 949-250-4680 FIRMIN COURT JOB NO. 1410.002 06-04-2018 DATE 3RD FLOOR PLAN (PODIUM) A2.3 0 16 8 UNIT MIX: STUDIO : 4 DU 1BR : 3 DU 2BR : 3 DU TOTAL: 10 DU B-B A3.2 A-A A3.1
2ND FLOOR PLAN
PODIUM FLOOR PLAN (TYPICAL FLOOR SIMILAR)
Bing Li | libing19910127@gmail.com 8 PL COMMUNITY ROOM PL UNITS MAIL ROOM AVG. GRADE PLANE 01 FLOOR 11'-6" 11'-6" 9'-1" 9'-1" 9'-1" 9'-1" 9'-1" 02 FLOOR 03 FLOOR 04 FLOOR 05 FLOOR 06 FLOOR 07 FLOOR FIRMIN STREET 72'-9" TO TOP OF ROOF SHEATHING EL. 85' MAX. TO TOP OF ROOF SHEATHING EL. + 427.68 + 418 AT LOW POINT 71'-4" TO TOP HABITABLE FLOOR 75' MAX (CBC 2016, SEC.403.1) PM OFFICE UNITS UNITS A-A 0 8 BUILDING WEST ELEVATION BUILDING SECTION

T.O.ROOF JOIST

T.O.PLATE

T.O.SUBFLOOR

T.O.PLATE

T.O.SUBFLOOR T.O.PLATE

T.O.SUBFLOOR

T.O.PLATE

T.O.SUBFLOOR T.O.PLATE

T.O.SLAB

T.O.SLAB

T.O.SLAB

9 FIRMIN COURT
1'-1"
HEEL HT.
1'-4"

8-PLEX STACKED FLATS

Bing Li | libing19910127@gmail.com 10
11 VALENCIA 8-PLEX
Bing Li | libing19910127@gmail.com 12
13 Valencia 8-Plex C5d : 8-Plex Stacked Flats X-XX SHEET 05.01.21 C5d : 8-Plex COUNTY of LOS ANGELES, CALIFORNIA PLAN 1 - FLOOR AREA FIRST FLOOR FLOOR PLANS SECOND FLOOR THIRD FLOOR PLAN 1 FIRST FLOOR SECOND FLOOR THIRD FLOOR TOTAL COVERED PORCH COVERED PATIO COVERED DECK GARAGE X,XXX S.F. X,XXX S.F. X,XXX S.F. X,XXX S.F. XXX S.F. XXX S.F. XXX S.F. XXX S.F. 25124 SPRINGFIELD CT, SUITE 300 VALENCIA, CALIFORNIA 91355 (661) 255-4000 0 4 8 16 SCALE: 1 4"=1'-0" OF XX SHEETS 3BED / 3 BATH 2-CAR GARAGE SHEET CG-8 of CALIFORNIA PLAN 5 PLAN 6 ELEV STAIR PLAN 3 PLAN 4 9'-1" 9'-1" T.O. PLATE T.O. SUBFLR T.O. PLATE T.O. SUBFLR T.O. PLATE ±36'-9" 9'-1" CL SECTION-1 FIRST FLOOR SECTION 39 991 35 B B F N D 1.Front A C N A D B B B B B D D A BUILDING SECTION BUILDING ELEVATION PLAN 1 - FLOOR AREA FIRST FLOOR FLOOR PLANS SECOND FLOOR PLAN 1 FIRST FLOOR SECOND FLOOR THIRD FLOOR TOTAL COVERED PORCH COVERED PATIO COVERED DECK GARAGE X,XXX S.F. X,XXX S.F. X,XXX S.F. X,XXX S.F. XXX S.F. XXX S.F. XXX S.F. XXX S.F. 3BED / 3 BATH / 2-CAR GARAGE A- Standing seam metal B- Ext. cement plaster C- Burnished CMU Block D- Painted horizontal lap siding F- Roll Up Garage Door N- Metal Railing 3 65 " B N C MODERN FARMHOUSE ELEVATIONS B B D A
Bing Li | libing19910127@gmail.com 14 FIRST FLOOR FLOOR PLANS SECOND FLOOR THIRD FLOOR PLAN 1 116'-9 1/2" 112'-9" 63'-5" UP UP ACCESSIBLE P.O.T. AREA OF 20'-0" 20'-0" 7'-0" IN HEIGHT. TO WATER HEATERS, WASHERS AND DRYERS, SINKS, AND FURNACES SHALL INTRUDE INTO THESE DESIGNATED PARKING AREAS. THE MEASUREMENT 2-CAR GARAGE 2-CAR GARAGE UNOBSTRUCTED GARAGE AREA OF 10'-0" X 20'-0" 7'-0" "NO AFFIXED OBSTRUCTIONS SUCH AS, BUT NOT LIMITED SINKS, AND FURNACES SHALL INTRUDE INTO THESE OF THE INTERIOR WALLS UNOBSTRUCTED GARAGE AREA OF 10'-0" 20'-0" 7'-0" "NO AFFIXED OBSTRUCTIONS SUCH AS, BUT NOT LIMITED SINKS, AND FURNACES SHALL INTRUDE INTO THESE OF THE INTERIOR WALLS TANDEM 2-CAR GARAGE 36' X 8'-6" ACCESSIBLE 1-CAR GARAGE 18' X 8'-6" TANDEM 2-CAR GARAGE 36' X 8'-6" TANDEM 2-CAR GARAGE 36' X 8'-6" 1-CAR GARAGE 18' X 8'-6" 1-CAR GARAGE 18' X 8'-6" UNOBSTRUCTED GARAGE AREA OF 10'-0" X 20'-0" 8'-2" 8'-0" 18'-0". TO WATER HEATERS, WASHERS AND DRYERS, AREAS. THE MEASUREMENT SUPPORT." UTILITY WH VARIES REFER TO GRADING PLAN 5'-10" 5'-5 1/2" WH WH WH WH WH WH WH PLAN 1-1 PLAN 1-2 PLAN 2 PLAN 5 PLAN 6 PLAN 4 PLAN 3 PLAN 4.1 ELEV. 1 CG7 1 CG7 4'-0" 63'-8" PLAN 3 PLAN 5 PLAN 4 PLAN 4.1 PLAN 1 PLAN 2 PLAN 5 UP DN STORAGE/ BIKES DN UP UTL. COMMON CORRIDOR 2 CG7 1 CG6 CG6 MACHINE RM. DN ELEV. DN DN DN STO. 12 COMMON CORRIDOR STORAGE/ BIKES UTL. UTL. 18'-6" ELEV. PLAN 4.1 PLAN 4 PLAN 6 PLAN 1 FIRST FLOOR FLOOR PLANS SECOND FLOOR THIRD FLOOR 116'-9 1/2" 112'-9" 63'-5" UP UP ACCESSIBLE P.O.T. AREA OF 20'-0" X 20'-0" & 7'-0" IN HEIGHT. TO WATER HEATERS, WASHERS AND DRYERS, SINKS, AND FURNACES SHALL INTRUDE INTO THESE DESIGNATED PARKING AREAS. THE MEASUREMENT 2-CAR GARAGE 2-CAR GARAGE UNOBSTRUCTED GARAGE "NO AFFIXED OBSTRUCTIONS SUCH AS, BUT NOT LIMITED WASHERS AND DRYERS, SINKS, AND FURNACES SHALL INTRUDE INTO THESE SHALL BE FROM THE FACE OF THE INTERIOR WALLS UNOBSTRUCTED GARAGE "NO AFFIXED OBSTRUCTIONS SUCH AS, BUT NOT LIMITED WASHERS AND DRYERS, SINKS, AND FURNACES SHALL INTRUDE INTO THESE SHALL BE FROM THE FACE OF THE INTERIOR WALLS TANDEM 2-CAR GARAGE 36' 8'-6" ACCESSIBLE 1-CAR GARAGE 18' X 8'-6" TANDEM 2-CAR GARAGE 36' 8'-6" TANDEM 2-CAR GARAGE 36' 8'-6" 1-CAR GARAGE 18' 8'-6" 1-CAR GARAGE 18' X 8'-6" UNOBSTRUCTED GARAGE 8'-0" 18'-0". SUCH AS, BUT NOT LIMITED TO WATER HEATERS, WASHERS AND DRYERS, DESIGNATED PARKING AREAS. THE MEASUREMENT SUPPORT." UTILITY WH VARIES REFER TO GRADING PLAN 5'-10" 5'-5 1/2" WH WH WH WH WH WH WH PLAN 1-1 PLAN 1-2 PLAN 2 PLAN 5 PLAN 6 PLAN 4 PLAN 3 PLAN 4.1 ELEV. CG7 CG7 4'-0" 63'-8" PLAN 3 PLAN 5 PLAN 4 PLAN 4.1 PLAN 1 PLAN 2 PLAN 5 UP DN STORAGE/ BIKES DN UP UTL. COMMON CORRIDOR 2 CG7 CG6 2 CG6 MACHINE RM. DN ELEV. DN DN DN STO. 12 COMMON CORRIDOR STORAGE/ BIKES UTL. UTL. 18'-6" ELEV. 1 CG7 1 PLAN 4.1 PLAN 4 PLAN 6 PLAN 1 GROUND FLOOR FLOOR THIRD FLOOR MODERN FARMHOUSE BUILDING PLANS 8 FLOOR PLANS SECOND FLOOR THIRD FLOOR PLAN 1 116'-9 1/2" 112'-9" UP UP TRASH RECYCLE ACCESSIBLE P.O.T. INDICATES MINIMUM CLEAR UNOBSTRUCTED GARAGE "NO AFFIXED OBSTRUCTIONS SUCH AS, BUT NOT LIMITED TO WATER HEATERS, WASHERS AND DRYERS, SINKS, SHALL BE FROM THE FACE OF THE INTERIOR WALLS NOT INCLUDING STRUCTURE SUPPORT." 2-CAR GARAGE 2-CAR GARAGE INDICATES MINIMUM CLEAR IN HEIGHT. SUCH AS, BUT NOT LIMITED TO WATER HEATERS, WASHERS AND DRYERS, AREAS. THE MEASUREMENT SUPPORT." INDICATES MINIMUM CLEAR IN HEIGHT. SUCH AS, BUT NOT LIMITED TO WATER HEATERS, WASHERS AND DRYERS, AREAS. THE MEASUREMENT SUPPORT." TANDEM 2-CAR GARAGE ACCESSIBLE 1-CAR GARAGE TANDEM 2-CAR GARAGE TANDEM 2-CAR GARAGE 1-CAR GARAGE 1-CAR GARAGE INDICATES MINIMUM CLEAR IN HEIGHT. MINIMUM REQUIRED LOADING ZONE SUCH AS, BUT NOT LIMITED SINKS, AND FURNACES SHALL INTRUDE INTO THESE OF THE INTERIOR WALLS UTILITY WH TO GRADING PLAN 5'-10" 5'-5 1/2" WH WH WH WH WH WH WH PLAN 1-1 PLAN PLAN 2 PLAN 5 PLAN 6 PLAN 4 PLAN 3 PLAN 4.1 ELEV. CG7 CG6 2 CG6 4'-0" 63'-8" PLAN 3 PLAN 5 PLAN 4 PLAN 4.1 PLAN 1 PLAN 2 PLAN 5 UP DN STORAGE/ BIKES UP DN UP UTL. COMMON CORRIDOR 2 CG6 MACHINE RM. DN ELEV. CG5 1 DN DN 18'-6" CG7 PLAN 4.1 PLAN 4 FLOOR PLANS SECOND FLOOR THIRD FLOOR PLAN 1 116'-9 1/2" 112'-9" UP UP ACCESSIBLE P.O.T. TRASH RECYCLE "NO AFFIXED OBSTRUCTIONS SUCH AS, BUT NOT LIMITED SHALL BE FROM THE FACE OF THE INTERIOR WALLS NOT INCLUDING STRUCTURE SUPPORT." 2-CAR GARAGE 2-CAR GARAGE IN HEIGHT. SUCH AS, BUT NOT LIMITED TO WATER HEATERS, WASHERS AND DRYERS, DESIGNATED PARKING AREAS. THE MEASUREMENT NOT INCLUDING STRUCTURE SUPPORT." IN HEIGHT. SUCH AS, BUT NOT LIMITED TO WATER HEATERS, WASHERS AND DRYERS, DESIGNATED PARKING AREAS. THE MEASUREMENT NOT INCLUDING STRUCTURE SUPPORT." TANDEM 2-CAR GARAGE ACCESSIBLE 1-CAR GARAGE TANDEM 2-CAR GARAGE TANDEM 2-CAR GARAGE 1-CAR GARAGE 1-CAR IN HEIGHT. MINIMUM "NO AFFIXED OBSTRUCTIONS SUCH AS, BUT NOT LIMITED WASHERS AND DRYERS, SINKS, AND FURNACES SHALL INTRUDE INTO THESE SHALL BE FROM THE FACE OF THE INTERIOR WALLS UTILITY WH VARIES REFER TO GRADING PLAN 5'-10" 5'-5 1/2" WH WH WH WH WH WH WH PLAN 1-1 PLAN PLAN 2 PLAN 5 PLAN 6 PLAN 4 PLAN 3 PLAN 4.1 ELEV. CG7 1 CG6 CG6 4'-0" 63'-8" PLAN 3 PLAN 5 PLAN 4 PLAN 4.1 PLAN 1 PLAN 2 PLAN 5 UP DN STORAGE/ BIKES UP DN UP UTL. COMMON CORRIDOR 2 CG6 MACHINE RM. DN ELEV. CG5 1 DN DN 18'-6" CG7 PLAN 4.1 PLAN 4 GROUND FLOOR SECOND FLOOR THIRD FLOOR MODERN FARMHOUSE BUILDING PLANS 8 C5d : 8-Plex Stacked Flats X-XX SHEET 05.01.21 C5d : 8-Plex COUNTY of LOS ANGELES, CALIFORNIA PLAN 1 - FLOOR AREA FIRST FLOOR FLOOR PLANS SECOND FLOOR PLAN 1 FIRST FLOOR SECOND FLOOR THIRD FLOOR TOTAL COVERED PORCH COVERED PATIO COVERED DECK GARAGE X,XXX S.F. X,XXX S.F. X,XXX S.F. X,XXX S.F. XXX S.F. XXX S.F. XXX S.F. XXX S.F. 0 4 8 16 SCALE: 1 4"=1'-0" OF XX SHEETS 3BED / 3 BATH / 2-CAR GARAGE 06.02.21 SHEET CG-2 COUNTY of LOS ANGELES, CALIFORNIA 116'-9 1/2" 112'-9" 63'-5" UP ACCESSIBLE P.O.T. 20'-0" & 7'-0" IN HEIGHT. HEATERS, WASHERS AND DRYERS, SINKS, SHALL INTRUDE INTO THESE PARKING AREAS. THE MEASUREMENT 2-CAR GARAGE 2-CAR GARAGE UNOBSTRUCTED GARAGE AREA OF 10'-0" X 20'-0" & 7'-0" "NO AFFIXED OBSTRUCTIONS SUCH AS, BUT NOT LIMITED WASHERS AND DRYERS, SINKS, AND FURNACES SHALL INTRUDE INTO THESE OF THE INTERIOR WALLS UNOBSTRUCTED GARAGE AREA OF 10'-0" X 20'-0" & 7'-0" "NO AFFIXED OBSTRUCTIONS SUCH AS, BUT NOT LIMITED WASHERS AND DRYERS, SINKS, AND FURNACES SHALL INTRUDE INTO THESE OF THE INTERIOR WALLS TANDEM 2-CAR GARAGE 36' 8'-6" ACCESSIBLE 1-CAR GARAGE 18' X 8'-6" TANDEM 2-CAR GARAGE 36' 8'-6" TANDEM 2-CAR GARAGE 36' 8'-6" 1-CAR GARAGE 18' 8'-6" 1-CAR GARAGE 18' X 8'-6" UNOBSTRUCTED GARAGE AREA OF 10'-0" X 20'-0" & 8'-2" 8'-0" 18'-0". SUCH AS, BUT NOT LIMITED TO WATER HEATERS, WASHERS AND DRYERS, AREAS. THE MEASUREMENT SUPPORT." VARIES REFER TO GRADING PLAN 5'-5 1/2" WH WH WH WH WH WH WH PLAN 1-1 PLAN 1-2 PLAN 2 PLAN 5 PLAN 6 PLAN 4 PLAN 3 PLAN 4.1 ELEV. 2 CG7 PLAN 3 PLAN 5 PLAN 2 PLAN 5 2 CG7 DN DN DN DN STO. 12 COMMON CORRIDOR STORAGE/ BIKES UTL. UTL. 18'-6" ELEV. CG5 2 1 PLAN 4.1 PLAN 4 PLAN 6 PLAN 1 X-XX SHEET 05.01.21 C5d : 8-Plex COUNTY of LOS ANGELES, CALIFORNIA FLOOR FIRST FLOOR PLANS SECOND FLOOR FIRST FLOOR SECOND FLOOR THIRD FLOOR TOTAL PATIO X,XXX S.F. X,XXX S.F. X,XXX S.F. X,XXX S.F. XXX S.F. XXX S.F. XXX S.F. XXX S.F. 0 8 16 32 SCALE: 1 8"=1'-0" OF XX SHEETS 3BED 3 BATH 2-CAR GARAGE 116'-9 1/2" 112'-9" 63'-5" UP ACCESSIBLE P.O.T. 20'-0" & 7'-0" IN HEIGHT. HEATERS, WASHERS AND DRYERS, SINKS, SHALL INTRUDE INTO THESE 2-CAR GARAGE 2-CAR GARAGE UNOBSTRUCTED GARAGE "NO AFFIXED OBSTRUCTIONS WASHERS AND DRYERS, SINKS, AND FURNACES SHALL INTRUDE INTO THESE SHALL BE FROM THE FACE OF THE INTERIOR WALLS UNOBSTRUCTED GARAGE "NO AFFIXED OBSTRUCTIONS WASHERS AND DRYERS, SINKS, AND FURNACES SHALL INTRUDE INTO THESE SHALL BE FROM THE FACE OF THE INTERIOR WALLS TANDEM 2-CAR GARAGE ACCESSIBLE 1-CAR GARAGE TANDEM 2-CAR GARAGE TANDEM 2-CAR GARAGE 1-CAR GARAGE 1-CAR GARAGE UNOBSTRUCTED GARAGE 8'-0" X 18'-0". SUCH AS, BUT NOT LIMITED TO WATER HEATERS, WASHERS AND DRYERS, DESIGNATED PARKING AREAS. THE MEASUREMENT NOT INCLUDING STRUCTURE SUPPORT." VARIES REFER TO GRADING PLAN WH WH WH WH WH WH WH PLAN 1-1 PLAN 1-2 PLAN 2 PLAN 5 PLAN 6 PLAN 4 PLAN 3 PLAN 4.1 ELEV. CG5 1 2 CG7 PLAN 3 PLAN 5 PLAN 2 PLAN 5 CG7 DN DN DN DN STO. 12 COMMON CORRIDOR STORAGE/ BIKES UTL. UTL. 18'-6" ELEV. 2 CG7 1 CG7 PLAN 4.1 PLAN 4 PLAN 6 PLAN 1 FLOOR THIRD FLOOR
8
MODERN FARMHOUSE BUILDING PLANS
15 Selected Works

GARDEN GROVE

Thid project is located at Garden Grove boulevard and it is an affordable housing project. The community has been designed with the focus of having a prominent street presence on south Garden Grove boulevard with ground floor entrances to the retail, leasing area, and east courtyard, and with residential unit windows, patios, and stoop entrances along an activated street frontage. It includes 90 on-site parking spaces which are housed on the ground floor and also on-grade parking.

Bing Li | libing19910127@gmail.com 16
17 GARDEN GROVE
Bing Li | libing19910127@gmail.com 18
19 GARDEN GROVE
Bing Li | libing19910127@gmail.com 20 GARDEN GROVE B C B B A A A C A A A TRANS. B C 15'-6" C A A LAUNDRY C B A A C A A A B 18818 Teller Avenue Suite 260 Irvine, CA 92612 949-250-4680
GARDEN GROVE YIELD STUDY
JOB NO. 000.000 02-24-2020 DATE
META HOUSING
0 80 40
TYPICAL FLOOR
BROOKHURST WAY
GARDEN GROVE BOULEVARD 2ND FLOOR PLAN 1ST FLOOR PLAN

Turn static files into dynamic content formats.

Create a flipbook
Issuu converts static files into: digital portfolios, online yearbooks, online catalogs, digital photo albums and more. Sign up and create your flipbook.