Bing Li Work Samples

Page 1

Email: libing19910127@gmail.com

Phone: 213-880-8783

portfolio Bing Li

Adobe Illustrator

EXPERIENCE AT DAHLIN (2016-2023):

Metro at Melrose Mixed-use project:

Placentia, CA || 2,000 sf retail, 190 Units || Work in Predesign, DD-CD phase

- Work on and win the RFP of this project.

- Deliver entitlement resubmittal.

- Work on DD and CD phase, design all the unit plans and build Revit model with team.

- Research code and work on code analysis.

Otay Ranch Mixed-use project:

Chula Vista, CA || 10,000 sf retail, 114 Units || Work in predesign-SD-DD-CD phase

- Work on pre-design package, deliver design options to communicate with client.

- Deliver SD package, work on sketchup models, colored elevations, plans and sections.

- Work in DD and CD phase, work on all aspects of drawings.

Firmin Court Affordable Housing: LEED GOLD PROJECT

EDUCATION:

Master in Architecture University of SouthernCalifornia

Bachelor in Architecture Sichuan University in China

Los Angeles, CA || 64 Units || Work in Predesign-SD-DD-CD-CA phase

- In predesign phase, deliver a feasibility set and use model and drawings to convey design to client.

- Deliver entitlement package.

- Coordinate design with consultans and work closely with CASp consultants to address accessibility features in units and common areas.

- Work on code analysis and ensure building complies with code.

- Address RFI, Submittals and ASIs. Site visit to ensure project built per design intent.

Desert Marketplace Apartment: Las Vegas, NA || 320 Units || Work in SD-DD-CD phase

- Update color elevations, plans, sections and deliver SD package.

- Work on all aspects of building. Develop drawings and details for the building.

- Coordinate design with consultants and give instructions to designers/drafters.

- Work on code analysis and ensure building complies with code.

Alvarado Senior Housing: Fallbrook, CA || 54 Units || Work in SD-DD-CD phase

-Senior housing, deliver SD package and present to owner. -Coordinate with consultants to execute design intent.

-Deliver DD, CD submittals.

EXPERIENCE AT JAMISON PROPERTIES (2015-2016):

- Work with attorneys to figure out zoning constraints for the site.

- Work on feasibility study and entitlement.

- Work With affordable housing bonus, and find out the best combination for project.

X-XX SHEET 05.01.21 C5d 8-Plex COUNTY LOS ANGELES, CALIFORNIA PLAN FLOOR AREA FIRST FLOOR FLOOR PLANS SECOND FLOOR THIRD FLOOR PLAN 1 FIRST FLOOR SECOND FLOOR THIRD FLOOR TOTAL COVERED PORCH COVERED PATIO COVERED DECK GARAGE X,XXX S.F. X,XXX S.F. X,XXX S.F. X,XXX S.F. XXX S.F. XXX S.F. XXX S.F. XXX S.F. 25124 SPRINGFIELD SUITE 300 VALENCIA, CALIFORNIA 91355 (661) 255-4000 16 SCALE: "=1'-0" SHEETS 06.02.21 CG-7 LOS Standing seam metal Ext. cement plaster Burnished CMU Block Painted horizontal lap siding Roll Up Garage Door Metal Railing C5d : 8-Plex Stacked FlatsB D 2.Right 1.Left Roof Plan MECH. EQUIPMENT D Front Left Right Rear MODERN FARMHOUSE ELEVATIONS A CONTENT 1. 2. 3. 4. CROWTHER AVENUE FIRMIN COURT VALENCIA 8-PLEX GARDEN GROVE Bing LI 14 silverwood, Irvine, CA92604 || 213-880-8783 || libing19910127@gmail.com SKILLS:
EXPERIENCE: Autocad Sketchup Revit Photoshop Indesign 3+ EXPERIENCE: Vray Render Bluebeam Microsoft Office 1+EXPERIENCE: Rhino
6+
HOBBIES/
AWARD: HONORABLE MENTION 2016, ULI
ACTIVITIES: SNOWBOARD CYCLING
LEED GOLD PROJECT

CROWTHER AVENUE

Metro at Melrose is an RFP-winning, 189-unit mixed-income, affordable housing project, located south of the future Metrolink station platform, and steps away from the City of Placentia’s bustling Old Town. It is located in the City’s Citrus Packing House District and consists of a four-story, wood framed building over two levels of parking lined with community-serving retail, leasing and amenities, as well as dwelling units. The community has been designed with the focus of having a prominent street presence on West Crowther Avenue, with ground floor entrances to the retail, leasing area, and west courtyard, and with residential unit windows, patios, and stoop entrances along an activated street frontage. Metro includes 272 on-site parking spaces which are housed within two structured parking levels.

1 CROWTHER AVENUE
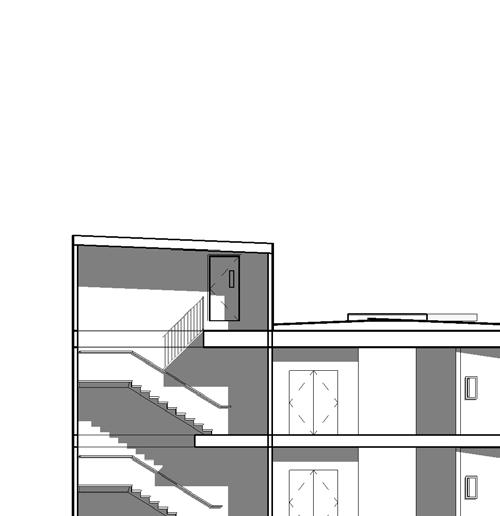
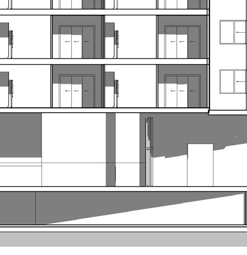
Bing Li | libing19910127@gmail.com 2 3 CROWTHER AVENUE T.O.C. LEVEL 215'T.O.C. LEVEL 2_228.5' 228'T.O.C. LEVEL 240'T.O.S.F. LEVEL 35' - 3 23/32" T.O.S.F. LEVEL 45' - 7 7/16" T.O.S.F. LEVEL 55' - 11 5/32" T.O.S.F. LEVEL - Roof 66' - 8 5/8" T.O.C. LEVEL 2_229' 229'T.O.C. LEVEL 2_223.5' 223'1/16" = 1'-0" 1 WEST-EAST SECTION BUILDING SECTION BUILDING ELEVATION
Bing Li | libing19910127@gmail.com 4 2. FRAMING SECTIONS ONLY. 3. STRUCTURAL PRECEDENCE SIZES, WELL FOUNDATIONS. 4. CONTRACTOR COORDINATION STRUCTURAL 5. NO CONTRACTOR'S WITH OTHER 6. REFER AND 7. REFER OF HVAC (EQUIPMENT SECTIONS 8. REFER OF ALL 9. VERIFY FAN ELECTRICAL 10. FRAMING BACKING ACCESSORIES, SUPPLIES 11. SEE DIMENSIONS, DOWNSPOUT 12. PROVIDE 13. FORINSULATIONREQUIREMENTSSEEENERGY COMPLIANCESHEETS. 14. FORSOFFITORDROPPEDCEILINGHEIGHTS,SEE REFLECTEDCEILINGPLANSONA3SERIESSHEETS. T.O.C. LEVEL 215'T.O.C. LEVEL 2_228.5' 228'T.O.C. LEVEL 240'T.O.S.F. LEVEL 35' - 23/32" T.O.S.F. LEVEL 45' - 7/16" T.O.S.F. LEVEL 55' - 11 5/32" T.O.S.F. LEVEL - Roof 66' - 5/8" T.O.C. LEVEL 2_223.5' 223'A931.3 13 A931.3 11 36 A942.1 24 T.O.C. LEVEL 215' - 6" T.O.C. LEVEL 2_228.5' 228' - 6" T.O.C. LEVEL 240' - 0" T.O.S.F. LEVEL 35' - 23/32" T.O.S.F. LEVEL 45' - 7/16" T.O.S.F. LEVEL 55' - 11 5/32" T.O.S.F. LEVEL - Roof 66' - 5/8" T.O.C. LEVEL 2_223.5' 223' - 6" 3 A622 12 A931.3 7.80 24 A922.5 3 A911.1 T.O.C. LEVEL 215'T.O.C. LEVEL 2_228.5' 228'T.O.C. LEVEL 240'T.O.S.F. LEVEL 35' - 23/32" T.O.S.F. LEVEL 45' - 7/16" T.O.S.F. LEVEL 55' - 11 5/32" T.O.S.F. LEVEL - Roof 66' - 5/8" T.O.C. LEVEL 2_223.5' 223'GARAGE LEVEL 1 GARAGE LEVEL 2 UNIT UNIT UNIT UNIT A931.3 13 A931.3 11 32.45 32.46 8.14 16 A942.1 26 3.22 3.20 7' -0" MIN. CLEAR REQURIED OVER PARKING SPACES (CBC 406.2.2) 8' -2" MIN. CLEAR REQURIED OVER ROUTE TO ACCESSIBLE PARKING SPACES (CBC 11B-502.5) 1 08 1 05 1 / 2 T.O.C. LEVEL 215' - 6" T.O.C. LEVEL 2_228.5' 228' - 6" T.O.C. LEVEL 240' - 0" T.O.S.F. LEVEL 35' - 23/32" T.O.S.F. LEVEL 45' - 7/16" T.O.S.F. LEVEL 55' - 11 5/32" T.O.S.F. LEVEL - Roof 66' - 5/8" T.O.C. LEVEL 2_223.5' 223' - 6" 1 A622 12 A931.3 8.14 Key Value 3.20CONCRETE 3.22CONCRETE 7.80COPING 8.14OVERHEAD 32.45BOLLARD 32.46WHEEL 5 CROWTHER AVENUE
SUBSTRUCTURE FLOOR PLAN 21. PER CBC 1209.2.2 WALLS AND PARTITIONS WITHIN 2 FEET OF SERVICE SINKS, URINALS AND WATER CLOSETS SHALL HAVE A SMOOTH, HARD, NONABSORBENT SURFACE, TO HEIGHT OF NOT LESS THAN FEET ABOVE THE FLOOR, AND EXCEPT FOR STRUCTURAL ELEMENTS, THE MATERIALS USED IN SUCH WALLS SHALL BE OF TYPE THAT IS NOT ADVERSELY AFFECTED BY MOISTURE. 22. REFER TO INTERIOR DESGINER DRAWINGS FOR FINISHES. 23. REFER TO INTERIOR DESIGNER DRAWINGS FOR APPLIANCE SPECS. 24. PARKING ID, SEE G011. 1. PROTECTION OF JOINTS AND PENETRATIONS IN FIRE-RESISTIVE ASSEMBLIES SHALL NOT BE CONCEALED FROM VIEW UNTIL INSPECTED AND APPROVED. CBC SECTION 110.3.6. AND 110.3.7. 2. FOR FIRE RATED WALL LOCATIONS, SEE CODE G111 -G127 SHEETS. FOR WALL TAGS SEE SEGMENTED BUILDING PLANS, A210 SERIES. 3. FIRE WALLS, FIRE BARRIERS, ETC.. SHALL BE LABELED IN AN ACCESSIBLE AREA AT 30'-0" O.C. STATING "FIRE AND/OR SMOKE BARRIER -PROTECT ALL OPENINGS" FIRE PROTECTION NOTES WALL FRAMING, SEE PARTITION SCHEDULE SHEET G300 SERIES. SEMI RECESSED FIRE EXTINGUISHER CABINET WITH FIRE EXTINGUISHER. SEE DETAIL STRUCTURAL COLUMNS, S.S.D. WALL TYPE -SEE G300 WINDOW TYPE -SEE WINDOW SCHEDULE A700 SERIES SHEETS DOOR TYPE -SEE DOOR SCHEDULE A700 SERIES SHEETS ROOM NUMBER FE 101 FIRE SPRINKLER SYSTEM STAND PIPE, S.P.D. SPOT ELEVATION xx.x % SLOPE DIRECTION CONCRETE WALL, S.S.D. FLOOR/DECK DRAIN ROOF DRAIN S.P.D. SCUPPER DOWNSPOUT D.S. PTAC UNIT 101 1W4C MOP SINK, S.P.D. UTILITY SINK, S.P.D. TRUNCATED DOMES BUILDING PLAN SYMBOLS JOB NO. DRAWN CHECK SHEET SEAL SIGNATURE A218 1236-008 HH, BL, BM, SS BM, SS THIRD FLOOR OVERALL PLAN Copy 1 Metro at Melrose 101 & 105 W. CROWTHER AVENUE, PLACENTIA, CA 92870 2ND BUILDING DEPARTMENT SUBMITTAL 05/03/2022 1" = 20'-0" 1 LEVEL 3 OVERALL FLOOR PLAN N REVISIONS 1. ALL EXTERIOR DIMENSIONS TO FACE OF STUD & FACE OF FOUNDATION (U.O.N.). GRIDLINES ARE TO THE FACE OF STUD AT OUTSIDE EXTERIOR WALLS AND CENTERED BETWEEN UNITS AS DIMENSIONED ON PLANS. 2. ALL INTERIOR DIMENSIONS TO FACE OF STUD (U.O.N.) 3. ALL DIMENSIONS AT WINDOWS DOORS ARE TO THE CENTERLINE (U.O.N.) 4. FOR STUD SIZES AND MATERIAL SEE ALL A210 SERIES PLANS FOR WALL TAGS 5. ALL SHEATHING SURFACE PLANES TO BE CONTINUOUS. ALL GYPSUM BOARD PARTITIONS SHALL BE TAPED AND SANDED SMOOTH WITH NO VISIBLE JOINTS. 6. ALL INTERIOR DOOR JAMBS ON HINGE SIDE SHALL BE 4" MINIMUM AND ALL EXTERIOR DOOR JAMBS ON HINGE SIDE SHALL BE 6" MINIMUM U.O.N. FOR NOTES AND ADDITIONAL INFORMATION SEE INDIVIDUAL UNIT FLOOR PLANS. 7. PROTECT ALL PARTY WALL GYP. BOARD FROM RAIN AND MOISTURE DURING CONSTRUCTION. 8. BEFORE SEALING AIR SPACE BETWEEN PARTY WALLS-GYP. BOARD SHALL BE WITHOUT ANY MOISTURE 9. SEE FIRE ANNUNCIATOR DRAWINGS FOR ALARM LOCATION AND HOOKUP (DEFERRED SUBMITTAL) 10. FOR CODE ANALYSIS AND FIRE RATED WALL ASSEMBLIES REFER TO G SERIES SHEETS. 11. STANDPIPE PROVIDED AT EACH STAIRWAY (DEFERRED SUBMITTAL). 12. SEE G140 & G150 SERIES SHEETS FOR ACCESSIBILITY REQUIREMENTS. 13. SEE SEGMENTED PLANS ON A210 SERIES SHEETS FOR ADDITIONAL INFORMATION, TYP. 14. SEE A220-A230 SERIES SHEETS FOR UNIT INFORMATION. 15. FOR EXTERIOR FINISH INFORMATION SEE A500 SERIES SHEETS 16. FOR UNIT PLAN REFLECTED CEILING PLAN INFORMATION SEE A220-A230 SERIES SHEETS. 17. FOR BUILDING PLAN REFLECTED CEILING PLAN INFORMATION SEE A300 SERIES SHEETS. 18. SEE A700 SERIES SHEETS FOR DOOR AND WINDOW INFORMATION. 19. FOR LOCATIONS OF INDIVIDUALLY ENCASED POST AND BEAMS, SEE G500 SHEET SERIES. 20. BALCONY WATERPROOF COATING -PLI-DEK. 21. PER CBC 1209.2.2 WALLS AND PARTITIONS WITHIN 2 FEET OF SERVICE SINKS, URINALS AND WATER CLOSETS SHALL HAVE SMOOTH, HARD, NONABSORBENT SURFACE, TO A HEIGHT OF NOT LESS THAN 4 FEET ABOVE THE FLOOR, AND EXCEPT FOR STRUCTURAL ELEMENTS, THE MATERIALS USED IN SUCH WALLS SHALL BE OF TYPE THAT IS NOT ADVERSELY AFFECTED BY MOISTURE. 22. REFER TO INTERIOR DESGINER DRAWINGS FOR FINISHES. 23. REFER TO INTERIOR DESIGNER DRAWINGS FOR APPLIANCE SPECS. 24. PARKING ID, SEE G011. BLDG. PLAN GENERAL NOTES 1. PROTECTION OF JOINTS AND PENETRATIONS IN FIRE-RESISTIVE ASSEMBLIES SHALL NOT BE CONCEALED FROM VIEW UNTIL INSPECTED AND APPROVED. CBC SECTION 110.3.6. AND 110.3.7. 2. FOR FIRE RATED WALL LOCATIONS, SEE CODE G111 -G127 SHEETS. FOR WALL TAGS SEE SEGMENTED BUILDING PLANS, A210 SERIES. 3. FIRE WALLS, FIRE BARRIERS, ETC.. SHALL BE LABELED IN AN ACCESSIBLE AREA AT 30'-0" O.C. STATING "FIRE AND/OR SMOKE BARRIER -PROTECT ALL OPENINGS" FIRE PROTECTION NOTES WALL FRAMING, SEE PARTITION SCHEDULE SHEET G300 SERIES. SEMI RECESSED FIRE EXTINGUISHER CABINET WITH FIRE EXTINGUISHER. SEE DETAIL STRUCTURAL COLUMNS, S.S.D. WALL TYPE -SEE G300 WINDOW TYPE -SEE WINDOW SCHEDULE A700 SERIES SHEETS DOOR TYPE -SEE DOOR SCHEDULE A700 SERIES SHEETS ROOM NUMBER FE 101 FIRE SPRINKLER SYSTEM STAND PIPE, S.P.D. SPOT ELEVATION xx.x % SLOPE DIRECTION CONCRETE WALL, S.S.D. FLOOR/DECK DRAIN ROOF DRAIN S.P.D. SCUPPER DOWNSPOUT D.S. PTAC UNIT 101 A xxx-xx 1W4C MOP SINK, S.P.D. UTILITY SINK, S.P.D. TRUNCATED DOMES BUILDING PLAN SYMBOLS JOB NO. DRAWN CHECK SEAL SIGNATURE 18818 Teller Avenue, Suite 260 Irvine, California 92612 949-250-4680 CLIENT 1236-008 HH, BL, BM, SS BM, SS SECOND FLOOR Metro at Melrose 101 & 105 W. CROWTHER AVENUE, PLACENTIA, CA 92870 2ND BUILDING DEPARTMENT SUBMITTAL 05/03/2022 USA PROPERTIES FUND 1" = 20'-0" 1 LEVEL 2 OVERALL FLOOR PLAN REVISIONS
PODIUM FLOOR PLAN (TYPICAL FLOOR SIMILAR)

FIRMIN COURT

LEED GOLD PROJECT

The Project consists of 63 affordable housing units plus a property manager unit for a total of 64 residential units including 28 studios, 17 one-bedroom, 15 two-bedroom, and four three-bedroom units in addition to a community room featuring a fully equipped kitchen and outdoor landscaped areas for the benefit of its residents. The Project will house 45 permanent supportive housing units with on-site counseling services.

The Spanish Colonial vernacular embraced by the proposed design features white stucco walls with color accents at recessed planes, trim bands, and overhanging roof eaves, barrel tile roof, wrought iron railing, header and sill trim to articulate window and door openings, and colorful ceramic tile accents.

Bing Li | libing19910127@gmail.com 6 7 FIRMIN COURT FIRMIN STREET OPEN TO BELOW PSH SUPPORTIVE SERVICE SERV. AREA 2 SERV. AREA CONF. RM. KIT. COMMUNITY A1.1 ROOM T/R ST 1 S1 RR 1 RR LEASING OFFICE IDF S1.1 S2 S3 45'-6" 100' MAX TO PED. ENTRANCE BUSINESS CENTER S1 S1 A1 S1 S1 LAU ELEVATOR RM STORAGE MAIL BOXES MAINTAIN EGRESS PATH A2 MAIL ROOM B C B.1 C.1 1.1 SHORT TERM BIKES 600 SF 18818 Teller Avenue Suite 260 Irvine, CA 92612 949-250-4680 FIRMIN COURT JOB NO. 1410.002 06-04-2018 DATE 2ND FLOOR PLAN (UPPER GROUND FLOOR) A2.2 16 UNIT MIX: STUDIO 8 DU 1BR 3 DU TOTAL: 11 DU B-B A3.2 A-A A3.1 COMMUNITY RM COMMON OPEN SPACE 726 SF FIRMIN STREET ST 1 COURTYARD COMMON OPEN SPACE 2,291 SF A1.2 A1.3 S2.1 B3 ST 2 S1 S1.2 A1 B1 B2 S2 REFER TO L1.03 FOR LANDSCAPE INFO. 18818 Teller Avenue Suite 260 Irvine, CA 92612 949-250-4680 FIRMIN COURT JOB NO. 1410.002 06-04-2018 DATE 3RD FLOOR PLAN (PODIUM) A2.3 16 UNIT MIX: STUDIO DU 1BR 3 DU 2BR 3 DU TOTAL: 10 DU B-B A3.2 A-A A3.1 PODIUM FLOOR PLAN (TYPICAL FLOOR SIMILAR)
2ND FLOOR PLAN

BUILDING WEST ELEVATION

BUILDING SECTION

Bing Li | libing19910127@gmail.com 8 9 FIRMIN COURT T.O.SLAB T.O.SLAB
T.O.SUBFLOOR T.O.PLATE T.O.SUBFLOOR T.O.PLATE T.O.SUBFLOOR T.O.PLATE T.O.SUBFLOOR T.O.PLATE T.O.PLATE T.O.ROOF JOIST 1'-1" 1'-4" HEEL HT. PL COMMUNITY ROOM PL UNITS MAIL ROOM AVG. GRADE PLANE 01 FLOOR 11'-6" 11'-6" 9'-1" 9'-1" 9'-1" 9'-1" 9'-1" 02 FLOOR 03 FLOOR 04 FLOOR 05 FLOOR 06 FLOOR 07 FLOOR FIRMIN STREET 72'-9" TO TOP OF ROOF SHEATHING EL. 85' MAX. TO TOP OF ROOF SHEATHING EL. 427.68 + 418 AT LOW POINT 71'-4" TO TOP HABITABLE FLOOR 75' MAX (CBC 2016, SEC.403.1) PM OFFICE UNITS UNITS A-A 32 16
T.O.SLAB

8-PLEX STACKED FLATS

Bing Li | libing19910127@gmail.com 10
11 VALENCIA 8-PLEX
Bing Li | libing19910127@gmail.com 13 12 Valencia 8-Plex C5d : 8-Plex Stacked Flats X-XX SHEET 05.01.21 C5d : 8-Plex COUNTY of LOS ANGELES, CALIFORNIA PLAN 1 FLOOR AREA FIRST FLOOR FLOOR PLANS SECOND FLOOR THIRD FLOOR PLAN 1 FIRST FLOOR SECOND FLOOR THIRD FLOOR TOTAL COVERED PORCH COVERED PATIO COVERED DECK GARAGE X,XXX S.F. X,XXX S.F. X,XXX S.F. X,XXX S.F. XXX S.F. XXX S.F. XXX S.F. XXX S.F. 25124 SPRINGFIELD CT, SUITE 300 VALENCIA, CALIFORNIA 91355 (661) 255-4000 0 4 16 SCALE: "=1'-0" XX SHEETS 3BED BATH 2-CAR GARAGE SHEET CG-8 CALIFORNIA PLAN 5 PLAN 6 ELEV STAIR PLAN 3 PLAN 4 T.O. PLATE T.O. SUBFLR T.O. PLATE T.O. SUBFLR T.O. PLATE CL SECTION-1 FIRST FLOOR SECTION-35 B B F N D 1.Front A C N A D B B B B B D D A BUILDING SECTION BUILDING ELEVATION PLAN 1 - FLOOR AREA FIRST FLOOR FLOOR PLANS SECOND FLOOR THIRD FLOOR PLAN 1 FIRST FLOOR SECOND FLOOR THIRD FLOOR TOTAL COVERED PORCH COVERED PATIO COVERED DECK GARAGE X,XXX S.F. X,XXX S.F. X,XXX S.F. X,XXX S.F. XXX S.F. XXX S.F. XXX S.F. XXX S.F. 3BED 3 BATH 2-CAR GARAGE A- Standing seam metal B- Ext. cement plaster C- Burnished CMU Block D- Painted horizontal lap siding F- Roll Up Garage Door N- Metal Railing 3 69-3 65 B B F N D 2.Rear 1.Front A C N A D MODERN FARMHOUSE ELEVATIONS B B B B B D D A
Bing Li | libing19910127@gmail.com 15 14 Selected Works PLAN 1 FLOOR AREA FIRST FLOOR FLOOR PLANS SECOND FLOOR THIRD FLOOR PLAN 1 FIRST FLOOR SECOND FLOOR THIRD FLOOR TOTAL COVERED PORCH COVERED PATIO COVERED DECK GARAGE X,XXX S.F. X,XXX S.F. X,XXX S.F. X,XXX S.F. XXX S.F. XXX S.F. XXX S.F. XXX S.F. 3BED BATH 2-CAR GARAGE 116'-9 1/2" 112'-9" UP ACCESSIBLE P.O.T. AREA 20'-0" 20'-0" 7'-0" IN HEIGHT. TO WATER HEATERS, WASHERS AND DRYERS, SINKS, AND FURNACES SHALL INTRUDE INTO THESE DESIGNATED PARKING AREAS. THE MEASUREMENT 2-CAR GARAGE 2-CAR GARAGE UNOBSTRUCTED GARAGE AREA 10'-0" 20'-0" 7'-0" "NO AFFIXED OBSTRUCTIONS SUCH AS, BUT NOT LIMITED SINKS, AND FURNACES SHALL INTRUDE INTO THESE OF THE INTERIOR WALLS UNOBSTRUCTED GARAGE AREA 10'-0" 20'-0" 7'-0" "NO AFFIXED OBSTRUCTIONS SUCH AS, BUT NOT LIMITED SINKS, AND FURNACES SHALL INTRUDE INTO THESE OF THE INTERIOR WALLS TANDEM 2-CAR GARAGE 8'-6" ACCESSIBLE 1-CAR GARAGE 8'-6" TANDEM 2-CAR GARAGE 8'-6" TANDEM 2-CAR GARAGE 8'-6" 1-CAR GARAGE 18' 8'-6" 1-CAR GARAGE 18' 8'-6" UNOBSTRUCTED GARAGE AREA OF 10'-0" 20'-0" 8'-2" 8'-0" 18'-0". TO WATER HEATERS, WASHERS AND DRYERS, AREAS. THE MEASUREMENT SUPPORT." UTILITY WH VARIES REFER TO GRADING PLAN 5'-10" WH WH WH WH WH WH WH PLAN 1-1 PLAN 1-2 PLAN PLAN PLAN PLAN PLAN PLAN 4.1 ELEV. CG7 CG7 4'-0" PLAN PLAN 5 PLAN 4 PLAN 4.1 PLAN PLAN 2 PLAN 5 DN STORAGE/ BIKES DN UTL. COMMON CORRIDOR CG7 CG6 CG6 MACHINE RM. DN ELEV. DN DN DN STO. COMMON CORRIDOR STORAGE/ BIKES UTL. UTL. 18'-6" ELEV. CG5 PLAN 4.1 PLAN 4 PLAN 6 PLAN 1 - FLOOR FIRST FLOOR FLOOR PLANS SECOND FLOOR THIRD FLOOR FIRST FLOOR SECOND FLOOR THIRD TOTAL COVERED COVERED COVERED GARAGE X,XXX S.F. X,XXX S.F. X,XXX S.F. X,XXX S.F. 3BED BATH 2-CAR GARAGE 116'-9 1/2" 112'-9" UP UP ACCESSIBLE P.O.T. AREA OF 20'-0" 20'-0" 7'-0" IN HEIGHT. TO WATER HEATERS, WASHERS AND DRYERS, SINKS, AND FURNACES SHALL INTRUDE INTO THESE DESIGNATED PARKING AREAS. THE MEASUREMENT 2-CAR GARAGE 2-CAR GARAGE UNOBSTRUCTED GARAGE "NO AFFIXED OBSTRUCTIONS SUCH BUT NOT LIMITED WASHERS AND DRYERS, SINKS, AND FURNACES SHALL INTRUDE INTO THESE SHALL BE FROM THE FACE THE INTERIOR WALLS UNOBSTRUCTED GARAGE "NO AFFIXED OBSTRUCTIONS SUCH BUT NOT LIMITED WASHERS AND DRYERS, SINKS, AND FURNACES SHALL INTRUDE INTO THESE SHALL BE FROM THE FACE THE INTERIOR WALLS TANDEM 2-CAR GARAGE 8'-6" ACCESSIBLE 1-CAR GARAGE 8'-6" TANDEM 2-CAR GARAGE 8'-6" TANDEM 2-CAR GARAGE 8'-6" 1-CAR GARAGE 8'-6" 1-CAR GARAGE 18' 8'-6" UNOBSTRUCTED GARAGE 8'-0" 18'-0". SUCH AS, BUT NOT LIMITED TO WATER HEATERS, WASHERS AND DRYERS, DESIGNATED PARKING AREAS. THE MEASUREMENT SUPPORT." UTILITY WH VARIES REFER TO GRADING PLAN 5'-10" WH WH WH WH WH WH WH PLAN 1-1 PLAN 1-2 PLAN PLAN PLAN PLAN PLAN PLAN 4.1 ELEV. CG7 CG7 4'-0" PLAN PLAN 5 PLAN 4 PLAN 4.1 PLAN 1 PLAN 2 PLAN 5 DN STORAGE/ BIKES DN UTL. COMMON CORRIDOR CG7 CG6 CG6 MACHINE RM. DN ELEV. DN STO. COMMON CORRIDOR STORAGE/ BIKES UTL. UTL. 18'-6" ELEV. CG5 CG7 CG7 PLAN 4.1 PLAN 4 PLAN 6 PLAN GROUND FLOOR FLOOR THIRD FLOOR MODERN FARMHOUSE BUILDING PLANS PLAN 1 FLOOR AREA FIRST FLOOR FLOOR PLANS SECOND FLOOR THIRD FLOOR PLAN 1 FIRST FLOOR SECOND FLOOR THIRD FLOOR TOTAL COVERED PORCH COVERED PATIO COVERED DECK GARAGE X,XXX S.F. X,XXX S.F. X,XXX S.F. X,XXX S.F. XXX S.F. XXX S.F. XXX S.F. XXX S.F. 3BED BATH 2-CAR GARAGE 116'-9 1/2" 112'-9" UP TRASH RECYCLE ACCESSIBLE P.O.T. INDICATES MINIMUM CLEAR UNOBSTRUCTED GARAGE "NO AFFIXED OBSTRUCTIONS SUCH AS, BUT NOT LIMITED TO WATER HEATERS, WASHERS AND DRYERS, SINKS, SHALL BE FROM THE FACE OF THE INTERIOR WALLS NOT INCLUDING STRUCTURE SUPPORT." 2-CAR GARAGE 2-CAR GARAGE INDICATES MINIMUM CLEAR HEIGHT. SUCH AS, BUT NOT LIMITED TO WATER HEATERS, WASHERS AND DRYERS, AREAS. THE MEASUREMENT SUPPORT." INDICATES MINIMUM CLEAR HEIGHT. SUCH AS, BUT NOT LIMITED TO WATER HEATERS, WASHERS AND DRYERS, AREAS. THE MEASUREMENT SUPPORT." TANDEM 2-CAR GARAGE ACCESSIBLE 1-CAR GARAGE TANDEM 2-CAR GARAGE TANDEM 2-CAR GARAGE 1-CAR GARAGE 1-CAR GARAGE INDICATES MINIMUM CLEAR IN HEIGHT. MINIMUM REQUIRED LOADING ZONE SUCH AS, BUT NOT LIMITED SINKS, AND FURNACES SHALL INTRUDE INTO THESE OF THE INTERIOR WALLS UTILITY WH TO GRADING PLAN 5'-10" WH WH WH WH WH WH WH PLAN 1-1 PLAN 1-2 PLAN PLAN PLAN PLAN PLAN PLAN 4.1 ELEV. CG5 CG7 CG7 CG6 CG6 4'-0" PLAN PLAN 5 PLAN 4 PLAN 4.1 PLAN PLAN 2 PLAN 5 DN STORAGE/ BIKES DN UTL. COMMON CORRIDOR CG6 MACHINE RM. DN ELEV. CG5 DN DN DN STO. COMMON CORRIDOR STORAGE/ BIKES UTL. UTL. 18'-6" ELEV. CG5 CG7 CG7 CG6 CG6 PLAN 4.1 PLAN 4 PLAN 6 PLAN 1 - FLOOR AREA FIRST FLOOR FLOOR PLANS SECOND FLOOR THIRD FLOOR PLAN 1 SECOND THIRD TOTAL COVERED COVERED COVERED GARAGE XXX S.F. XXX S.F. 3BED BATH 2-CAR GARAGE 116'-9 1/2" 112'-9" UP UP ACCESSIBLE P.O.T. TRASH RECYCLE "NO AFFIXED OBSTRUCTIONS SUCH AS, BUT NOT LIMITED SHALL BE FROM THE FACE OF THE INTERIOR WALLS NOT INCLUDING STRUCTURE SUPPORT." 2-CAR GARAGE 2-CAR GARAGE HEIGHT. SUCH BUT NOT LIMITED WATER HEATERS, WASHERS AND DRYERS, DESIGNATED PARKING AREAS. THE MEASUREMENT NOT INCLUDING STRUCTURE SUPPORT." HEIGHT. SUCH BUT NOT LIMITED TO WATER HEATERS, WASHERS AND DRYERS, DESIGNATED PARKING AREAS. THE MEASUREMENT NOT INCLUDING STRUCTURE SUPPORT." TANDEM 2-CAR GARAGE ACCESSIBLE 1-CAR GARAGE TANDEM 2-CAR GARAGE TANDEM 2-CAR GARAGE 1-CAR GARAGE 1-CAR GARAGE HEIGHT. MINIMUM "NO AFFIXED OBSTRUCTIONS SUCH AS, BUT NOT LIMITED WASHERS AND DRYERS, SINKS, AND FURNACES SHALL INTRUDE INTO THESE SHALL BE FROM THE FACE OF THE INTERIOR WALLS UTILITY WH VARIES REFER TO GRADING PLAN 5'-10" WH WH WH WH WH WH WH PLAN 1-1 PLAN 1-2 PLAN PLAN PLAN PLAN PLAN PLAN 4.1 ELEV. CG5 CG7 CG7 CG6 CG6 4'-0" PLAN PLAN 5 PLAN 4 PLAN 4.1 PLAN 1 PLAN 2 PLAN 5 DN STORAGE/ BIKES UP DN UTL. COMMON CORRIDOR CG6 MACHINE RM. DN ELEV. CG5 DN STO. COMMON CORRIDOR STORAGE/ BIKES UTL. UTL. 18'-6" ELEV. CG5 CG7 CG7 CG6 CG6 PLAN 4.1 PLAN 4 PLAN 6 PLAN GROUND FLOOR SECOND FLOOR THIRD FLOOR MODERN FARMHOUSE BUILDING PLANS C5d : 8-Plex Stacked Flats X-XX SHEET 05.01.21 C5d : 8-Plex COUNTY of LOS ANGELES, CALIFORNIA PLAN 1 FLOOR AREA FIRST FLOOR FLOOR PLANS SECOND FLOOR PLAN 1 FIRST FLOOR SECOND FLOOR THIRD FLOOR TOTAL COVERED PORCH COVERED PATIO COVERED DECK GARAGE X,XXX S.F. X,XXX S.F. X,XXX S.F. X,XXX S.F. XXX S.F. XXX S.F. XXX S.F. XXX S.F. 0 4 8 16 SCALE: 1 4"=1'-0" OF XX SHEETS 3BED BATH 2-CAR GARAGE 06.02.21 SHEET CG-2 COUNTY of LOS ANGELES, CALIFORNIA 116'-9 1/2" 112'-9" 63'-5" ACCESSIBLE P.O.T. 20'-0" 7'-0" HEIGHT. HEATERS, WASHERS AND DRYERS, SINKS, SHALL INTRUDE INTO THESE PARKING AREAS. THE MEASUREMENT 2-CAR GARAGE 2-CAR GARAGE UNOBSTRUCTED GARAGE AREA OF 10'-0" 20'-0" 7'-0" "NO AFFIXED OBSTRUCTIONS SUCH AS, BUT NOT LIMITED WASHERS AND DRYERS, SINKS, AND FURNACES SHALL INTRUDE INTO THESE OF THE INTERIOR WALLS UNOBSTRUCTED GARAGE AREA OF 10'-0" 20'-0" 7'-0" "NO AFFIXED OBSTRUCTIONS SUCH AS, BUT NOT LIMITED WASHERS AND DRYERS, SINKS, AND FURNACES SHALL INTRUDE INTO THESE OF THE INTERIOR WALLS TANDEM 2-CAR GARAGE 8'-6" ACCESSIBLE 1-CAR GARAGE 18' 8'-6" TANDEM 2-CAR GARAGE 8'-6" TANDEM 2-CAR GARAGE 8'-6" 1-CAR GARAGE 18' 8'-6" 1-CAR GARAGE 8'-6" UNOBSTRUCTED GARAGE AREA OF 10'-0" 20'-0" 8'-2" 8'-0" 18'-0". SUCH BUT NOT LIMITED WATER HEATERS, WASHERS AND DRYERS, AREAS. THE MEASUREMENT SUPPORT." VARIES REFER TO GRADING PLAN WH WH WH WH WH WH WH PLAN 1-1 PLAN 1-2 PLAN PLAN PLAN PLAN PLAN PLAN 4.1 ELEV. CG7 PLAN 3 PLAN 5 PLAN PLAN CG7 DN STO. COMMON CORRIDOR STORAGE/ BIKES UTL. UTL. 18'-6" ELEV. CG5 PLAN 4.1 PLAN 4 PLAN PLAN 1 SHEET 05.01.21 C5d : 8-Plex COUNTY of LOS ANGELES, CALIFORNIA FLOOR FIRST FLOOR PLANS SECOND FLOOR FIRST FLOOR SECOND FLOOR X,XXX S.F. X,XXX S.F. X,XXX S.F. X,XXX S.F. XXX S.F. XXX S.F. XXX S.F. XXX S.F. 0 8 16 32 SCALE: 1 8"=1'-0" OF XX SHEETS 3BED 3 BATH 2-CAR GARAGE 116'-9 1/2" 112'-9" 63'-5" ACCESSIBLE P.O.T. 20'-0" 7'-0" HEIGHT. HEATERS, WASHERS AND DRYERS, SINKS, SHALL INTRUDE INTO THESE 2-CAR GARAGE 2-CAR GARAGE UNOBSTRUCTED GARAGE "NO AFFIXED OBSTRUCTIONS WASHERS AND DRYERS, SINKS, AND FURNACES SHALL INTRUDE INTO THESE SHALL BE FROM THE FACE OF THE INTERIOR WALLS UNOBSTRUCTED GARAGE "NO AFFIXED OBSTRUCTIONS WASHERS AND DRYERS, SINKS, AND FURNACES SHALL INTRUDE INTO THESE SHALL BE FROM THE FACE OF THE INTERIOR WALLS TANDEM 2-CAR GARAGE ACCESSIBLE 1-CAR GARAGE TANDEM 2-CAR GARAGE TANDEM 2-CAR GARAGE 1-CAR GARAGE 1-CAR GARAGE UNOBSTRUCTED GARAGE 8'-0" 18'-0". SUCH AS, BUT NOT LIMITED WATER HEATERS, WASHERS AND DRYERS, DESIGNATED PARKING AREAS. THE MEASUREMENT NOT INCLUDING STRUCTURE SUPPORT." VARIES REFER TO GRADING PLAN WH WH WH WH WH WH WH PLAN 1-1 PLAN 1-2 PLAN PLAN 5 PLAN PLAN PLAN PLAN 4.1 ELEV. CG5 CG7 PLAN 3 PLAN 5 PLAN 2 PLAN CG7 DN DN DN STO. COMMON CORRIDOR STORAGE/ BIKES UTL. UTL. 18'-6" ELEV. CG7 CG7 PLAN 4.1 PLAN 4 PLAN 6 PLAN 1 FLOOR THIRD FLOOR
MODERN FARMHOUSE BUILDING PLANS

GARDEN GROVE

Thid project is located at Garden Grove boulevard and it is an affordable housing project. The community has been designed with the focus of having a prominent street presence on south Garden Grove boulevard with ground floor entrances to the retail, leasing area, and east courtyard, and with residential unit windows, patios, and stoop entrances along an activated street frontage. It includes 90 on-site parking spaces which are housed on the ground floor and also on-grade parking.

Bing Li | libing19910127@gmail.com 16 17 GARDEN GROVE
Bing Li | libing19910127@gmail.com 18 19 GARDEN GROVE
Bing Li | libing19910127@gmail.com 20 GARDEN GROVE B C B B A A A C A A A TRANS. B C 15'-6" C A A LAUNDRY C B A A C A A A B 18818 Teller Avenue Suite 260 Irvine, CA 92612 949-250-4680 GARDEN GROVE YIELD STUDY META HOUSING JOB NO. 000.000 02-24-2020 DATE NORTH TYPICAL FLOOR 0 160 80 40 GARDEN GROVE BOULEVARD BROOKHURST WAY 2ND FLOOR PLAN 1ST FLOOR PLAN
THE END

Turn static files into dynamic content formats.

Create a flipbook
Issuu converts static files into: digital portfolios, online yearbooks, online catalogs, digital photo albums and more. Sign up and create your flipbook.