



![]()




In partnership with the Martin Richard Foundation, Boys & Girls Clubs of Dorchester will transform youth development services and bring a world-class facility to Dorchester. This once-in-a-generation opportunity is essential – because the unprecedented development underway in Boston must include an investment in our City’s youth. Every aspect of The FieldHouse+ is intentional. The location was selected to maximize BGCD’s impact on children with minimal access to services. Forward-thinking programs, sustainable building and grounds, and a full complement of academic supports, health/ wellness activities and arts/culture will be available for children of all abilities.
For more information:
Boys & Girls Clubs of Dorchester
1135 Dorchester Avenue, Dorchester, MA 02125
Development Office: 617-288-7120
www.fieldhouseplus.org
www.bgcdorchester.org
@bgcdorchester
@BGCDot
#WeAreDorchester




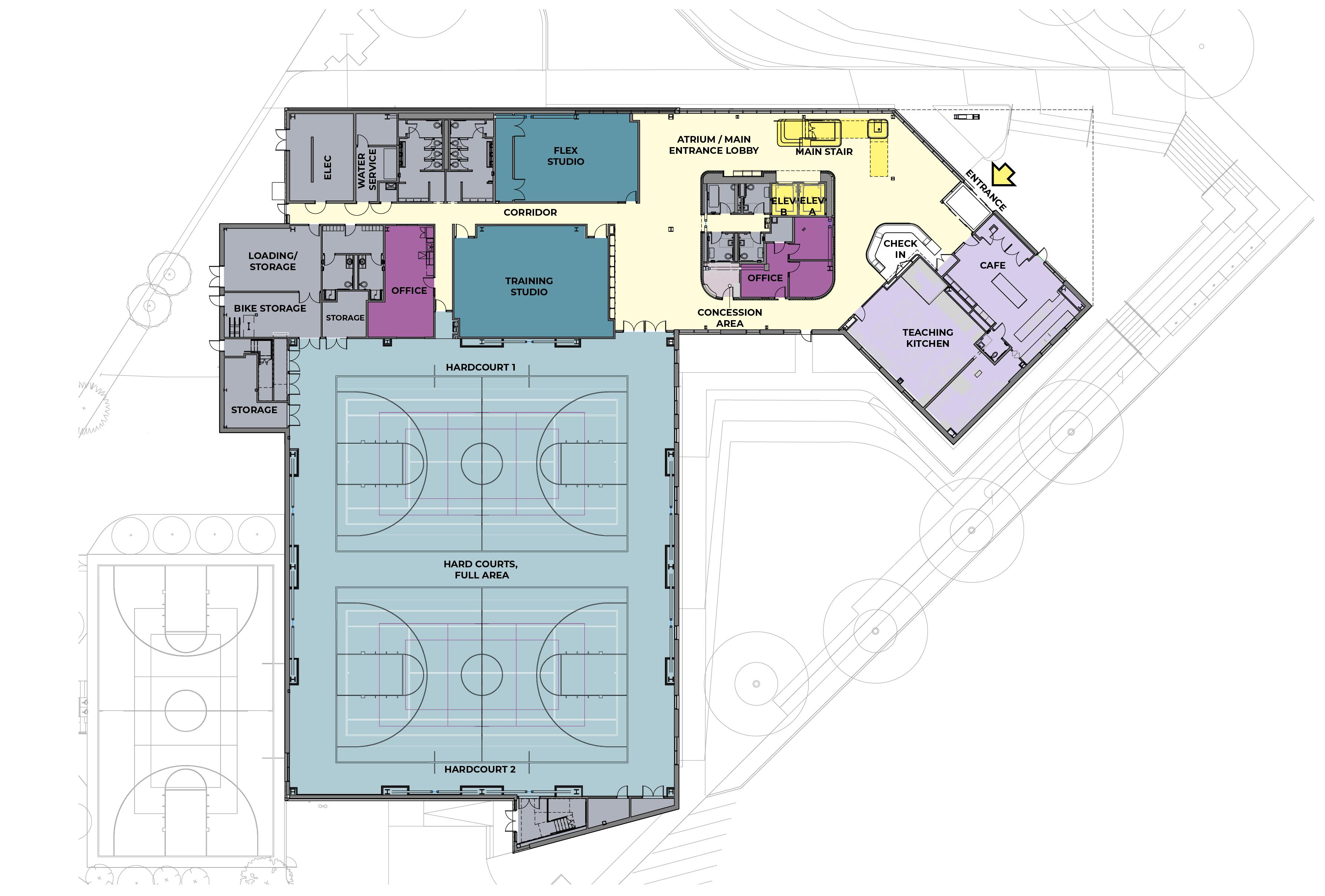
ENTIRE FACILITY: MAIN ATHLETIC BUILDING:
Karen & Rob Hale
WING:
The Joseph E. & Rosemarie Corcoran Foundation
Entrance
Hardcourts
Atrium/Main Entrance Lobby
Main Staircase Café
Teaching Kitchen
Elevators A and B
Training Studio
Flex Studio: Winter Classic Legacy Project 2023
1st Floor Concession Area
Check-in Area Offices Corridor
Elizabeth & Phill Gross
New Balance Foundation
Herb Chambers
Don & Marilyn Rodman Foundation
Brendan & Kerry James Bradley
Boston Bruins Foundation




Sky Walk/Running Track
Event Space/Theater
Roof Deck
Music Clubhouse Lobby
Small Flex Room A
Small Flex Room B
MRF Office Corridor
Counseling Spaces A and B
Conference Room
New Balance Foundation
Anonymous
Doug Flutie, Jr. Foundation for Autism, Inc.
Martin Richard Foundation




Turf Field
Lobby Mezzanine
3rd Floor Concession Area
Entire 3rd Floor



Great Lawn
Exercise
Lawn
Plaza
Café Patio: Outer
Café Patio: Inner
Accessible Paths
Crimson Lion / Lavine Family Foundation


