



![]()




In partnership with the Martin Richard Foundation, Boys & Girls Clubs of Dorchester will transform youth development services and bring a world-class facility to Dorchester. This once-in-a-generation opportunity is essential – because the unprecedented development underway in Boston must include an investment in our City’s youth.
Every aspect of The FieldHouse+ is intentional. The location was selected to maximize BGCD’s impact on children with minimal access to services. Forward-thinking programs, sustainable building and grounds, and a full complement of academic supports, health/ wellness activities and arts/culture will be available for children of all abilities.
For more information:
Boys & Girls Clubs of Dorchester
1135 Dorchester Avenue, Dorchester, MA 02125
Development Office: 617-288-7120
www.fieldhouseplus.org
www.bgcdorchester.org


The Joseph E. & Rosemarie Corcoran Foundation
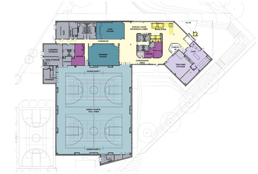
PERFORMING ARTS WING: $3.5 million
The Robert and Cynthia Marr Charitable Foundation
Entrance: $3 million
Hardcourts: $2 million;
Atrium/Main Entrance Lobby: $2 m
Main Staircase: $1 million
Café: $1 million
Teaching Kitchen: $1 million
Elevators A and B: $500,000 each
Training Studio: $1 million
Flex Studio: $500,000
1st Floor Concession Area: $500,000
Check-in Area: $500,000
Offices: Two, $250,000 each
Corridor: $250,000
Elizabeth & Phill Gross
New Balance Foundation
Herb Chambers
Don & Marilyn Rodman Foundation
Brendan & Kerry James Bradley
Boston Bruins Foundation Winter Classic Legacy Project 2023



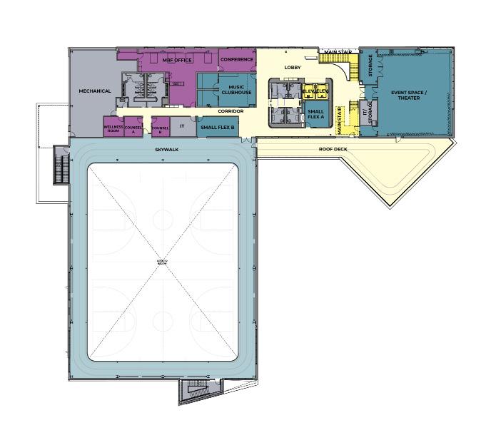
Sky Walk/Running Track: $3 million
Event Space/Theater: $2 million
Roof Deck: $1 million
Music Clubhouse: $1 million
Lobby: $500,000
Small Flex Room A: $150,000
Small Flex Room B: $150,000
MRF Office: $250,000
Corridor: $250,000
Counseling Spaces A and B: $250,000 each
Conference Room: $250,000
New Balance Foundation
Anonymous
Anonymous
Doug Flutie, Jr. Foundation for Autism, Inc.
Martin Richard Foundation


Turf Field: $3 million
Lobby: $500,000
Mezzanine: $500,000
3rd Floor Concession Area: $250,000


Great Lawn: $1 million
Exercise Lawn: $500,000
Plaza: $500,000
Café Patio: Outer: $250,000
Café Patio: Inner: $100,000
Accessible Paths: $250,000 Crimson Lion / Lavine Family Foundation


Courtyard: $250,000
Exterior Court: $500,000
