
1 minute read
RENOVATION BEGINS ON NEW STUDENT CENTER

“Our excitement about this new space is unmatched. The student center sits at the heart of our campus and is filled with places for students to spend time together, to study, and to connect with each other.”
Advertisement
—Head of School Pieter Mulder
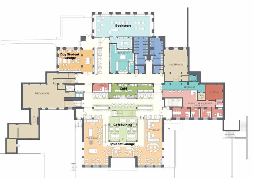
Construction began in June on a renovated and expanded new student center that is scheduled to open in the late fall of 2024. Designed by Voith & Mactavish Architects (Philadelphia), the building will be the heart and hub of campus and will double the amount of space from the original Rovensky Student Center. It includes the Benson Commons dining hall, student gathering spaces, a music center in a newly created second floor of Benson, Student Life offices, the mailroom, and the bookstore. The design also shifts the orientation of the building to the light-filled, east side facing the football field. By removing all vehicular traffic and parking from the area, the resulting open green space will connect student life spaces directly to the outdoors and underscore Berkshire’s sense of place rooted in its natural setting.
Benson Commons Dining Hall

Two private dining rooms that can serve as meeting places for student clubs, faculty groups, teams, activities, or weekend events
A central hearth oven for pizza, other hot meals, and a variety of nutritious options
Seating increase of 15%
Student Center
A new café with expanded seating, including a range of options: benches, booths, and traditional tables, all designed to be comfortable for both individuals and groups
A TV lounge that doubles as a performance space for events like open mic nights
Student Life offices for adults within the space
New Music Center
Three music classrooms, four practice rooms, office space, music storage cabinets, a recording studio, and a suite space for gathering and collaboration
Doubles the space dedicated to music on campus
Building Enhancements
Expanded entrance from Buck Valley with grand staircase that promotes easier arrival and circulation
Additional and more easily accessible restrooms
Geothermal energy use for a sustainable and more cost-effective heating and cooling system
