ARCHITECTURAL DESIGN PORTFOLIO.

BELINDA NG PEI PEI PART 1 ASST. ARCHITECT








![]()

BELINDA NG PEI PEI PART 1 ASST. ARCHITECT








qualifications
bachelor of science (honours) architecture universiti tunku abdul rahman 2023
place of practice design network architects kuching, sarawak 2023 - now

INVOLVEMENT: - SCHEMATIC - DESIGN DEVELOPMENT - PRESENTATION & APPROVAL FROM JKCDA - SUPPLIER LIASING
LAND SIZE:
1750 ACRES

CONCEPT & PURPOSE
- MOUNTAIN RETREAT
- HONOURING THE BUKAR BIDAYUH COMMUNITY
- UTILISE NATIVE TRADITIONAL STYLE & CONSTRUCTION METHODS
- SUSTAINABILITY (NO INTERNAL VEHICULAR ACCESS, HOMEGROWN FARM)

BRIEF SITE INTRODUCTION
- SET IN 1750 ACRES PRISTINE FOREST
- MOUNTAIN PEAKING AT 500M HIGH
- EXISTING ACCESS BY HELICOPTER & JUNGLE TREKKING

INVOLVEMENT
- 3D RENDERING
- DESIGN OF LONGHOUSE PLANS
- RESORT MASTERPLANNING
- RESEARCH AND LIASING WITH DIFFERENT LIFT COMPANIES TO PROPOSE ACCESS TO SITE
- DESIGN AND ERECTION OF INDIVIDUAL CHALETS INSPIRED BY BUKAR BIDAYUH HISTORICAL ARCHITECTURE
DESIGN DEVELOPMENT
01 BALU GAMBANG
TRADITIONAL MALE HEADHUNTERS’ LODGING


02 ORANG KAYA PEMANCA
ORIGINALLY BUILT IN HONOUR OF DANA, ONE OF THE MOST FAMOUS LEADERS IN NATIVE HISTORY

RESEARCH STUDY
03 LONGHOUSE

IMPRESSION
INSPIRED BY NATIVE LONGHOUSES, WITH RUAI AS THE CENTER FOR GATHERINGS

RESEARCH STUDY

VISUAL IMPRESSION
INSPIRATION

VISUAL IMPRESSION















INVOLVEMENT: - SCHEMATIC - DESIGN DEVELOPMENT
BUILDING PURPOSE
ADAPTIVE REUSE OF EXISTING BALU GAMBANG INTO A LOCAL HUB, FEATURING A MART, RESTAURANTS, CO-WORKING SPACES & RESORT INFORMATION CENTRE.
CONCEPT
TO MINIMIZE DESTRUCTION OF EXISTING BUILDINGS. JUXTAPOSED BUILDING CONCEPTS CREATES INTEREST AND SYMBOLIZES THE BRIDGE TO MODERNITY WHILE MAINTAINING A SIGNIFICANT CULTURAL BUILDING.
INVOLVEMENT
- TRANSLATED CLIENT’S SKETCHES INTO FEASIBLE FLOOR PLANS
- PROPOSED DESIGN CONCEPT
- SITE VISITS TO ANALYSE EXISTING CONDITION AND TO COLLECT MEASUREMENTS
- ERECTED 3D VISUALIZATION, CAD DRAWINGS, FULL PRESENTATION SLIDES TO HANDOVER TO JKR
SITE VISITS





FAST RENDERING UNDER 5 MINUTES FOR BRIEF CLIENT MEETINGS


INVOLVEMENT: - SCHEMATIC - DESIGN DEVELOPMENT
CONCEPT EXPLORATION
MODULAR ARCHITECTURE. WHERE EACH MODULE CAN BE FLIPPED, ROTATED, ORIENTED IN DIFFERENT DIRECTIONS TO ACHIEVE DIFFERENT RESULTS AND TO FACE SITE’S DIFFERENT VIEWING POINTS
MODULES
CATEGORY 1: INTERNAL SPACES

CATEGORY 2: FACILITIES

EXPERIMENTAL FORMATIONS:

FORM DEVELOPED FROM HEXAGON TO ROUND TO MINIMIZE NEGATIVE IMPACT ON SITE & TO ALLOW ARCHITECTURE TO BLEND IN WITH EXISTING RUBBER TREES ON SITE













TASKS: - FLOORPLAN PROPOSAL FROM SCRATCH - HEAVY INVOLVEMENT IN DESIGN AND MEETING CLIENTS’ REQUIREMENTS


TASKS: - FORM DEVELOPMENT FROM SCRATCH - HEAVY INVOLVEMENT IN DESIGN SINCE THE VERY INITIAL SKETCH







- BUILDING PLAN SUBMISSION






TASKS:
- BUILDING PLAN DOCUMENTATION

- FLOORPLANS, SECTIONS, ELEVATIONS, TECNICAL DETAILING
INVOLVEMENT: - DESIGN DEVELOPMENT



TASKS:
- OVERALL DESIGN DEVELOPMENT TO CONFORM TO NEW SITE
- LANDSCAPE DESIGN “THE GREEN LUNG”
- MEETING PARKING REQUIREMENTS & DIVISION OF INTERNAL ROADING



INVOLVEMENT: - TENDER
- CONSTRUCTION DOCUMENTATION - RENDERING - SITE CHECKING - BUILDING PLAN RESUBMISSION

TASKS:



TASKS: - TALLY AND CHECK LIGHTING PLAN DRAWINGS BETWEEN ARCHI AND ID - RENDER FULL SET INTERIOR VISUALS FOR CLIENT’S PERUSAL








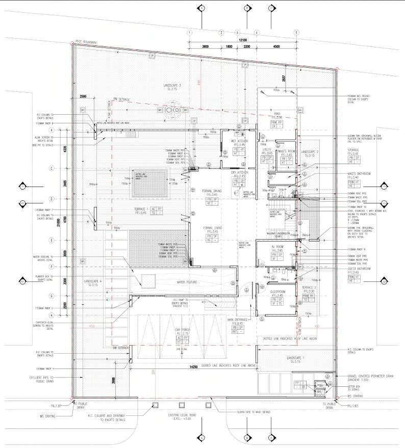
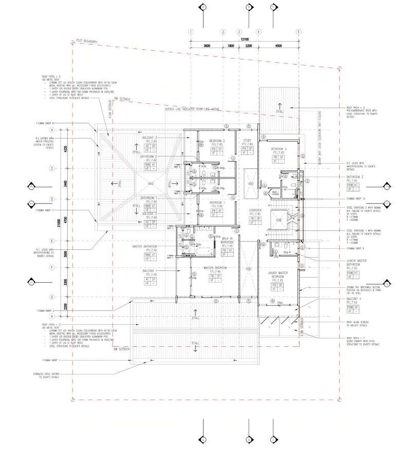
TASKS: - SITE CHECKING FOR ELECTRICAL POINTS TO TALLY WITH OUTGOING DRAWINGS - MARK 8 FULL SET BUILDING PLAN RESUBMISSION DRAWINGS BY HAND. MARK 1 SET DIGITALLY ON AUTOCAD.


TASKS:
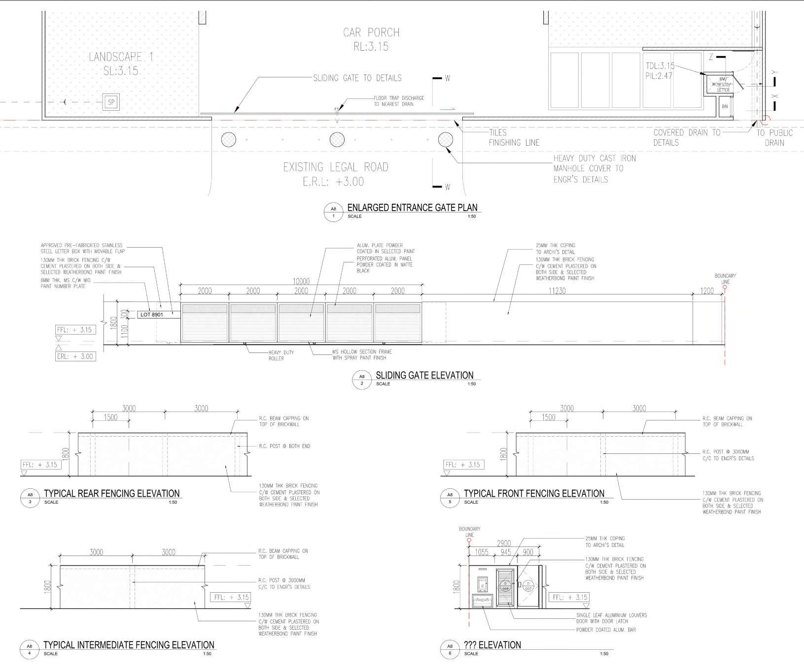
- CONSTRUCTION DOCUMENTATION
- TENDER DRAWINGS


PERFORMING ARTS CENTRE
BACHELOR’S DEGREE FINAL YEAR PROJECT

TYPOLOGY PERFORMING ARTS CENTRE LOCATION KAMPUNG BHARU, KUALA LUMPUR SOFTWARE AUTOCAD, SKETCHUP, LUMION, PHOTOSHOP
THIS PERFORMING ARTS CENTRE SERVES AS A PLATFORM TO SHARE LOCAL CULTURAL DANCES OF KAMPUNG BHARU NAMELY JOGET LOMBAT & KUDAH KEPANG SILAT TO THE WORLD.
ON THE OTHER HAND, IT ALSO INTENDS TO BRING INTERNATIONALLYRENOWED PERFORMERS AND MUSICAL EVENTS TO THE STAGE IN THE HEART OF KUALA LUMPUR.
IT ALSO INTENDS TO SERVE AS A COMMUNAL SPACE FOR OLD TRADITIONS OF KAMPUNG BHARU, WHERE LOCALS USED TO GATHER AT PENTAS PASAR MINGGU WEEKLY TO SING, DANCE AND PERFORM CULTURAL DANCE.
HISTORICAL EVENTS SITE
DESIGN INTENTION



DESIGN STRATEGIES

PROPOSED CLIENTS

FACADE TREATMENT




















EXPLODED AXONOMETRIC SECTIONAL DETAILING



“I regard the theatre as the greatest of all art forms, the most immediate way in which a human being can share with another, the sense of what it is to be a human being.”