4934 Eureka Ct

Page 1

Comparative Market Analysis 4934 Eureka Ct Denver, CO 80239 Wanda Medlock FEBRUARY 6, 2023 John Taylor | john@elitehomepartnersco.com

Online Valuation Analysis

How accurate are Zestimates?

2.0%

$9,757

Zestimates varied up to 2.0% or $9,757 compared to actual MLS prices.

4 Active

7 Pending

3 Sold

A ADDRESS PRICE ZESTIMATE DIFFERENCE 15122 E 50th Way $485,000 $485,000 0.0% 4912 Altura Street $439,900 $439,900 0.0% 4633 Durham Court $500,000 $490,243 -2.0% 4983 Altura Street $445,000 $443,126 -0.4% P ADDRESS PRICE ZESTIMATE DIFFERENCE 4860 Duluth Court $450,000 $451,700 0.4% 4936 Fraser Way $460,000 $455,100 -1.1% 14448 E 48th Avenue $550,000 $541,100 -1.6% 5099 Elkhart Street $524,900 $524,900 0.0% 4900 Granby Street $480,000 $480,000 0.0% 4957 Duluth Court $449,900 $449,901 0.0% 5061 Deephaven Court $477,000 $471,600 -1.1% S ADDRESS SOLD DATE SOLD PRICE ZESTIMATE DIFFERENCE 4953 Fontana Court 12/9/22 $473,000 $477,600 1.0%
Comparative Market Analysis 4934 Eureka Court, Denver, Colorado 80239
3039156054
ADDRESS SOLD DATE SOLD PRICE ZESTIMATE DIFFERENCE 14405 Andrews Drive 12/8/22 $420,000 $424,100 1.0% 4710 Granby Way 11/11/22 $470,000 $476,500 1.4%
Zillow Comparative Market Analysis 4934 Eureka Court, Denver, Colorado 80239
Source:
John Taylor
3039156054
Elite Home Partners

4934 Eureka Ct, Denver, CO 80239-4256, Denver County

APN: 191-16-005 CLIP: 3253280345

Beds 4 Full Baths 2 Half Baths 1 Sale Price $144,995 Sale Date 02/24/1998 Bldg Sq Ft 1,891 Lot Sq Ft 5,125 Yr Built 1997 Type SFR OWNER INFORMATION Owner Name Medlock Wanda Mailing ZIP 4 4256 Owner Name 2 Mailing Carrier Route C047 Mailing Address 4934 Eureka Ct Owner Occupied Yes Mailing City & State Denver, CO DMA No Mail Flag Mailing Zip 80239 LOCATION INFORMATION Property Zip 80239 Location Influence Property Zip4 4256 Topography Flat/Level Property Carrier Route C047 Neighborhood Code Montbello-0001 School District Denver County 1 Neighborhood Name (OnBoard) Elementary School Greenwood Traffic Local Middle School Mcglone Ece-8 Township 03S High School High Tech Ec Range 66W Subdivision Gateway Village Filing 1 Section 19 Zoning R-2 Quarter NE Census Tract 83.87 Block 6 Condo Floor Lot 5 TAX INFORMATION PIN 191-16-005 Tax District 330A Alternate PIN Tax Appraisal Area Schedule Number 0019116005000 Homestead Percent % Improved 83% Legal Description GATEWAY VILLAGE #1 B6 L5 ASSESSMENT & TAX Assessment Year 2022 - Preliminary 2021 2020 2019 Market Value - Land $65,600 $65,600 $65,600 $65,600 Market Value - Improved $315,700 $315,700 $315,800 $263,400 Market Value - Total $381,300 $381,300 $381,400 $329,000 Assessed Value - Land $4,560 $4,690 $4,690 $4,690 Assessed Value - Improved $21,940 $22,570 $18,830 $18,830 Assessed Value - Total $26,500 $27,260 $23,520 $23,520 YOY Assessed Change (%) -2 79% 15 9% 0% YOY Assessed Change ($) -$760 $3,740 $0 Tax Year Total Tax Change ($) Change (%) 2019 $2,167 2020 $2,215 $49 2 26% 2021 $1,903 -$313 -14 11% CHARACTERISTICS Lot Frontage Baths - Full 2 Lot Depth Baths - Half 1 Lot Acres 0 1177 Other Rooms Lot Sq Ft 5,125 Stories 2 Lot Shape Fireplace Land Use - County Single Family Resident Fireplaces Land Use - CoreLogic SFR Cooling Type Building Type Heat Fuel Type Style Heat Type Warm Air Year Built 1997 Patio Type Wood Deck Bldg Sq Ft - Above Ground 1,891 Garage Type Attached Garage Bldg Sq Ft - Basement 662 Garage Capacity Property Details Courtesy of John Taylor, REcolorado Generated on:02/07/23 The data within this report is compiled by CoreLogic from public and private sources The data is deemed reliable, but is not guaranteed The accuracy of the data contained herein can be independently verified by the recipient of this report with the applicable county or municipality Page 1/4
Bldg Sq Ft - Finished Basement Garage Sq Ft 443 Bldg Sq Ft - Unfinished Basement Roof Material Bldg Sq Ft - Total 2,553 Construction Bldg Sq Ft - Finished 1,891 Exterior Frame Bldg Sq Ft - 1st Floor 1,000 Floor Cover Bldg Sq Ft - 2nd Floor 891 Foundation Basement Type Partial Pool # Units Pool Size # Buildings 1 Water Total Rooms 8 Sewer Bedrooms 4 Quality Average Baths - Total 3 Other Impvs MLS Total Baths Equipment Ls1 FEATURES Feature Type Size/Qty Att Garage-Frm 443 Opn Prch-Frm 94 Wd Deck 304 Und Spnklr 500 Building Description Building Size LISTING INFORMATION MLS Listing Id MLS Listing Contract Date MLS Days On Market MLS Pending Date MLS Source MLS Close Date MLS Status MLS List Office Name MLS Status Change Date MLS List Agent Full Name MLS Current Price MLS Buyer Agent Full Name MLS Original List Price MLS Buyer Office Name MLS Close Price MLS Listing # MLS Source History MLS Status MLS Listing Cancellation Date MLS Listing Price MLS Orig Listing Price MLS Listing Close Price MLS Listing Date MLS Close Date MLS Listing Expiration Date LAST MARKET SALE & SALES HISTORY Sale Date 02/24/1998 Deed Type Warranty Deed Sale Price $144,995 Owner Name Medlock Wanda Price per SqFt - Finished $76.68 Owner Name 2 Document Number 29277 Seller Pridemark Home Building Grp Ll Sale Type Full Sale Date 02/24/1998 09/26/1997 04/29/1997 11/04/1994 Sale Price $144,995 $18,605 $390,700 $240,000 Nominal Buyer Medlock Wanda Pridemark Hm Building Grp LLC Pridemark Dev Co LLC Gateway American Prop LLC Buyer Seller Pridemark Home Building G rp Ll Pridemark Dev Co LLC Gateway American Prop LL C Gateway Village Ltd Liability Document Number 29277 132323 57249 169818 Document Type Warranty Deed Special Warranty Deed Special Warranty Deed Warranty Deed Title Company Multi/Split Sale Type Multiple Multiple MORTGAGE HISTORY Mortgage Date 04/29/2020 08/13/2005 03/31/2003 06/07/2001 02/27/1998 Property Details Courtesy of John Taylor, REcolorado Generated on:02/07/23 The data within this report is compiled by CoreLogic from public and private sources The data is deemed reliable, but is not guaranteed The accuracy of the data contained herein can be independently verified by the recipient of this report with the applicable county or municipality Page 2/4
Mortgage Amount $176,000 $25,000 $180,000 $177,000 $129,346 Mortgage Lender Mr Cooper US Bk Na/Nd Stonecreek Fndg Corp First Union Mtg Corp Pridefinancial Svcs Lp Borrower Medlock Wanda Medlock Wanda Medlock Wanda Medlock Wanda Medlock Wanda Borrower Mortgage Type Conventional Conventional Conventional Conventional Fha Mortgage Purpose Refi Refi Refi Refi Resale Mortgage Int Rate Mortgage Int Rate Type Fixed Rate Loan Fixed Rate Loan Adjustable Int Rate Loa n Mortgage Term 30 30 30 Mortgage Term Years Years Years Title Company First American Title Oxford Title Agcy Transnation Title Ins C o Mortgage Date 05/06/1997 11/09/1994 Mortgage Amount $2,500,000 $6,000,000 Mortgage Lender Vectra Bk Megabank/Arapahoe Borrower Pridemark Dev Co LLC Gateway American Prop LLC Borrower Mortgage Type Conventional Conventional Mortgage Purpose Resale Resale Mortgage Int Rate Mortgage Int Rate Type Adjustable Int Rate Loan Mortgage Term Mortgage Term Title Company FORECLOSURE HISTORY Document Type Default Date Foreclosure Filing Date Recording Date Document Number Book Number Page Number Default Amount Final Judgment Amount Original Doc Date Original Document Number Original Book Page Lien Type Property Details Courtesy of John Taylor, REcolorado Generated on:02/07/23 The data within this report is compiled by CoreLogic from public and private sources The data is deemed reliable, but is not guaranteed The accuracy of the data contained herein can be independently verified by the recipient of this report with the applicable county or municipality Page 3/4
PROPERTY MAP *Lot Dimensions are Estimated Property Details Courtesy of John Taylor, REcolorado Generated on:02/07/23 The data within this report is compiled by CoreLogic from public and private sources The data is deemed reliable, but is not guaranteed The accuracy of the data contained herein can be independently verified by the recipient of this report with the applicable county or municipality Page 4/4

Map of Comparable Listings

STATUS: A = ACTIVE P = PENDING P = ACTIVE UNDER CONTRACT S = CLOSED

MLS # STATUS ADDRESS BEDS BATHS SQFT PRICE 1 Subject 4934 Eureka Ct 4 3.00 1,8912 7710704 A 15122 E 50th Way 3 2.00 - $485,000 3 9590991 A 4912 Altura Street 3 2.00 - $439,900 4 2868215 A 4633 Durham Court 4 3.00 - $500,000 5 6514034 A 4983 Altura Street 3 2.00 - $445,000 6 9392072 P 4860 Duluth Court 3 2.00 - $450,000 7 3283453 P 4936 Fraser Way 4 2.00 - $460,000 8 1580453 P 14448 E 48th Avenue 4 4.00 - $550,000 9 9604500 P 5099 Elkhart Street 4 4.00 - $524,900 10 6153079 P 4900 Granby Street 5 4.00 - $480,000 11 4629048 P 4957 Duluth Court 3 2.00 - $449,900 12 7100342 P 5061 Deephaven Court 3 2.00 - $477,000 13 3096166 S 4953 Fontana Court 5 3.00 - $473,000 Comparative Market Analysis 4934 Eureka Court, Denver, Colorado 80239
John Taylor Elite Home Partners 3039156054
14 2779308 S 14405 Andrews Drive 3 2.00 - $420,000 15 2522360 S 4710 Granby Way 4 3.00 - $470,000 Comparative Market Analysis 4934 Eureka Court, Denver, Colorado 80239
3039156054
John Taylor Elite Home Partners

$485,000

3 Beds 2.00 Baths Year Built 1999

ACTIVE 9/13/22 Days on market: 112

Details

Prop Type: Single

Family Residence

County: Denver

Subdivision: Gateway Village

Style: Traditional

Full baths: 1.0

Features

Above Grade Finished Area: 1280.0

Appliances: Dishwasher, Microwave, Oven, Range, Refrigerator

Association Fee

Frequency: Annually

Association Name:

Gateway Village HOA

Basement: Full

3/4 Baths: 1.0

Acres: 0.12

Lot Size (sqft): 5,227

Garages: 2

List date: 9/13/22

Updated: Jan 3, 2023 1:14 PM

List Price: $485,000

Orig list price: $519,000

Assoc Fee: $80

Taxes: $2,267

School District: Denver 1

High: Noel Community Arts School

Middle: Noel Community Arts School

Elementary: Greenwood

Construction Materials: Frame, Wood

Siding

Cooling: Central Air

Covered Spaces: 2.0

Electric: 110 Volts

Exclusions: None

Exterior Features: Private Yard

Fencing: Full

Flooring: Carpet, Laminate, Tile

Heating: Forced Air, Natural Gas

Interior Features: High Ceilings, High Speed Internet, Open Floorplan, Vaulted Ceiling(s), WalkIn Closet(s)

Laundry Features: In Unit

Levels: One

Lot Features: Level

Parking Features: Concrete

Parking Total: 2.0

Patio And Porch Features: Deck, Patio

Road Frontage Type: Public Road

Road Responsibility: Public Maintained Road

15122 E 50th Way
#7710704
Denver, CO MLS
Comparative Market Analysis 4934 Eureka Court, Denver, Colorado 80239
John Taylor Elite Home Partners 3039156054

Road Surface Type:

Paved

Roof: Composition

Rooms Total: 7

Remarks

Sewer: Public Sewer

Utilities: Cable Available, Electricity Connected, Natural Gas Connected

Water Source: Public

Window Features: Double Pane Windows

Welcome to this incredible opportunity to own a Ranch style property, in a quiet neighborhood. This property features 3 bedrooms, 2 baths and 2 car attached garage in Gateway Village. High ceilings w/ open floor plan and a full unfinished basement, waiting for your personal touch. Sold AS IS

Courtesy of Guardian Real Estate Group Information is deemed reliable but not guaranteed.

Comparative Market Analysis 4934 Eureka Court, Denver, Colorado 80239
3039156054
John Taylor Elite Home Partners
15122 E 50th Way Denver, CO MLS #7710704 $485,000 3 Beds 2.00 Baths Year Built 1999 ACTIVE 9/13/22 Days on market: 112 Comparative Market Analysis 4934 Eureka Court, Denver, Colorado 80239
Elite
3039156054
John Taylor
Home Partners
Comparative Market Analysis 4934 Eureka Court, Denver, Colorado 80239
John Taylor Elite Home Partners
3039156054

MLS #9590991

$439,900

3 Beds 2.00 Baths Year Built 1994

ACTIVE 1/30/23 Days on market: 5

Details

Prop Type: Single

Family Residence

County: Denver

Subdivision: Gateway Village

Full baths: 2.0

Acres: 0.11

Features

Above Grade Finished Area: 1356.0

Appliances: Dryer, Dishwasher, Disposal, Oven, Refrigerator, Washer

Association Fee

Frequency: Annually

Lot Size (sqft): 4,813

Garages: 1

List date: 1/30/23

Updated: Feb 4, 2023

2:05 PM

List Price: $439,900

Orig list price: $439,900

Assoc Fee: $128

Taxes: $1,777

School District: Denver 1

High: High Tech EC

Middle: McGlone

Elementary: Greenwood

Association Name: Co management and company

Basement: Partial

Construction

Materials: Frame

Cooling: Central Air

Covered Spaces: 1.0

Exclusions: Na

Flooring: Carpet, Laminate

Heating: Forced Air

Interior Features: Entrance Foyer, Eat-in Kitchen, High Ceilings

Levels: One

Lot Features: Level

Parking Total: 1.0

Property Condition: Updated/Remodeled

Roof: Composition

Rooms Total: 5

Sewer: Public Sewer

Window Features: Double Pane Windows

4912 Altura Street Denver, CO
Comparative Market Analysis 4934 Eureka Court, Denver, Colorado 80239

Remarks

No Description for this property.

Courtesy of Regal Realtors Colorado Information is deemed reliable but not guaranteed.

Comparative Market Analysis 4934 Eureka Court, Denver, Colorado 80239
3039156054
4912 Altura Street Denver, CO MLS #9590991 $439,900 3 Beds 2.00 Baths Year Built 1994 ACTIVE 1/30/23 Days on market: 5 Comparative Market Analysis 4934 Eureka Court, Denver, Colorado 80239
3039156054
John Taylor Elite Home Partners

4 Beds 3.00 Baths Year Built 1998 ACTIVE

$500,000

Details

Prop Type: Single Family Residence

County: Denver

Subdivision: Gateway Village

Style: A-Frame

Full baths: 3.0

Features

Above Grade Finished Area: 1524.0

Appliances: Cooktop, Dishwasher, Disposal, Microwave, Oven, Refrigerator

Association Fee

Frequency: Annually

Association Fee

Includes: Maintenance

Grounds

Acres: 0.12

Lot Size (sqft): 5,360

Garages: 2

List date: 9/27/22

Updated: Feb 4, 2023 1:07 PM

List Price: $500,000

Orig list price: $525,000

Assoc Fee: $100

Taxes: $2,439

School District: Denver 1

Association Name: Gateway village

Basement: Full

Below Grade Finished Area: 407.0

Construction

Materials: Frame, Wood Siding

Cooling: None

Covered Spaces: 2.0

Electric: 110 Volts, 220 Volts

Exclusions: None.

Fencing: Full

Fireplace Features: Family Room

Fireplaces Total: 1

Flooring: Carpet, Laminate, Wood

Foundation Details: Concrete Perimeter

High: Noel Community Arts School

Middle: McGlone

Elementary: Oakland

Heating: Forced Air

Interior Features: Ceiling Fan(s), Granite Counters

Levels: Three Or More, Multi/Split, Tri-Level

Lot Features: Level

Parking Features: Concrete

Parking Total: 2.0

4633 Durham Court Denver, CO
MLS #2868215
9/27/22
on market: 130
Days
Comparative Market Analysis 4934
Colorado 80239
Eureka Court, Denver,
John Taylor Elite Home Partners 3039156054

Patio And Porch

Features: Patio

Property Condition:

Updated/Remodeled

Roof: Composition

Rooms Total: 7

Remarks

Security Features: Carbon Monoxide Detector(s), Smoke Detector(s)

Sewer: Public Sewer

Utilities: Electricity

Available, Electricity

Connected, Natural Gas

Available, Natural Gas

Connected

Water Source: Public

Beautiful 2 story home is MOVE-IN-READY! Upon entering, a cozy living room will greet you. Followed by an illuminating eat-in kitchen, updated painted white cabinets, granite countertops, appliances included. Living room features a gas fireplace for those cooler Colorado nights. This property has 4 bedroom, 3 bathroom, 2 car garage with a basement. Newer paint, carpet, hardwood floors and ceiling fans. Well kept landscape with mature trees, sprinkler system, a nice flat fenced back yard and patio. ll information deemed reliable but not guaranteed Buyers and buyer's agent to verify taxes, school information and measurements.

Courtesy of Brokers Guild Real Estate Information is deemed reliable but not guaranteed.

Comparative Market Analysis 4934 Eureka Court, Denver, Colorado 80239
3039156054
4633 Durham Court Denver, CO MLS #2868215 $500,000 4 Beds 3.00 Baths Year Built 1998 ACTIVE 9/27/22 Days on market: 130 Comparative Market Analysis 4934 Eureka Court, Denver, Colorado 80239
Taylor Elite Home Partners 3039156054
John
Comparative Market Analysis 4934 Eureka Court, Denver, Colorado 80239
John Taylor Elite Home Partners
3039156054

MLS #6514034

$445,000

3 Beds 2.00 Baths Year Built 1994

ACTIVE 9/19/22 Days on market: 132

Details

Prop Type: Single Family Residence

County: Denver

Subdivision: GATEWAY

VILLAGE FLG NO 1

Full baths: 2.0

Acres: 0.12

Features

Above Grade Finished Area: 1380.0

Appliances: Dishwasher, Microwave, Oven

Association Fee

Frequency: Annually

Association Name:

Gateway Village Homeowner Association

Lot Size (sqft): 5,352

Garages: 1

List date: 9/19/22

Updated: Feb 6, 2023 8:22 AM

List Price: $445,000

Orig list price: $475,000

Assoc Fee: $80

Taxes: $1,786

School District: Denver 1

High: DCIS at Montbello

Middle: DCIS at Montbello

Elementary: Greenwood

Basement: Partial, Unfinished

Construction

Materials: Brick, Wood

Siding

Cooling: None

Covered Spaces: 1.0

Exclusions: Alarm and Kwikset lock do not convey.

Heating: Forced Air, Natural Gas

Levels: Multi/Split

Lot Features: Level

Parking Total: 1.0

Roof: Other Rooms Total: 7

Sewer: Public Sewer

Utilities: Electricity Available, Natural Gas Available

4983 Altura Street Denver, CO
Comparative Market Analysis 4934 Eureka Court, Denver, Colorado 80239

Remarks

Come see this charming home now on the market! The kitchen boasts generous counter space, beautiful cabinets, and a center island, making cooking and entertaining a delight. Easily flow from room to room with this great floor plan with well placed windows create a bright and welcoming interior. The main bedroom and bathroom give you the perfect space for everyday living. Relax with your favorite drink in the fenced in backyard with a patio perfect for barbecues, and lush grass that surrounds the home. Don't miss this incredible opportunity. This home has been virtually staged to illustrate its potential.

Courtesy of Opendoor Brokerage LLC

Information is deemed reliable but not guaranteed.

Comparative Market Analysis 4934 Eureka Court, Denver, Colorado 80239
3039156054
4983 Altura Street Denver, CO MLS #6514034 $445,000 3 Beds 2.00 Baths Year Built 1994 ACTIVE 9/19/22 Days on market: 132 Comparative Market Analysis 4934 Eureka Court, Denver, Colorado 80239
Elite
3039156054
John Taylor
Home Partners
Comparative Market Analysis 4934 Eureka Court, Denver, Colorado 80239
John Taylor Elite Home Partners
3039156054

$450,000

3 Beds 2.00 Baths Year Built 1998

PENDING 1/15/23 Days on market: 6

Details

Prop Type: Single

Family Residence

County: Denver

Subdivision: GATEWAY

VILLAGE FLG NO 2

Full baths: 2.0

Acres: 0.12

Features

Above Grade Finished Area: 1382.0

Appliances: Dishwasher, Microwave, Oven

Association Fee

Frequency: Annually

Association Name:

Gateway Village

Homeowners Association, Inc.

Lot Size (sqft): 5,025

Garages: 2

List date: 1/9/23

Pending date: 1/15/23

Off-market date: 1/15/ 23

Updated: Jan 19, 2023 7:05 PM

List Price: $450,000

Orig list price: $450,000

Assoc Fee: $80

Taxes: $2,375

School District: Denver 1

High: Montbello

Middle: DSST: Green

Valley Ranch

Elementary: Oakland

Basement: Full, Partial

Below Grade Finished Area: 420.0

Construction Materials: Brick, Wood

Siding

Cooling: Central Air

Covered Spaces: 2.0

Exclusions: Alarm and Kwikset lock do not convey

Fireplaces Total: 1

Flooring: Carpet, Vinyl

Heating: Natural Gas

Levels: Multi/Split

Lot Features: Level

Parking Total: 2.0

Roof: Composition

Rooms Total: 7

Sewer: Public Sewer

Utilities: Electricity Available, Natural Gas Available

Virtual Tour: View

4860 Duluth Court Denver, CO
MLS #9392072
Comparative Market Analysis 4934
80239
Eureka Court, Denver, Colorado
John Taylor Elite Home Partners 3039156054

Remarks

Fantastic home in sought after location! This home has fresh interior paint and updated flooring in some areas. A fireplace and a soft neutral color palette create a solid blank canvas for the living area. The kitchen is ready for cooking with ample counter space and cabinets for storage. Relax in your primary suite with a walk in closet included. Other bedrooms provide nice flexible living space. The primary bathroom features plenty of under sink storage waiting for your home organization needs. The back yard is the perfect spot to kick back with the included sitting area. Hurry, this won't last long! This home has been virtually staged to illustrate its potential.

Courtesy of Opendoor Brokerage LLC

Information is deemed reliable but not guaranteed.

Comparative Market Analysis 4934 Eureka Court, Denver, Colorado 80239
3039156054
4860 Duluth Court Denver, CO MLS #9392072 $450,000 3 Beds 2.00 Baths Year Built 1998 PENDING 1/15/23 Days on market: 6 Comparative Market Analysis 4934 Eureka Court, Denver, Colorado 80239
Elite
3039156054
John Taylor
Home Partners

MLS #3283453

$460,000

4 Beds 2.00 Baths Year Built 1996

PENDING 1/17/23 Days on market: 188

Details

Prop Type: Single

Family Residence

County: Denver

Subdivision: Gateway Village

Style: Bi-Level

Full baths: 2.0

Acres: 0.11

Features

Above Grade Finished

Area: 1646.0

Appliances: Dishwasher, Microwave, Range, Refrigerator

Association Fee

Frequency: Annually

Association Name: Gateway Village

Homeowner

Lot Size (sqft): 5,000

Garages: 2

List date: 7/13/22

Pending date: 1/17/23

Off-market date: 1/17/ 23

Updated: Jan 17, 2023 10:14 AM

List Price: $460,000

Orig list price: $505,000

Assoc Fee: $100

Taxes: $2,290

School District: Denver 1

High: Dr. Martin Luther King

Middle: Noel

Community Arts School

Elementary: Greenwood

Construction

Materials: Brick, Frame, Wood Siding

Covered Spaces: 2.0

Exclusions: Washer, Dryer, Refrigerator and 2 Ovens in lower level, personal property

Exterior Features: Private Yard

Fireplace Features: Living Room

Fireplaces Total: 1

Flooring: Carpet, Tile

Heating: Forced Air

Levels: Bi-Level

Lot Features: Level

Parking Total: 2.0

Road Frontage Type: Public Road

Roof: Composition

Rooms Total: 6

Security Features: Security System

Sewer: Public Sewer

Water Source: Public

4936 Fraser Way Denver, CO
Comparative Market Analysis 4934
Colorado 80239
Eureka Court, Denver,
John Taylor Elite Home Partners 3039156054

Remarks

DON'T MISS THIS ONE!!

Enjoy this Great Bi-level Home in the Gateway Village Area this home features 4 bedrooms, 2 full baths, 2-car garage.

4th bedroom is small size it could be an office or kids' bedroom. Stainless steel kitchen appliances with a new dishwasher also includes a security system. (Buyer will have to contract to be monitored). Roof is 5 years old. Backyard needs new owner personal touch.

Easy access to I-70 and I-225 for a short commute to DIA, DTC or Downtown Denver. Close to dining, shopping,restaurants and entertainment.

Courtesy of Brokers Guild Real Estate Information is deemed reliable but not guaranteed.

Comparative Market Analysis 4934 Eureka Court, Denver, Colorado 80239
3039156054
4936 Fraser Way Denver, CO MLS #3283453 $460,000 4 Beds 2.00 Baths Year Built 1996 PENDING 1/17/23 Days on market: 188 Comparative Market Analysis 4934 Eureka Court, Denver, Colorado 80239
Elite
3039156054
John Taylor
Home Partners
Comparative Market Analysis 4934 Eureka Court, Denver, Colorado 80239
John Taylor Elite Home Partners
3039156054

14448 E 48th Avenue

$550,000

MLS #1580453

4 Beds 4.00 Baths Year Built 1998

PENDING 1/8/23 Days on market: 100

Details

Prop Type: Single

Family Residence

County: Denver

Subdivision: Gateway Village

Style: Contemporary

Full baths: 2.0

3/4 Baths: 1.0

Features

Above Grade Finished Area: 1876.0

Appliances: Dishwasher, Disposal, Microwave, Oven, Range, Refrigerator

Association Fee

Frequency: Annually

Half baths: 1.0

Acres: 0.18

Lot Size (sqft): 7,958

Garages: 3

List date: 9/30/22

Pending date: 1/8/23

Off-market date: 1/8/23

Updated: Jan 23, 2023 10:11 AM

List Price: $550,000

Orig list price: $595,000

Assoc Fee: $80

Taxes: $2,706

School District: Denver

1

High: KIPP Denver

Collegiate High School

Middle: McGlone

Elementary: Maxwell

Association Fee Includes: Maintenance

Grounds

Association Name: Gateway Village

Homeowners Association

Basement: Full, Finished, Sump Pump

Below Grade Finished Area: 1018.0

Common Walls: No

Common Walls

Construction Materials: Brick, Wood

Siding

Cooling: Central Air

Covered Spaces: 3.0

Electric: 220 Volts in Garage

Exclusions: Exterior Camera's and Security System will be removed.

Exterior Features: Lighting, Private Yard

Fencing: Full

Fireplace Features: Family Room

Flooring: Carpet, Concrete, Tile, Wood

Denver, CO
Comparative Market Analysis 4934
80239
Eureka Court, Denver, Colorado
John Taylor Elite Home Partners
3039156054

Foundation Details: Concrete Perimeter

Heating: Forced Air

Interior Features: Breakfast Area, Ceiling Fan(s), Eat-in Kitchen, Five Piece Bathroom, Granite Counters, High Ceilings, Kitchen Island, Open Floorplan, Pantry, Utility Sink, Vaulted Ceiling(s), Walk-In Closet(s)

Remarks

Levels: Two

Lot Features: Cul-DeSac, Sprinklers In Rear, Sprinklers In Front, Level

Parking Features: Finished Garage

Parking Total: 3.0

Patio And Porch

Features: Covered, Front Porch, Patio

Road Frontage Type: Public Road

Road Responsibility: Public Maintained Road

Road Surface Type: Paved

Roof: Composition Rooms Total: 16

Security Features: Carbon Monoxide

Detector(s)

Sewer: Public Sewer

Water Source: Public

Window Features: Bay Window(s)

Welcome to this beautiful, one owner, well-maintained home located in the center of a cul-de-sac. The front and back yards have large, beautiful planters with drip lines to maintain the flowers. There is a wonderful fountain in the back yard for relaxing evenings under the covered patio and adds evening ambiance. The front of this beautiful home has a brick laid patio with evening solar mode lighting. Upon entering the home, you will be greeted by the formal living room and dining room with vaulted ceilings and a bay window. The eat-in kitchen was recently updated with granite counter tops, granite sink, refrigerator and appliances. The kitchen overlooks the family room with a gas burning fireplace. Hardwood on the stairs to the upper-level hallway that leads to 2 bedrooms, a full bath and the Primary bedroom with 2 closets, and 5-piece bath. The Basement is fully finished with a bedroom, bathroom, washer/dryer connections, den/family room, kitchenette, storage and more! Electric heater in garage with storge cabinets are included. 3 sheds in the back yard are included with ample room remaining for entertaining guest. Just a short walk to schools and parks. Close to bus line, light rail, grocery stores, eating, restaurant's, I70, DIA, Children's Hospital, VA hospital, Arsenal, Northfield Shopping center, and more!

Courtesy of HomeSmart

Information is deemed reliable but not guaranteed.

Comparative Market Analysis 4934 Eureka Court, Denver, Colorado 80239
3039156054
14448 E 48th Avenue Denver, CO MLS #1580453 $550,000 4 Beds 4.00 Baths Year Built 1998 PENDING 1/8/23 Days on market: 100 Comparative Market Analysis 4934 Eureka Court, Denver, Colorado 80239
Elite Home Partners 3039156054
John Taylor
Comparative Market Analysis 4934 Eureka Court, Denver, Colorado 80239
John Taylor Elite Home Partners
3039156054

MLS #9604500

$524,900

4 Beds 4.00 Baths Year Built 1999

Days on market: 121

Details

Prop Type: Single Family Residence

County: Denver

Subdivision: Gateway Village

Full baths: 2.0

3/4 Baths: 1.0

Half baths: 1.0

Features

Above Grade Finished

Area: 1456.0

Appliances: Dishwasher, Disposal, Microwave, Oven, Refrigerator

Association Fee

Frequency: Annually

Association Fee

Includes: Maintenance

Grounds

Acres: 0.13

Lot Size (sqft): 5,546

Garages: 2

List date: 10/5/22

Active Under Contract date: 2/3/23

Off-market date: 2/3/23

Updated: Feb 3, 2023 6:25 PM

List Price: $524,900

Orig list price: $549,000

Assoc Fee: $80

Taxes: $2,514

School District: Denver

1

High: Noel Community Arts School

Middle: McGlone

Elementary: Greenwood

Association Name: Gateway Village

Basement: Full

Below Grade Finished Area: 644.0

Construction

Materials: Brick, Frame, Wood Siding

Cooling: None

Covered Spaces: 2.0

Exclusions: Sellers' Personal Property, Staging Items, Play Set in Back Yard, Washer, Dryer

Exterior Features: Private Yard

Fencing: Partial

Fireplace Features: Gas Log, Living Room

Fireplaces Total: 1

Flooring: Carpet, Laminate

Heating: Forced Air

5099 Elkhart Street Denver, CO
ACTIVE UNDER CONTRACT 2/3/23
Comparative Market Analysis 4934 Eureka Court, Denver, Colorado 80239
John Taylor Elite Home Partners 3039156054

Interior Features: Ceiling Fan(s), Five Piece Bathroom, Granite Counters, High Ceilings, Primary Suite, Open Floorplan, Pantry, Smoke Free, Vaulted Ceiling(s)

Levels: Two

Lot Features: Corner

Lot, Landscaped, Level

Parking Total: 2.0

Patio And Porch

Features: Covered, Front Porch, Patio

Remarks

Road Frontage Type: Public Road

Road Surface Type: Paved

Roof: Composition

Rooms Total: 12

Security Features: Security System, Carbon Monoxide Detector(s)

Sewer: Public Sewer

Window Features: Double Pane Windows

Newly priced for the New Year!!! Beautifully updated residence in Gateway Village!! Convenient corner location with bright, open floor plan. Newer paint and porcelain tile flooring on the main level provide tasteful color palette. The kitchen boasts a stainless Samsung appliance package, granite counters, and bright, white cabinetry for a classy, contemporary feel. Three bedrooms upstairs highlighted by gracious primary retreat with walk-in closet and 5-piece bathroom. The finished basement offers the perfect room for a movie or hobbies, plus guest suite. Roof replaced in 2019. Home Warranty included for your convenience. The yard backs to open space that can be used by neighborhood residents for play or family functions. Just a short distance to Maxwell Elementary School, DCIS-Montbello/Noel Community Arts School and Montbello Central Park. Located near shops and recreation centers. Convenient distance from Children's Hospital and the VA hospital, retail and restaurants. Easy access to I 70, E470, Light Rail, Downtown Denver, DIA and the Gaylord Resort. Welcome Home!!

Courtesy of Kentwood Real Estate City Properties Information is deemed reliable but not guaranteed.

Comparative Market Analysis 4934 Eureka Court, Denver, Colorado 80239
John Taylor
3039156054
5099 Elkhart Street Denver, CO MLS #9604500 $524,900 4 Beds 4.00 Baths Year Built 1999 ACTIVE UNDER CONTRACT 2/3/23 Days on market: 121 Comparative Market Analysis 4934 Eureka Court, Denver, Colorado 80239
Taylor Elite Home Partners 3039156054
John
Comparative Market Analysis 4934 Eureka Court, Denver, Colorado 80239
John Taylor Elite Home Partners
3039156054

4900 Granby Street

$480,000

MLS #6153079

5 Beds 4.00 Baths Year Built 1998

PENDING 1/24/23 Days on market: 12

Details

Prop Type: Single

Family Residence

County: Denver

Subdivision: Gateway Village

Full baths: 2.0

3/4 Baths: 1.0

Half baths: 1.0

Features

Above Grade Finished

Area: 1694.0

Appliances: Dishwasher, Disposal, Gas Water

Heater, Microwave, Range, Refrigerator

Association Fee

Frequency: Annually

Acres: 0.14

Lot Size (sqft): 6,166

Garages: 2

List date: 1/12/23

Pending date: 1/24/23

Off-market date: 1/24/ 23

Updated: Jan 24, 2023 8:50 PM

List Price: $480,000

Orig list price: $480,000

Assoc Fee: $80

Taxes: $2,467

School District: Denver

1

High: Dr. Martin Luther King

Middle: Noel

Community Arts School

Elementary: Greenwood

Association Fee Includes: Maintenance

Grounds Association Name: Gateway Village

Homeowners Assoc.

Basement: Crawl Space, Finished, Interior Entry, Partial, Bath/Stubbed

Below Grade Finished

Area: 576.0

Construction Materials: Brick, Frame

Cooling: Central Air

Covered Spaces: 2.0

Direction Faces: West

Exclusions: All appliances in the garage, Security doorbell and cameras, Washer, Dryer and Personal belongings

Exterior Features: Private Yard

Fencing: Full

Fireplace Features: Family Room

Denver, CO
Comparative Market Analysis 4934 Eureka Court, Denver, Colorado 80239
John Taylor Elite Home Partners 3039156054

Fireplaces Total: 1

Flooring: Carpet, Tile, Vinyl, Wood

Foundation Details: Slab

Heating: Forced Air

Interior Features: Ceiling Fan(s), Granite Counters, High Speed Internet, Primary Suite, Smoke Free, Smart Thermostat, Walk-In Closet(s)

Laundry Features: In Unit

Levels: Two

Lot Features: Adjacent

To Public Land, Corner Lot, Sprinklers In Rear, Sprinklers In Front, Near Public Transit

Parking Features: Concrete

Parking Total: 2.0

Patio And Porch Features: Patio

Remarks

Road Frontage Type: Public Road

Road Responsibility: Public Maintained Road

Road Surface Type: Paved

Roof: Composition

Rooms Total: 14

Security Features: Carbon Monoxide

Detector(s), Smoke Detector(s)

Sewer: Public Sewer

Utilities: Cable

Available, Electricity

Connected, Natural Gas

Connected

Water Source: Public

Window Features: Double Pane Windows, Window Treatments

Corner lot, 5 bedrooms, 3.5 bathrooms, fireplace AND a finished basement! Located close to public transportation, this two-story has 4 upper-level bedrooms including the primary bedroom w/a large full bath & walk-in closet. Three additional good-sized bedrooms, laundry closet, and a full bath finish off the upper level. The main level flows with living, dining, and family room spaces and hardwood floors throughout. Stainless steel appliances, stainless sink, and granite countertops grace the moderate-sized kitchen. The guest bath is located adjacent to the garage entrance and away from the kitchen. Another bedroom w/egress window, 3/4 bath, and bonus room make up the basement. The bonus room can easily be converted to a sixth bedroom or used as an office, theatre, or fitness room. Close to shops, restaurants, and DIA, this property has a lot to offer for the price.

Courtesy of HomeSmart Information is deemed reliable but not guaranteed.

Comparative Market Analysis 4934 Eureka Court, Denver, Colorado 80239
4900 Granby Street Denver, CO MLS #6153079 $480,000 5 Beds 4.00 Baths Year Built 1998 PENDING 1/24/23 Days on market: 12 Comparative Market Analysis 4934 Eureka Court, Denver, Colorado 80239
Elite
3039156054
John Taylor
Home Partners
Comparative Market Analysis 4934 Eureka Court, Denver, Colorado 80239
John Taylor Elite Home Partners
3039156054

$449,900

3 Beds 2.00 Baths Year Built 1999

Details

Prop Type: Single Family Residence

County: Denver

Subdivision: Gateway Village

Full baths: 2.0

Acres: 0.13

Features

Above Grade Finished Area: 1382.0

Appliances: Dryer, Dishwasher, Disposal, Microwave, Oven, Range, Refrigerator, Range Hood, Washer

Association Fee

Frequency: Annually

Lot Size (sqft): 5,600

Garages: 2

List date: 12/4/22

Active Under Contract date: 12/30/22

Off-market date: 12/30/ 22

Association Name: Gateway Village Homeowners Associiation, Inc

Basement: Crawl Space, Partial, Unfinished

Construction

Materials: Brick, Frame, Wood Siding

Cooling: Central Air

Covered Spaces: 2.0

Updated: Dec 30, 2022 3:43 PM

List Price: $449,900

Orig list price: $455,000

Assoc Fee: $100

Taxes: $2,357

Exclusions: Seller's Personal Property, All brewing equipment in the basement, all refrigerators and freezers in the basement, storage racks mounted in the basement, TV's and TV mounts

Exterior Features: Dog Run

Fencing: Full, Partial

School District: Denver

1

High: Montbello

Middle: Rachel B. Noel

Elementary: Maxwell

Flooring: Tile

Heating: Forced Air

Interior Features: Ceiling Fan(s), Eat-in Kitchen, Quartz Counters, Smoke Free

Levels: Three Or More, Multi/Split, Tri-Level

Lot Features: Level

Parking Total: 2.0

4957 Duluth Court Denver, CO
MLS #4629048
ACTIVE UNDER CONTRACT 12/30/22 Days on market: 26
Comparative Market Analysis
80239
4934 Eureka Court, Denver, Colorado
John Taylor
3039156054
Elite Home Partners

Patio And Porch

Features: Deck, Front Porch

Property Condition:

Updated/Remodeled

Remarks

Roof: Composition

Rooms Total: 5

Security Features: Carbon Monoxide

Detector(s)

Sewer: Public Sewer

Water Source: Public

Come see this well maintained 3 bed 2 bath home in Gateway Village with many updated features throughout* This midsized home features new tile flooring in every room of the house with tile baseboards added as well* The kitchen has new backsplash with quartz countertops* The bathrooms were also updated with quartz countertops* Newer stainless steal appliances in the kitchen with a new farmhouse sink and garbage disposal* A new high efficiency furnace was installed roughly two year ago with a new A/C unit and hot water heater* The interior of the house has been freshly repainted while the exterior of the home was painted in 2017* The sellers recently installed new outlets, light switches and fans* There's an attached two car garage with a cutout for a workbench* The backyard is low maintenance w/ a large deck and dog run* The schools are within walking distance and offer playgrounds and parks* Easy access to I-70, E-470, Light Rail stations and DIA* Within close proximity to Shopping centers, Restaurants and Rec Centers* The seller is also offering a $5k concessions for the buyers to use towards their loan* Come schedule your showing today!

Courtesy of Weichert Realtors Professionals

Information is deemed reliable but not guaranteed.

Comparative Market Analysis 4934 Eureka Court, Denver, Colorado 80239
3039156054
4957 Duluth Court Denver, CO MLS #4629048 $449,900 3 Beds 2.00 Baths Year Built 1999 ACTIVE UNDER CONTRACT 12/30/22 Days on market: 26 Comparative Market Analysis 4934 Eureka Court, Denver, Colorado 80239
Taylor Elite Home Partners 3039156054
John
Comparative Market Analysis 4934 Eureka Court, Denver, Colorado 80239
John Taylor Elite Home Partners
3039156054

5061 Deephaven Court

$477,000

MLS #7100342

3 Beds 2.00 Baths Year Built 1999

PENDING 11/25/22 Days on market: 29

Details

Prop Type: Single Family Residence

County: Denver

Subdivision: GATEWAY

VILLAGE FLG NO 3

Full baths: 2.0

Acres: 0.14

Features

Above Grade Finished

Area: 1683.0

Appliances: Dishwasher, Oven

Association Fee

Frequency: Annually

Association Name:

Gateway Village HOA

Lot Size (sqft): 6,265

Garages: 2

List date: 8/29/22

Pending date: 11/25/22

Off-market date: 11/25/ 22

Updated: Nov 25, 2022 7:00 PM

List Price: $477,000

Orig list price: $483,000

Assoc Fee: $80

Taxes: $2,628

School District: Denver 1

High: DCIS at Montbello

Middle: McGlone

Elementary: Greenwood

Basement: Partial, Unfinished Construction

Materials: Brick, Wood

Siding

Cooling: Central Air

Covered Spaces: 2.0

Exclusions: Alarm and Kwikset lock do not convey.

Heating: Natural Gas

Levels: One

Lot Features: Level

Parking Total: 2.0

Roof: Other

Rooms Total: 7

Sewer: Public Sewer

Utilities: Electricity Available, Natural Gas Available

Denver, CO
Comparative Market Analysis 4934 Eureka Court, Denver, Colorado 80239

Remarks

Welcome to this gorgeous neighborhood! You'll love this home in Denver. Enjoy cooking in this stylish kitchen with stainless appliances and a center island, great for food preparation. Step inside this beautiful interior with vaulted ceilings, plenty of natural light, and neutral palette. Entertaining is a breeze with this great floor plan complete with a cozy fireplace. A luxurious primary suite, complete with a walk-in closet, and an en-suite bathroom. Relax with your favorite drink in the fenced in backyard with a patio and lush grass. Hurry, this won't last long!

Courtesy of Opendoor Brokerage LLC

Information is deemed reliable but not guaranteed.

Comparative Market Analysis 4934 Eureka Court, Denver, Colorado 80239
5061 Deephaven Court Denver, CO MLS #7100342 $477,000 3 Beds 2.00 Baths Year Built 1999 PENDING 11/25/22 Days on market: 29 Comparative Market Analysis 4934 Eureka Court, Denver, Colorado 80239
Elite Home Partners 3039156054
John Taylor
Comparative Market Analysis 4934 Eureka Court, Denver, Colorado 80239
John Taylor Elite Home Partners
3039156054

MLS #3096166

$473,000

5 Beds 3.00 Baths Year Built 1997 CLOSED 12/9/22 Days on market: 3

Details

Prop Type: Single

Family Residence

County: Denver

Subdivision: Gateway Village

Full baths: 3.0

Acres: 0.11

Features

Above Grade Finished Area: 1827.0

Appliances: Dryer, Dishwasher, Microwave, Range, Refrigerator, Washer

Association Fee

Frequency: Annually

Association Name:

Gateway Village HOA

Basement: Full

Lot Size (sqft): 4,750

Garages: 2

List date: 11/9/22

Sold date: 12/9/22

Off-market date: 11/12/ 22

Updated: Dec 10, 2022 4:59 PM

List Price: $475,000

Orig list price: $475,000

Assoc Fee: $100

Taxes: $2,777

Below Grade Finished Area: 684.0

Construction

Materials: Frame

Cooling: Central Air

Covered Spaces: 2.0

Exclusions: None

Fireplace Features: Living Room

Fireplaces Total: 1

Flooring: Laminate, Tile

Heating: Forced Air

Interior Features:

Ceiling Fan(s), Eat-in

Kitchen, Five Piece

Bathroom, High Ceilings, Kitchen Island

Levels: Multi/Split

Lot Features: Level

Parking Total: 2.0

Roof: Composition

School District: Denver 1

High: Dr. Martin Luther King

Middle: McGlone

Elementary: Greenwood

Rooms Total: 11

Sewer: Public Sewer

Utilities: Cable Available, Electricity Connected, Natural Gas Connected

Water Source: Public

4953 Fontana Court Denver, CO
Comparative
4934
80239
Market Analysis
Eureka Court, Denver, Colorado
John Taylor Elite Home Partners 3039156054

Remarks

Room for the whole family! This Wonderfully Sized 5 bed 3 bath home in Gateway Village is ready for your viewing. Everyone can have their own bedroom. Primary bedroom includes a 5 piece bath with large shower, double sinks, and walk in closet. Plenty of living space with the eat in kitchen, separate living and family rooms, and additional space in the basement. This great properties Boasts a New Range, all appliances along with the washer & dryer included, private back yard, & gas fireplace. Two additional bedrooms and bathroom in the finished basement. You are close to shopping, Schools, restaurants, highways, & DIA. *** Sellers are offering a $5000 concession so get your showing in today ***

Courtesy of HomeSmart Information is deemed reliable but not guaranteed.

Comparative Market Analysis 4934 Eureka Court, Denver, Colorado 80239
4953 Fontana Court Denver, CO MLS #3096166 $473,000 5 Beds 3.00 Baths Year Built 1997 CLOSED 12/9/22 Days on market: 3 Comparative Market Analysis 4934 Eureka Court, Denver, Colorado 80239
3039156054
John Taylor Elite Home Partners

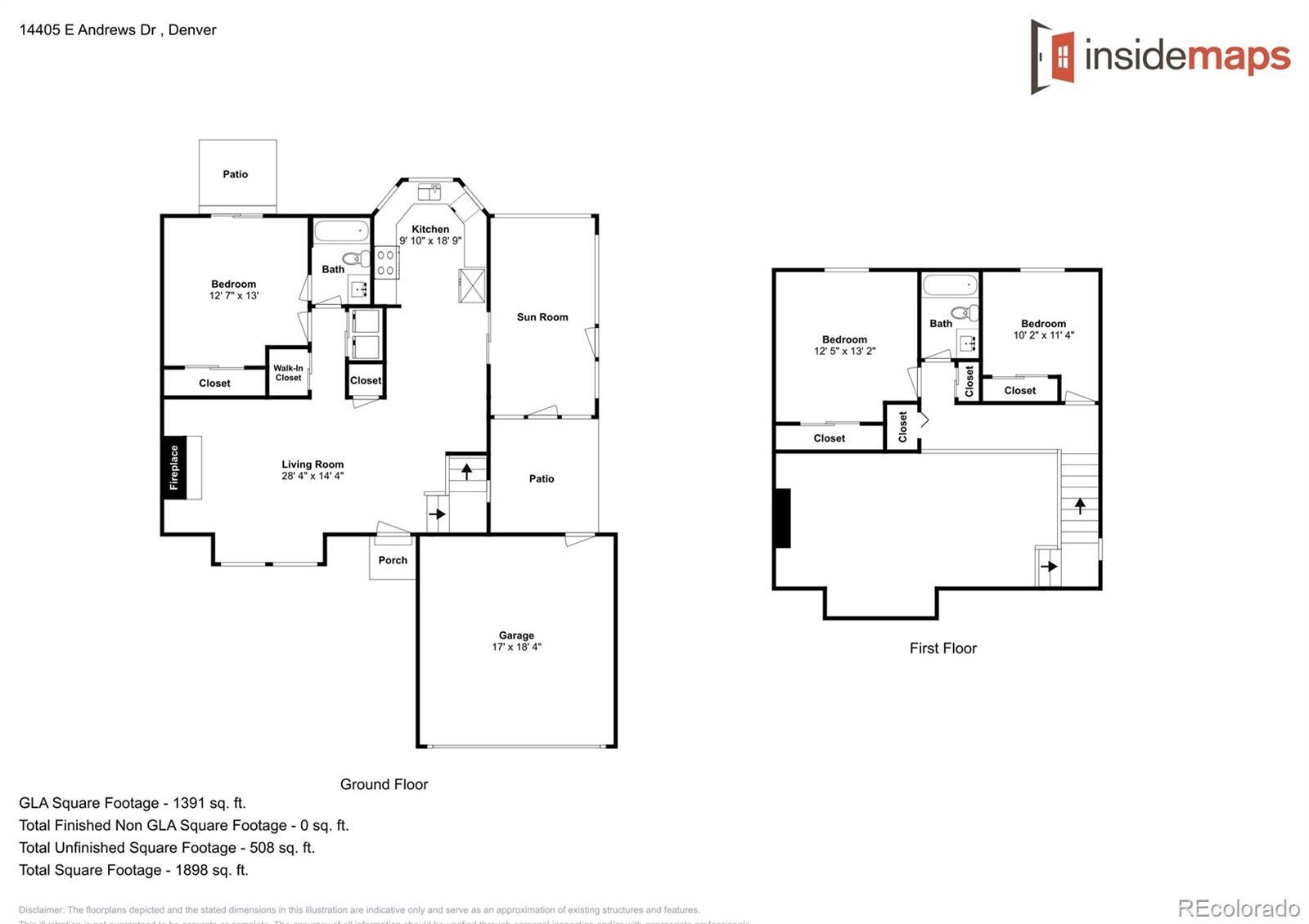
14405 Andrews Drive

MLS #2779308

$420,000

3 Beds 2.00 Baths Year Built 1986 CLOSED 12/8/22 Days on market: 67

Details

Prop Type: Single Family Residence

County: Denver

Subdivision: Deer Run

Full baths: 2.0

Acres: 0.14

Features

Above Grade Finished Area: 1236.0

Appliances: Dishwasher, Microwave, Range, Refrigerator

Construction

Materials: Brick, Vinyl

Siding, Wood Siding

Cooling: Central Air

Covered Spaces: 2.0

Lot Size (sqft): 6,310

Garages: 2

List date: 8/12/22

Sold date: 12/8/22

Off-market date: 11/16/ 22

Updated: Dec 8, 2022 3:04 PM

List Price: $424,900

Orig list price: $449,900

Taxes: $1,855

Exclusions: None

Fencing: Full

Fireplace Features: Living Room, Wood Burning, Wood Burning Stove

Fireplaces Total: 1

Flooring: Carpet, Vinyl

Foundation Details: Slab

Heating: Forced Air, Natural Gas

Interior Features: Open Floorplan, Quartz Counters, Walk-In Closet(s)

Levels: Two

Lot Features: Level

School District: Denver 1

High: Noel Community Arts School

Middle: McGlone

Elementary: Maxwell

Parking Total: 2.0

Property Condition:

Updated/Remodeled

Roof: Composition

Rooms Total: 8

Sewer: Public Sewer

Virtual Tour: View

Water Source: Public

Denver, CO
Comparative Market Analysis 4934 Eureka Court, Denver, Colorado 80239
John Taylor Elite Home Partners 3039156054

Remarks

Move-In Ready! Freshly remodeled home across the street from Montbello's central park. Enter this great home and be greeted with an open living area that flows into the updated kitchen. New carpet and luxury vinyl flooring throughout the home. Kitchen has stainless steel appliances, and quartz countertops. Main level is completed with 1 bedroom and 1 bath. Head up to the second level where you'll find two good sized bedrooms and a updated full bathroom! Schedule your tour today!

Courtesy of OfferPad Brokerage Information is deemed reliable but not guaranteed.

Comparative Market Analysis 4934 Eureka Court, Denver, Colorado 80239
John
3039156054
14405 Andrews Drive Denver, CO MLS #2779308 $420,000 3 Beds 2.00 Baths Year Built 1986 CLOSED 12/8/22 Days on market: 67 Comparative Market Analysis 4934 Eureka Court, Denver, Colorado 80239
Elite Home Partners 3039156054
John Taylor

$470,000

4 Beds 3.00 Baths Year Built 1984 CLOSED

Days on market: 17

Details

Prop Type: Single

Family Residence

County: Denver

Subdivision: Concord

Style: Contemporary

Full baths: 1.0

3/4 Baths: 2.0

Features

Above Grade Finished

Area: 2237.0

Appliances: Dishwasher, Disposal, Gas Water

Heater, Range, Refrigerator

Common Walls: No

Common Walls

Construction

Materials: Frame

Cooling: Central Air

Acres: 0.17

Lot Size (sqft): 7,260

Garages: 2

List date: 9/24/22

Sold date: 11/11/22

Off-market date: 10/11/ 22

Covered Spaces: 2.0

Current Use: Live/Work

Direction Faces: South

Electric: 220 Volts

Exclusions: WASHER, DRYER, AND FREEZER IN THE GARAGE

Exterior Features: Private Yard

Fencing: Full

Updated: Nov 15, 2022 11:39 AM

List Price: $479,900

Orig list price: $489,900

Taxes: $1,955

School District: Denver 1

High: Noel Community Arts School

Middle: Noel Community Arts School

Elementary: Oakland

Fireplace Features: Family Room

Fireplaces Total: 1

Flooring: Carpet, Vinyl

Foundation Details: Raised

Furnished: Unfurnished

Heating: Forced Air, Natural Gas

Interior Features: Entrance Foyer, Granite Counters, High Ceilings, Kitchen Island, Primary Suite, Open Floorplan, Smoke Free, Vaulted Ceiling(s), Walk-In Closet(s)

Laundry Features: In Unit Levels: Two

4710 Granby Way Denver, CO MLS #2522360
11/11/22
Market Analysis
80239
Comparative
4934 Eureka Court, Denver, Colorado
John Taylor Elite Home Partners
3039156054

Lot Features: Level, Near Public Transit

Parking Features:

Concrete, Exterior

Access Door

Parking Total: 5.0

Patio And Porch Features: Deck

Property Condition:

Updated/Remodeled

Remarks

Road Frontage Type: Public Road

Road Responsibility: Public Maintained Road

Road Surface Type: Paved

Roof: Composition

Rooms Total: 10

Security Features: Carbon Monoxide

Detector(s)

Sewer: Public Sewer

Utilities: Cable Available, Electricity

Connected, Natural Gas Connected

Vegetation: Grassed

Virtual Tour: View

Water Source: Public

Window Features: Double Pane Windows, Window Treatments

NEW PRICE! Fall in love with this sunny, remodeled bi-level home! From the entry foyer, step up to the expansive Great Room featuring the Living, Dining, and fabulous Kitchen rooms. The Kitchen has newer wood Cabinets with rollout shelving, a large Granite topped Kitchen island with storage, Granite countertops, and upscale Stainless steel Appliances. Off the Great Room is a Private Deck for outdoor dining and relaxing under the shade trees. To the left is the Primary Bedroom with a newer Full Bath and Walk-in closet. To the right of the Kitchen is a hallway leading to two Bedrooms and a newer 3/4 Bath. All new flooring throughout. Moving downstairs to the lower level, you will be taken aback by an enormous Family room featuring New Carpet, large Windows, and a cozy Wood-Burning Fireplace. This space is perfect for a Home Theater, Pool Table, and/or Bar for entertaining and watching the game. To round off this level there is a fourth Bedroom, another 3/4 Bath, and a Laundry Room. Heading outside there is a large private Fenced yard and huge Patio that can be used for entertaining and grilling, and a newly sodded grassy Play Area. This home is equipped with a Two-Car Garage and plenty of Parking with three Driveway parking spaces. In 2016, the current owners added a new Furnace, Central Air, and upgraded all Appliances. New roof shingles in 2015. This wonderful home is conveniently located near I-70, 15 minutes to DIA, steps to Parkfield Lake Park, a 9-minute walk to Dog Park, and plenty of Convenience Stores and Restaurants.

Courtesy of Brokers Guild Homes Information is deemed reliable but not guaranteed.

Comparative Market Analysis 4934 Eureka Court, Denver, Colorado 80239
3039156054
4710 Granby Way Denver, CO MLS #2522360 $470,000 4 Beds 3.00 Baths Year Built 1984 CLOSED 11/11/22 Days on market: 17 Comparative Market Analysis 4934 Eureka Court, Denver, Colorado 80239
Elite
3039156054
John Taylor
Home Partners
Comparative Market Analysis 4934 Eureka Court, Denver, Colorado 80239
3039156054
John Taylor Elite Home Partners

Comparable Property Statistics

Listings
7 Pending Listings
3 Sold Listings LOWEST $439,900 AVERAGE $467,475 HIGH $500,000 AVG PRICE / SQFT AVG DOM 94 LOWEST $449,900 AVERAGE $484,542 HIGH $550,000 AVG PRICE / SQFT AVG DOM 68 LOWEST $420,000 AVERAGE $454,333 HIGH $473,000 AVG PRICE / SQFT AVG DOM 29 Comparative Market Analysis 4934 Eureka Court, Denver, Colorado 80239
A 4 Active
P
S
John
Taylor Elite Home Partners 3039156054

Sold Property Analysis

Averages

98.8%

Homes sold for an average of 98.8% of their list price.

Analysis

29 Days on market

It took an average of 29 days for a home to sell.

ADDRESS ORIG LIST PRICE SOLD PRICE % OF ORIG LIST PRICE DOM $ PER SQFT 4953 Fontana Court $475,000 $473,000 99.58% 314405 Andrews Drive $449,900 $420,000 93.35% 674710 Granby Way $489,900 $470,000 95.94% 17Averages $471,600 $454,333 96.34% 29Comparative Market Analysis 4934 Eureka Court, Denver, Colorado 80239
3039156054

Summary of Comparable Properties

A ACTIVE LISTINGS

P PENDING LISTINGS

S SOLD LISTINGS

ADDRESS SOLD DATE BEDS BATHS SQFT PRICE $/SQ.FT 15122 E 50th Way - 3 2.00 - $485,0004912 Altura Street - 3 2.00 - $439,9004633 Durham Court - 4 3.00 - $500,0004983 Altura Street - 3 2.00 - $445,000Averages - $467,475
ADDRESS SOLD DATE BEDS BATHS SQFT PRICE $/SQ.FT 4860 Duluth Court - 3 2.00 - $450,0004936 Fraser Way - 4 2.00 - $460,00014448 E 48th Avenue - 4 4.00 - $550,0005099 Elkhart Street - 4 4.00 - $524,9004900 Granby Street - 5 4.00 - $480,0004957 Duluth Court - 3 2.00 - $449,9005061 Deephaven Court - 3 2.00 - $477,000Averages - $484,542
ADDRESS SOLD DATE BEDS BATHS SQFT PRICE $/SQ.FT 4953 Fontana Court 12/9/22 5 3.00 - $473,00014405 Andrews Drive 12/8/22 3 2.00 - $420,0004710 Granby Way 11/11/22 4 3.00 - $470,000Averages - $454,333 Comparative Market Analysis 4934 Eureka Court, Denver, Colorado 80239
John Taylor Elite Home Partners 3039156054

Turn static files into dynamic content formats.

Create a flipbook
Issuu converts static files into: digital portfolios, online yearbooks, online catalogs, digital photo albums and more. Sign up and create your flipbook.