

Sinkamat- K Mono
Kelderdompelpompen voor niet fecaliënhoudend afvalwater
Pompinstallaties voor inbouw
![]()


Sinkamat- K Mono
Kelderdompelpompen voor niet fecaliënhoudend afvalwater
Pompinstallaties voor inbouw
Productvoordelen
n „Quick“ aansluiting voor (de)montage van de pomp zonder gereedschap
n Extra afdichtingsflens, in te storten in waterdichte betonvloer als beveiliging tegen opstuwend grondwater (optie)
n Meerdere aansluitmogelijkheden
n Installatie conform de NBN EN 12050-2 met Europees DOP-certificaat
n Bekken uit rotatiegegoten PE met een nuttig werkingsvolume van 15 liter
n Voorzien van 3 inlaten Ø 110 mm
n Opzetelement - telescopisch in hoogte verstelbaar: 30 - 70 mm
n Dompelpomp met motorbehuizing en as uit roestvrij staal
n Pompbehuizing en waaier uit kunststof
n Geschikt voor korrelgroottes tot 10 mm
n Met 10 m aansluitkabel en CE-stekker 230 V
n Met vlotterschakelaar
n Persleiding met geïntegreerde terugslagklep R 1¼“ aansluiting PVC-U 50-40-R ¼“
Met open sleufrooster uit roestvrij staal

Toepassingsgebieden
n Voor ondergrondse plaatsing in de vloerplaat in een vorstvrije ruimte onder het overstromingsniveau zoals bv. kelder-, hobby- en wasruimte
n Voor het afvoeren van huishoudelijk niet fecaliënhoudend afvalwater afkomstig van douches, wasmachines of kuiswater

Opvoerdebiet Q
Met reukdicht toezichtsdeksel, omkeerbaar voor betegeling

Met reukdicht toezichtsdeksel en ingebouwde klokput, deksel te betegelen

Toebehoren

Rubberen afdichtingsflens Ø 676 mm
n In te storten in een waterdichte betonplaat ter voorkoming van infiltratie door opstuwend grondwater tot 0,2 bar (2 mWk)
Sinkamat-K Duo Kelderdompelpompen voor niet fecaliënhoudend afvalwater
Pompinstallaties voor inbouw
Productvoordelen
n „Quick“ aansluiting voor (de)montage van de pomp zonder gereedschap
n Extra afdichtingsflens, in te storten in waterdichte betonvloer als beveiliging tegen opstuwend grondwater (optie)
n Meerdere aansluitmogelijkheden
n Installatie conform de NBN EN 12050-2 met Europees DOP-certificaat
n Bekken uit rotatiegegoten PE met een nuttig werkingsvolume van 15 liter
n Voorzien van 3 inlaten Ø 110 mm
n Opzetelement - telescopisch in hoogte verstelbaar: 30 - 70 mm
n Kadermaat: 360 x 300 mm
n Dompelpomp met motorbehuizing en as uit roestvrij staal
n Pompbehuizing en waaier uit kunststof
n Pneumatische niveauregeling met 10 m stuurkabel
n Sturingskast, bescherming IP 54
o met 1,5 m aansluitkabel en CE stekker
o met potentiaalvrije storingsmelding en operationel waarschuwing
n Geschikt voor korrelgroottes tot 10 mm
n CE-stekker 230 V
n Persleiding met geïntegreerde terugslagklep
R 1¼“ aansluiting PVC-U 50-40-R ¼“
Toepassingsgebieden
n Voor ondergrondse plaatsing in de vloerplaat in een vorstvrije ruimte zoalss bv. kelder-, hobby- en wasruimte
n Voor het afvoeren van huishoudelijk niet fecaliënhoudend afvalwater afkomstig van douches, wasmachines of kuiswater


Sinkamat-K50/1-Kduo
Opvoerdebiet Q
Sinkamat-K50/2-Kduo
Met reukdicht toezichtsdeksel, omkeerbaar voor betegeling

50/1-K
Met reukdicht toezichtsdeksel en ingebouwde klokput, deksel te betegelen

Toebehoren

Rubberen afdichtingsflens Ø 676 mm n In te storten in een waterdichte betonplaat ter voorkoming van infiltratie door opstuwend grondwater tot 0,2 bar (2 mWk)
Powerlift-P
Pompstations uit rotatiegegoten PE
Pompinstallaties voor inbouw
Productvoordelen
n Geprefabriceerd pompstation uit PE
n Ronde rotatiegegoten uitvoering Ø 1320 mm
n Dubbel pompstation voor ondergrondse installatie
n Totale inbouwdiepte tot 3 m
n Maximaal opvoerdebiet tot 10 l/s
n Nuttig volume 550 liter
n Alternerende pompwerking
n Bezinkingsvrij verzamelbekken dankzij eivormige bodem
Toepassingsgebieden
n Eén- en meergezinswoningen
n Oppervlakte afwatering, bv. opritten, binnenplaatsen etc.
n Commerciële panden
n Voor afwatering van beperkte buitenoppervlakten
n Pompstation voorzien van een toevoerbuis Ø 160 mm
n Voorgemonteerd drukbestendig binnenwerk PVC-U DN50 PN10
n 2 gietijzeren voetstukken voor beide dompelpompen
n 2 inox kettingen voor het uitlichten van beide pompen
n 2 kunststof geleidingsstangen voor het afdalen van de pompen
n 2 gietijzeren terugslagkleppen
n 1 gezamenlijke PVC-U buisafsluiter op de persleiding
n Voorgemonteerde persaansluiting met schroefkoppeling voor drukleiding
DN50 (Ø uitw. 63 mm) of DN65 (Ø uitw. 75 mm)
n 2 extra aansluitingen Ø 110 mm voor kabeldoorvoer en ontluchting
n 1 universele inox steun voor de montage van diverse niveaumeting systemen
n 1 demonteerbare traverse van thermisch verzinkt staal

Pomp Motorvermogen Explosiebeveiliging
Pompput bekken met 2 dompelpompen (zonder sturing noch bovenbouw)
Sat 100/D 1,3 0,88 zonder EX beveiliging 2,3
Sat 200/D 2,0 1,5 zonder EX beveiliging 3,55
GRG 250 Ex 2,19 1,8 met EX beveiliging 3,7
GRG 300 Ex 2,76 2,2 met EX beveiliging 4,6
Noodzakelijke componenten (zie pag. 6, 16 - 18)
Sturingskast en niveausturing Kies de bijhorende topsecties
Waaier
H07RN-F 4G1 15 open waaier niet fecaliënhoudend
H07RN-F 4G1 15 open waaier niet fecaliënhoudend
S1RN8-F 4G1.5 + 3x1 - snijwerk fecaliënhoudend
S1RN8-F 4G1.5 + 3x1 - snijwerk fecaliënhoudend
Prestatiecurves en andere dompelpompen zie. pag. 13
Pompstations uit rotatiegegoten PE
Pompinstallaties voor inbouw
n Voor Powerlift-P
n Belastingsklasse conform EN 124
n Waterdichte schachtopbouw
n Deksel los opgelegd, toezichtsopening Ø 600 mm
Belastingsklasse Aansluitdiepte Gewicht
Ophoogelement uit rotatiegegoten PE enkel meegeleverd met topsectie 3301.34.11 en 3301.34.12


Ophoogelement uit rotatiegegoten PE enkel meegeleverd met topsectie 3301.35.11 en 3301.35.12




Ophoogelement uit rotatiegegoten PE, naar keuze leverbaar met prefab betonnen lastverdeelplaat Ø 1550 mm x H 200 mm


Powerlift-B 1000
Pompstations uit gewapend beton
Pompinstallaties voor inbouw
Productvoordelen
n Geprefabriceerd pompstation uit gewapend beton
n Maximale inbouwdiepte tot 7 m
n Maximaal opvoerdebiet tot 10 l/s
n Hoog nuttig volume 785 liters
n Met voorgemonteerde interne corrosiebestendige drukleiding DN 50
n Deksel met onderhoudsvrije, robuuste kliksluitingen, vrije opening Ø 800 mm. Met een speciale vergrendeling voor montage van een inox afdaalhulp (in optie).
n Universele inox steun voor de montage van diverse niveaumeting systemen
n Hoogte en uitrusting aanpasbaar volgens modulair principe (zie betonnen opbouwelementen Ø 1000 pag. 502)
n Alternerende pompwerking
Toepassingsgebieden
n Voor het oppompen van grijs en zwart afvalwater uit sanitaire voorzieningen
n Afwatering van gebieden met beperkte regenwateroppervlaktes
n Commerciële panden
n Meergezinswoningen
n Constructie
o geprefabriceerd bekken met binnendiameter 1000 mm
o gemakkelijke toegang voor inspectie en onderhoud
o keuze uit verschillende niveaumetingsystemen
n Voorgemonteerd drukbestendig binnenwerk PVC-U DN50 PN10
n 1 gezamenlijke PVC-U buisafsluiter op de persleiding
n 2 kunststof geleidingsstangen voor het neerlaten van de pompen
n 2 extra aansluitingen Ø 110 mm voor kabeldoorvoer en ontluchting
n Pompstation voorzien van een toevoeraansluiting Ø 160 mm
n Voorgemonteerde persaansluiting met schroefkoppeling voor drukleiding
DN50 (Ø uitw. 63 mm) of DN65 (Ø uitw. 75 mm)
n 2 gietijzeren terugslagkleppen
n 2 gietijzeren voetstukken voor beide dompelpompen
n 2 inox kettingen voor het uitlichten van beide pompen
n 1 kunststof ladder uit GVK

Pompput met 2 dompelpompen (zonder sturing)
Sat 100/D 1,3 0,88 zonder EX beveiliging 2,3
4G1 15 open waaier niet fecaliënhoudend
Sat 200/D 2,0 1,5 zonder EX beveiliging 3,55 H07RN-F 4G1 15 open waaier niet fecaliënhoudend
GRG 250 Ex 2,19 1,8 met EX beveiliging 3,7
GRG 300 Ex 2,76 2,2 met EX beveiliging 4,6
Noodzakelijke componenten (zie pag. 15 - 18)
Sturingskast en niveausturing
Inox afdaalhulp
S1RN8-F 4G1.5 + 3x1 - snijwerk fecaliënhoudend
S1RN8-F 4G1.5 + 3x1 - snijwerk fecaliënhoudend
Prestatiecurves en andere dompelpompen zie. pag. 13
Inlaat ø 160 mm
Kabeldoorvoer ø 110 mm
Ontluchtingsaansluiting ø 110 mm
Inlaat ø 160 mm
Kunststof ladder met afdaalsteun uit inox
Deksel ø 800 KL.D
Powerlift-B 1000 Pompstations uit gewapend beton Pompinstallaties voor inbouw
Persleiding met schroefkoppeling ø 63 mm
Inox steun niveaumeting
Niveaumeting
Persleiding met schroefkoppeling ø 63 mm
Powerlift-B 1500
Pompstations uit gewapend beton
Pompinstallaties voor inbouw
Productvoordelen
n Geprefabriceerd pompstation uit gewapend beton
n Maximale inbouwdiepte tot 7 m
n Maximaal opvoerdebiet tot 30 l/s
n Hoog nuttig volume 1600 liters
n Met voorgemonteerde interne corrosiebestendige drukleiding DN 100
n Gering dekselgewicht met onderhoudsvrije, robuuste kliksluitingen met 2 vrije openingen Ø 600 mm. Met een speciale vergrendeling voor montage van een inox afdaalhulp (in optie).
n Universele inox steun voor de montage van diverse niveaumeting systemen
n Hoogte en uitrusting aanpasbaar volgens modulair principe (zie betonnen opbouwelementen Ø 1500 pag. 502)
n Alternerende pompwerking
Toepassingsgebieden
n Voor het oppompen van grijs en zwart afvalwater uit sanitaire voorzieningen
n Voor afwatering van middelgrote buitenoppervlakten
n Appartementsgebouwen
n Scholen en sportcomplexen
n Woon- en zorgcentra, ziekenhuizen
n Ondergrondse parkeergarages
Pompput met 2 dompelpompen (zonder sturing)
DRG
300/2/80 2,76 2,2 zonder EX beveiliging 4,6
DRG
n Constructie
o geprefabriceerd bekken uit gewapend beton met binnendiameter 1500 mm
o gemakkelijke toegang voor inspectie en onderhoud
o keuze uit verschillende niveaumetingsystemen
n Voorgemonteerd binnenwerk
PVC-U DN100 PN10
n 2 gietijzeren buisafsluiters DN 100
n 2 kunststof geleidingsstangen voor het neerlaten van de pompen
n 2 extra aansluitingen Ø 110 mm dienen als kabeldoorvoer en als ontluchtingsaansluiting
n Pompstation voorzien van een toevoeraansluiting Ø 200 mm
n Voorgemonteerde persaansluiting met aansluitflens DN 100 (DIN 2501 - PN 10)
n 2 gietijzeren terugslagkleppen DN100
n 2 gietijzeren voetstukken voor beide dompelpompen
n 2 inox kettingen voor het uitlichten van beide pompen
n 1 kunststof ladder uit GVK

H07RN-F 4G1.5 + 3x1 40 x 35 open kanaalwaaier niet fecaliënhoudend
400/4/100 3,68 3,0 zonder EX beveiliging 6,7 H07RN-F 4G1.5 + 3x1 60 open kanaalwaaier niet fecaliënhoudend
DRG 550/2/65 4,66 3,0 zonder EX beveiliging 7,7
DGG
250/4/80 Ex 2,22 1,5 met EX beveiliging 4,3
DGG
550/2/80 Ex 4,66 3,0 met EX beveiliging 7,7
Noodzakelijke componenten (zie pag. 15 - 18)
Sturingskast en niveausturing
Inox afdaalhulp
H07RN-F 4G1.5 + 3x1 40 x 35 open kanaalwaaier niet fecaliënhoudend
S1RN8-F 4G1.5 + 3x1 80 teruggetrokken Vortex waaier fecaliënhoudend
S1RN8-F 4G1.5 + 3x1 80 teruggetrokken Vortex waaier fecaliënhoudend
Prestatiecurves en andere dompelpompen zie. pag. 14
Inlaat ø 200 mm
Kabeldoorvoer ø 110 mm
Ontluchtingsaansluiting ø 110 mm
Niveaumeting
Inlaat ø 200 mm
2x deksel
600 mm KL.D
Powerlift-B 1500 Pompstations uit gewapend beton Pompinstallaties voor inbouw
Persleiding met flensaansluiting DN 100 DIN 2501 - PN 10
Kunststof ladder met afdaalsteun uit inox
Persleiding met aansluitflens
DN 100 (DIN 2501 - PN 10)
Inox steun niveaumeting
Powerlift-B 2200
Pompstations uit gewapend beton
Pompinstallaties voor inbouw
Productvoordelen
n Geprefabriceerd pompstation uit gewapend beton
n Maximale inbouwdiepte tot 7 m
n Maximaal opvoerdebiet tot 30 l/s
n Hoog nuttig volume 5400 liters
n Met voorgemonteerde interne corrosiebestendige drukleiding DN 100
n Gering dekselgewicht met onderhoudsvrije, robuuste kliksluitingen 2 vrije openingen Ø 800 mm. Met een speciale vergrendeling voor montage van een inox afdaalhulp (in optie).
n Universele inox steun voor de montage van diverse niveaumeting systemen
n Hoogte en uitrusting aanpasbaar volgens modulair principe (zie betonnen opbouwelementen Ø 2200 pag. 502)
n Alternerende pompwerking
Toepassingsgebieden
n Voor het oppompen van grijs en zwart afvalwater uit sanitaire voorzieningen
n Voor afwatering van grote buitenoppervlakten
n Industriële toepassingen
n Ziekenhuizen
n Constructie
o geprefabriceerd bekken met binnendiameter 2200 mm
o gemakkelijke toegang voor inspectie en onderhoud
o keuze uit verschillende niveaumetingsystemen
n Voorgemonteerd binnenwerk
PVC-U DN100 PN10
n 2 gietijzeren buisafsluiters DN 100
n 2 kunststof geleidingsstangen voor het neerlaten van de pompen
n 2 extra aansluitingen Ø 110 mm dienen als kabeldoorvoer en als ontluchtingsaansluiting
n Pompstation voorzien van een toevoeraansluiting Ø 315 mm
n Voorgemonteerde persaansluiting met aansluitflens DN 125 (DIN 2501 - PN 10)
n 2 gietijzeren terugslagkleppen DN100
n 2 gietijzeren voetstukken voor beide dompelpompen
n 2 inox kettingen voor het uitlichten van beide pompen
n 1 kunststof ladder uit GVK

P2 IN [kW] [kW] [A] [mm]
Pompput met 2 dompelpompen (zonder sturing)
DRG
300/2/80 2,76 2,2 zonder EX beveiliging 4,6
DRG
H07RN-F 4G1.5 + 3x1 40 x 35 open kanaalwaaier niet fecaliënhoudend
400/4/100 3,68 3,0 zonder EX beveiliging 6,7 H07RN-F 4G1.5 + 3x1 60 open kanaalwaaier niet fecaliënhoudend
DRG 550/4/80 4,62 4,0 zonder EX beveiliging 8,4
DGG
250/4/80 Ex 2,22 1,8 met EX beveiliging 4,3
DGG
550/4/80 Ex 4,62 4,0 met EX beveiliging 8,4
Noodzakelijke componenten (zie pag. 15 - 18)
Sturingskast en niveausturing
Inox afdaalhulp
H07RN-F 4G1.5 + 3x1 65 x 60 open kanaalwaaier niet fecaliënhoudend
S1RN8-F 4G1.5 + 3x1 80 teruggetrokken Vortex waaier fecaliënhoudend
S1RN8-F 4G1.5 + 3x1 60 teruggetrokken Vortex waaier fecaliënhoudend
Prestatiecurves en andere dompelpompen zie. pag. 14
Powerlift-B 2200
Pompstations uit gewapend beton Pompinstallaties voor inbouw
Ontluchting ø 110 mm
2x deksel ø 800 mm D 400
Persleiding met aansluitflens DN 125 (DIN 2501 - PN 10)
Kunststof ladder met afdaalsteun uit inox
Kabeldoorvoer ø 110 mm
Inox steun niveaumeting
Persleiding met aansluitflens DN 125 (DIN 2501 - PN 10)
Prestatiecurves dompelpompen
Pompstations uit gewapend beton
Pompinstallaties voor inbouw
Geschikt voor regenwater en grijs afvalwater, licht vervuild met kleine bestanddelen Dompelpomp van grijs gietijzer EN-GLS 250 met 10 m verbindingskabel.
3-fasige motor 3~400 V, 50 Hz ; bescherming IP 68. Verlengkabel H07RN-F 4G1.5-3x1 mm².
SAT : Gietijzeren open vrijstroomwaaier met inox zeef, grote opvoerhoogte, beperkte korreldoorlaat.
SAT-V : Gietijzeren teruggetrokken Vortex waaier, grote vrije korreldoorlaat. Bedrijfszeker bij lange stilstand.


Geschikt voor zwart fecaliën houdend afvalwater, afvalwater met langvezelige bestanddelen Dompelpomp van grijs gietijzer EN-GLS 250 met 10 m verbindingskabel. 3-fasige motor 3~400 V, 50 Hz ; bescherming IP 68. Explosievrij, ATEX gecertifieerd. Verlengkabel S1RN8-F 4G1.5-3x1 mm²
Versnijdende waaier van roestvrij staal. Grote opvoerhoogte doch beperkte opvoerdebiet.


LEGENDE
Prestatiecurves dompelpompen
Pompstations uit gewapend beton Pompinstallaties voor inbouw Pomp
Geschikt voor regenwater en grijs afvalwater, licht vervuild met kleine bestanddelen
Dompelpomp van grijs gietijzer EN-GLS 250 met 10 m verbindingskabel.
3-fasige motor 3~400 V, 50 Hz ; bescherming IP 68. Verlengkabel H07RN-F 4G1.5-3x1 mm²
Gietijzeren open kanaalwaaier, grote vrije korreldoorlaat Groot opvoerdebiet en opvoerhoogtes.


Geschikt voor grijs en zwart fecaliën houdend afvalwater
Dompelpomp van grijs gietijzer EN-GLS 250 met 10 m verbindingskabel. 3-fasige motor 3~400 V, 50 Hz ; bescherming IP 68. Explosievrij, ATEX gecertifieerd. Verlengkabel
S1RN8-F 4G1.5-3x1 mm²


Teruggetrokken gietijzeren Vortex waaier, verstoppingsvrij, met grote vrije korreldoorlaat. Bedrijfszeker bij lange stilstand.
Opbouwelementen Pompstations uit gewapend beton Pompinstallaties voor inbouw
met
Oplegringen volgens DIN 4034 (gebruik voor ringen Ø 625 mm te beperken tot max. 50 cm)


Schachtringen volgens DIN 4034 inclusief EPDM afdichting met lastverdelingsfunctie



Schachtringen volgens DIN 4034 inclusief EPDM afdichting met lastverdelingsfunctie en 2 extra openingen DN 100 voor verluchting en kabeldoorvoer

Inox afdaalhulp voor veilige toegang tot de ladder in de pompschacht

Enkel geschikt voor Powerlift in beton
PSD-B-1000
PSD-B-1500
PSD-B-2200
Noodzakelijke componenten Pompstations
Pompinstallaties voor inbouw
Beschrijving
Sturingskast MultiControl Duo voor dompelpompen tot 5,5 kW
n Niveauregeling van vloeistofpeilen
n LCD-scherm
n Functies: Manueel-0-Automatisch
n Reset knop
n Gedwongen inschakeling van de pompen (om de 24 u)
n Intern akoestisch alarm
n Hoogwateralarm potentiaalvrij
n Bedrijfsurenteller
n Hoge storingsbestendigheid
n Niveaumeting door interne drukomvormer
n Alle instellingen en storingsmeldingen blijven ook na een stroomstoring behouden

n Controle draaiveld en faseuitval
n Controle temperatuur
n In manueel bedrijf worden de pompen na een looptijd van 2 min. automatisch uitgeschakeld
n Pompuitschakeling via uitschakelpunt en nalooptijd
n Elektronische controle van de motorstroom
n Algemene storingsmelding over potentiaalgebonden en potentiaalvrije contacten:
o 1 uitgang 230 V AC
o 4 potentiaalvrije contacten
n Geheugen „Aantal pompstarts“
n Ampèremeter
n Automatische alternerende pompschakeling
n Eenvoudige bediening
n Servicemodus
n Spanning 400 V
n Frequentie 50/60 Hz
n Bescherming IP 54
n Afmetingen (B x H x D): 320 x 300 x 120 mm
Niveausturing - Open klok met micro-compressor


n Pneumatische vulpeilmeting - wanneer het water de onderkant van de klok bereikt, wordt de lucht in deze klok samengedrukt. Door het stijgende peil wordt de stuureenheid geactiveerd.
n Toepassing: in sterk vervuilde alsook in explosieve omgevingen zone 1+2
n Niet geschikt voor agressieve vloeistoffen en temperaturen boven 40°C
n Klok uit grijs gietijzer GG
n Max. afstand 20m
Micro-compressor
n Voor het doorblazen van luchtbellen door de open klok, om vet- of vuilafzetting te vermijden
n Met CE-stekker
Art. nr.
711890
711885
711887
Noodzakelijke componenten
Pompstations
Pompinstallaties voor inbouw
Beschrijving





Niveausturing - Gesloten klok
n Door een groter luchtvolume zijn langere leidingen mogelijk. De ophanging maakt een individuele hoogte-instelling van de meetklok mogelijk
n Pneumatische vulpeilmeting
n Toepassing: in sterk vervuilde alsook in explosieve omgevingen van zone 1+2
n De klok moet ongeveer 10 cm boven de bodem van het reservoir hangen. Het eigen gewicht van de klok verhindert dat ze gaat drijven. De klok moet permanant met vloeistof bevochtigd zijn.
n Kettingophanging
n Max. afstand 40m
Niveausturing - Vlotterschakelaars
n Microschakelaar
n Toepassing: geschikt voor gebruik in waterzuiverings-installaties en pompstations met vloeistoffen die belast zijn met vaste stoffen. Dankzij de chemische eigenschappen zijn de niveauregelaars bestand tegen urinezuren, fecaliënhoudend afvalwater, oliën, benzine, ... alsook tegen vele chemicaliën
n Beschermingsklasse IP 68
n Schakelvermogen: 5 A/230 V, schakelhoek 10°
n Behuizing: Polypropyleen
n Vlotter met 10 m kabel 71743
n Vlotter met 30 m kabel 715190
n Ex-vlotter met 10 m kabel 71747
Hoorn (claxon)
n Voor montage op buitenkast (230 V AC) of in combinatie met de alarmmelder module (12 V DC)
Flitslamp
n Voor montage op buitenkast (230 V AC) of in combinatie met de alarmmelder module (12 V DC)
n 12 V DC
817.100.54
n 230 V AC 817.100.68
Flitslamp
n Opbouwmodel voor MultiControl Sturingskast (230 V AC) of in combinatie met de alarmmelder module (12 V DC)
n 12 V DC
0150.76.25
n 230 V AC 0178.62.08
Noodzakelijke componenten Pompstations
Pompinstallaties voor inbouw
Beschrijving
Polyester buitenkast IP 44, leeg
Gedeeltelijk in te graven en uitgerust met:
n Veiligheidsslot
n Afmetingen: L 410 x B 207 mm x H 1460 mm
n Gewicht: 17 kg

Polyester buitenkast IP 44 met voorgemonteerde sturingskast
n Slagvast zwaailicht
n Voorzekering 25 A
n Alarmzoemer 230 V
n Met kastverwarming tot 15°C en thermostaat 230 V, 50 W ter bescherming tegen vorst
n Veiligheidsslot
n Afmetingen: L 410 x B 207 mm x H 1460 mm
n Sturingskast MultiControl Duo
n Gewicht: 24 kg
Polyester buitenkast IP 44 met voorgemonteerde sturingskast zonder zwaailicht
n Voorzekering 25 A
n Met kastverwarming tot 15°C en thermostaat 230 V, 100 W ter bescherming tegen vorst
n Veiligheidsslot
n Afmetingen: L 410 x B 207 mm x H 1460 mm
n Sturingskast MultiControl Duo
n Gewicht: 23 kg


Polyester buitenkast IP 44 voor plaatsing van terugstuwingsbocht van de persleiding
n Als lege behuizing
n Afmetingen: L 476 x B 335 x H 2000 mm
n Met kastverwarming tot 15°C en thermostaat 230 V, 100 W ter bescherming tegen vorst
n Stopcontact 230 V en 400 V
n Met montageplaat en veiligheidsslot
n Voor persleiding DN 50 - 80
n Gewicht: 19 kg
Polyester buitenkast IP 44 voor plaatsing van terugstuwingsbocht van de persleiding en sturingskast
n Als lege behuizing
n Afmetingen: L 806 x B 335 x H 2000 mm
n Met kastverwarming tot 15°C en thermostaat 230 V, 100 W ter bescherming tegen vorst
n Stopcontact 230 V en 400 V
n Met montageplaat en veiligheidsslot
n Voor persleiding DN 50 - 200
n Gewicht: 40 kg
Art. nr.
709648
709647
709645
709642
Muli-Mini Mono
Hevelinstallaties voor niet fecaliïenhoudend water
Pompinstallaties voor opbouw
Productvoordelen
n Aansluitklaar
n Diverse aansluitmogelijkheden voor toevoerbuizen
n Optimale toegang tot de pomp
n Hoge chemische stabiliteit van alle componenten
n Demontage van de pomp zonder gereedschap
n Aangepast voor minimale deurmaat
700 mm
n Laag gewicht
Toepassingsgebieden
n Voor het oppompen van huishoudelijk en vethoudend afvalwater
n Was-, douche- en kelderruimtes onder het terugstuwingsniveau
n Verzamelbekken uit polyethyleen o volume: 190 l
n Vuilwaterdompelpomp voor grijs afvalwater - bescherming IP 68
n Sturingskast - bescherming IP 54
n Volgens de norm DIN EN 12050-2

Aanbevolen toebehoren (zie p. 27 - 28)
n luchtbelleninblaassysteem (microcompressor)
n elastische verbinding
Muli-Mini Duo
Hevelinstallaties voor niet fecaliïenhoudend water
Pompinstallaties voor opbouw
Productvoordelen
n Aansluitklaar
n Diverse aansluitmogelijkheden voor toevoerbuizen
n Optimale toegang tot de pomp
n Hoge chemische stabiliteit van alle componenten
n Demontage van de pomp zonder gereedschap
n Aangepast voor minimale deurmaat 700 mm
n Laag gewicht
Toepassingsgebieden
n Voor het oppompen van huishoudelijk en vethoudend afvalwater
n Was-, douche- en kelderruimtes onder het terugstuwingsniveau
n Verzamelbekken uit polyethyleen
o volume: 195 l
n 2 vuilwaterdompelpompen voor grijs afvalwater - bescherming IP 68 n Sturingskast - bescherming IP 54 n Volgens de norm DIN EN 12050-2

Aanbevolen toebehoren (zie p. 27 - 28)
n luchtbelleninblaassysteem (microcompressor)
n elastische verbinding
Muli-Star Duo
Hevelinstallaties voor fecaliïenhoudend water
Pompinstallaties voor opbouw
Productvoordelen
n Laag gewicht
n Diverse aansluitmogelijkheden voor toevoerbuizen
n Verstoppingsvrije vrijstroomwaaier
n Hoge chemische stabiliteit van alle componenten
n Geschikt voor gebruik achter vetafscheider
n Snelle montage
n Aansluitklaar
n Nuttig volume tot 185 l
n Aangepast voor deurmaat 780 mm
Toepassingsgebieden
n Voor het oppompen van huishoudelijk en fecaliënhoudend afvalwater
n Plaatsing achter een vrijstaande vetafscheider met een beperkte capaciteit tot NG 7 n Meergezinswoningen, kantoorgebouwen, hotels, ziekenhuizen
n Verzamelbekken uit polyethyleen n 2 verticaal opgebouwde opvoerpompen met draaistroommotor - bescherming IP 68 n Sturingskast - bescherming IP 54 n Volgens de norm DIN EN 12050-2

Q
Aanbevolen toebehoren (zie p. 27 - 28) n luchtbelleninblaassysteem n afsluiter op persleiding
Productvoordelen
n Nuttig volume tot 330 liter
n Diverse aansluitmogelijkheden voor toevoerbuizen
n Hoge bedrijfszekerheid dankzij microcompressor gestuurd luchtbelinblaassysteem
n Geschikt voor vethoudend afvalwater
n Uitbreidbaar tot parallel systeem
n Energiebesparende open kanaalwaaier
n Aangepast voor deurmaat 780 mm
Toepassingsgebieden
n Voor het oppompen van vet- en fecaliënhoudend afvalwater
n Plaatsing achter een vrijstaande vetafscheider met een capaciteit van NG 7 tot NG 20
n Meergezinswoningen, hotels
n Industriële toepassingen met grote afvalwatervolumes
n Bij lange persleidingen en grote opvoerhoogten
Aanbevolen toebehoren (zie p. 27 - 28)
n 2 afsluiters boven de terugslagkleppen
n Verzamelbekken uit polyethyleen
n 2 opgebouwde vuilwaterpompen
- bescherming IP 68
n Sturingskast
- bescherming IP 54
n Volgens de norm DIN EN 12050-2
n Schuifafsluiters niet inbegrepen Muli-Pro-K
Pompinstallaties voor opbouw

Productvoordelen
n Opvangtank kan individueel worden geconfigureerd volgens de vereisten van de klant
n Goede bedrijfszekerheid en betrouwbaarheid
n Pomp met adaptieve waaier vermindert verstoppingen tijdens bedrijf
n Groot bruikbaar tankvolume (tot 1100 liter, afhankelijk van model)
n Keuze uit diverse inlaathoogtes, afhankelijk van het model
Toepassingsgebieden
n Commerciële of industriële eenheden met veel afvalwater
n Achter vetafscheiders
n Afvalwater dat zowel lange als korte vezels bevat
n Appartementsgebouwen
Aanbevolen toebehoren (zie p. 27 - 28)
n Mini-compressor met luchtbelinjectie
n PE-HD tank
o 1 x inspectieopening voor eenvoudig onderhoud (ø 350 mm) met geurdicht afsluitdeksel
o Bevestigingsset voor drijfvaste verankering
o Toevoer naar keuze horizontaal aan de zijkant of aan de voorkant, of verticaal van boven, keuze uit DN 100, DN 150 of DN 200
o Verticale mof, keuze uit DN 70/100 (voor de ontluchting)
o R 1½“ aftapplug
n Twee horizontaal geplaatste pompen
o 400 V/50 Hz
o Beschermingstype: IP 68
o Adaptieve waaier
o Kabellengte: 10 m
n Uitbreiding drukleiding
o Twee speciale terugslagkleppen met ontluchtingsinrichting
o Speciale DN 100 montage-adapter voor aansluiting van drukleidingen met een buitendiameter van 108114 mm (naar keuze 88 - 90 mm)
n Pneumatische niveauschakeling met 10 m pneumatische stuurleiding
n Sturingseenheid
o Beschermingstype: IP 54
o Kabel en CEE-stekker (16 A): 1,5 m
o Geïsoleerde verzamelstorings- en bedrijfsmeldingen

Muli-Pro-K N-XL Duo Hevelinstallaties voor fecaliïenhoudend water Pompinstallaties voor opbouw
Afsluiter aanzuigzijde Afsluiter perszijde
Ontluchting
Inspectiedekslel
Trillingsvrij bevestigingselement voor persleidng DN 100
Upstream Tank
Hevelinstallaties voor fecaliïenhoudend water
Pompinstallaties
Productvoordelen
n Hevelinstallatie met dubbele excenter wormpomp met laag energieverbruik voor vrijstaande plaatsing in vorstvrije ruimtes.
n Het geheel is zeer compact en volledig voorgemonteerd. Het bestaat uit een verzamelbekken van gelast HD-PE met 2 bovenop gemonteerde wormpompen.
n Het verzamelbekken is eenvoudig inspecteerbaar via een inspectieopening met geurdicht deksel Ø 350 mm en beschikt over een verticale aansluiting DN 100 voor de ontluchting.
n De 2 excenter wormpompen zijn uitgerust met een draaistroommotor: 3 ~ 400 V, 50 Hz, bescherming IP 55. Uitgerust met ingebouwde thermische beveiliging. Geleverd met 10 m aansluitkabel
n Een gezamenlijk broekstuk met dubbele kogel-terugslagklep met reinigingsdeksel, leidt het verzamelde afvalwater via een speciale trillingvrije elastische koppeling, naar de persleiding DN 100.
n De toevoer is intern uitgerust met een grofvuilvangzeef.
n Zijdelings zijn er 2 extra blindflenzen voorzien voor de aansluiting van een extra toevoerbuis DN 100/150.

Toepassingsgebieden
n Geschikt voor het verpompen van industrieel vethoudend afvalwater daar waar constructief gezien het afvalwater niet gravitair naar de vetafscheider geleid kan worden. Deze speciale opvoerinstallatie met verdringingspompen vermijdt turbulenties in het afvalwater en verstoort aldus niet het afscheidingsproces in de nageschakelde vetafscheider.
n Met aansluitklare sturingskast, bescherming IP 54, met 1,5 m kabel, CEE-stekker 16 A. Voorzien van een optische en akoestische alarmmelding alsook met potentiaalvrije algemene alarmmelding.
n De sturingskast wordt met de opvoerpomp verbonden door 10 m pneumatische stuurleiding.
De bijgeleverde micro-compressor met luchtbellen inblazing zorgt voor een vetvrije en betrouwbare meting.
Upstream Tank
Hevelinstallaties voor fecaliïenhoudend water
Pompinstallaties voor opbouw

Toebehoren Hevelinstallaties
Pompinstallaties voor opbouw

Beschrijving





Aansluitstuk voor elastische verbinding
n DN 50 (Ø 57 - 61 mm)
Buisafsluiter op de inlaat
n Uit PVC
n Met spieëind
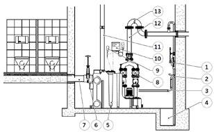
1 Handmembraanpomp
2 3-wegskraan
3 Aanzuigleiding
4 Put voor dompelpomp
5 Hevelinstallatie
6 Buisafsluiter op de inlaat
7 Toevoerbuis
8 Afsluiter persleiding
9 Micro-compressor
10 Sturingskast met CEE-stekker
11 Ontluchtingsbuis
12 Persleiding
13 Terugstuwingslus
Geschikt voor
n Muli-Mini
0175.16.84
n DN 70 (Ø 73 - 76 mm) 0175.07.79
n Muli-Star n Muli-Pro
n DN 100
0175.31.87
n DN 150 0175.31.88
n DN 200 0170.20.83
Afsluiter boven terugslagklep van de persleiding
n Uit gietijzer
3-wegskraan
n R 1 ½“ voor handmembraanpomp
Handmembraanpomp
n Aansluiting R 1½“
n Wandmontage
n DN 80 n Muli-Star 0154.51.93
n Muli-Pro K15 - K55
n DN 100 n Muli-Pro K75 0159.09.90
n Muli-Star n Muli-Pro 0159.10.14
n Muli-Star n Muli-Pro 0175.23.73
Beschrijving



Afsluitkraan voor handmembraanpomp
n R 1½“

Micro-compressor
n Voor het extra inblazen van luchtbellen in de dompelbuis voor niveaumeting (voor een bedrijfszekere werking bij plaatsing achter een vetafscheider)
Alarmmelder
n Netstroomonafhankelijk
n Met potentiaalvrij contact
n Optische en akoestische alarmmelding
n Voor montage buiten EX-zone
n Behuizing: B 125 x H 175 x D 75 mm
n Beschermingsklasse: IP 65
n Bedrijfsspanning: 230 V/AC 50 Hz
n Aansluitklaar geleverd met 2 m kabel
n Zonder schakelaar (toebehoren)
Alarmmelder met GSM module en antenne
n Netstroomonafhankelijk
n Optische en akoestische alarmmelding
n 6 digitale en 1 analoge 4..20mA, vrij configureerbare ingangen
n 3 digitale potentiaalvrije uitgangen
n Interne batterij 12 V / 1,2 Ah
n 1 alarmuitgang 12 V, max 1 A
n Doorschakeling van het alarm via sms naar mobiele telefoon
n Configureerbaar via ACO MultiControl APP vanaf IOS 12.0 of ANDROID 6.0
n Behuizing: B 190 x H 150 x D 95 mm
n Sleuf voor standaard SIM-kaart
n Beschermingsklasse: IP 54
n Bedrijfsspanning: 230 V/AC 50Hz
Overstromingsdetector met aansluitmodule

n Melding van lekkage veroorzaakt door bv. leidingbreuk
n Voor elektrisch geleidende vloeistoffen
n Met potentiaalvrij contact
n Optische en akoestische alarmmelding (ca. 80 dB)
n Afmetingen (BxHxD): 160 x 120 x 75 mm
n Beschermingsklasse: IP 54/IP 65
n Bedrijfsspanning: 230 V/AC 50 Hz
n Aansluitklaar met 1,4 m kabel
n Overstromingsmelder met 10 m kabel
n Muli-Star n Muli-Pro
0159.10.12
n Muli-Mini n Muli-Star
0154.81.27
n Muli-Star n Muli-Pro 0150.26.73
n Muli-Star n Muli-Pro
0150.80.14