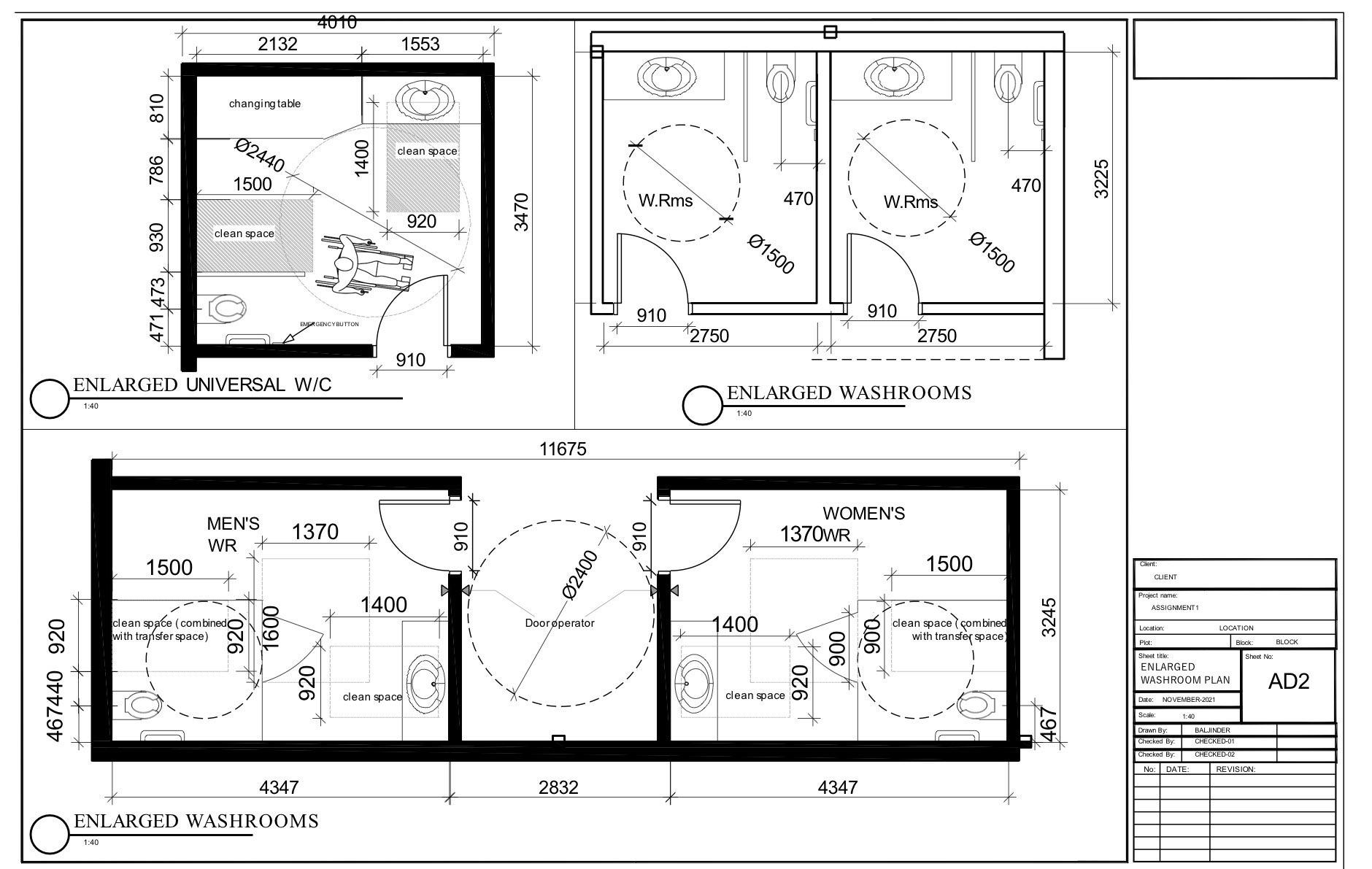
Explore the 2021 ARCH21158 Major Project: Cafe Cup, led by Professor Daniel Rafique. This venture focuses on customizing the cafe to meet FADS and OBC standards, with a strong emphasis on accessibility and inclusivity. Key features such as Universal Washrooms, designated Men's and Women's Washrooms, exterior ramps, and barrier-free parking ensure ease of access for all.
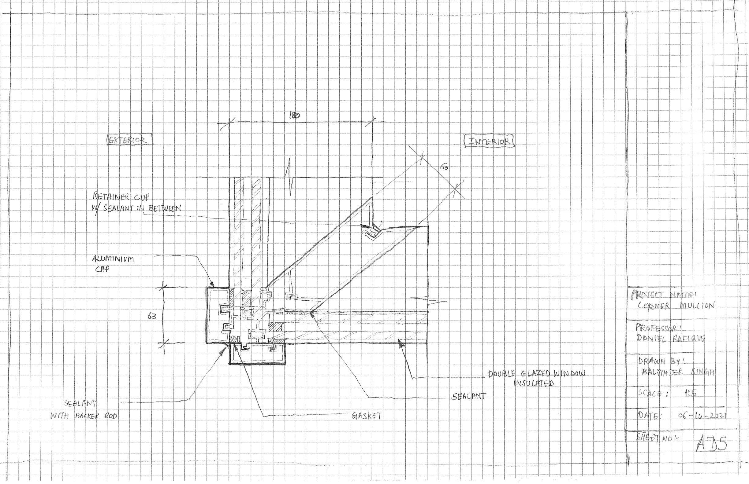
Delve into the intricate details of this cafe design, from Mullions at the Wall to the Service Counter and Borrowed Light Details. Each element, including the Front of the House Ceiling Detail, Exterior Soffit, Parapets, Skylight Curb, Storefront Windows, and the Structure itself, reflects meticulous adherence to FADS and OBC. The rain-screen principle is also applied, demonstrating industry-standard practices for exterior envelope assemblies.
Disclaimer: These drawings are for educational purposes in the ARCH21158 course and are not for professional architectural use. Cafe Cup's name is used for educational context only.