

PROSPEKT
LEILIGHETER HUS A, B1 OG C

Det nye bystrøket i Vestby Velkommen til Møllestrøket

Illustrasjon. Avvik vil forekomme.

Illustrasjon. Avvik vil forekomme.
I HJERTET AV VESTBY
I sentrum av Vestby utvikler vi Møllestrøket, et nytt og spennende nabolag som spirer frem i tett samarbeid med lokalmiljøet. Her skal vi skape et frodig bystrøk med gode møteplasser og uterom, spennende næringsmuligheter og delikate, urbane hjem. Boligene vil være lyse og moderne i varierende størrelser og ha fokus på god bokvalitet og trivsel gjennom trivselskonseptet Bakkekontakt.
Det nye bystrøket vil bestå av ca 600 boliger og inntil 6.000 kvm næring.

Trivsel i fokus
Illustrasjon Avvik vil forekomme.
Avstander
Fra din nye bolig har du kort vei til det meste.
BIL
Ca 35 min til Oslo sentrum
Ca 24 min til Ski
Ca 18 min til Drøbak

Ca 60 min til Gardermoen
Ca 53 min til Sverige (Svinesund)
SYKKEL
Ca 4 min til Vestby stasjon
Ca 2 min til Vestby kulturskole
Ca 5 min til Vestby ungdomsskole
Ca 1 min til Extra Vestby
KOLLEKTIVT
Ca 24 min til Oslo S med tog
Ca 10 min til Ski med tog
Ca 25 min til Son med Buss
Ca 55 min til Moss med Buss


LANDLIG IDYLL OG URBANT BYLIV
Velkommen til Vestby - en perle i Follo-regionen som kombinerer landlig idyll med moderne bekvemmeligheter!
OPPLEV SJARMEN I VESTBY
Utforsk sjarmerende gater, omgitt av frodige landskap og historisk atmosfære. Vestby inviterer deg til å ta en rolig spasertur gjennom sitt pittoreske sentrum, hvor lokale butikker, kafeer og kulturelle perler venter på å bli oppdaget.
SPENNENDE SHOPPING
For de shoppingglade er Vestby et sant paradis. Vestby Storsenter, et av Norges største kjøpesentre, bugner av trendy butikker og spennende merker. Finn de siste motetrendene, nyt de kulinariske godbitene og opplev shopping på sitt beste. Sjekk også Oslo Fashion Outlet, et stort shoppingmekka med merkevarer til fornuftige priser.
AKTIVITETER FOR ALLE
Uansett om du søker friluftseventyr eller kulturelle opplevelser, har Vestby noe for enhver smak. Vandring i naturskjønne omgivelser, besøk på lokale museer eller deltakelse i spennende arrangementer ved
kulturkvartalet – mulighetene er uendelige.
NÆRHET TIL NATUREN
Vestby tilbyr et pust av frisk luft med sitt varierte landskap. Utforsk skogkledde stier, nyt avslappende stunder ved vannet eller ta en sykkeltur gjennom idylliske landsbyer. Naturen er aldri langt unna i Vestby.
FAMILIEVENNLIG OG TRYGT
Med gode skoler, barnehager og et trygt lokalsamfunn er Vestby det ideelle stedet for familier. Samfunnsånden blomstrer, og barna kan leke trygt i parkene eller delta i lokale aktiviteter.
ENKEL TILGANG
Med Vestby stasjon som knytter deg til Oslo på under en halvtime, er Vestby det perfekte bosted for de som søker en harmonisk kombinasjon av byliv og rolig landskap.
Velkommen til Vestby – hvor det vakre møter det moderne, og hvor enhver dag er en ny oppdagelsesreise!

Nabolaget
“I Møllestrøket er alt lagt til rette for å gjøre smarte, grønne valg!”


24
TENK SMART - TENK GRØNT
Hvorfor eie selv når man kan dele? Spar penger og miljøet med bildeling og grønn mobilitet i Møllestrøket!
LETTVINT OG BILLIG
I bildelingsordningen vil du ha tilgang til bil når du trenger den, samtidig som du slipper å tenke på verkstedregninger, avgifter, forsikring, dekkskift, vask og andre utgifter.
Bilen vil stå lett tilgjengelig i parkeringskjeller under boligene – i kort avstand fra utgangsdøren din. Ordningen er enkel i bruk og alt håndteres gjennom Bakkekontaktappen - altså ingen nøkler! Smart - ikke sant?
GOD TILGJENGELIGHET I VESTBY
Foretrekker du å reise med buss eller tog, ligger Møllestrøket midt i smørøyet. Vestby stasjon ligger bare 450 meter unna, hit rusler du på få minutter. Til Oslo S tar togreisen bare
24 minutter! Ved Vestby stasjon finner du også bussholdeplass.
Du har kanskje fått med deg at Vestby også er spesielt godt tilrettelagt for sykkel? Her er det både flatt, landlig og godt tilrettelagt med sykkelveier og sykkelparkering. Sykkelveiene snor seg også gjennom Møllestrøket.
LEI ELSYKLER
Visste du at beboerne i Møllestrøket også kan leie elsykler? Disse reserverer du enkelt gjennom appen Bakkekontakt. Vi har også rikelig med sykkelparkeringer, sykkeldusj og praktisk mekkestasjon.
Foto: Rebecca Pierce
minutter til Oslo
BEIJING AMSTERDAM KØBENHAVN VESTBY


VI VET AT VESTBY ER EN SYKKELBY
ALLE RIR JERNHESTEN
En kjapp rusletur i Vestby sentrum en vårdag viser at Vestby definitivt er en sykkelby. Her er det flatt, fint, og godt tilrettelagt med både sykkelveier og parkering. Avstandene er korte, og det er ikke så mye biltrafikk. Sykkelen blir derfor et naturlig valg av fremkomstmiddel for mange.
TRENGER DU EGENTLIG BIL?
Når man flytter til Møllestrøket kan man faktisk vurdere å kvitte seg med bilen. Togstasjonen er 8 minutter unna, og da er du lett inne i hovedstaden på 25 minutter. Vestby er ingen stor metropol, så det er ikke noe poeng å sette seg i bilen for å dra til senteret, på trening eller butikken. Alt er en rusletur unna. Kanskje man faktisk ikke trenger bil i hverdagen? Skulle du trenge bil av og til, så kan du booke en via
Møllestrøket bildelingsordning.
TILRETTELAGT FOR SYKKEL
I Møllestrøket har vi sett fremover og lagt godt til rette for syklister og syklene deres. Det vil bli godt med innendørs sykkelparkeringer. En egen sone er satt av til sykkeldusj og sykkelverksted.
DELESYKKELORDNING
Det er heller ikke sikkert at du trenger din egen sykkel om du bor i Møllestrøket. Det er nesten like kjapt å ta beina fatt for å komme seg omkring i Vestby, og til infrastrukturens knutepunkter. Men om du likevel skulle ønske å sykle en dag, kan du bare benytte en av Møllestrøkets el-sykler. De er tilgjengelige for alle prosjektets beboere, og kan bookes med appen til trivselskonseptet Bakkekontakt. BOOK DELESYKLER SYKKELPARKERING MEKKESTASJON SYKKELDUSJ





TUSLEAVSTAND TIL
DET DU TRENGER I HVERDAGEN

Foto: Lemon
Foto: Lemon
Foto: Lemon
Foto: Lemon
Foto: Lemon
Foto: Lemon
Bakkekontakt
DELING AV TJENESTER, UTSTYR ELLER KUNNSKAP
Vi tror du trives bedre når du blir kjent med nabolaget ditt! Derfor «bakker vi opp» med et sosialt trivselsverktøy slik at naboer enklere kan møtes, dele og lære av hverandre. For oss er det viktig å legge til rette for god trivsel og livskvalitet. I samarbeid med Heime har vi skapt et trivselskonsept som bidrar til gode bomiljøer med samhold, trivsel og tilhørighet blant beboerne.




FÅ MED MER ENN BARE EN LEILIGHET
SAMHOLD OG TRIVSEL
I samarbeid med Heime har vi skapt et trivselskonsept som bidrar til gode bomiljøer med samhold, trivsel og tilhørighet blant naboene. det er menneskene som skaper et godt nabolag.
Gjennom Bakkekontakt får du muligheten til enkelt å komme i kontakt med dine nye naboer
EN BEDRE HVERDAG
Deling av tjenester, utstyr eller kunnskap bidrar til at boligmiljøet blir trygt og inkluderende. Har du kanskje en drill for mye? Trenger du å låne en tilhenger? Vil du danne en strikkegruppe? Ønsker du deg en
turkamerat? Vil du bli kjent med noen med barn på samme alder som dine barn? Trenger du noen til å passe hunden eller vanne plantene mens du er på ferie?
Alt dette løses enkelt gjennom Bakkekontakt. En bedre hverdag - rett og slett.
DITT NABOLAG
Det beste er at du kan bli med på å forme det nabolaget du drømmer om. Du får også muligheten til å være med på arrangementer som arrangeres i ditt nabolag via en egen aktivitetskalender.


ÅRSHJUL
Et eksempel på årshjul som kan gjennomføres i Møllestrøket. Det er beboerne som bestemmer hva som skal gjøres, men Heime har lang og verdifull erfaring fra hva som er mest populært og vil komme med forslag til aktiviteter og events.
Det legges til rette for at alle skal finne noe man kan tenke seg å delta på. Liker du øl, gode filmer eller dyrking? Synes du det koselig med julegrantenning, utekino eller sommerfest? I Møllestrøket vil det gjennomføres arrangementer gjennom hele året. Bli med på alt, eller ingen ting. Det er helt opp til deg, men du har muligheten!


Boligene

Møllestrøket vil bestå av utadrettet virksomhet på første plan og boligene vil i all hovedsak etableres over et grønt lokk fra 2. etasje. Byggene vil variere i form, farger, materialer og høyder for å gjenskape noe av landskapskarakteren fra åkrene i området.
Illustrasjon av hus C. Avvik vil forekomme.


Det legges opp til gode gangog sykkelstier gjennom prosjektet og det vil på begge sider av Møllestrøket etableres kaféer, butikker, serveringsteder, Coop og andre tilbud som gir det komplette og gode grepet for et godt sted å ferdes, leve og bo.


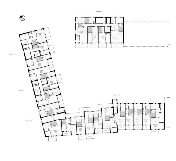
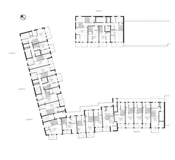
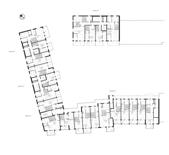
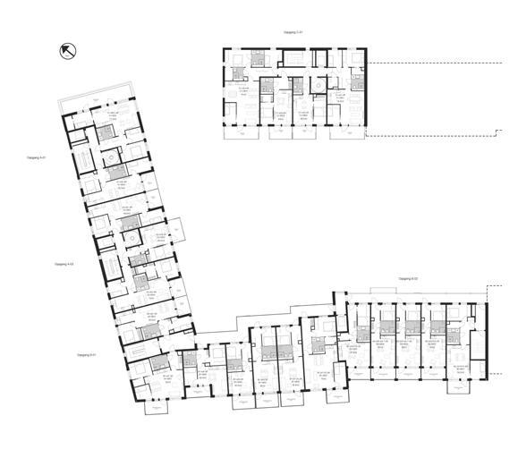
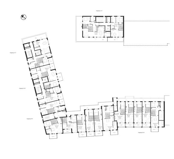
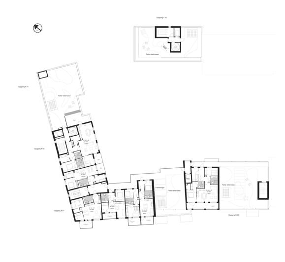
UTOMHUSPLAN
Første salgstrinn består av oppgang Oppgang, A1, A2, B1, B2 og C og blir en fin blanding av 2-, 3- og 4-roms leiligheter.

Møteplasser
Gode møteplasser
tilpasset et sosialt liv
SELSKAPSROM, UTEOMRÅDER
OG FELLES TAKTERRASSE
I Møllestrøket har vi fokus på livskvalitet. Vi tilrettelegger for gode steder å møtes med eller uten invitasjon. Vi er alle forskjellige, noen vil møte andre ofte, andre vil være alene. I Møllestrøket vil du oppleve valgfrihet til å være alene eller sammen ettersom hva du ønsker den dagen.

SAMHOLD, TRIVSEL OG
TILHØRIGHET

illustrasjon fra fellesstue i et annet Bakke-prosjekt med en lignende felles stue. Avvik vil forekomme.

Leilighetene
Om leilighetene
Et hjem du vil hjem til…
”Et hjem du vil hjem til” er prinsippet alle boligene våre bygges etter.
Hvilke løsninger ville du valgt selv? er spørsmålet alt utvikles etter, og våre boliger skal bli så tett som muilig opptil svarene.
Vinduene, gulvene, interiørvalgene, flisene og størrelsen på verandaene - det skal være som å komme hjem til en bolig der du hadde bestemt alt.

Illustrasjon fra lgh B1-0201. Avvik vil forekomme.

Illustrasjon fra lgh A2-0203. Avvik vil forekomme.



Boligene i Møllestrøket leveres komplette og innflyttingsklare ved overlevering. Det er gjennomgående god kvalitet med blant annet:
• Lekker hvitpigmentert 3-stavs parkett
• Kjøkken fra anerkjent kjøkkenleverandør, med alle hvitevarer inkludert
• Delikate flislagte baderom
• Gode oppbevaringsmuligheter
• Romslige, solrike balkonger eller terrasser
• Mulighet for parkering i garasjekjeller
• Tilrettelagt for elbillading
• Vannbåren gulvvarme i oppholdsrom
• Heis
• Sportsbod i underetasjen

STORE VINDUSFLATER
GIR RIKT
MED
LYS

Illustrasjon. Avvik vil forekomme.

Illustrasjon fra lgh C-0101. Avvik vil forekomme.

KJØKKEN MED HVITEVARER INKLUDERT


Illustrasjon fra lgh A1-0202 Avvik vil forekomme.
Illustrasjon fra lgh C-0204 Avvik vil forekomme.

Illustrasjon fra lgh A2-0203. Avvik vil forekomme.

Plantegninger

A
Illustrasjon fra lgh A1-0202. Avvik vil forekomme.
A1101
Type leilighet: 4-roms
Antall soverom: 3
BRA-i: 72,0 m 2
TBA (Markterrasse): 19,3 m 2
Etasje: 1. etg.
MØLLESTRØKET
MØLLESTRØKET
A2101
Type leilighet: 4-roms
Antall soverom: 3
BRA-i: 78,5m 2
TBA (Markterrasse): 17,0 m 2
Etasje: 1. etg.
MØLLESTRØKET
A1201, A1301, A1401, A1501
(Markterrasse): 18,0 m 2 Etasje: 1. etg.
MØLLESTRØKET
MØLLESTRØKET
MØLLESTRØKET
A1202, A1302, A1402, A1502
Type leilighet: 2-roms
Antall soverom: 1
BRA-i: 36,5 m 2
TBA (Balkong): 8 m 2
Etasje: 2, 3, 4, 5. etg.
MØLLESTRØKET
MØLLESTRØKET
A1203, A1303, A1403, A1503, A1602
Type leilighet: 3-roms
Antall soverom: 2
BRA-i: 59,5 m 2
TBA (Balkong): 6 m 2
Etasje: 2, 3, 4, 5, 6. etg.
MØLLESTRØKET
A2202, A2302, A2402, A2502, A2602
Type leilighet: 2-roms
Antall soverom: 1
BRA-i: 36,5 m 2
TBA (Balkong): 8 m 2
MØLLESTRØKET
Etasje: 2, 3, 4, 5, 6. etg. 7,7
Type leilighet: 3-roms
Antall soverom: 2
BRA-i: 59,5 m 2
TBA (Balkong): 6 m 2
Etasje: 2, 3, 4, 5, 6. etg.
MØLLESTRØKET
MØLLESTRØKET
Det tas forbehold om myndighetspålagte endringer.
innvendig målt innenfor boligens omsluttende vegger, inklusive innvendige vegger, bod, sjakter og ventilasjonsaggregat, men ikke medregnet yttervegger.
BRA-e er arealet målt innvendig av alle rom som ligger utenfor boenheten, men som tilhører denne, slik som for eksempel boder.
BRA-b - er arealet innvendig målt av innglasset balkong, veranda eller terrasse når denne er tilknyttet
Beskrivelse: Bygget er ikke ferdig detaljert og endringer forbindelse med prosjektering og bygging må kunne påregnes, blant annet for areal, størrelse og plassering av tekniske installasjoner, sjakter og nedforinger. Pilastre/ utstikkende søyler fra vegg kan tilkomme ifm. detaljprosjektering. Det vil komme ytterligere nedkassinger himling av bærende konstruksjoner som ikke vises på tegning. Endringene skal ikke forringe den generelle standarden leiligheten. Det tas forbehold om myndighetspålagte endringer.
Tilvalg
Type leilighet: 3/4-roms
Antall soverom: 2/3
BRA-i: 77,5 m 2
TBA (Takterrasse): 26,5 m 2
Etasje: 6. etg.
MØLLESTRØKET
bod, sjakter og ventilasjonsaggregat, men ikke medregnet yttervegger.
BRA-e - er arealet målt innvendig av alle rom som ligger utenfor boenheten, men
- er arealet
eller
målt
Areal for yttervegg mellom innglasset balkong og boenhet inngår i BRA-b.
Beskrivelse: Bygget er ikke ferdig detaljert og endringer forbindelse med prosjektering og bygging må kunne påregnes, blant annet for areal, størrelse og plassering av tekniske installasjoner, sjakter og nedforinger. Pilastre/ utstikkende søyler fra vegg kan tilkomme ifm. detaljprosjektering. Det vil komme ytterligere nedkassinger himling av bærende konstruksjoner som ikke vises på tegning. Endringene skal ikke forringe den generelle standarden leiligheten. Det tas forbehold om myndighetspålagte endringer.
MØLLESTRØKET
A2701
Type leilighet: 4-roms
Antall soverom: 3
BRA-i: 97,0 m 2
TBA (Balkong): 8 + 6 m 2 Etasje: 7. etg.
MØLLESTRØKET
Type leilighet: 4-roms
Antall soverom: 3
MØLLESTRØKET
MØLLESTRØKET
A1701
Type leilighet: 4-roms
Antall soverom: 3
BRA-i:
Etasje:
MØLLESTRØKET

Illustrasjon. Avvik vil forekomme.

Type leilighet: 3-roms
Antall soverom: 2
BRA-i: 59,5 m 2
TBA (Markterrasse): 19,0 m 2
Etasje: 1. etg.
MØLLESTRØKET
Type leilighet: 3-roms
Antall soverom: 2
BRA-i: 66,5 m 2
TBA (Markterrasse): 12,0 m 2
BRA-b: 8,5 m 2
Etasje: 1. etg.
MØLLESTRØKET
MØLLESTRØKET
Definisjoner: BRA-i - er arealet innvendig målt innenfor boligens omsluttende vegger, inklusive innvendige vegger, bod, sjakter og ventilasjonsaggregat, men ikke medregnet yttervegger.
BRA-e - er arealet målt innvendig av alle rom som ligger utenfor boenheten, men som tilhører denne, slik som for eksempel boder.
BRA-b - er arealet innvendig målt av innglasset balkong, veranda eller terrasse når denne er tilknyttet
Beskrivelse:
Bygget er ikke ferdig detaljert og endringer forbindelse med prosjektering og bygging må kunne påregnes, blant annet for areal, størrelse og plassering av tekniske installasjoner, sjakter og nedforinger. Pilastre/ utstikkende søyler fra vegg kan tilkomme ifm. detaljprosjektering. Det vil komme ytterligere nedkassinger himling av bærende konstruksjoner som ikke vises på tegning. Endringene skal ikke forringe den generelle standarden leiligheten. Det tas forbehold om myndighetspålagte endringer.
Type leilighet: 2-roms
Antall soverom: 1
BRA-i: 36,0 m 2
TBA (Markterrasse):
MØLLESTRØKET
MØLLESTRØKET
B1104
Type leilighet: 2-roms
Antall soverom: 1
BRA-i: 45,0 m 2
TBA (Markterrasse): 8,5 m 2
BRA-b: 8,0 m 2
Etasje: 1. etg.
MØLLESTRØKET
MØLLESTRØKET
Type leilighet: 2-roms
Antall soverom: 1
BRA-i: 35,5 m 2
TBA (Markterrasse): 13,0 m 2
BRA-b: 8,0 m 2
Etasje: 1. etg.
MØLLESTRØKET
MØLLESTRØKET
B1106
Type leilighet: 3-roms
Antall soverom: 2
BRA-i: 49,5 m 2
TBA (Markterrasse): 5,5 m 2
BRA-b: 6,5 m 2
Etasje: 1. etg.
MØLLESTRØKET
MØLLESTRØKET
MØLLESTRØKET
B2101
Type leilighet: 3-roms
Antall soverom: 2
BRA-i: 59,5 m 2
TBA (Markterrasse): 10,5 m 2
BRA-b: 8 m 2
Etasje: 1. etg.
MØLLESTRØKET
Type leilighet: 2-roms
Antall soverom: 1
BRA-i: 43,0 m 2
TBA (Markterrasse): 10,5 m 2
BRA-b: 6,5 m 2
Etasje: 1. etg.
MØLLESTRØKET
MØLLESTRØKET
Type leilighet: 2-roms
Antall soverom: 1
BRA-i: 43,0 m 2
TBA (Markterrasse): 11 m 2
BRA-b: 7 m 2
Etasje: 1. etg.
MØLLESTRØKET
Type leilighet: 2-roms
Antall soverom: 1
BRA-i: 43,0 m 2
TBA (Markterrasse): 12 m 2
BRA-b: 7 m 2
Etasje: 1. etg.
MØLLESTRØKET
MØLLESTRØKET
B2105
Type leilighet: 2-roms
Antall soverom: 1
BRA-i: 47,5 m 2
TBA (Markterrasse): 10,5 m 2
BRA-b: 6 m 2
Etasje: 1. etg.
MØLLESTRØKET
B1201, B1301, B1401, B1501, B1601, B1701, B1801
Type leilighet: 3-roms
Antall soverom: 2
BRA-i: 59,5 m 2
TBA (Balkong): 6,5 m 2
MØLLESTRØKET
B1202, B1302, B1402
Type leilighet: 3-roms
Antall soverom: 2
BRA-i:
BRA-b: 7,5
Etasje:
MØLLESTRØKET
MØLLESTRØKET
B1203, B1303, B1403
Type leilighet: 2-roms
Antall soverom: 1
BRA-i: 36,0 m 2
BRA-b: 7,5 m 2
MØLLESTRØKET
Etasje: 2, 3, 4. etg. 7,7
B1204, B1304, B1404, B1504, B1604, B1704, B1802
Type leilighet: 2-roms
Antall soverom: 1
BRA-i: 45,0 m 2
BRA-b: 8,0 m 2
Etasje:
MØLLESTRØKET
MØLLESTRØKET
B1205, B1305, B1405, B1505, B605, B1705, B1803
Type leilighet: 2-roms
Antall soverom: 1
BRA-i: 35,5 m 2
BRA-b: 8,0 m 2
MØLLESTRØKET
MØLLESTRØKET
B1206, B1306, B1406, B1506, B1606, B1706, B1804
Type leilighet: 3-roms
Antall soverom: 2
BRA-i:
BRA-b: 6,5
MØLLESTRØKET
B1207, B1307, B1407, B1507, B1607, B1707, B1805
Type leilighet: 3-roms
Antall soverom: 2
BRA-i: 62,0 m 2
BRA-b: 8,0 m 2 Etasje: 2,
MØLLESTRØKET
endringer.
B2201, B2301, B2401, B2501, B2601, B2701
Type leilighet: 3-roms
Antall soverom: 2
BRA-i: 59,5 m 2
BRA-b: 8,0 m
Etasje:
MØLLESTRØKET
MØLLESTRØKET
målt innenfor boligens omsluttende vegger, inklusive innvendige vegger, bod, sjakter og ventilasjonsaggregat, men ikke medregnet yttervegger.
BRA-e - er arealet målt innvendig av alle rom som ligger utenfor boenheten, men som tilhører denne, slik som for eksempel boder.
BRA-b - er arealet innvendig målt av innglasset balkong, veranda eller terrasse når denne er tilknyttet
Beskrivelse: Bygget er ikke ferdig detaljert og endringer forbindelse med prosjektering og bygging må kunne påregnes, blant annet for areal, størrelse og plassering av tekniske installasjoner, sjakter og nedforinger. Pilastre/ utstikkende søyler fra vegg kan tilkomme ifm. detaljprosjektering. Det vil komme ytterligere nedkassinger himling av bærende konstruksjoner som ikke vises på tegning. Endringene skal ikke forringe den generelle standarden leiligheten. Det tas forbehold om myndighetspålagte endringer.
B2202, B2302, B2402, B2502, B2602, B2702
Type leilighet: 3-roms
Antall soverom: 2
BRA-i: 43,0 m 2
BRA-b: 8,0 m 2
Etasje: 2, 3, 4, 5, 6, 7. etg. 7,7
MØLLESTRØKET
MØLLESTRØKET
B2203, B2303, B2403, B2503, B2603, B2703
Type leilighet: 2-roms
Antall soverom: 1
BRA-i: 43,0 m 2
BRA-b: 7,0 m 2
Etasje: 2,
MØLLESTRØKET
B2204, B2304, B2404, B2504, B2604, B2704
Type leilighet: 2-roms
Antall soverom: 1
BRA-i: 47,5 m 2
BRA-b: 7,0 m 2
2,
MØLLESTRØKET
MØLLESTRØKET
B2205, B2305, B2405, B2505, B2605, B2705
Type leilighet: 2-roms
Antall soverom: 1
BRA-i:
MØLLESTRØKET
Definisjoner:
- er arealet innvendig målt innenfor boligens omsluttende vegger, inklusive innvendige vegger, bod, sjakter og ventilasjonsaggregat, men ikke medregnet yttervegger.
BRA-e - er arealet målt innvendig av alle rom som ligger utenfor boenheten, men som tilhører denne, slik som for eksempel boder.
BRA-b - er arealet innvendig målt av innglasset balkong, veranda eller terrasse når denne er tilknyttet boenheten. Areal for yttervegg mellom innglasset balkong og boenhet inngår BRA-b.
BRA (sum) er summen av ovennevnte arealer.
Beskrivelse: Bygget er ikke ferdig detaljert og endringer forbindelse med prosjektering og bygging må kunne påregnes, blant annet for areal, størrelse og plassering av tekniske installasjoner, sjakter og nedforinger. Pilastre/ utstikkende søyler fra vegg kan tilkomme ifm. detaljprosjektering. Det vil komme ytterligere nedkassinger himling av bærende konstruksjoner som ikke vises på tegning. Endringene skal ikke forringe den generelle standarden leiligheten. Det tas forbehold om myndighetspålagte endringer. Denne typen gjelder B2 - 0205
B1502, B1602, B1702
Type leilighet: 3-roms
Antall soverom: 2
BRA-i: 75,5 m 2
BRA-b: 7,5 m 2
MØLLESTRØKET
Etasje: 5, 6, 7. etg. 7,7
B1503
Type leilighet: 2-roms
Antall soverom: 1
BRA-i: 45,0 m 2
Etasje: 5. etg.
MØLLESTRØKET
MØLLESTRØKET
Definisjoner:
BRA-i - er arealet innvendig målt innenfor boligens omsluttende vegger, inklusive innvendige vegger, bod, sjakter og ventilasjonsaggregat, men ikke medregnet yttervegger.
BRA-e er arealet målt innvendig av alle rom som ligger utenfor boenheten, men som tilhører denne, slik som for eksempel boder.
BRA-b er arealet innvendig målt av innglasset balkong, veranda eller terrasse når denne er tilknyttet boenheten. Areal for yttervegg mellom innglasset balkong
Beskrivelse: Bygget er ikke ferdig detaljert og endringer forbindelse med prosjektering og bygging må kunne påregnes, blant annet for areal, størrelse og plassering av tekniske installasjoner, sjakter og nedforinger. Pilastre/ utstikkende søyler fra vegg kan tilkomme ifm. detaljprosjektering. Det vil komme ytterligere nedkassinger himling av bærende konstruksjoner som ikke vises på tegning. Endringene skal ikke forringe den generelle standarden leiligheten. Det tas forbehold om myndighetspålagte endringer.
Type leilighet: 4-roms
Antall soverom: 3
BRA-i: 94,0 m 2
BRA-b: 15,5 m 2 Etasje: 8. etg.
MØLLESTRØKET

Illustrasjon. Avvik vil forekomme.

Illustrasjon. Avvik vil forekomme.
C1102
MØLLESTRØKET
MØLLESTRØKET
MØLLESTRØKET
Type leilighet: 4-roms
Antall soverom: 3
BRA-i: 84,0 m 2
TBA (Markterrasse): 20,0 m 2
Etasje: 1. etg.
MØLLESTRØKET
MØLLESTRØKET
C1201, C1301, C1401, C1501, C1601
Type leilighet: 4-roms
Antall soverom: 3
BRA-i:
(Balkong):
MØLLESTRØKET
BRA-e - er arealet målt innvendig av alle rom som ligger utenfor boenheten, men som tilhører denne, slik som for eksempel boder.
BRA-b - er arealet innvendig målt av innglasset balkong,
Beskrivelse: Bygget er ikke ferdig detaljert og endringer i forbindelse med prosjektering og bygging må kunne påregnes, blant annet for areal, størrelse og plassering av tekniske installasjoner, sjakter og nedforinger. Pilastre/ utstikkende søyler fra vegg kan tilkomme ifm. detaljprosjektering. Det vil komme ytterligere nedkassinger himling av bærende konstruksjoner som ikke vises på tegning. Endringene skal ikke forringe den generelle standarden leiligheten. Det tas forbehold om
C1202, C1203, C1403, C1502, C1602
Type leilighet:
Antall soverom: 1
MØLLESTRØKET
Etasje:
3,5 m² Bad 3,1 m² Gang
MØLLESTRØKET
C1203, C1303, C1403, C1503, C1603
MØLLESTRØKET
8,0 m² Balkong
utilgjengelig
17,0 m² Kjøkken/Stue
8,8 m² Sov 1,7 m² Bod/Gard.
Definisjoner:
BRA-i - er arealet innvendig målt innenfor boligens omsluttende vegger, inklusive innvendige vegger, bod, sjakter og ventilasjonsaggregat, men ikke medregnet yttervegger.
BRA-e - er arealet målt innvendig av alle rom som ligger utenfor boenheten, men som tilhører denne, slik som for eksempel boder.
BRA-b er arealet innvendig målt av innglasset balkong, veranda eller terrasse når denne er tilknyttet boenheten. Areal for yttervegg mellom innglasset balkong og boenhet inngår BRA-b.
BRA (sum) er summen av ovennevnte arealer.
TBA er arealet av terrasser og åpne
1 2 5 10 1:100
Beskrivelse: Bygget er ikke ferdig detaljert og endringer forbindelse med prosjektering og bygging må kunne påregnes, blant annet for areal, størrelse og plassering av tekniske installasjoner, sjakter og nedforinger. Pilastre/ utstikkende søyler fra vegg kan tilkomme ifm. detaljprosjektering. Det vil komme ytterligere nedkassinger himling av bærende konstruksjoner som ikke vises på tegning. Endringene skal ikke forringe den generelle standarden i leiligheten. Det tas forbehold om myndighetspålagte endringer.
C1204, C1304, C1404, C1504, C1604
Type leilighet: 4-roms
Antall soverom: 3
BRA-i: 91,0 m 2
TBA (Balkong): 12,0 m 2
Etasje: 2, 3, 4. 5. og 6. etg.
MØLLESTRØKET
C1701
Type leilighet: 3-roms
Antall soverom: 2
BRA-i: 64,5 m 2
TBA (Takterrasse): 15,0 m 2
Etasje: 7. etg.
MØLLESTRØKET
MØLLESTRØKET
Type leilighet: 4-roms
Antall soverom: 3
BRA-i: 102,5 m 2
TBA (Takterrasse): 61,0 m 2
Etasje: 7. etg.
MØLLESTRØKET


Illustrasjon fra lgh C-0204 Avvik vil forekomme.

Etasjeplaner









Interiør
Våre stilpakker
Et hjem du vil hjem til…
EN SIKKER GUIDE
TIL INTERIØR DU LIKER
Boligene leveres med gjennomgående god standard og det vil i en tidsbestemt periode være mulig å sette ditt personlige preg på boligen. Under tilvalgsperioden kan man gjøre tilvalg på blant annet kjøkken, gulv, baderom, innvendige dører, farger på vegg med mer.
ALLE BOLIGENE LEVERES MED:
• 3-stavs parkett
• Kjøkken fra anerkjent kjøkkenleverandør, med hvitevarer inkludert
• Delikate flislagte baderom
• Praktisk oppbevaring med bodløsning
• Utgang til privat og trivelig uteplass
• Mulighet for parkering i garasjekjeller
Se stiltyper på kjøkken til inspirasjon på de kommende sidene.

Stilpakke - Standard leveranse
Klassisk konsept
Konseptet leveres med glatt hvit front, benkeplate i fargen hvit betong laminat og line grep i antrasitt, eller tilsvarende. Forslag til veggfarge 10678 Space. (Boligen leveres hvitmalt som standard leveranse)

LYSE KONTRASTER
Den klassiske stilen er godt forankret og noe vi lett kan identifisere oss med. Her leveres kjøkkenet med hvite fronter, benkeplate i fargen hvit betong og veggene er malt i fargen space. Den varme jordtonen skaper en lun kontrast og kan få oss til å tenke på varme svaberg, jorder og åkerlandskap.
Den klassiske stilen er inspirert av den nordiske stilen som lenge har vært preget av hvitt og grått. Nå tør vi bruke farger i mye større grad, og disse fargene er kjente og kjære for oss som bor i nord. Her ser du farger som passer godt å kombinere til stilen for å skape et lyst, innbydende hjem.
10679 WASHED LINEN
Veggfarge: Space Kan leveres som tilvalg (Boligen leveres hvitmalt, med hvitt kjøkken som standard leveranse)



illustrasjoner og bilder er kun ment som illustrasjon/inspirasjon. Avvik vil forekomme. Foto: Slettvoll / Norema
Illustrasjon. Avvik vil forekomme.
Farger,
Stilpakke
Lunt konsept
Konseptet leveres med beige fronter, laminat benkeplate i fargen «Sandsten» og line grep eloxert brun eller tilsvarende.
Forslag til veggfarge 9918 Klassisk hvit. (Boligen leveres hvitmalt som standard leveranse)

LUNT OG LEKKERT (tilvalg)
Den lune stilen preges av rolige, duse farger i harmoni. Her leveres kjøkkenet med beige fronter, benkeplaten i fargen sandsten og veggene er hvite. Kombiner gjerne med varmere fargenyanser for å gi rommene et lunt preg.
Vi byr på forslag til kontrastfarger som inspirasjon til valg av tilleggsfarger på vegger, møbler og detaljer. En lun og lekker stil som gir rom til å skape ditt unike drømmehjem.
10678
SPACE
Forslag veggfarge: Klassisk Hvit (Boligen leveres hvitmalt, med hvitt kjøkken som standard leveranse)


Farger, illustrasjoner og bilder er kun ment som illustrasjon/inspirasjon. Avvik vil forekomme. Foto: Slettvoll / Norema

Illustrasjon. Avvik vil forekomme.
Moderne konsept Stilpakke
Konseptet leveres med grå front, , laminat benkeplate fargen «Portland Stone» og line grep i sort eller tilsvarende.
Forslag til veggfarge 12078 Comfort grey. (Boligen leveres hvitmalt som standard leveranse)

MODERNE VRI (tilvalg)
Den moderne stilen henter inspirasjon fra storbyen og tør å tenke utenfor boksen når det gjelder fargevalg. Her leveres kjøkkenet med grå fronter, benkeplate i fargen grafitt og veggene i varmgrå.
Stilen passer godt sammen med stramme linjer og mørke farger på innredning og tåler bruk av mørkere farger også på vegger. Kombiner gjerne med detaljer i skinn, gjerne i stoler og sofaer. Sofistikert og stilsikkert som lar deg vise hvem du er.



Forslag veggfarge: Comfort grey
(Boligen leveres hvitmalt, med hvitt kjøkken som standard leveranse)
Illustrasjon. Avvik vil forekomme.
Farger, illustrasjoner og bilder er kun ment som illustrasjon/inspirasjon. Avvik vil forekomme. Foto: Slettvoll / Norema

LEVERANSEBESKRIVELSE
MØLLESTRØKET LEILIGHETER
GENERELT
Denne beskrivelsen er utarbeidet for å orientere om bygningens viktigste bestanddeler og funksjoner. Tegninger og bilder i salgsoppgaven er illustrasjoner. Leveringsomfang, fargevalg og materialkvaliteter er gjengitt denne leveringsbeskrivelse. Det kan forekomme avvik mellom leveransebeskrivelsen og den øvrige salgsinformasjonen (herunder salgstegninger). I slike tilfeller er det alltid denne leveransebeskrivelsen som er gjeldende. Enkelte illustrasjoner tegningsmateriale og øvrig salgsmateriell vil vise forhold som ikke er med i leveransen, så som møblering, kjøkkenløsning, hvitevarer, garderobeinnredning, fargevalg, tepper, dør og vindusform, bygningsmessige detaljer, f.eks. fasadedetaljer, detaljer på fellesarealer, materialvalg, blomsterkasser, beplantning etc.
Tegninger prospektet kan i noen grad avvike i forhold til den endelige utforming, blant annet er sjakter, innkassinger og VVS- føringer ikke eksakt inntegnet. Salgstegningene prospektet er ikke egnet for måltaking, da det er de ferdig prosjekterte og detaljerte arbeidstegninger det bygges etter. Videre kan vindusplasseringen, størrelse og åpningsmulighet den enkelte leilighet avvike noe fra de generelle planer, som følge av blant annet den arkitektoniske utformingen av bygget, krav til bæring osv.
Boligprosjektet blir rammesøkt etter teknisk forskrift TEK 17.
TOMT
For opparbeidelse av tomten henvises til utomhusplan. Gårdstunene mellom leilighetsbyggene tilrettelegges for opphold og lek.
Utomhusplanen vil vise arealer som ligger utenfor tomten. Utomhusplanen er ikke endelig og avvik kan forekomme.
Det blir avsatt areal til sykkelparkering på terreng og i p-anlegget.
Det leveres utekran og utvendig el-punkt til hvert hovedinngangsparti og felles takterrasser.
KONSTRUKSJON
Bærekonstruksjon er i betong og stål, utføres i prefabrikkerte betongelementer og/eller plassbygget betong. Fasadeveggene utføres av bindingsverk, med luftet kledning.
Balkongdekker utføres i betong med skråstilt innfestning.
Innvendige vegger utføres i stål/tre-stender-verk kledd med gipsplater og mineralull for å dempe lyd. Støpte vegger sparkles og males.
Takhøyde i leilighetene vil generelt være 2,5m, høyde i bad, entre og gang vil være 2,2m.
Underetasje/p-anlegg utføres med gulv i fast dekke. Yttertak belagt med isolasjon og takpapp.
UTVENDIG OVERFLATE
Fasadene kles utvendig av tegl og fasadeplater som hovedmaterialer med innsalg av tre.
INNVENDIG OVERFLATE
Entre:
Tak: sparklet og malt, betong med synlig v-fuge eller gips.
Gulv: 3-stavs eikeparkett, lys hvitpigmentert.
Vegger: sparklet og malt gips eller betong.
Stue/kjøkken:
Tak: sparklet og malt betong med synlig v-fuge.
Gulv: 3-stavs eikeparkett – lys hvitpigmentert.
Vegger: sparklet og malt gips eller betong.
Soverom:
Tak: sparklet og malt betong med synlig v-fuge.
Gulv: 3-stavs eikeparkett – lys hvitpigmentert.
Vegger: sparklet og malt gips eller betong.
Bad:
Tak: hvit overflate.
Gulv: standard lys grå flis 30x30 cm og 10x10 cm i dusjssone.
Vegger: lys grå flis 30x60 cm.
WC (evt. separat WC):
Tak: sparklet og malt betong med synlig v-fuge.
Gulv: standard lys grå flis 30x30 cm.
Vegger: sparklet og malt gips eller betong.
Innvendig bod:
Tak: sparklet og malt betong med synlig v-fuge.
Gulv: 3-stavs eikeparkett – lys hvitpigmentert.
Vegger: sparklet og malt gips eller betong.
Sportsboder:
Det medfølger sportsbod til alle leiligheter. Bodene leveres med nettingsvegger og dør som kan låses med hengelås. Det leveres ikke stikkontakt i bod. Boden er beregnet til lagring av bildekk, sykler, utemøbler og
lignende. Den er ikke egnet til lagring av klær, bøker og lignende.
Parkeringskjeller:
Gulv i p-kjeller: Støvbundet betong, biloppstillingsplassene merkes.
Tak: støvbundet betong / garasjehimling under leiligheter. Hvitfarget.
Vegger og søyler: Støvbundet vegger, men innslag av farger på søyler og inngangsparti.
Det leveres ikke sluk gulv p-kjeller.
VINDUER
Alle vinduer leveres i godkjent utførelse og i henhold til varmetapsberegning. Leveres med farge iht. konsept fra Arkitekt. Større vinduer må påregnes levert i fastkarm (ikke til å åpne). Det benyttes nå så godt isolerte vinduer at det tidvis vil kunne dugge på utsiden.
SOLAVSKJERMING
Prosjektet er forberedt for solavskjerming. Solavskjerming vil kunne velges som tilvalg. Det er krav til entydig utforming. Solutsatte fasader leveres med solavskjerming i nødvendig omfang i henhold til byggeteknisk forskrift. Tegninger med plasseringer vil foreligge ved tilvalg.
DØRER
Leilighetsdør levers i fabrikkmalt utførelse med FG-godkjent sikkerhetslås. Farge iht. konsept fra Arkitekt. Balkong / terrassedør leveres i samme utførelse som vinduer. Innvendige dører leveres i hvit utførelse med hvite karmer og dempelister.
LISTVERK
Alt listverk (gulvlister, utforinger, gerikter rundt dører etc.) leveres hvitmalt i glatt utførelse. Listverk utføres med synlig spiker. Taklister leveres ikke, men overgang mellom tak og vegg fuges før maling.
INNREDNING
På bad leveres hvit baderomsinnredning med skuffer, en servanttopp, speil, lys og stikkontakt. Størrelse på innredning vises på plantegning til den enkelte leilighet. Selger tar forbehold om mindre endringer i detaljprosjekteringen.
Leiligheter med separate WC leveres med enkel servant og speil over servanten.
Kjøkkeninnredning leveres av anerkjent nordisk leverandør. Kjøkkenfronter i hvit glatt utførelse og laminat benkeplate. Det leveres integrerte hvitevarer av type Electrolux eller tilsvarende kvalitet, med induksjonsplatetopp, stekeovn, kjøl/fryseskap og oppvaskmaskin. Antall skap i henhold til kjøkkentegning for den enkelte leilighet.
Mulig plassering av garderobeskap i soverom er vist på tegning, men leveres ikke.
OPPVARMING
Det leveres sentralt varmeanlegg som benyttes til oppvarming og tappevann. Leilighetene leveres med vannbåren gulvvarme i kjøkken, stue og gang. Det leveres ikke vannbåren gulvvarme på soverom. Elektriske varme kabler på badegulv.
Kostnad for oppvarming er medregnet i utkast til driftsbudsjett med kroner 12,- pr. kvm BRA, men dette vil bli avregnet a-konto, og kjøper betaler således etter faktisk forbruk. Vi tar forbehold om kostnadsnivå pga dagens svært varierende energipriser.
Avregning av energi til fellesareal utføres av sameiet basert på fellesmåler. Fellesmåleren måler sameiets energiog vannforbruk, som så internt fordeles i henhold til sameiebrøk.
VENTILASJON
Det leveres balansert ventilasjon med varmegjenvinner i hver enkelt leilighet. Tilluftventiler (friskluft) plasseres i oppholdsrom, som for eksempel soverom og stue mens avtrekksventiler plasseres i våtrom, WC, bod og kjøkken.
Aggregat plasseres fortrinnsvis over himling gang/ entre. Alternativt plassering er i bod eller som del av kjøkken ventilator.
RØR OG SANITÆR
Kjøkken leveres med oppvaskkum i stål, blandebatteri og opplegg for oppvaskmaskin. Ventilasjonshette slimline, integrert i overskap.
Bad leveres med blandebatteri og vegghengt toalett, og alt sanitærutstyr blir levert hvit utførelse. Opplegg for vaskemaskin med vann, avløp og stikkontakt der hvor det er vist plassering av vaskemaskin på tegningene. Det leveres innsvingbare dusjvegger i herdet glass, eller dusjvegger med glassdør samt armatur i god kvalitet. Det kan være en synlig innkassing på vegg hvor toalettet er plassert.
Bad leveres som prefabrikkert baderomskabiner/moduler (enkelte bad kan være plassbygget).
EL-INSTALLASJON, TELEFON, ETC.
Elektrisk anlegg leveres iht NEK 400:2022 og ligger generelt skjult i leiligheten, bortsett fra enkelte fremføringer til lys og stikk under overskap på kjøkken og i boder, samt eventuelt andre nødvendige synlige kabelføringer langs vegger.
Det leveres hvite brytere og stikkontakter. Punktplan for hver bolig vil bli utarbeidet, alle elektriske punkt er plassert på vegg.
Det leveres LED belysning under overskap på kjøkken. På bad leveres stikkontakter ved vask, vaskemaskin, og tørketrommel. Det vil bli levert nedfelte downlights på bad og lys over speil. Ellers leveres ikke innvendig lamper. På balkonger, takterrasser og terrasser på terreng leveres det lampe og stikkontakt. Innvendig bryter.
Det forberedes for El bil ladepunkt på P-plasser i kjeller. Dette vil bli håndtert med et smart-ladesystem. Komplett tilkobling av lade-stasjon vil være tilvalg.
Sportsbod leveres uten strømuttak, felles belysning i tak. Motorstyrt garasjeport med portåpner.
Det blir tegnet kollektiv avtale for levering av bredbånd og digital-TV. Grunnpakke er inkludert i fellesutgiftene.
Det gjøres oppmerksom på at fasttelefon og NEK 700 ikke leveres.
Det monteres ringetablå ved hovedinngangsdør, og porttelefon med automatisk låsåpner på vegg i hver enkelt leilighet. Det leveres ikke videokamera.
BALKONGER/UTEPLASSER
Balkongdekker er å anse som utvendig konstruksjon, med overflate i betong. Mindre ansamlinger av vann vil derfor kunne oppstå på gulvflaten etter regnvær. Drypp fra overliggende balkonger må påregnes. Rekkverk på balkonger oppføres med glassrekkverk.
Plattinger på terrengnivå, og takterrasser vil bli uført i impregnert treverk.
FELLESAREALER, INNGANGSPARTI, KORRIDOR, HEIS OG TRAPPEROM.
Fra garasje og hovedinngangsdør går det heis til alle etasjer. Postkasser plasseres på egnet sted etter Postens henstilling. Det legges flis hovedinngang. I trapper og repoer blir det lagt gulvbelegg. Trapperommet er ikke oppvarmet, men temperert. Fellesterrasse bygges i impregnert trevirke. Rekkverk på takterrasser oppføres med glassrekkverk. Gallerigangen har i hovedsak spilerekkverk.
Felles stue bygg A leveres med minikjøkken, slitesterkt gulvbelegg og møblert.
AVVIK/ENDRINGER
Prosjektet og dets priser er basert på at utbyggingen gjennomføres rasjonelt og med delvis serieproduksjon form av systematisering av tekniske løsninger og valg av materialer. Dette gir begrensninger for hvilke tillegg og endringer som kjøper kan forvente å få gjennomført.
Selger utarbeider en tilvalg-/endringsmeny som angir aktuelle muligheter for endringer og tilleggsarbeider mot tillegg i kjøpesummen.
Selgers representant vil opplyse kjøper om siste frist for bestilling av tilvalg prosjektet. Etter dette vil det ikke være mulig å gjøre tilvalg som avviker fra standard leveranse. Selger er uansett ikke forpliktet til å utføre endringer eller tilleggsarbeider som vil endre vederlaget med 15 % eller mer, jf. Bustadoppføringslova § 9.
Inngås kjøpsavtale etter igangsetting, er kjøper kjent med at frister for tilvalg kan være utgått.
Kjøper har ikke rett til å kreve endringer og tilleggsarbeider som ikke står i sammenheng med ytelser som er avtalt, og som i omfang eller karakter skiller seg vesentlig fra den avtalte ytelsen og/eller er til hinder for rasjonell gjennomføring av byggearbeidene. Selger er heller ikke forpliktet til å utføre endringer eller tilleggsarbeider som vil føre til ulempe for selger og som ikke står i forhold til kjøpers interesse i å kreve endringer eller tilleggsarbeider. Selger har rett til å ta seg betalt for utarbeidelse av pristilbud, tegninger mv. jf. Bustadoppføringslova § 44.
Dersom kjøper ønsker endrings/ tilleggsarbeider utført skal dette bestilles skriftlig til selger.
BYGGESTART
Byggestart estimert 2. halvår 2025.
DIVERSE
Prosjektet er fortsatt en prosjekteringsfase og alle opplysninger i denne tekniske beskrivelse er derfor gitt med forbehold om og rett til, uten forutgående varsel, å gjøre endringer som er hensiktsmessige og nødvendige, eksempelvis pga offentlige pålegg, byggesakskrav og lignende, uten at den planlagte generelle standard
forringes nevneverdig grad. Videre kan størrelse på sjakter og veggtykkelse bli justert. Tekniske installasjoner er ikke tegnet inn på plantegninger, disse vil bli montert i henhold til normale retningslinjer og byggeforskrifter. Også omfang av nedforete himlinger eller innkassinger kan justeres ettersom detaljprosjekteringen gjennomføres.
Selger forbeholder seg rett til å foreta endringer knyttet til en eventuell deling, sammenslåing eller bruksendring av usolgte boliger.
Tegninger og bilder i prospekt er kun illustrasjoner og vil avvike i forhold til plan – og fasadetegninger som vedlegges kontrakt, herunder teknisk beskrivelse.
Beplanting og blomster, innredninger, tepper, møbler, markiser, og annet tilbehør utover det som er beskrevet ovenfor, leveres ikke.
FORBEHOLD/TEKNISK/TOMTER/ TOMTESTØRRELSE
Det tas forbehold om tilfredsstillende forhåndssalg, samt finansiering av prosjektet, før bygging kan igangsettes. Videre er byggestart avhengig av godkjent rammetillatelse samt at igangsettelsestillatelse blir gitt fra myndighetene. Det tas generelt forbehold om myndighetenes saksbehandlingstid og eventuell justering i fremdriften for overtagelse og innflytting, hjemmelsoverføring med videre som følge av dette.
Generelle beskrivelser av prosjektet i salgs- og markedsføringsmateriell vil ikke passe for alle boligene i prosjektet. Kjøper oppfordres særskilt til å vurdere solforhold, utsikt og beliggenhet i forhold til omkringliggende terreng og eksisterende og fremtidig bygningsmasse før bud inngis.
Det tas forbehold om at sjakter og føringsveier for tekniske installasjoner ikke er inntegnet. Innkassinger vil ha varierende størrelse avhengig av leilighetstype og etasjeplan.
Selger tar forbehold om at egnet uteareal kan henfalle en driver av næringsarealene i boligbygget.
Selger gjør oppmerksom på at tomten ikke er endelig oppmålt.
Det tas forbehold om eventuelle feil beskrivelsen.
SKJEGGKRE
Selger kan ikke garantere at det ikke er skjeggkre i boligen ved overtagelse. Skjeggkre er et beslektet insekt av sølvkre. Det lever kun innendørs og trives best ved høy fuktighet, men sammenlignet med sølvkre kan de klare seg også i tørrere miljøer. Skjeggkre er observert i bygg over hele landet, og mange av funnene er fra nyere og moderne boliger. Selv om det per i dag ikke er en kjent metode for å utrydde skjeggkre, finnes det tiltak som bringer forekomst av skjeggkre ned på et akseptabelt nivå. Anbefalte tiltak er bl.a. bruk av limfeller og hyppig renhold for å fjerne næringstilgangen. Skjeggkre gjør liten skade, men kan virke sjenerende.
BYGGEAKTIVITET
Det må påregnes byggeaktivitet i området etter innflytting, og utbygger har således rett til å ha maskiner/utstyr i området inntil alle boenheter og utomhusanlegg er ferdigstilt. Prosjektet vil bli utført i flere utbyggingstrinn, og kan medføre enkelte ulemper for beboerne inntil ferdigstillelse av samtlige byggetrinn.
Utgave dato 01.04.2025

Kontraktsmessige forhold
KONTRAKTSMESSIGE
FORHOLD,
EIERSEKSJON I BOLIGSAMEIE
Viktig at kjøper i tillegg setter seg grundig inn selgers kjøpekontrakt som er en del av dette prospektet før innlevering av kjøpetilbud.
Selger/Utbygger/Hjemmelshaver: Bakke & Malling Vestby AS, orgnr. 924771798
Salg ved: Bakke AS
Navn kontaktperson: Camilla Myhre
E-post direkte: camilla@bakke-as.no
Telefon direkte: 900 87 767
Oppgjør ved: Weboppgjør AS
E-post direkte: natalia@weboppgjør.no
Telefon direkte: 906 52 112
AREALANGIVELSER
Internt bruksareal (BRA-i) er areal innenfor omsluttende vegger. For eksempel stue, soverom, kjøkken, entre, bad, innvendig bod og rom for kommunikasjon mellom disse. Eksternt bruksareal (BRA-e) er for eksempel en ekstern bod, kjellerstue med egen inngang, tilleggsbygg eller andre rom som tilhører boenheten, men som ikke er direkte tilknyttet det interne arealet. Tilleggsbygg kan være for eksempel garasje eller utvendig bod.
lnnglasset balkong (BRA-b) er innglassede balkonger som tilhører boenheten.
Terrasse- og balkongareal (TBA) er arealet av terrasser, altaner, verandaer og åpne balkonger som er tilknyttet boenheten.
TOMT / FELLESAREALER
Eiet tomt er dag ca. 26.960 kvm, inkludert fremtidige
byggetrinn. Det kan bli foretatt grensejusteringer og eventuell sammenslåing/deling i forbindelse med utbyggingen. Tomtens areal etter evt. justeringer er ennå ikke fastsatt. Det tas forbehold dersom fradeling eller sammenføyning skal finne sted etter krav fra offentlige myndigheter.
MATRIKKEL / ADRESSE
Eiendommen har i dag matrikkelnummer gnr. 11 bnr. 82 Vestby kommune. Matrikkelnummer vil kunne endres i forbindelse med utviklingen av prosjektet. Seksjonsnummer fastsettes i forbindelse med seksjoneringen.
Eiendommen har i dag adresse Garderveien 15. Adressen kan bli endret og vil bli endelig fastsatt av kommunen innen overtagelse.
REGULERINGSFORHOLD
Gjeldende plan for området er Vestby sentrum felt S10, S17 og S18, PlanID: 3019_0294, datert 01.07.2021 med bestemmelser sist revidert 04.01.24. Området er regulert til
boligbebyggelse. Reguleringsplan og -bestemmelser følger som vedlegg til kjøpekontrakten.
Interessenter oppfordres til å kontakte prosjektselger ved spørsmål til reguleringen i området.
GARASJEANLEGG / PARKERING
Det er mulig å kjøpe en garasjeplass for seksjoner på 70 BRA eller større så lenge det er ledige p-plasser til salgs. I tillegg vil det være mulighet for delebil. Det vil være mulighet for å sette seg på venteliste rundt ferdigstillelse av prosjektet hvis det fortsatt er ledige plasser.
BODER
Det medfølger sportsbod kjeller for alle boligene.
BETALINGSBETINGELSER
Det forutsettes at delinnbetaling/forskudd på kr. 100.000, - (50.000, - for de under 34) av kjøpesummen betales ved varsel om heving av forbehold fra selger. Resterende del av kjøpesum inkludert eventuelle tilvalg samt omkostninger betales senest 7 virkedager før overtakelse. Alle innbetalinger skjer til klientkonto hos oppgjørsmegler i Webppgjør AS.
Forsinkes betaling med mer enn 21 dager for beløpet som forfaller ved heving av forbehold og 30 dager for andre avtalte innbetalinger, har selger rett til å heve kjøpet og foreta dekningssalg. Selger vil holde kjøper ansvarlig for selgers eventuelle økonomiske tap som følge av kjøpers mislighold. Selger har rett til dekning av sitt tilgodehavende i kjøpers innbetalte delinnbetaling, herunder også for renter og andre omkostninger, som påløper på grunn av kjøpers mislighold.
OMKOSTNINGER I TILLEGG TIL KJØPESUM Dokumentavgift utgjør 2,5 % av seksjonens andel av tomteverdien.
P.t. er tomteverdien antatt å være ca. kr 3575,- pr kvm BRA for boligen. Dette gir en dokumentavgift på kr 89,- pr kvm BRA for boligen.
I tillegg påløper tinglysingsgebyr på kr. 500,- for skjøte og for hvert pantedokument som skal tinglyses, pluss kostnader til pantattest på kr 240,-. Det tas forbehold om endring av gebyrsatsene og beregningsgrunnlaget for disse.
Dokumentavgift beregnes av andel tomteverdi inkludert infrastruktur. Det gjøres oppmerksom på at det er tomtens verdi på tinglysningstidspunktet som legges til grunn for avgiftsberegningen. Opplyst dokumentavgift er beregnet ut fra dagens antatte tomteverdi. Dersom Statens Kartverk ikke godkjenner oppgitt avgiftsgrunnlag, må kjøper betale den dokumentavgift som Statens Kartverk forlanger.
I tillegg kommer administrasjonsgebyr for etablering av bredbånd/tv og sameiet/seksjonering på kr 10 000,- Det gjøres oppmerksom på alle kjøpere vil bli fakturert 3 x felleskostnad som oppstarts kapital til sameiet i forbindelse med innflytting. Dette for å sikre at sameiet har økonomiske midler ved oppstart. Det er forretningsfører som vil fakturere dette direkte til hver boligeier i etterkant av overlevering.
FELLES STUE
Som beboer i Møllestrøket Hus A-C har du tilgang til felles stue som blir en næringsseksjon som eies av alle boligseksjonene i Møllestrøket Hus A, B og C, (ca. 151 leiligheter) i fellesskap. Eierskapet er fordelt likt per boligseksjon og ligger i tingsrettslig sameie mellom eierne. Sameieandelen (1/151 del) tinglyses med en realkopling og ligger som et tilbehør til boligseksjonen i samsvar med avhendingsloven § 3-4 andre ledd, bokstav d. Sameieandelen følger boligseksjonen ved salg. Arealet er på ca 67 kvm. Selger vil ta opp fellesgjeld på denne seksjonen som tilsvarer
kr 29 000,- pr. boligseksjon og andel nedbetaling er inkludert i fellesutgifter.
FELLESUTGIFTER
Størrelsen på fellesutgiftene er ikke fastsatt, men stipulerte fellesutgifter skal dekke sameiets ordinære driftsutgifter, som vil omfatte bl.a felles forsikring, kostnader til drift og vedlikehold, forretningsførsel, kommunale avgifter og strøm i fellesarealer. I tillegg er Bakkekontakt og fellesstue fellesutgifter. Det vil på vegne av sameiet bli inngått driftsavtaler med tekniske leverandører etter behov. Foreløpig budsjett er utarbeidet av forretningsfører og foreligger som et vedlegg til kontrakt.
Fyring vil beløpe seg til ca. kr. 12,- pr. kvm. BRA/mnd. Det understrekes at dette er stipulerte kostnader, idet det endelige omfanget vil bero på de ytelser som leveres og på kostnadsnivået ved overlevering av bolig.
Driftsbudsjett og fellesutgifter vedtas av styret og fremlegges til orientering på sameiets generalforsamling.
Kommunale avgifter faktureres hver boligseksjon direkte, Ved kjøp av p-plass vil det komme et tillegg på ca. kr 200,per måned, for drift av felles garasjeanlegg.
I tillegg til de ovennevnte kostnader påløper andre faste, løpende utgifter for den enkelte bolig, som bl.a. innboforsikring og strømutgifter.
Selger betaler felleskostnader for usolgte leiligheter ved ferdigstillelse.
KREDITTVURDERING / DOKUMENTASJON AV FINANSIERINGSEVNE
Selger forbeholder seg retten til å foreta kredittvurdering av kjøpere samt til å kreve fremleggelse av finansieringsbevis (lånebevis) før kjøpetilbud aksepteres. Det tas videre
forbehold om rett til å foreta kontroll av evt. betalingsanmerkninger. Kjøpere som ikke er kredittverdig på kjøpstidspunktet kan bli avvist. Kjøper aksepterer ved inngivelse av bud at selger kan videreformidle nødvendige personopplysninger om kjøper til tredjepart som har behov for slike opplysninger i forbindelse med prosjektet, f.eks. forretningsfører.
AVTALEMESSIGE FORHOLD
Selger står fritt til å akseptere eller avslå ethvert kjøpetilbud, herunder bestemme om de vil akseptere salg til selskaper, samt om de vil akseptere salg av flere seksjoner til samme kjøper. Ingen kan kjøpe eller på annen måte erverve en boligseksjon hvis ervervet fører til at man blir eier av flere enn to boligseksjoner i eierseksjonssameiet, jf. eierseksjonsloven §23.
Utkast til vedtekter for sameiet er utarbeidet av selger og er vedlegg til kjøpekontrakt. Det forutsettes at dokumentene aksepteres som grunnlag for handelen. Eventuelle ønskede endringer kan skje henhold til vedtektene på senere generalforsamlinger.
Selger vil benytte egen standard kjøpekontrakt for alle salg i prosjektet. Det forutsettes at kjøpetilbud er lagt inn på grunnlag av denne kjøpekontrakten og en eventuell aksept fra selger gis under samme forutsetning. Standard kjøpekontrakt utgjør en del av dette prospektet.
GARANTIER/SIKKERHET
Det stilles garantier henhold til bustadoppføringslovas bestemmelser. Garanti etter §12 vil bli stilt når utbygger frafaller sine forbehold. Garantien skal være pålydende 3 % av kjøpesummen i byggetiden og 5 % 5 år etter overlevering av boligene til kjøper. Garanti etter §47 forutsettes stilt om selger ønsker utbetalt forskudd/delinnbetaling/sluttoppgjør før hjemmelsovergang.
Eventuelle påkrevde endringer av garantier ved eventuelle
videresalg/transporter utføres ikke og bekostes ikke av selger.
I tillegg vil det bli stilt en garanti §47 for gjenstående arbeider på sameiets fellesarealer/uteområder ved ferdigstillelse av første bolig. Garantien gjelder selgers forpliktelse til å ferdigstille fellesarealene i sameiet. Garantien kan trappes ned etter hvert som selger del overleverer og vil falle helt bort ved ferdigstillelse.
UTLEIE/RÅDERETT
Boligen kan leies ut iht. bestemmelsene i eierseksjonsloven og ev. vedtektene, dvs. utleie med varighet på over 30 sammenhengende dager. Kortidsutleie av hele boligseksjonen i mer enn 90 døgn er ikke tillatt. Med korttidsutleie menes utleie i inntil 30 døgn.
Grensen på 90 døgn kan fravikes i vedtektene og kan så fall settes til mellom 60 og 120 døgn. Slik beslutning krever et flertall på minst to tredjedeler av de avgitte stemmene på årsmøtet. Boligen har ingen egen utleieenhet.
FORBEHOLD
Selger tar følgende forbehold for gjennomføring av kontrakten:
• Nødvendig offentlig godkjenning, herunder reguleringsvedtak, ramme- og igangsettingstillatelse ol
• Tilfredsstillende forhåndssalg
• Tilfredsstillende finansiering
• Selskapets styre hos Selger beslutter byggestart
Så snart ovennevnte forbehold er avklart, vil Kjøper motta skriftlig melding, om hvorvidt byggingsarbeidene, vil bli igangsatt. Ved igangsetting av byggearbeidene vil melding til Kjøper også inneholde opplysninger om planlagt tidspunkt/periode for overtagelse.
Dersom forbeholdene ikke er avklart innen dato 15.10.2025,
har Kjøper og Selger, rett til skriftlig å annullere kontrakten. Kjøper skal så tilfelle få tilbakebetalt delinnbetaling inklusive renter med rentesats som for ordinære bankinnskudd opptjent på klientkonto. Renter blir ikke utbetalt dersom beløpet er mindre enn ½ rettsgebyr. Utover dette har Selger intet ansvar overfor Kjøper.
Ved enighet mellom partene, kan fristene (herunder ferdigstillelsesfristen) forlenges. Kontraktens betingelser for øvrig vil et slikt tilfelle være de samme.
ANDRE FORBEHOLD
Alle illustrasjoner, skisser, møblerte plantegninger m.m. er kun ment å danne et inntrykk av den ferdige bebyggelsen, og kan således ikke anses som endelig leveranse. Inntegnet utstyr/inventar medfølger ikke, så som f.eks. hvitevarer og møbler utover det som er beskrevet leveransebeskrivelsen, og det vil derfor fremkomme elementer i presentasjonsmaterialet som ikke inngår i leveransen.
Generelle beskrivelser av prosjektet i salgs- og markedsføringsmateriell vil ikke passe for alle boligene i prosjektet. Kjøper oppfordres særskilt til å vurdere solforhold, utsikt og beliggenhet forhold til omkringliggende terreng og eksisterende og fremtidig bygningsmasse før bud inngis.
Alle opplysninger er gitt med forbehold om rett til endringer som er hensiktsmessige og/eller nødvendige, likevel slik at den generelle standard og utførelse ikke forringes eller endres vesentlig.
Kjøper aksepterer uten prisjustering at selger har rett til å foreta slike endringer. Eksempel på slike endringer kan være innkassinger av teknisk anlegg, mindre endringer av boligens areal og lignende.
Det kan være avvik mellom de plantegninger og skisser som er presentert prospektet, og den endelige leveransen. Slike avvik utgjør ingen mangel ved selgers leveranse som
gir kjøper rett til prisavslag eller erstatning. Ved vesentlige endringer har kjøper rett til å heve avtalen, og kreve kjøpesummen tilbakeført. Kjøper kan ikke kreve erstatning ut over dette.
Dersom det er avvik mellom tegninger i prospekt/internettside og leveransebeskrivelsen i den endelige kontrakt med kjøper, vil leveransebeskrivelsen ha forrang og omfanget av leveransen er begrenset til denne.
Selger står fritt til å bestemme bolignummer samt endre antall eierseksjoner i sameiet. Selger forbeholder seg retten til uten varsel å kunne endre priser og betingelser for usolgte boliger og biloppstillingsplasser. Prislisten er ikke å anse som et bindende tilbud.
Det utearealet som hører til de respektive byggetrinn vil bli ferdigstilt i den grad det er mulig. Gjennomføring av et stort byggeprosjekt i flere trinn vil, blant annet på grunn av løpende byggevirksomhet, kunne medføre enkelte ulemper for beboerne inntil ferdigstillelse av samtlige byggetrinn. Det tas forbehold om trykkfeil i prospektet i sin helhet.
OVERTAKELSE
Selger tar sikte på å ferdigstille boligen i tidsrommet 3. kvartal 2027. Denne tidsangivelsen er basert på estimert byggetid pr salgstrinn, og er derfor foreløpig og ikke bindende og utløser ikke dagmulkt.
Ved senere byggestart endres overtagelse tilsvarende. Med byggestart menes fra det tidspunkt støp av plate til det aktuelle hus faktisk igangsettes. Gravearbeider i grunnen er ikke å anse som byggearbeid.
Senest to måneder før ferdigstillelse vil Selger skriftlig varsle Kjøper om tidspunkt for forhåndsbefaring og overtakelse.
Befaringen ledes av en representant for selger. Du bør delta befaringen for å kunne komme med bemerkninger til overtakelsen samt kontrollere dine tilvalg. Innkalling til overtakelse sendes deg i god tid.
Ved overtakelse leveres boligen i byggvasket stand. Synlige skader/mangler, som skader på vindusruter, porselen, dører eller overflatebehandlinger, må påpekes ved overtakelse. I nye bygg vil det normalt kunne oppstå svinnriss, sprekker i tapet, maling mv. ved skjøter og sammenføyninger, dels pga. uttørking av materialer. Det påpekes spesielt at sprekker i materialoverganger og mellom tak og vegg og i hjørner ikke kan forlanges utbedret, så lenge disse ikke innebærer avvik fra god håndverksmessig standard.
Ved overtakelse legges til grunn NS 3420-1:2019 Tabell 1, Normalkrav for overflater i og på bruksklare bygninger. (R= retning, P=planhet). Utvendige overflater etter klasse RD/PD. Innvendige overflater etter klasse RC/PC. Ferdig innvendig gulv etter klasse RB/PB.
Boligen kan benyttes som visningsbolig inntil overtakelse, forutsatt at dette ikke forringer boligens kvalitet. Ved overtakelse av boligen må det påregnes at det gjenstår mindre arbeider på fellesarealer.
Selger overskjøter boligen til kjøper ved overtakelse, og aksepterer ikke blanco skjøte e.l.
ENDREDE LØSNINGER
Leveransebeskrivelsen er utarbeidet for å orientere om prosjektets generelle bestanddeler og funksjoner, og er således ikke en komplett beskrivelse av leveransen. Sjakter, VVSføringer og annet teknisk anlegg er ikke endelig inntegnet og nedkassinger/ foringer i himling vil kunne forekomme ut over det som er vist på tegninger. Prosjektet er ikke ferdig detaljprosjektert, og endringer vil kunne forekomme. Det
nevnes særskilt at utforming av utomhusarealer ikke er endelig fastlagt, og støttemurer, belysning, kummer, trafoer og lignende blir plassert der dette finnes hensiktsmessig forhold til terrenget.
Selger forbeholder seg rett til å foreta endringer knyttet til en eventuell deling, sammenslåing eller bruksendring av usolgte boliger. Selger har rett til å foreta mindre endringer i konstruksjon og materialvalg som ikke reduserer boligens kvalitet eller verdi, uten at dette gir rett til endring av vederlaget. Selger forbeholder seg rett til å foreta nødvendige endringer som følge av offentlige pålegg eller tilpasninger i forhold til tekniske løsninger.
Alle presentasjoner, planer, skisser og bilder salgsmaterialet er av illustrativ og generell karakter og kan derfor vise bygningsvolumer og inneholde innredning og detaljer mv. som ikke inngår i leveransen eller passer for alle boliger.
SEKSJONERING
Seksjonering kan ta tid som følge av lang saksbehandlingstid hos kommunen og/eller Statens kartverk. Dersom skjøtet ikke foreligger ved overtakelse kan selger utstede garanti iht. Buofl. § 47 for hele kjøpesummen slik at oppgjør kan finne sted, og selger beholder hjemmel inntil seksjonering er gjennomført.
HC-PLASSER
Parkeringsplasser som i vedtak etter plan- og bygningsloven er krevet opparbeidet til bruk av personer med nedsatt funksjonsevne, skal gjøres tilgjengelige for disse. Kjøpere av slike p-plasser kan av styret pålegges å bytte parkeringsplass, jf. Eierseksjonsloven § 26.
FORSIKRING
Selger holder eiendommen forsikret byggeperioden. Etter overtakelse vil eiendommen være forsikret gjennom sameiets forsikring.
Dersom det skulle inntreffe brann eller annen skade under byggetiden som dekkes av forsikringen, skal avtalen likevel opprettholdes fullt ut idet erstatningen tilfaller selger, som på sin side plikter å foreta gjenoppbygging etter opprinnelige tegninger innen rimelig tid. Selger vil ved tilfelle som nevnt her ikke ha noe ansvar for kjøpers forsinkede innflytting jf. Buofl. § 17.
Kjøper må selv tegne innbo- og løsøreforsikring.
OFFENTLIGE FORHOLD Vei, vann og avløp er offentlig.
Midlertidig brukstillatelse eller ferdigattest skal foreligge innen overtagelse. Det er selgers plikt å fremskaffe ferdigattest på eiendommen. Kjøper gjøres oppmerksom på at ferdigattest kan bli å foreligge en tid etter overtagelse (avhengig av f.eks. årstid og ferdigstillelse av utomhusareal)
HEFTELSER
Boligsameiet har pant hver seksjon, jf. eierseksjonsloven § 25. Dessuten har kommunen lovbestemt pant for eiendomsskatt og enkelte særlige eiendomsavgifter og gebyrer, jf. Panteloven § 6-1. For øvrig vil boligen bli overdratt fri for pengeheftelser (andre enn de kjøper lar tinglyse).
Seksjonene overdras med de rettigheter og forpliktelser (servitutter) som fremgår av grunnbokutskriften. Seksjonene vil være fri for økonomiske heftelser med unntak av lovpålagt panterett til sameiet som sikkerhet for oppfyllelse av den enkelte sameiers fellesforpliktelser. I tillegg kan selger tinglyse bestemmelser vedrørende sameie- eller naboforhold eller forhold pålagt av myndighetene. Det er tinglyst servitutter på eiendommen, og kopi av disse kan fås av prosjektselger. Følgende servitutter er tinglyst pr dag:
Grunnboksrapport
52-22-9004 Møllestrøket - Garderveien 15 - VestbyUbekreftet grunnboksrapport inkl eiendommens rettigheter
Tinglyste rettsstiftelser i fast eiendom
Datakilde: Oppdatert kopi av grunnboken
Kommune: 3216 VESTBY Data uthentet: 16.05.2024 kl. 13:55
Grunneiendom: Gnr: 11 Bnr: 83 Oppdatert per: 16.05.2024 kl. 13:55
Grunnboksinformasjon
HJEMMELSOPPLYSNINGER

Rettighetshavere til eiendomsrett
2015/1196601-1/200 HJEMMEL TIL EIENDOMSRETT
21.12.2015
KJØPER:COOP ØST SA Vederlag: NOK 0
Org.nr: 948432617
Gjelder denne registerenheten med flere
HEFTELSER
Dokumenter fra den manuelle grunnboken som antas kun ha historisk betydning, eller som vedrører en matrikkelenhets grenser og areal, er ikke overført til denne matrikkelenheten sin grunnboksutskrift.
Servitutter tinglyst på hovedbruket/avgivereiendommen før fradelingsdatoen, eller før eventuelle arealoverføringer, er heller ikke overført. Disse finner du på grunnboksutskriften til hovedbruket/avgivereiendommen. For festenummer gjelder dette servitutter eldre enn festekontrakten.
Ingen heftelser registrert.
GRUNNDATA
1995/1297-1/5 REGISTRERING AV GRUNN
28.02.1995 DENNE MATRIKKELENHET OPPRETTET FRA:Knr:3216 Gnr:11 Bnr:82
1996/484-1/5 MÅLEBREV
22.01.1996
2009/203359-1/200 GRENSEJUSTERING
20.03.2009 Regulering av areal i forbindelse med veggrunn/jernbanegrunn 211- gnr 161 bnr 19
2020/326860-1/200 OMNUMMERERING VED KOMMUNEENDRING
01.01.2020 00:00
2024/894412-1/200 OMNUMMERERING VED KOMMUNEENDRING
01.01.2024 00:00
RETTIGHETER PÅ ANDRE EIENDOMMER
Rettigheter på 3216-11/82
Rettigheter i eiendomsrett
1996/6623-1/5 ERKLÆRING/AVTALE
23.08.1996 RETTIGHETSHAVER:Knr:3216 Gnr:11 Bnr:83 Bestemmelse om vann/kloakkledning
https://external.webmegler.no/ ern=277&terminalid=3000247&sesjonsid=grxbsheauo&id_oppdrag=3002066&username=&id_bestiltav=0[15.10.2025 12:29:25]
LIKNINGSVERDI
Ligningsverdi er p.t. ikke fastsatt. Ligningsverdien fastsettes av Ligningskontoret etter beregningsmodell som tar hensyn til om boligen er en såkalt” primærbolig” (der boligeieren er folkeregistrert bosatt) eller” sekundærbolig” (alle boliger man eier, men ikke bor fast i). Interessenter oppfordres til å sjekke www.skatteetaten.no.
VELFORENING, SAMEIE
Det kan bli etablert velforening for alle sameier på reguleringsplanen, de vil da være pliktig medlemskap i områdets velforening. Årlig avgift til velforening er ikke fastsatt. Dette til drift av fellesarealer, lekeplass m.m.
Det er utarbeidet et foreløpig utkast til vedtekter for sameiet. Utkastet er kun av veiledende karakter og vil kunne bli endret i forbindelse med organiseringen av eiendommen eller sameiet, på grunn av sammenføyning/fradeling, seksjonering eller andre forhold.
For at sameiet skal være drift ved overtakelsen vil selger engasjere forretningsfører for sameiet samt inngå andre avtaler knyttet til driften av sameiet, for sameiets regning.
1-ÅRSBEFARING
Cirka 1 år etter overtakelsen vil selger innkalle til en kontrollbefaring av boligen. Det skal føres protokoll fra denne, som skal undertegnes av begge parter. Dersom det ikke er til klar ulempe for kjøper, kan selger kreve at utbedring av mangler som er reklamert etter overtakelsen skjer samlet etter kontrollbefaringen.
OPPGJØRSMEGLERS SIKKERHETSSTILLELSE
Alle eiendomsmeglerforetak har lovpålagt forsikring av klientmidler, begrenset oppad til kr 45 millioner. Enkeltsaker er forsikret med inntil kr 15 millioner.
I henhold til Lov av 6.mars 2009 nr. 11 om tiltak mot hvitvasking og terrorfinansiering mv., er Weboppgjør AS pliktig til å gjennomføre legitimasjonskontroll av involverte parter. Dersom partene ikke oppfyller krav til legitimasjon eller Webppgjør AS har mistanke om at transaksjonen har tilknytning til utbytte av en straffbar handling, kan de stanse gjennomføringen av transaksjonen.
Kjøper skal ved kontraktsinngåelse signere på opplysningsskjema vedr finansiering av kjøpesummen og sende kvitteringer til oppgjørsmegler ved betaling av egenkapital. I tilfelle transaksjonen stanses som følge av slike regler, kan selger ikke holdes ansvarlig.
AVBESTILLING
Kjøper kan iht. bustadoppføringsloven (Buofl.) kapittel VI avbestille boligen inntil overtakelse har funnet sted. Hvis avbestilling skjer før byggestart er vedtatt i selgers styrende organer, skal avbestillingsgebyret utgjøre 5 % av vederlaget inkl. mva. Ved senere avbestilling gjelder bestemmelsen Buofl. § 53, slik at selger i et slikt tilfelle skal ha dekket hele sitt økonomiske tap. Bestilte endrings- og tilleggsarbeider betales sin helhet.
TRANSPORT AV KONTRAKT
Transport av kjøpekontrakten skjer kun dersom selger gir sitt samtykke. Ved slik transport kan selgers salgsmateriell ikke benyttes i markedsføringen. Ved transport anbefales det at det benyttes samme oppgjørsmegler som selger benytter, for å sikre rett oppgjør. Samtykke vil uansett ikke bli gitt senere enn 45 dager fra overtakelsestidspunkt. selger kan også stille andre vilkår for overdragelsen, f.eks. solidaransvar. Ved transport påløper et administrasjonsgebyr på kr 25.000, - Ny kjøper vil være bundet av eventuelle bestillinger av tilvalg. Transport av garantier kan kun skje etter samtykke fra garantisten, og eventuelle endringer av garantier som følge av transporten bekostes ikke av selger.
KJØPERS
MISLIGHOLD
Dersom kjøpesum, omkostningene eller øvrige krav ikke blir betalt helt eller delvis ved forfall, påløper forsinkelsesrente av det til enhver tid utestående beløp fra forfall til betaling finner sted.
Har betaling av kjøpesummen ikke funnet sted innen 30 dager etter forfall, regnes dette som vesentlig mislighold som gir selger rett til å heve kontrakten en uke etter skriftlig varsel. Selger kan ta dekning for sitt tilgodehavende (herunder renter og omkostninger) i de innbetalinger som kjøper har foretatt. Selger har deretter rett til å selge boligen på nytt. Kjøper vil et slikt tilfelle bli belastet for salgskostnader, en eventuell differanse ved en lavere salgssum samt eventuelt annet tap som selger måtte være påført.
Dersom kjøper har overtatt og/eller flyttet inn i boligen før fullt oppgjør har funnet sted, og ikke betaler fullt oppgjør, godtar kjøper utkastelse fra boligen uten søksmål og dom, jf. tvangsfullbyrdelsesloven § 13-2, 3. ledd (e). Dette gjelder selv om det er stilt garanti for kjøpesum.
KJØPEKONTRAKT/LOVGRUNNLAG
Salg av bolig under oppføring til forbrukere reguleres av Bustadoppføringslova. Det er en forutsetning for kontrakten at selgers kjøpekontrakt benyttes og det kan ikke gjøres endringer i denne.
FØLGENDE DOKUMENTER UTGJØR EN DEL AV KJØPSAVTALE MELLOM KJØPER OG SELGER:
• Leveransebeskrivelse datert 10.05.2024
• Plantegning datert 12.04.2024
• Etasjeplaner datert 16.04.2024
• Foreløpig utomhusplan datert 14.05.2024
• Digitalt innlevert kjøpsavtale/budskjema
• Selgers standard kjøpekontrakt
• Grunnbokutskrift datert 16.05.2024
• Detaljreguleringsplan datert 01.07.2021, med bestemmelser sist revidert 04.01.24.
• Utkast budsjett fellesutgifter
• Utkast vedtekter
Dato 15.10.2025

Illustrasjon. Avvik vil forekomme.

Illustrasjon. Avvik vil forekomme.


Pulsen på Vestby
Nabolaget spesielt anbefalt for
Nabolaget Vestby sentrum - vurdert av 52 lokalkjente
Nabolaget Vestby sentrum - vurdert av 52 lokalkjente
Familier med barn
Etablerere
Opplevd trygghet
Veldig trygt 88/100
Nabolaget spesielt anbefalt for
Nabolaget spesielt anbefalt for
Husdyreiere
Kvalitet på skolene
Opplevd trygghet
Opplevd trygghet
Veldig bra 78/100
Familier med barn
Familier med barn
Les mer om nabolaget
Etablerere
Offentlig transport
Husdyreiere
Vestbytorget 2 min
Linje 531, 532, 533, 540
Offentlig transport
Offentlig transport
Vestby stasjon
Buss, tog
Vestbytorget 2 min
Vestbytorget 2 min
Linje 531, 532, 533, 540 0.2 km
Vestby stasjon
Linje RE20, R21
Vestby stasjon 8 min Buss, tog 0.6 km
Linje 531, 532, 533, 540 0.2 km 8 min 0.6 km
Oslo Gardermoen 1 t 1 min
Vestby stasjon 9 min
Vestby stasjon 9 min
Sandefjord lufthavn Torp
Skoler
Linje RE20, R21 0.7 km
Linje RE20, R21 0.7 km
Oslo Gardermoen 1 t 1 min
Oslo Gardermoen 1 t 1 min
Sandefjord lufthavn Torp 1 t 38 min
Sandefjord lufthavn Torp 1 t 38 min
Vestby skole (1-7 kl.)
552 elever, 30 klasser
Skoler
Vestby ungdomssskole (8-10 kl.) 15 min 400 elever, 17 klasser 1.3 km
Vestby skole (1-7 kl.) 15 min
Vestby skole (1-7 kl.) 15 min 552 elever, 30 klasser 1.3 km
552 elever, 30 klasser 1.3 km 15 min
Vestby ungdomssskole (8-10 kl.) 15 min 400 elever, 17 klasser 1.3 km
Vestby videregående skole 15 min 720 elever, 55 klasser 1.2 km
720 elever, 55 klasser
Ås videregående skole 14
Ladepunkt for el-bil
Ås videregående skole 14 min 1100 elever, 62 klasser 11.6 km
Coop Extra, Vestby
Ladepunkt for el-bil
Ladepunkt for el-bil
Coop Extra, Vestby
Coop Extra, Vestby 1 min
Recharge YX 7-Eleven Vestby 8 min
Recharge YX 7-Eleven Vestby 8 min
Veldig trygt 88/100
Veldig trygt 88/100
Naboskapet
Kvalitet på skolene
Kvalitet på skolene
Veldig bra 78/100
Veldig bra 78/100
Godt vennskap 70/100
Naboskapet
Aldersfordeling
Godt vennskap 70/100
Aldersfordeling
Aldersfordeling

Område
Barnehager
Vestby naturbhg - Sundbytoppen (0-5 år) 9 min 40 barn 0.7 km
Barnehager
Støttumveien barnehage (0-5 år) 10 min 44 barn 0.8 km
Vestby naturbhg - Sundbytoppen (0-5 år) 9 min
barn
Østbydammen barnehage (1-5 år) 10 min 65 barn 0.9 km
Støttumveien barnehage (0-5 år) 10 min
barn 0.8 km
Østbydammen barnehage (1-5 år) 10 min
Dagligvare
Coop Extra Vestby 1 min
Post butikk 0.1 km
Dagligvare
Dagligvare
Rema 1000 Vestby 3 min
PostNord 0.3 km
Coop Extra Vestby 1 min Post i butikk 0.1 km
Innholdet på Nabolagsprofilen er innhentet fra ulike offentlige og private kilder og det kan forekomme feil eller mangler dataene. Distanser/tid er beregnet basert på korteste kjørbare vei eller gangvei (der kjente gangveier er med datagrunnlaget). Vurderingene og sitatene fra lokalkjente er innhentet på nettstedet Nabolag.no og er aggregerte data basert på svar innenfor et gitt nabolag. Finn.no AS eller Bakke Prosjekt AS kan ikke holdes ansvarlig for feil eller mangler i dataene. Kilder: Statens Kartverk, Statistisk Sentralbyrå, Geodata AS, Nabolag.no m.fl. Copyright © Finn.no AS 2023
Rema 1000 Vestby 3 min PostNord 0.3 km
Innholdet på Nabolagsprofilen er innhentet fra ulike offentlige og private kilder og det kan forekomme feil eller mangler i dataene. Distanser/tid er beregnet basert på korteste kjørbare vei eller gangvei (der kjente gangveier er med datagrunnlaget). Vurderingene og sitatene fra lokalkjente er innhentet på nettstedet Nabolag.no og er aggregerte data basert på svar innenfor et gitt nabolag. Finn.no AS eller Bakke Prosjekt AS kan ikke holdes ansvarlig for feil eller mangler dataene. Kilder: Statens Kartverk, Statistisk Sentralbyrå, Geodata AS, Nabolag.no m.fl. Copyright © Finn.no AS 2023

ET FLUNKENDE NYTT KULTURKVARTAL
I september 2023 åpnet Vestbys flunkende nye kulturkvartal. Et arkitektonisk bygg troner midt i Vestby sentrum. På kommunens egne nettsider står det «Vestby kulturkvartal er et estetisk og arkitektonisk signalbygg som skal fungere som et inkluderende samlingspunkt i kommunen. Det skal være en møteplass for alle og en levende arena for læring, mestring og opplevelser.» Bygget huser bibliotek, kulturskole og kafe i tillegg til scener og saler til felles glede for kommunens innbyggere og andre besøkende.
ET FLERBRUKSHUS
Vi anbefaler å ta en titt på Vestby kulturkvartals rikholdige program. Her er det mye spennende gjennom hele året og billetter til de ulike arrangementene og aktivitetene kan bestilles på nettsiden www.vetbykulturkvartal.no.
Det avholdes mange kurs på huset for alle aldre, alt fra seniordans, babydans og korsang til teaterklasser. Her fylles scenene med alt fra lokalt kulturliv til de mest kjente og kjære nasjonale og internasjonale artister. Kalenderen oppdateres jevnlig på nettsiden, og billettene har en tendens til å bli raskt utsolgt.
TOR ÅGE BRINGSVÆRDS UNIVERS
I dette toppmoderne bygget er det flere saler og scener og mindre rom som brukes flittig av mange ulike brukergrupper, og som kan leies til både private og offentlige arrangementer. Under byggingen ble det lagt tung vekt på funksjonelle rom med fremragende akustikk, stor fleksibilitet, forskjellige bruksområder og førsteklasses utstyr. Alle rommene og salene har fått navn etter Tor Åge Bringsværds litterære univers, forfatteren var selv med i prosessen med utvelgelsen og navngivningen.
TAMBAR – storsalen, er husets store stolthet.
Med 512 sitteplasser i amfi, eller 750 ståplasser, er TAMBAR den største konsert- og teatersalen i regionen. Her er det ofte konserter, musikaler, danseforestillinger og teateroppsetninger i tillegg til konferanser og banketter. TAMBAR har også et av de beste klanganleggene i hele Nord-Europa.
GOBI- er en mellomstor sal som egner seg svært godt til konserter, forestillinger og konferanser. Salen er fleksibel og har mange bruksområder, og man får en flott akustikk og en luftig følelse med den imponerende takhøyden på hele 7 meter. Salen har en makskapasitet på 150 sittende og 250 stående publikummere.
ONKEL LUDVIK – er meget godt egnet for mindre arrangementer. Amfiscenen er konstruert for å skape en intim atmosfære, perfekt egnet for nære opplevelser som bokpresentasjoner, foredrag og konserter. Amfiet har 30 sitteplasser, og tilbyr en lun setting for små forsamlinger.
I tillegg til de ovennevnte salene, er det flere bruksvennlige rom på huset.
GLASSBERGET dansesal – er et av de mest populære rommene på huset, og brukes til alt fra danseklasser og teaterklasser til korøvelser

og workshops.
Vestibylen i 1. og 2. etasje brukes til alt fra messer til kunstutstillinger. Det er en rekke arbeidsbord og sitteplasser, som hyppig brukes av elever etter skoletid. I helgene fylles vestibylen med publikum som hygger seg før og etter forestillingene i salene. Det er servering i både 1. og 2. etasje under forestillingene.
Møterommene i Vestibylens 2. og 3. etasje ligger det til sammen 6 møterom som kan bookes av alle som ønsker et sted å samles å Vestby sentrum. Møterommene reserveres enkelt på nettsiden til Vestby kulturkvartal.
BIBLIOTEKET
Gamle Vestby bibliotek lå på samme tomten som det nye kulturkvartalet nå har startet sitt pulserende liv. Det nye biblioteket har nå fått en fin plass i det nye bygget. Med topp moderne lokaler over to etasjer er det et godt besøkt tilbud med flere populære arrangementer. Det er ofte hyggelige aktiviteter for de små barna her, for eksempel dukketeater, film, høytlesing ol.
Biblioteket har også små møterom, som er gratis å benytte og som ikke krever reservasjon på forhånd. Det er en rekke arbeidsbord langs vinduene, som er fine å benytte til eksempelvis skolearbeid.
Vestby sjakklubb arrangerer spillekvelder for både voksne, barn og unge. Slektsforskere fra Slekt og Data Follo hjelper deg å kartlegge din families røtter og historie langt tilbake i tid. NAV har også tilbud om individuell økonomisk rådgivning. Dette er gratis og et nyttig tilbud for mange. Advokathjelpen er også tilgjengelig via Vestby bibliotek. Her må tid bestilles på forhånd, men tilbudet er kostnadsfritt, og du får en halvtime juridisk konsultasjon.
En annen spennende ting på Vestby bibliotek er frøbiblioteket. Vestby hagelag og biblioteket har gått sammen om å tale frøenes sak! Frøbiblioteket gir en mulighet til å låne frø kostnadsfritt på bibliotekene i Vestby og Son. Hensikten med dette prosjektet er å gjøre frø tilgjengelige for alle som ønsker å prøve seg på dyrking og sanking. Utvalget av sorter er nøye valgt med tanke på enkelhet, slik at også nybegynnere innen hagearbeid kan
Foto: Rebecca Pierce
Illustrasjon: L2 Arkitekter

lykkes, samtidig som det bidrar til det biologiske mangfoldet i området. De fleste sortene er også spiselige, inkludert blomstene. Når høsten kommer, må du sanke dine egne frø og levere dem tilbake til biblioteket.
I tillegg kan du selvfølgelig låne mange spennende bøker og tidsskrifter som på alle andre biblioteker.
Ved å signere en avtale får du også tilgang til å bruke biblioteket utenom betjent åpningstid. Dette tilbudet er fullstendig selvbetjent, slik at du selv kan håndtere innleveringer, lån og benytte lokalet.
KULTURSKOLEN
Vestby kulturskole er lokalisert i Vestby kulturkvartal. Her foregår det meste av undervisningen, og administrasjonen holder også hus her. På nåværende tidspunkt har skolen omtrent 300 elever og 18 lærere. Formålet med skolen er å tilby opplæring og aktiviteter i estetiske fag for barn og unge i kommunen. Dette tilbudet blir utviklet i samarbeid med skoler, nærmiljøet og friville organisasjoner. Undervisningen finner sted etter skoletid og på kveldstid, både i Vestby kulturkvartal og på skolene rundt om i kommunen. Her får du alt fra faste ukentlige leksjoner til mer langvarige kurs.
De har også tilbud om forskjellige workshops, prosjekter, konserter, utstillinger og forestillinger som en del av aktivitetene. Det er mye fokus på musikk og du kan her lære deg å spille et
instrument. Er du interessert i låtskriving, chello, bratsj, fiolin, sang, kor, slagverk, band, gitar, piano, fløyte, tuba eller noe midt imellom så er kulturskolen stedet. De driver også med scenekunst i form av teater, lek og sirkus. Søm, design, animasjon og visuell kunst er også på skoleplanen. Et meget bredt og spennende tilbud som mange benytter seg av.
VILLA VESTBY KAFE
I vestibylen i 1.etasje i kulturkvartalet finner du Villa Vestby kafe. Et sjarmerende kafekonsept som kombinerer hjemmelaget mat og en avslappet atmosfære. Her har du mulighet til å nyte deilige retter laget med kjærlighet og omtanke. Kokkene setter sin ære i å kun bruke ferske og høykvalitets ingredienser, slik at hvert måltid blir en kulinarisk opplevelse.
Kombinasjonen av lidenskap for god mat, gjestfrihet og fokus på detaljer gjør Villa Vestby til et selvsagt valg hos både lokalbefolkningen og besøkende i Vestby. I helgene har de åpent ut i de små timer med skjenkebevilling på plass, slik at man kan kose seg med et glass vin og sosialt samvær om man ønsker det.
Det finnes også to andre avdelinger av Villa Vestby som ligger på Vestby storsenter. En cafe og et bakeri. Den samme genuine interessen for å lage lekker og smakfull mat gjelder selvfølgelig også her.

Vestby kulturkvartal
er et estetisk og arkitektonisk signalbygg som skal fungere som et inkluderende samlingspunkt i kommunen. Det skal være en møteplass for alle og en levende arena for læring, mestring og opplevelser. Bygget inneholder bibliotek, kulturskole, storsal, fleksisal, kafé, kontorer.



Foto: VYRK
8 GODE GRUNNER TIL Å FLYTTE TIL VESTBY
Er du usikker på hva Vestby har å tilby, og om dette er det rette stedet for deg og din familie? Vi har plukket ut noen av Vestbys gode kvaliteter. Vi mener Vestby har den perfekte miksen av både by og land. En sentral perle som er nærme nok og langt nok fra storbyens mas og tjas.

1. NATURSKJØNNE OMGIVELSER:
Vestby ligger i et vakkert område med nærliggende skog, sjø og naturreservater. Dette gjør det til et flott sted for friluftsentusiaster og de som setter pris på landlig skjønnhet. Den vakre kyststien er et yndet turmål.

3. SKOLER OG BARNEHAGER:
Dersom du har barn, vil du finne et godt utvalg av skoler og barnehager i Vestby, noe som gjør det til et familievennlig sted å bo.

2. KORT AVSTAND TIL OSLO: Vestby er relativt nær Oslo. Dette gjør det enkelt å pendle til jobb eller nyte bylivet når du ønsker det, samtidig som du bor i en mer rolig og avslappende omgivelse. Med bil er du i hovedstaden på en liten halvtime.

4. KULTUR OG FRITIDSAKTIVITETER:
Vestby har et aktivt kulturliv og tilbyr en rekke fritidsaktiviteter, inkludert museer, festivaler og sportsfasiliteter. På Ramme gård er det mye som skjer. Vestby har også en svært god kulturskole.

5. NÆRHET TIL STRENDER:
Vestby har nærhet til flotte strender ved Oslofjorden, noe som gjør det til et flott sted for strand- og båtliv.
Vi har vel alle sett sommeridyllen i TV-serien “Neste sommer” som er spilt inn på Hvitsten i Vestby.

7. NÆRINGSLIV OG ARBEIDSMULIGHETER:
Vestby har en rekke bedrifter og næringsparker, noe som gir potensielle arbeidsmuligheter i regionen. Oslo Fashion Outlet ligger her, og bidrar til mange arbeidsplasser, og fører til godt besøk i Vestby.

6. VOKSENDE SAMFUNN:
Vestby er en kommune i vekst, noe som betyr at det er et stadig økende tilbud av tjenester, butikker og andre fasiliteter som gjør det mer og mer attraktivt å bo her.

8. GOD INFRASTRUKTUR:
Vestby har gode veiforbindelser og kollektivtransport, inkludert togstasjonen som gir raske forbindelser til Oslo og andre omkringliggende byer. Toget tar 24 minutter fra Vestby stasjon til Oslo sentralbanestasjon.
ET TETTSTED I VEKST
De siste årene har Vestby gått fra å være et lite tettsted til å bli et innholdsrikt sentrum. Her har de lokale alt de trenger i gåavstand, og med den nye Follobanen er veien kort både til Ås, Ski og Oslo om man ønsker det. Til tross for at Vestby har fått fler folk og mer innhold er det fortsatt et landlig og rolig sted å bo – et perfekt sted å vokse opp.
GODT TILBUD TIL DE HÅPEFULLE
Vestby har massevis av gode tilbud til barn og ungdom. Håndballen står sterkt her i alle aldersklasser. Vestby håndballklubb har lange røtter og har fostret frem spillere til øverste nivå. HSV fotballklubb står for Hølen, Son og Vestby og er en fotballklubb for hele kommunen. Klubbens visjon er respekt, åpenhet og likeverd, og etterstreber å ha et tilbud til alle nivåer. Dersom man ikke er en typisk lagspiller representerer Vestby IL en rekke andre idretter som allidrett, basket, boksing, turn, friidrett, karate og skateboard. Speidergrupper har de også i Vestby. Samt en frivillighetssentral som drar i gang mye interessant.
Teten ungdomshus har også et fint tilbud til de unge. Her kan du spille bordtennis, biljard, fotballspill, airhockey og andre gamingmuligheter som Playstation, Nintendo switch og brettspill. På Teten holder de også på å etablere et «gaming/e-sport»-rom, og de har et moderne studio der man kan spille instrumenter, synge og spille inn egenprodusert musikk.
Vestby kulturskole holder til i Kulturkvartalet, og
er et veldig populært tilbud. Her er det fokus på kunst og kultur. Du kan lære å spille diverse instrumenter, være med på teater eller utforske mer design, visuell kunst og også skrivekunst.
I tillegg til kulturskolen er det også andre spennende ting som skjer for barn og unge i Kulturkvartalet med jevne mellomrom.
Biblioteket arrangerte for eksempel et Dungeon & Dragons event, der man kunne lage sin egen karakter og bedrive diverse rollespill.
SKOLER OG BARNEHAGER
Selv om Vestby anses som et mindre tettsted trenger man ikke reise ut for å fullføre grunnutdanningen. Her er Bjørlien barneskole, Vestby barneskole, Vestby ungdomsskole og Vestby videregående skole. Kommunen har også flere skoler i Hølen, Breivik og Son.
Den videregående skolen i Vestby har mange studieretninger som blant annet bygg og anleggsfag, restaurant og matfag, salg, service og reiseliv, samt studiespesialisering.
Det er også god barnehagedekning i Vestby.

Man kan velge mellom hele 21 barnehager, hvorav 8 er kommunale og 13 er private. Det er naturbarnehager, familiebarnehager og idrettsbarnehage. Felles for alle er at de har et godt samarbeid med skolene om overgangen fra barnehage.
En ny flott helsestasjon har også nettopp flyttet inn i 5. etg. Vestby kulturkvartal. Med et godt tilbud til barn og unge er Vestby en fin plass å vokse opp.
Skog, hav og kultur i umiddelbar nærhet Vestby kommune har en lang kystlinje mot østsiden av Oslofjorden. Mange flotte badesteder og strender ligger her. Hvitsten, der «Neste sommer» spilles inn ligger her, Emmerstadbukta og Son med sin flotte gjesteog småbåthavn. Her ligger jo også Son Spa, som er et godt besøkt reisemål. Kyststien i Follo går langs hele kystlinjen, og er populært også for tilreisende.
I tillegg er det flotte skogsområder med lysløype og fine oppkjørte skiløyper om vinteren. Mange sykkelglade bruker også skogen flittig.
En annen severdighet som setter Vestby på kartet er Ramme gaard, en økokulturell bondegård som ligger gjemt i midt mellom skogen og fjorden. Dette er en skjult kulturperle ulikt alt annet du har sett tidligere. Eiendommen har vært i Edvard Muchs eie frem til hans død i 1944, og han malte flere av sine verk her. På stedet finner du Havlystparken, Ramme billedgalleri, Edvard Munchs villa, Ramme fjordhotell, og økologiske serveringssteder som Ramme kro og restaurant, kafé og gårdsbutikk.
SHOPPING OG CHAMPAGNE
Vestby storsenter har nå skiftet navn til Alti. Men de har beholdt den innholdsrike listen av butikker. Det er et stort senter med alt man trenger av butikker som Normal, Vinmonopolet, frisører, garnbutikk, klesbutikker, optiker, interiørbutikk, skobutikk, dyrebutikk, gullsmed, sportsbutikk, blomsterbutikk, bakeri, matbutikker og diverse spisesteder. Her finner man alt man trenger. Før pleide man å reise til Vinterbro eller Ski for å shoppe, men det er det ikke behov for lenger.
Foto: Lemon

Det har også kommet en del hyggelige butikker utenom senteret. På Kulturkvartalet finnes det både kafe, blomsterbutikk, frisør og andre fine steder som pirrer til shopping. Vestbys gater har fått et mye mer pulserende liv i takt med veksten i kommunen. Coffee Shop er et veldig velkomment tilskudd i folks liv. Det drives av ekte ildsjeler som drar i gang quiz, pubkvelder, konserter, afternoon tea, strikkekafe, salsakurs og annet spennende. Det er jo godt for de lokale at man ikke trenger å dra inn til Oslo eller Ski for å hygge seg litt en kveld.
Vi må for all del ikke glemme Oslo Fashion Outlet. Hit valfarter folk langveis fra for å skaffe seg merkevarer til mer fornuftige priser. Populære merker som Boss, J. Lindeberg, Line of Oslo, Holzweiler, Gant, Lexington, Honkemoller, Tiger of Sweden, Samsoe Samsoe, Reima og Peak Performance er noe av det du finner her. Det går shuttlebuss ut dit direkte fra Oslo, så her er det fullt trøkk. Det er også en rekke spisesteder her, så det er bare å sette av dagen til heftig shopping.
INFRASTRUKTUR OG NÆRINGSLIV
Med den nye Follobanen har Vestby kommet nærmere Oslo. Nå er man i hovedstaden på 25 minutter. Det tar 5 minutter til Ås, og 10 minutter til Ski. Folk som bor i Vestby kjenner ikke ofte på suget etter å reise inn til Oslo, da de har det de trenger på sitt eget fine tettsted. Det er likevel praktisk for de som jobber i Oslo at man får mye kortere reisetid. Det går også busser til Son, Moss og flere andre knutepunkter i nærheten. E6 går også gjennom kommunen, så det er lett å komme seg rundt med bil også.
Dagens Næringsliv trakk frem Vestby og Ås som smarte steder å investere i bolig. Det skyldes mye Follobanen og dens bidrag til tilgjengelighet. Det er en del ny boligutvikling i Vestby, og Møllestrøket er et av prosjektene som mange ytrer interesse for. At flere mennesker ønsker å bosette seg i Vestby gjør også at næringslivet blomstrer. Det er mange som både bor og arbeider innenfor kommunens grenser.


Til tross for at Vestby har fått fler folk og mer innhold er det fortsatt et landlig og rolig sted å bo – et perfekt sted å vokse opp. Her har de lokale alt de trenger i gåavstand, og med den nye Follobanen er veien kort både til Ås, Ski og Oslo om man ønsker det.


Foto: Lemon


Tanker og visjoner

Arkitektens visjon
Møllestrøket er et prosjekt med fokus på bokvalitet, med god utforming og sammenheng mellom både arkitektur og landskap. Prosjektet ligger på en spennende plassering, der man har sentrumsutviklingen i Vestby i øst, med fortetting flere urbane kvaliteter, og jordbruksområder i vest, med utsyn over kulturlandskapet. Nærheten til viktig infrastruktur, med tilrettelegging for kollektive -og grønne transportformer, samt funksjonsblanding som gir rom for næringsutvikling, gode bomiljøer og attraktive fellesfunksjoner og møteplasser, vil gjøre Møllestrøket et vellykket bærekraftprosjekt.
Prosjektutformingen er inspirert av de kontrastene mellom landskapet og sentrum, med et tydelig grønt preg som favner det urbane og det grønne inn i de offentlige og felles arealene.
Det grønne landskapet er trukket inn i gårdsrommene og torget, med kultiverte arealer, vegetasjon og muligheter for dyrking og ulike møteplasser.
Fasadeutforming er preget av variasjon i høyder, dybder, og materialbruk.
Fargepalletten har inspirasjon i de naturlige toner i omgivelsene, der det kultiverte landskapets fargepallett danner grunnlaget for valg av materialer.
Det er valgt bestandige materialer som tegl, puss, metall, og tre. Arkitekturen i gårdsrommet gjenspeiler konseptet med preg av jordtoner og tegl.
Dagens Mølleveien vil bli oppgradert til en blågrønn nabolagsgate «Møllestrøket» med små næringslokaler, dagligvarebutikk og etter hvert to offentlige torg tilgjengelig for alle i Vestby. Gaten blir en samlende forbindelse som knytter sammen hele området og gjør «Møllestrøket» til nabolagets samlingsplass.
Første byggetrinn består av 151 boenheter i ulike størrelser og typologi, som er fordelt i 3 blokker. Boligbebyggelsen ligger hevet over gatenivå, omkranser en felles grønn bakgård og har sammenhengende fasader som skjermer bakenforliggende gårdsrom og bebyggelse. Mange av leilighetene har sørvestvendte balkonger med kveldssol. Romslige vindusoverflater gir gode lysforhold til boligene og utsyn.
Hver blokk tilbyr en bra miks av funksjonelle og arealeffektive 2-roms, gjennomgående eller tosidige
3-roms med fleksible planløsninger og romslige 4-roms, hvor av noen i toppetasjer med store private utearealer.
Bokvalitet er sikret gjennom smarte planløsninger med fokus på brukbarhet.
Boligene mot Osloveien er i stor grad gjennomgående med galleriganger. Da får boligene private utearealer med utsikt og sol mot vest og stille side med mulighet for oppholdssoner i gallerigang (utvidet svalgang) mot gårdsrom. Her gis det rom for nisjer og benker for opphold utenfor egen dør, beplantningssoner, som beboere kan ta eierskap til.
Boligene langs Garderveien og blokken i nordvest har balkonger på stille side inn mot gårdsrom. I første boligplan finnes det et fellesrom med direkte adkomst til gårdsrommet.
Alle blokker har tilgang til felles uteareal på lokk og takterrasser, noe som skaper flere møteplasser og rom for fellesskap.
Takhagene vil ha gode solforhold og utsikt, og er utformet for variert bruk, med kombinasjon av grønne bed med busker og stauder, plantekasser, og oppholdsplasser, med pergola, benker, sitteplasser og langbord. I tillegg etableres det private parsellhager på tak.
Gårdsrommet har preg av parkdrag med småkupert terreng og naturlik vegetasjon. Uterommene er et naturlikt frodig grønt drag med mangfold av levende liv der soner for lek og opphold inviterer til møter mellom beboerne. Landskapet inspirerer til lek “med naturen”, og utfordrer fantasien for barn.
Sweco Architects
Illustrasjon. Avvik vil forekomme.

Illustrasjon. Avvik vil forekomme.
Tenk nytt


DET LØNNER SEG MED NY BOLIG
Energiprisene er historisk høye for tiden og ikke mye tyder på at de skal bli lavere den nærmeste fremtiden. Å velge ny bolig bygget etter de siste tekniske forskrifter og krav kontra en eldre bolig vil kunne ha mye å si for lommeboken.
LAVE OMKOSTNINGER
Det er ikke alle som er klar over hvor store fordeler det er å kjøpe ny bolig fremfor gammel. Når du kjøper en brukt bolig betaler du dokumentavgift til staten på 2,5 prosent av kjøpesummen. Ved å kjøpe nytt eller bolig under oppføring, beregnes dokumentavgiften kun av tomteverdien. Dette gir vesentlig lavere kjøpsomkostninger.
FORUTSIGBARHET OG GARANTI
Ved å kjøpe nytt eller ved kjøp av bolig under oppføring, må budstadoppføringsloven følges. Kjøper har med dette en lovfestet garanti på 5 år og dermed bedre rettsvern enn ved kjøp av brukt bolig.
BEDRE STANDARD OG MINDRE VEDLIKEHOLD
Ved kjøp av ny bolig får du en høyere byggeteknisk standard enn for bare noen år siden.
Ved kjøp av helt nytt trenger du ikke bruke tid på oppussing og vedlikehold på mange år. Med god planlegging av din nye bolig, får du en bolig som passer perfekt for deg! Det avholdes befaringer før overtagelse, ved overtagelse og ett år etter overtagelse. Eventuelle feil som avdekkes vil bli rettet. Dette gir også en ekstra trygghet som du ikke vil ha ved kjøp av en brukt bolig.
Å STARTE MED BLANKE ARK ER ALLTID SMART Følelsen ved å flytte inn i din egen, splitter nye bolig er trolig langt mer verdt enn du tror. Ingen skavanker, hakk parketten eller spikerhull i veggene – du og din nye bolig starter med blanke ark, sammen!
Kjøpsprosess
Fra signering til innflytting

KJØP AV BOLIG ER EN STOR
OG VIKTIG BESLUTNING
Her hjelper vi deg å gjøre deg kjent med kjøpsprosessen fra signering til tiden etter innflytting.
BUD
Nå du skal kjøpe bolig, er det viktig at budgivningen gjøres skriftlig. Hos oss leverer du kjøpetilbud gjennom digital budgivning som du finner i boligvelgeren på prosjektets hjemmeside.
Når kjøpetilbud er sendt, har du gitt et bindende bud på boligen. Husk at det ikke er angrefrist ved kjøp av bolig i Norge. Vi sjekker deretter finansiering hos den oppgitte bank, og når det er bekreftet, vil du motta en skriftlig aksept, som betyr at du har kjøpt drømmeboligen.
KONTRAKTEN
Neste steg i prosessen er å signere kjøpekontrakten med vedlegg. Denne vil du få tilsendt elektronisk, og den signeres ved hjelp av BankID. Når kontrakten er ferdig signert, får du denne retur. Det signerte eksemplaret kan du nå sende videre til banken.
I tillegg til kontrakten vil du få tilsendt et oppgjørsskjema, hvor du må opplyse om du er politisk eksponert person (PEP-skjema), samt informere om egenkapital, innbetaling m.m. Dette er iht. regler om hvitvasking som vi er pliktig til å innhente.
INNBETALING AV FORSKUDD
Kort tid etter at kontrakten er signert, vil du få et krav om innbetaling av forskudd.
Vi vil sørge for at §12-garanti (fullførelsesgaranti) er stilt før vi krever innbetaling av forskudd fra deg og de andre kjøperne. Denne garantien dekker 3% av kjøpesummen i byggetiden, og økes til 5% ved innflytting og varer 5 år etter innflytting (i samsvar med reklamasjonstiden). Dette følger av Bustadoppføringsloven §12 og er en sikkerhet for oppfyllelse av eventuelt mangelsansvar.
BYGGESTART/LØFTING AV FORBEHOLD
Dersom du kjøper på et tidlig stadium i prosessen, vil du etter hvert få beskjed når forbeholdene løftes, dvs. byggestart. Vi sørger for å informere godt rundt denne prosessen.
Om du kjøper etter byggestart, vil dette være tydelig informert forbindelse med kjøpsprosessen.
TILVALG OG ENDRINGER
Vår kunde- og tilvalgsansvarlig vil sørge for at du er godt informert hele veien fra kjøp til innflytting. Dersom du kjøper tidlig, og før tilvalgsfristens utløp, vil vedkommende presentere tilvalgene i prosjektet. «Tilvalg» betyr å endre ting i boligen mot ekstra kostnad, for eksempel dører, parkett, dusj etc. Husk, dersom du kjøper etter fristens utløp, er det ikke lenger mulig å gjøre tilvalg og endringer.
SAMEIET STIFTES
Stiftelse av sameiet blir som regel gjennomført på et sameiermøte. På møtet presenteres prosjektet og det velges representanter til styret i sameiet. Her vil det være representanter fra både Bakke og forretningsfører m.fl.
FERDIGBEFARING
Cirka 2-3 uker før overtakelse blir du innkalt til en såkalt ferdigbefaring. Her går du gjennom boligen sammen med oss, og vi sjekker om det finnes feil eller mangler i boligen. Det blir skrevet protokoll som undertegnes
av begge parter. Hensikten med befaringen er at eventuelle feil og mangler som oppdages, rettes innen du flytter inn.
OVERTAKELSESFORRETNING
Nå er ventetiden endelig over og du skal omsider flytte inn i din nye bolig. På overtakelses-forretningen går vi på nytt gjennom boligen sammen. Vi sjekker eventuelle utbedringer som er gjort og overtakelsesprotokoll signeres av begge parter. Strømskjema blir fylt ut, og du får se hvor parkeringsplasser og sportsboder er. Det er viktig at du har innbetalt fullt oppgjør til overtakelsen, for dersom oppgjørsavdelingen ikke har mottatt fullt oppgjør, vil ikke nøkkel bli utlevert.
På overtakelsen vil du får utlevert en såkalt «FDVmappe», som er en slags bruksanvisning til boligen. Her står det informasjon om hvem som har gjort forskjellige arbeid, fargekoder etc.
1-ÅRSBEFARING
Alle kjøpere får tilbud om ettårsbefaring cirka ett år etter at prosjektet er ferdigstilt. Da går vi gjennom boligen sammen med deg og utbedrer eventuelle berettigede feil og mangler.
REKLAMASJONSTIDEN
Du har rett til å reklamere på feil og mangler i 5 år fra overtakelsesdatoen. Det er likevel svært viktig at det reklameres straks, og senest innen tre måneder etter at du oppdager feil eller mangler. Dersom du ikke reklamerer innen fristen, kan ditt eventuelle krav bortfalle. Vår egen ettermarkedsavdeling håndterer eventuelle reklamasjoner på våre vegne.
Nå håper vi at du har fått en bedre forståelse av selve prosessen med kjøp av ny bolig, så nå er det bare å glede seg til innflytting!

ET HJEM DU VIL HJEM TIL
Vår visjon er å utvikle hjem du vil hjem til nå og i fremtiden. Det skal vi klare med fokus på gode kundeopplevelser og smarte løsninger – for kunde og byggherre.
Boliger fra Bakke skal være et hjem du vil hjem til. Denne visjonen er med på å bestemme alt vi gjør – vi setter oss skoene, tankene og drømmene til deg som skal flytte inn.
Hvilke løsninger ville du valgt, hvis du fikk velge helt selv? Hvor går grensen mellom nok plass, til mer enn du trenger?
Dette gjelder alt fra skap, størrelse på bod, hvor stikkontakter og brytere er plassert til størrelser på entre og hvor stor boligen bør være for å gi deg
armslaget du ønsker deg. Material- og stilvalg, uteområder, lekeplasser, fellesområder og sosiale soner – både ute og inne – vi tenker på alt. I en bolig fra Bakke skal du føle deg hjemme, allerede før den siste pappesken er pakket ut.

Kontakt

Mob: 900 87 767 / E-post: camilla@bakke-as.no
Camilla Myhre - Prosjektselger