

![]()




Ellington Airport is home to the Houston Spaceport, the 10th commercial spaceport in the U.S., and the only one adjacent to a metropolitan area.

Open soon - a new flight school!
Texas Southern University has an academy in the works, a $5.5M investment. The 22,000 SF hangar plus training and classroom space will sit on 2 acres at Ellington Airport. TSU is the only university in the state offering a 4-year aviation degree.

Approximately 658 acres are available for development in Ellington Airport. Best uses: office, aviation, institutional and industrial.










125,000
SF on 12.5 acres at the Houston Spaceport. Includes office, laboratory, production, assembly and test space among other amenities. Company leads in space exploration, infrastructure and services.
• Planned Dept. of Defense-sponsored Sensitive Compartmented Information Facility (SCIF).
• Innovation accelerators
• IM-4 mission is the 4th lunar delivery mission that will include the launch of 2 lunar data relay satellites.
• 400+ employees



116,000 SF building. It will be used for testing and building satellites and other spacecraft.
IM also plans a $12M expansion for new production, testing and support facilities.







Axiom Space 23 acre campus

430,000 SF



Headquarters for production of Axiom
Station – a commercial module that will attach to the ISS.




• Lead private and professional astronaut missions to the ISS.


First phase completion the Assembly Integration and Testing (AIT bldg.)




Axiom Space was selected to provide the next generation of NASA spacesuits – a contract valued up to $3.5B over a 15year period.

Venus Aerospace – Company is designing a next generation spaceplane that will travel 9 times faster than the speed of sound, climbing to an altitude of 150,000 feet using rocket engines before gliding safely back to Earth. Employee count is nearing 100!



The EDGE Center is 1 of 3 CertTec certification testing centers in the U.S. and the ONLY one in Texas!
The San Jacinto College EDGE Center is partnering with the local manufacturing community to teach technologically advanced manufacturing training programs to meet the needs of the region’s manufacturers.
Composite manufacturing technician . Aerospace quality technician
Aerospace electrical assembly technician . Aerospace mechanical structures technician
Mechatronics and industrial automation technician . Manufacturing technician (hydraulics, pneumatics, CNC lathe, sheet metal work, fasteners, etc.)
Employment Skills

Houston Aerospace Support Center

BVI Machining is currently a tenant in HASC.




Tannos Development breaking ground on a mixed-use project at 12422 Space Center Blvd. Included are 95 office/warehouse units plus 3 retail pads. A MOTU gas station and carwash are also planned next to this project.


40,000 SF Elite Pickleball Club is open on Space Center Blvd. at Clear Lake City Blvd. Building has been totally renovated.


Customer Racing teams in the world! Winward Racing’s new 40,000 SF building on Space Center Blvd.


Gulfpoint Business Park by Wycoff Dev. & Const. 43 acres on Gulf Freeway at Scarsdale Blvd. Available sites for flex, distribution and single tenant users, 5,000 – 500,000 SF. Sale or lease.




Pasadena Southmore Clinic, a 40,000 SF facility offering a full range of adult and pediatric primary care. Will employ 100 people. Location is 1951 Southmore Avenue.

QuikTrip is coming!
BW 8 / Preston Rd / Genoa Red Bluff Rd.

In north Pasadena, there are plans to redevelop the former mall property encompassing more than 61 acres. It will be anchored by a new regional 141,000 SF Harris Health Medical Center, along with a grocery, entertainment, restaurants, office space, and a public park. The location is Pasadena Boulevard at Southmore Avenue.








Center for Petrochemical, Energy, and Technology (CPET) building –140,000 SF. Classes for –process technology, instrumentation, nondestructive testing, electrical, analyzer tech programs

New! TakeOff Adventure Park, a new concept from Fun City, coming to Pasadena, 60,000 SF at 5050 Fairmont Pkwy. Included will be a ninja course, foam pit, climbing walls, trampolines, arcade and party rooms. Plan to open late Q1 2026









Jimmy Burke Activity Center (JB Activity Center) broke ground at 500 W. 13th Street. 46,000 SF facility featuring flex event spaces, conference rooms, catering kitchen, visitor center & museum. Expected completion is fall of 2026.
SPENCER HWY.

Canadian Plaza on Canada Rd. between Spencer Hwy and Fairmont Pkwy. Phase one is 26,800 SF for commercial, office or retail tenants. Phase two is for BTS, 8,000 to 20,000 SF.
Just opened! 65,000 SF Deer Park Activity Center (the DAC). 610 E. San Augustine Street. This building has a gym, indoor pool, sports courts and more.


Res. 3
72 ac.
FAIRMONT PKWY.





Two new developments …

Morgan’s Landing -- 235-acres
• ~600 single family homes
• Development on 200 ac. - Bay Area Blvd. between Spencer Hwy. and W. Fairmont Parkway.






Reserve 3 is 72 acres. Available for retail, entertainment, and dining.
• Edifis Group plans three restaurants, including Chipotle, on 3 acres at SH 146 and Fairmont Plwy. 1001 N. SH 146. Two more restaurants are in the works.
• Dual concept Marriott hotel (TownPlace Suites and Fairfield Inn) and a retail center, 8,700 SF, are under construction on13th St., west of SH 146. Developer is looking for restaurants to serve guests of the 435 area hotel rooms.

Now open -- Hawthorne at Fairmont by Brownstone Group. 291 units. 4-story, elevator-serviced wrap design. Canada Road at Fairmont Parkway.

Maritime, Manufacturing and Industrial Activity







TriPort 8 at Beltway 8 and Grayson Rd. on 62 acres in Houston. Specs: Five Class A buildings totaling 881,521 SF. Spaces for lease range from 30,000 SF to 250,000 SF; 32’ to 36’ clear heights. Flexible loading configurations.
Expected delivery is scheduled for Q2 2026. Work is underway. Developer by Alliance Industrial Co.
Red Bluff II at Genoa Red Bluff Rd. and Beltway 8. Underway is a 5-building industrial park totaling 156,641 SF on 12 acres. Three buildings will range from 22,775 SF to 27,966 SF; the other two will be 31,220 SF and 50,217 SF. Four are rear-load and one is front-load. All are 32’ clear height. Completion is scheduled for end of the year. Developer is Adkisson Group.

Sens Road Business Park at Sens Rd. and Spencer Hwy. in La Porte. 300,000 SF development with BTS sites available for lease from 20,000 SF to 40,000 SF. Planned for section A on 4 tracts are 40,000 SF multi-tenant spaces, divisible to 10,000 SF with 24’ eave height and BTS office. Planned for section B: 20,000 to 40,000 SF single-tenant, BTS, 28’ eave height and 20ton crane ready with outside storage. Clay Development & Construction Inc. is the developer.


SouthPort 45, Scarsdale Blvd., between SH 3 and the Gulf Freeway. Specs: 3 buildings are planned: Bldg. 1 is 96,080
SF, 32’ clear height, front load with two drive-in doors and 18 dock doors; Bldg. 2 is 176,580 SF, 32’ clear height, front load with two drive-in doors and 42 dock doors; Bldg. 3 is 395,611
SF, 36’ clear height, cross dock with four drive-in doors, and 80 dock doors. All buildings will have 2,500 SF spec office, ESFR sprinkled. Expected delivery is August for Bldg. 3 and October for Bldgs. 1 and 2. Construction is underway. Developer is Lovett Industrial.


Gulf Port Logistics Park, 3105 Genoa Red Bluff. Specs: 5 buildings ranging from 22,800 SF to 50,252 SF. All are 32’ clear height with one drive-in ramp and multiple dock-high doors, ESFR sprinklered, office to suit, auto parks, and truck courts. Each site ranges from 1.82 to 3.52 acres. A project by Adkisson Group Development.
Red Bluff Business Center at 3374 Red Bluff
Road in Pasadena by Revko -10 buildings totaling 50,302 SF ranging from 1,802
SF to 6,800 SF. 18’ clear height. All buildings individually gated and secured. Under construction now.


Construction is complete on Gauge Southgate in Houston at 13415 Conklin Lane on ~ 12.65 ac. Specs: 3 buildings totaling 192,660 SF. Bldg. A - 33,600 SF, rear-load, 28’ clear height, 15 dock-high doors, 1 ramp, 800 amps. Bldg. B - 77,160 SF, front-load, 32’ clear height, 19 dock-high doors, 1 ramp, 800 amps (potential increase to 1,600 amps). Bldg. C - 81,900 SF, frontload, 32’ clear height, 15 dock-high doors, 2 ramps, 800 amps with potential of 1,600 amps. All are ESFR and have some office space. Shell is complete. Development by Gauge Real Estate Partners.
Red Bluff Distribution Center in Houston at 5475 Allen-Genoa Rd. on ~ 10 ac. by Provident Industrial. Shell is complete! Specs: 161,700 SF, BTS office, front-load, 32’ clear height, 50 x 52 typical column spacing, ESFR sprinkler, 25 dock-high doors, 2 drive-in ramps, 90 auto parking spaces and 36 trailer parking spaces. 1,600 amp, 480V, 3-phase. 3,306 SF spec office.


Port 225 Commerce Center in Pasadena, Beltway 8 at SH 225484,000 SF on 26 acres. Includes a 355,071 SF cross-dock building, 36’ clear height, and 128,999 SF rear-load, 32’ clear height. Construction complete. Development by GTIS Partners.


Gulfbelt Logistics Park is under construction by Trammell Crow. NEC Gulf Fwy and BW 8 in Houston. Six buildings: 278,864 SF, 88,479 SF, 122,813 SF, 97,135 SF, 115,883 SF and 240,400 SF. Specs: cross-dock, rear and front-load buildings ranging from 28 to 36’ clear height. Slabs are poured.


Baywood Logistics by The Avera Companies in Pasadena at 8920 Red Bluff Rd -- Construction starting 1Q 2025 on the 34-acre site with completion expected Q2 2026. Specs: 374,297 SF, front-load, 36’ clear height, 60 ft. speed bays, +/- 53 trailer parks, 2 drive-in ramps, 62 dockhigh doors, oversized truck court, 52’ x 52’6” column spacing, ESFR. 3,000 amps of power.




Camfield Partners near Old Hwy
146, north of Red Bluff Rd. in Seabrook. 134,632 SF freezer warehouse on approx. 7 ac. in Seabrook.


Constellation Genoa Red Bluff at 2555 Genoa Red Bluff Rd. in Pasadena on 15 acres. Spec industrial building of 240,041 SF will begin construction Q3 2025. Includes: 36’ clear height, 20 trailer spaces. Development by Constellation Real Estate Partners. Completion scheduled for Q2 2026.
Pasadena Logistics Center. 139,655 SF on 10.8 ac. at 5176 Red Bluff Road in Pasadena. Specs: front-load, 32’ clear height, 31 dock high doors, 2 grade-level doors, 130’ truck court, ESFR sprinklered. Development by Junction Commercial Real Estate. Shell is complete.



Seabrook Town Centre – $85M project on 19.5 acres at the Repsdorph Circle
• 320 multifamily units
• 28,500 SF commercial space.
• 20,000 SF in two retail and restaurant buildings, two more consisting of 7,500 SF and 5,000 SF. Fronting SH 146 are 4 pad sites.
• HS Development Group breaking ground January 2026.

















Red Bluff Road to FM 518 ~$200 million project
open – NASA Parkway at SH 146!


SH 146 update:
▪ The southbound and northbound express bridges have opened.
▪ The remaining work on the overall project includes frontage roads, signals, railing, sodding, and drainage.
▪ This past August, TxDOT began widening a 5.5-mile section of SH 146 between south of FM 518 and Dickinson Bayou. Warehouse facility – two 24,000 SF units at 5815 Old Hwy 146 in Seabrook. Developer is Starship Texas City LLC.





Good opportunity for a waterfront restaurant operator …. at Seabrook Marina & Shipyard. Upper level is 5,476 SF and 3,200 SF lower level. Ready to build-out. Opportunity for developers! A combined 67+ acre tract south of Red Bluff Rd. on the east side of SH 146. The site is ideal for multifamily in the back with retail and commercial up front





Something new is coming –stay tuned!
Proposed -- Hilton Home2
Suites on Solomon Rd.



Coming soon ..


Kemah Crossing, a patio home development by Meritage Homes at SH 146 and the League City Parkway – 515 homes on 89 acres, up to 2,870 SF; townhomes up to 2,047 SF. It’s open!



Under construction – the Gessner Center, 14,000 SF, Galveston Bay Foundation’s headquarters building on the Bay. A place to learn about the diversity of Gulf Coast plants and wildlife, conservation, and science.


Project is underway on Anders Lane and FM 518.
Seven free-standing office warehouses under construction on 6 acres. Specs: steel w/ stone veneer, grade level doors, 18’ ceiling height, 6,000 to 8,000 SF. Buildings are for sale. Morrison Development, LLC project.



Riverview at Clear Creek

Wesley Drive at the Gulf Freeway
• 59 ac. Development
• 100-slip marina infrastructure work is ongoing.
Planned in Phase ll …
• Hotel
• Restaurant
• 285-unit multifamily project
• 53 townhomes
• Amphitheater, boardwalk and trails
• Retail space & restaurants






Lilac Field
League City Pkwy at SH 146
• 25 ac. Development
• 70,000 SF for retail and restaurants
• 220,000 SF for BTS flex warehouse space
• Breaking ground in March.





Planned: Plaza 96, a mixed-use development on League City Pkwy. near South Shore Blvd. 75,000 SF for retail, restaurants, medical office space and office warehouses. Breaking ground later this year.

Complete! West League City Crossing, 4550 League City Pkwy. One building is 11,283 SF; another is 11,625 SF.



Complete! New pad sites and 11,300 SF retail building available at Tuscan Lakes
Marketplace: SWC League City Pkwy & Tuscan Lakes Blvd.
It’s open - Kelsey-Seybold Clinic – South Shore Harbor, a 15,000 SF facility, will be built at 3625 E. League City Pkwy.
Another new facility, two-story, 33,000 SF, is planned for W. League City Pkwy.






Latest completion is 5-story, 264,000 SF patient tower. What’s next?
Phase 3 expansion has been approved. South Tower will expand from 5 to 11 floors. Tower has 97 beds; expandable to 300 beds. Design work has begun. Project cost: $250M.



Lakes on 6 ac. 11 office condo buildings totaling 61,360 SF are planned: 7 with 5,200 SF and 4 with 6,240 SF. League City Pkwy at Egret Bay Blvd.

Freeway between League City Pkwy and FM 646. MD Anderson is also on this campus.
Complete! The Shops at Tuscan Lakes. 15,000 SF retail space. League City Pkwy at Egret Bay Blvd.





A developer plans 69 Patio Homes, 95 Townhomes, 250-350 Garden style apartments, 4.5 acres of parks, and 12,100 feet of trails. Beacon Island is on Lighthouse Blvd. off Marina Bay Blvd. in League City.





The League – a proposed $125M mixeduse development by CJ Development. The 1st phase of The League would include 230 multifamily units and 30,000 SF of retail and restaurant space. This is a multi-phase development eventually bringing 630 residential units and 75,000 SF of commercial space. On FM 518 south of Five Corners.
Pat Hallisey Park to be built near the intersection of Calder Drive and Ervin Street. A 106-acre sportsplex – 5 softball fields, 4 baseball fields, batting practice cages, 2 tennis courts, 12 pickleball courts and 2 soccer fields. Construction expected to start Spring 2026.



Grand Oak Village

Grand Oak Village – League City Pkwy at the Gulf Freeway and Calder Rd.

screens Gulf Fwy & FM 646
Parkway Medical Plaza, 24,391 SF, at 1320 W. League City Pkwy. 3-acre site bordered by Calder Rd. and the Gulf Fwy.


Yes! Amazon is preparing to open in 2026!

3310 Gulf Fwy. -- the largest working Volkswagen dealership in the world, spanning over 78,300 SF with more than 45 service bays.


Now open at Bay Colony …


Westside Future Land Use Plan


There are 11,000 homes in various stages of development in League City!








Legacy by Hillwood Communities an 805-acre master-planned community of 1,630 new homes is under construction just south of the future intersection of League City Parkway and West Boulevard.
• More than 100 acres for a regional park
• Lot sizes of 80-ft and above
• Prices ranging from the $300’s to $1M
• A new road connecting western end of League City Pkwy to eastern end of Friendswood Lakes Blvd. Expected completion next summer.After roadway completion, construction will begin on new homes.

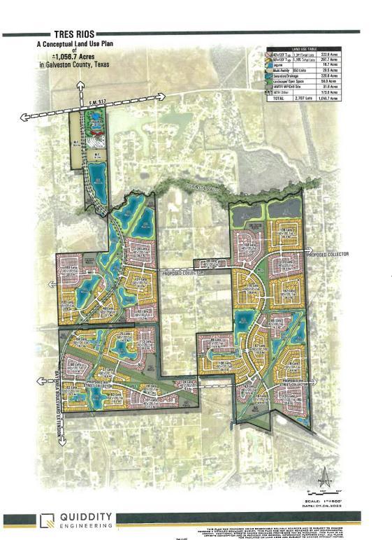
NEW announcement! Hines has proposed 2,637 homes on 1,776 acres N of FM 517, S of League City Pkwy, W of Hobbs Rd, and E of McFarland Rd. Lloyd Tract– 1,776 ac






This Grand Parkway segment will meet up with the Gulf Freeway, at the FM 646 junction. SH 99 Grand Parkway segment B I-45 South to SH 288 (txdot.gov)
Project development will begin the delivery of initial portion of SH 99 /segment B from I-45 in League City to FM 2403 in Alvin.

$1.96B project is on schedule to be “kicking dirt” in the Fall of 2026 or Spring 2027; most likely, there will be significant movement in Spring 2027.
There are 3 shortlisted Design Build Teams for the SH 99 Grand Parkway Segment B-1 project
…. Ferrovial, Fluor and Williams Brothers.

https://www.leaguecitytx.gov/4449/Master-Plans




townhomes at Water Street


2-story parking garage –under construction
Water Street -- $87M development approved. Pre-leasing, sale, BTS / RBTS opportunities. 20 acres on SWC of I-45 and FM 517. Includes: boutique hotel, restaurants, townhomes, event center, office and retail. Construction underway on 10 townhomes starting in $600’s.
Construction – on FM 517 near SH3. Uses for the remodeled sanctuary could include retail / restaurants. New HQ for ELS Construction will be 11,500 SF.







BACKYARD Brewing Co. plans to open at 4418 Illinois just off SH 3 near FM 517.


Parkview, a $75M mixed-use development is planned by Newfound Partners on ~27 acres, FM 517 and FM 646. The plan includes Class A apartments, retail and public park space.

Looking to break ground soon. and gas opening soon on FM 517





Lago Mar Pods 9 & 10

New retail!
There are 5,000 preliminary plats in the works for Texas City. There are 16 residential communities being developed now in Texas City!
• Commons at Lago Mar Towne Center, 100,000
SF shopping center – in the works. Space is available in Bldg. #1 and #2.
• NWC I-45 / Holland Rd. 18,392 SF retail center planned.
• Lago Mar Blvd. at Crystal View Blvd. 15,000
SF retail center planned.
70-acre mixed-use development including a 12-acre Crystal Lagoon pool –THE LARGEST IN TEXAS.
35 acres will be sold to retail, hotel and condo developers.
Lago Mar homes --
Plat approved for 59 lots on 20 acres with a view of a 100-acre lake. More than 1,900 homes have been completed in Lago Mar with more than 4,400 planned. Additional 4,000 homes are planned for Lago Mar’s east side. Including Beacon Point at Lago Mar, 800 homes.
More homes planned …
CastleRock Communities purchase 81 acres between FM 1764 and SH 3 for a single-family subdivision.
Brookwater will be built on 50 acres on the east side of FM 2004. 201 lots.












H-E-B is planned on 15 acres in the Lago Mar area.

Galveston LNG Bunker Port is planned for Shoal Point in Texas City. $250M investment. 250 construction jobs. 25 to 50 permanent jobs. Other potential projects are also eyeing Shoal Point

Now open! on the Gulf Fwy. at Lago Mar. 7,926 SF.




College of the Mainland – Three buildings are in the works including a library & 3-story classroom.




New opportunity for industrial users! This megasite has 300+ usable acres and is located 30 miles southeast of Houston. The site is suitable for unit train operations or large manifest service. It is within 2 miles UP and BNSF mainlines and within 3 miles of the Port of Texas City.
$66M La Marque High School




The Texan, a travel center store, will be built on 10.5 ac tract at Gulf Fwy and Vauthier St. 25,000 SF with 56 gas pumps plus 6 diesel.

There are 3,000 homes in various stages of development on the west side of the Gulf Fwy.
At the former Gulf Greyhound Park, an additional 17 acres were purchased by Main Street Commercial Partners with plans for 100,000 SF of anchor space and pad sites – The Shops at La Marque. Also, a concert and event venue has started construction on the property.






Saint Barts– a new lagoon community by Megatel Homes! 2,800 homes, 1,200 apartments and a lagoon.
• Saint Barts is south of FM 517. Bay Area Blvd. will be extended from League City south to FM 517.
• City Council voted to create a municipal utility district. Much of the land is in an ETJ and will be annexed as it’s developed.
CenterPoint Energy to build a regional service center at FM 1764 and FM 646. 60,000 SF on 18 acres.











• Gulf Breeze development is moving forward. 700 homes on FM 2004 on the west side of SH 6 near the former blimp base. The master plan includes 15 acres for commercial development. Civil infrastructure begins by summer.
• Sunset Grove (KB Homes--Northside) –100 + homes underway



Coming – Leadership in Flight Training - aviation training academy at Scholes International Airport in Galveston
Work to begin on $41M engineering classroom and research building at Texas A&M Galveston. 54,000 SF building.

Margaritaville Resort under construction at 317 E. East Beach Dr. in Galveston. The resort will feature a 314-room tower, several restaurants and bars and an expansive water park



Port of Galveston is the No. 4 busiest port in North America & 7th busiest port in the world! 400 cruises this year!

Norwegian’s Prima –3,215 guests –Now sailing!



Carnival Legend, 2,124 guests, arriving 2025.



Royal Caribbean’s Harmony of the Seas is here – 5,374 guests

MSC’s Seascape – 5,632 guests. Arriving November 2025.

Carnival Miracle now sailing –2,124 guest capacity
Royal Caribbean’s Adventure of the Seas –3,800 guests




Royal Caribbean –Symphony of the Seas 6,680 guests
Sailing begins May 2026

Carnival’s Horizon –4,000 guests. Begins sailing May, 2027.
At Port of Galveston, the 4th cruise terminal, 165,000 SF, plus a 55,000 SF parking garage is now open at Pier 16. MSC Cruises’ Seascape will begin sailing from there in 2025.


Disney Cruise Lines will begin sailing yearround in 2027 from Galveston.

Carnival’s Spirit –2,100 guests. Begins sailing October, 2027.

Carnival’s Sunshine –3,000 guests. Begins sailing 2027.


Royal Caribbean’s Icon of the Seas will begin sailing in 2027 – 7,600 passengers.
A historic battleship …
Plans are to move the USS Texas, the only surviving battleship from both world wars, to a new home -- Pier 15 in Galveston.



and another ship …
American Icebreaker Factory in Texas!




• Davie Shipbuilding, a Canadian company, acquired Gulf Copper’s shipbuilding facilities in Galveston and Port Arthur. MEGA PROJECT!!!
• Davie plans to invest $1B to transform the Gulf Copper shipyard on Pelican Island.
• The American Icebreaker Factory will build polar icebreakers and U.S. Coast Guard ships like Arctic Security Cutters.
• 2,000 skilled jobs + 2,000 more throughout the supply chain. Salaries: ~$80K to $120K/year
• One source shows this could generate a state-wide impact of over $9B.


Now under construction – The Albritton, a 147,000 SF residential project by Tannos Development Group at 408 S. Friendswood Dr. Retail and restaurants on ground floor and 111 class-A residential units on upper three floors. Multi-level garage; pool and sun deck above garage.

The Albritton


Tannos Development Group – new $23M office building at 1715 S. Friendswood Dr. 4-story, 106,000 SF.
UTMB leased the 4th floor for its Primary and Specialty Care. On the first floor, tenants are Good Rancher, MRI and CT facilities and physical therapy among others.




One Sixty One ... A new downtown Friendswood mixed-use development on 5.5 acres will be anchored by a 30-room boutique hotel and banquet room, 30 residential units and executive offices, restaurants, retail, collaborative spaces, and a roof top experience! The main entrance will be 306 & 308 S. Friendswood Dr.

Planned: boutique hotel on S. Friendswood Dr.

One Sixty One


Friendswood
Community Hospital, 23,500 SF, now open at 3201 E. FM 518. Micro hospital with 24 beds for emergency and short-term hospital stays.

Thomas Manor, an assisted living project broke ground. $25M project at 2245 Thomas Trace.






B&B Theatres to open 90,000 SF entertainment complex here!

Includes Brunswick’s Spark Immersive Bowling, 14 auditoriums, a full-service restaurant, arcade, 4 specialty largeformat screens and another that’s the largest ScreenX auditorium in the world.
Friendswood City Center is underway on a 106-acre tract along FM 528 at Blackhawk Blvd. near Bay Area Blvd.
What’s planned? 500-unit multifamily complex, 4-story medical /office buildings, 4-story mixed-use buildings with condominiums, multiple retail sites and entertainment.
There will be a 52-acre public park, walking and biking trails, and a fishing lake with pier. The ~$700M project will also include a luxury hotel and convention center space accommodating 500 people.




Castle Biosciences Inc. has a new 4-story headquarters building underway in Friendswood at 1500 W. Parkwood Ave. Includes 30,000 SF for retail space and 80,000 SF for commercial space. Castle Biosciences develops tests for cancer patients to improve their prognosis. $107M project.
homes …
Avalon at Friendswood
Section 3 - 123 lots on the east side of Friendswood Pkwy. Sections 1 & 2 are nearing completion...all sections are accessible from Friendswood Pkwy.
On FM 528 at Friendswood Trail. Complete are 92 lots in Sec. 3 & 4. 90 lots are in the works for Sec. 5
Sterling Creek Sec. 7 - 77 Garden Home size lots accessible from Friendswood Pkwy.
Georgetown – Approx. 312 Lots in Friendswood and 71 lots in Alvin. The subdivision includes 2 access points from FM 528.
Real Time
The Estates at Wilderness Trail
Coming Soon! Approx. 41 lots along Wilderness Trail. The development will include constructing a portion of Friendswood Parkway.






Ellis Business Park at 16310
Beamer Rd. Office/warehouse lease space located on 21 acres.



Creek -- Office / flex condominiums for sale have been completed at 4552 FM 2351 in Friendswood. Specs: 3,200 to 12,800 SF with loading door.


Park on Rex Road in Friendswood. 8 buildings, each on 2 ac. With outside storage. All are freestanding and in the range of 15,000 SF, at least 20’ clear height. BTS available.

Beamer Road Business Park – Planned are nine buildings along Beamer Road between FM 2351 and El Dorado Blvd. Buildings are between 10,000 SF and 22,750 SF, 10-ton and 20-ton crane ready with gradelevel doors, and 24’ to 28’ eave height. The buildings are for sale or lease and will be available Q2 2025



Now open!



Living Spaces (furniture) is now open at Baybrook Mall – the former Sears store
– more than 165,000 SF




2,800 homes on 1,066 acres, 14 miles of trails. 1st phase is 271 homes on 40 – 70 ft. lots; $300’s to $800’s. Model home construction has begun.


Baybrook East at the Gulf Freeway and El Dorado Blvd. H-E-B, 106,000 SF, anchors the first phase.
Retail project includes 30,000 SF of multi-tenant retail and six outparcels. Most are open!











Construction is finished for 3-building campus on 11 acres. The 4-story, 116,000 SF professional building that includes ambulatory surgery center is done plus a 2-story 32,000 SF cancer center. & 300-space parking garage.
Kirby Ice House is planned at 530 Bay Area Blvd. 12,600 SF with 7,500 SF of outdoor seating. Completion expected September 2026.


$30.5M multifamily project is under construction on 9 acres at 16200 SH 3 near Bay Area Blvd. Specs: 336 units, six 4story buildings, modern European farmhouse style and 1 & 2-bedrooms from 690 to 1,070 SF. Completion planned Q3 2027.




New homes will be built on 134 acres along Beamer Rd., just north of El Dorado Blvd. The plan calls for 357 single-family homes on 50, 55 and 60-foot lots, $350’s to $450’s. Phase 1 is in design; groundbreaking could occur Q4 2024; lot delivery in mid-2025.
The real estate partners plan more land purchases with an option on additional tracts totaling 800 acres – northwest along Beamer Rd. to Dixie Farm Rd. This phase could include single-family homes as well as multi-family and commercial development.


Shops at Baybrook, SEC of Bay Area Blvd. and Gulf Freeway.






Webster’s 23rd hotel -a 100-room extended stay hotel will be built near Costco.


Now open at Center Baybrook, 19801 Gulf Fwy.


Shops at Baybrook


93,000 SF Ikea -- coming August 2026 at the Center at Baybrook,19801 Gulf Freeway. Opening in space formerly occupied by Bel Furniture and Chair King.

Slick City Action Park - 33,500 SF amusement center / indoor action park - will open at the Clear Lake Center, FM 528 &I45.




Texas Oncology recently leased 35,000 SF at Webster Town Center in space that was Remington College. 20985 Gulf Fwy South.


HCA Houston Healthcare Clear Lake at 500 W. Medical Center Blvd. in Webster is investing $103M to expand the facility including --
UTMB purchased two properties totaling 4.5 acres at the NW and SW corners of Live Oak and Orchard Streets in Webster.


Sprouts will open a 23,024 SF store at 1001 W. Bay Area Blvd. in 2026.
• a 16-bed Intensive Care Unit, a 14-bed Progressive Care Unit, a 30-bed Medical Surgical unit, and a 30-bed shell space for future growth.
• Women's Services to add 10 labor and delivery rooms and one C-section operating room.
• The project is set for completion in late 2026.


Great Wolf Lodge rendering Coming soon


Sunset Amphitheater is planned to open at Webster’s Flyway District. The 12,500-seat multi-seasonal amphitheater is planned on 34 acres; adjacent land will be used for parking and infrastructure. A 350-seat membership-based elevated space – the Aikman Club – is planned along with 217 Luxe FireSuites. Colorado-based Venu Holding Corp. is working with the City and the Webster Economic Development Corp.


1,700 ft. Flyway Boardwalk overlooking Clear Creek is under development.



Great Wolf Lodge, Chicken N Pickle and Vida Mariscos are open …







Big plans for the Hilton property in Nassau Bay! The hotel has been purchased and will be entirely renovated to become a Margaritaville hotel and conference center.
Plans include doubling the 5,000 SF ballroom and replacing the existing outdoor pool with an extended adult waterpark with a lazy river and swim-up bar. And, there will be a marina and four restaurants!



open in Nassau Bay! Construction to completely renovate the former Luby’s building at 1600 E. NASA will begin Q1 2026. Included in the plan: small and large private rooms & a large wine cooler.

A restaurant is taking almost 7,000 SF of the 14,000 SF retail center at 1740 E. NASA Parkway. A unique concept is planned … details are coming soon.

400,000 SF! $200M facility is under construction on 32 acres at Johnson Space Center’s Exploration Park. It will include labs, shops, classrooms, dedicated space for sample research, control rooms, and meeting space plus two large extraterrestrial testbeds, one emulating Mars and the other, the surface of the moon. Expected completion is 2026.



Mid-January construction view

And on the inside …






Exploration Park – a hub to accelerate the next era of exploration.
• An announcement has been made to solicit proposals for lease of all or a portion of 183.7 acres of undeveloped land. It is adjacent to NASA Johnson Space Center (JSC) outside of the controlled access area of JSC and is accessible by Saturn Lane.
• For information: sam.gov Search for Exploration Park! Or go here: https://sam.gov/workspace/contract/opp/1cd5be1cd15d486ba69c3b5ac44693a7/view



$90 million mixed-use development underway in Taylor Lake Village and El Lago. Modern living & walkability. Construction has started.

Taylor Lake Canals, the northern development:
• 6 condo buildings with 72 units, 24 will be 3-bedroom penthouses and 48 will be 2-bedroom condos. $300’s to $500’s.
• First floors of the condo building will have retail or office space. Two restaurants are also planned.

• Also under construction are 34 gated single-family homes.

6 condo buildings plus retail / office on 1st floor


Lago Pointe --
Stonefield Homes building on Clear Lake. All include a boat slip.
Underway: The southern development that fronts Clear Lake will have a restaurant, outdoor dining and entertainment, a 20-room boutique hotel. Four condo buildings of 40 units each will be 1,500 – 2,200 SF, low $400’s to mid $600’s. Forty-one townhomes priced from high $700’s.
