
1 minute read
Una cocina de proporcionesgrandes


El alto volumen de comida que prepara diariamente una cocina industrial, obliga a las empresas hoy por hoy a realizar inversiones en nuevas tecnologías que agilicen sus tiempos de producción, sin descuidar la calidad, el sabor y el valor nutricional de los alimentos.

Debido a la variedad de clientes que maneja una empresa de servicios de alimentación institucional, el diseño y montaje de sus cocinas no es estandarizado, puesto que éstas deben ajustarse a las necesidades y perfiles de los consumidores en cada uno de los contratos. Por ejemplo, el almuerzo para un niño en edad escolar no puede ser el mismo ni en cantidad ni en contenido que el de un operario en una zona petrolera, o el de un paciente hospitalizado.

De la misma manera, Adriana Salcedo Gómez, Gerente Nacional de Operaciones Alimentación, asegura que en muchas ocasiones las cocinas tienen que ser adaptadas en los espacios que determinan las empresas contratantes que, por lo general, es al interior de sus instalaciones para que el personal no tenga que trasladarse. “A veces tenemos la posibilidad de empezar desde cero, eso sería lo ideal, pero en otras ocasiones nos encontramos con cocinas viejas, mal ubicadas o con errores en su diseño. Y precisamente ese es uno de nuestros principales desafíos”.
Por otro lado, Salcedo indica que antes de empezar con la construcción de una cocina, es indispensable definir el perfil de los comensales, la oferta alimenticia, cuántos y cuáles servicios se van a prestar por día. Adicionalmente, en la actualidad es indispensable contar
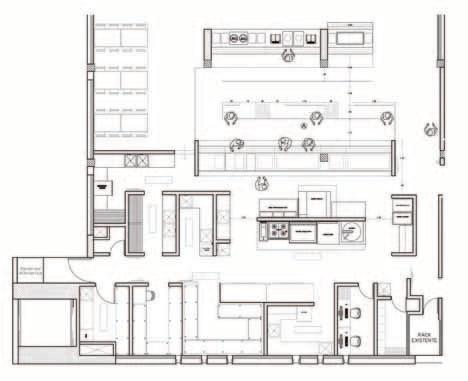
Montaje cocina: Pallomaro • Área: 163,73 metros cuadrados con equipos de última tecnología que agilicen la producción en un menor tiempo y espacio, pero en mayores cantidades.

Por último, la ejecutiva recomienda empezar a trabajar con productos pre-elaborados o de conveniencia, “estos facilitan la labor, requieren menor espacio, y generan menos desechos y, por ende, disminuyen los riesgos de intoxicación por alimentos, puesto que su manejo es mucho más higiénico y profesional”.
Los pre-elaborados son aquellos que reducen el tiempo de preparación de las comidas y brinda a los operadores de cocinas y chefs una opción que les permite tener un mayor control en los procesos y sus costos.









