Contents

• Introducing Craignethan Gate
• Our promise to you
• About Avant Homes
• The buying process
• Why buy new
• Living in Glenboig
• Development plan
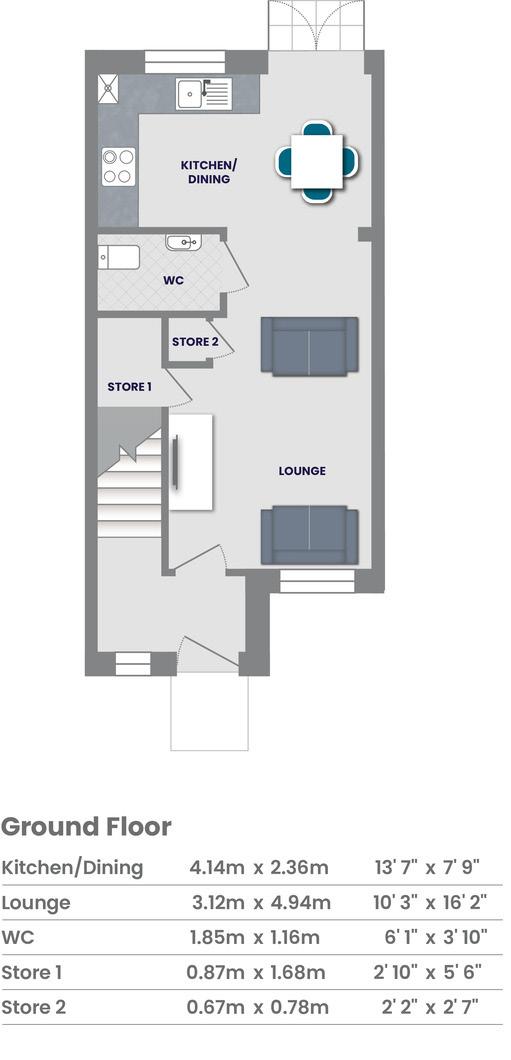
• House type floor plans
• Our specification
• Mortgage advisor panel
• Solicitor panel

![]()

• Introducing Craignethan Gate
• Our promise to you
• About Avant Homes
• The buying process
• Why buy new
• Living in Glenboig
• Development plan
• House type floor plans
• Our specification
• Mortgage advisor panel
• Solicitor panel

Looking for an amazing new home in North Lanarkshire? Then look no further. Craignethan Gate offers a range of 2, 3 and 4 bedroom homes in Glenboig - all designed with style, comfort, and practicality in mind.
Each home features classic French doors, designer kitchens with integrated appliances, fashionable tiling, spacious rooms, and off-street parking. Whether you’re taking your first steps on the property ladder, looking for more space for your family, downsizing, or anything else, you’ll find a modern home with flexible spaces tailored to your needs.
Located just 20 minutes from Glasgow, and situated in the Seven Lochs Wetland Park, Glenboig is the ideal location both for those wanting the city’s conveniences and for anyone who loves the outdoors!
We are committed to delivering a first class customer service. This means we care about what happens before and after you get the keys, ensuring your new home journey is rewarding and enjoyable too.
We are on the New Homes Quality Boards register of registered developers. We fully adhere to the New Homes Quality Code and the New Homes Ombudsman Service.



With a design and specification that’s perfect for modern living, we think about all you need inside and out. When selecting our locations, Avant consider transport links, amenities, and schools, ensuring our developments are in the perfect areas for solo buyers, couples, and families alike. We create new communities of likeminded people in the best places. The right home for you, right where you want it!
We understand that building excellent homes must be done in a responsible way. That’s why we’re committed to protecting the planet. We aim, where possible, to minimise and mitigate our impact on the environment. We have in place robust policies to address issues around ecology, resource use and biodiversity, which see us manage environmental impacts throughout our development’s lifecycle.
So, if you’re looking for your dream home, look no further.
Here’s a step by step guide through the exciting buying process.
Find your dream home on one of our 60 developments located in 8 different regions across the UK.
At the start of your home buying journey, find out what you can afford by speaking to one of our recommended new build specialists or find your own chosen financial advisor.
Once you’ve spoken to a mortgage specialist, you will be able to get a decision in principle which states your affordability. You’ll also need to choose a solicitor to represent you throughout the home buying process. We can recommend a solicitor or you can find your own.


Now you can officially reserve your home at one of our Customer Appointment Centres. Your Sales Advisor will show you detailed drawings of your development, your plot, and much more. You’ll need to provide your decision in principle, and your ID, and pay a small reservation fee.
Once reserved your solicitor will go through your draft contract and answer any questions. They’ll also carry out searches and checks. Alongside this, your mortgage advisor will apply for your mortgage.
The best bit has arrived – your options meeting! In this meeting you will choose your options and any upgrades you want. Let your imagination run wild and personalise your new Avant home to your liking.
Take inspiration from our beautifully curated show homes and browse our selection of tiles, cupboard doors and worktop samples.

We follow stringent processes to ensure we build a quality home. Once your home is build complete it will be inspected and a CML will be issued which gives you your 10 year warranty.
Following a pre-completion inspection, it’s the moment you’ve been waiting for… a sneak preview of your home at your Home Demonstration meeting!

Once your contract is agreed you’ll be asked to sign. This is called exchanging contracts in England and Conclude Missives in Scotland.
This stage is key, as it’s when you become committed to buying your Avant home and can countdown to completion day!


After completion, your Customer Liaison Manager will be in touch to support you with your new home!
They’ll be able to provide you with contact details for your Warranty Providers and answer any questions you may have.

Finally! Once we’re all ready to go, your solicitor will request your mortgage advance and any additional balances, ready to transfer to our solicitors on moving day.
When the funds arrive, the home will be officially yours. You can collect the keys and the deeds will be sent to your solicitor. Then, all that’s left to do is move in!

You’ll then settle in, and love life in your beautiful new Avant home.
If you’re looking for a stunning new home you’ve come to the right place. Here’s our top reasons why buying new is best...
Highly energy efficient
Buying a new build home has many benefits when it comes to saving energy – and money. They are built to the very latest energy efficiency standards with research by the Home Builders Federation (HBF) finding that owners of a new build home can save up to a staggering £2,200* a year on their energy bills.
No renovation costs
With a new Avant home there’s no hidden history to contend with. You won’t uncover that you need a full re-wire or that your boilers on the brink, because everything in your home is… you guessed it... new!
Peace of mind as standard with a 10 year warranty
With a new Avant home, you’ll receive a two-year builder warranty, plus a further eight years warranty from the NHBC or Premier Guarantee. In the unlikely event that something goes wrong with your home, your warranty ensures you’re protected.
A beautiful blank canvas
One of the most exciting things about buying new is that you’re starting from scratch in an immaculate unlived-in interior. Plus, with no one ever having lived in your home before, you’re the first to make memories in the space.


When buying new, you can choose from our extensive range of stunning options and upgrades allowing you to personalise all rooms of your home and garden.
When you buy a new home, you unlock access to lots of helpful buying schemes. From Part Exchange to My Move Made Easy, plus our Key Worker and Military Discount schemes, we have plenty of ways to get you moving that you wouldn’t benefit from when buying second-hand.
When you’ve got your heart set on a home, the last thing you want to contend with is chains and endless delays. When you buy new, there’s no upward chain!
New homes produce less carbon as they need to use less energy to heat up. Around 84%* of new homes have an EPC rating of A-B, while only 4%* of existing properties achieved the same rating. Good insulation, double glazing and airtight windows all contribute to a reduction carbon emission by 6%*.
Watt a Save Report, February 2023. ** Dependant on build stage, please ask your Sales Advisor for more details. ***Terms and conditions apply.
As well as being in the middle of a green haven, Glenboig is also extremely well-connected, with the M73 less than a mile away, and the M80, only a 10 minute drive from the village centre, taking you straight to Glasgow.
If you’re looking to go a bit further afield, the nearest train station is in Gartcosh, a four minute drive, ten minute cycle or just over thirty minute walk from Glenboig. From here, there are services to Glasgow every half an hour as well as hourly services to Falkirk and Cumbernauld.

THE ABERFELDY
2 bedroom home
3 bedroom home
THE BRAEMAR
3 bedroom home
THE CALLANDER
3 bedroom home
4 bedroom home
THE KINCRAIG
4 bedroom home
Bin Collection Point
Bin Storage Area
Plan not to scale
For plot & public open space planting see detailed landscaping plan. Shown indicatively only.













































Internal features
• Stylish white internal doors with chrome finished door handles
• Ceilings and walls finished in white emulsion throughout
• Heat, smoke and Carbon Monoxide detectors
• Gas central heating radiators throughout and grade A energy efficient boiler
• Power sockets and energy efficient lighting as per electrical layout drawings
• Modern profile skirting and architrave
External features
• UPVC double glazed french door to access rear garden
• Low maintenance black UPVC fascia
• UPVC double glazed windows with locking system
• Front composite GRP door with sidelight* and multi-point locking system
• Driveway*
• Garage* including power and lights
• Allocated parking*
• Front entrance light
• Rotavated rear gardens
• Turf to front gardens where applicable
• Photovoltaic panels~
Main bedroom features
• Ensuite shower room^
*Sidelight, Allocated Parking, Garage, and Driveway for these housetypes is Plot Specific.
~ Panel location and amount subject to plot location and orientation
^ Dependent on housetype

Bathroom features
• White contemporary sanitaryware
• Bath with mixer tap
• Full height tiling option to 3 sides of bath and half height tiling behind sink and WC
• Quality designer taps and fittings
Shower room features
• White contemporary sanitaryware
• High quality shower enclosure with white shower tray and a glass door with chrome trim
• Full height tiling option to 3 sides of shower and half height tiling behind sink and WC
• Quality designer taps and fittings
• Electric shower to second en-Suite in selected housetypes
WC features
• Ground floor WC with stylish white sanitaryware
• Single tile splash course above the sink
• Quality designer taps and fittings
Kitchen features
• Fully fitted designer kitchen in a range of colours and styles
• Stainless steel fan oven
• Ceramic hob
• Integrated fridge/freezer or undercounter fridge with icebox^
• Stainless steel bowl and drainer
• Designer chrome mixer taps
• White finish sockets above worktops

All electrical installations including sockets are provided in accordance with relevant building regulations to a minimum requirement shown below.
You can tailor the placement and number of outlets in your property upon request.
Speak to your Sales Advisor for more details.


We’re proud to work with a carefully selected panel of advisors that work separately from any bank or lender. These firms are available to provide free independent financial advice and will help you find a mortgage product that suits your circumstances.
Specialising in mortgages for new homes, these companies fully understand the processes and details of buying a new build, ensuring you’re getting experienced and knowledgable support. For more information, please contact one of our recommended advisors below.
Phone: 0115 8709520 | Email: enquiries@jlfs.co.uk Website: www.jlfs.co.uk
We have a carefully selected panel of recommended independent firms that can help you on your journey. These Solicitors are specilaists in new build conveyancing and fully understand the nuances of financial and legal matters, giving you confidence in their ability to help you with your purchase. For more information please contact one of the firms below.
Phone: 0800 292 2000 | Email: nick.hay@joneswhyte.co.uk Website: www.joneswhyte.co.uk
Phone: 0141 771 3911 | Email: mark@wallacequinn.co.uk Website: www.wallacequinn.co.uk
Phone: 0141 530 2026 | Email: tmcalpine@gilsongray.co.uk Website: www.gilsongray.co.uk
