1931 N Winchester Avenue

Page 1

1931

N. WINCHESTER AVENUE

1931 NORTH WINCHESTER AVENUE

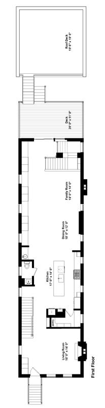
A+ renovation in coveted Bucktown/Wicker Park. This beautifully crafted home, built in 2007 and meticulously added onto and renovated in 2017, boasts multiple private outdoor living areas and an amazing amount of indoor living space. This residence features an open concept main level with a huge kitchen, dining, great room, with oak hardwood floors, custom built-ins and gorgeous white paneling. The modern kitchen features top-of-the-line Subzero, Wolf, and Miele appliances, complemented by marble and honed granite countertops. The thoughtfully designed floorplan offers a grand primary suite with a beautiful white porcelain bath with separate shower. Two good sized bedrooms, a great hall bath bathroom and laundry room on the second floor of the home. The versatile third level offers a large office/ bedroom complete with a wet bar that opens onto the third-floor roof deck and a full bath, providing a serene retreat with breathtaking city views. On the lower level you will find a spacious mudroom, wine storage room, rec room and an additional bedroom and full bathroom, perfect for guests! A beautiful built-in outdoor hot tub offers fun year-round. This exceptional location offers residents access to an abundance of amenities including parks, diverse dining options and top-rated schools.

Price: $2,200,000

5 bed | 4.1 bath

24x126 Lot Size

2022 Taxes: $29,292.59

SACHS WONG | 1931 NORTH WINCHESTER AVENUE | 3 LIVING ROOM
EMILY
EMILY SACHS WONG | 1931 NORTH WINCHESTER AVENUE | 5 LIVING ROOM :: DINING ROOM & FAMILY ROOM
EMILY SACHS WONG | 1931 NORTH WINCHESTER AVENUE | 7 FAMILY ROOM
|
NORTH WINCHESTER AVENUE | 9 FAMILY
EMILY SACHS WONG
1931
ROOM
SACHS WONG | 1931 NORTH WINCHESTER AVENUE | 11 DINING ROOM
EMILY
EMILY SACHS WONG | 1931 NORTH WINCHESTER AVENUE | 13 KITCHEN

KITCHEN

:: POWDER ROOM
EMILY SACHS WONG | 1931 NORTH WINCHESTER AVENUE | 17 PRIMARY BEDROOM
EMILY SACHS WONG | 1931 NORTH WINCHESTER AVENUE | 19 PRIMARY BATHROOM
EMILY SACHS WONG | 1931 NORTH WINCHESTER AVENUE | 21 SECOND BEDROOM & THIRD BEDROOM :: BATHROOM
EMILY SACHS WONG | 1931 NORTH WINCHESTER AVENUE | 23 LOWER LEVEL FOURTH BEDROOM :: LOWER LEVEL BATHROOM
EMILY SACHS WONG | 1931 NORTH WINCHESTER AVENUE | 25 LOWER LEVEL MUDROOM :: LOWER LEVEL WINE CELLAR
EMILY SACHS WONG | 1931 NORTH WINCHESTER AVENUE | 27 LOWER LEVEL RECREATION ROOM
EMILY SACHS WONG | 1931 NORTH WINCHESTER AVENUE | 29 OFFICE :: WET BAR
EMILY SACHS WONG | 1931 NORTH WINCHESTER AVENUE | 31 ROOF DECK
SACHS WONG | 1931 NORTH WINCHESTER AVENUE | 33 DECK
EMILY
SACHS WONG | 1931 NORTH WINCHESTER AVENUE | 35 DECK :: VIEW
EMILY
MAIN LEVEL
SECOND LEVEL
THIRD LEVEL
LOWER LEVEL

ABOUT THE NEIGHBORHOOD:

WICKER PARK

Residents and businesses flocked to Wicker Park to rebuild after the Great Chicago Fire of 1871. Today, Chicagoans flock to the hip, happening neighborhood for its eateries, arts and entertainment.

Wicker Park boasts an eclectic assortment of cafes, independent stores, dive bars, upscale boutiques, art galleries and city parks including four-acre Wicker Park. The neighborhood is home to some of Chicago’s most popular and acclaimed restaurants, elevating pizza and tacos to foodie fare and offering a wide variety of options for drinking and dining pleasure.

Located just south of Bucktown and northwest of The Loop, the neighborhood includes large historic 19th century brick and stone mansions and landmark Victorian homes on tree-lined streets. Modern new construction condominiums and single-family homes along with vintage walk-ups, three-flats and lofts round out the diversity of housing available.

Like neighboring Bucktown, Wicker Park’s notable commercial architecture remains – re-imagined, redeveloped and restored. The iconic Flat Iron Arts Building, home to artists who moved to the neighborhood in the 1980s, still houses various art studios and local businesses today. The CTA Blue Line offers convenient access to The Loop and O’Hare International Airport, while the Kennedy Expressway allows for an easy drive to surrounding neighborhoods and suburbs.

R E S T A U R A N T S
Le Bouchon 1958 NORTH DAMEN AVENUE, 0 1 MI
Coast Sushi Bar 2045 NORTH DAMEN AVENUE 0 2 MI
Club Lucky 1824 WEST WABANSIA AVENUE 0 3 MI
Wingstop 1637 NORTH MILWAUKEE AVENUE 0 4 MI
Piece Brewery 1927 WEST NORTH AVENUE 0 5 MI 6 Big Star 1531 NORTH DAMEN AVENUE, 0 5 MI
Irazu Costa Rican Restaurant & Catering 1865 NORTH MILWAUKEE AVENUE 0 5 MI
O F F E E
Starbucks 2101 WEST ARMITAGE AVENUE, 0 2 MI
Dunkin' GAS STATION 0 2 MI
The Goddess and Grocer 1649 NORTH DAMEN AVENUE 0 3 MI
Starbucks 1588 NORTH MILWAUKEE AVENUE, 0 5 MI
Estelle's
&
2013 WEST NORTH AVENUE 0 5 MI
Gallery
1760 WEST NORTH AVENUE 0 5 MI
ffee 1560 NORTH DAMEN AVENUE 0 5 MI
1
2
3
4
5
7
C
1
2
3
4
5
Cafe
Lounge
6
Cafe
7 Stan's Donuts & Co
S H O P P I N G
1623 NORTH MILWAUKEE
0 4 MI 2 A 1753 NORTH MILWAUKEE AVENUE, 0 4 MI
Benefit Cosmetics Boutique & BrowBar 1616 NORTH DAMEN AVENUE 0 4 MI
Quimby's Bookstore 1854 WEST NORTH AVENUE 0 4 MI 5 Urban Outfitters 1521 NORTH MILWAUKEE AVENUE 0 5 MI 6 Myopic Books 1564 NORTH MILWAUKEE AVENUE 0 5 MI 7 The Wormhole Coffee 1462 NORTH MILWAUKEE AVENUE 0 6 MI G R O C E R Y 1 Olivia's Market 2014 WEST WABANSIA AVENUE, 0 3 MI 2 Fresh Thyme Farmers Market 2500 NORTH ELSTON AVENUE, 0 7 MI 3 J 2550 NORTH CLYBOURN AVENUE, 0 7 MI 4 Carnicerias Guanajuato 1436 NORTH ASHLAND AVENUE, 0 7 MI G Y M 1 SALT Fitness Chicago 1714 NORTH DAMEN AVENUE 0 3 MI 2 Chi Yoga Shack 1942 NORTH LEAVITT STREET, 0 3 MI 3 CorePower YogaBucktown 1704 NORTH MILWAUKEE AVENUE 0 4 MI 4 yogaview Chicago 2211 NORTH ELSTON AVENUE #200 0 4 MI 5 Pure Barre 1837 WEST NORTH AVENUE 0 5 MI F E A T U R E D P R O P E R T Y h C 6 3 2 4 2 2 1 1 2 7 2 1 3 1 3 3 413 4 6 54 5 5 766 5 7 4 M ap dat a ©2024 G oogle Emily Sachs Wong 312 286 0800 esw@atproperties.com
1 Mindy’s Bakery
AVENUE,
3
4
NOTES
NOTES
312.286.0800

Turn static files into dynamic content formats.

Create a flipbook
Issuu converts static files into: digital portfolios, online yearbooks, online catalogs, digital photo albums and more. Sign up and create your flipbook.
1931 N Winchester Avenue by @properties - Issuu