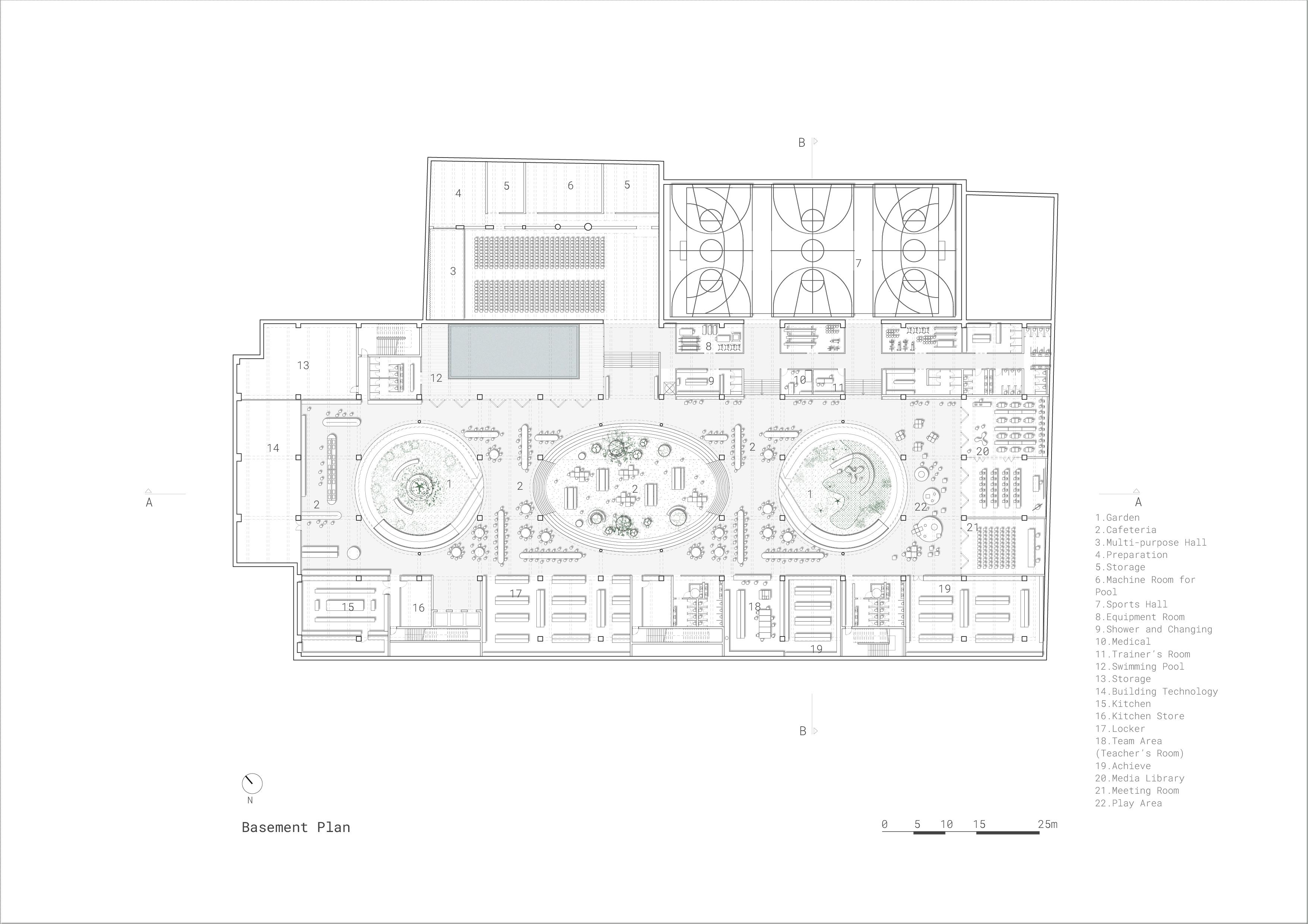
My thesis booklet, Children’s Village - Weaving an Inclusive School Complex into an Urban Retail Fabric, envisions transforming Berlin’s Karstadt department store in Wedding into a community-focused educational complex. This “vertical village” design combines primary, secondary, and integrated secondary schools within a single structure, centered around a communal plaza that fosters interaction and learning. Inspired by Wedding’s multicultural character, the project reimagines the retail space to reflect local diversity and create an inclusive, cohesive environment. By adapting this urban relic into a vibrant, safe learning hub, the project offers a blueprint for repurposing spaces to meet community and educational needs.