
6 Joyner Street, Moorabbin
Public Auction Friday 3 October at 12 noon on-site

![]()

6 Joyner Street, Moorabbin
Public Auction Friday 3 October at 12 noon on-site

Aston are pleased to offer 6 Joyner Street, Moorabbin by Public Auction Friday 3 October at 12 noon on-site.
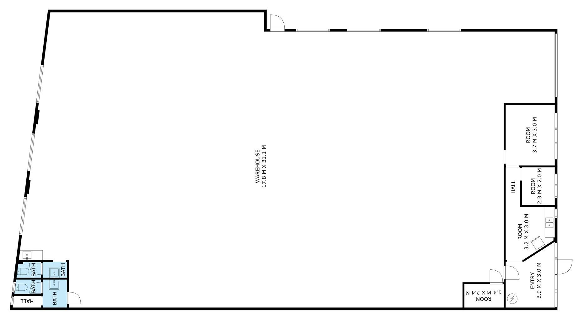
This classic standalone warehouse is in the Moorabbin industrial precinct and is being offered with vacant possession, ideal for owner occupiers and investors.

BUILDING AREA
558m2*
TENANCY DETAILS
Occupy or Invest – Vacant Possession
758m2*
CAR SPACES
Ample off street parking LAND AREA
3-phase power offices, toilets and kitchen
ACCESS
Roller door access


The property is positioned in a highly sought-after pocket of Moorabbin, just off Cochranes Road between Chesterville Road and Warrigal Road. It sits alongside 2 Brothers Brewery and is only moments from Morris Moor, with excellent connectivity to South Road, Nepean Highway, Dingley Bypass, Mordialloc Freeway and Southland Shopping Centre.



