

Stand alone office building in Cremorne’s best location.
![]()


Stand alone office building in Cremorne’s best location.

Aston is pleased to present for sale 3 Cubitt Street, Cremorne a standalone opportunity in Melbourne’s thriving creative and tech hub. This exceptional freehold office building offers a short term lease on level 2 & 3, whilst level 1 is vacant, making it an ideal opportunity for owner-occupiers seeking a prestigious City Fringe address. With its prime location, dual street frontages on Cubitt and Stephenson Streets, and a design that maximizes natural light, this property is perfectly positioned to attract innovative businesses looking for their next office headquarters.


Lettable

Certificate of Title: Volume: 07824 Folio: 166
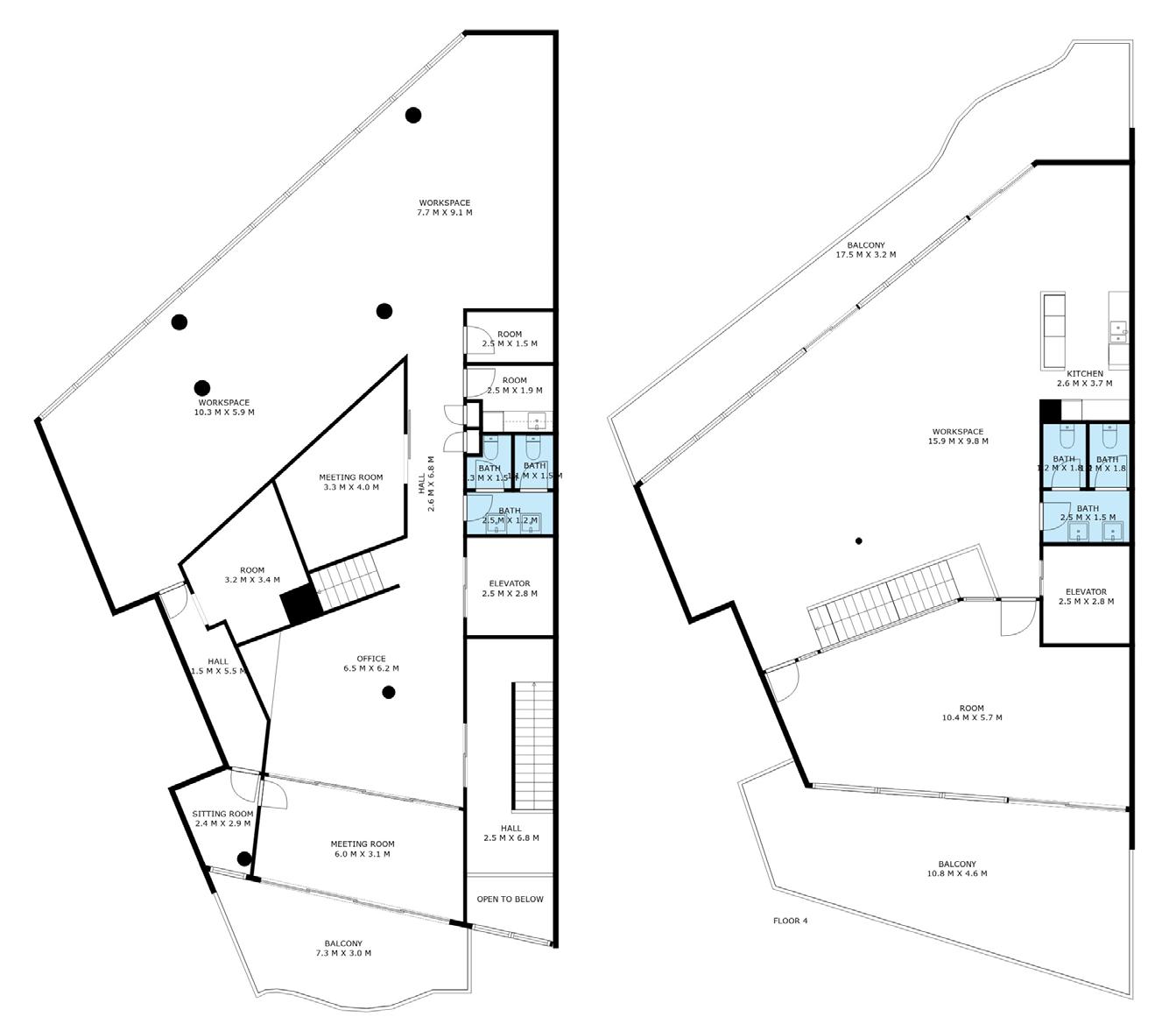
Designed by NTF Architecture and completed in 2010, 3 Cubitt Street, Cremorne, is a three-level office building that blends innovative design with functionality. Its terraced form and dynamic timber batten façade not only add aesthetic appeal but also provide practical shading. Sustainable features like thermal mass, low E glazing, and stormwater harvesting enhance the building’s environmental efficiency.
Inside, the building showcases high-quality finishes, including brushed concrete floors, a floor-to-ceiling glass façade, and exposed ceilings with integrated services. Each level offers outdoor terraces with stunning views of Melbourne’s CBD and the Richmond sporting precinct. The ground floor includes a lift lobby, 12 car parks, and high-end end-of-trip facilities such as showers, lockers, and bicycle racks. The first floor contains a self-contained office, while the second and third floors provide expansive office space with high ceilings and plenty of natural light, creating a spacious and modern work environment.
Whilst there is an existing lease in place for level 2 & 3, it is a short term lease expiring in February 2025. This short term holding income offers exceptional flexibility to owner occupiers interested in occupying either part of the building or the entire building.

LEVEL 2 & 3
TENANT BUSINESS NAME Deloitte
ANNUAL RENTAL $266,444.28 per annum
LEASE TERM Five (5) years
COMMENCEMENT 1st March 2020
EXPIRY 28th February 2025
OUTGOINGS Paid by Tenant

*approx


















Cremorne, located just 2 km southeast of Melbourne’s CBD and between South Yarra and Richmond, has become Melbourne’s premier Tech Hub. Its strategic position offers excellent public transport and easy access to major roads, making it attractive to major businesses like REA Group and MYOB. Over the past decade, Cremorne has transformed into a vibrant business district with a low vacancy rate and high demand for new A-Grade office rentals at around $700 per square meter.
The area boasts a unique mix of restored heritage buildings and modern architecture, providing diverse commercial real estate options such as contemporary offices, converted warehouses, retail units, and mixed-use developments. Cremorne is recognized for its creative and entrepreneurial environment, and ongoing developments and infrastructure projects are set to reinforce its status as a key area for business growth and success in Melbourne’s evolving landscape.







TECH AND CREATIVE HUB: Cremorne, dubbed Melbourne’s “Silicon Yarra,” attracts major tech firms like MYOB, Seek, and Car Sales, making it a top spot for commercial real estate investments.
BELOW REPLACEMENT COST: A rare chance to buy a prime Cremorne property below replacement cost, offering immediate value compared to today’s higher market prices.
LEASING PERFORMANCE:
Cremorne’s strategic location and appeal to businesses drive high leasing demand, leading to strong rental yields and property values.
AMENITIES: Located 150m from Swan Street’s vibrant social scene, this desirable Cremorne spot offers excellent public transport and road connectivity, ideal for businesses.
High-Quality Office Building: A premium three-level office building completed in 2010, designed by NTF Architecture.






“Materials” refers to any representations, statements, documents, data, statistics, measurements, estimates, figures, calculations, projections, approximates or otherwise stated by Aston Commercial Pty Ltd whether verbally or in writing. The Materials have been collated to assist potential purchasers for advertising and general information only to assist potential purchasers to decide whether to proceed with further investigation in relation to the property or the land. The Materials provided by Aston Commercial does not constitute any offer or contract of sale and is not to be relied upon prior to signing any relevant contract. Any dimensions or measurements of the property or the land (internal and external) are approximates only and should not be relied upon before signing any contract. The potential purchaser must conduct investigations to satisfy themselves that any Materials provided are accurate. Aston Commercial excludes unequivocally all inferred or implied terms, conditions and warranties arising out of the Materials and excludes all liability for loss and damage arising therefrom.
*Approximate