
18/7 Dalton Road, Thomastown
For Sale by Public Auction on Wednesday 26 February at 12pm on site

![]()

18/7 Dalton Road, Thomastown
For Sale by Public Auction on Wednesday 26 February at 12pm on site

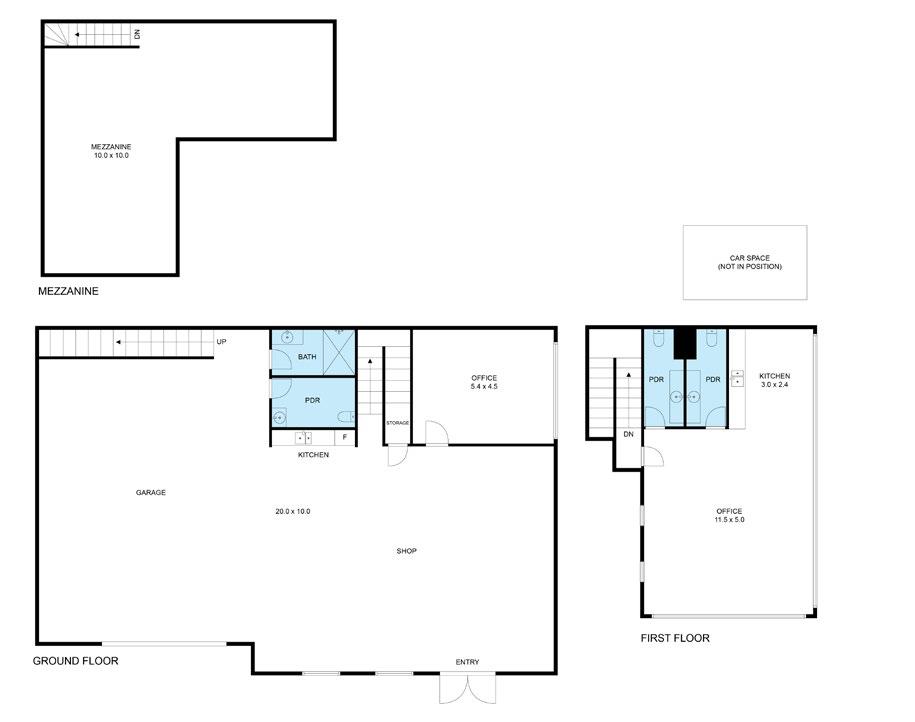
This office warehouse is located in the established and tightly held Thomastown Business Park. Boasting modern amenities to meet all your business needs. With a sleek design, state-of-the-art facilities, and a prime location, this space is ideal for businesses looking to thrive. Featuring a two level modern office with generous warehouse space and additional mezzanine.
- Total Area 337m2*
- Office area of 57m2*
- Warehouse of 200m2*
- Mezzanine 80m2*
- 3-Phase power
- Container height roller door
- 9m* warehouse clearance
WELL SERVICED BY
- Metropolitan Ring Road and Hume Highway
- Bus route along Mahoney’s Road

Industrial 1 Zone
3 on-site car spaces at front
STRONG LOCAL AMENITY
Well serviced by cafes, retail and public transport

