Portfolio_Asli-Tekin

Page 1


Attuale Settembre 2024

Mantova, Italia

L’architettura facilita l’interazione tra gli individui e il loro ambiente, fungendo sia da testimonianza storica che contemporanea.

Essa rappresenta una sintesi unica di pensiero ambientale e spaziale, modellata attraverso un’analisi contestuale approfondita.

In qualità di architetto, agisco come mediatore tra le persone e l’ambiente costruito, traducendo idee in spazi significativi.

data di nascita: 10.11.1999 luogo di nascita: Turchia

esperienza lavorativa referenze contatto

Luglio 2024

Agosto 2024

Giugno 2023

Settembre 2022

Agosto 2021 Giugno 2021 2022 2020

2019 2018

Agosto 2019 Giugno 2019

Milano, Italia

Lione, Francia

MULTICITI - Studio di Architettura Massimo Bonaffini

Architetto (7 mesi - part-time)

*lavorato sulle fasi del progetto di ristrutturazione di edifici residenziali

*riprogettato l’area della fabbrica TEA per funzioni residenziali e pubbliche

Rilievo Architettonico del Duomo di Milano & Prof. Francesco Fassi

Tirocinante in Architettura (1 mese)

*Contribuito alla preparazione di disegni per gli studi di scansione laser e fotogrammetria del Duomo di Milano.

Lipstick Xanadu Architecture

Tirocinante in Architettura (9 mesi - Borsista del Programma di Erasmus)

*coinvolgimento nelle fasi di progettazione architettonica

*creazione di visualizzazioni del progetto e produzione di disegni tecnici

Aydın, Turchia

Cevik Architecture & Engineering Ltd. Company

Tirocinante in Architettura (2 anni - part-time)

*pratiche di costruzione grezza e fine per strutture industriali, coordinamento con le autorità locali, progettazione del progetto e produzione di disegni tecnici e di presentazione

indirizzo: Via Portazzolo, 1, Mantova / Italy

telefono: (+39 ) 389 290 65 01

email: asli09352@gmail.com

Ankara, Turchia

rggA Architects

Tirocinante in Architettura (3 mesi)

*lavorato su un progetto di trasformazione urbana progettato per rispondere alle esigenze attuali

Izmir, Turchia

Nosyon Design and Innovation Services

Tirocinante Designer (10 mesi - part-time)

*progettato e sviluppato prodotti industriali e statuti per progetti aziendali

Massimo Bonaffini multicitipromo@gmail.com

Hèléne Vieira h.vieira@lipstick.archi

Tuzun Cevik , Alp Cevik tacevik@gmail.com

lingue

Turco- lingua madre

Inglese - C1, fluente

Francese- A2/B1, intermedio Italiano- A1, principiante

Izmir, Turchia

Izmir Institute of Technology / Rilievo Architettonico

Tirocinante in Architettura (3 mesi)

*studiato il rilievo edilizio, inclusi l’uso di materiali e strumenti per il rilievo

istruzione riconoscimenti

2023-2025

Italia

Politecnico di Milano (POLIMI)

Laurea Magistrale in Architettura

Progettazione Architettonica e Storia, Polo Territoriale di Mantova

Tesi in corso: Preparazione di un set di addestramento per il deep learning nella rilevazione delle patologie.

Giugno 2022

Izmir Institute of Technology

Lista dei Meriti del Decano I primi 20 laureati di tutte le facoltà

Giugno 2022

Izmir Institute of Technology Studente ad Alto Onore

2017-2022

2013-2017

Turchia Turchia

Izmir Institute of Technology (IZTECH)

Laurea in Architettura (100% in Inglese)

Laureata con il 2º posto nella Facoltà di Architettura

GPA: 3.64/4.00

Liceo Magistrale Anatolico di Nazilli

Voto di Diploma: 97.02/100.00

concorsi di architettura certificazioni

Agosto 2024

Aprile 2023

Febbraio 2022

Agosto 2020

software

disegno tecnico modellazione

visualizzazione presentazione

rendering fotogrammetria nuvola di punti

Terraviva Brise Vent, Le Havre / Concorso Internazionale

Partecipante

ARCHIPRIX Turchia 2022 / Premio di Incoraggiamento della Giuria

Progetto nel gruppo premiato, tra 12 su 142 progetti

Kaira Looro / Casa per Bambini / Concorso Internazionale Partecipante

Cities Living With Rural Values / Concorso Nazionale Studentesco Uno dei 5 progetti nel gruppo dei finalisti.

Sostenibilità in Architettura: Un’Introduzione Interdisciplinare (Corsi Edx - Online)

Progettazione Sostenibile degli Edifici per Climi Tropicali: Principi e Linee Guida (Portale MOOCs del Polimi - Online)

Dipinti Europei: Da Leonardo a Rembrandt a Goya (Corsi Edx - Online)

AutoCAD Sketchup

Photoshop In Design

D5 Render

Autodesk ReCap

Archicad Revit

Illustrator Enscape Agisoft Metashape

Rhino Grassopher (Honeybee - Ladybug Tools)

Adobe Premier Pro (video-animation)

Lumion

membri

2017-2018

2018-2022

2015-2020

Izmir Institute of Technology Comunità Studentesca del Teatro

Izmir Institute of Technology Comunità Studentesca di Ciclismo

Centro di Educazione Pubblica di Aydın

Formazione in Chitarra Classica e Pianoforte

work experience

Current September 2024

July 2024

August 2024

June 2023

September 2022

Mantova, Italy

ASLI TEKIN

Architecture facilitates interaction between individuals and their surroundings, serving as both a historical and contemporary record.

It embodies a unique synthesis of environmental and spatial thought, shaped by extensive contextual analysis.

As an architect, I act as a mediator between people and the built environment, translating ideas into meaningful spaces.

date of birth: 10.11.1999 place of birth: Turkey

contact

adress: Via Portazzolo, 1, Mantova / Italy

tel: (+39 ) 389 290 65 01

mail: asli09352@gmail.com

August 2021

Milan, Italy

August 2019

Lyon, France

MULTICITI - Studio di Architettura Massimo Bonaffini

Architect ( 7 months-part time)

*worked on the project phases of residential building renovation

*redesigned the TEA factory area for residential and public functions

Building Survey of Duomo di Milan Cathedral & Prof. Francesco Fassi

Architectural Intern ( 1 month)

*Contributed to the preparation of drawings for the laser scanning and photogrammetry studies of the Duomo di Milano Cathedral.

Lipstick Xanadu Architecture

Architectural Intern ( 9 months -Fellow of Erasmus +Internship Program)

*involvement in architectural design phases

*creating project visualizations, and producing technical drawings

Cevik Architecture & Engineering Ltd. Company

Ankara, Turkey Aydin, Turkey

Izmir, Turkey Izmir, Turkey

Architectural Intern ( 2 years- part time )

references

Massimo Bonaffini multicitipromo@gmail.com

Hèléne Vieira h.vieira@lipstick.archi

Tuzun Cevik , Alp Cevik tacevik@gmail.com

*rough and fine construction practices for factory structures, coordination with local authorities, project design, and production of presentation and technical drawings language

rggA Architects

Architectural Intern ( 3 months )

*worked on an urban transformation project designed to meet current needs

Nosyon Design and Innovation Services

Designer Intern ( 10 months- part time )

*designed and developed industrial products and statutes for corporate projects

Izmir Institute of Technology / Building Survey

Architectural Intern ( 3 months )

*studied building surveying, including the use of site surveying materials

Turkish - native language

English - C1 , fluent

French- A2 /B1 , intermediate

Italian - A1, beginner

CV -Asli Tekin

education

2023-2025

Italy

Politecnico di Milano (POLIMI)

Master in Architecture - Architectural Design and History

Ongoing Thesis : Deep Learning training set preperation for pathology detection

Turkey

Izmir Institute of Technology (IZTECH)

Bachelor in Architecture (%100 English)

Graduate with Ranking 2nd in Faculty of Architecture

GPA: 3.64/ 4.00

Nazilli Anatolian Teacher High School

GPA: 97.02/100.00

architectural competitions

August 2024

April 2023

February 2022

August 2020

Terraviva Brise Vent, Le Havre International Competition

Participant

ARCHIPRIX Turkey 2022 / Jury Encouragement Award

Project in the award group of 12 out of 142 projects

Kaira Looro / Children’s House / Interational Competiton

Participant

Cities Living With Rural Values /National Student Competiton

One of the 5 projects in the finalist group.

software

technical drawing architectural modeling

visualization presentation

rendering photogrammetry point cloud

AutoCAD Sketchup

Photoshop In Design

D5 Render

Autodesk ReCap

Archicad Revit

Illustrator Enscape

Agisoft Metashape

Rhino Grassopher (Honeybee - Ladybug Tools)

Adobe Premier Pro (video-animation)

Lumion

achievements

June 2022

Izmir Institute of Technology

Dean’s List

The top 20 graduates across all faculties

Izmir Institute of Technology

High Honor Student

Sustainability in Architecture: An Interdisciplinary Introduction (Edx Courses - Online)

Sustainable building design for tropical climates: principles and guidelines (MOOCs Portal of PolimiOnline)

European Paintings: From Leonardo to Rembrandt to Goya (Edx Courses - Online)

June 2022 2018-2022

certifications memberships

Izmir Institute of Technology

Theater Student Community

Izmir Institute of Technology Cycling Student Community

Aydın Public Education Center

Classical Guitar and Piano Training

Egregi Signori,

Attualmente frequento il secondo anno del corso di laurea magistrale in Architettura a Mantova, dove sto svolgendo la mia tesi. Sono attualmente alla ricerca di una posizione come architetto o di un tirocinio retribuito, che mi permetta di arricchire la mia formazione con un’esperienza professionale concreta e significativa, contribuendo allo stesso tempo alle attività di un team stimolante.

Il mio percorso accademico e professionale si è sviluppato attraverso progetti orientati alla partecipazione a concorsi, l’approfondimento dei processi architettonici e l’uso dei principali software di progettazione. Nutro un interesse particolare per il progetto in contesti storici e ho approfondito le tecniche di rilievo tecnologico. Le esperienze di tirocinio svolte in contesti internazionali mi hanno permesso di collaborare con professionisti di culture e generazioni diverse, affinando le mie capacità relazionali e la predisposizione al lavoro in team multidisciplinari.

Sarebbe per me un onore poter contribuire al vostro studio e crescere professionalmente in un ambiente ispirante come il vostro. Ringraziandovi sin da ora per l’attenzione, resto a disposizione per un eventuale colloquio conoscitivo.

Cordiali saluti,

Aslı Tekin

Dear Sir or Madam,

I am currently in the second year of my master’s degree in Mantova, working on my thesis, and I am seeking a position as an architect or a paid internship to gain practical experience while contributing to a creative team.

My academic and professional background focuses on competition-based design, architectural processes, and design software, with a growing interest in historical contexts and technological survey techniques. International internships have helped me develop strong collaboration skills and adaptability in multidisciplinary environments.

I would be excited to contribute to your team and further grow as a designer. Thank you for considering my application—I look forward to hearing from you.

Sincerely,

Aslı Tekin

Soma Coal Mine Quarry, Turkey 2022 I Spring Term

Lisbon, Portugal 2024I Spring Term

Kop Van Zuid, Rotterdam, Netherlands 2020 I Fall Term

Baghere, Senegal 2022 I Architectural Competition

Rivalta Sul Mincio, Italy 2024 I Fall Term

Lyon, France, Lipstick Xanadu Architecture 2022-2023 I Project Conducted in the Office

Mantova, Italy, MULTICITI 2024-2025I Project Conducted in the

Data Bridge

Location: Soma,Turkey

Year: 2022 , Spring Term

Type of Project: Mixed -Use

The project is based on an analysis of understanding the abstract concept of DATA and trying to explain how it establishes a relational scheme with a local context. At this point, the project investigating the Data in the Soma mine and the reasons for the disconnection of our communication with this data, emphasizes that there is a gap between Data and the user and that this gap is recognized and bridged.

Diagrams about Different Communications

There is a gap between the user and DATA. The message in this communication is interrupted until it reaches us, who perceive the chaos, and we deviate from the important issues that concern us. We do not react. !

Soma mine is one of the biggest centers of this deafness regarding work accidents. While hundreds of people die every year, we remain deaf to this invisible data under the ground and normalize it. This detective story into the dark underground will lead users to discover and uncover problems.

“ THERE İS A GAP BETWEEN US AND DATA THAT NEEDS TO BE CLOSED ”

Bridging the GAP

Messages of DATA from a bridge that intersects with users. This communication will prevent blinding of individuals and masses.

Return and shortcuts with transaction channels

Movement along the shaft, from ground to the coal galleries
Vertical movements at machine stops
Random movement with pop-up stage

Most of the building is located underground. There are pockets radiating from the main channel to reach the hidden DATA in the different layers of the mine.

The Data researched with pop-up stages is recorded, processed, stored and published by attaching to machine stops.

Functional Program

1. Discourse Machine

01.antenna

02.union

03.preparation rooms

04.discussion stages

2. Virtual Machine

01. control rooms

02. labs and offices

03.workshops

04.pop-up stages

05.pop-up stations

3.Data Freezer Machine

01. library

02. archive

03.exhibition

4.Exploratory Machine

01. data registiration offices

02.documentation rooms

03.transaction channels

Dwelling within the Limit Line

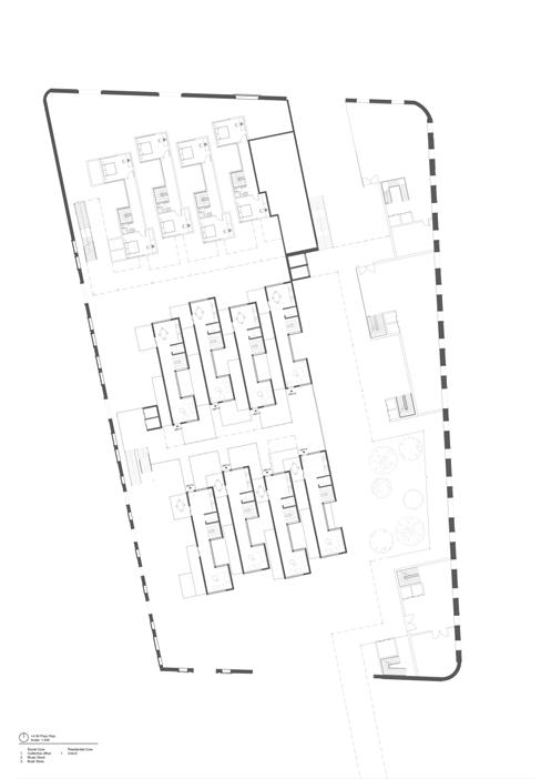
Location: Lisbon Portugal

Year: 2024 , Spring Term

Type of Project: Social Housing

This study employs a methodical approach to understanding Lisbon’s urban layout, emphasizing the revitalization of space through new urban typologies. By analyzing the interplay between the city’s scale and its buildings, established a robust theoretical framework. The investigation focused on the concept of “gates,” revealing Lisbon’s multi-layered structure that extends from the coastline to its hills.

The analysis showed how Lisbon’s topography, waterlines, infrastructure, and open spaces shape its urban development and identity. The placement of coast al “gates” highlights the need for thoughtful design in enhancing connectivity and sustainability.

The design envisions dividing the building complex into residential and social functions, alongside the addition of a bridge linking both parts of the city to foster engagement in the revitalized site.

Mass Model Study with Urban Fabric

Site Plan Scale: 1:500

In designing the residential area, a key consideration was the incorporation of existing building ruins’ characteristics, hazards, and historical significance.

By preserving all external walls, thereby visually and physically connecting the new residential spaces with the remnants of the past. This design strategy was crucial in preventing future abandonment.

Section C-C

1:200

Vertical mobility is supported by a steel structure that bifurcates into pathways for staircases and elevators, promoting accessibility whilebalancing social connectivity with individual privacy.

The integration of steel circulation features not only enhances community connectivity but also contributes to a sustainable living environment by visually linking neighborhoods.

This architectural decision promotes unified community life, harmonizing urban conveniences with natural surroundings and encouraging residents to engage actively with their environment. In response to Lisbon’s climate, the design of residential units prioritizes ground-floor patios, influencing unit layout and form to enhance community relationships. Careful planning of voids within each unit optimizes sunlight exposure, ensuring a distinctive quality of living and fostering a sense of privacy.

Section A-A Scale: 1:500
Section D-D Scale: 1:200
North Elevation Scale: 1:200
South Elevation Scale: 1:200
Scale:

Layers of the Coastline

Diferent
Section
Section
Section

Flexibility is a cornerstone of approach, with residential units designed to accommodate diverse living arrangements without fixed user types.

This adaptability supports inclusivity and diversity within the community, welcoming individuals, couples, and families alike for varying durations.

The urban bridge serves as a pivotal connection within the community, linking urban elements and city amenities on shared ground. This structure facilitates movement from the residential area to the coastline, creating unique opportunities for interaction and engagement.

Exploded Diagram for Existing Walls and Bridge Connection

This structure facilitates movement from the residential area to the coastline, creating unique opportunities for interaction and engagement.

Its design integrates various levels, above and below ground, enhancing accessibility and connectivity while fostering a strong sense of continuity with the urban and natural environment.

Adjacent to the river, a public pool strengthens the community’s connection to water bodies, while an integrated underground parking facility efficiently manages vehicle circulation and separates residential areas from urban infrastructure.

WAVE, Maritime Travel Museum

Location: Kop Van Zuid , Rotterdam, Netherlands

Year: 2020, Fall Term

Type of Project: Research and Media Center

Wave is a center that transfers and investigates the achievements of studies and developments on the history of maritime travel to human life. Examines the effects of research on human life in different fields and the contributions of research to other disciplines. This area, which has a commercial and cultural history, is one of the stopping points of hundreds of cruise ships every year. The project will bring together different uses and layers at this historical and current intersection stop and will take place in the memories of visitors as an unforgettable journey.

Site Plan : A design approach that connects the two ends of the river

The steel structure in the center connects all of these sections as a WEB.
Space between two main walls hosts an activity
Main walls create spaces at angles and positions to manage light and shadow.
Long Seciton

The building aimed to establish a connected social interaction ground between high-rise buildings on the ground.

In addition, in order to connect this disconnection, WEB not only keeps the spaces in the building together, but also regulates the circulation dispersed from the buildings in the area.

This point, which is the first stop for passengers disembarking from the cruise ship, is a gateway to the city and has venues such as exhibitions, conference halls and working spaces to host and interact with different events.

Axonometric View
East Facade

Children Hospital

Location: Baghere, Senegal

Year: 2022, Architecture Competition

Type of Project: Hospital

The active life of children in Baghere Village, interwined with the outdoors and nature, is often endangered by malnutrition at a very young age. Agains this, special treatment for the children and the education of the people is crucial. Children’s House is a safety point that shows the malnourished children that they are not alone.

to touch the green

Exploded Diagram Place Orientation and Daily Usage

Outer Layer (semi-open space)
Monumental Walls
Textiles from local
Level differance for ventilation
Bambu Pillars
Special transitions at child scale

The spaces are used as a treatment method in the healing of children with a permeable and transparent orientation. In the hospitality part, these areas meet the needs by creating different parts suitable for the conditions of the children, who are malnourished. Also, an open plan gives long clear pespectives inside the area to control daily affairs and increase the sense of togetherness

In addition to the monumental walls, the play area is like an extension of the big courtyard where parents can observe their children.

Its walls build and change by the children, which are also part of the healing and rehabilitation.

It shows a facade made by the hands of children on the south sid to those coming to the Children’s House as one of the strongest parts of ownership of the children.

Finally, the outer layer of the building, which was designed for air conditioning, also created a playground for the children and an alternative circulation axis.

1-Monumental walls
3- Subtracting for courtyards
4- Creating play area
2- Space Clustering
Section
View from Recreation Area

Repose Studio

Location: Rivalta Sul Mincio, Italy

Year: 2024 , Fall Term

Type of Project: Healing Center and Yoga Studio

This project was developed with a focus on sustainability, guided by the climatic conditions of Rivalta sul Mincio. The research phase involved the selection of appropriate materials and construction techniques that respond to the local environmental context. The intervention is based on the adaptive reuse of a pre-existing workshop complex. A former hay storage building has been thoughtfully transformed into a yoga studio, maintaining its rural essence while introducing contemporary functionality.

Suitable surfaces for photovoltaic system in building is only south side of the roof (colored by red) and its maximum effect can be seen from Solar Radiation Analysis .

The integration of solar panels was based on a calculation of the building’s energy consumption, taking into account its function, floor area, and construction materials.

On the winter solstice in Rivalta sul Mincio, the sun rises at around 7:50 AM and sets at approximately 4:37 PM, providing about 8 hours and 47 minutes of daylight.

On the summer solstice in Rivalta sul Mincio, the sun rises at 5:27 AM and sets at around 9:09 PM, providing approximately 15 hours and 42 minutes of daylight.

By considering the analysis, 16 photovoltaic panel integrated to the south side of the building .

Solar Irradiation Analysis & Integration of Sun Panels
WINTER SOLSTICE - 21 DECEMBER
Integration of 16 Solar Panel
Positions of the Solar Panels
Solar Irradiations on the Building
SUMMER SOLSTICE - 21 JUNE

Section B-B , 1:50

The building is designed to function as a yoga studio, with the primary goal of creating a spacious and healthy environment through natural ventilation.

To achieve this, the design carefully considers both the flow of air and the quality of the space. Acoustic panles have been strategically integrated into the yoga studios to help control the room’s acoustics, ensuring sound clarity and minimizing unwanted reverberation.

This allows for a more peaceful and focused atmosphere, ideal for yoga practice.

The structure is designed to receive natural light exclusively from the north facade, a desicion that promotes consistent, diffused lighting throughout the day without the harshness of direct sunlight.

To further enhance the builidng’s natural light and overall comfort, a glazing roof system was incorporated, which allows for increased daylight penetration while maintaining energy efficiency.

Plan,

North Facade, 1:50
1:50

Detail 05, 1:20

02, 1:20

01, 1:20

Detail in Axonometrical Projection

polycarbonate
cross laminated timber panel
rigid reed panels

Section A-A, 1:20

Green House Effect

The building is designed to function as a yoga studio, with the primary goal of creating a spacious and healthy environment through natural

To achieve this, the design carefully considers both the flow of air and the quality of the space. Acoustic panels have been strategically integrated into the yoga studios to help control the room’s acoustics, ensuring sound clarity and minimizing unwanted reverberation. This allows for a more peaceful and focused atmosphere, ideal for yoga

The building is designed to function as a yoga studio, with the primary goal of creating a spacious and healthy environment through natural To achieve this, the design carefully considers both the flow of air and the quality of the space. Acoustic panels have been strategically integrated into the yoga studios to help control the room’s acoustics, ensuring sound clarity and minimizing unwanted reverberation. This allows for a more peaceful and focused atmosphere, ideal for yoga

The structure is designed to receive natural light exclusively from the north facade, a decision that promotes consistent, diffused lighting throughout the day without the harshness of direct sunlight. To further enhance the building’s natural light and overall comfort, a glazing roof system was incorporated, which allows for increased daylight penetration while maintaining energy efficiency.

The structure is designed to receive natural light exclusively from the north facade, a decision that promotes consistent, diffused lighting throughout the day without the harshness of direct sunlight. To further enhance the building’s natural light and overall comfort, a glazing roof system was incorporated, which allows for increased daylight penetration while maintaining energy efficiency.

The building is studio, with the spacious and healthy ventilation.

To achieve this, both the flow of Acoustic panels into the yoga studios acoustics, ensuring unwanted reverberation. peaceful and focused practice.

The structure is exclusively from promotes consistent, the day without To further enhance overall comfort, incorporated, which penetration while

Detail 03, 1:10

Detail 04, 1:10

Permeable Facade

Pediatric Pedopsy Center

Location: Lyon, France

Year: 2022-2023

Type of Project: Hospital

During the collaboration, I took part in massing, façade and interior design, as well as feasibility studies across various projects. I worked with all the architects at different stages and prepared final visuals for hospitals, schools, commercial centers, and pools. I was especially involved in the Pediatric Pedopsy Center, contributing to almost every phase—from exterior to interior design—by creating material configurations and visual representations.

In this project, an additional building design compatible with the existing structure was researched for a cancer unit to be added to the existing hospital.

In this competition project, we worked with Anouk Chabert and Nelly Julien mainly on Lumion and Revit programs.

In addition, the values that this office deals with in terms of architectural issues, such as integration on the ground floor, protection of existing plants and many more, have been a quality experience for me.

The architectural experience of a different country, besides my education and internship experiences in Turkey, had a great impact on me.

07

Revitalizing Housing Units

Location: Mantova, Italy

Year: 2024

Type of Project: Residential Building

The project was carried out in collaboration with the MULTICI office and involved redesigning the attic floor of an existing apartment building by dividing it into four separate units with new interior walls. The layout and size of these apartments were reconfigured, taking into account the existing windows and openings. Interior designs and spatial uses were then visualized accordingly.

Pianta
Progetto
Pianta del Quinto Piano , Pianta del Tetto, Tavolo da Metroquadrato
Arch. Massimo Arch. Asli
Progetto di ristrutturazione di attico in viale Piave a Mantova
Pianta piano terra, piano primo e piano secondo
Progetto a cura di
arch. Massimo Bonaffini arch. Asli Tekin
Progetto di Ristrutturazione di Attico in Viale Piave a Mantova
Prospettive Interne : Appartamento Tipo 1
Arch. Massimo Bonaffini
in viale Piave a Mantova
Progetto a cura
Progettazione

Turn static files into dynamic content formats.

Create a flipbook
Issuu converts static files into: digital portfolios, online yearbooks, online catalogs, digital photo albums and more. Sign up and create your flipbook.