interior design portfolio







WORKING DRAWING


![]()









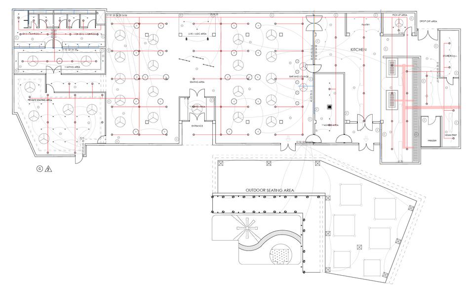
THIS THESIS PROJECT DELVES INTO THE REALM OF ADAPTIVE REUSE, FOCUSING ON THE TRANSFORMATION OF AN AGING WAREHOUSE/FACTORY, CONSTRUCTED IN THE 1980S, INTO A UNIQUE SEAFOOD RESTAURANT. BY EMBRACING PRINCIPLES OF SUSTAINABILITY AND INCORPORATING ECO-FRIENDLY, RECYCLED, AND UPCYCLED ELEMENTS THROUGHOUT THE DESIGN, THIS PROJECT SETS OUT TO SHOWCASE A REMARKABLE EXAMPLE OF TOTAL SUSTAINABILITY. MOREOVER, THE INTEGRATION OF ELEMENTS THAT SYMBOLIZE THE LIVES OF FISHERMEN AIMS TO PAY TRIBUTE TO THEIR SIGNIFICANT CONTRIBUTIONS TO SOCIETY.
THE ADAPTIVE REUSE OF THE OLD WAREHOUSE INTO A SEAFOOD RESTAURANT GOES BEYOND MERE ARCHITECTURAL REFURBISHMENT. IT REPRESENTS A
CONSCIENTIOUS EFFORT TO REPURPOSE AN EXISTING STRUCTURE, WHILE EMBODYING THE SPIRIT OF ENVIRONMENTAL RESPONSIBILITY AND RESOURCE
CONSERVATION. BY UTILIZING ECO-FRIENDLY MATERIALS AND IMPLEMENTING SUSTAINABLE PRACTICES, THE PROJECT AIMS TO MINIMIZE ENVIRONMENTAL
IMPACT AND SERVE AS AN INSPIRING MODEL FOR FUTURE ADAPTIVE REUSE ENDEAVORS.



THE PROPOSED DESIGN CONCEPT AIMS TO ACHIEVE SUSTAINABLE BUILDING PRACTICES THROUGH ADAPTIVE
REUSE STRATEGIES FOR AN INDUSTRIAL BUILDING. THE FOCUS IS ON INTEGRATING RECLAIMED OR SALVAGED
MATERIALS FROM DEMOLISHED OR REFURBISHED STRUCTURES INTO THE BUILDING'S INTERIOR. DESPITE THE LACK OF
AVAILABLE DRAWINGS DUE TO THE BUILDING'S AGE, THE PROJECT AIMS TO INCORPORATE SUSTAINABLE DESIGN
PRINCIPLES, PRESERVE THE BUILDING'S HISTORICAL AND ARCHITECTURAL VALUE, AND CREATE A FUNCTIONAL AND
VISUALLY APPEALING SPACE. THE SCOPE INCLUDES ASSESSING STRUCTURAL INTEGRITY, SOURCING RECLAIMED
MATERIALS, DESIGNING SUSTAINABLE INTERIOR COMPONENTS, AND COMPLYING WITH BUILDING CODES. THE
PRIMARY CHALLENGE IS THE UNAVAILABILITY OF ACCURATE DOCUMENTATION DUE TO THE BUILDING'S AGE.
THIS THESIS PROJECT ANALYZES THE CHALLENGES, STRATEGIES, AND OUTCOMES OF THE ADAPTIVE REUSE PROCESS
WITHIN THE CONTEXT OF AN INDUSTRIAL BOHO SEAFOOD RESTAURANT. BY EXAMINING DESIGN DECISIONS,
CONSTRUCTION TECHNIQUES, AND SUSTAINABLE FEATURES, THE RESEARCH AIMS TO CONTRIBUTE TO THE FIELD OF ADAPTIVE REUSE AND SUSTAINABLE DEVELOPMENT. IT SHOWCASES THE TRANSFORMATIVE POWER OF ADAPTIVE
REUSE IN CREATING A SUSTAINABLE SEAFOOD RESTAURANT WITH AN INDUSTRIAL BOHO CONCEPT, BLENDING
SUSTAINABILITY, CULTURAL APPRECIATION, AND AESTHETICS. THIS PROJECT REVITALIZES AN EXISTING STRUCTURE
WHILE CELEBRATING THE FISHING COMMUNITY'S CONTRIBUTIONS, AIMING TO INSPIRE FUTURE PROJECTS THAT EMBRACE SUSTAINABLE AND CULTURALLY RICH DESIGN.

THE INDUSTRIAL BOHO CONCEPT SERVES AS A BACKDROP FOR HIGHLIGHTING THE LIVES OF FISHERMEN AND THEIR INTEGRAL ROLE IN SOCIETY THROUGH THOUGHTFUL DESIGN CHOICES, THE RESTAURANT'S INTERIOR AND DECOR PAY HOMAGE TO THEIR RESILIENCE AND CONTRIBUTIONS ELEMENTS SUCH AS RECLAIMED WOOD, NAUTICAL-INSPIRED ARTWORK, AND VINTAGE FISHING TOOLS ADD DEPTH AND AUTHENTICITY, FOSTERING A DEEPER APPRECIATION FOR THE FISHING COMMUNITY'S CULTURE AND HERITAGE















TABLES
FLEXIBLE, CAN AGGREGATE FOR LARGER GROUPS, AND IDEAL IN OPEN ROOMS AND PATIOS.

HIGH TOPS AND BARS DIFFICULT TO ADAPT UNDER NEW DISTANCING GUIDELINES AND GROWS THE RISK OF CONTAMINATION OF EXCHANGE ZONES.
BANQUET
IDEAL ALONG LONG WALLS, CAN AGGREGATE FOR LARGER GROUPS,





REUSED WICKER BASKETS
UPCYCLED JUTE SACK

ROPE(COIR) FENCE
REUSED WICKER BASKETS
REUSING WICKER BASKETS CAN BE A SUSTAINABLE PRACTICE BECAUSE IT GIVES THE BASKETS A SECOND LIFE, DIVERTING THEM FROM ENDING UP IN LANDFILLS. IT PAYS HOMAGE TO THE FISHING COMMUNITY, WICKER BASKETS HAVE A LONG HISTORY OF BEING USED IN THE FISHING INDUSTRY FOR TASKS LIKE CARRYING FISH OR STORING FISHING GEAR. BY REUSING THESE BASKETS, IT CAN HELP TO PRESERVE THE CULTURAL HERITAGE AND TRADITIONS OF THE FISHING COMMUNITY.
BAMBOO
BAMBOO IS A HIGHLY SUSTAINABLE MATERIAL BECAUSE IT REQUIRES MINIMAL RESOURCES TO GROW AND IS REPLENISHED MUCH MORE QUICKLY THAN OTHER MATERIALS, MAKING IT A HIGHLY RENEWABLE RESOURCE.
UPCYCLED JUTE SACK
JUTE IS A HIGHLY SUSTAINABLE MATERIAL THAT REQUIRES MINIMAL FERTILIZERS AND PESTICIDES AND IS FAST-GROWING. UPCYCLING JUTE PROMOTES SUSTAINABLE PRACTICES AND REDUCES THE ENVIRONMENTAL IMPACT OF WASTE DISPOSAL.
ROPE(COIR) FENCE
COIR IS A BYPRODUCT OF THE COCONUT INDUSTRY, REDUCING WASTE AND PROMOTING THE USE OF ALL PARTS OF THE COCONUT TREE. IT HAS A VARIETY OF APPLICATIONS AND ITS NATURAL STRENGTH AND BEAUTY MAKE IT A GREAT CHOICE FOR ECO-CONSCIOUS INTERIORS.
NATURAL CANE CEILING LIGHT LAMP SHADE
UPCYCLED SHIP'S WHEEL WITH LOGO

REFURBISHED WINDOW TO TABLE-TOP




TERRACOTTA WALL TILES
TERRACOTTA WALL TILES ARE SUSTAINABLE AND ECO-FRIENDLY AS THEY ARE MADE FROM NATURAL CLAY, WHICH IS RENEWABLE AND ABUNDANT. THEY ARE DURABLE, HAVE A UNIQUE AESTHETIC, AND CAN BE USED IN A VARIETY OF SETTINGS. THE PRODUCTION PROCESS IS RELATIVELY SIMPLE, REQUIRING MINIMAL ENERGY AND RESOURCES, AND THE TILES ARE RECYCLABLE, FURTHER REDUCING WASTE.


NATURAL CANE CEILING LIGHT LAMP SHADE
NATURAL CANE IS A SUSTAINABLE MATERIAL DERIVED FROM THE RATTAN PLANT, A FAST-GROWING TROPICAL VINE. IT REQUIRES MINIMAL ENERGY AND WATER TO PRODUCE AND IS BIODEGRADABLE AND COMPOSTABLE. IT SUPPORTS SUSTAINABLE ECONOMIC DEVELOPMENT AND REDUCES THE ENVIRONMENTAL IMPACT OF SYNTHETIC MATERIALS.
UPCYCLED SHIP'S WHEEL
A SHIP'S WHEEL AS A DECORATIVE ELEMENT ADDS A UNIQUE AND INTERESTING TOUCH, PROMOTING SUSTAINABLE DESIGN AND REDUCING THE ENVIRONMENTAL IMPACT OF USING NEW MATERIALS. IT ALSO ADDS A TOUCH OF THE WHARF WHERE THE SHIPS ARE DOCKED.



REUSED DOOR
REUSING A DOOR INSTEAD OF PURCHASING A NEW ONE REDUCES THE NEED FOR ADDITIONAL RESOURCES AND ENERGY REQUIRED TO MANUFACTURE A NEW DOOR.
PORCELAIN TILES
PORCELAIN TILES ARE SUSTAINABLE AND ECO-FRIENDLY, MADE FROM NATURAL MATERIALS AND HIGHLY DURABLE. THE PRODUCTION PROCESS IS DESIGNED TO MINIMIZE WASTE AND ENERGY CONSUMPTION, AND THE TILES ARE RECYCLABLE, SUPPORTING A CIRCULAR ECONOMY.

UPCYCLED FISHING BOAT
UPCYCLED BEER BARREL
BEER BARRELS ARE OFTEN MADE OF OAK, WHICH IS A DURABLE AND LONG-LASTING MATERIAL, MAKING THEM IDEAL FOR UPCYCLING INTO FURNITURE.
UPCYCLED FISHING BOAT





REUSED CHINESE NET





WITH A CHANGING ENVIRONMENT WE NEED A BETTER CONNECTIVITY, A
CORPORATE OFFICE ISN'T A SETUP OF FURNISHINGS AND ELECTRONICS. IT'S A
WORKPLACE. MANAGING SPACE IS IMPORTANT, BECAUSE IT IS PURPOSEFUL AND EFFECTIVE. TARGETING THE QUANTITY OF WORKERS WITHIN THE OFFICE. THIS DESIGN IS FOR MINIMUM 80 PERSONS TO MAXIMUM 150 PERSONS CAPACITY. THE SPACE WILL BE DESIGNED USING COMFORTABLE FURNITURE FOR THE COMFORT
OF THE EMPLOYEES. GIVEN THE LARGE OPENINGS IN THE SITE, USE OF NATURAL LIGHT WILL BE THE BEST. AN OPEN PLAN LAYOUT WILL HELP TO USE THE SPACE TO THE FULLEST. THE DESIGN WILL BE PROVIDING PRIVACY TO HIGHER AUTHORITIES OF THE OFFICE..
THE USAGE OF GEOMETRY IN INTERIOR DESIGN IS ALL ABOUT CREATING SHAPES AND LINES AND EMOTIONS THAT ARE IMPACTFUL AS WELL AS ENDEARING. IT IS A CLEVER AND AESTHETIC TECHNIQUE
TO ADD CHARACTER TO ANY ROOM AND IS SURE TO BE A CONVERSATION STARTER. THE REASON
SUCH A CONCEPT IS CHOSEN FOR A CORPORATE OFFICE IS THE BRING PLAYFULNESS AND LIFE TO A, TRADITIONALLY, BORING SPACE.






A FLOOR PLAN OF A CORPORATE OFFICE WITH GEOMETRY AS A DESIGN CONCEPT
WOULD PRIORITIZE CLEAN LINES, SHARP ANGLES, AND SYMMETRY. THE USE OF


GEOMETRIC SHAPES, SUCH AS SQUARES, TRIANGLES, AND CIRCLES, WOULD BE
INCORPORATED INTO THE LAYOUT OF THE OFFICE TO CREATE A COHESIVE AND VISUALLY STRIKING DESIGN.
IN ADDITION TO THE LAYOUT, GEOMETRIC DESIGN IS ALSO INCORPORATED INTO THE SELECTION OF MATERIALS AND FURNISHINGS. FOR EXAMPLE, THE USE OF
LINEAR LIGHT FIXTURES AND BOLD, ANGULAR FURNITURE COULD FURTHER ENHANCE THE GEOMETRIC DESIGN CONCEPT.
OVERALL, THE FLOOR PLAN OF THIS CORPORATE OFFICE WITH GEOMETRY AS A
DESIGN CONCEPT AIMS TO CREATE A VISUALLY STRIKING AND COHESIVE

WORKSPACE THAT PROMOTES ORDER, STRUCTURE, AND COLLABORATION.




















MATERIAL SPECIFICATION
THE COMPREHENSIVE WORKING DRAWINGS FOR A DISTINGUISHED
LUXURY HOME. THIS PROJECT SHOWCASES METICULOUS DESIGN AND SUPERIOR CRAFTSMANSHIP, WITH ALL FURNITURE AND FIXTURES MADE FROM HIGH-QUALITY STAINLESS STEEL.



DRY KITCHEN LAYOUT























THE INTERIOR DESIGN FOR THE BEACH-FACING APARTMENT IN MANGALORE CREATED A VACATION HOME WITH A BEACH HOUSE VIBE AND KOREAN MODERN STYLE. INSPIRED BY THE COASTAL SURROUNDINGS, THE DESIGN USED SOOTHING BLUES, NEUTRALS, AND WHITES FOR A SERENE AMBIANCE. MINIMALIST FURNITURE, CLEAN LINES, AND ORIENTAL ACCENTS REFLECTED THE WIFE'S LOVE FOR KOREAN DRAMA. THE DESIGN PRIORITIZED PRACTICALITY AND LOW MAINTENANCE, EMPHASIZING A SEAMLESS INDOOROUTDOOR CONNECTION WITH EXPANSIVE WINDOWS AND OUTDOOR SEATING AREAS. THE RESULT WAS A
HARMONIOUS BLEND OF BEACH HOUSE TRANQUILITY AND KOREAN ELEGANCE, PERFECT FOR VACATION GETAWAYS.






















THE FACADE DESIGN PROJECT FOR THE G+1 RESIDENCE IN MANGALORE FOCUSED ON INTEGRATING FULLY COVERED AND SECURED GRILLS FOR ALL BALCONY AREAS WHILE HARMONIZING WITH THE ARCHITECTURAL CONTEXT. THE PRIMARY OBJECTIVE WAS TO CRAFT BESPOKE GRILL DESIGNS THAT ENSURED SECURITY AND ENHANCED THE OVERALL AESTHETIC APPEAL OF THE BUILDING. THROUGH CAREFUL MATERIAL SELECTION AND ATTENTION TO DETAIL, THE AIM WAS TO CREATE A FACADE THAT SEAMLESSLY BLENDED WITH THE EXISTING ARCHITECTURAL STYLE WHILE MEETING THE FUNCTIONAL REQUIREMENTS OF DURABILITY, MAINTENANCE, AND ENERGY EFFICIENCY.


THE INTERIOR DESIGN OF THIS HOUSE COMPLEMENTED THE BESPOKE FACADE GRILLS. USING HIGH-QUALITY MATERIALS AND A NEUTRAL PALETTE WITH POPS OF COLOUR, IT CREATED A WARM, INVITING ATMOSPHERE WITH OPEN FLOOR PLANS AND LARGE WINDOWS FOR NATURAL LIGHT. LIVING AREAS FEATURED MODERN FURNITURE, WHILE THE KITCHEN AND DINING SPACES FOCUSED ON FUNCTIONALITY. BEDROOMS WERE SERENE WITH CALMING COLOURS AND AMPLE STORAGE; BATHROOMS COMBINED LUXURY WITH MODERN FIXTURES. SUSTAINABLE DESIGN ELEMENTS, INCLUDING ENERGY-EFFICIENT LIGHTING, ECO-FRIENDLY MATERIALS, AND SMART HOME TECHNOLOGY, ENSURED A COMFORTABLE, ECO-FRIENDLY LIVING ENVIRONMENT.







THIS RESIDENTIAL PROJECT IN UDUPI, KARNATAKA, FEATURES A FACADE THAT SEAMLESSLY BLENDS TRADITIONAL AND MODERN DESIGN ELEMENTS. THE USE OF LATERITE
STONE CLADDING REFLECTS THE REGION'S RICH HERITAGE WITH ITS DISTINCTIVE RED HUE AND DURABILITY. COMPLEMENTING THIS IS A SLEEK CURTAIN WALL SYSTEM THAT PROVIDES EXPANSIVE VIEWS AND AMPLE NATURAL LIGHT. THE COMBINATION OF THESE MATERIALS RESULTS IN A VISUALLY STRIKING AND CULTURALLY RESONANT FACADE, EXEMPLIFYING A HARMONIOUS BALANCE BETWEEN TRADITION AND MODERNITY.
The laterite stone offers warmth and authenticity, while the curtain wall adds a contemporary touch with its expansive glass panels. This interplay creates a dynamic and appealing aesthetic that respects local architectural history while embracing modern advancements. The design highlights the potential of integrating local materials with modern elements, fostering a sense of place and continuity. Through thoughtful execution, the facade stands as a symbol of harmony, reflecting Udupi's heritage and the vision of modern design.
issuu.com/ashnakhan__ ashnakhxn@gmail.com