Detailing and Working Drawings IDS60804

Page 1

REVISION TRACKING DRAWING LIST SHEET NAME REV DATE DESCRIPTION ISSUE IBP_DWD_AT_SOA_GF_01 SCHEDULE OF ACCOMODATION 00 24 NOVEMBER 2022 IBP_DWD_AT_SOP_GF_02 GROUND FLOOR SETTING OUT PLAN 02 24 NOVEMBER 2022 IBP_DWD_AT_FLP_GF_03 GROUND FLOOR FURNITURE LAYOUT PLAN 02 24 NOVEMBER 2022 IBP_DWD_AT_RCP_GF_04 GROUND FLOOR REFLECTED CEILING PLAN 01 24 NOVEMBER 2022 IBP_DWD_AT_ELP_GF_05 GROUND FLOOR ELECTRICAL AND LIGHTING PLAN 01 24 NOVEMBER 2022 IBP_DWD_AT_FFP_GF_06 GROUND FLOOR FLOOR FINISHES PLAN 00 24 NOVEMBER 2022 IBP_DWD_AT_SEC_GF_07 SECTION A-A 00 8 DECEMBER 2022 IBP_DWD_AT_BSP_PL_GF_08 BESPOKE LAYOUT PLAN 01 30 NOVEMBER 2022 IBP_DWD_AT_BSP_SEC_GF_09 BESPOKE SECTION A-A 01 30 NOVEMBER 2022 -IBP_DWD_AT_BSP_DT_GF_10 BESPOKE DETAIL 00 8 DECEMBER 2022 -IBP_DWD_AT_BQ_GF_11 BILL OF QUANTITIES 00 7 DECEMBER 2022 IBP_DWD_AT_BQ_GF_12 BILL OF QUANTITIES 00 7 DECEMBER 2022 IBP_DWD_AT_SOF_GF_13 SCHEDULE OF FINISHES 00 8 DECEMBER 2022 -IBP_DWD_AT_FFE_GF_14 SCHEDULE OF FURNITURE, FIXTURE AND EQUPMENT 00 8 DECEMBER 2022 IBP_DWD_AT_BSP_FN_GF_15 BESPOKE FINISHES 00 8 DECEMBER 2022 PHASE 1 PHASE 2 PHASE 3 1

SCHEDULE OF ACCOMMODATION

PAM CENTRE GROUND FLOOR (SEEDSPACE)

AREA NO. OF OCCUPANTS NO. OF ROOMS AREA OF ONE ROOM (M²) TOTAL AREA OF ROOM (M²)

ENTRANCE 2 1 34.64 34.64

REGISTRATION AREA 2 1 32.03 32.03

EXHIBITION 10 1 37.11 37.11 GENEBANK 5 1 29.38 29.38 DATA CENTRE 3 1 25.06 25.06 SEED SORTING STATION 3 1 37.07 37.07 ECOLOUNGE 8 1 116.42 116.42 LIFT LOBBY 3 1 19.80 19.80 EMERGENCY EXIT 2 2 4.47 8.94

OKU TOILET 1 1 2.31 2.31 W/C 5 4 1.84 7.36

STORAGE ROOM 1 7 0.77 5.41

ELECTRICAL ROOM 1 1 1.40 1.40

SUPPLY ROOM 1 1 1.34 1.34

JANITOR CLOSET 1 1 0.62 0.62

1

1500MM(W)x2100MM(H)SINGLEALUMINIUM SWINGDOORC/W3MM(THK)TEMPERED GLASS

400MM(W)x2100MM(H)SINGLESWINGGREY DOOR 620MM(W)x2100MM(H)DOUBLESWING GREYDOOR

800MM(W)x2100MM(H)SINGLESWINGGREY UPVCDOOR

CLIENT:

18,JalanSS25/34,TamanMayang,47301Petaling Jaya,Selangor. Tel0171928473 Emailreplant_team@gmail.com

RE:PLANTSDN.BHD. 206,JalanSS7,MeruIndustrial,47301Klang, Selangor. Tel0183847205 Emailbobbuilders@gmail.com

BOBBUILDERSSDN.BHD. 11,JalanUSJ2/6E,47600SubangJaya,Selangor. Tel0103849028 Emailadesigners@gmail.com

a"DESIGNERSSDN.BHD. 4,JalanSS12/34,47301PetalingJaya,Selangor. Tel0145394859 Emailqs_service@gmail.com

QSSERVICESDN.BHD.

EX.LIFTLOBBY 19.80m² DN SCALE1:150 SOP GF GROUNDFLOORSETTINGOUTPLAN NEWGENEBANK 29.38m² D1 DN A B C D E F G H I J 1 2 3 4 52483 3000 5900 6300 6892 6950 6730 6730 5780 4200 10210 1500 1630 7080 UP D2 D3 D2 D4 D8 EX.RECEPTION AREA 32.03m² RAMPDOWN UP D4 D4 D5 D6 D6 D7 D5 D9 D9 D10 D5 D4 D4 D4 D6 D4 D9 D9 EX.EMERGENCY EXIT 5.18m EX.W/C 1.84m EX.W/C 1.84m² EX.OKU TOILET 2.31m EX.W/C 1.84m EX.W/C 1.84m² EX.ELECTRICAL ROOM 1.40m EX.SUPPLY ROOM 1.34m EX.STORAGE 0.59m EX.STORAGE 0.50m EX.STORAGE 0.50m EX.JANITOR CLOSET 0.62m EX.STORAGE 1.09m EX.STORAGE 0.61m EX.STORAGE 0.74m EX.EMERGENCY EXIT 3.76m LEGEND SYMBOL DESCRIPTION 75MM(THK)PROPOSEDFIBERGLASS PARTITIONWALL 150MM(THK)PROPOSEDBRICKWALL 150MM(THK)EXISTINGBRICKWALL 150MM(THK)EXISTINGCONCRETEWALL DEMOLITION 35MM(THK)PROPOSEDALUMINIUMFRAME C/W3MM(THK)TEMPEREDGLASSSLIDING DOOR NEWEXHIBITIONAREA 37.11m² NEWDATACENTRE 25.06m² NEWECOLOUNGE 116.42m² NEW
²
² DOORLEGEND CODE DESCRIPTION
QTY 3 D1
D2 D3 D4 D5 D6 D7
D8
D9
D10
2 1 7 3 3 1 1 4 1 EX.STORAGE 1.38m DN LIFT LIFT SEC A SEC A NOTE: THISDRAWINGISCOPYRIGHTDRAWING.THEAUTHORIZED USERISTOCHECKALLDIMENSIONSONTHESITE.ONLY FIGUREDDIMENSIONTOBEWORKEDON.DISCREPANCIES MUSTBEREPORTEDIMMEDIATELYTOPARTNERSHIPBEFORE PROCESSING. ©COPYRIGHT NO.DESCRIPTION DATE 0
SEEDSORTING STATION 37.07m
EX.ENTRANCE 34.64m
1300MM(W)x2100MM(H)DOUBLEFIBERGLASS SWINGDOOR 900MM(W)x2100MM(H)SINGLEFIBERGLASS SWINGDOOR 600MM(W)x2100MM(H)SINGLESWINGGREY DOOR 650MM(W)x2100MM(H)SINGLEEMERGENCY DOORWITHGALVANIZEDSTEEL
480MM(W)x2100MM(H)SINGLESWINGGREY UPVCDOOR
350MM(W)x2100MM(H)SINGLESWINGGREY UPVCDOOR
ARCHITECT: INTERIORDESIGNCONSULTANT: QUANTITYSURVEYOR: PROJECTNAME: DRAWINGTITLE: CHECKEDBY: DRAWNBY: DATE:24NOVEMBER2022 SCALE:1:150 DRAWINGNO. REVNO. IBP_DWD_AT_SOP_GF_02
GROUNDFLOORSETTINGOUTPLAN MSTANSINAI ASHLEYTEWLIWEN 02
AS-BUILTINTERIORWORK OFPAMCENTRE

CLIENT:

18,JalanSS25/34,TamanMayang,47301Petaling Jaya,Selangor. Tel0171928473 Emailreplant_team@gmail.com

RE:PLANTSDN.BHD. 206,JalanSS7,MeruIndustrial,47301Klang, Selangor. Tel0183847205 Emailbobbuilders@gmail.com

BOBBUILDERSSDN.BHD. 11,JalanUSJ2/6E,47600SubangJaya,Selangor. Tel0103849028 Emailadesigners@gmail.com

a"DESIGNERSSDN.BHD. 4,JalanSS12/34,47301PetalingJaya,Selangor. Tel0145394859 Emailqs_service@gmail.com

QSSERVICESDN.BHD.

SEC A LIFTLOBBY 19.80m² DN DN SCALE1:150 FLP GF GROUNDFLOORFURNITURELAYOUTPLAN GENEBANK 29.38m² DN DP100 DP100 UP RECEPTIONAREA 32.03m² RAMPDOWN UP DP100 DP100 DP100 EMERGENCY EXIT 5.18m W/C 1.84m² W/C 1.84m OKU TOILET 2.31m W/C 1.84m W/C 1.84m ELECTRICAL ROOM 1.40m SUPPLYROOM 1.34m STORAGE 0.59m STORAGE 0.50m STORAGE 0.50m JANITOR CLOSET 0.62m STORAGE 1.09m STORAGE 0.61m STORAGE 0.74m EMERGENCY EXIT 3.76m BUILD-INFURNITURELEGEND EXHIBITIONAREA 37.11m² ECOLOUNGE 116.42m² SEEDSORTINGSTATION 37.07m² ENTRANCE 34.64m² LOOSEFURNITURELEGEND CODE DESCRIPTION CURVEDWHITEWOOLSOFAC/WLIGHTOAK WITHWHITEROUNDCOFFEETABLESET QTY 1 5400MM(L)IRREGULARSTAINLESSSTEEL RECEPTIONDESKC/WTEMPEREDGLASS 4 PARTITIONLEGEND CODE DESCRIPTION QTY 1 P1 150MM(THK)WHITEBRICKWALLINGLOSS FINISH STORAGE 1.38m CODE DESCRIPTION STAINLESSSTEELCAPSULEC/WGREEN TINTEDTEMPEREDGLASS STAINLESSSTEELCYLINDRICALSEEDBANK C/WGREENTINTEDTEMPEREDGLASS HALFCYLINDRICALGREENTINTED TEMPEREDGLASSC/W580MM(L)x800MM(H) x30MM(THK)SCREENPANEL QTY BF1 8 36 LF1 LF1 BF1 BF2 BF2 BF3 LF2 LF2 BF3 48 P1 DATACENTRE 25.06m² A B C D E F G H I J 1 2 3 4 52483 3000 5900 6300 6892 6950 6730 6730 5780 4200 10210 1500 1630 7080 LF2 LF2 LF2 BF3 BF3 LIFT LIFT SEC A NOTE: THISDRAWINGISCOPYRIGHTDRAWING.THEAUTHORIZED USERISTOCHECKALLDIMENSIONSONTHESITE.ONLY FIGUREDDIMENSIONTOBEWORKEDON.DISCREPANCIES MUSTBEREPORTEDIMMEDIATELYTOPARTNERSHIPBEFORE PROCESSING. ©COPYRIGHT NO.DESCRIPTION DATE 0
INTERIORDESIGNCONSULTANT: QUANTITYSURVEYOR: PROJECTNAME: DRAWINGTITLE: CHECKEDBY: DRAWNBY: DATE:24NOVEMBER2022
DRAWINGNO. REVNO. IBP_DWD_AT_FLP_GF_03 AS-BUILTINTERIORWORK OFPAMCENTRE GROUNDFLOORFURNITURELAYOUTPLAN MSTANSINAI ASHLEYTEWLIWEN 01
ARCHITECT:
SCALE:1:150

18,JalanSS25/34,TamanMayang,47301Petaling Jaya,Selangor. Tel0171928473 Emailreplant_team@gmail.com

RE:PLANTSDN.BHD. 206,JalanSS7,MeruIndustrial,47301Klang, Selangor. Tel0183847205 Emailbobbuilders@gmail.com

BOBBUILDERSSDN.BHD. 11,JalanUSJ2/6E,47600SubangJaya,Selangor. Tel0103849028 Emailadesigners@gmail.com

a"DESIGNERSSDN.BHD. 4,JalanSS12/34,47301PetalingJaya,Selangor. Tel0145394859 Emailqs_service@gmail.com

QSSERVICESDN.BHD.

LIFTLOBBY 19.80m² DN SCALE1:150 RCP GF GROUNDFLOORREFLECTEDCEILINGPLAN DN DP100 UP RECEPTIONAREA 32.03m² RAMPDOWN UP DP100 DP100 EMERGENCY EXIT 5.18m W/C 1.84m² W/C 1.84m OKU TOILET 2.31m W/C 1.84m W/C 1.84m ELECTRICAL ROOM 1.40m SUPPLYROOM 1.34m STORAGE 0.59m STORAGE 0.50m STORAGE 0.50m JANITOR CLOSET 0.62m STORAGE 1.09m STORAGE 0.61m STORAGE 0.74m EMERGENCY EXIT 3.76m CEILINGLEGEND EXHIBITIONAREA 37.11m² ENTRANCE 34.64m² LIGHTINGANDFIXTURELEGEND SYMBOL DESCRIPTION 150MM(DIA)6000KWHITEDOWNLIGHT QTY 6M(LENGTH) 100MM(W)6000KWHITEFLEXIBLESEAMLESS LIGHTLEDSTRIP 42 STORAGE 1.38m CODE DESCRIPTION 9MM(THK)WHITEPLASTERCEILINGWITH GLOSSFINISH 9MM(THK)WHITEFIBERGLASSACOUSTIC CEILINGPANEL QTY C1 254.98M²(AREA) C2 C1 C1 C1 C1 C2 C2 C2 C2 C2 C2 13.12M²(AREA) L1 5000KSTAINLESSSTEELDOUBLECIRCLE CHANDELIER 1 KELUAREMERGENCYSIGN 2 A B C D E F G H I J 1 2 3 4 52483 3000 5900 6300 6892 6950 6730 6730 5780 4200 10210 1500 1630 7080 DN LIFT LIFT CH3200 CH3200 CH3200 CH3200 CH3200 CH10400 CH6800 GENEBANK 29.38m² ECOLOUNGE 116.42m² SEEDSORTINGSTATION 37.07m² DATACENTRE 25.06m² SEC A SEC A NOTE: THISDRAWINGISCOPYRIGHTDRAWING.THEAUTHORIZED USERISTOCHECKALLDIMENSIONSONTHESITE.ONLY FIGUREDDIMENSIONTOBEWORKEDON.DISCREPANCIES MUSTBEREPORTEDIMMEDIATELYTOPARTNERSHIPBEFORE PROCESSING. ©COPYRIGHT NO.DESCRIPTION DATE 0
ARCHITECT: INTERIORDESIGNCONSULTANT: QUANTITYSURVEYOR: PROJECTNAME: DRAWINGTITLE: CHECKEDBY: DRAWNBY: DATE:24NOVEMBER2022 SCALE:1:150 DRAWINGNO. REVNO.
AS-BUILTINTERIORWORK OFPAMCENTRE
MSTANSINAI ASHLEYTEWLIWEN 01
CLIENT:
IBP_DWD_AT_RCP_GF_04
GROUNDFLOORREFLECTEDCEILINGPLAN

18,JalanSS25/34,TamanMayang,47301Petaling Jaya,Selangor. Tel0171928473 Emailreplant_team@gmail.com

RE:PLANTSDN.BHD. 206,JalanSS7,MeruIndustrial,47301Klang, Selangor. Tel0183847205 Emailbobbuilders@gmail.com

BOBBUILDERSSDN.BHD. 11,JalanUSJ2/6E,47600SubangJaya,Selangor. Tel0103849028 Emailadesigners@gmail.com

a"DESIGNERSSDN.BHD. 4,JalanSS12/34,47301PetalingJaya,Selangor. Tel0145394859 Emailqs_service@gmail.com

QSSERVICESDN.BHD.

LIFTLOBBY 19.80m DN SCALE1:150 ELP GF GROUNDFLOORELECTRICALANDLIGHTINGPLAN DN DP100 UP RECEPTIONAREA 32.03m² RAMPDOWN UP DP100 DP100 EMERGENCY EXIT 5.18m W/C 1.84m W/C 1.84m² OKU TOILET 2.31m² W/C 1.84m W/C 1.84m² ELECTRICAL ROOM 1.40m SUPPLYROOM 1.34m STORAGE 0.59m STORAGE 0.50m STORAGE 0.50m JANITOR CLOSET 0.62m STORAGE 1.09m STORAGE 0.61m STORAGE 0.74m EMERGENCY EXIT 3.76m EXHIBITIONAREA 37.11m² ENTRANCE 34.64m² STORAGE 1.38m C1 C1 C1 C1 C2 C2 C2 C2 C2 C2 LIGHTINGANDFIXTURELEGEND SYMBOL DESCRIPTION 150MM(DIA)6000KWHITEDOWNLIGHT QTY 2M(LENGTH) 100MM(W)6000KWHITEFLEXIBLESEAMLESS LIGHTLEDSTRIP 42 L1 5000KSTAINLESSSTEELDOUBLECIRCLE CHANDELIER 1 KELUAREMERGENCYSIGN 1 SWITCHESLEGEND SYMBOL DESCRIPTION DOUBLEGANGSWITCH QTY 9 SINGLEGANGSWITCH 6 TRIPLEGANGSWITCH 3 A B C D E F G H I J 1 2 3 4 52483 3000 5900 6300 6892 6950 6730 6730 5780 4200 10210 1500 1630 7080 DN LIFT LIFT CH3200 CH3200 CH3200 CH3200 CH3200 CH10400 CH6800 POWERSOCKET 19 GENEBANK 29.38m² ECOLOUNGE 116.42m² SEEDSORTINGSTATION 37.07m² DATACENTRE 25.06m² SEC A SEC A NOTE: THISDRAWINGISCOPYRIGHTDRAWING.THEAUTHORIZED USERISTOCHECKALLDIMENSIONSONTHESITE.ONLY FIGUREDDIMENSIONTOBEWORKEDON.DISCREPANCIES MUSTBEREPORTEDIMMEDIATELYTOPARTNERSHIPBEFORE PROCESSING. ©COPYRIGHT NO.DESCRIPTION DATE 0 CLIENT: ARCHITECT: INTERIORDESIGNCONSULTANT: QUANTITYSURVEYOR: PROJECTNAME: DRAWINGTITLE: CHECKEDBY: DRAWNBY: DATE:24NOVEMBER2022 SCALE:1:150 DRAWINGNO. REVNO. IBP_DWD_AT_ELP_GF_05 AS-BUILTINTERIORWORK OFPAMCENTRE GROUNDFLOORELECTRICALANDLIGHTINGPLAN MSTANSINAI ASHLEYTEWLIWEN 01

18,JalanSS25/34,TamanMayang,47301Petaling Jaya,Selangor. Tel0171928473 Emailreplant_team@gmail.com

RE:PLANTSDN.BHD. 206,JalanSS7,MeruIndustrial,47301Klang, Selangor. Tel0183847205 Emailbobbuilders@gmail.com

BOBBUILDERSSDN.BHD. 11,JalanUSJ2/6E,47600SubangJaya,Selangor. Tel0103849028 Emailadesigners@gmail.com

a"DESIGNERSSDN.BHD. 4,JalanSS12/34,47301PetalingJaya,Selangor. Tel0145394859 Emailqs_service@gmail.com

QSSERVICESDN.BHD.

LIFTLOBBY 19.80m² DN SCALE1:150 FFP GF GROUNDFLOORFLOORFINISHESPLAN DN DP100 UP RECEPTIONAREA 32.03m² RAMPDOWN UP DP100 DP100 EMERGENCY EXIT 5.18m W/C 1.84m W/C 1.84m OKU TOILET 2.31m W/C 1.84m W/C 1.84m ELECTRICAL ROOM 1.40m SUPPLYROOM 1.34m STORAGE 0.59m STORAGE 0.50m STORAGE 0.50m JANITOR CLOSET 0.62m STORAGE 1.09m STORAGE 0.61m STORAGE 0.74m EMERGENCY EXIT 3.76m FLOORFINISHESLEGEND EXHIBITIONAREA 37.11m² ENTRANCE 34.64m² PARTITIONLEGEND CODE DESCRIPTION QTY 1 P1 150MM(THK)WHITEBRICKWALLINGLOSS FINISH STORAGE 1.38m CODE DESCRIPTION 250MM(THK)EXPOSEDCONCRETEFLOOR SLAB 600MM(L)x600MM(W)x10MM(THK)GREY PORCELAINTILESINMATTEFINISH GRASS AREA F1 13.12M² P1 A B C D E F G H I J 1 2 3 4 52483 3000 5900 6300 6892 6950 6730 6730 5780 4200 10210 1500 1630 7080 DN LIFT LIFT F2 F3 F4 100MM(THK)STAINLESSSTEELPLATFORMIN CHROMEPLATINGFINISH 21.97M² 65.43M² 183.67M² F1 F1 F1 F1 F1 F1 F1 F2 F2 F2 F2 F3 F3 F3 F3 F4 F4 F4 F4 GENEBANK 29.38m² ECOLOUNGE 116.42m² SEEDSORTINGSTATION 37.07m² DATACENTRE 25.06m² SEC A SEC A NOTE: THISDRAWINGISCOPYRIGHTDRAWING.THEAUTHORIZED USERISTOCHECKALLDIMENSIONSONTHESITE.ONLY FIGUREDDIMENSIONTOBEWORKEDON.DISCREPANCIES MUSTBEREPORTEDIMMEDIATELYTOPARTNERSHIPBEFORE PROCESSING. ©COPYRIGHT NO.DESCRIPTION DATE 0
INTERIORDESIGNCONSULTANT: QUANTITYSURVEYOR: PROJECTNAME: DRAWINGTITLE: CHECKEDBY: DRAWNBY: DATE:24NOVEMBER2022 SCALE:1:150 DRAWINGNO. REVNO. IBP_DWD_AT_FFP_GF_06 AS-BUILTINTERIORWORK OFPAMCENTRE GROUNDFLOORFLOORFINISHESPLAN MSTANSINAI ASHLEYTEWLIWEN 00
CLIENT: ARCHITECT:

CLIENT:

18,JalanSS25/34,TamanMayang,47301Petaling Jaya,Selangor. Tel0171928473 Emailreplant_team@gmail.com

RE:PLANTSDN.BHD. 206,JalanSS7,MeruIndustrial,47301Klang, Selangor. Tel0183847205 Emailbobbuilders@gmail.com

BOBBUILDERSSDN.BHD. 11,JalanUSJ2/6E,47600SubangJaya,Selangor. Tel0103849028 Emailadesigners@gmail.com

a"DESIGNERSSDN.BHD. 4,JalanSS12/34,47301PetalingJaya,Selangor. Tel0145394859 Emailqs_service@gmail.com

QSSERVICESDN.BHD.

SCALE1:200 SEC A SECTIONA-A
SEVENTHFLOORLEVEL ROOFTOPLEVEL ROOFLEVEL A B C D E F G H I J 52483 3000 5900 6300 6892 6950 6730 6730 5780 4200 BASEMENTLEVEL LIFT LIFTLOBBY RECEPTIONAREA EXHIBITIONAREA GENEBANK ECOLOUNGE SEEDSORTING STATION DATACENTRE SEED TRANSPORTING STATION CO+LAB SEEDCOLLECTING STATION OFFICE OFFICE OFFICE OFFICE OFFICE OFFICE OFFICE OFFICE OFFICE OFFICE OFFICE SEED STORAGE SEED GARDEN CEILINGLEGEND CODE DESCRIPTION 9MM(THK)WHITEPLASTERCEILINGWITH GLOSSFINISH 9MM(THK)WHITEFIBERGLASSACOUSTIC CEILINGPANEL C1 C2 FLOORFINISHESLEGEND PARTITIONLEGEND CODE DESCRIPTION P1 150MM(THK)WHITEBRICKWALLINGLOSS FINISH CODE DESCRIPTION 250MM(THK)EXPOSEDCONCRETEFLOOR SLAB 600MM(L)600MM(W)x10MM(THK)GREY
GRASS F1 F2 F3 F4 100MM(THK)STAINLESSSTEELPLATFORMIN
LOOSEFURNITURELEGEND CODE DESCRIPTION CURVEDWHITEWOOLSOFAC/WLIGHTOAK
5400MM(L)IRREGULARSTAINLESSSTEEL
CODE
BF1 LF1
CODE
W1 C1 C1 C1 W1 W1 W1 W1 W1 F1 F1 F1 F1 F3 F3 F4 P1 BF1 BF1 BF2 BF2 BF2 BF3 BF3 BF3 LF1 LF2 LF2 LF2 LF2 36750 3950 3600 3600 3600 3600 3600 3600 3600 3600 4000 NOTE: THISDRAWINGISCOPYRIGHTDRAWING.THEAUTHORIZED USERISTOCHECKALLDIMENSIONSONTHESITE.ONLY FIGUREDDIMENSIONTOBEWORKEDON.DISCREPANCIES MUSTBEREPORTEDIMMEDIATELYTOPARTNERSHIPBEFORE PROCESSING. ©COPYRIGHT NO.DESCRIPTION DATE 0
GROUNDFLOORLEVEL FIRSTFLOORLEVEL SECONDFLOORLEVEL THIRDFLOORLEVEL FOURTHFLOORLEVEL FIFTHFLOORLEVEL SIXTHFLOORLEVEL
PORCELAINTILESINMATTEFINISH
CHROMEPLATINGFINISH BUILD-INFURNITURELEGEND
WITHWHITEROUNDCOFFEETABLESET
RECEPTIONDESKC/WTEMPEREDGLASS
DESCRIPTION STAINLESSSTEELCAPSULEC/WGREEN TINTEDTEMPEREDGLASS STAINLESSSTEELCYLINDRICALSEEDBANK C/WGREENTINTEDTEMPEREDGLASS HALFCYLINDRICALGREENTINTED TEMPEREDGLASSC/W580MM(L)x800MM(H) 30MM(THK)SCREENPANEL
BF2 BF3 LF2 WALLLEGEND
DESCRIPTION WHITECOTTONPAINTBRICKWALLINGLOSS FINISH
ARCHITECT: INTERIORDESIGNCONSULTANT: QUANTITYSURVEYOR: PROJECTNAME: DRAWINGTITLE: CHECKEDBY: DRAWNBY: DATE:8DECEMBER2022 SCALE:1:200 DRAWINGNO. REVNO. IBP_DWD_AT_SEC_GF_07 AS-BUILTINTERIORWORK OFPAMCENTRE SECTIONA-A MSTANSINAI ASHLEYTEWLIWEN 00

Ø4090MMx50MM(THK)STAINLESS STEELPLATFORMINCHROMEPLATED FINISH

Ø3300MMx50MM(THK)STAINLESS STEELPLATFORMINCHROMEPLATED FINISH

Ø40MMELECTROLUMINESCENTWIRE FORMTOTHESHAPEASPERDESIGN

Ø550MMx180MM(H)STAINLESSSTEEL CYLINDRICALTOPINCHROMEPLATEDFINISH C/WØ560MMx35MM(THK)LEDSTRIPLIGHT

Ø1050MMx35MM(THK)STAINLESSSTEEL TABLETOPINCHROMEPLATEDFINISH

Ø25MMSTAINLESSSTEELSTRUCTUREIN POLISHEDFINISHFORMTOTHESHAPEAS PERDESIGN

Ø1485MMx610MM(H)STAINLESSSTEEL DOMEINCHROMEPLATEDFINISH

CHROMEPLATEDFINISH

CLIENT:

18,JalanSS25/34,TamanMayang,47301Petaling Jaya,Selangor. Tel0171928473 Emailreplant_team@gmail.com

RE:PLANTSDN.BHD. 206,JalanSS7,MeruIndustrial,47301Klang, Selangor. Tel0183847205 Emailbobbuilders@gmail.com

BOBBUILDERSSDN.BHD. 11,JalanUSJ2/6E,47600SubangJaya,Selangor. Tel0103849028 Emailadesigners@gmail.com

a"DESIGNERSSDN.BHD. 4,JalanSS12/34,47301PetalingJaya,Selangor. Tel0145394859 Emailqs_service@gmail.com

QSSERVICESDN.BHD.

SCALE1:25 BSP PL BESPOKELAYOUTPLAN 3890 4090 1485 560 140
NOTE: THISDRAWINGISCOPYRIGHTDRAWING.THEAUTHORIZED USERISTOCHECKALLDIMENSIONSONTHESITE.ONLY FIGUREDDIMENSIONTOBEWORKEDON.DISCREPANCIES MUSTBEREPORTEDIMMEDIATELYTOPARTNERSHIPBEFORE PROCESSING. ©COPYRIGHT NO.DESCRIPTION DATE 0
Ø140MMSTAINLESSSTEELPLATFORMIN
3300 1870
DRAWINGTITLE: CHECKEDBY: DRAWNBY: DATE:30NOVEMBER2022 SCALE:1:25
REVNO.
ARCHITECT: INTERIORDESIGNCONSULTANT: QUANTITYSURVEYOR: PROJECTNAME:
DRAWINGNO.
IBP_DWD_AT_BSP_PL_GF_08
01
AS-BUILTINTERIORWORK OFPAMCENTRE BESPOKELAYOUTPLAN MSTANSINAI ASHLEYTEWLIWEN

Ø4090MMx610MM(H)STAINLESSSTEEL DOMEINCHROMEPLATEDFINISH

Ø140MMSTAINLESSSTEELPLATFORMIN CHROMEPLATEDFINISH

Ø550MMx180MM(H)STAINLESSSTEEL CYLINDRICALTOPINCHROMEPLATEDFINISH C/WØ560MMx35MM(THK)LEDSTRIPLIGHT

Ø210MMx1000MM(H)x3MM(THK)TEMPERED GLASSTUBEINGREENTINTEDFINISH

Ø25MMSTAINLESSSTEELSTRUCTUREIN POLISHEDFINISHFORMTOTHESHAPEAS PERDESIGN

Ø40MMELECTROLUMINESCENTWIREFORM TOTHESHAPEASPERDESIGN

Ø140MMSTAINLESSSTEELPIPEINPOLISHED FINISHFORMTOTHESHAPEASPERDESIGN

Ø345MMx240MM(H)STAINLESSSTEEL DOMEINPOLISHEDFINISH

Ø345MMx900MM(H)x3MM(THK)TEMPERED GLASSTUBEINGREENTINTEDFINISH

Ø1050MMx35MM(THK)STAINLESSSTEEL TABLETOPINCHROMEPLATEDFINISH

Ø150MMSTAINLESSSTEELTUBEIN CHROMEPLATEDFINISH

Ø4090MMx50MM(THK)STAINLESS STEELPLATFORMINCHROMEPLATED FINISH

18,JalanSS25/34,TamanMayang,47301Petaling Jaya,Selangor. Tel0171928473 Emailreplant_team@gmail.com

RE:PLANTSDN.BHD. 206,JalanSS7,MeruIndustrial,47301Klang, Selangor. Tel0183847205 Emailbobbuilders@gmail.com

BOBBUILDERSSDN.BHD. 11,JalanUSJ2/6E,47600SubangJaya,Selangor. Tel0103849028 Emailadesigners@gmail.com

a"DESIGNERSSDN.BHD. 4,JalanSS12/34,47301PetalingJaya,Selangor. Tel0145394859 Email:qs_service@gmail.com

QSSERVICESDN.BHD.

SEC
4090
SCALE1:25 BSP
BESPOKESECTIONA-A 5200
610 2030 2560 1485 1302 1302 1000 180 900 140 150
NOTE: THISDRAWINGISCOPYRIGHTDRAWING.THEAUTHORIZED USERISTOCHECKALLDIMENSIONSONTHESITE.ONLY FIGUREDDIMENSIONTOBEWORKEDON.DISCREPANCIES MUSTBEREPORTEDIMMEDIATELYTOPARTNERSHIPBEFORE PROCESSING. ©COPYRIGHT NO.DESCRIPTION DATE 0 CLIENT: ARCHITECT: INTERIORDESIGNCONSULTANT: QUANTITYSURVEYOR: PROJECTNAME: DRAWINGTITLE: CHECKEDBY: DRAWNBY:
SCALE:1:25
ASHLEYTEWLIWEN 01
IBP_DWD_AT_BSP_DT_GF_10
DATE:30NOVEMBER2022
DRAWINGNO. REVNO. IBP_DWD_AT_BSP_SEC_GF_09 AS-BUILTINTERIORWORK OFPAMCENTRE BESPOKESECTIONA-A MSTANSINAI

CLIENT:

RE:PLANTSDN.BHD. 206,JalanSS7,MeruIndustrial,47301Klang, Selangor. Tel0183847205 Emailbobbuilders@gmail.com

BOBBUILDERSSDN.BHD. 11,JalanUSJ2/6E,47600SubangJaya,Selangor. Tel0103849028 Emailadesigners@gmail.com

QSSERVICESDN.BHD.

Ø195MMSTAINLESSSTEELUNION SOCKETINPOLISHEDFINISH Ø140MMSTAINLESSSTEELEQUAL ELBOWINPOLISHEDFINISH AS-BUILTINTERIORWORK OFPAMCENTRE

Ø40MMELECTROLUMINESCENT WIREFORMTOTHESHAPEASPER DESIGN BESPOKEDETAIL MSTANSINAI ASHLEYTEWLIWEN 00

195 DATE:8DECEMBER2022 SCALE:1:1 DRAWINGNO. REVNO. IBP_DWD_AT_BSP_DT_GF_10

140
SCALE1:1 BSP DT BESPOKEDETAIL NOTE: THISDRAWINGISCOPYRIGHTDRAWING.THEAUTHORIZED USERISTOCHECKALLDIMENSIONSONTHESITE.ONLY FIGUREDDIMENSIONTOBEWORKEDON.DISCREPANCIES MUSTBEREPORTEDIMMEDIATELYTOPARTNERSHIPBEFORE PROCESSING. ©COPYRIGHT NO.DESCRIPTION DATE 0
Ø195MMSTAINLESSSTEELVALVE SOCKETINCHROMEPLATEDFINISH ARCHITECT: INTERIORDESIGNCONSULTANT: QUANTITYSURVEYOR: PROJECTNAME: DRAWINGTITLE: CHECKEDBY: DRAWNBY:
18,JalanSS25/34,TamanMayang,47301Petaling Jaya,Selangor. Tel0171928473 Emailreplant_team@gmail.com
a"DESIGNERSSDN.BHD. 4,JalanSS12/34,47301PetalingJaya,Selangor. Tel0145394859 Email:qs_service@gmail.com
GENEBANK STAINLESSSTEELCYLINDRICALSEEDBANK C/WGREENTINTEDTEMPEREDGLASS HALFCYLINDRICALGREENTINTEDTEMPERED GLASSC/W580MM(L)x800MM(H)x30MM(THK) SCREENPANEL 100MM(W)6000KWHITEFLEXIBLESEAMLESS LIGHTLEDSTRIP DULUXHIGHGLOSSPUREBRILLIANT WHITEPAINT 100MM(THK)STAINLESSSTEEL PLATFORMINCHROMEPLATINGFINISH LEGEND CODE DESCRIPTION FLOORFINISH CEILINGFINISH WALLFINISH LIGHTFIXTURE F C W L BUILD-INFURNITURE BF 250MM(THK)EXPOSEDCONCRETE FLOORSLAB STAINLESSSTEELCAPSULEC/WGREEN TINTEDTEMPEREDGLASS C1 F1 BF2 F4 BF1 BF3 L1

SCHEDULE OF FINISHES

PAM CENTRE GROUND FLOOR (SEEDSPACE)

CODE IMAGE DESCRIPTION AREA (SQM) LOCATION SUPPLIER

FLOOR FINISHES

F1 250MM (THK) EXPOSED CONCRETE FLOOR SLAB 183.67 WHOLE GROUND FLOOR

LAFARGE CONCRETE (MALAYSIA) SDN. BHD.

Level 1, Wisma YTL Cement, No, 2, Jalan Kilang 51/206, Seksyen 51, 46050 Petaling Jaya, Selangor.

F2 600MM (L) x 600MM (W) x 10MM (THK) GREY PORCELAIN TILES IN MATTE FINISH 13.12 OKU TOILET, W/C

GUOCERA TILE INDUSTRIES (MERU) SDN. BHD. No. 11832, Batu 5 Jalan Meru, Jalan Salleh, Meru, 41050 Klang, Selangor.

FLOOR DEPOT MALAYSIA

F3 SYNTHETIC GRASS CARPET 65.43 DATA CENTRE, ECOLOUNGE

92, Jalan Puteri 5/5, Bandar Puteri, 47100 Puchong, Selangor.

F4 100MM (THK) STAINLESS STEEL PLATFORM IN CHROME PLATING FINISH 21.97 EXHIBITION AREA, GENEBANK

WALL FINISHES

KM POLISHING INDUSTRIES SDN. BHD. Lot. 2, Jalan Industri Mas 5, Taman Mas Sepang, 47100 Puchong, Selangor.

CEILING FINISHES

MR PAINT SHOP SDN. BHD. No. 5, Jalan SS19/6, 47500 Subang Jaya, Selangor. C1

MR PAINT SHOP SDN. BHD. No. 5, Jalan SS19/6, 47500 Subang Jaya, Selangor.

SAINT-GOBAIN MALAYSIA SDN. BHD. No. 1, Jalan Sultan Mohamed 4, Kawasan Perindustrian Bandar Sultan Suleiman, 42000 Pelabuhan Klang, Selangor.

DULUX QUICK DRY GLOSS
W1 5L
WHITE COTTON PAINT 254.98 WHOLE GROUND FLOOR
DULUX HIGH GLOSS PURE
WHITE
5L
BRILLIANT
PAINT 254.98 WHOLE GROUND FLOOR
C2 1526MM (L) x 1203MM (W) x 9MM (THK) WHITE FIBERGLASS ACOUSTIC CEILING PANEL 13.12 OKU TOILET, W/C
1

SCHEDULE OF FIXTURES, FITTINGS AND EQUIPMENTS

L1 100MM (W) 6000K WHITE FLEXIBLE SEAMLESS LIGHT LED STRIP RM 6.00 / M 6M (LENGTH) EXHIBITION AREA, GENEBANK, DATA CENTRE, SEED SORTING STATION

OSRAM GROUP 11-A-6 & 11-B-6, Jalan PJU 1/42, Dataran Prima, (Block F1, 47301 Petaling Jaya, Selangor.

L2 ∅ 150MM 6000K WHITE DOWNLIGHT RM 19.80 42 GROUND FLOOR

ALFO LIGHTING SDN. BHD. 161, Jln Sungai Besi, Pudu, 57100 Kuala Lumpur, Wilayah Persekutuan Kuala Lumpur.

L3 5000K STAINLESS STEEL DOUBLE CIRCLE CHANDELIER RM 879.96 1 RECEPTION AREA

ALFO LIGHTING SDN. BHD. 161, Jln Sungai Besi, Pudu, 57100 Kuala Lumpur, Wilayah Persekutuan Kuala Lumpur.

L4 KELUAR EMERGENCY SIGN RM 59.50 2 EMERGENCY EXIT

SYARIKAT ECONLITE (MALAYSIA) SDN. BHD. 23, Jalan PJS 7/17, Bandar Sunway, 47500 Subang Jaya, Selangor.

S1

S3

SIMON ELECTRIC MALAYSIA 18, Jln PPU 3A, Pusat Teknologi Sinar, 47150 Puchong, Selangor.

SIMON ELECTRIC MALAYSIA 18, Jln PPU 3A, Pusat Teknologi Sinar, 47150 Puchong, Selangor.

SIMON ELECTRIC MALAYSIA 18, Jln PPU 3A, Pusat Teknologi Sinar, 47150 Puchong, Selangor.

SIMON ELECTRIC MALAYSIA 18, Jln PPU 3A, Pusat Teknologi Sinar, 47150 Puchong, Selangor.

PAM CENTRE GROUND FLOOR (SEEDSPACE)
CODE ITEMS SPECIFICATIONS PRICE UNIT (RM) QTY LOCATION SUPPLIER
SIMON E6 SERIES 1 GANG 1 WAY SWITCH RM 10.38 9 GROUND FLOOR
S2 SIMON E6 SERIES 2 GANG 1 WAY SWITCH RM 18.53 6 GROUND FLOOR
SIMON E6 SERIES 3 GANG 1 WAY SWITCH RM 26.00 3 GROUND FLOOR
S4 SIMON E6 SERIES 13A SWITCH SOCKET RM 16.40 19 GROUND FLOOR
1
ASSIGNMENT 2 : SUSTAINABLE EDUCATIONAL HUB DETAILING AND WORKING DRAWINGS (IDS60804) NAME : ASHLEY TEW LI WEN (GROUP 1) STUDENT ID : 0343533 TUTOR : MS FATIMAH SEMESTER : AUGUST 2022 PROGRAMME : BACHELOR OF ARTS (HONS) IN INTERIOR ARCHITECTURE
REVISION TRACKING DRAWING LIST SHEET NAME REV DATE DESCRIPTION ISSUE - INDIVIDUAL + GROUP PRECEDENT STUDY 01 22 SEPTEMBER 2022 -DWD_AT_FLP_01 EXISTING FIRST FLOOR FURNITURE LAYOUT PLAN 03 19 OCTOBER 2022 DWD_AT_SEC_02 SECTION A-A 03 19 OCTOBER 2022 -DWD_AT_EL_03 INTERNAL ELEVATION 01 19 OCTOBER 2022 -DWD_AT_BESP_PL_04 BESPOKE DETAIL PLAN 03 19 OCTOBER 2022 -DWD_AT_BESP_EL_05 BESPOKE DETAIL SIDE ELEVATION 03 19 OCTOBER 2022 DWD_AT_BESP_SEC_06 BESPOKE DETAIL SECTION B-B 02 19 OCTOBER 2022 -- INDIVIDUAL UBBL & FIRE REQUIREMENT 00 19 OCTOBER 2022 -- SCHEDULE OF ACCOMMODATION 01 6 OCTOBER 2022 DWD_G1_DS_07 DWD_G1_DS_08 DOOR SCHEDULES 01 13 OCTOBER 2022 -DWD_G1_WS_09 WINDOW SCHEDULE 02 13 OCTOBER 2022 -- SCHEDULE OF FINISHES 01 13 OCTOBER 2022 -- FIXTURE, FITTINGS & EQUIPMENT SCHEDULE 01 13 OCTOBER 2022 - INDIVIDUAL REFLECTION 00 19 OCTOBER 2022 - -
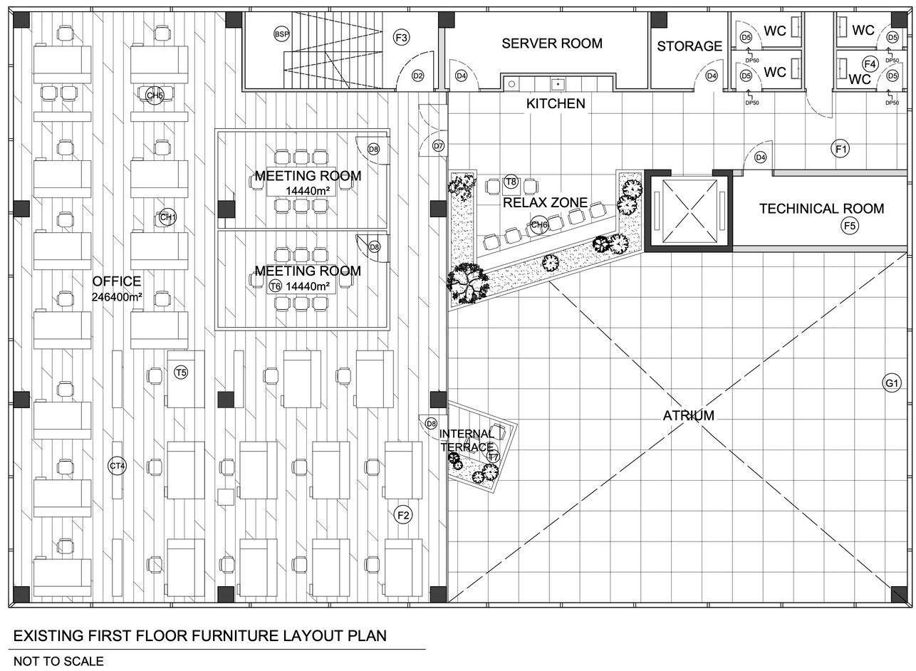
27390 6630 6630 6630 5898 17933 5955 6080 7500 EL 1 300MM (L) x 300MM (W) x 10MM(THK) BLACK PORCELAIN TILES IN MATTE FINISH 10MM (THK) TEMPERED GLASS WITH ALUMINIUM FRAME POWDER COATED IN BLACK PAINT G1 SEC A SEC A 1200MM (L) x 600MM (W) x 10MM(THK) GREY PORCELAIN TILES IN MATTE FINISH 10MM (THK) LIGHT BROWN OAK FLOORING IN FUMED FINISH LEGEND CODE DESCRIPTION D2SINGLE EMERGENCY EXIT DOOR D4ROOM DOOR D5 TOILET DOOR D7 DOUBLE GLASS DOOR D8SINGLE GLASS DOOR G1 WINDOW GLAZING WITH ALUMINIUM FRAME F1 F2 F5 F4 F3 F1GREY PORCELAIN TILES IN MATTE FINISH F2 OAK FLOORING FUMED IN LIGHT BROWN F3EXPOSED CONCRETE SLAB F4 BLACK PORCELAIN TILES IN MATTE FINISH F5CONCRETE SLAB IN POLISHED FINISH QTY 1 3 4 1 3 141 250MM(THK) CONCRETE SLAB IN POLISHED FINISH T5 CH1 CH5 CT4 T6 CH6 T7 T8 CH1ADELINE MESH BLACK OFFICE CHAIR CH5ADELINE MESH VISITOR OFFICE CHAIR CH6GREY PLATED RELAXATION CHAIR CT4SEMI SWINGING DOOR MEDIUM CABINET 34 4 10 6 T5 RECTANGULAR OFFICE TABLE WITH MOBILE PEDESTAL T6MELAMINE CHIPBOARD CONFERENCE TABLE T7GREY OUTDOOR TABLE T8BLACK SQUARE TABLE 20 2 1 1 T3 T3 MAPLE MELAMINE WOOD TABLE C/W BLACK EPOXY COATED HOLLOW MILD STEEL 2 NOTE: THIS DRAWING IS COPYRIGHT DRAWING. THE AUTHORIZED USER IS TO CHECK ALL DIMENSIONS ON THE SITE. ONLY FIGURED DIMENSION TO BE WORKED ON. DISCREPANCIES MUST BE REPORTED IMMEDIATELY TO PARTNERSHIP BEFORE PROCESSING. ©COPYRIGHT NO.DESCRIPTION DATE 0 CLIENT:ARCHITECT:INTERIOR DESIGN CONSULTANT:PROJECT NAME: DRAWING TITLE: CHECKED BY: DRAWN BY: DATE: 19 OCTOBER 2022 SCALE: 1:150 DRAWING NO. REV NO. EXISTING FIRST FLOOR FURNITURE LAYOUT PLAN FIRSTFLOORPLAN27SEPT2022 03 ASHLEY TEW LI WEN MS FATIMAH CIVIL & STRUCTURAL CONSULTANTS: AS-BUILT INTERIOR WORK OF DESIZO MONNI ADMINISTRATIVE BUILDING DWD_AT_FLP_01 FLP 01 EXISTING FIRST FLOOR FURNITURE LAYOUT PLAN SCALE: 1:150 1 2 3 4 AB C DE OFFICE 246400m² MEETING ROOM 14440m² MEETING ROOM 14440m² SERVER ROOM STORAGE TECHINICAL ROOM RELAX ZONE INTERNAL TERRACE ATRIUM KITCHEN WC WC D2D4 D4D5 D5 D5 D5 D4 D7 D8 BSP D8 D8 WC WC DP50 DP50 DP50 DP50

CT4

12.5MM (THK) AERATED GYPSUM PLASTERBOARD IN WHITE PAINT FINISH

10MM (THK) TEMPERED GLASS WITH ALUMINIUM FRAME POWDER COATED IN BLACK PAINT G1

1600MM (L) x 400MM (W) X 1310MM (H)

MELAMINE SEMI SWINGING DOOR MEDIUIM CABINET T3

1800MM (L) x 900MM (W) x 750MM (H) MAPLE MELAMINE WOOD TABLE C/W BLACK EPOXY COATED HOLLOW MILD STEEL

620MM (L) x 480MM (W) x 1040MM (H) ADELINE MESH MEDIUMBACK OFFICE CHAIR 10MM (THK) LIGHT BROWN OAK FLOORING IN FUMED FINISH

1500MM (L) x 700MM (W) x 750MM (H) MAPLE MELAMINE WOOD TABLE W/ POWDER COATED ALUMINUM STAND

FFL CH BASEMENT CH FFL GROUND FLOOR LEVEL FFL FIRST FLOOR LEVEL FFL SECOND FLOOR LEVEL FFL THIRD FLOOR LEVEL CH CH CH
27390
6630
7500 T5 CH1
6630
6630
NOTE: THIS DRAWING IS COPYRIGHT DRAWING. THE AUTHORIZED USER IS TO CHECK ALL DIMENSIONS ON THE SITE. ONLY FIGURED DIMENSION TO BE WORKED ON. DISCREPANCIES MUST BE REPORTED IMMEDIATELY TO PARTNERSHIP BEFORE PROCESSING. ©COPYRIGHT NO.DESCRIPTIONDATE 0 CLIENT:ARCHITECT:INTERIOR DESIGN CONSULTANT:PROJECT NAME: DRAWING TITLE: CHECKED BY: DRAWN BY: DATE: 19 OCTOBER 2022 SCALE: 1:150 DRAWING NO. REV NO. SECTION A-A FIRSTFLOORPLAN27SEPT2022 03 ASHLEY TEW LI WEN MS FATIMAH SEC A SECTION A-A SCALE: 1:150 CIVIL & STRUCTURAL CONSULTANTS: AS-BUILT INTERIOR WORK OF DESIZO MONNI ADMINISTRATIVE BUILDING DWD_AT_SEC_02 A C D E B UNDERGROUND PARKING SHOWROOM OFFICE OFFICE OFFICE ATRIUM INTERNAL TERRACE

4 3 OFFICE

10MM (THK) TEMPERED GLASS WITH ALUMINIUM FRAME POWDER COATED IN BLACK PAINT

1500MM (L) x 700MM (W) x 750MM (H) MAPLE MELAMINE WOOD TABLE W/ POWDER COATED ALUMINUM STAND

EL 1 INTERNAL ELEVATION SCALE: 1:50

2035 CLIENT:ARCHITECT:INTERIOR DESIGN CONSULTANT: CIVIL & STRUCTURAL CONSULTANTS: PROJECT NAME: DRAWING TITLE: CHECKED BY: DRAWN BY:

620MM (L) x 480MM (W) x 1040MM (H) ADELINE MESH MEDIUMBACK OFFICE CHAIR

AS-BUILT INTERIOR WORK OF DESIZO MONNI ADMINISTRATIVE BUILDING DWD_AT_EL_03

ASHLEY TEW LI WEN MS FATIMAH

750 DATE: 19 OCTOBER 2022 SCALE: 1:50 DRAWING NO. REV NO.

1600 INTERNAL ELEVATION FIRSTFLOORPLAN27SEPT2022 01

2780
FIRST FLOOR LEVEL
8686 2261 2131 2259
T2
920 1500 620
1600MM (L) x 400MM (W) X 1310MM (H) MELAMINE SEMI SWINGING DOOR MEDIUIM CABINET FIRST FLOOR CEILING LEVEL NOTE: THIS DRAWING IS COPYRIGHT DRAWING. THE AUTHORIZED USER IS TO CHECK ALL DIMENSIONS ON THE SITE. ONLY FIGURED DIMENSION TO BE WORKED ON. DISCREPANCIES MUST BE REPORTED IMMEDIATELY TO PARTNERSHIP BEFORE PROCESSING. ©COPYRIGHT NO.DESCRIPTION DATE 0

3500MM (L) x 40MM (THK) SOLID PINE WOOD HANDRAIL IN WAX FINISH

50MM (W) x 50MM (H) x 10MM (THK) ALUMINIUM FRAME POWDER COATED WITH BLACK PAINT

3500MM (L) x 40MM (THK) SOLID PINE WOOD HANDRAIL IN WAX FINISH

250MM (THK) EXPOSED CONCRETE SLAB

2400 1200 SEC B SEC B EL 2 6030 1467 1747 2816 1200 100
1 2 3 4 5 6 7 8 9 10 11 12 13 16 15 14 NOTE: THIS DRAWING IS COPYRIGHT DRAWING. THE AUTHORIZED USER IS TO CHECK ALL DIMENSIONS ON THE SITE. ONLY FIGURED DIMENSION TO BE WORKED ON. DISCREPANCIES MUST BE REPORTED IMMEDIATELY TO PARTNERSHIP BEFORE PROCESSING. ©COPYRIGHT NO.DESCRIPTION DATE 0 CLIENT:ARCHITECT:INTERIOR DESIGN CONSULTANT: CIVIL & STRUCTURAL CONSULTANTS: PROJECT NAME: DRAWING TITLE: CHECKED BY: DRAWN BY: DATE: 19 OCTOBER 2022 SCALE: 1:25 DRAWING NO. REV NO. BESPOKE DETAIL PLAN FIRSTFLOORPLAN27SEPT2022 03 ASHLEY TEW LI WEN MS FATIMAH AS-BUILT INTERIOR WORK OF DESIZO MONNI ADMINISTRATIVE BUILDING PL BSP BESPOKE DETAIL PLAN SCALE: 1:25 DWD_AT_BESP_PL_04 D2

65MM (THK) ALUMINIUM FRAME POWDER COATED WITH BLACK PAINT

3500MM (L) x 40MM (THK) SOLID PINE WOOD HANDRAIL IN WAX FINISH

10MM (THK) EXPENDED METAL BLACK ALUMINIUM IN MATTE FINISH

FIRST FLOOR

50MM (W) x 50MM (H) x 10MM (THK) ALUMINIUM FRAME POWDER COATED WITH BLACK PAINT

250MM (THK) EXPOSED CONCRETE SLAB

5216 1035
3066 1585 1056 1641 250 4635
1085
NOTE: THIS DRAWING IS COPYRIGHT DRAWING. THE AUTHORIZED USER IS TO CHECK ALL DIMENSIONS ON THE SITE. ONLY FIGURED DIMENSION TO BE WORKED ON. DISCREPANCIES MUST BE REPORTED IMMEDIATELY TO PARTNERSHIP BEFORE PROCESSING. ©COPYRIGHT NO.DESCRIPTIONDATE CLIENT:ARCHITECT:INTERIOR DESIGN CONSULTANT: CIVIL & STRUCTURAL CONSULTANTS: PROJECT NAME: DRAWING TITLE: CHECKED BY: DRAWN BY: DATE: 19 OCTOBER 2022 SCALE: 1:25 DRAWING NO. REV NO. BESPOKE DETAIL SIDE ELEVATION 03 ASHLEY TEW LI WEN MS FATIMAH AS-BUILT INTERIOR WORK OF DESIZO MONNI ADMINISTRATIVE BUILDING EL 2 BESPOKE DETAIL SIDE ELEVATION SCALE: 1:25 DWD_AT_BESP_EL_05 0 FIRSTFLOORPLAN27SEPT2022

3500MM (L) x 40MM (THK) SOLID PINE WOOD HANDRAIL IN WAX FINISH

10MM (THK) ALUMINIUM RAILING POWDER COATED WITH BLACK PAINT

FIRST FLOOR

50MM (W) x 50MM (H) x 10MM (THK) ALUMINIUM FRAME POWDER COATED WITH BLACK PAINT

30MM (L) x 5MM (DIA) STAINLESS STEEL MOUNTING SCREW IN POLISH FINISH

1073
5216 1050 1100 3066 1585 1025 1641 250 4635
50
1025
SEC B BESPOKE DETAIL SECTION B-B SCALE: 1:25 NOTE: THIS DRAWING IS COPYRIGHT DRAWING. THE AUTHORIZED USER IS TO CHECK ALL DIMENSIONS ON THE SITE. ONLY FIGURED DIMENSION TO BE WORKED ON. DISCREPANCIES MUST BE REPORTED IMMEDIATELY TO PARTNERSHIP BEFORE PROCESSING. ©COPYRIGHT NO.DESCRIPTIONDATE 0 CLIENT:ARCHITECT:INTERIOR DESIGN CONSULTANT: CIVIL & STRUCTURAL CONSULTANTS: PROJECT NAME: DRAWING TITLE: CHECKED BY: DRAWN BY: DATE: 19 OCTOBER 2022 SCALE: 1:25 DRAWING NO. REV NO. BESPOKE DETAIL SECTION B-B FIRSTFLOORPLAN27SEPT2022 02 ASHLEY TEW LI WEN MS FATIMAH
DWD_AT_BESP_SEC_06
AS-BUILT INTERIOR WORK OF DESIZO MONNI ADMINISTRATIVE BUILDING

UBBL & Fire Requirements

UBBL 172 EMERGENCY EXIT SIGNS

Applied UBBL requirements

(1) Storey exits and access to such exits shall be marked by readily visible signs and shall not be obscured by any decorations, furnishings or other equipment

(4) All exit signs shall be illuminated continuously during periods of occupancy.

Unpplied UBBL requirements

(2) A sign reading "KELUAR" with an arrow indicating the direction shall be placed in every location where the direction of travel to reach the nearest exit is not immediately apparent

Typical Dimension

570mm (L) x 155mm (W) x 56mm (H)

UBBL 167 STOREY EXITS

Unpplied UBBL requirements

(1) Except as provided for in by-law 194 every compartment shall be provided with at least two storey exits located as far as practical from each other and in no case closer than 4.5 metres and in such position that the travel distances specified in the Seventh Schedule to these By-laws are not exceeded.

UBBL 39 NATURAL LIGHTING AND VENTILATION

Applied UBBL requirements

(1) Every room designed, adapted or used for residential, business or other purposes except hospitals and schools shall be provided with natural lighting and natural ventilation by means of one or more windows having a total area of not less than 10% of the clear floor area of such room and shall have openings capable of allowing a free uninterrupted passage of air of not less than 5% of such floor area.

UBBL 124 LIFTS

Applied UBBL requirements

For all non residential buildings exceeding 4 storeys above or below the main access level at least one lift shall be provided.

ADMINISTRATIVE
DESIZO MONNI
BUILDING
SCHEDULE OF ACCOMMODATION AREA NO. OF OCCUPANTSNO. OF ROOMS AREA OF ONE ROOM (M )TOTAL AREA OF ROOM (M ) LEVEL 1 (GROUND FLOOR) MAIN ENTRANCE SERVICE ENTRANCE FOYER SHOWROOM W/C OKU W/C TECHNICAL ROOM CLEANERS ROOM CO-WORKING AREA 1 CO-WORKING AREA 2 8 4 15 35 2 6 15 15 2 11 2 1 1 1 1 1 1 1 1 38.43 7.48 144.45 82.20 4.64 3.68 3.30 2.84 83.30 82.20 38.43 7.48 144.45 82.20 4.64 14.16 3.30 2.84 83.30 82.20 LEVEL 2 (FIRST FLOOR) OFFICE MEETING ROOM INTERNAL TERRACE ATRIUM RELAX ZONE KITCHEN SERVER ROOM STORAGE W/C TECHNICAL ROOM 26 16 2 30 9 4 6 2 3 21 1 1 2 1 1 1 1 2 1 214.65 18.40 5.17 146.90 30.70 1.94 17.17 5.76 3.68 7.48 214.65 36.80 5.17 146.90 30.70 1.94 17.17 5.76 3.68 7.48
SCHEDULE OF ACCOMMODATION (CONT.) AREA NO. OF OCCUPANTSNO. OF ROOMS AREA OF ONE ROOM (M )TOTAL AREA OF ROOM (M ) LEVEL 3 (SECOND FLOOR) LEVEL 4 (THIRD FLOOR) OFFICE MEETING ROOM INTERNAL TERRACE ATRIUM RELAX ZONE KITCHEN SERVER ROOM STORAGE W/C TECHNICAL ROOM 26 16 2 30 9 4 6 2 3 21 1 1 2 1 1 1 1 2 1 214.65 18.40 5.17 146.90 30.70 1.94 17.17 5.76 3.68 7.48 214.65 36.80 5.17 146.90 30.70 1.94 17.17 5.76 3.68 7.48 OFFICE MEETING ROOM INTERNAL TERRACE ATRIUM RELAX ZONE KITCHEN SERVER ROOM STORAGE W/C TECHNICAL ROOM 26 16 2 30 9 4 6 2 3 21 1 1 2 1 1 1 1 2 1 214.65 18.40 5.17 146.90 30.70 1.94 17.17 5.76 3.68 7.48 214.65 36.80 5.17 146.90 30.70 1.94 17.17 5.76 3.68 7.48

SINGLE LEAF EMERGENCY ESCAPE DOOR

100MM

EMERGENCY STAIRCASE (GROUND FLOOR & FIRST FLOOR)

SINGLE

50 2010 50 970 1080 2100 2060 50 50 800 50 1060 1000 2100 900 50 50 2450 1120 100 1120 50 2100 130 1870 100 50 800 50 1100 950 2100 900 50 2450 2409 PROJECT TITLE: CIVIL & STRUCTURAL CONSULTANTS: INTERIOR DESIGN CONSULTANT: ARCHITECT: CLIENT: NOTE: DRAWING TITLE DOOR SCHEDULE 01 SCALE: 1:50 DATE: 12 OCT 2022 CHECKED BY: MS. FATIMAH DRAWN BY: ANDREA SIM XIN YEN DRAWING NO: DWD/G1/DS/07 REV NO. 02 JAMES STUDIO ARCI ONG. SDN.BHD. CHIN CONSTRUCTION SDN.BHD. 1, NO. 901 BLOK B DATARAN USAHAWAN KELANA JLN SS7/26 SS7,47301,PETALING JAYA, SELANGOR NO. 23 B JLN SS21/60 SS21,47000,PETALING JAYA, SELANGOR NO.2, JLN PJS7/7H,TAMAN PJS 3,BANDAR SUNWAY,47500, PETALING JAYA, SELANGOR 5 BlOK E PHILEO JLN DAMANSARA SEKSYEN 2 PETALING JAYA 46,46350,PETALING JAYA, SELANGOR THIS DRAWING IS COPYRIGHT DRAWING. THE AUTHORIZED USER IS TO CHECK ALL DIMENSION ON THE SITE. ONLY FIGURED DIMENSION TO BE WORKED ON, DISCREPANCIES MUST BE REPORTED IMMEDIATELY TO PARTNERSHIP BEFORE PROCESSING. AS-BUILT INTERIOR WORK OF DESIZO MONNI ADMINISTRATION BUILDING, PLEVEN, BULGARIA DOOR NO. DESCRIPTION IRONMONGERY MAIN ENTRANCE REVOLVING DOOR (GROUND FLOOR) TYPE FRAME DOOR LEAF HINGES LOCKBOLTS STOP/PULLS LOCATION ALUMINUM REVOLVING DOOR 50MM BLACK POWDER COATED ALUMINUM 2100MM(H) X 1120MM(L) POWDER COATED ALUMINUM W/ 25MM THK TURNSTILE GLASS 100MM X 25MM STAINLESS STEEL FLOOR PIVOT HINGE REMOTE / ACCESS CONTROL LOCKING SYSTEM STANDARD REVOLVING DOOR PUSH SYSTEM
D1 DOOR NO. DESCRIPTION
FFL 0
IRONMONGERY TYPE FRAME DOOR LEAF HINGES LOCKBOLTS STOP/PULLS LOCATION
SERVICE ENTRANCE (GROUND FLOOR) DOUBLE LEAF SWING FIRE DOOR 100MM THK TEAK TIMBER W/ 2MM THK GALVANIZED STEEL SURFACE AND ALL-AROUND PROOF EXPANSION RUBBER 50MM THK FIREPROOF ROCK WOOL W/ 1MM GALVANIZED STEEL SURFACE AND 6MM THK BOROSILICATE GLASS WINDOWS 100MM(L) X 70MM(W) X 2MM STAINLESS STEEL HINGE 3-POINT LOCK 290MM(H) X 110MM(L) STAINLESS STEEL PULL BAR HANDLE D3
ROOM (GROUND & FIRST FLOOR)
THK TEAK TIMBER W/ 2MM THK GALVANIZED STEEL SURFACE W/ PROOF EXPANSION RUBBER 50MM THK FIREPROOF ROCK WOOL W/ 1MM STEEL SURFACE AND 6MM THK BOROSILICATE GLASS WINDOW 100MM(L) X 70MM(W) X 2MM THK STEEL BUTT HINGE 730MM(L) STAINLESS STEEL PUSH PANIC BAR REFER TO SUPPLIER D2
TECHNICAL
LEAF SWING DARK WALNUT TIMBER DOOR
X 900MM(L) X 40MM(THK) DARK WALNUT TIMBER HARDWOOD DOOR JAMB
THK SOLID CORE DARK WALNUT TIMBER VENEER DOOR W/ GLOSS VARNISH FINISH
X 50MM(W) X 2MM STAINLESS STEEL HINGE
LOCK
STAINLESS STEEL ALLOY LEVER HANDLE
FFL 0 ©COPYRIGHT NO.DESCRIPTIONDATE 0DOOR SCHEDULE 0112 OCTOBER 2022
2100MM(H)
40MM
70MM(L)
3-POINT
180MM(L)
D4

DOOR NO. DESCRIPTION

IRONMONGERY

DOOR NO. DESCRIPTION

IRONMONGERY

FFL 0

D5

2100MM(H) X 1000MM(L) SINGLE LEAF TOILET DOOR

50MM THK OAK WOOD TIMBER

2050MM(H) X 900MM(L) x 35MM(THK) RADIATA PINE TIMBER W/ VARNISH FINISH

70MM(L) X 50MM(W) X 2MM STAINLESS STEEL HINGE

2-POINT LOCK

180MM(L) STAINLESS STEEL LEVER HANDLE

TYPE

FRAME

DOOR LEAF

HINGES

LOCKBOLTS

FFL 0 D7 ©COPYRIGHT NO.DESCRIPTIONDATE 0DOOR SCHEDULE 0212 OCTOBER 2022

2600MM(H) X 2050MM(L) DOUBLE GLASS SWING DOOR

2MM THK ALUMINUM ALLOY PROFILE

2430MM(H) X 750MM(L) X 6MM(THK) TEMPERED CLEAR GLASS PANELS

330MM(L)

750 550 170 1300

100MM(L) X 70MM(W) X 2MM STAINLESS STEEL HINGE

STAINLESS STEEL COVER CORNER 3-POINT LOCK

D6

2150MM(H) X 1000MM(L) SINGLE CASEMENT GLASS DOOR

50MM THK ELECTRO GALVANIZED ALUMINUM

2100MM(H) X 1000MM(L) X 6MM(THK) TEMPERED CLEAR GLASS

70MM(L) X 50MM(W) X 2MM STAINLESS STEEL HINGE

3-POINT LOCK

1000 2150 900 2050 2600 750

1060 1130

180MM(L) STAINLESS STEEL ALLOY LEVER HANDLE

MAIN

D8

2100MM(H) X 1000MM(L) SINGLE LEAF GLASS DOOR

30MM THK BLACK GALVANIZED STEEL FRAME

2070MM(H) X 940MM(L) X 12MM(THK) TEMPERED GLASS

2MM THK RS PRO STEEL BUTT HINGE

12MM(L) STAINLESS STEEL T-BAR HANDLE

STAINLESS STEEL PULL BAR HANDLE 1040 50 50 50

220MM(L) BRUSHED STAINLESS STEEL SINGLE CYLINDER 3-POINT LOCK

INTERNAL TERRACE & MEETING ROOM (FIRST FLOOR)

AS-BUILT INTERIOR WORK OF DESIZO MONNI ADMINISTRATION BUILDING, PLEVEN, BULGARIA

550 750 750 2050 900 1000 50 50 2100 50 1040 1010
2100
970 50 50 50 PROJECT TITLE: CIVIL & STRUCTURAL CONSULTANTS: INTERIOR DESIGN CONSULTANT: ARCHITECT: CLIENT: NOTE: DRAWING TITLE DOOR SCHEDULE 02 SCALE:
DATE: 12 OCT 2022 CHECKED BY: MS. FATIMAH DRAWN BY: MARIYAM YOOHA AHMED DRAWING NO: DWD/G1/DS/08 REV NO. 02 JAMES STUDIO ARCI ONG. SDN.BHD. CHIN CONSTRUCTION SDN.BHD. 1, NO. 901 BLOK B DATARAN USAHAWAN KELANA JLN SS7/26 SS7,47301,PETALING JAYA, SELANGOR NO. 23 B JLN SS21/60 SS21,47000,PETALING JAYA, SELANGOR NO.2, JLN PJS7/7H,TAMAN PJS 3,BANDAR SUNWAY,47500, PETALING JAYA, SELANGOR 5 BlOK E PHILEO JLN DAMANSARA SEKSYEN 2 PETALING JAYA 46,46350,PETALING JAYA, SELANGOR THIS DRAWING IS COPYRIGHT DRAWING. THE AUTHORIZED USER IS TO CHECK ALL DIMENSION ON THE SITE. ONLY FIGURED DIMENSION TO BE WORKED ON, DISCREPANCIES MUST BE REPORTED IMMEDIATELY TO PARTNERSHIP BEFORE PROCESSING.
1000 900
1080
1:50
ENTRANCE SIDE DOOR (GROUND FLOOR) TYPE FRAME DOOR LEAF HINGES LOCKBOLTS STOP/PULLS LOCATION
STOP/PULLS LOCATION
OFFICE ENTRANCE (FIRST FLOOR)
TOILET DOOR (GROUND & FIRST FLOOR)
FFL CH +18400MM NOTE: THIS DRAWING IS COPYRIGHT DRAWING. THE AUTHORIZED USER IS TO CHECK ALL DIMENSIONS ON THE SITE. ONLY FIGURED DIMENSION TO BE WORKED ON. DISCREPANCIES MUST BE REPORTED IMMEDIATELY TO PARTNERSHIP BEFORE PROCESSING. ©COPYRIGHT NO.DESCRIPTION DATE 0 CLIENT:ARCHITECT:INTERIOR DESIGN CONSULTANT: PROJECT NAME: DRAWING TITLE: CHECKED BY: DRAWN BY: DATE: 16 OCTOBER 2022 SCALE: 1:50 DRAWING NO. REV NO. DWD_G1_WS_09 AS-BUILT INTERIOR WORK OF DESIZO MONNI ADMINISTRATIVE BUILDING DESIZO MONNI ADMINISTRATIVE BUILDING WINDOW SCHEDULE MS FATIMAH ASHLEY TEW LI WEN LOCATION IRONMONGERY DESCRIPTION WINDOW NO. TYPE FRAME THICKNESS HINGES LOCK / BOLTS STOP / PULLS ALL G1 SINGLE FIXED-PANEL GLASS WINDOW 65MM THK ALUMINIUM WINDOW FRAME 10MM THK TEMPERED GLASS N/A N/A N/A 02 CIVIL & STRUCTURAL CONSULTANTS:

SCHEDULE OF FINISHES

1.2 WALL FINISHES

W2

CODE IMAGE DESCRIPTION SIZE LOCATION SUPPLIER 1.3 CEILING FINISHES C1 AERATED GYPSUM PLASTERBOARD IN WHITE PAINT FINISH 12.5MM (THK) ALL SAINT GOBAIN (GYPROC) SDN BHD C2 GYPSUM ACOUSTIC CEILING PANEL 12.5MM (THK) OFFICE SAINT GOBAIN (GYPROC) SDN BHD C3 TEMPERED GLASS WITH ALUMINIUM FRAME IN POWDER COATED FINISH 10MM (THK) ATRIUM GLASS NETWORK (M) SDN BHD CODE IMAGE DESCRIPTION SIZE LOCATION SUPPLIER 1.1 FLOOR FINISHES F1 GREY PORCELAIN TILES IN MATT FINISH 1200MM (L) x 600MM (W) x 10MM (THK) MAIN ENTRANCE, SERVICE ENTRANCE, FOYER, SHOWROOM, RELAX ZONE, KITCHEN VERONA GROUP F2 ZKR02 ALAMO NATURAL TIMBER FLOORING 10MM (THK) OFFICE, MEETING ROOM, INTERNAL TERRACE NIRO CERAMIC (M) SDN BHD F3 EXPOSED CONCRETE SLAB 250MM (THK) STAIRCASE LAFARGE CONCRETE (MALAYSIA) SDN BHD F4 GPB05
300MM
CASTLE ROCK PORCELAIN TILES IN MATT FINISH
(L) x 300MM (W) x 10MM (THK) WC NIRO CERAMIC (M) SDN BHD F5 CONCRETE SLAB IN POLISHED FINISH 250MM (THK) TECHNICAL ROOM, CLEANER ROOM, SERVER ROOM, STORAGE LAFARGE CONCRETE (MALAYSIA) SDN BHD
W1 EXPOSED CONCRETE 200MM (THK) ALL LAFARGE CONCRETE (MALAYSIA) SDN BHD
GMA31 NOIR
TILES
10MM
REST
TEMPERED
10MM
GRANITE
IN POLISHED FINISH
(THK)
AREA NIRO CERAMIC (M) SDN BHD W3
GLASS WITH ALUMINIUM FRAME IN POWDER COATED FINISH
(THK) OFFICE, STAIRCASE, ATRIUM GLASS NETWORK (M) SDN BHD
LEVEL 2,3,4 - OFFICES T3 900MM(W) x 1800MM(L) x 750MM(H) MAPLE MELAMINE WOOD TABLE C/W BLACK EPOXY COATED HOLLOW MILD STEEL 2OFFICE PRO RM1,699.00 T5 4 ft GENIAL SUPERIOR RECTANGULAR OFFICE TABLE WITH MOBILE PEDESTAL OFT128SET W 1200 mm x D 800 mm x H 750 mm MOBILE PEDESTAL 2D1F W 400 mm x D 480 mm x H 620 mm 20 OFFICE FURNITURE MALAYSIA RM649.00 CH 1 480MM(W) x 620MM (L) x 1040MM (H) ADELINE MESH MEDIUMBACK OFFICE CHAIR 21OFFICE PRO RM3,129.00 CH 4 ADELINE MESH HIGHBACK OFFICE CHAIR OFNX220361 W 620 mm x D 480 mm x H 1140-1240 mm 2 OFFICE FURNITURE MALAYSIA RM639.00 CH 5 480MM(W) x 500MM (L) x 930MM (H) ADELINE MESH VISITOR OFFICE CHAIR OFNX220364 4 OFFICE FURNITURE MALAYSIA RM525.00 CT3 BYOS7180 6 Ft MELAMINE OPEN SHELF + SLIDING DOOR LOW CABINET L 180 x W 45 x H 75cm 14 FURNITURE DIRECT RM987.00 CT4 BYOD13 5 Ft MELAMINE SEMI SWINGING DOOR MEDIUM CABINET L 160 x W 40 x H 131cm 6 FURNITURE DIRECT RM588.00 LF2 2000MM(L) REVEAL COVE LIGHT C/W ALUMINUM FRAME AND 3000K LED WARM LIGHT STRIP 48PUREEDGE LIGHTINGRM602.00 AC 1 HAIER ABH0901ERG 3HP CEILING CASSETTE 2 HAIER RM7238.00 LEVEL 2,3,4 - MEETING ROOM T6 IP-ORO SERIES PANEL LEG CONFERENCE TABLE MELAMINE CHIPBOARD 3100 x 1300 x 750 (mm) 2 OFFICE PRO RM4,254.00 CH 1 480MM(W) x 620MM (L) x 1040MM (H) ADELINE MESH MEDIUMBACK OFFICE CHAIR 21 OFFICE PRO RM3,129.00 LF2 2000MM(L) REVEAL COVE LIGHT C/W ALUMINUM FRAME AND 3000K LED WARM LIGHT STRIP 6PUREEDGE LIGHTINGRM602.00 AC1 HAIER ABH0901ERG 3HP CEILING CASSETTE 2 HAIERRM7238.00 LEVEL 2,3,4 - INTERNAL TERRANCE LEVEL 2,3,4 - INTERNAL TERRANCE T7 LÄCKÖ TABLE , OUTDOORGREY 70 cm MATERIALSTEELPOLYESTER POWDER COATING 1IKEARM159.00 CH 6 TOBIAS CHAIRGREY - PLATED W 55 cm, D 56 cm, H 82 cm 2IKEARM475.00 LEVEL 2,3,4 - RELAXATION ZONE T8 SANDSBERG TABLE , BLACK, 67x67 cm PARTICLEBOARD , MELAMINE FOIL
CH 6 TOBIAS CHAIRGREY - PLATED W 55 cm, D 56 cm, H 82 cm
LF22000MM(L) REVEAL COVE LIGHT C/W ALUMINUM FRAME AND 3000K LED WARM LIGHT STRIP5PUREEDGE LIGHTINGRM602.00 AC1HAIER ABH0901ERG 3HP CEILING CASSETTE 2 HAIER RM7238.00 SCHEDULE OF FURNITURE , FIXTURES AND EQUIPMENT CODEIMAGESPECIFICATIONQTYSUPPLIERPRICE UNIT LEVEL 1 MAIN ENTRANCE/ FOYER SCHEDULE OF FURNITURE , FIXTURES AND EQUIPMENT CODEIMAGESPECIFICATIONQTYSUPPLIERPRICE UNIT LEVEL 1 - MAIN ENTRANCE/ FOYER SCHEDULE OF FURNITURE,FIXTURES AND EQUIPMENTS (CONT.)
1IKEARM159.00
9IKEARM475.00

700MM(W)

SCHEDULE OF FURNITURE FIXTURES AND EQUIPMENT CODEIMAGESPECIFICATIONQTYSUPPLIERPRICE UNIT LEVEL 1 - MAIN ENTRANCE/ FOYER LF1 6000MM(L) POWDER COATED ALUMINUM TRACK RAIL C/W 30 LED TRACK LIGHT 1 FOSHAN AOLPOL LIGHTING TECHNOLOGY CO., LTD. RM500.00 AC1 HAIER ABH0901ERG 3HP CEILING CASSETTE 2HAIERRM7238.00 CH1 480MM(W) x 620MM (L) x 1040MM (H) ADELINE MESH MEDIUMBACK OFFICE CHAIR 1OFFICE PRORM149.00 LEVEL 1 - SHOWROOM AC1 HAIER ABH0901ERG 3HP CEILING CASSETTE2HAIERRM7238.00 CH1 480MM(W) x 620MM (L) x 1040MM (H) ADELINE MESH MEDIUMBACK OFFICE CHAIR 22OFFICE PRORM3278.00 LF2 2000MM(L) REVEAL COVE LIGHT C/W ALUMINUM FRAME AND 3000K LED WARM LIGHT STRIP 5 PUREEDGE LIGHTINGRM602.00 LEVEL 1 - CO-WORKING SPACE 1 AC1 HAIER ABH0901ERG 3HP CEILING CASSETTE1HAIER RM3619.00 CH1 480MM(W) x 620MM (L) x 1040MM (H) ADELINE MESH MEDIUMBACK OFFICE CHAIR 2 OFFICE PRORM298.00 LF2 2000MM(L) REVEAL COVE LIGHT C/W ALUMINUM FRAME AND 3000K LED WARM LIGHT STRIP 4PUREEDGE LIGHTINGRM481.60 T1 700MM(W) x 1400MM(L) DESKY DUAL SOFTWOOD SIT STAND DESK WITH ACACIA WOOD TABLE TOP AND POWDER COATED ALUMINUM STAND 1DESKYRM3249.00 CH2 370MM(W) X 1500MM(L) X 450MM(H) BRUNSWICK SOLID ACACIA WOOD BENCH ACRYLIC EXPOXY FINISHED 2BRUNSWICKRM1400.00 T2 700MM(W) x 1500MM(L) x 700MM(W) x 1500MM(L) x 750MM(H) MAPLE MELAMINE WOOD TABLE C/W POWDER COATED ALUMINUM STAND 1AY OFFICE SYSTEMRM475.00 T3 900MM(W) x 1800MM(L) x 750MM(H) MAPLE MELAMINE WOOD TABLE C/W BLACK EPOXY COATED HOLLOW MILD STEEL 2OFFICE PRO RM1,699.00 CT1 580MM(W) x 1400MM(L) x 1200MM(H) CABINET WITH POWDER COATED STAINLESS STEEL FRAME 11TRIBESIGNRM1969.00 CT2 580MM(W) x 700MM(L) x 1200MM(H) CABINET WITH SOLID PINE WOOD AND STEEL FRAME C/W CLEAR ACRYLIC LAQUER 2IKEARM558.00 LEVEL 1 - CO-WORKING SPACE 2 LEVEL 1 - CO-WORKING SPACE 2 AC1 HAIER ABH0901ERG 3HP CEILING CASSETTE1HAIER RM3619.00 CH1
ADELINE
CHAIR
LF2
AND 3000K
T1
480MM(W) x 620MM (L) x 1040MM (H)
MESH MEDIUMBACK OFFICE
2OFFICE PRORM298.00
2000MM(L) REVEAL COVE LIGHT C/W ALUMINUM FRAME
LED WARM LIGHT STRIP 4PUREEDGE LIGHTINGRM481.60
700MM(W) x 1400MM(L) DESKY DUAL SOFTWOOD SIT STAND DESK WITH ACACIA WOOD TABLE TOP AND POWDER COATED ALUMINUM STAND 2DESKYRM6498.00 CH2
BRUNSWICK SOLID ACACIA WOOD BENCH ACRYLIC EXPOXY FINISHED 4BRUNSWICKRM2800.00 T2
1500MM(L) x 750MM(H) MAPLE MELAMINE WOOD TABLE C/W POWDER COATED ALUMINUM STAND 1AY OFFICE
T3 900MM(W) x 1800MM(L) x 750MM(H) MAPLE MELAMINE WOOD TABLE C/W BLACK EPOXY COATED HOLLOW MILD STEEL 2 OFFICE PRO
CT1 580MM(W) x 1400MM(L) x 1200MM(H) CABINET WITH POWDER COATED STAINLESS STEEL FRAME 11TRIBESIGNRM1969.00 CT2 580MM(W) x 700MM(L) x 1200MM(H) CABINET WITH SOLID PINE WOOD AND STEEL FRAME C/W CLEAR ACRYLIC LAQUER 2IKEARM558.00 CH3 750MM(W) x 640MM(L) x 750MM(H) NOLMYRA CHAIR WITH POLYESTER SEAT AND POLYESTER POWDER COATED ALUMINUM FRAME 2IKEARM358.00 CH4 1660MM(W) x 3110MM(L) x 790MM(H) MX6208 L-SHAPE SOFA 1MIXHOME DESIGNRM4899.00 T4 780MM(W) x 1180MM(L) x 750MM(H) PARTICLE BOARD LACK COFFEE TABLE 1IKEARM169.00 LEVEL 2,3,4 - OFFICES SCHEDULE OF FURNITURE , FIXTURES AND EQUIPMENT CODEIMAGESPECIFICATIONQTYSUPPLIERPRICE UNIT LEVEL 1 - MAIN ENTRANCE/ FOYER SCHEDULE OF FURNITURE,FIXTURES AND EQUIPMENTS
x 1500MM(L) x 700MM(W) x
SYSTEMRM475.00
RM1,699.00

Individual Reflection

For a local fashion firm, the Desizo Monni corporate office building offers a stimulating work atmosphere. It is situated in one of the most underdeveloped areas of Europe, in an industrial zone. The project's main objectives were to redesign the brand's image and also to improve the conditions for future creators living abroad who desires to return to their native country.

The overall design can be seen as intriguing because the entire building is organised around the social working environment, enhancing the benefits of the large common recreational spaces and their impact on the employee's mood and productivity. It has a minimalistic approach to its exterior facade and a rich interior space that references fashion shows with the simplicity of catwalks and the splendid designer clothes. As shown in Figure 1 & 2, they create a socialising area to encourage relaxation and internal terraces on each office floor to provide rest areas for staff. This changes the neighborhood's urban environment and makes it more appealing to outside investors.

There are only a few materials used in the project's architectural language: glass, exposed concrete, aluminium, and wood. Only the dark L-shaped aluminium canopy at the entry breaks up the clean glass prism of the building's facade, which is strictly geometric and austere. The large-format triple glazing glass panels offer a smooth transition between inside and exterior space and permit unrestricted views of the surroundings. The inside of the building contrasts the building's basic façade with the abundant space of the atrium and the dynamic volumes of the balconies. Concrete is visible in the structural beams, columns, and the elevator's vertical core. The atrium is visually warmed by natural wood panelling, followed by the atrium, the relaxation areas, and the balconies are all covered in natural vegetation, which is the fifth "material."

The building's design is aesthetically modern, yet the technical aspects are far from flawless. The usage of window glazes throughout the building, which prevented windows from opening, was one issue I noticed. By halting the flow of air and ventilation from the inside out, the humidity level will rise, affecting allergies and complicating respiratory diseases. Prolonged exposure to these conditions causes terrible health conditions like eczema, cancer, and damage to the nervous system. Therefore, we do require proper ventilation. Better air quality means a healthier environment.

ADMINISTRATIVE BUILDING
DESIZO MONNI
Figure 1 : Various relax zones Figure 2 : Internal terraces Figure 3 : Natural vegetation Figure 4 : Atrium with 4 main materials used Figure 5 : Window glaze interior Figure 6 : Window glaze exterior

RE:PLANTSDN.BHD. 206,JalanSS7,MeruIndustrial,47301Klang, Selangor. Tel0183847205 Emailbobbuilders@gmail.com

BOBBUILDERSSDN.BHD. 11,JalanUSJ2/6E,47600SubangJaya,Selangor. Tel0103849028 Emailadesigners@gmail.com

a"DESIGNERSSDN.BHD. 4,JalanSS12/34,47301PetalingJaya,Selangor. Tel0145394859 Emailqs_service@gmail.com

QSSERVICESDN.BHD.

SIDE TABLE SCALE1:1 MB PL MASTERBEDROOMFURNITURELAYOUTPLAN STUDY DESK MASTER BEDROOM (20.7792㎡) CLOSET (8.9851㎡) SIDE TABLE TVRACK NOTE: THISDRAWINGISCOPYRIGHTDRAWING.THEAUTHORIZED USERISTOCHECKALLDIMENSIONSONTHESITE.ONLY FIGUREDDIMENSIONTOBEWORKEDON.DISCREPANCIES MUSTBEREPORTEDIMMEDIATELYTOPARTNERSHIPBEFORE PROCESSING. ©COPYRIGHT NO.DESCRIPTION DATE 0 CLIENT: ARCHITECT: INTERIORDESIGNCONSULTANT:QUANTITYSURVEYOR: PROJECTNAME: DRAWINGTITLE: CHECKEDBY: DRAWNBY: DATE:6SEPTEMBER2022 SCALE:1:1 DRAWINGNO. REVNO. WFH_DWD_AT_FLP_01 AS-BUILTINTERIORWORK OFMASTERBEDROOM MASTERBEDROOM FURNITURELAYOUTPLAN MSFATIMAH ASHLEYTEWLIWEN 600MM(L)x600MM(W)GREY CERAMICTILESINMATTEFINISH 150MMTHKBRICKWALLINGOLD WALLPAPERFINISH 6MMTHKDARKBROWNPLYWOOD INLAMINATEDFINISH WHITEPLYWOODCLOSETIN LAMINATEDFINISH D1 T1 WFH_DWD_AT_DT_01 WFH_DWD_AT_BF_01
18,JalanSS25/34,TamanMayang,47301Petaling Jaya,Selangor. Tel0171928473 Emailreplant_team@gmail.com
01

RE:PLANTSDN.BHD.

18,JalanSS25/34,TamanMayang,47301Petaling Jaya,Selangor. Tel0171928473 Emailreplant_team@gmail.com

BOBBUILDERSSDN.BHD. 11,JalanUSJ2/6E,47600SubangJaya,Selangor. Tel0103849028 Emailadesigners@gmail.com

206,JalanSS7,MeruIndustrial,47301Klang, Selangor. Tel0183847205 Emailbobbuilders@gmail.com

a"DESIGNERSSDN.BHD. 4,JalanSS12/34,47301PetalingJaya,Selangor. Tel0145394859 Emailqs_service@gmail.com

QSSERVICESDN.BHD.

SD PL SLIDINGDOORPLAN NOTE: THISDRAWINGISCOPYRIGHTDRAWING.THEAUTHORIZED USERISTOCHECKALLDIMENSIONSONTHESITE.ONLY FIGUREDDIMENSIONTOBEWORKEDON.DISCREPANCIES MUSTBEREPORTEDIMMEDIATELYTOPARTNERSHIPBEFORE PROCESSING. ©COPYRIGHT NO.DESCRIPTION DATE 0 CLIENT: ARCHITECT: INTERIORDESIGNCONSULTANT:QUANTITYSURVEYOR: PROJECTNAME: DRAWINGTITLE: CHECKEDBY: DRAWNBY: DATE:6SEPTEMBER2022 SCALE:1:2 DRAWINGNO. REVNO. WFH_DWD_AT_DT_01 AS-BUILTINTERIORWORK OFMASTERBEDROOM MASTERBEDROOM SLIDINGDOORDETAILLAYOUTPLAN MSFATIMAH ASHLEYTEWLIWEN EXTERIOR INTERIOR 3MMTHKTEMPEREDGLASS ALUMINIUMSLIDINGDOOR DOUBLECHUTEDOORTRACK ALUMINIUMSLIDINGDOORFLUSH LOCKWITHSINGLEKEY WFH_DWD_AT_DT_02 WFH_DWD_AT_DT_02 00 DT2 DT1
SCALE1:2

BOBBUILDERSSDN.BHD.

QSSERVICESDN.BHD.

a"DESIGNERSSDN.BHD. 4,JalanSS12/34,47301PetalingJaya,Selangor. Tel0145394859 Emailqs_service@gmail.com

SCALE1:10 DT A DETAILA SCALE1:10 DT B DETAILB NOTE: THISDRAWINGISCOPYRIGHTDRAWING.THEAUTHORIZED USERISTOCHECKALLDIMENSIONSONTHESITE.ONLY FIGUREDDIMENSIONTOBEWORKEDON.DISCREPANCIES MUSTBEREPORTEDIMMEDIATELYTOPARTNERSHIPBEFORE PROCESSING. ©COPYRIGHT NO.DESCRIPTION DATE 0 CLIENT: ARCHITECT: INTERIORDESIGNCONSULTANT:QUANTITYSURVEYOR: PROJECTNAME: DRAWINGTITLE: CHECKEDBY: DRAWNBY: DATE:6SEPTEMBER2022 SCALE:1:10 DRAWINGNO. REVNO. WFH_DWD_AT_DT_02 AS-BUILTINTERIORWORK OFMASTERBEDROOM MASTERBEDROOM SLIDINGDOORDETAIL1AND2 MSFATIMAH ASHLEYTEWLIWEN 00 ALUMINIUMSLIDINGDOORCHUTE TRACK 723MM(L)x8MM(W)ALUMINIUM PROFILEVERTICALDOORFRAME 7MMTHKRUBBER WEATHERPROOFSEALINGSTRIP 3MMTHKTEMPEREDGLASS PANEL
18,JalanSS25/34,TamanMayang,47301Petaling Jaya,Selangor. Tel0171928473 Emailreplant_team@gmail.com
RE:PLANTSDN.BHD. 206,JalanSS7,MeruIndustrial,47301Klang, Selangor. Tel0183847205 Emailbobbuilders@gmail.com
11,JalanUSJ2/6E,47600SubangJaya,Selangor. Tel0103849028 Emailadesigners@gmail.com

RE:PLANTSDN.BHD.

18,JalanSS25/34,TamanMayang,47301Petaling Jaya,Selangor. Tel0171928473

Emailreplant_team@gmail.com

BOBBUILDERSSDN.BHD.

206,JalanSS7,MeruIndustrial,47301Klang, Selangor. Tel0183847205 Emailbobbuilders@gmail.com

150MMTHKBRICKWALLINGOLD WALLPAPERFINISH

1830MM(L)x295MM(H)x6MM THKBEIGEPLYWOODIN LAMINATEDFINISH

1830MM(L)x915MM(H)x6MM THKDARKBROWNPLYWOODIN LAMINATEDFINISH

1830MM(L)x10MM(H)x10MM(W) ALUMINIUMSTEELINMATTE FINISH

1830MM(L)x40MM(W)x6MMTHK DARKBROWNPLYWOODIN LAMINATEDFINISH

1830MM(L)x160MM(W)x6MM THKBEIGEPLYWOODIN LAMINATEDFINISH

2400MM(L)x70(H)TIMBER SKIRTINGINBLACKSTAINFINISH

11,JalanUSJ2/6E,47600SubangJaya,Selangor. Tel0103849028 Emailadesigners@gmail.com

QSSERVICESDN.BHD.

a"DESIGNERSSDN.BHD. 4,JalanSS12/34,47301PetalingJaya,Selangor. Tel0145394859 Emailqs_service@gmail.com

NOTE: THISDRAWINGISCOPYRIGHTDRAWING.THEAUTHORIZED USERISTOCHECKALLDIMENSIONSONTHESITE.ONLY FIGUREDDIMENSIONTOBEWORKEDON.DISCREPANCIES MUSTBEREPORTEDIMMEDIATELYTOPARTNERSHIPBEFORE PROCESSING. ©COPYRIGHT NO.DESCRIPTION DATE 0
DRAWINGTITLE:
MSFATIMAH ASHLEYTEWLIWEN
SCALE1:2 TC PL TVCABINETPLAN SCALE1:2 TC EL TVCABINETFRONTELEVATION FFL
CLIENT: ARCHITECT: INTERIORDESIGNCONSULTANT:QUANTITYSURVEYOR: PROJECTNAME:
CHECKEDBY: DRAWNBY: DATE:6SEPTEMBER2022 SCALE:1:2 DRAWINGNO. REVNO. WFH_DWD_AT_BF_01 AS-BUILTINTERIORWORK OFMASTERBEDROOM MASTERBEDROOM PLAN&ELEVATIONOFBUILT-INFURNITURE
01 CH
TC EL A A

18,JalanSS25/34,TamanMayang,47301Petaling Jaya,Selangor. Tel0171928473 Emailreplant_team@gmail.com

RE:PLANTSDN.BHD. 206,JalanSS7,MeruIndustrial,47301Klang, Selangor. Tel0183847205 Emailbobbuilders@gmail.com

CH

150MMTHKBRICKWALLINGOLD WALLPAPERFINISH

1830MM(L)x75MM(W)x75MM(H) TIMBERJOIST

1830MM(L)x295MM(H)x6MMTHKBEIGE PLYWOODINLAMINATEDFINISH

1830MM(L)x915MM(H)x6MMTHKDARK BROWNPLYWOODINLAMINATEDFINISH 1830MM(L)x10MM(H)x10MM(W)ALUMINIUM STEELINMATTEFINISH

640MM(L)x15MM(W)x225MM(H)ALUMINIUM TVBRACKETINBLACKPOWDERCOATEDFINISH

2200MM(L)x445MM(W)x160MM(H)WHITEPLYWOOD INLAMINATEDFINISH

1830MM(L)x40MM(W)x6MMTHKDARKBROWN PLYWOODINLAMINATEDFINISH 1MM(THK)GREYWALLPAPER

2400MM(L)x150(H)TIMBERSKIRTING INBLACKSTAINFINISH

BOBBUILDERSSDN.BHD. 11,JalanUSJ2/6E,47600SubangJaya,Selangor. Tel0103849028 Emailadesigners@gmail.com

a"DESIGNERSSDN.BHD. 4,JalanSS12/34,47301PetalingJaya,Selangor. Tel0145394859 Emailqs_service@gmail.com

QSSERVICESDN.BHD.

SECTION SCALE1:1 SEC A FFL NOTE: THISDRAWINGISCOPYRIGHTDRAWING.THEAUTHORIZED USERISTOCHECKALLDIMENSIONSONTHESITE.ONLY FIGUREDDIMENSIONTOBEWORKEDON.DISCREPANCIES MUSTBEREPORTEDIMMEDIATELYTOPARTNERSHIPBEFORE PROCESSING. ©COPYRIGHT NO.DESCRIPTION DATE 0 CLIENT: ARCHITECT: INTERIORDESIGNCONSULTANT:QUANTITYSURVEYOR:
DRAWINGTITLE: CHECKEDBY: DRAWNBY: DATE:6SEPTEMBER2022 SCALE:1:1 DRAWINGNO. REVNO.
ASHLEYTEWLIWEN
PROJECTNAME:
WFH_DWD_AT_BF_02 AS-BUILTINTERIORWORK OFMASTERBEDROOM MASTERBEDROOM BUILT-INFURNITURESECTION MSFATIMAH
01

a"DESIGNERSSDN.BHD.

QSSERVICESDN.BHD.

NOTE: THISDRAWINGISCOPYRIGHTDRAWING.THEAUTHORIZED USERISTOCHECKALLDIMENSIONSONTHESITE.ONLY FIGUREDDIMENSIONTOBEWORKEDON.DISCREPANCIES MUSTBEREPORTEDIMMEDIATELYTOPARTNERSHIPBEFORE PROCESSING. ©COPYRIGHT NO.DESCRIPTION DATE 0 CLIENT: ARCHITECT: INTERIORDESIGNCONSULTANT:QUANTITYSURVEYOR: PROJECTNAME: DRAWINGTITLE: CHECKEDBY: DRAWNBY: DATE:6SEPTEMBER2022 SCALE:1:2 DRAWINGNO. REVNO. WFH_DWD_AT_DS_01 AS-BUILTINTERIORWORK OFMASTERBEDROOM MASTERBEDROOM DOORSCHEDULE MSFATIMAH ASHLEYTEWLIWEN LOCATION IRONMONGERY DESCRIPTION DOORNO. TYPE FRAME DOORLEAF HINGES LOCK/BOLTS STOP/PULLS MASTERBEDROOM FFL D1 3PANELSLIDINGGLASSDOOR 35MMALUMINIUMSLIDINGDOORFRAME 35MMX15MMTHKALUMINIUMFRAMEC/W3MMTHKTEMPEREDGLASS SILVERPOWDERCOATEDALUMINIUMTOPPIVOTHINGE FLUSHLOCKWITHSINGLEKEY SILVERPOWDERCOATEDALUMINIUMSLIDINGDOORLOCKFASTENER 00 18,JalanSS25/34,TamanMayang,47301Petaling Jaya,Selangor. Tel0171928473 Emailreplant_team@gmail.com
Emailbobbuilders@gmail.com
RE:PLANTSDN.BHD. 206,JalanSS7,MeruIndustrial,47301Klang, Selangor. Tel0183847205
BOBBUILDERSSDN.BHD. 11,JalanUSJ2/6E,47600SubangJaya,Selangor. Tel0103849028 Emailadesigners@gmail.com
4,JalanSS12/34,47301PetalingJaya,Selangor. Tel0145394859 Emailqs_service@gmail.com

MASTERBEDROOM

CODE:T1

NAME:GREYCERAMICTILES SIZE:600MMx600MM FINISHES:MATTEFINISH BRAND:GUOCERASDNBHD

CODE:C1 NAME:CONCRETEWALL FINISHES:GOLDWALLPAPER FINISH BRAND:KOREAWALLPAPER (KL)SDNBHD

CODE:P1

NAME:PLASTERCEILING COLOURCODE:BRILLIANT WHITE1001 BRAND:NIPPONPAINTSDN BHD

CODE:D1

NAME:ALUMINIUMSLIDING DOORFRAMEWITH TEMPEREDGLASS SIZE:2251MM(L)x2220MM(H) x50MMTHK BRAND:VINFORDGLASS& ALUMINIUMSDNBHD

RE:PLANTSDN.BHD.

18,JalanSS25/34,TamanMayang,47301Petaling Jaya,Selangor. Tel0171928473 Emailreplant_team@gmail.com

BOBBUILDERSSDN.BHD.

206,JalanSS7,MeruIndustrial,47301Klang, Selangor. Tel0183847205 Emailbobbuilders@gmail.com

11,JalanUSJ2/6E,47600SubangJaya,Selangor. Tel0103849028 Emailadesigners@gmail.com

QSSERVICESDN.BHD.

a"DESIGNERSSDN.BHD. 4,JalanSS12/34,47301PetalingJaya,Selangor. Tel0145394859 Emailqs_service@gmail.com

NOTE: THISDRAWINGISCOPYRIGHTDRAWING.THEAUTHORIZED USERISTOCHECKALLDIMENSIONSONTHESITE.ONLY FIGUREDDIMENSIONTOBEWORKEDON.DISCREPANCIES MUSTBEREPORTEDIMMEDIATELYTOPARTNERSHIPBEFORE PROCESSING. ©COPYRIGHT NO.DESCRIPTION DATE 0
DRAWINGTITLE: CHECKEDBY: DRAWNBY: DATE:6SEPTEMBER2022 SCALE:NTS DRAWINGNO. REVNO.
CLIENT: ARCHITECT: INTERIORDESIGNCONSULTANT:QUANTITYSURVEYOR: PROJECTNAME:
WFH_DWD_AT_SOF_01 AS-BUILTINTERIORWORK OFMASTERBEDROOM MASTERBEDROOM SCHEDULEOFFINISHES MSFATIMAH ASHLEYTEWLIWEN
SCHEDULEOFFINISHES AREA FLOOR WALL CEILING DOOR
00

Turn static files into dynamic content formats.

Create a flipbook
Issuu converts static files into: digital portfolios, online yearbooks, online catalogs, digital photo albums and more. Sign up and create your flipbook.