Carpenter Hall Renovation

Page 1

844 SF 104 331 SF 104A 1409 SF 105 237 SF 103A 229 SF 103B 247 SF 103C 252 SF 103D 180 SF 107 92 SF 109 161 SF 110 156 SF 10021 BTH 50 SF 10060 59 SF 10020 BTH 45 SF 10022 195 SF 10023 BTH 167 SF 108 4798 SF 103 911 SF 10040 1180 SF 114 319 SF 10041 264 SF Ele a or E i ing Area Plan 103
4' - 1" A hle Herrera Scale Da e Dra n b Checked b 1/8" = 1'-0" 5/16/2022 10:34:28 PM A101 E i ing Area Plan Carpen er Hall Reno a ion Projec 05/19/22 A hle Herrera Checker 1/8" = 1'-0" 1 Le el 1 N.DecnDae
103A 103B 103C 103D 104 104A 107 108 109 110 10022 10040 10060
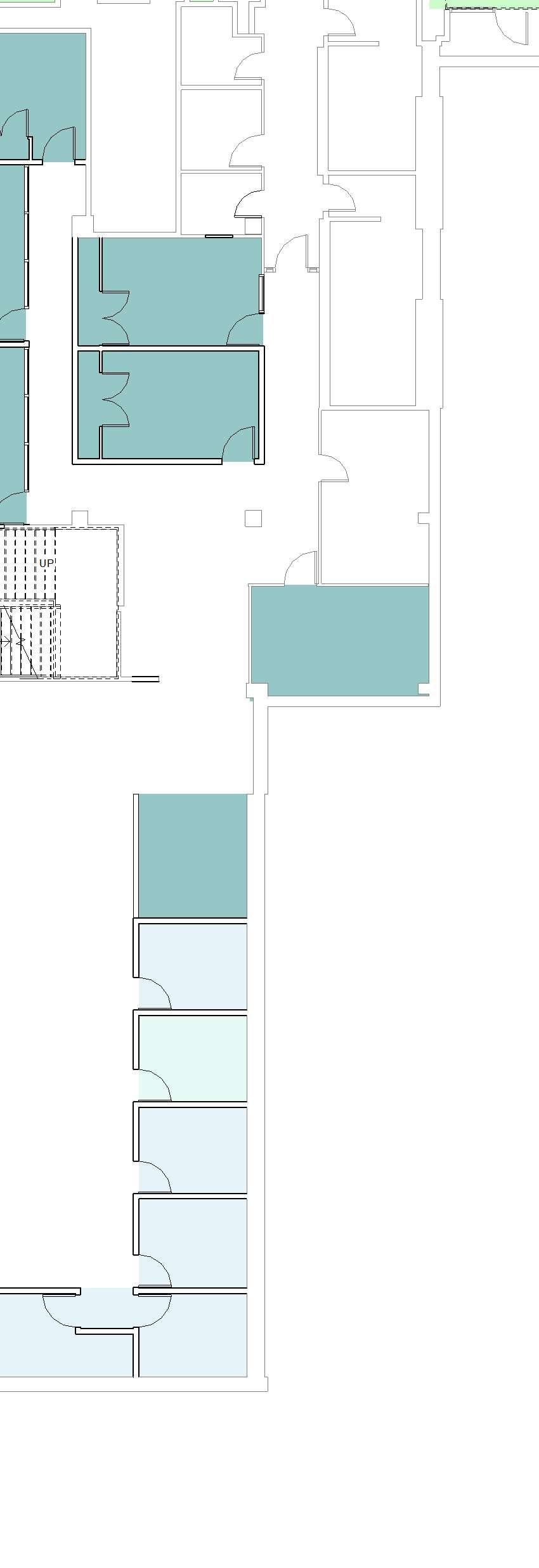
4525 SF 103 Open S d 226 SF 103A S d Room 232 SF 103B S d Room 238 SF 103C S d Room 236 SF 103D S d Room 861 SF 104 361 SF 104A 170 SF Po Doc 165 SF 108 181 SF 10023 BTH 1269 SF 10040 Lobb 53 SF 10060 61 SF 10022 BTH 141 SF 10021 BTH Propo ed Area Plan 10040 Lobb 103 Open S d 103A S d Room 103B S d Room 103C S d Room 103D S d Room 104 104A In er ie 1 In er ie 2 In er ie 3 In er ie 4 In er ie 5 In er ie 6 Admini ra i e A an Direc or Lec rer Po Doc Profe or of Prac ice Program Manager 46 SF 10022 247 SF Ele a or 127 SF Admini ra e A an 180 SF Program Manager 182 SF Profe or of Prac ice 182 SF Lec rer 190 SF Direc or 185 SF Direc or 148 SF In er ie 6 95 SF In er ie 4 96 SF In er ie 5 91 SF In er ie 2 91 SF In er ie 1 86 SF In er ie 3 A hle Herrera Scale Da e Dra n b Checked b 1/8" = 1'-0" 5/16/2022 10:34:29 PM A102 Propo ed Area Plan Carpen er Hall Reno a ion Projec 05/19/22 A hle Herrera Checker 1/8" = 1'-0" 1 Le el 1 N.DecnDae

19'1 3/4" 15'11 23/32" 0'11 3/16"

Diec

36'0 21/32"

01 17' - 3"

103D

16' - 3" 9'11 7/32" 12'2 7/32" 9'9 1/4"

10'4 1/2" 21'0"

Lab 104 CnfeenceRm 104A Ineie 13 Ineie 12 Ineie 11 Ineie 10 Ineie

10'6"

11'9"

8'6"

Rm 8 Floor Plan

8'8"

8'6"

8'6"

Lece 04 PgamManage 03 05/19/22 A

Ineie Da e Dra

a ion Projec

Carpen er Hall

n b Checked b

Diec Herrera Checker 1/8" = 1'-0" 1 Floor Plan

hle

1'-0"

PDc 06 Adminiae Aan 07 5/16/2022 10:34:32 PM A106

5
A B 1 C D 2 3 4
6 7 8 9 10 SdRm
103A
SdRm
103B
SdRm
103C
SdRm
OenSd 103 BleCme
09 A hle Herrera Scale
08 1/8" =
Rm 10 Pfef Pacice 05 Reno
02 N.DecnDae
17' - 0 15/16" 11' - 1" 16' - 2 19/32"
8'9"
5 6 7 8 9 10
A hle Herrera Scale Da e Dra n b Checked b 1/8" = 1'-0" 5/16/2022 10:34:34 PM A108 F rni re Plan Carpen er Hall Reno a ion Projec 05/19/22 A hle Herrera RM 1/8" = 1'-0" 1 F rni re Plan N.DecnDae
A B 1 C D 2 3 4
C01 C01 LC01LC01 T04 T04 LC01LC01 T04T04 LC01 T04T04 LC01LC01LC01 T04 T04 T04 T04 T04 T04 T04T04 T04 T04T04 T04 T04 T04T04 T04 C01 C01 C01 C01 C01 C01 C01 C01 C01 C01 C01 C01 C01 C01 C01 C01 C01 C01 C01 C01 CO03 CO05 O02 ST05 ST05 CO01 O01 CO02 ST04 ST04 C02 C02 C02 ST06 C02 U01 U01 U01 U01 U01 U01 U01U01 O01 CO02 CO01 O01 ST04 ST04 ST04 T02T02 T02 T02 T02 T02 T02T02 T02 T02 T02T02 T02 T02 T02T02 ST02 U02 U02 U02 ST02 ST02 ST02 CO06 ST02 CO07 CO07 CO06 CO06 CO07 CO07 CO06 T02 T02 T02T02 T01T01T01 T01T01T01 T01 T01 T01 T01T01 T01 T01T01 ST01 CO04 CO05 CO05 ST03 ST04 ST04 C01 S01 S01 C01 C01 C01 C01 C01 C07 C09 C04 C04 C04 C04 C04 C04 C01 C01 C01 C01 C01 C01 C01 C01 T03 T03 T03 T03 T03 ST03 ST03 ST03 ST03 A03 A01 A07 A02 A06 C06 C03 C03 C06 C03 C06 C05 C03 C03 C05 C05 C03 C02 C02 C02 C08 C02 C02 C02 C02 C02 C02 C02 C02 C02 ST06 ST06 ST06 LC01 LC01T04 T04

Turn static files into dynamic content formats.

Create a flipbook
Issuu converts static files into: digital portfolios, online yearbooks, online catalogs, digital photo albums and more. Sign up and create your flipbook.