



Aperçu 3700, boul. des Sources, Dollard-des-Ormeaux (Qc) H9B 1Z9

Situé au 3700, boulevard des Sources, au cœur de Dollard-des-Ormeaux, cet immeuble de bureaux s’inscrit dans un environnement d’affaires établi et en constante évolution. Son emplacement au sein de l’Ouest-de-l’Île en fait une adresse stratégique pour les entreprises souhaitant s’établir dans un secteur reconnu pour sa stabilité et son attractivité. À proximité d’un éventail complet de services et d’infrastructures commerciales, dont le CF Fairview Pointe-Claire, la propriété offre un cadre de travail fonctionnel et agréable, propice aux activités professionnelles au quotidien. Superficie

Situé à proximité du centre commercial CF Fairview Pointe-Claire, offrant une vaste sélection de commerces et services




Emplacement directement sur le boulevard des Sources, une artère commerciale majeure reliant l’autoroute 20 à l’autoroute 40
Propriété accessible par plusieurs lignes d’autobus du réseau local (STM et exo), reliant les pôles environnants
À proximité du REM (station Fairview–Pointe-Claire), améliorant la connectivité vers le centre-ville de Montréal
Environnement à vocation mixte combinant commerces de détail, bureaux et services


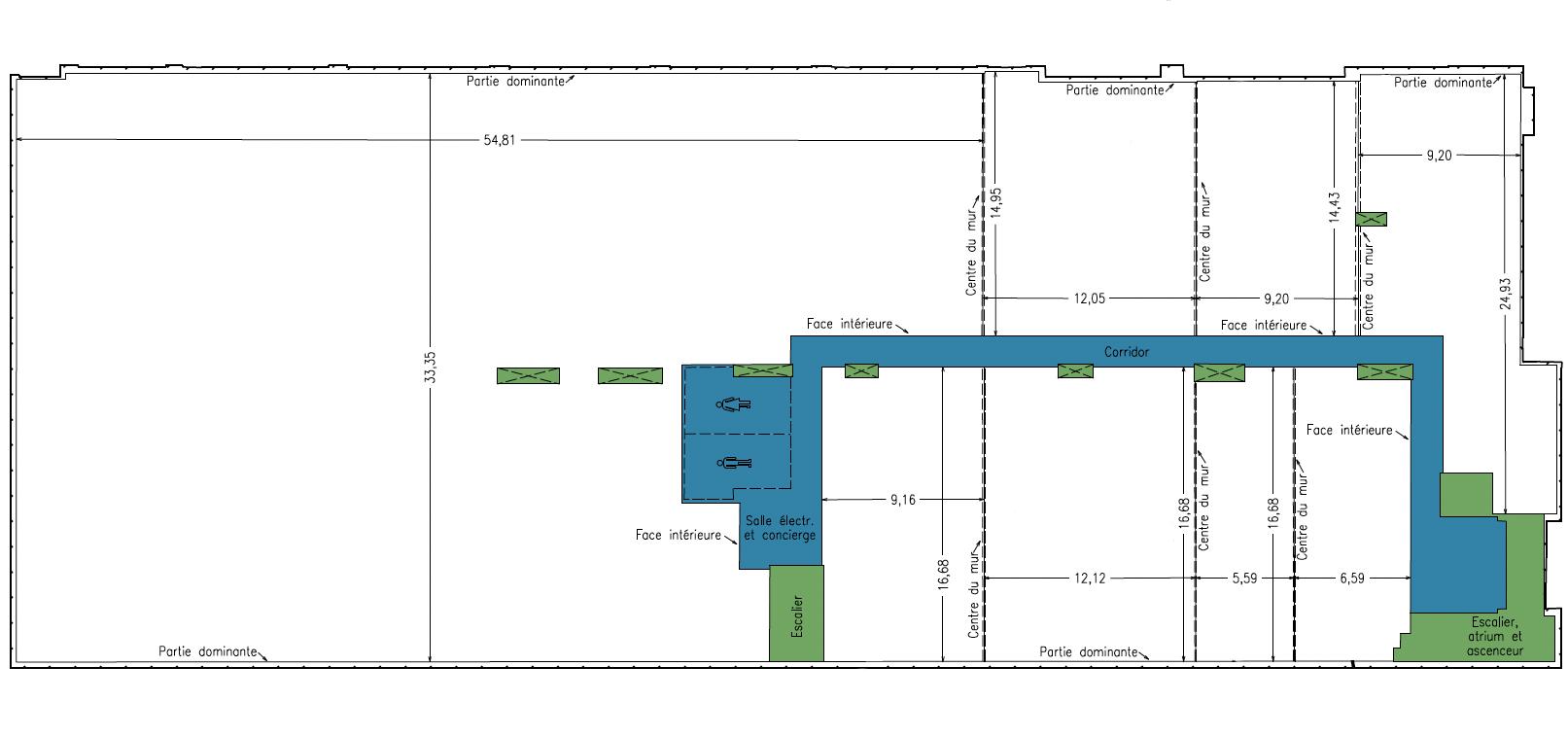
Plan d’étage | Premier étage 3700, boul. des Sources, Dollard-des-Ormeaux (Qc) H9B
1Z9

BOULEVARD DES SOURCES

Commercial-3750 3 180 pi 2
AVIS DE NON-RESPONSABILITÉ
Services immobiliers Asgaard Inc., 2026. Tous droits réservés. Les renseignements contenus aux présentes proviennent de sources que nous jugeons fiables. Toutefois, nous ne faisons aucune déclaration ni ne donnons aucune garantie quand à l’exactitude desdits renseignements.
Plan d’étage | Deuxième étage 3700, boul. des Sources, Dollard-des-Ormeaux (Qc) H9B
1Z9

BOULEVARD DES SOURCES

Bureau 2 2 363 pi 2
Bureau 3 1 074 pi 2
AVIS DE NON-RESPONSABILITÉ
Services immobiliers Asgaard Inc., 2026. Tous droits réservés. Les renseignements contenus aux présentes proviennent de sources que nous jugeons fiables. Toutefois, nous ne faisons aucune déclaration ni ne donnons aucune garantie quand à l’exactitude desdits renseignements.
Plan d’étage | Rez-de-chaussée (RDC)
17 Rue Hyman, Dollard-des-Ormeaux, QC H9B 0B7
NOUVELLE CONSTRUCTON


Situé au cœur du Faubourg DDO à Dollard-des-Ormeaux, ce projet résidentiel d’envergure intègre des espaces commerciaux en rez-de-chaussée, offrant une opportunité d’établissement au sein d’un milieu de vie en pleine croissance.
Bénéficiant d’une visibilité en façade et d’un achalandage généré par une clientèle résidentielle immédiate, les locaux se prêtent idéalement à des commerces de proximité, des services ou des concepts alimentaires. Le projet s’inscrit dans un secteur en développement actif, soutenu par une densification résidentielle et une demande accrue pour une offre commerciale de quartier, créant un contexte favorable pour des détaillants souhaitant capter une clientèle locale fidèle.

PHASE II - Disponibilités
Paramètres

POUR PLUS DE RENSEIGNEMENTS :
MAX FRANCISCHIELLO, MBA
Président
ALYSSA CAMIDE
Associée
LAURIE CHARRON
Associée

Courtier immobilier agrée maxf@asgaard.ca
AVIS DE NON-RESPONSABILITÉ

Courtier immobilier commercial acamide@asgaard.ca
Courtier immobilier commercial lcharron@asgaard.ca

Le présent document a été préparé par Services immobiliers Asgaard Inc. à des fins d’information générale et de marketing uniquement. Aucune déclaration ni garantie, explicite ou implicite, n’est faite quant à l’exactitude, l’exhaustivité ou la fiabilité des renseignements qu’il contient. Toute partie intéressée est invitée à effectuer sa propre vérification indépendante des informations présentées.
Services immobiliers Asgaard Inc. décline toute responsabilité quant aux pertes ou dommages pouvant découler de l’utilisation du présent document. Cette publication est la propriété de Services immobiliers Asgaard Inc. et/ou de ses concédants et est protégée par le droit d’auteur. © 2026. Tous droits réservés. Cette communication ne vise pas à causer ni à entraîner la rupture d’un mandat de courtage ou de représentation existant.
SERVICES IMMOBILIERS ASGAARD INC. AGENCE IMMOBILIÈRE | asgaard.ca 630, rue Saint-Paul O., bureau 500, Montréal, Québec, H3C 1L9 | T. 514 729-8484