




Aperçu 5101, rue Buchan, Montréal (Qc) H4P 2R9
5101 Buchan is a Class B office building located in the Côte-des-Neiges district. Offering approximately 131,086 sq. ft. over five floors, it features efficient floor plates and a strategic location just a ~5-minute walk from Namur Metro Station. The property also benefits from excellent road access, surface parking, and LEED certification.






À 15 minutes du centre-ville de Montréal
À proximité des autoroutes 15 et 40
À ~5 minutes de marche du métro Namur
de commodités de haute qualité


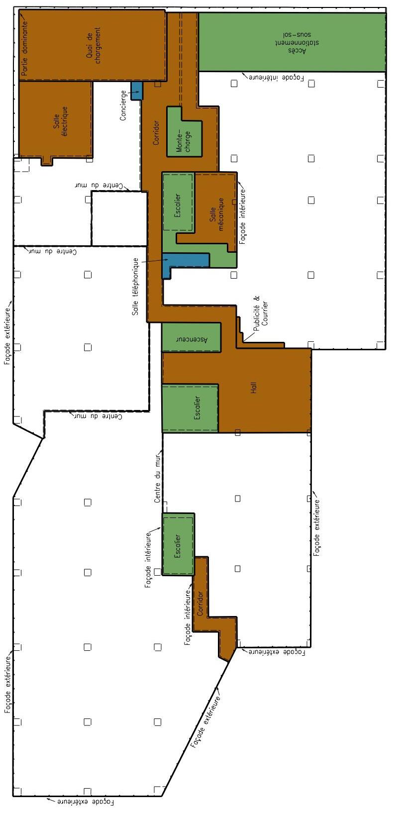
Plan d’étage | Rez-de-Chaussée (RDC)
rue Buchan, Montréal (Qc) H4P 2R9

Plan d’étage | 2ième étage
rue Buchan, Montréal (Qc) H4P

BUREAUX
Plan d’étage | 3ième étage
rue Buchan, Montréal (Qc) H4P 2R9

BUREAUX
Plan d’étage | 4ième étage
rue Buchan, Montréal (Qc) H4P 2R9

BUREAUX
Plan d’étage | 4ième étage 5101, rue Buchan, Montréal (Qc) H4P 2R9

BUREAUX

POUR PLUS DE RENSEIGNEMENTS :
MAX FRANCISCHIELLO, MBA
Président
ALYSSA CAMIDE
Associée

Courtier immobilier agrée maxf@asgaard.ca
AVIS DE NON-RESPONSABILITÉ

Courtier immobilier commercial acamide@asgaard.ca
Le présent document a été préparé par Services immobiliers Asgaard Inc. à des fins d’information générale et de marketing uniquement. Aucune déclaration ni garantie, explicite ou implicite, n’est faite quant à l’exactitude, l’exhaustivité ou la fiabilité des renseignements qu’il contient. Toute partie intéressée est invitée à effectuer sa propre vérification indépendante des informations présentées.
Services immobiliers Asgaard Inc. décline toute responsabilité quant aux pertes ou dommages pouvant découler de l’utilisation du présent document. Cette publication est la propriété de Services immobiliers Asgaard Inc. et/ou de ses concédants et est protégée par le droit d’auteur. © 2026. Tous droits réservés. Cette communication ne vise pas à causer ni à entraîner la rupture d’un mandat de courtage ou de représentation existant.
SERVICES IMMOBILIERS ASGAARD INC. AGENCE IMMOBILIÈRE | asgaard.ca 630, rue Saint-Paul O., bureau 500, Montréal, Québec, H3C 1L9 | T. 514 729-8484