



![]()




Le 550 Beaumont bénéficie d’un emplacement stratégique, à 10 minutes du centre-ville, à proximité de trois lignes d’autobus, de deux stations de métro (Acadie et Parc) et accessible à pied depuis la gare de l’AMT. L’immeuble propose des espaces de style loft, lumineux, avec de hauts plafonds et un loyer compétitif, offrant une excellente opportunité pour votre entreprise.
du bâtiment
de construction / rénovation
Superficie par étage






Emplacement stratégique à 15 minutes du centre-ville
Accessible à pied depuis la gare de l’AMT
Espaces de style loft avec hauts plafonds
Près des stations de métro Acadie et Parc
À proximité des lignes d’autobus 80, 93 et 179.
Loyer compétitif offrant une excellente valeur locative



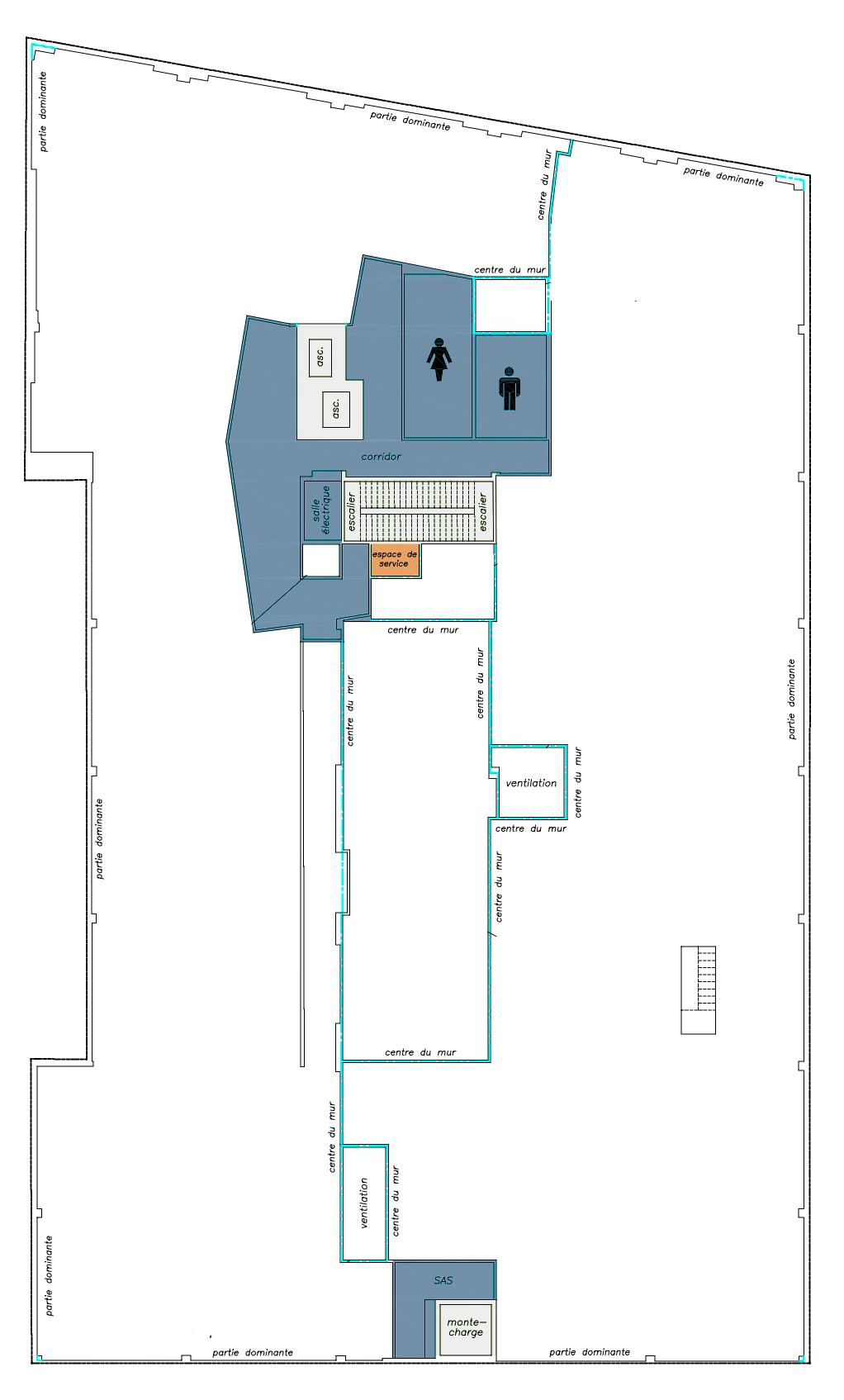
Plan d’étage | 2e étage 550, avenue Beaumont, Montréal (H3N 1V1)

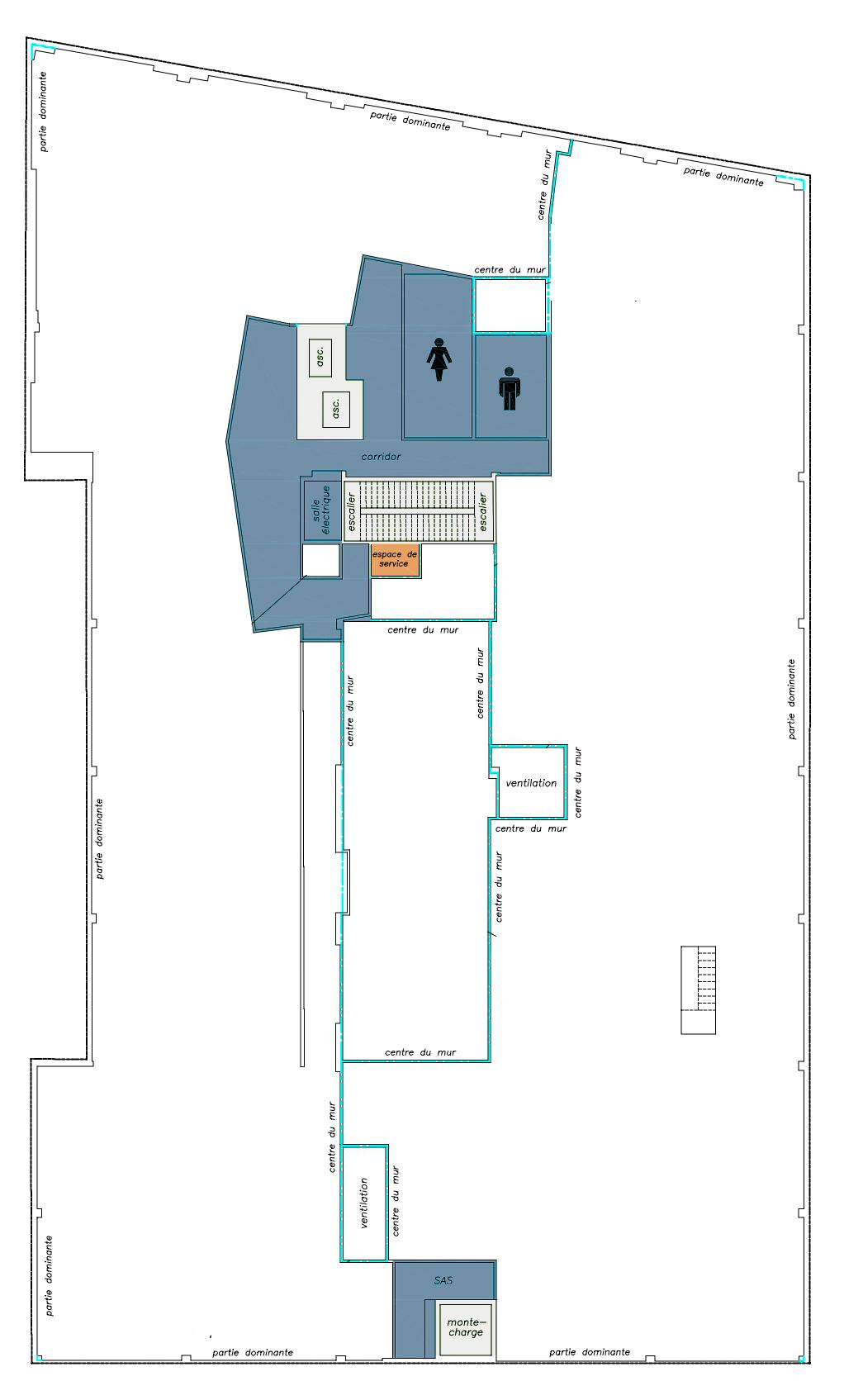
Plan d’étage | 4e étage 550, avenue Beaumont, Montréal (H3N 1V1)

Plan d’étage | 5e étage 550, avenue Beaumont, Montréal (H3N


POUR PLUS DE RENSEIGNEMENTS :
MAX FRANCISCHIELLO, MBA
Président
ALYSSA CAMIDE
Associée

Courtier immobilier agrée maxf@asgaard.ca
AVIS DE NON-RESPONSABILITÉ

Courtier immobilier commercial acamide@asgaard.ca
Services immobiliers Asgaard Inc., 2026. Tous droits réservés. Les renseignements contenus aux présventes proviennent de sources que nous jugeons fiables. Toutefois, nous ne faisons aucune déclaration ni ne donnons aucune garantie quand à l’exactitude desdits renseignements.
SERVICES IMMOBILIERS ASGAARD INC. AGENCE IMMOBILIÈRE | asgaard.ca 630, rue Saint-Paul O., bureau 500, Montréal, Québec, H3C 1L9 | T. 514 729-8484