


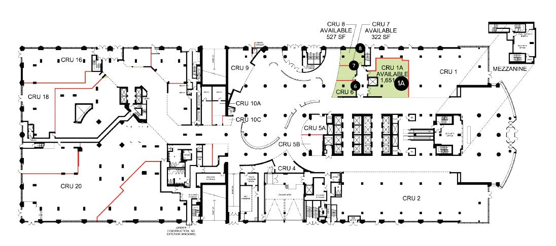
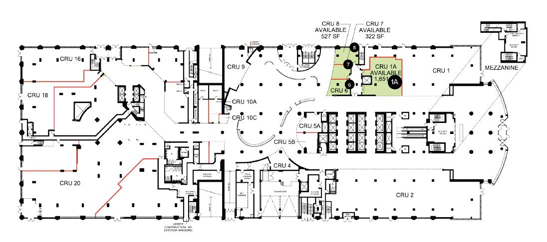
160 Elgin Street, Ottawa (ON) K2P 2P7
ONE60 Elgin stands out against Ottawa’s skyline, towering at 27 stories with one million square feet of office space. The ground floor is exclusively reserved for the Cuisine Club and shops, making it a distinctive and convenient destination for both locals and visitors.

















