


![]()



400 Cooper Street, also known as the Chomley Building, is located in the heart of Ottawa’s Centretown, just south of the Central Business District. The property is within walking distance of major landmarks, government buildings, cultural venues, parks, and the CF Rideau Centre. Well connected by public transit along Bank Street, the area offers a vibrant mix of residential and commercial uses.




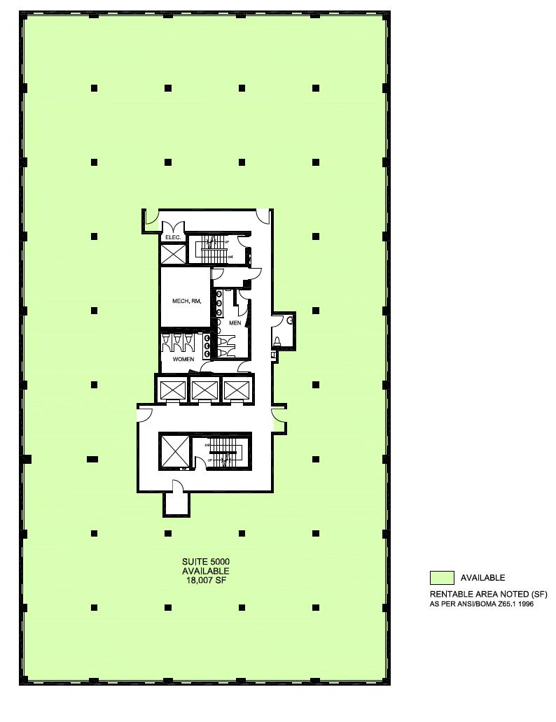
Information
Builing Class B
Number of floors 9 - storey + basement
Unfinished Ceiling Height 10’
Parking Space
200 Surface Parking Spaces at $232,68 CAD/month (HST included) 120 Covered Parking Spaces at $240 CAD/month (HST included)
Parking Ratio Covered 1/1,500 sq.ft. Surface 1/1,100 sq.ft.
Amenities
Fitness room, showers and secured Bike racks on site
Elevator Three elevators
Telecom provider Telus, Bell, Rogers
Public transit Bus nearby - 10 minutes walk from LRT station (Queen/O’Connor)
Certification BOMA BEST Certified GREEN

Walk Score







Commuter Rail Airport


Transit Score Excellent Transit (89)

Bike Score





























CONTACT US FOR LEASING OPPORTUNITIES :
JOHN ESPOSITO
Vice President, Broker of Record (Ontario)

Asgaard Real Estate Services Inc. jesposito@asgaard.ca

MAX FRANCISCHIELLO, MBA President Chartered Real Estate Broker maxf@asgaard.ca
ASGAARD REAL ESTATE SERVICES INC., © 2026. ALL RIGHTS RESERVED. Information contained herein is provided for general informational purposes only and is based on sources believed to be reliable. No representation or warranty, express or implied, is made as to its accuracy or completeness. Interested parties should conduct their own independent verification. This communication is not intended to cause or induce the breach of any existing listing or brokerage agreement.
ASGAARD REAL ESTATE SERVICES INC. | asgaard.ca 160 Elgin, Suite 1800, Ottawa, Ontario, K2P 2P7 | T. (613) 565-4848