


![]()



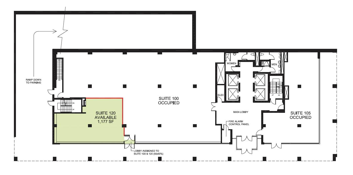
171 Slater Street is a 13-storey office tower, also known as the Vanguard Building, prominently situated at the corner of Slater and O’Connor Streets in Ottawa’s central business district. The property is within walking distance of Sparks Street Mall, Parliament Hill, government offices, major hotels, and a wide selection of restaurants and services. Easily accessible via public transit and major arterial routes, the building is located approximately 280 metres from the Parliament LRT Station. Tenants benefit from a ground-floor Tim Hortons with direct lobby access, as well as a professionally managed building featuring a staffed security desk and secure 24/7 card-controlled access.













Commuter




























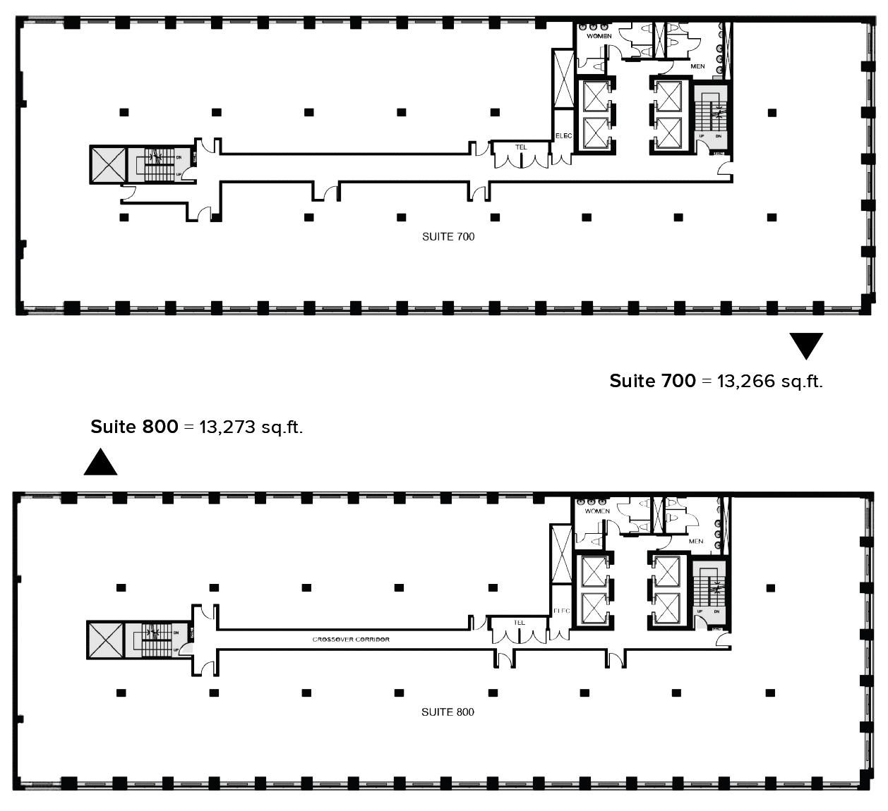
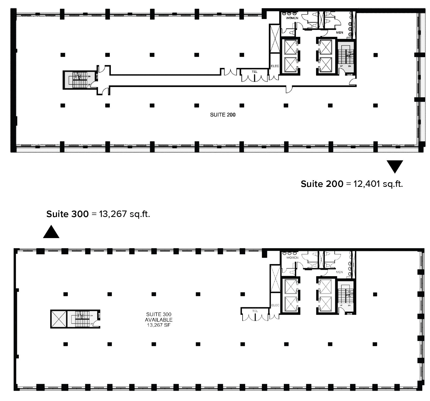
Suite 700 = 13,266 sq.ft. Suite 800 = 13,273 sq.ft. LEASING INQUIRY :






JOHN ESPOSITO
Vice President, Broker of Record (Ontario) Asgaard Real Estate Services Inc. jesposito@asgaard.ca

MAX FRANCISCHIELLO, MBA President Chartered Real Estate Broker maxf@asgaard.ca

ASGAARD REAL ESTATE SERVICES INC., © 2026. ALL RIGHTS RESERVED. Information contained herein is provided for general informational purposes only and is based on sources believed to be reliable. No representation or warranty, express or implied, is made as to its accuracy or completeness. Interested parties should conduct their own independent verification. This communication is not intended to cause or induce the breach of any existing listing or brokerage agreement.
ASGAARD REAL ESTATE SERVICES INC. | asgaard.ca 160 Elgin, Suite 1800, Ottawa, Ontario, K2P 2P7 | T. (613) 565-4848