Skip to main content

À vendre | 605 Saint-Joseph, Québec

Page 1


Aperçu 605, rue Saint-Joseph est, Québec (QC) G1K 3C1

Situé au cœur du quartier Saint-Roch, le 605 rue Saint-Joseph Est offre une visibilité exceptionnelle sur une artère commerciale animée. Entouré de commerces, restaurants et services, cet emplacement bénéficie d’un achalandage constant et d’un accès facile en transport en commun. Parfait pour un commerce de détail ou un service de proximité

Emplacement de la propriété

9 332 pi2 Superficie du terrain

39 690 pi2 Superficie de l’immeuble 4 Nombre d’étages

Bâtiment traditionnel en brique et pierre

Situé dans le Quartier Saint-Roch

Adjacent au centre historique du Vieux-Québec

Près de tous les services

10 minutes à pieds de la Gare du Palais

Détecteurs de chaleur et de fumée, système de gicleurs disponible

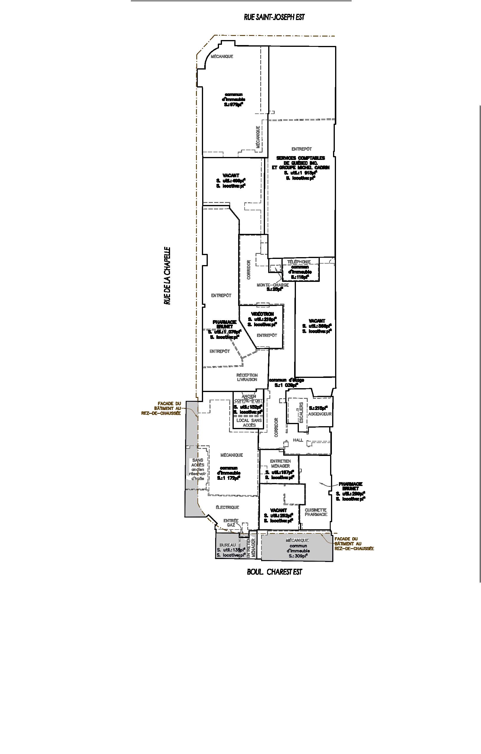
Aperçu 605, rue Saint-Joseph est, Québec (QC) G1K 3C1

Plan du

NOTE IMPORTANT : Les informations relatives aux superficies et dimensions sont approximatives et ne sont fournies qu’aux seules fins de discussion.

Aperçu 605, rue Saint-Joseph est, Québec (QC) G1K 3C1

Plan du

NOTE IMPORTANT : Les informations relatives aux superficies et dimensions sont approximatives et ne sont fournies qu’aux seules fins de discussion.

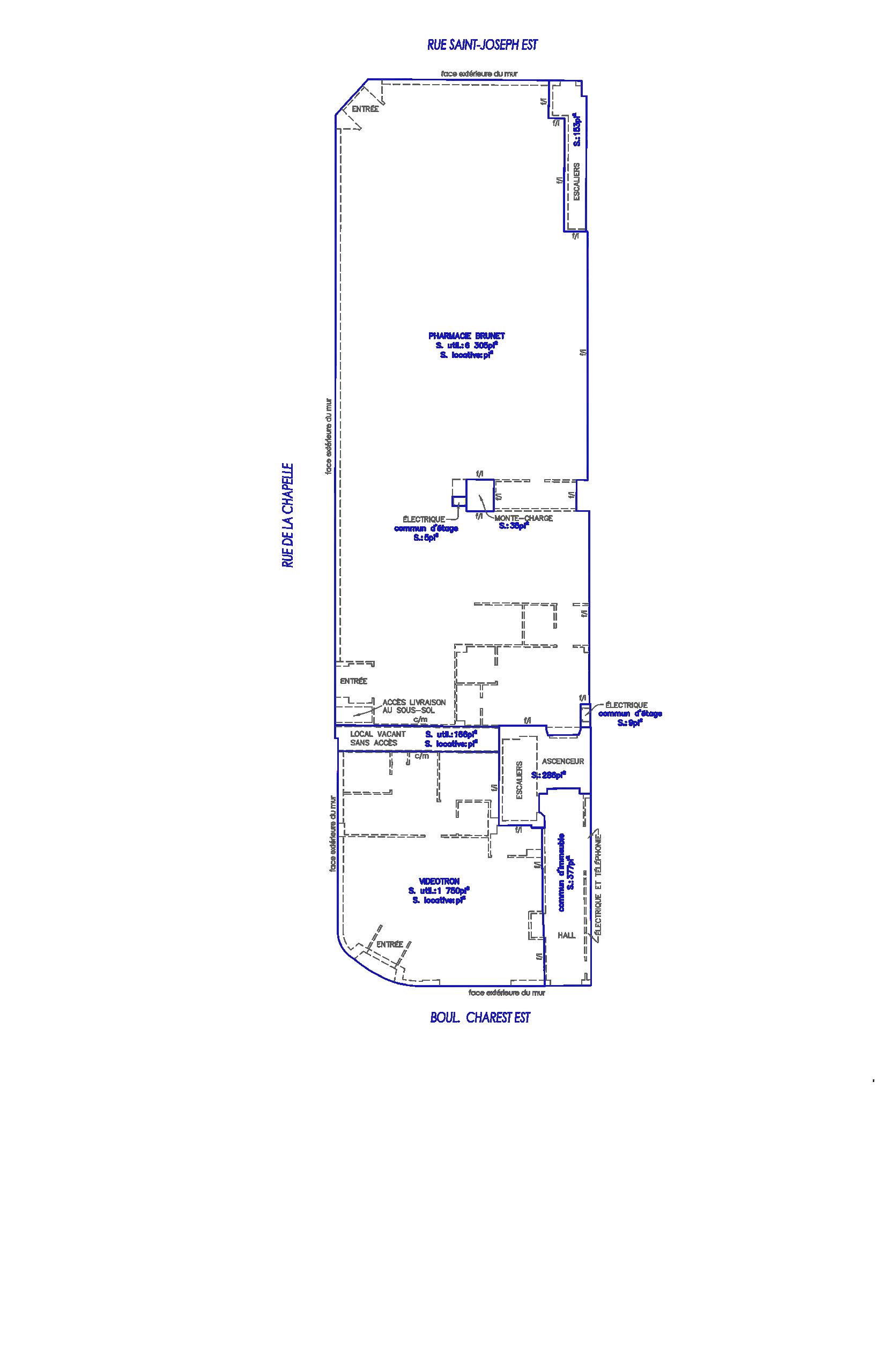
Aperçu 605, rue Saint-Joseph est, Québec (QC) G1K 3C1

Plan du deuxième étage

NOTE IMPORTANT : Les informations relatives aux superficies et dimensions sont approximatives et ne sont fournies qu’aux seules fins de discussion.

Aperçu 605, rue Saint-Joseph est, Québec (QC) G1K 3C1

Plan du troisième étage

NOTE IMPORTANT : Les informations relatives aux superficies et dimensions sont approximatives et ne sont fournies qu’aux seules fins de discussion.

Aperçu 605, rue Saint-Joseph est, Québec (QC) G1K 3C1

Plan du quatrième étage

NOTE IMPORTANT : Les informations relatives aux superficies et dimensions sont approximatives et ne sont fournies qu’aux seules fins de discussion.

POUR PLUS DE RENSEIGNEMENTS :

MAX FRANCISCHIELLO, MBA

Président

MARC LEMAY

PIERRE-LUC DUFOUR

Vice-président, location

Courtier immobilier agrée maxf@asgaard.ca

AVIS DE NON-RESPONSABILITÉ

Vice-président, associé Courtier immobilier commercial mlemay@asgaard.ca (514) 968-6800

Courtier immobilier commercial pldufour@asgaard.ca (418) 455-2120

Services immobiliers Asgaard Inc., 2026. Tous droits réservés. Les renseignements contenus aux présventes proviennent de sources que nous jugeons fiables. Toutefois, nous ne faisons aucune déclaration ni ne donnons aucune garantie quand à l’exactitude desdits renseignements.

SERVICES IMMOBILIERS ASGAARD INC. AGENCE IMMOBILIÈRE | asgaard.ca 630, rue Saint-Paul O., bureau 500, Montréal, Québec, H3C 1L9 | T. 514 729-8484

Turn static files into dynamic content formats.

Create a flipbook