Alan Castro Portfolio

Page 1

ALAN CASTRO ARCH. WORKS

PROJECTS

Ice Field Museum

The Atomic Lake Memorial

Greenwood Public Library

CONTENTS

Crescent Lounge Chair

Freehand Drawings

Thaden Bike Barn Exhibit Model

4-17 18-27 28-37 38-43 44-49 50-53

ICE FIELD MUSEUM

Team Project

Museum of Architecture and Design

Location:Helsinki, Finland

This museum is a destination for architecture and design that unites the community as a place of learning and creating. Celebrating the history of Finnish architecture and design is a key concept. Connecting this rich history with local culture is a way to unite the design to the site. Ice Field was inspired by the landscape in Northern Finland.

The museum is composed of five buildings united underneath a sloping roof that was inspired by an iceberg form. These buildings are all connected through a series of bridges. The site of Ice Field serves three main accesses: boat, city, and landscape. Ice Field utilizes views of the Harbor to its east, city views of Helsinki to the north and west, and park views to the south. The chiseled form creates opportunities for natural light and views throughout the building. Ice Field’s interior spaces mirror the iceberg form of the exterior. This provides opportunities within the museum to not only educate the community about Finnish architecture and design, but also give locals the opportunity to create their own designs. Within the masses is a courtyard inspired by the Finnish landscape and allows guests to experience architecture and design inside and out.

Left Study Models Opposite Concept Diagram & Site Plan Site Courtyard Split Bridges Left Perspective from lobby Opposite First Floor Plan
Key
1. Entry
2.
Retail
3.
Kitchen
4. Canteen
Offices
5.
6. Children's Area
7. Library
&
8. Meeting
Personnel Services
9. Courtyard
1 2 4 3 5 6 7 8 9 10
10. Boardwalk
Left Perspective from exhibition spaces Opposite Second Floor Plan
Key 11. Exhibition Space 12. Labs 13. Grand Hall 11 11 1 2 8
Left Perspective from courtyard Opposite Section & Elevation

ATOMIC LAKE MEMORIAL

Team Project

The Last Nuclear Bomb Memorial Competition

Location: Kazakhstan

The project site is Lake Balapan (Lake Chagan) in Semipalatanisk, Kazakhastan. This lake was created by the Soviet Union Chagan nuclear test in 1965. This site was chosen because of the symbolism between the natural lake and the lake created as a direct result of an atomic test. This atomic lake represents the past and the humanhand while the natural lake represents the future and the environmental movement prompted by protests towards nuclear testing.

The building sits on the axis between the first and last year as a placeholder to claim the end of nuclear testing. The building form and placement serves to "stitch" together the past and future both in plan and section.

At Lake Balapan, nuclear testing occurred here over a span of 25 years. In this design, the atomic lake was turned into a timeline, divided into 25 sections. Utilizing morse code, the number of tests that happened each year are shown through steel truncated cones and concrete prisms that take the form of benches. There are 4 years during this time that did not have tests and these are represented by natural stone and trees.

Left Site Images Opposite Concept Diagram & Boardwalk Perspective
1 2 3 4 5 6
Key 1. Lobby 2. Classroom 3. Theater 4. Restrooms 5. Storage 6. Residence 7. Resident Community Space 8. Gallery 9. Interpretive Hall
1 3 5 6 7 4 2
10. Admin
10 8 9
Atomic Lake Natural Lake

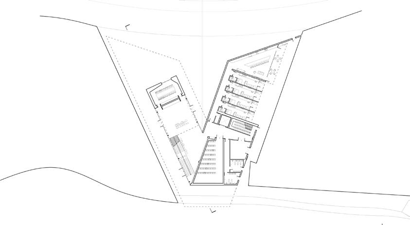
GREENWOOD BRANCH LIBRARY

Public Library

Location: Greenwood Arkansas

Set on a corner lot in Greenwood, AR is the proposal for a public library design that is surrounded by small businesses, a courthouse, and is adjacent to The Greenwood memorial square which had an influence in the design process.

A key part of the Veterans’ Memorial Square, is the “Patriots Walk”. It circles the clock tower and contains granite stones, bearing the names of veterans.

The first step we took in the massing strategy was to create a mass that continues the urban edge of the neighboring buildings that frames the memorial. Even though the design pays homage to the memorial, a central space is created within the site.Through this play of angling the walls and roof, a sculptural mass is created as an entity completely different from the ground level and the existing buildings. Almost as if this mass is floating or set upon this pedestal. The paneling in the exterior of the second level adds to the experience throughout the entire project

Floor Plan
First
Left First
Far Left Perspective from
Floor
Right Second Floor Plan Far Right Perspective from Reading Area
Cafe Lobby
Computer Lab Children's Area
Left Perspective from Entry Opposite Structure Details Opposite Right Section Axon

CRESCENT LOUNGE CHAIR

Fay Jones School of Architecture & Design Super Jury 2023

Designed and Crafted Lounge Chair

Simple, natural materials that tell the story of how the chair was made, whilst still creating impact are the ultimate qualities of good design. Good chair design is honest, long lasting, thorough, unobtrusive and aesthetic. Good design is generally at its best when hand crafted, naturally inspired and created using minimal materials. Chairs that are made rather than manufactured carry with them individuality, purity and their own story.

The Crescent Lounge Chair is made from high quality natural materials. Poplar wood makes up the frame of the chair and is woven by danish cord for the back and seat. It’s easy on the eyes and encourages relaxation.

A natural woven seat imbues in a chair the feeling of craftsmanship, casual luxury and heritage. The broad armrests add to the comfort of the chair and make it easy to get up from, even with its low seat height and reclining back. The moderate dimensions fit easily into interiors where space is a factor. The simple choice of materials give it a neutral appearance that make it blend in well.

Left Chair on Display Opposite Exploded Axon Opposite Right Chair Front Elevation Left Detail of Weaving and Joints Opposite Process of Construction

FREE HAND DRAWINGS

Sketches in Rome

The city of Rome can be considered one of the powerhouses of architecture. It was one of the revolutions of its kind which has had great influences on present-day architecture, adapted and followed in many parts of the world. The Romans have left behind architectural landmarks with their unique style and concepts.

These are just a few of my sketches done for Architecture of the City while studying abroad in Rome. The course consisted of on-site walking sessions exploring and understanding the layers of Rome.

For my final I chose to study The Colosseum's structure and geometry through a seriesof sketches is one of the finest examples of a Roman Amphitheatre with a spectacular ornamented exterior and a network of barrel vaults supporting the spectator seats. In addition to this, it also has a series of underground rooms used to hide animals and props which were brought into the central arena only for events.

ALAN CASTRO

Turn static files into dynamic content formats.

Create a flipbook
Issuu converts static files into: digital portfolios, online yearbooks, online catalogs, digital photo albums and more. Sign up and create your flipbook.