PORTFOLIO

| ARCHITECTURAL TECHNOLOGIST |
| ARCHITECTURAL AND INTERIOR DESIGN COORDINATOR |


A 4-storey residential project with building area of 1660 sq.m. This project was the part of FarMor Architecture training program, oriented to guide the new comes about Canadian construction. This project is a thorough guidance for wood construction details and NBC 2019 (Vol. 1 – Division B - Part 3)
PROJECT BY FARMOR ARCHITECTURE, CALGARY
LOCATION STONEY PLAIN, ALBERTA


WALL CONSTRUCTION DETAILS



PROJECT TYPE MULTI RESIDENTIAL BUILDING
RE-DRAFTED FOR TRAINING PROGRAM BY FARMOR ARCHITECTURE



SKETCHES







The Sedona 34’ wide model with 3000 sq.ft area is a spacious and versatile home featuring a stunning double-height great room, a walk-in pantry, and a main floor flex room with both a full and half bath. The upper floor boasts a splitbedroom design, a bonus room, and a flex space, with the owner’s suite offering a walk-through closet to the laundry.
Designed in 2025 for WestCreek Homes, this model has achieved strong market success, with sales to almost 10 home buyers. STATUS Residential model – Sedona



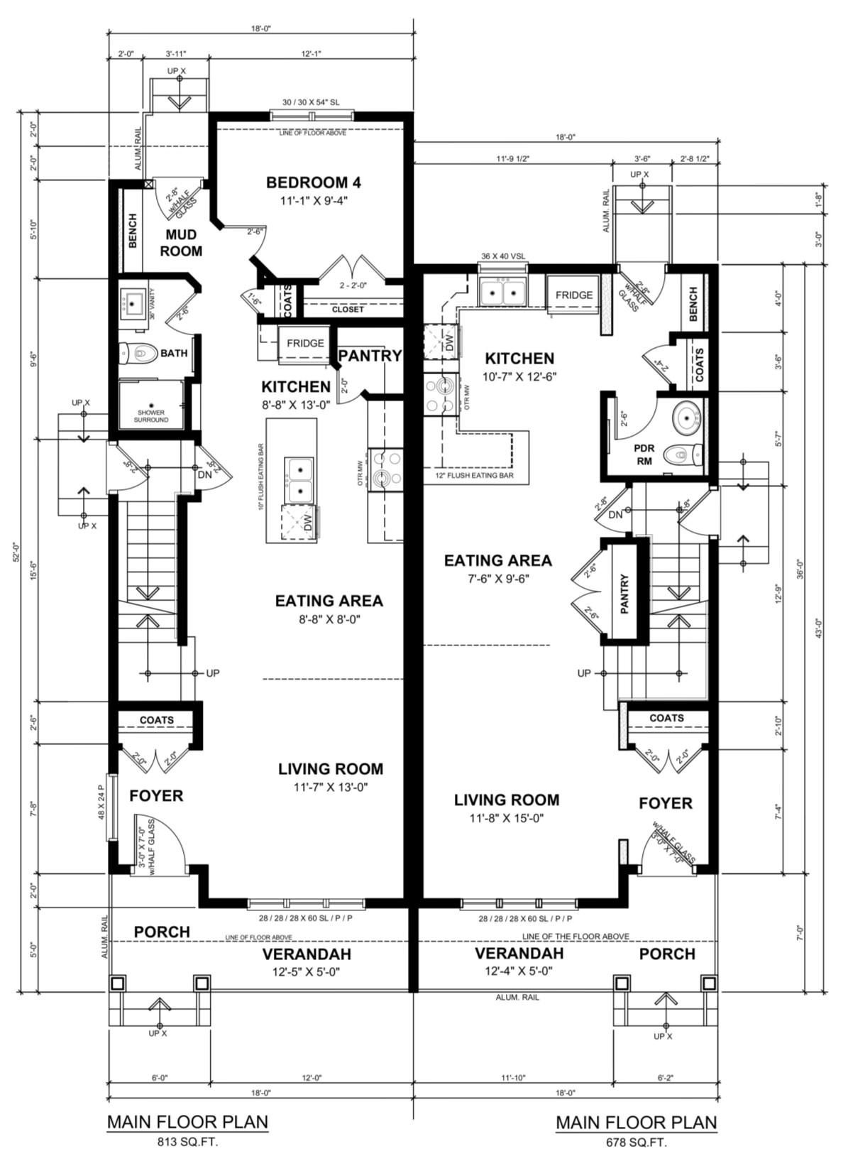
Efficiently designed semi-detached units that maximize space utilization at the lowest possible cost.
Sierra model (left) with 1671 sq.ft and Cascade Model (right) with 1401 sq.ft
Designed in 2025 for WestCreek Homes, this model has achieved strong market success, with sales to almost 5 home buyers.
STATUS Residential model – Sierra-Cascade
LOCATION Legacy Calgary , AB YEAR 2025 HOUSE



Series of Zero LOT houses planned for Belvedere in the South-East of Calgary – Day & Night view

Ranging from different design styles like Craftsman, Priere & Homestead and in the theme of dark accent color tones, Belvedere houses stand elegant in it own.
STATUS UNDER CONSTRUCTION
LOCATION BELVEDERE Calgary , AB
YEAR 2024
HOUSE STYLE ZERO LOT HOUSES









Inspite of the challenges with narrow ZERO LOTS, it’s a privilege to come-up with spacious and comfortable spaces to fulfil the client’s need with-in their budgets.


Soothing color choice in interior spaces makes it a long-lasting experience for the user.
Nude colors with a punch of accent tones makes it vibrant yet soothing.


Glimpse of the interior spaces portraying the ability to design interior spaces as per the Client’s need and technical skills to demonstrate the ideas

A corner lot spread in 587 Sq,M with a lush green surrounding allows to provide a design for lavish bungalow along with three cars garage space.
Bungalow with 3 bedrooms on the main floor and three in the basement allows the user to fully use the space to the best of his needs.






LOCATION COCHRANE, ALBERTA
2023
HOUSE STYLE 2 STOREY HOUSES WITH SECONDARY SUITES
Overall sectional 3d view helps the client to understand the space and it’s uses before they step forward to pick their dream home

A HOMESTEAD STYLE elevation with high pitched roof & addition of backets gives the home a decorative look







A CRAFTSMAN STYLE elevation with the addition of backets gives the home a decorative look

A PRIERE STYLE elevation with series of small windows makes it stand out from other houses