Tap san kien truc Palm Garden

Page 1

KHÔNG KHÔNGXANHGIANGIANXANH

PALM GARDEN Khởi Nguồn Của Hạnh Phúc

01

PALM GARDEN TÀI TRỢ VÀ PHÁT HÀNH

02

thành phố.

03

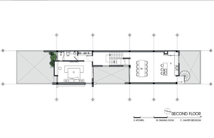
Tên gọi Tropical Townhouse ã thể hiện ây là căn nhà phố phong cách thiết kế Địa Trung Hải. Phong cách này mang ến cho gia chủ không gian sống tươi mới, cảm giác gần gũi thiên nhiên, thoải mái và phóng khoáng. 04

05

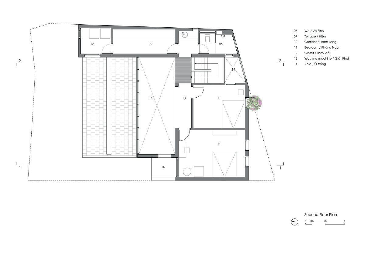
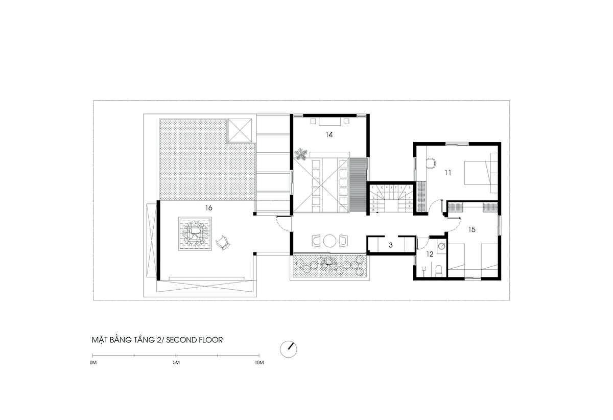
06 Ý tưởng về không gian nhiều lớp, dàn trải dần, tạo ra chiều sâu về không gian cho ngôi nhà. Toàn bộ không gian sinh hoạt chính ược mở ra thiên nhiên thông qua các khoảng hiên dài, nhờ vậy mà ánh sáng tự nhiên gián tiếp i vào không gian một cách vừa phải và dễ chịu

Căn nhà vừa truyền thống vừa hiện ại nằm giữa cây xanh,bốn mặt mở ra vườn.

Bốn mặt nhà ều ược tiếp xúc với sân vườn. Tất cả không gian ều có cửa mở ra khoảng xanh, luôn nhận ược ánh sáng, gió trời và kết nối con người với thiên nhiên.

07

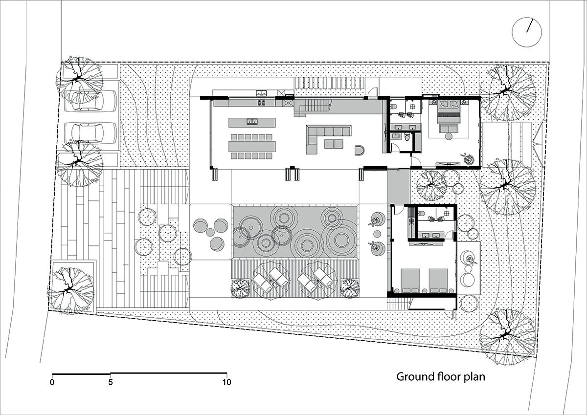
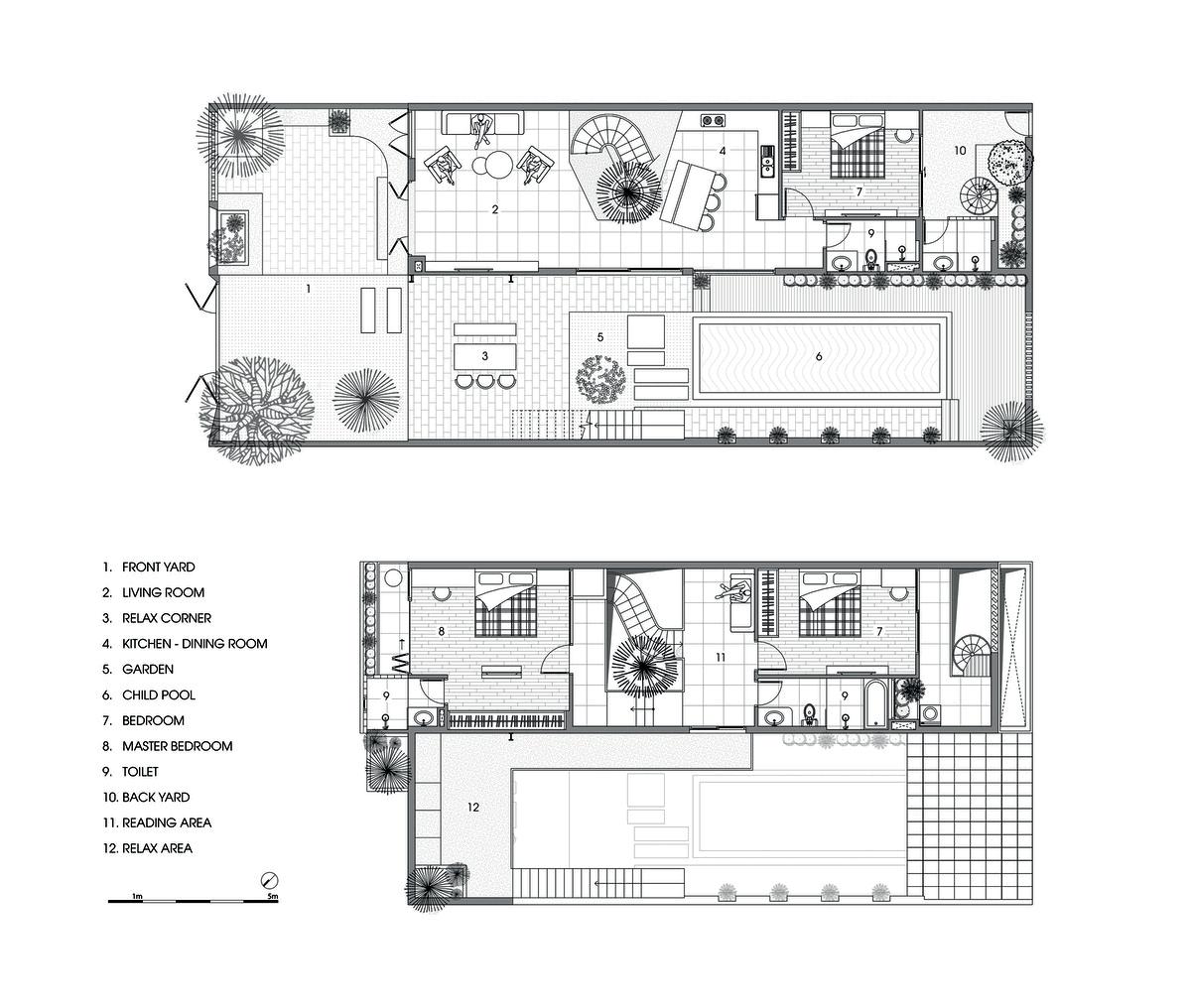
Mục tiêu của nhóm thiết kế là tạo ra không gian sống thư giãn và gần gũi với thiên nhiên nên công trình ược ặt ở phía cuối cạnh dài của khu ất ể tạo khoảng sân rộng phía trước với cây xanh, hồ cá.

Nhà Nhúm

Bên trong, các không gian chức năng chính ược bố trí ở hướng gió chính của ngôi nhà Vật liệu, nội thất và ồ trang trí cũng ược tiết chế nhằm em tới cảm giác sáng sủa, gọn gàng. 08

09

Nhìn từ xa công trình như hòa lẫn vào tự nhiên, chỉ hiện lên với hai ường viền mái dài thẳng.

Nhằm tận dụng tối a thiên nhiên xung quanh, nhóm thiết kế tạo ra khoảng hiên lớn bằng cách ặt lên công trình phần mái mỏng, bay ua suốt chiều dài nhà. Bên dưới khoảng hiên này là những mảnh sân, vườn.

10

11 Xen giữa các khối chính là mặt nước, cây xanh và giao thông trục ứng, việc này tạo ra các khoảng óng, mở ể ón gió tốt hơn, cây xanh óng vai trò như bức rèm làm dịu i cái nắng gay gắt rọi trực tiếp vào nhà

Hình thức công trình là những khối hình học tối giản, vật liệu và màu sắc ơn giản, mộc mạc, bền với thời gian như bê tông trần, á mài. Các không gian kết hợp giữa chất liệu ơn giản, ánh sáng tự nhiên và cây xanh tạo nên những trải nghiệm thú vị

Những bức rèm bằng cây dây leo làm giảm ánh nắng chiếu trực tiếp nhưng vẫn ảm bảo thông gió tự nhiên ồng thời tạo nên nét riêng cho công trình

12

13 Căn biệt thự ngập tràn nhựa sống với những mảng xanh bao quanh, không gian mở thoáng ãng, tối giản theo phong cách ương ại

14

Ngôi nhà ược tạo ra với một mục ích tạo ra một môi trường tương tự như một khu rừng, ngay khi ở trong nhà. Khoảng thông tầng ược mở theo ường chéo lên trên mang lại sự thông gió tự nhiên xuyên qua ngôi nhà, là kết quả của hiệu ứng ống khói. Bằng cách ó, việc sử dụng máy iều hòa ược giảm thiểu.

Ý tưởng thiết kế của công trình này là xây dựng nên một ngôi nhà tựa như một phần mở rộng của môi trường xanh xung quanh, bằng cách kết hợp cây xanh của công viên và không

15

16

U-space, một căn biệt thự nghỉ dưỡng với 4 phòng ngủ nằm trên một triền dốc thoai thoải. Địa iểm này là một khu ất 1000m2 hình chữ nhật nằm trải với mặt trước hướng Tây Nam xuống những ồi cỏ, hố cát của sân Golf, phía sau là dãy núi cao dần về phía Đông Bắc bao phủ bởi rừng thông của dãy Tam Đảo

U – space Villa

Biệt thự với thác nước giữa ồi thông

17

18

Ngôi nhà ược hình thành xoay quanh sở thích và thói quen của chủ nhà. Họ yêu thích văn hóa truyền thống, muốn ngôi nhà ơn giản nhưng khác biệt và tiện nghi, mang một không gian yên tĩnh ể cảm thấy thư thái, nhẹ nhàng khi trở về sau mỗi ngày làm việc. Một căn homestay nhỏ nhưng ộc áo trong phong cách thiết kế, không gian mở, gắn liền với thiên nhiên, cỏ cây hoa lá, sẽ là một lựa chọn ậm chất nghỉ dưỡng dành cho du khách

An Nhiên Homestay

19

Nơi giao thoa của kiến trúc hiện ại và truyền thống

20

Ngôi nhà là sự kết hợp hài hòa của kiến trúc truyền thống và hiện ại. Mặt tiền ngôi nhà mang nét phóng khoáng, nhẹ nhàng của kiến trúc hiện ại, nhưng âu ó vẫn phảng phất nét truyền thống với mái ngói mũi hài, gạch thông gió ất nung, chi tiết cửa gỗ cong… ược cách iệu một cách vừa phải ể tránh sự nhàm chán nhưng vẫn phải tạo nên một tổng thể hài hòa, có sự chuyển tiếp khéo léo, nhẹ nhàng. Việc kết hợp hợp lý các ngôn ngữ kiến trúc ối xứng và bất ối xứng giúp ngôi nhà tăng thêm nét ộc áo, cuốn hút và luôn nổi bật ngay từ ánh nhìn ầu tiên.

21

22

không gian mở thoáng ãng, tối giản theo phong nhưng có nét hoạt náo cần có.

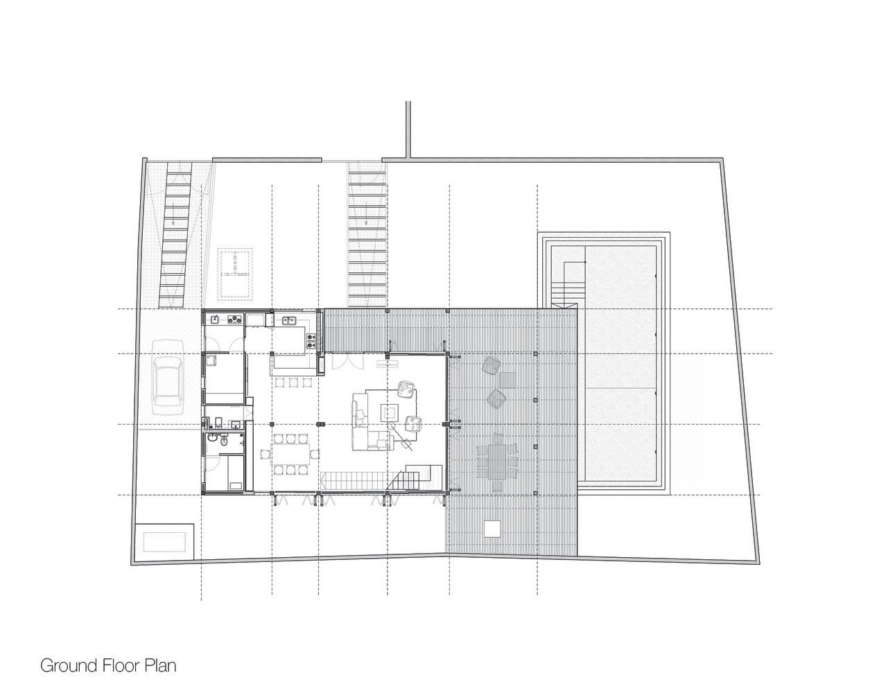
Đây là tương lai của năng lượng bền vững. Những ngôi nhà iện khí hóa, chạy bằng năng lượng mặt trời, cung cấp năng lượng cho lưới iện dùng chung của chúng ta. Tọa lạc trên một con ường dài và hẹp, ược lót bằng những khối nhà dài và hẹp, trong nội thành Melbourne, Garden House là một ốc ảo bất ngờ. Ẩn mình khỏi ường phố và ược tiếp cận thông qua một làn ường dành cho người i bộ, ngôi nhà gia ình mới này nằm trong cây xanh tươi tốt.

Căn biệt thự ngập tràn nhựa sống với những mảng

Được thiết kế cho một gia ình năm người với khả năng thường xuyên giải trí cho hàng chục người, ngôi nhà bao gồm bốn yếu tố riêng biệt xuất hiện dưới dạng các tòa nhà riêng biệt, 'vô hình' ược kết nối thông qua các hành lang kính ược nhân ôi phản chiếu khu vườn ược thiết lập tốt.

Garden House

Không chỉ là một ngôi nhà, Garden House còn là một nhà máy iện, ẩy năng lượng bền vững hơn nhiều trở lại lưới iện chung của chúng ta so với những gì nó sử dụng.

23

mảng xanh bao quanh, phong cách ương ại 24

25

26

27 The TROPIC House - Đủ riêng tư, ầy gắn kết The TROPIC House – công trình ược xây lên với mong muốn của gia chủ về một không gian ủ riêng tư cho các thành viên trong gia ình mà vẫn ảm bảo sự gắn bó, kết nối giữa mọi người

28

Từ các kiến trúc sư: "Một nhà ể xe và gác xép nhà nghỉ nép mình vào phía sau lô ất. Cửa gỗ sồi Tasmania trượt mở, kết nối nhà ể xe, cảnh quan và ngôi nhà chính một cách liền mạch. Các sàn bê tông ược ánh bóng tương tự ược sử dụng trong nhà chính tiếp tục trong nhà ể xe. Kiến trúc sư ã giải quyết sự riêng tư bằng cách thiết kế ngôi nhà như một cái ống. Mục ích của ý tưởng ống chỉ ơn giản là hướng tầm nhìn từ ngôi nhà ra khỏi các bất ộng sản lân cận bằng cách chỉ ặt các lỗ mở ở hai ầu.

29

Bondi House

Mặt ất ược chia thành các khu vực khác nhau có thể ược mở hoặc óng ể tối a hóa dòng chảy, trong khi luôn duy trì các kết nối thị giác mạnh mẽ giữa các không gian. Khi cửa mở, phần phía sau của ngôi nhà một cách hiệu quả có thể trở thành một không gian mở duy nhất - mặc dù ược iều chế bởi các khu vực nhỏ hơn khác nhau bên trong nó. Một giếng trời hướng nhiều ánh sáng mặt trời hơn vào phòng khách.

30

CASA DD - Hành trình trải nghiệm về không gian

31

Casa DD là công trình nhà ở không chỉ áp ứng ầy ủ tiện nghi mà còn mang tới trải nghiệm về không gian, ánh sáng và gió tối a cho người sử dụng. Thông qua công trình, nhóm KTS muốn thể hiện những quan niệm mới mẻ trong tư duy về cấu trúc không gian phù hợp với bối cảnh bản ịa ngày nay Ưu tiên của kiến trúc sư ở ây mong muốn không chỉ mang ến cho chủ nhà một nơi ở ầy ủ tiện nghi, mà còn là sự trải nghiệm về không gian, ánh sáng và gió thông qua một hành lang dẫn vào nhà chật hẹp, bên trong mở ra một không gian liên thông xuyên suốt ở vùng lõi theo chiều sâu và chiều cao của căn nhà, ược vây quanh bởi các phòng ngủ óng kín ngăn cách giữa không gian bên trong và bên ngoài.

32

33

34

35

36

37

38

PALM GARDEN

Khởi Nguồn Của Hạnh Phúc

Turn static files into dynamic content formats.

Create a flipbook
Issuu converts static files into: digital portfolios, online yearbooks, online catalogs, digital photo albums and more. Sign up and create your flipbook.