

Tamilnadu in India Chennai in Tamilnadu

Kilpauk in Anna Nagar Zone in Chennai Site in Kilpauk



Medavakkam Tank Rd. being the main access road, it connects with Konnur high Rd. & Kilpauk Garden Rd. New Avadi Rd. & P.H. are the nearest arterial roads.
1795
Dalton’s Mad House
1871
The Period of Custodial Care
1922
Introduction of Occupational Therapy
East India Company introduced “House for accommodating persons of unsound mind.”
18071815
Construction of Lunatic Asylum in 66.5 acre site
18711931
“Government Lunatic Asylum” to “Government Mental Hospital”

ELEVATION : The average elevation of the site ranges between 11m to 12m.

1949


1970
Institute of Mental Health
Industrial Therapy


1977















1.Out Patient Block
2.In-Patient (Male)
3.Voluntary Unit & In-Patient (Female)
5.Chronic & Acute
6.Forensic Unit (Male)
7.Multi-Purpose Hall
8.Forensic Unit (Female)
9.Multi-Purpose Hall
11.Staff’s Residence
12.Students’ Hostel
13.Executive Residence
15.Water Treatment -300KLD(as per TN-
16.Sewage Treatment Plant-250KLD(as per TN-



NORTH ELEVATION(1:100)

SECTION AA’(1:100)


SECTION BB’(1:100)


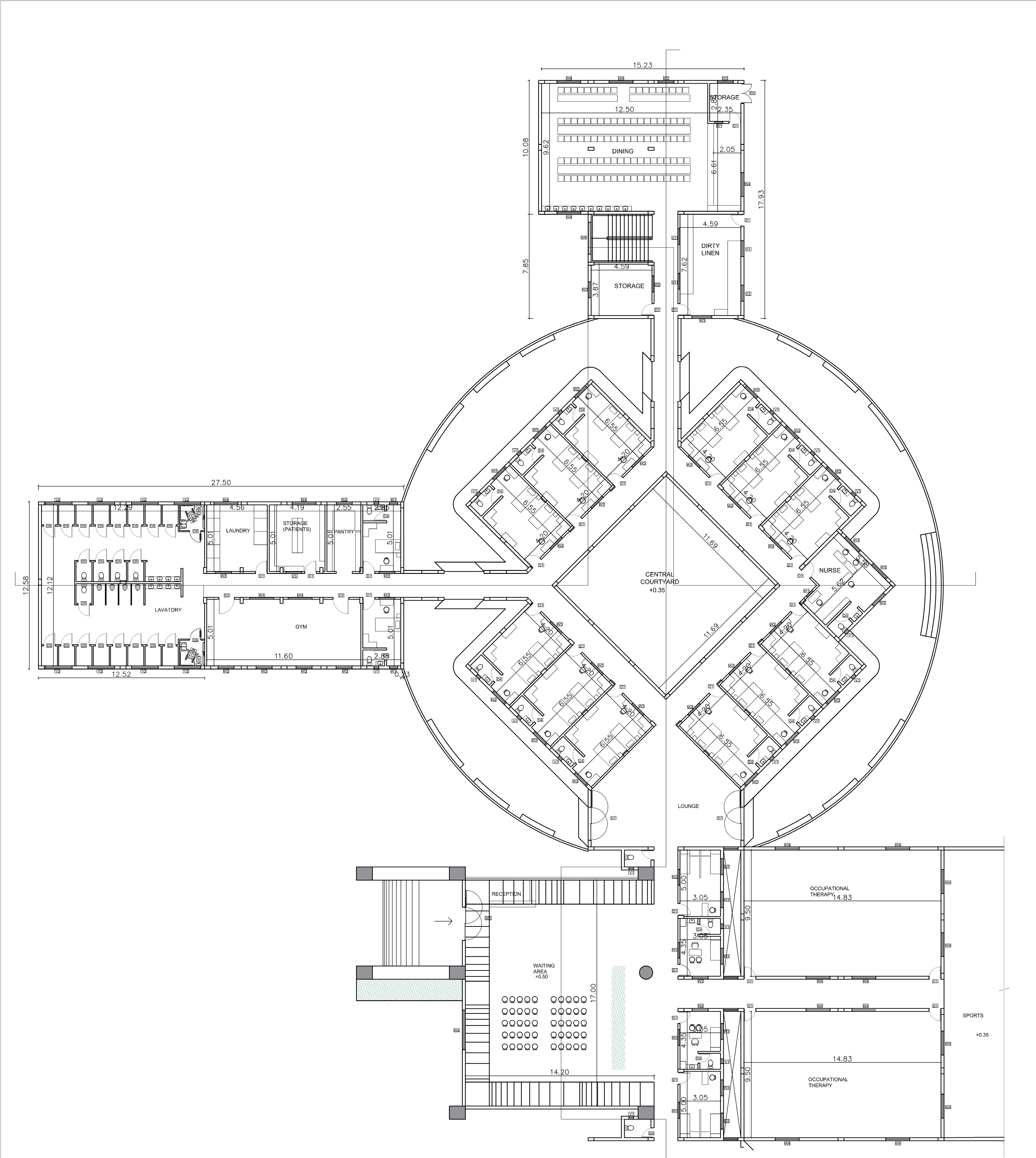
TYPICAL FLOOR PLAN (1:150)

EAST ELEVATION(1:100)

NORTH ELEVATION(1:100)

AA’(1:100)



TYPICAL FLOOR PLAN (1:150)








