Herbestemmen Manchestergebouw FNO-Site Gent

Page 1

Manchestergebouw

FNO-Site Gent

92 STRUCTUUR Respect voor het bestaande 94 TECHNIEKEN Relatie en integratie met de architectuur INDEX 04 INRODUCTIE Visie van het ontwerp 10 GESCHIEDENIS Verhaal van de plek 14 18 LANDSCHAP SITE Kwaliteiten van de infrastructuur Herwaardering van het bestaande 20 78 28 CULTUUR MATERIAAL WERKING Architectuur als verbinding Authenticiteit en hergebruiken Een functioneel gebouw

01. Introductie

Het Manchestergebouw maakt deel uit van het FNO-site. Het project vormt een balans tussen het aanbieden van een kwalitatief groen openbaar domein en een onderwijsfunctie voor de KU Leuven. Naast het integreren van een educatief programma willen we het FNO-Site ook een bepaalde identiteit geven. Anderzijds achten we de site als een perfecte groene verbindingsmiddel om de verschillende wijken te verbinden, op deze manier versterken we de sociale cohesie binnen in het stedelijk landschap. Het 2,4 hectare groot gebied moet een meerwaarde vormen voor zowel de gebruiker zelf als de buurtbewoners. Het architecturaal project tracht dan ook een wisselwerking te creëren tussen het gebouw en zijn omgeving. We willen de grenzen van het bestaande en het afschermende doen vervagen. Deze vervaging zou de FNO-site omvormen tot een element dat bijdraagt tot het bekomen van een gezondere stad, een open buurt en een creatieve omgeving. OUTR heeft

daarom de ambitie om de fauna en flora te versterken en studenten te omringen met groen, zowel binnen als buiten. Natuur verbetert het welzijn. Een ruimte waar groen aanwezig is kalmeert en inspireert. Het verhoogt de productiviteit en leerervaring. We gaan spelen met zowel architectuur als landschapsarchitectuur en deze gaan samenbrengen op verschillende schalen en aspecten. Het project legt de nadruk op het belang van de juiste sfeer, materialen, afmetingen en vormen. Het is juist deze gevoeligheid dat we willen benaderen. Architecturaal hebben we geijverd naar een ingreep die een langdurige flexibiliteit waarborgt in, rond, door deze vervaagde bestaande grens. Het historisch gebouw vormde een basis voor het uitvoeren van veelzijdige industriële operaties, dit aspect hebben we geherinterpreteerd tot een schaal van een bruisend creatief knooppunt tussen het KU Leuven als instituut en KU Leuven als deel van stad Gent.

Visie van het ontwerp
6 Introductie

O-U-T-R

De naam OUTR is ontstaan door de interesse naar het samenspel tussen buiten en binnen, een wisselwerking tussen massa en leegte, de rijkdom die zich bevindt tussen het gebouw en de omgeving. Het is een naam waarbij wij als groep een uitspraak willen op vorm.

OUTR is een manier van architectuur maken en architectuur lezen.

“You have the sun, the light, the rain, the birds, the feel. If, early on, you know how things are put together, then you can build.”

7 Introductie

02. Geschiedenis

De FNO ligt in het noorden van de stad, tussen de haven en het stadscentrum en maakt deel uit van de wijk Bloemekenswijk. Het terrein is aan twee zijden ontsloten: in het zuiden via de Nieuwevaart en in het westen via de Roggestraat. Het gebied ontwikkelde zich in de 19e eeuw nadat de stadswallen waren afgebroken waardoor de stad zich horizontaal kon uitbreiden. Gent bevond zich op dat moment in een bloeiende revolutie van de textielindustrie.

Een tak die altijd al belangrijk was en nog belangrijker werd in het begin van de eeuw toen Lieven Bauwens, een Gentse ondernemer, de eerste spinnerij (Mule Jenny) vanuit Engeland naar het continent smokkelde. Vanaf dat moment werden heel wat nieuwe fabrieken gebouwd, waaronder de FNO, de Vynckiersite ernaast, de Filature du Rabot en nog veel meer. Tegenwoordig zijn de meeste van deze fabrieken getransformeerd of hergebruikt, maar dat is nog niet het geval voor de FNOsite die langzaam achteruitgaat. De

oude katoenspinnerij van 2,4 Ha wordt begrensd door de historische rivier de Lieve die achter één van de oude katoenloodsen stroomt. Het onlangs opgeknapte Bloemekenspark omringt de overige gebouwen en wordt aan de zuidzijde onderbroken door de in 2006 aangelegde evacuatieweg van de brandweer. Even verderop ligt het Verbindingskanaal, dat de grens vormt met Rabot.

De geschiedenis van de plek is zeer nauw verbonden met de geschiedenis van Gent en zou net als 100 jaar geleden een belangrijke rol kunnen spelen voor het gebied.Een deel van de gebouwen is beschermd als monument, maar staat al meer dan 30 jaar leeg. De Bloemekenswijk is een snel veranderende wijk. Veel van de naburige braakliggende terreinen en leegstaande fabrieken worden omgevormd tot woonprojecten, winkels, parken en openbare gebouwen. In de directe omgeving zijn diverse projecten in uitvoering zoals de Oude Dokken, het UCO-terrein, de Tondelier en vele andere.

10 Geschiedenis
Verhaal van de plek
11 Geschiedenis
12 Geschiedenis

Door de rijke geschiedenis van de FMO site en zijn gebouwen heeft dit een bepaald karakter.

Dit karakter maakt het enorm interessant om bestaande verhalen, structuren en elementen van het Manchestergebouw op te nemen in een nieuw architecturaal ontwerp om de historische waarde van het gebouw te behouden.

De iconische toren aan het Manchestergebouw is het herkenningspunt en leidraad doorheen de site. Een structureel element die frontaal het karakter van het gebouw stelt. Het beschermend karakter van het gebouw zorgt voor een onveranderlijke afdruk. Open plateaus, fijn skelet, enorme openingen naar buiten. Het is een canvas waar de geschiedenis van af te lezen valt. De openheid suggereert naar de textielindustrie die er huishield. Ruimte voor de enorme machines, mogelijkheid naar uitbreiding, onderverdeling,... .

Het fijne skelet die bij enige verzwaring knikt, zorgt voor een mogelijkheid om een architecturale bijstand te voorzien die samenhangend is met zijn uitstraling en vorm. De enorme openingen naar buiten die voor fel maar beperkt licht zorgde, vormen een punt waar buiten en binnen met elkaar in contact gebracht kunnen worden. Ze geven de mogelijkheid tot het binnenbrengen van de omgeving in de versteende open plateaus.

Het bestaande werd als eerst beoordeeld op vlak van zijn kwaliteiten en fundamenten. De verleden, huidige en toekomstige waarden bepaalden de strategie die we wilden volgen. Namelijk de authentieke en waardevolle elementen zo veel mogelijk behouden. Door de bestaande elementen zo veel mogelijk te restaureren en behouden willen we blijven horen bij de opvallende gebouwen in de wijk die het textielverleden representeren.

13 Geschiedenis

03. Landschap

Kwaliteiten van de infrastructuur

Gent heeft de ambitie om een klimaatbestendige stad te worden in 2030 en een klimaatneutrale stad tegen 2050. De stad wil inzetten op mobiliteitsgedrag, inrichting van de openbare ruimte, meer stadsgerichte landbouw, lokale productie van hernieuwbare energie, natuurontwikkeling, enzovoort.

Daarvoor werkt ze op verschillende niveaus aan een betere en groenere omgeving voor Gentenaars. Een van de strategieën die in de visie aan de orde komen, is die van de acht klimaatassen. Deze groenblauwe aders zijn bedoeld om de impact van het hitte-eilandeffect te verminderen en de luchtvochtigheid te verbeteren en water vast te houden. Ze zorgen voor

zuurstof in en rond de stad en vormen een ecologische, landschappelijke en recreatieve eenheid. Eén van die groene klimaatassen, “De Lieve”, zal naast de site lopen, van de Rabotwijk tot Evergem. Dit geeft een extra ecologische waarde en verhoogde biodiversiteit aan de plek waar de rivier de Lieve al aanwezig is samen met het openbare Bloemekenspark. Die assen zullen functioneren als verbindingsroutes voor fietsers en voetgangers en zullen de langzame mobiliteit rond de site versterken.

De as die wij trachten door te trekken via onze site houdt rekening met water, groen, geluid, ventilatie en doorgang voor zowel de directe buurt als de stadskern.

14 Landschap

STILLE GELUIDSBARRIERE

WATERAFSTROMING

SITE

ZACHTE BODEM

GROENE STADSLIJN

ZACHTE BODEM

04. Site

De FNO-Site is momenteel een grauwe vlek die begrensd wordt door twee groene zones. OUTR heeft dan ook de ambitie om deze twee zones die rijk zijn aan biodiversiteit, door te trekken op de site zelf. Het architecturaal project vormt een kwalitatieve verbinding tussen deze beide delen., zowel een ecologische corridor voor dieren als voor mensen. De site is op zichzelf ook eveneens gevormd tot een kwalitatieve drager op zichzelf. Ons doel is om het gebied voor het gebouw maximaal te gaan inzetten, maar het toch toegankelijk te maken voor zwakke gebruikers. Langs de route

van de brandweer kazerne hebben we maximaal ingezet op groen om op die manier een geluidsbarrière te vormen.

Het architecturaal project vormt zowel een rustpunt voor de studenten als de buurtbewoners. Groen kan bijdragen aan een grotere sociale cohesie in een buurt. Parken en andere groene gebieden kunnen dienen als ontmoetingsplaatsen waar mensen elkaar kunnen ontmoeten en sociale contacten kunnen leggen. Dit kan leiden tot een grotere sociale cohesie in de buurt.

18 Site
Herwaardering van het bestaande
19 Site

05. Cultuur

Architectuur als verbinding

De groene cultuur die wij trachten te bereiken op onze site zal op veel vlakken voor een krachtige verbinding zorgen.

Een zuiverdere luchtkwaliteit, verhoogde eigendomswaarden en een verbeterde geestelijke gezondheid voor zijn inwoners. De groene ruimte biedt mensen de mogelijkheid om buiten aan lichaamsbeweging te doen.

Ook biedt dit een leefgebied voor een verscheidenheid van planten- en diersoorten die de biodiversiteit kan vergroten en bijdragen aan de algemene gezondheid van het ecosysteem.

De keuze van het ontharden van de bodem en groene assen te voorzien zal de waterfiltratie en geluidsreductie ten goede komen.

20 Cultuur
22 Cultuur Manchestergebouw Brandweerweg / ingang parking Woonwijk Bloemekenspark I
23 Cultuur Manchestergebouw
Bloemekenspark
Droogloods
II
24 Cultuur Masterplan
25 Cultuur Masterplan Verdieping 0

06. Werking

Een functioneel gebouw

Groene koker / Circulatie

Overdekte vide / Circulatie

Technische kokers / Sanitair

28 Werking
GSPublisherVersion 519 30 31 100 GSEducationalVersion
29 Werking Sociale functies Onthaal 75 m² 10 pers. Cafetaria 623 m² 416 pers. Keuken 22 m² 3 pers. Administratie 358 m² 90 pers. Vrijetijdsruimte 527 m² 151 pers. Lerarenruimte 324 m² 66 pers. Sanitair 27 m² 7 pers. Leer functies Bibliotheek 389 m² 39 pers. 1-15 ateliers 58 -123 m² 310 pers. Sanitair 27 m² 7 pers. Werk functies 1-9 werkplekken 66 m²- 380 m² 347 pers. Kitchenette 196 m² 39 pers. Drukkerij 304 m² 76 pers. Sanitair 27 m² 7 pers. Polyvalente functies 1-8 lokalen 93- 348 m² 393 pers. Auditorium 153 m² 77 pers. Sanitair 27 m² 7 pers. Parking Auto parking 2485 m² 46 st. Fietsparking 672 m² 220 st.
30 Werking Manchestergebouw
31 Werking parking sociaal leer werk poly Manchestergebouw Droogloods mmlab

Persoonlijke werkruimtes

Persoonlijke werkruimtes voorzien op school is een luxe die we tot nu toe nog niet kennen. Een verdiep voor zuiver eigen werk, ontplooiing, discussie,... .

Een ruimte die zowel privacy en concentratie biedt als een plaats van groepsgesprekken. De brandsas zorgt hier voor een barrière waar je enerzijds vrije werkruimtes hebt en anderzijds werkruimtes heb die gereserveerd kunnen worden die langdurige projecten mogelijk maakt. Dit verdiep moet een plek gaan creëren die de productiviteit en creativiteit van de studenten moet doen stijgen. Het voorziet een scheiding tussen werk en vrije tijd.

MAQUETTE WERKPLEKKEN

Ruimte voorzien voor het creatief proces van het maken van maquettes. Grote werktafels, opberg gelegenheden, mogelijkheden tot verschillende configuraties van de werkbanken, zorgen ervoor dat het maken van maquettes zijn eigen omgeving krijgt.

PLUG-IN WERKPLEKKEN

De plug-in werkplek is een nieuw concept waar er vrije 1 persoonsbureaus voorzien worden waar men gewoon alles kan aansluiten en beginnen werken. Deze plug-in werkplekken kunnen per uur of per dag bezet worden. Ze zijn voorzien van alle benodigde faciliteiten, zoals internet toegang en stopcontacten. Ze zijn bedoeld om studenten te helpen die opzoek zijn naar een flexibele werkplek.

CENTRALE GROEPSWERK TAFELS

Een toegewijde ruimte voorzien voor het bespreken en samenwerken bij bepaalde opdrachten.

BESLOTEN LEESTUIN

Een ruimte die het mogelijk maakt om zich af te zonderen en leeswerk te verzetten. Doordat deze geplaatst zijn in de groene kokers geeft dit een rustgevende omgeving.

32 Werking
33 Werking
34 Werking

Architecture small talk: “How’s your design going?”

35 Werking

Ateliers

Een plaats waar er feedback gegeven wordt, wekelijkse presentaties gebeuren en een plaats waar men bijleert en groeit. De ateliers hebben een flexibele opstelling die je (deels) in handen van de studenten zelf kan geven. Er kunnen verschillende configuraties gemaakt worden met de aanwezige banken en stoelen. De opstelling van een bachelor les is bijvoorbeeld volledig anders als een opstelling voor een master begeleiding. De flexibele open ruimte maakt het mogelijk om zelfs op dit vlak de creativiteit van de studenten niet te belemmeren en voor iedereen

een ideale leeromgeving te kunnen voorzien. Door te gaan werken met harmonie deuren bekleedt in kurk heeft het de mogelijkheid om kleine ateliers/grote ateliers te vormen afhankelijk naar de hoeveelheid studenten. De harmonie deuren bekleedt in kurk zijn niet alleen geluidsdempend maar kunnen ook gebruikt worden om allerlei werk op te hangen. In de ateliers wordt er dus op een creatieve manier, creatieve lessen gegeven.

36 Werking
37 Werking
38 Werking
39 Werking
“Good architecture is like a good joke - if you have to explain it, it’s not that good.”

MMLab

Het MMLab is een plaats dat grote creatieve werken mogelijk maakt. Geen enkele installatie is onmogelijk. Daar het MMLab een noodzakelijk onderdeel is van een “maakschool” moest deze link zeker gelegd worden. Het enerzijds noodzakelijk punt en het sociale karakter anderzijds zorgt ervoor dat deze faciliteit een open karakter krijgt.

Het MMLab is gesitueerd in de vroegere “Droogloods”. Dit maakt het mogelijk om niet alleen de studenten maar ook de buurt en zijn inwoners, de kans te geven om creatief te werk

te gaan. Grote magazijnen en enorme keuze aan apparatuur zorgt ervoor dat dit allemaal gecentraliseerd kan worden. De voorziene apparatuur is een serieuze investering vandaar dat deze niet alleen worden afgesloten voor de studenten maar ook de buurt hiertoe een kans wil geven. Er zijn mogelijkheden om te lasercutten, schrijnwerken, installaties op te bouwen,...

Het samenbrengen van student en buurt vormt op zich een interessante leerervaring.

40 Werking
41 Werking
42 Werking
43 Werking
46 Werking MANCHESTERGEBOUW 3 2 1 4 5
47 Werking 7 6
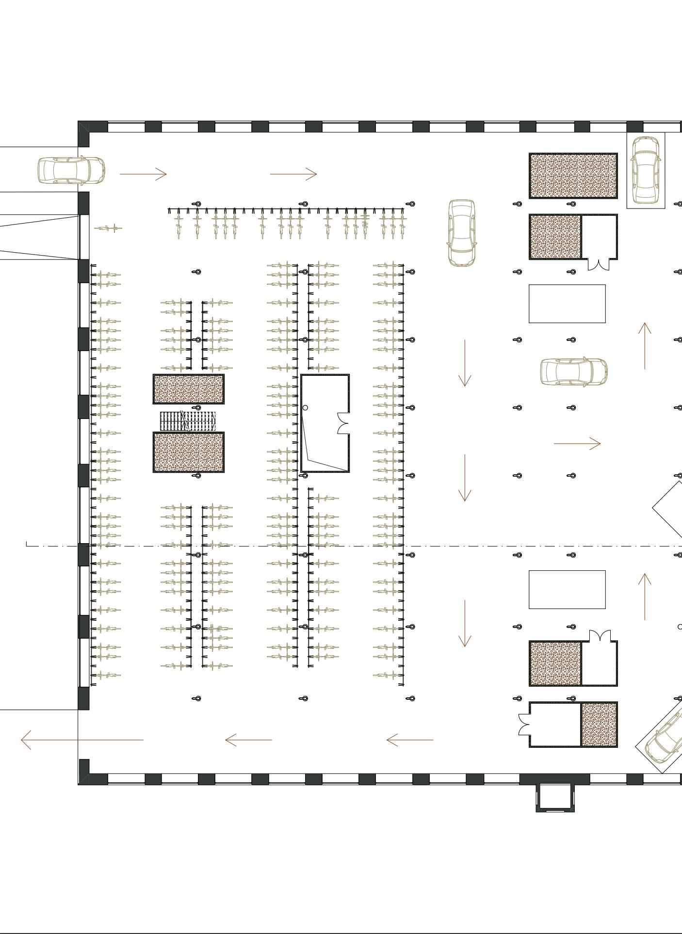
Verdieping -1
1. Uitrit auto’s 2. Inrit/uitrit fietsers 3. Inrit auto’s 4. Fietsenparking 5. Technische ruimte 6. Technische ruimte 7. Autoparking
48 Werking MANCHESTERGEBOUW 1 7 3 4 5 8 6 2

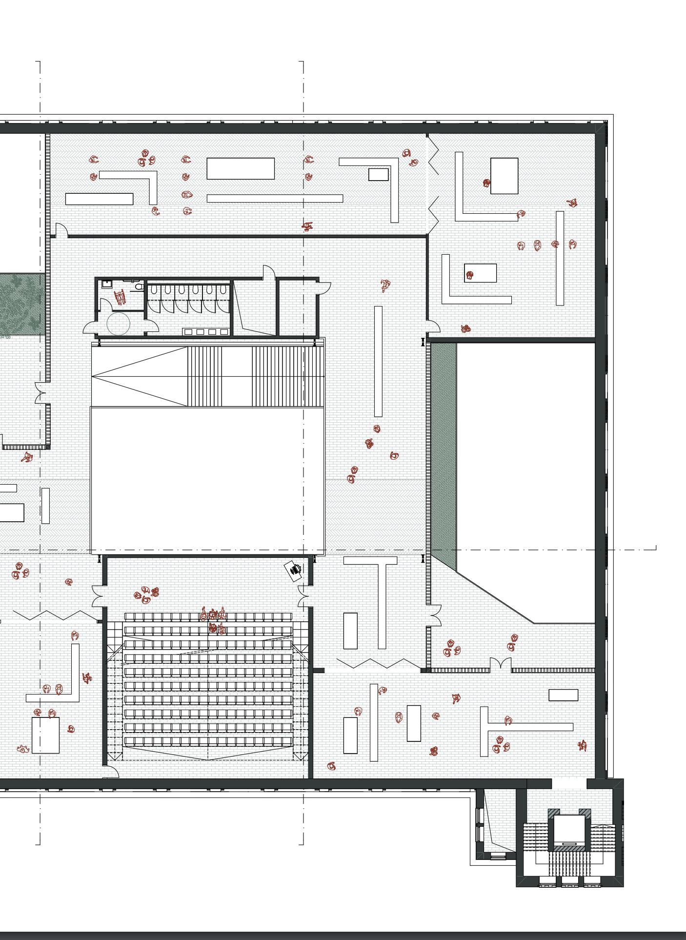
Verdieping 0

49 Werking 10 9 11 12 13 14 15 16
1. Cafetaria 2. Technische ruimte 3. Keuken 4. Groene koker/circulatie 5. Groene koker/circulatie 6. Vergaderruimte 7. Docentenruimte 8. Groene koker/circulatie 9. Vide/circulatie 10. Vrijetijdsruimte 11. Groene koker/hoofdingang 12. Onthaal 13. Opbergruimte 14. Technische ruimte 15. Sanitair
50 Werking MANCHESTERGEBOUW 1 2 7 6 9 3 4 5 8 10 12 11
51 Werking 12
14 25 24 23 17 15 16 13 19 18 20 21 22
1. Atelier 2. Atelier 3. Atelier 4. Atelier 5. Groene koker/circulatie 6. Technische ruimte 7. Atelier 8. Groene koker/circulatie 9. Bibliotheek 10. Groene koker/circulatie 11. Atelier 12. Atelier 13. Atelier 14. Atelier 15. Atelier 16. Atelier 17. Atelier 18. Groene koker / circulatie 19. Vide/circulatie 20. Sanitair 21. Technische koker 22. Opbergruimte 23. Atelier 24. Atelier 25. Atelier Verdieping +1
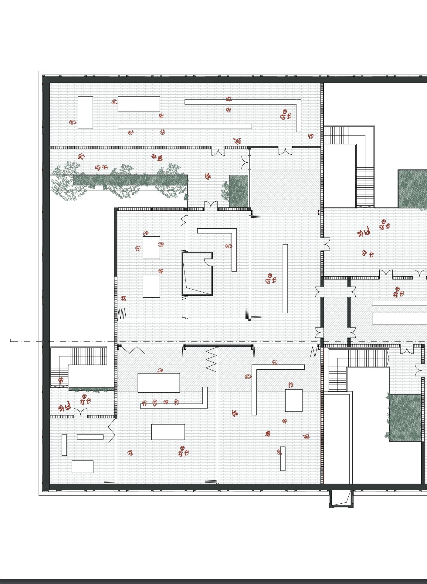
52 Werking MANCHESTERGEBOUW 1 2 3 4 6 5 7 8 9 11 10 13
53 Werking
1. Werkplaats 2. Groepswerk 3. Werkplaats 4. Kitchenette 5. Groene koker/circulatie 6. Technische ruimte 7. Werkplaats 8. Groepswerk 9. Plug-in 10. Groene koker/circulatie 11. Groene koker/circulatie 12. Groepswerk 13. Werkplaats 14. Groepswerk 15. Plug-in 16. Vide/circulatie 17. Groepswerk 18. Groene koker 19. Plug-in 20. Drukkerij 21. Sanitair 22. Technische koker 23. Opslagruimte
12 13 14 15 16 17 18 19 20 21 22 23
Verdieping +2
54 Werking MANCHESTERGEBOUW 4 2 3 5 6 9 7 1 8 10 11 12
55 Werking
1. Presentatieruimte 2. Leslokaal 3. Leslokaal 4. Grone kokers/circulatie 5. Leslokaal 6. Technische koker 7. Presentatieruimte 8. Presentatieruimte 9. Leslokaal 10. Groene koker/circulatie 11. Presentatieruimte 12. Groene koker/circulatie 13. Leslokaal 14. Auditorium 15. Leslokaal 16. Groene koker 17. Vrijetijdsruimte 18. Vide/circulatie 19. Sanitair 20. Technische koker 21. Opslagruimte 22. Leslokaal 23. Leslokaal 13 14
Verdieping 18 +3 19 20 21 15 17 23 22 16
56 Werking MANCHESTERGEBOUW 4 2 3 5 6 9 7 1 8 10 11 12
57 Werking
Verdieping +3 13 14 18 19 20 21 15 17 23 22 16
1. Presentatieruimte 2. Presentatieruimte 3. Presentatieruimte 4. Grone kokers/circulatie 5. Presentatieruimte 6. Technische koker 7. Presentatieruimte 8. Presentatieruimte 9. Presentatieruimte 10. Groene koker/circulatie 11. Presentatieruimte 12. Groene koker/ circulatie 13. Presentatieruimte 14. Auditorium 15. Presentatieruimte 16. Groene koker 17. Vrijetijdsruimte 18. Vide/circulatie 19. Sanitair 20. Technische koker 21. Opslagruimte 22. Presentatieruimte 23. Leslo Presentatieruimte kaal
58 Werking
59 Werking
60 Werking
61 Werking
62 Werking
63 Werking
64 Werking
65 Werking
66 Werking
67 Werking
68 Werking GSPublisherVersion
GSEducationalVersion
521.26.26.100
69 Werking
70 Werking
71 Werking

DROOGLOODS

72 Werking
1. Opslag 2. Werkruimte 3. Groene koker/ingang 4. Lasercutting 5. Werkruimte 6. Overdekte buiten werkplaats 7. Afgesloten opslag 8. Opslag 9. Schrijnwerkerij 10. Groene koker/ingang 11. Werkruimte 12. Opslag 13. Toren
73 Werking 1 3 5 2 4 6 7 9 8 10 12 11 13
74 Werking
75 Werking

Authenticiteit en hergebruiken

In de verticale doorbraken kiezen we ervoor om de bakstenen gevel bloot te laten zodat men de robuuste authentieke bakstenen muur kan waarnemen. Hierbij willen we de periode benadrukken, wat kan bijdragen aan het behoud van de historische of architectonische integriteit van het gebouw. Vroeger waren de vloeren bedekt met betonnen tegels, maar die zijn in de loop der jaren op veel plaatsen vervangen door grotere of ter plaatse gestort beton. De vloeren zijn bedekt met tegels gemaakt van baksteen gelegd in verschillende legpatronen, wat het gebruik van het hoofdmateriaal van het Manchestergebouw accentueert.

De verticale doorbraken zijn opgebouwd uit beton en de ramen zijn uit hout. Op deze manier willen we een natuurlijk element toevoegen die ook bijdraagt tot een warmere uitstraling.

Op plaatsen waar de verticale doorbraken grenzen aan de bestaande gevel zijn de ramen verwijderd en verplaatst naar de resterende gevels waar er ramen dienen te komen. Vervolgens werden de dichtgemetste raamopeningen opengebroken die het originele licht naar binnen doen vloeien.

78 Materiaal
07. Materiaal
79 Materiaal

Lichtstudie

Een lichtstudie van groene open kokers in een gebouw is een techniek om natuurlijk licht te brengen in een ruimte die anders geen directe toegang tot het buitenlicht heeft. De groene open kokers zijn verticale snedes die van het dak naar beneden lopen en die zijn voorzien van glas. Deze open grote ramen zorgen ervoor dat het licht van de zon naar binnen wordt geleid in de ruimte.

Er zijn verschillende manieren om de groene open kokers te installeren en te ontwerpen, afhankelijk van de specifieke behoeften van het gebouw en de ruimte. Na de lichtstudie werd er een beter beeld gecreëerd waar er nood

was aan licht, lucht en ademruimte in deze grote plateaus. De kokers worden zo geplaatst op strategische plekken in de ruimte om het licht zo effectief mogelijk te verdelen.

Een lichtstudie van groene open kokers kan bijdragen aan een aangenamer en gezonder binnenklimaat in een gebouw, omdat het natuurlijke licht de ruimte verlicht en de luchtkwaliteit verbetert. Het kan ook helpen om energie te besparen, omdat het gebruik van kunstlicht kan worden verminderd.

80 Materiaal
81 Materiaal GSP b h V 520 27 27 100 GSEd V 1 0 LICHT DONKERE RUIMTE LICHT LICHT L I C H T DONKERE RUIMTE DONKERE RUIMTE D O N K E R E R U I M T E LICHT DONKERE RUIMTE M

Groene kokers

Het project is bedacht vanuit ruimtelijke buiten en binnen knopen. Het zijn gelaagde organismen die de verhouding tussen binnen en buiten en open en gesloten op een doordachte manier ordenen.

De vijf verticale doorbraken door het gebouw structureren alles. Het zijn de ruimtelijke knopen in het gebouw. De doorbraken structureren de technieken, het grondplan, het lichtinval, de circulatie en de luchtdoorstroming.

De doorbraken bepalen de planopbouw, zo is elke functie in het gebouw verbonden met een doorbraak. Waardoor telkens het binnen-buiten principe doorheen het gebouw wordt aangehouden. De groene kokers creëren ruimtes in het anders open grondplan.

Natuurlijk licht en ventilatie reiken via ‘lichtcentra’ tot in de kern van het gebouw. De vijf verticale uitsnijdingen worden gekenmerkt door een taal van verschoven lagen. Deze geometrie creëert meerdere balkons en een plaats voor het integreren van

opstapelend groen. De balkons op de verschillende verdiepingen bieden de mogelijkheid tot verschillende zichten. Deze ruimtes zijn ook bestemd als ontmoetingsruimtes.

Het aanbieden van ontmoetingsruimten en informele werkruimtes in openlucht versterkt de interactie tussen de verschillende niveaus van het gebouw. De trappen zijn geconfigureerd als verticale sociale condensatoren. Trappen zijn gevormd om informele ontmoeting, interactie en discussie mogelijk te maken. Sommige trappen stoppen bij royale bordessen met tafels en stoelen, andere komen uit op loungeruimtes met banken, voor informeel samenwerkingen. Planten en bomen worden geïntegreerd in V-vormige wanden waar ze de nodige plaats krijgen om te kunnen nestelen en groeien. De kokers configureren als het ware als verticale bossen die reiken tot in het dak. Op Gelijkvloers worden de stroken vanuit de omgeving dan ook doorgetrokken in het gebouw.

83 Materiaal
84 Materiaal
85 Materiaal
86 Materiaal
87 Materiaal
88 Materiaal GSPublisherVersion 744.25.25.100 GSEducationalVersion

Installatie werkruimtes

In de geplaatste groene kokers worden er buiten ruimtes gecreëerd; deze zijn verbonden met de binnenruimte waardoor je altijd de mogelijkheid hebt om zowel buiten als binnen te werken. De ambitie is om de studenten de mogelijkheid te geven om op school te kunnen werken, dit tijdens de lesuren en erna. Denk hierbij aan studenten die niet op kot zitten en met hun werkmateriaal en maquette moeten pendelen, of studenten die tussen verschillende lesuren zouden willen werken op school, of gewoonweg studenten die liever op school werken omdat ze niet voldoende ruimte hebben.

89 Materiaal

08. Structuur

Respect voor het bestaande

Voor de versteviging van de structuur in het gebouw werd er gekeken om dit op een visuele manier te gaan oplossen. Nieuwe stalen kolommen, in een contrasterende kleur, worden gevestigd tegen de bestaande structuur. De contrasterende kleur zorgt dat de bestaande structuur beklemtoont wordt. De nieuwe stalen structurele toevoeging is een aanvulling op het alreeds bestaande. Het nieuwe en het oude worden met elkaar verbonden via een staalplaat wat het contrast nog groter maakt. De bestaande structuur wordt opgehemeld en in de kijker

92 Structuur
93 Structuur

09. Technieken

Relatie en integratie met de architectuurw

De inzooming op bepaalde technieken zorgt ervoor dat er niet enkel technisch maar ook architecturaal anders naar het ontwerp wordt gekeken. Hoe laten we dit passen in ons verhaal, in onze

94 Technieken
95 Technieken

Sectie: 0,49m x

Sectie: 0,49m x

Sectie: 0,98m x

Sectie: 0,49m x

Sectie: 0,49m x

Sectie: 0,98m x

Sectie: 1,89m

Sectie: 0,33m x

Sectie: 0,33m x

Sectie: 0,97m x

Sectie: 0,69m x

Sectie: 0,69m x

Sectie: 0,43m x

Sectie: 0,43m x

Sectie: 0,37m x

Sectie: 0,41m x

Sectie: 0,41m x

Ventilatie

Sectie: 0,76m x

96 Technieken

Sectie: 0,41m x

Sectie: 0,41m x

Sectie: 0,77m x

Sectie: 0,36m x

Sectie: 0,36m x

Sectie: 0,77m x

Sectie: 1,13m x

Sectie: 2,44m x

Sectie: 1,77m x

Sectie: 1,45m x

Sectie: 0,35m x

Sectie: 0,64m x

Sectie: 0,37m x

Sectie: 0,37m x Sectie: 0,64m x

97 Technieken
x x
1,89m x

Ventilatie

Het opdelen van de verdiepingen in verschillende toegewijde ruimtes en zijn bezetting hiervan is cruciaal bij het berekenen van de ventilatie. Het programma van eisen wordt hier getest of het ook voldoet om de nodige technieken te doen werken. Dikte van de rechthoekige ventilatieschachten worden bekeken en hoe deze zal passen in onze architectuur. Het zichtbaar laten van deze schachten zorgt voor een industrieel karakter die voor een mooie aanvulling zorgt aan onze behouden historische troggewelven. De enorm brede, platte afgeronde rechthoekige schachten zorgen voor een opvallende architecturaal kenmerk.

98 Technieken

Brandveiligheid

100 Technieken
101 Technieken

Brandveiligheid

Tussen de verschillende compartimenten is er een brandsas voorzien die ervoor zorgt dat de vlammen niet overslaan naar de verschillende compartimenten. De brandsas is voorzien van brandwerend glas. Er is ook getracgt geweest om de brandsas te integreren in de architectuur. Vervolgens bevinden zich de evacuatiewegen in de 5 kokers.

102 Technieken

Dankwoord

Graag hadden we bij deze nog even de tijd genomen om onze oprechte dank uit te spreken voor de nodige tijd van onze docenten, KUBUS, SO Gent en de aanwezige juryleden. Onze enorm betrokken docenten Arch. R. Piffet en Arch. D. Boutsen hebben ons niet alleen de nodige kennis en vaardigheden bijgebracht om onze doelen te bereiken, maar hebben ons ook geïnspireerd om onze, zowel individuele als groepsgerichte, creativiteit en visie verder te ontwikkelen.

Wij zijn dankbaar voor jullie geduld en begrip, om ons aan te moedigen buiten ons comfortzone te treden en nieuwe dingen te proberen.

Ook zijn wij blij om te kunnen zeggen dat het KUBUS team ons een beter en bekwamere architecten heeft gemaakt. Het heeft voor ons een deur

geopend naar een nieuwe manier van architectuur maken.

SO Gent willen wij bedanken voor onze studie en ontwerp te verrijken met documentatie en rondleiding op de site.

De juryleden Y. Schoonjans, R. Schaeverbeke, A. Vanderveken, E. Tavernier, W. De Greve en S. Vandelanotte voor hun tijd en passie bij het bekijken van ons werk.

Ons ouders voor de steun tijdens dit vermoeiend maar leerrijk proces.

Nogmaals bedankt aan iedereen rond en op het project voor alles wat jullie hebben gedaan om onze studies te verrijken. Wij zijn jullie dankbaar voor de rol die jullie hebben gespeeld in onze professionele groei en ontwikkeling.

104 Dankwoord
105 Dankwoord Scan dit en ontdek

Turn static files into dynamic content formats.

Create a flipbook
Issuu converts static files into: digital portfolios, online yearbooks, online catalogs, digital photo albums and more. Sign up and create your flipbook.