Prawa Poomchan /Portfolio 2025

Page 1


EDUCATION

PRAWA POOMCHAN (PRAWA)

date of birth : 13.04.2002

Language : Thai (Native)

English (B2)

GP : 3.23 (Second Class horners)

Contract Information

Tel: (+66) 095 250 5659

Email: prawk13@gmail.com

Line: prawa1300445

2014 - 2019 Kanaratbamrungpathumthani School

Gifted (Science - Math)

2020 - NOW Silpakorn university

Faculty of Architecture

Skill

3D model

Autocad

Revit

Sketchup

Render

Enscape

Lumion

D5

EXPERIENCE

2023 Internship

Graphic Design

Adobe Photoshop

Adobe Illustrator

Procreate

2023 Volunteer Camp, Chantaburi

Testing Mockup

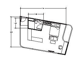
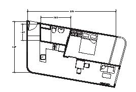
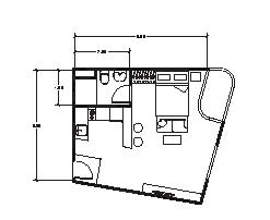
2023 NOVA build expo 2023

Two-storey house

2023 Embassy Krathong Exhibition

Icon Siam

2024 BANGKOK DESIGN WEEK 2024

MUTE(BAD)MOOD

2024 Internship

HAPPY VILLAGE @Chiangmai

NEW NORMAL APARTMENT

@Charan 75

LUXURY CONDOMINIUM

@Sukhumvit 63

ARI CENTER @Ari

BENJAKITTI PERFORMIN ART AND CULTURAL CENTER @Benjakitti Park 11

URBAN DESIGN SOCIAL HOUSING

RENOVATION OF SHOPHOUSES

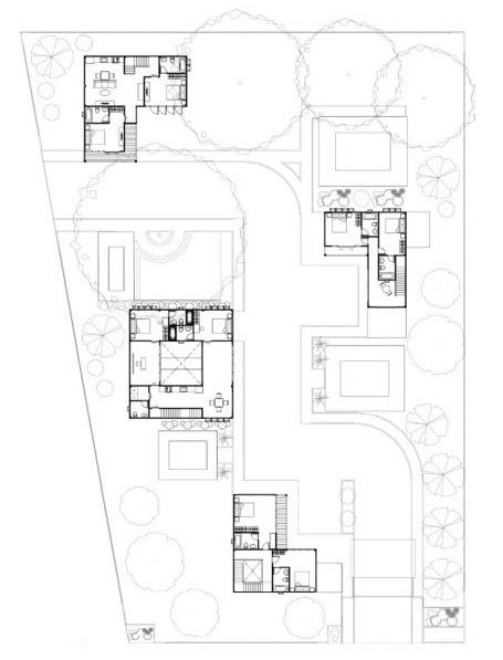
RETREAT

CONSTRUCTION FLOATING RESTAURANT

HUAHIN SERENITY HOSPITAL : HEALTHCARE AND LONGSTAY @Huahin

COMPETITION WORK 12 EXPERIENCE

VILLAGE

design year 2

Close Outside - Open Inside ”

Free cannabis cultivation village In this village there will be a total of 4 users.

There are food houses, fashion houses, farming houses, and medicine production houses. The space needs will be arranged according to each resident.

Find relationships between residents' activitiescommon area Arrange the zones to get shared space.

Then find the relationship of users in each house with the common area in terms of activities used. The level of light that each home requires and find the relationship between the common areas in the matter of private property Private Sun

“ Feel Like Home ” design year 2

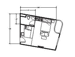
Starting by asking about the living situation of Thai people, most of them live in detached houses. or an area of the house that has a garden and has privacy Therefore, the idea and method of separating personal space was born. By increasing the space between rooms by adding green space between them. To provide privacy and channels for air and wind circulation.

SITE

create distance between rooms and a greater distribution of green areas

From site analysis and a userss in the Sukhumvit area It was found that many users work in the film and animation field. Including a work area There are many studios located in this area. Therefore, there is an idea to target this group of users by creating a common area. that allows users to “create internal-to-external interactions”

design year 3

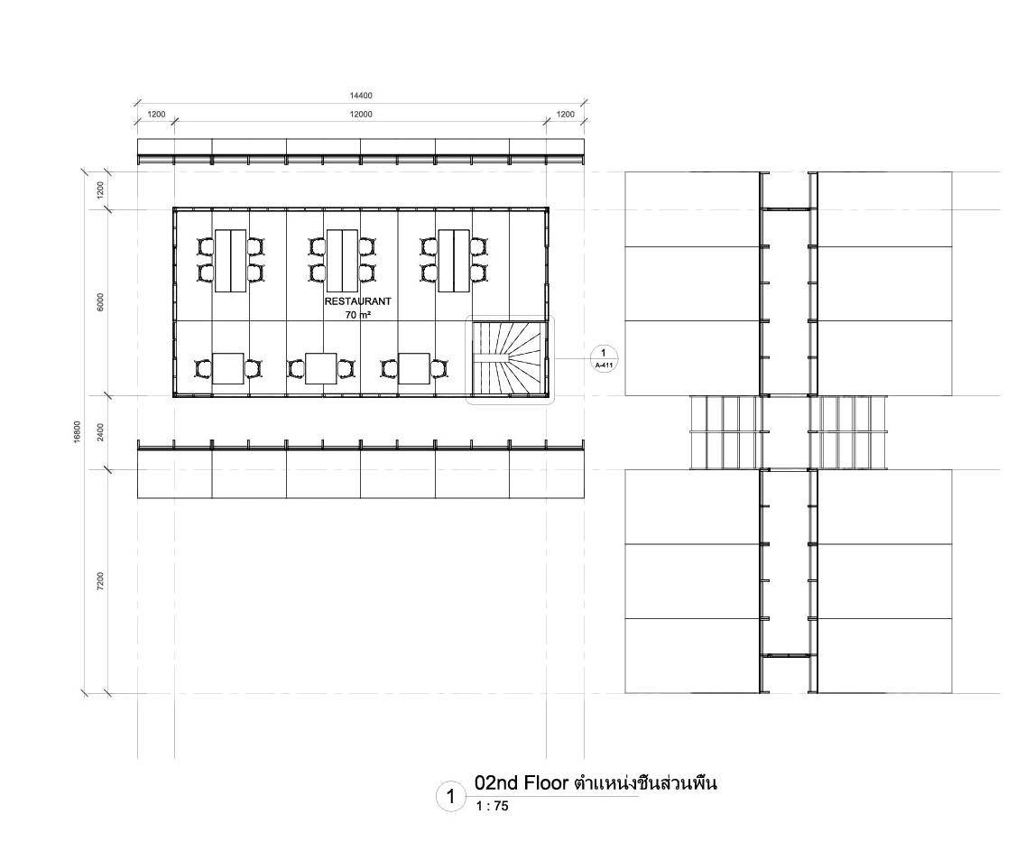
“ FOOD AREA ”

The location of the shopping mall obtained this time is a site next to BTS Ari, in the old area that used to be home to Va Villa Ari. The old area used to have a courtyard where people could gather to do activities. dining area Or it's a beer garden for teenagers to sit. Therefore, we want to keep the highlights in the next work.

WalkAcces

Create an activity area in front of the building as a point of attraction for people passing by.

There will be a restaurant, Light Food, Food Garden, Supermarket. It is an island in this area.

This activity area will attract people to enter the mall and ensure thorough circulation. And the connection of the activity fields with each other helps prevent dead ends.

Organizing the service section in the central part of the building so that both Department and Retail services can be provided, and the service section can be hidden by surrounding other functions.

@Benjakitti

design year 4

“ LIGHTLY ”

This is because the context of the site is very special in itself. What if the architecture could be made as "light" as possible to preserve the uniqueness of the area?

2nd Floor
3rd Floor

design year 4

“ ENVIRONMENT TO INSIDE ”

The site is located in Hua Hin, an area that faces Suan Luang Rajini Park and has sea views. We therefore had a Intention. Bringing in the outside environment To create a good atmosphere inside and helps heal the minds of patients, their relatives, and nursing staff. It will create a circulation path for people to be continuous with the outside from the hospital area. To the park and the seaside

Concept

Choose to draw out the surrounding area of the site as a highlight. Pond on site, green area The area in front of the site which is Suan Luang Queen

The hospital's courtyard will be built to create a circulation path for people from different areas to come together. and can spread out from this area

The building's zoning functions will be arranged into 4 buildings. Hospital building, Healthcare building, cafeteria and parking building and create a courtyard for each area with a continuous circulation path and build connections between buildings So that people within the building can travel continuously.

HEALTH CARE ROOM PLAN

design year 5

INTEGRATE ”

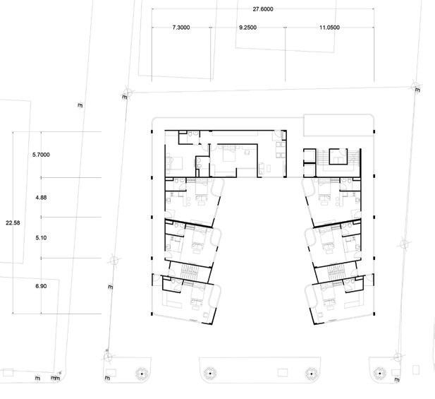
Integrating shared spaces to foster community, this social housing design connects common areas, encouraging interaction and a sense of belonging

URBAN DESIGN - SOCIAL HOUSING

design year 5

LIVING HERITAGE ”

Preserving original shophouses while integrating and connecting spaces between the old and the new to encourage shared living between locals and tourists

BOUTIQUE HOTEL

@Benjakitti park

EXTENTION HOUSE GALLERY

Site Planing year 3

INTO THE RIVER

PROGRAM

- HOTEL & RESORT - CONCEPT

PUBLIC - pushing the public area allows for activities that with river PRIVATE - up close through the view and the unique placement in line with contour positioning in relarion to the contour

Site Inventory Site Analysis

Create a blocking boundary

Block the view from people inside and people outside.

Industrialized Building year 4

STRUCTURE PLAN

: NOVA build expo 2023

design year 3

@Bangnokkwak, Bangkontee, Samutprakarn

Embassy Krathong Exhibition

“ICON SIAM CHAO PHRAYA RIVER OF ETERNAL PROSPERITY” Loy Krathong Festival

14 - 27 November 2023 at ICONSIAM

Internship at ‘Yasui architects & engineers inc’ company in JAPAN 2024

Turn static files into dynamic content formats.

Create a flipbook
Issuu converts static files into: digital portfolios, online yearbooks, online catalogs, digital photo albums and more. Sign up and create your flipbook.
Prawa Poomchan /Portfolio 2025 by Prawa Poomchan - Issuu