Abbass Ismail - Architectural Portfolio

Page 1


Copyright(c)2024

AbbassIsmail

AcademicandProfessionalPortfolio

Allrightsreserved.Nopartofthispublication,totalorpartial,maybe reproduced, distributed, or transmitted in any form or by any means, includingphotocopying,recording,electronicormechanicalmethods, orothermeans,isstrictlyprohibitedwithoutpriorpermission. Referencesareprovideduponrequest.

Table of Contents

A - Architectural Design

A01 - Drug Rehabilitation Center

Graduation Project

Typology: Healthcare Location: Louaizeh, Baabda, Lebanon

A02 - Mixed Use Complex

Typology: Commercial Location: Mar Mikhael, Beirut, Lebanon

A03 - Cultural Park

Typology: Urban Landscape Design Location: Mar Mikhael, Beirut, Lebanon

A04 - Rene Mouawad Airport

Typology: Airport Location: Kleyate, Lebanon

A05 - Green Business Park

Typology: Commercial Location: Dbayeh, Lebanon

A06 - Affordable Housing

Typology: Residential Location: Al-Hadath, Beirut, Lebanon

B - Execution Design

B01 - Cultural Center - Residential

Typology: Residential Location: Beirut, Lebanon

B02 - Pediatric Clinics

Typology: Healthcare Location: Debbieh, Lebanon

C - Technical Works

C01 - Playgound Canopy

Typology: Recreation Location: Debbieh, Lebanon

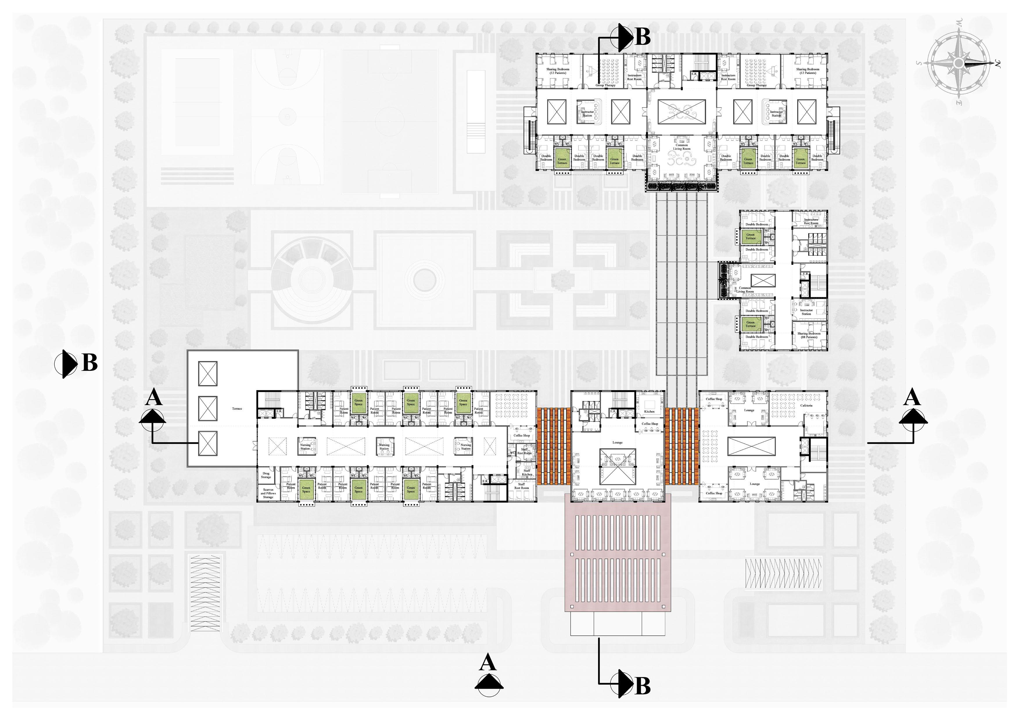
DRUG REHABILITATION CENTER

Biophilic Healing Architecture

CONCEPT

The concept of the project is to create a combination between introvert architecture; to provide safe, secure and calm atmosphere for patients and extrovert architecture; to orient the project toward the huge green areas surrounding the site to enhance and support the ptoject theme “Biophilic Healing Architecture” through integrating physical built area with natural features and interacting patients with harmonous nature to improve the healing process.

Introvert Architecture

Physical built area surrounding green space and create encolsure around itself to enhance high security, privacy and safety

Extrovert Architecture

Physical built area surrounded by green spaces and create transparency to open areas in the surroundings

A Combination between Introvert and Extrovert Architecture

PLAN

ELEVATION B
SECTION BB
ATRIUM
GREEN TERRACE
GREEN POT

Breaking Barriers: Adapt, Recover and Restore

CONCEPT

The concept of the project is “Introvert Interactive Complex” where the main aim of the project is to create an atmosphere consist of cultural events, working, living, entertaining and shopping. Introvert architecture is a spatial pattern that tends to conceal what exists or occurs inside, insisting on privacy, seclusion, and secrecy of the house. Interactive architecture is deemed as a real-time narrative medium, able to reconnect and renew the relationships between participants (users) and the surroundings to help them explore their own motivations, inspirations, decisions, and outcomes.

TERRACES

ROOFTOP

ATRIUM

HYPERMARKET

CENTRAL AREA

OUTDOOR FOODCOURT

INDOOR FOODCOURT

CINEMA TICKETING

SITE PLAN

SECOND FLOOR PLAN

ELEVATION B SECTION BB

TYPICAL OFFICES FLOOR PLAN

BASEMENT FLOOR PLAN

CULTURAL PARK

Breaking Barriers: Adapt,

Recover and Restore

CONCEPT

The concept of the project is rethinking the future without blowing up the past. It targets to be futuristic cultural park that rehink the future through recalling the past by integrating the ancient, current and the coming lifestyle. The concept is achieved by a creation of fluidity that refers to seamlessness where there is a movement within the space without any obstruction. It gives a feeling of being in motion while being in a solid, closed matter. The design approach resorted to create important elements such as curves, flow, dynamic nature, and flexibility to serve the main concept of the project. From the very beginning of the design stages, fluidity started from the existing planning of the train railway in the site and conserving the existing buildings that manages, at that time, the train railway, circulation maintenance and services

“Time, though in Eternity, applied To motion, measures all things durable By present, past, and future.” - John Milton

This quote means that time is always in a dynamic flow of motion, where it moves us from past to future passing through present, smothly. This means that the connection between time is the flow of life by recalling past, living the present and rethink the future

SECONDARY THEATERS GROUND FLOOR PLAN

SECONDARY THEATERS SECTION AA

CAFES & RESTAURANTS PLANS
SOUVENIR SHOPS PLANS
SOUVENIR SHOPS
CAFES & RESTAURANTS PLANS

READING PAVILION PLAN

EXHIBITIONS PLANS

REHABILITATION OF RENÉ MOUAWAD AIRPORT

Eco-Friendly Built Enrovironment

CONCEPT

Air transportation is an innovative and environmentally-responsible industry that drives economic and social progress. It has become one of the greatest contributors to the advancement of modern-day society and is the consumer’s preferred mode of transportation.

The project aims to design a ‘Sustainable Airport’ applying principles of sustainability and eco-friendly architecture through a promising conceptualization using successful relationships between spaces which make the passenger’s journey (within the terminal building) enjoyable, safe, and healthy. This aim matches with the vision of the Lebanese Government that seeks to renew and rehabilitate René Mouawad Airport in Kleyate.

The historical background of aircraft invention is originated from nature, where human studied the movement of the birds’ wings and implemented it. “The bird is a symbol of the soul’s deliverance from the bondage of the earth”.Fluttering is the natural and biological property specified by God to birds. In the mythological thought, the bird remained burdened with symbols and connotations that explain several phenomena that worried human, and made him feel helpless in front of them.

Kleyate is a Lebanese village in the Akkar District in the North Governorate. It is located in a group of villages called the plain in Akkar. Among the most important monuments in the city are the ancient Kleyate Castle, Kleyate Military Airport.

The project is designed to be able to create a form to encourage human to be free with his perceptions, beliefs, decisions and actions in the daily life without violating others’ freedoms.

SECTIONAL PERSPECTIVE A

SECTIONAL PERSPECTIVE B FIRE

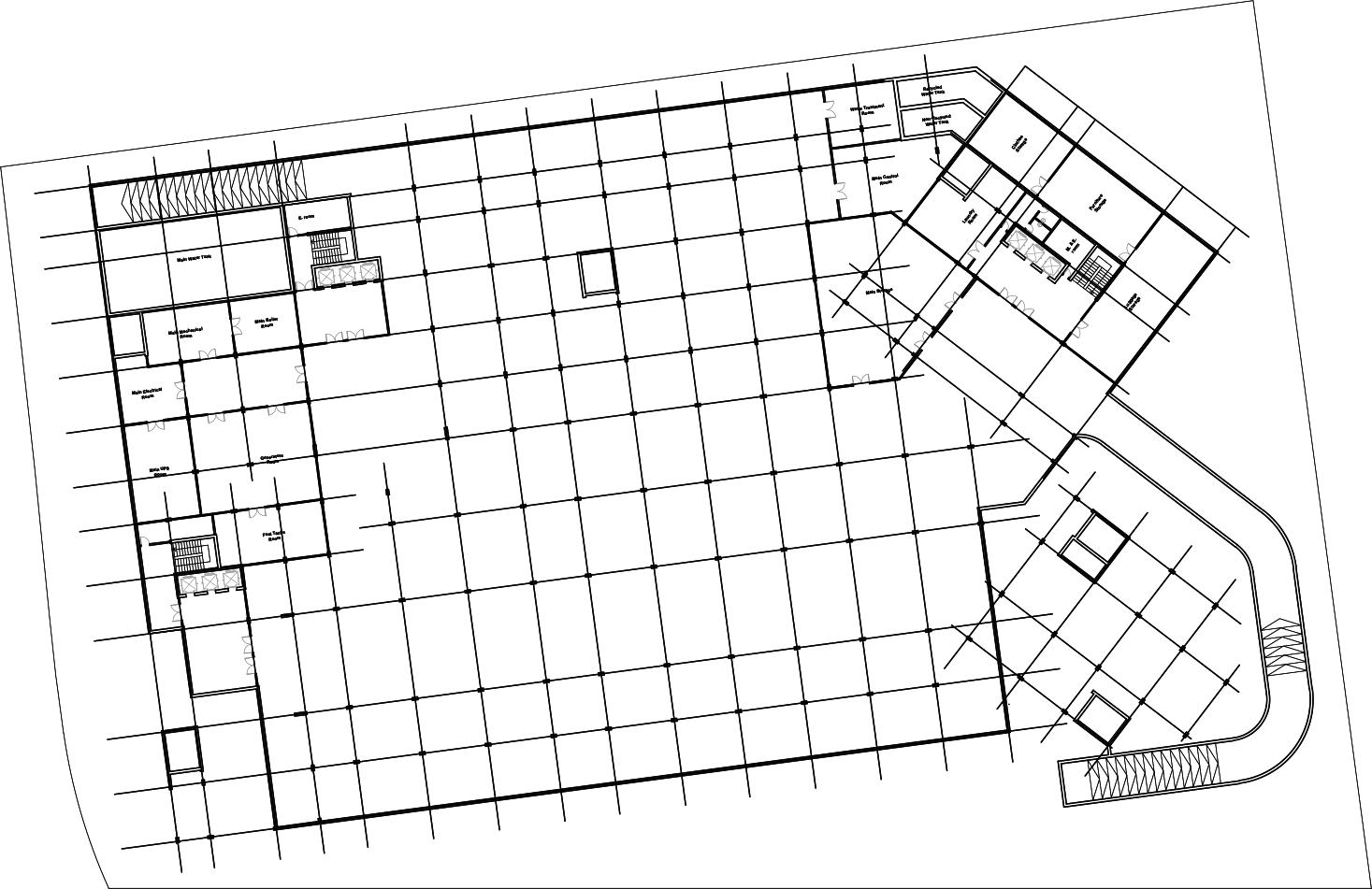
GREEN BUSINESS PARK IN BEIRUT

Economic Revitalization

CONCEPT

Networking in business is one of the best resources for career development and professional success. A good network can provide job leads, possibilities for advancement and opportunities for personal improvement. If you hope to grow your career and increase your chances of professional success, you need to understand the importance of networking in business

“By its very nature and design, network marketing is a strikingly fair, democratic, socially responsible system of generating wealth” - ROBERT KIYOSAKIStrong, healthy relationships are important throughout your life. Your social ties with family members, friends, neighbors, coworkers, and others impact your mental, emotional, and even physical well-being. Socializing with coworkers helps strengthen the quality of workplace relationships. Strong relationships enable the team to work better together.

The network business is a business based on “one for team and team for one”. It can be considered as successful business by the high success of the strong social connection and the extreme powerful communicattion skills between the company members.

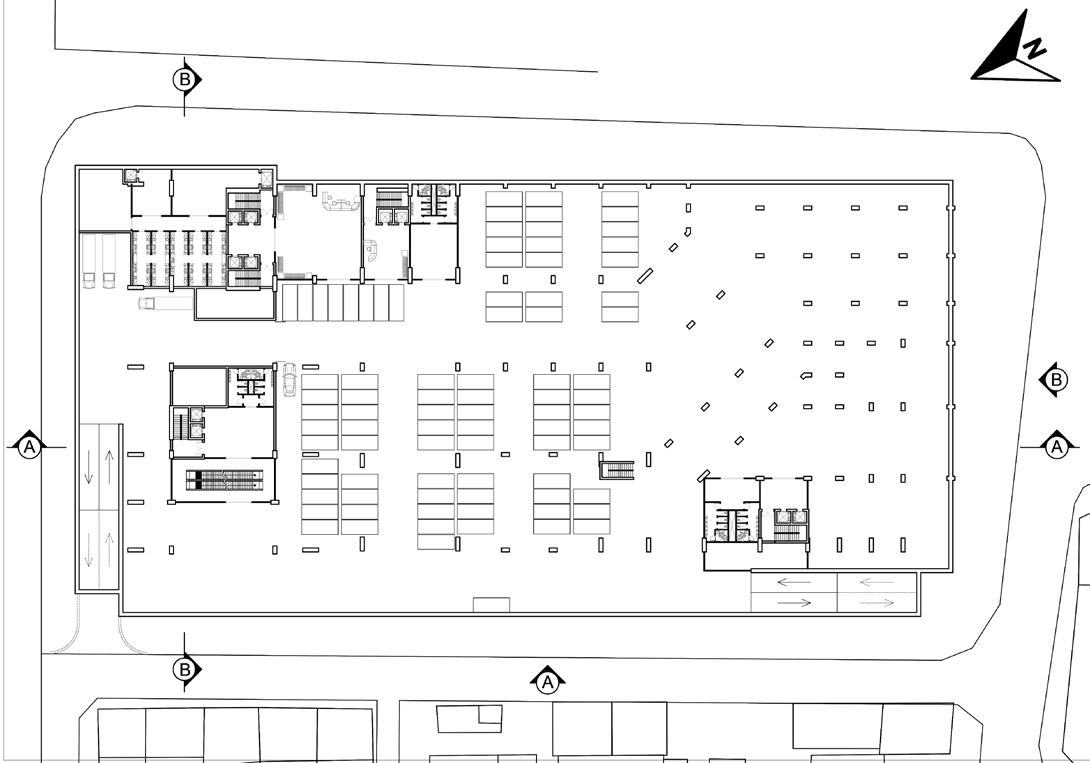
LAYOUT PLAN

APART

BASEMENT FLOOR PLAN

STRUCTURAL GRID PLAN

ELEVATION B

LANDUSE ANALYSIS ENTRANCES ANALYSIS CIRCULATION ANALYSIS

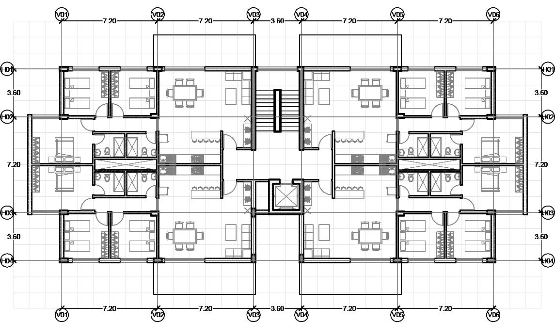
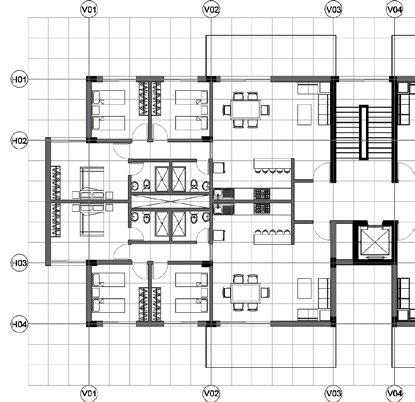
AFFORDABLE HOUSING IN AL-HADATH

Architecture For Youth

The Power of Youth Is The Society’s Backbone

A youth is any person between the age of 15 years and 30 years regardless of the gender. Unfortunately, the youth are the backbone of a society and hence they determine the future of any given society. This is because all other age groups, the kids, teenagers, middle aged and the senior citizens rely on the youth and expect a lot from them.

FAITH

Youth are important because they are full of energy and they believe in humanitarian issues and human rights

Reproduce: here doesn’t mean increasing the population but it means intellectual and cultural reproduction

Protection: Youth must protect their culture and traditions moreover, develop and embrace changes in the society

Growth: Youth with a fresh energy can perform better and ensure the growth of society. Social, political and economic spheres mostly depends on youth only

Beirut, Lebanon

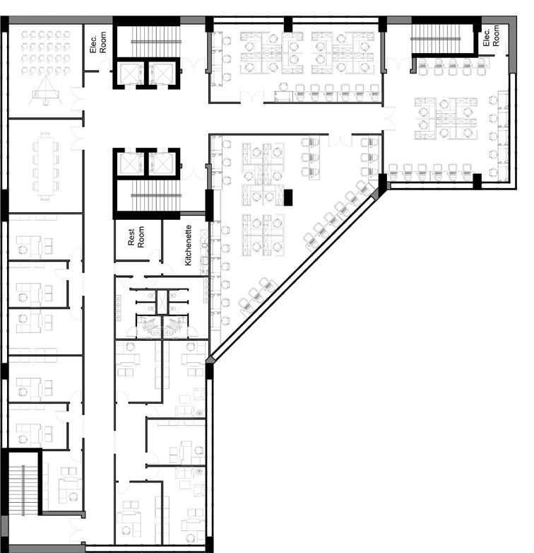
TYPICAL FLOOR PLAN DEPARTMENT

LOFT FLOOR PLAN DEPARTMENT

GROUND FLOOR STAIRCASE PLAN

DRAINAGE

Turn static files into dynamic content formats.

Create a flipbook
Issuu converts static files into: digital portfolios, online yearbooks, online catalogs, digital photo albums and more. Sign up and create your flipbook.
Abbass Ismail - Architectural Portfolio by archabbassismail - Issuu