GRUPO III _ REFERENTES

Page 1

Grupo 3

Integrantes:

• Harumi Camasi

• Annia Heredia

• Araceli Huayhua

• Valeria Pacheco

Ejercicio vertical

DE CONTENIDO 01 02 03 Estacion Sants DJI Sky City Torre de Mesas
TABLA

ESTACIÓN

SANTS EN BARCELONA

ESTACIÓN

INTRODUCCIÓN

AMPLIACIÓN ESTACIÓN SANTS

Propuesta sobre mejorar la capacidad y eficiencia de la gestión de los servicios ferroviarios así como integrar la estación en el tejido urbano de la ciudad. Con el fin de mejorar la accesibilidad y comodidad de los usuarios de la estación, se contempla la construcción de nuevos edificios, así como la rehabilitación de los existentes. Adicionalmente, se ha procurado maximizar el espacio disponible, tanto en la zona de servicios como en la peatonal, y se ha priorizado la sustentabilidad en el diseño del proyecto.

BIOGRAFÍA

ARQUITECTES

"la ciudad es una máquina de crear riqueza y equidad, un tejido de relaciones sociales y un espacio donde se desarrolla la democracia y se ejerce la ciudadanía."

MBM Arquitectes es un estudio de arquitectura fundado en 1951 en Barcelona, España, por los arquitectos Josep Martorell, Oriol Bohigas, David Mackay y Jaume Casademont. A lo largo de su historia, la firma ha trabajado en varios proyectos de gran envergadura en España y en el extranjero, en campos como el inmobiliario, rehabilitación, urbanismo, interiorismo y el diseño de mobiliario. El enfoque de MBM Arquitectes está en la búsqueda de soluciones arquitectónicas que respondan a las necesidades sociales, culturales y urbanísticas de cada proyecto, integrando siempre en su trabajo la sostenibilidad y el respeto por el patrimonio arquitectónico y cultural.

ORIOL BOHIGAS - MBM

FICHA TÉCNICA

Localización

Año

Cliente Unidad

Alto

Arquitecto

Tipo

Área

Material

OBRAS SIMILARES

Barcelona, España

2018 - 2030

Administrador de Infraes tructuras Ferroviarias (ADIF)

Estación de tren

3 pisos + 2 sótanos

MBM Arquitectes

Ampliación y mejora de la estación de tren existente

21.754m2

Estructura de acero

PLANO DE UBICACIÓN

EstacióndeSants

• Compromiso social y político

• Uso de materiales nobles

• Enfoque crítico con la realidad social y urbana

• Arquitectura popular y tradicional

Escuela Thau

1972 - 1974

Edificio de Oficinas RBA

2008 - 2011

Puerto Olímpico

1985 - 1991

Disseny Hub

Barcelona

2013 - 2015

CONTEXTO ANÁLISIS URBANO

ROBERT VENTURI

Supermercado Latino Flores Polideportivo Municipal de la España Industrial Libreria Shenzhen Centro cultural La Modelo Centro comercial Mercadona Parque Joan Miró Parque de la España Industrial Plaza Sants Aventura Park Barcelona Escola O cial d'Idiomas Barcelona V Sants ISEP| Instituto Superior de Estudios Psicológicos
Attitude Skool escuela de
Sistema de equipamientos de uso público y privado • Comercial • Hotelero • Aparcamiento • Oficinas
Casal de Jóvenes de Sants
baile

CONTEXTO HISTÓRICO

Soterramiento de las vías permite que el edificio de la estación se disponga también paralelo a las vías. Transición entre el espacio público, la estación y los andenes se desarrolla a lo largo del eje longitudinal.

Primera parada que se realizaba en una pequeña estación situada al final de la actual Carrer de Riego. Dando articulación entre una pequeña plaza de acceso y los andenes de la estación

Primera parada que se realizaba en una pequeña estación situada al final de la actual Carrer de Riego. Dando articulación entre una pequeña plaza de acceso y los andenes de la estación

Reforma de la estación y servicios. Ampliación del edificio con uso de oficinas, zona cultural, comercial. Además de nuevos aparcamientos y una nueva estación de autobuses

1º 2º 3º 4º
1º estación de Sants 1854 - 1938 2º estación de Sants 1936 - 1979 3º estación de Sants 1979 - 2016 futura estación de Sants 2014-2030

CONTEXTO

ANÁLISIS URBANO

CONECTIVIDADÁREASVERDES

SUPERPOSICIÓNDEESPACIOS

CONECTIVIDADÁREASVERDES

VISTA PANORÁMICA

Entorno urbano es principalmente una zona urbana residencial y comercial, con numerosos edificios altos de oficinas y apartamentos.

Las calles son trazadas en sentido longitudinal, el hotel construido sobre la estación perpendicularmente se convierte en la principal referencia visual.

AV

. DEMADRID

NODOS

PARQUE DE LA ESPAÑA IND.

ESTACIÓN DE SANTS

LÍNEA DE METRO

CALLES PRINCIPALES

PASAJES

Se realizó un análisis de trazos de las avenidas principales y secundarias que se generan alrededor de proyecto.

AV. DE ROMA AV. DE SANT ANTONIO C A L L E D E N U M A N C I A
CALLEDESANTSCALLEDELACREUCOBERTA PASAJEDELPOLIDEPORTIVO
CALLE CONSELL DE CENT

CONCEPTO

ESTRATEGIAS

1 2 SOTERRAMIENTO

EMPLAZAMIENTO

• Emplazamiento del proyecto en la gran plaza

• Conectividad de la estación de Sants subterranea y orientado a la trama urbana

3 4 MODELAR Y DESFASAR

5

PERMEABILIDAD

• Elevación de la planta baja a 6,5mts de altura conectividad longitudinal con ambas plazas.

VOLUMETRÍA Y ESPACIO PÚBLICO

• Las plazas y vegetación rodea la estación Sants

• Se modela volúmen de menor dimensión y se desfasa; en planta superior.

• Vinculan las plazas con el proyecto

55%

espacio abierto en la planta libre

FUTURAS ESTRATEGIAS

-Plaza Països Catalans (3) como acceso principal de la Estación.

- Creación de la Plaza Nord con intercambiador modal.

- Espacio público perimetral ampliado.

- Cubierta de la estación como nuevo espacio público y con nuevos usos sobre  cubierta.

FORMA Y COMPOSICIÓN

- Mejora de la intermodalidad (tren, metro, autobuses, taxis y bicis)

- Red Bus urbano ortogonal vertical optimizada por Numan cial Tarragona

- Estación de autocares exis tente en reubicar en la ciudad. .-Soterramiento taxis, Kiss&ride, aparcamiento vehículos de alquiler y vehículos privados

- Reducción del incremento de edificabilidad del PGM.

- Fachadas abiertas en las plazas del entorno.

- 3 fachadas sin vialidad.

- Mejora de la conexión esta ción con espacios públicos y creación de nuevos equipa mientos.

1 2 3

LLENOS Y VACÍOS ELEMEN TOS CIRCU LACIÓN

o ESPACIO PÚBLICO o MOVILIDAD o TRAMA URBANA
1 2 3

PROGRAMA

PLANTA DE CONTEXTO

Zona de juegos infantiles

Parada de autobus

Parada de taxis, plaza oeste

Aparcamiento de motos y bicicletas

Aparcamiento es superficie

Solar abandonado

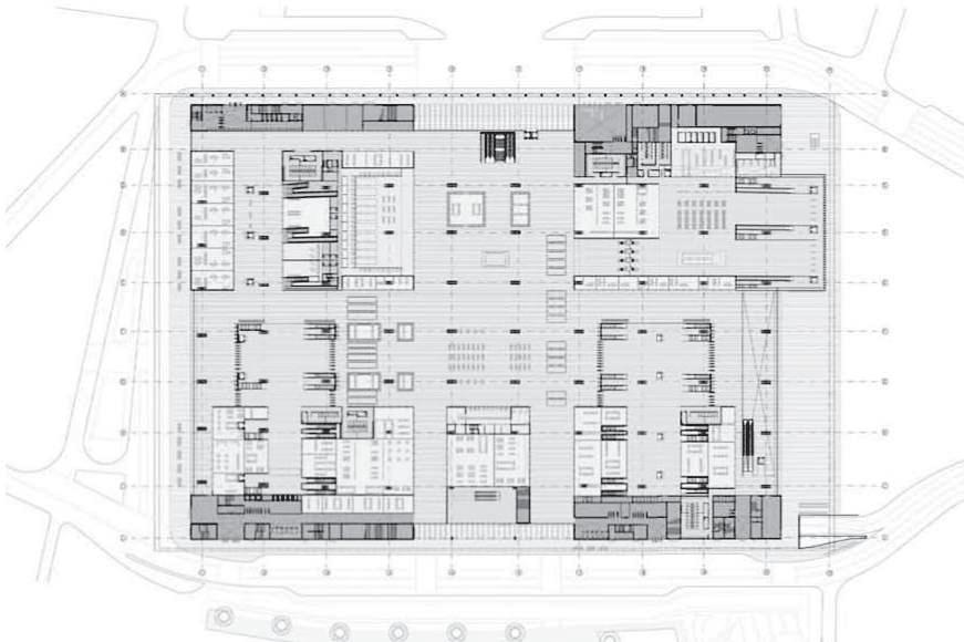
PLANTA 1ER NIVEL

DESNIVEL hacia espacio público

ESPANYA INDUSTIAL

PARQUE
PLAZA PLAZA

Estación de tren

Hotel
Comercio
Parking Estación
HOTEL SANTS PARKING ESTACIÒN DE BUS

VÍAS Y ACCESOS

Línea 5 del metro Maçanet-Massanes

Sant Vicenc de Calders

Línea R4

Vic -L'Hospitalet de Llobregat

Línea R3

Línea 1 del metro

Línea 3 del metro

CICLOVÍAS

M TRANSPORTE
M M M
PÚBLICO

INGRESOS PEATONALES

PLAZA PREVIA

PÙBLICO ESPACIO

PEATONES

PARADA DE BUS

BUSES

ESTACIONAMIENTO

INGRESO CARROS

Mejora de accesos a la estacion

PLANTA BAJA
REFORMA
AMPLIACION Activacion vial Reforma integral de la plaza Nueva terminal de buses

Nuevos PERMEABILIDADcerramientos

ESTRATEGIAS PROYECTUALES

CONTINUIDAD entre el espacio público y la estación

INTEGRACIÓN con el ESPACIO PÚBLICO

PLAZA como espacio recibidor previo

Conexión con carriles de biciclera INTERMODALIDAD

INGRESO por las 4 fachadas

DJI SKY CITY DJI SKY CITY

INTRODUCCIÓN

DJI SKY CITY

DJI Sky City, es un diseño que parte del “corazón de innovación”. El edificio tiene las funcionalidades de oficinas, laboratorios de investigación, instalaciones públicas y área de vuelos de prueba. Cuenta con una altura de 213 m, la estructura refleja un diseño de edificios altos en la región y crea un hito en el lugar de Shenzhen, China como en la ciudad del diseño de la UNESCO.

BIBLIOGRAFÍA

"Como arquitecto tu diseñas para el presente, con una consciencia del pasado, para un futuro que es en esencia desconocido"

Norman Faster es un arquitecto y urbanista británico y fundador de Foster and Partners desde 1967, una empresa que sigue vigente y el cual presenta grandes y complejos proyectos. Foster se enfoco en reflejar en sus proyectos una arquitectura sostenible, infraestructura pública, edificios cívicos y culturales, aeropuertos, viviendas y oficinas. Sus proyectos se encuentran alrededor de 6 contientes en el mundo.

Hoy en día sus proyectos destacan por sus superficies curvas, geométricas y la utilización de diversos materiales constructivos.

CERTIFICACIONES

NORMAN FASTER - FOSTER AND PARTNERS

FICHA TÉCNICA

Localización

Año

Cliente Unidad

Alto

Arquitecto

Tipo

Área Material

OBRAS SIMILARES

• Enfoque Ambiental

• Uso de geometrías

Shenzhen, China

2018 - actualidad

DJI (líder mundial en drones civiles y tecnología de cámaras creativas

Dos rascacielos conectados por un puente áereo

44 pisos + 4 sótanos y 213 m

Foster + Socios

Sede/ Torre de oficinas

242000 m2

Estructura de acero

PLANO DE UBICACIÓN

Sede Central de MOL en BudapestHungría

• Diseño urbano y paisajístico

• Enfoque de ingenería estructural

• Últimas tecnologías en sus materiales y acabados

Complejo de oficinas colaborativas ICONE en Luxemburgo

ICD Brookfield

Place en Dubai, Emiratos Árabes Unidos

Flashback: Hearst Tower en New York, Estados Unidos

CONTEXTO

ANÁLISIS URBANO

ROBERT VENTURI

Departamento de arte

Centro

Escuela

Restaurante

Sistema de equipamientos de uso público y privado

• Salud

• Educativo

• Cultural

• Económico

Children’s Hospital Oral Cavity Zhengi Center Compañia de Plástico Shanghai Escuela Futian Huangpu Libreria Shenzhen comercial Bookmall center Plaza Citizen Parque Lianhuashan Plaza cultural Parknshop Banco de China primaria Huangpu Da Bi Hai Xian

CONTEXTO HISTÓRICO

BOOMTOWN

Crecimiento urbano e industrial. Antes era zona de pescadores.

40 años

Expansión a más altura en el territorio para encajar en el crecimiento de la población. Zonas comerciales y ejecutivas.

1980 actualidad

Edificios de gran altura (rascacielos)entre 160m a 200 m

EXPANSIÓN TRAZO

Enfocados en el espacio público. Cuenta con plazas, equipamiento urbano, señalizaciones y áreas verdes.

ANÁLISIS URBANO

CERCAAEDIFICIOSDEGRANALTURA

CONEXIÓNCONELESPACIOPÚBLICO

ÁREASVERDESYPLAZAS RASCACIELOS

CONEXIÓN COLINDANTE

Los edificios cerca a la zona colindante cuenta con gran altura. Generando un ritmo y secuencia.

La zona cuenta con espacios públicos que son de permanencia para el usuario. En el recorrido de las calles se puede observar vegetación y mobiliario urbano.

CONTEXTO

CALLE HONGLI W RD

CALLE HONGLI W RD

CALLE HONGLI W RD

PASAJE FUZHONG RD

PASAJE FUZHONG RD

PASAJE FUZHONG 3RD

PASAJE FUZHONG 3RD

CALLE SHENNAN BLVD

CALLE SHENNAN BLVD

CALLE SHENNAN BLVD

NODOS

AVENIDAS PRINCIPALES

CALLES

PASAJES

EDIFICIO DJI SKY CITY

PARQUE LIANHUASHAN

Se realizó un análisis de trazos de las avenidas principales y secundarias que se generan alrededor de proyecto.

A V S H E N A N X I N Z H O U J C T Y I T I A N R D

CONCEPTO

ESTRATEGIA

1 2 BLOQUES VERTICALES

• Emplazamiento del proyecto en dos manzanas

• Fragmentación de los dos bloques para generar un recorrido e interacción en los espacios para los usuarios.

MODELAR Y DESFASAR

• Se levantan dos volúmenes en voladizo sobre el suelo para generar una mejor visual en los primeros niveles.

• Se modelan dos volúmenes de menor dimensión y se desfasan en los primeros niveles

• Conexión de los bloques mediante un puente elevado.

• Los volúmenes flotantes generan una sensación de inclusión, comodidad y tranquilidad.

LEVANTAR CONEXIÓN VERTICAL EMPLAZAMIENTO 3 6 4 CONEXIÓN HORIZONTAL
5

7

ATERRAZAMIENTO

• La vegetación rodea la parte inferior de la torre

FORMA

• Ventilación se genera a través de los árboles del espacio público y los dos bloques separados del proyecto

• Vincular el paisaje con el proyecto

espacio abierto en la planta libre

ORTOGONAL ESCALA SECUENCIA RITMO RELACIONES ESPACIALES N

Iluminación
ASOLAMIENTO
• Se propone una red de jardines en la azotea para generar vitalidad y conexión con la naturaleza VENTILACIÓN 8
Y
VOLUMETRÍA Y ESPACIO PÚBLICO 9
80%

Área de vuelo de pruebas

Of icina Centro de Investigación

Of icina Auditorio

Gimnasio S.S.H.H.

Centro de Investigación S.S.H.H.

Lobby
PROGRAMA

EST RUCTURA

TENSORESCONEXIÓNTENSORES ESTRUCTURA

Puente aéreo colgante

Bloque de vidrio

Estructura de acero (vigas “V”)

Tubos de acero mate

Puente aéreo colgante (90m)

Techos verdes

Circulación

METÁLICA
UNION V I S U AL
E S C A L A
V ISTAS PERMEABILIDAD CONEX IÓN S U S P E N S I Ó N REL ACIÓN
ESTRUCTURA

ESPACIO PÚBLICO

ESCALA

TORRE DE MESAS

IN T RODUCCIÓN

TOWER OF TABLES INTRODUCCIÓN

Serie Architects propuso " Tower of Tables", un rascacielos de en Singapur que aborda los desafíos climáticos al reducir las nes de carbono a través de la construcción, el consumo de la generación de energía. La torre está diseñada como una pabellones apilados que contienen comunidades de espacios trabajo y terrazas paisajísticas. También incluye un podio fl un patio central y pabellones circulares para reuniones. La carbono neutral y enfoca en crear espacios de trabajo inf flexibles que se adapten a los modelos de trabajo eme contemporáneos.

BIBLIOGRAF ÍA

"La arquitectura es sobre todo una forma de pensar. Se trata de cuestionar las suposiciones y preconcepciones, y de encontrar nuevas soluciones a problemas existentes"

Chris Lee es el fundador y director de Serie Architects, un estudio de arquitectura con sedes en Londres, Mumbai y Beijing. Nacido en 1968 en Malaysia, Lee estudió arquitectura en la Universidad de Cambridge y en la Universidad de Princeton antes de trabajar con el arquitecto holandés Rem Koolhaas en OMA. En 2008, fundó Serie Architects con su esposa, Kapil Gupta, y ha liderado el diseño de proyectos en una amplia variedad de escalas y contextos en todo el mundo. La obra de Lee se caracteriza por su enfoque innovador en la arquitectura y el urbanismo, y su interés en cuestiones de identidad cultural y sostenibilidad.

CHRIS LEE - SERIE ARC

F ICHA T ÉCNICA

Localización

Singapur

Año 2019

Concepto Torre compuesta por modulos en forma de mesa

Alto

Arquitecto

Tipo

Área

Material

32 pisos, 3niveles estacionamiento

Serie Architects, Architects 61 + Multiply Architects

Torre de oficinas / Retail

75,000 m2

Madera, estructura metàlica

OBRAS SIMIL ARES

• Enfoque Ambiental

• Uso de geometrías

• Diseño urbano y paisajístico

• Enfoque de ingenería estructural

• Últimas tecnologías en sus materiales y acabados

Starohorská

Housing en Eslovaquia

Singapore State Courts en Singapur

ICD Brookfield

Place en Dubai, Emiratos Árabes

Unidos

IQL Towers en Londres

PL ANO DE UBICACIÓN

ESTRATEGIAS

1 EMPLAZAMIENTO

2 BLOQUE HORIZONTAL

• Emplazamiento del proyecto en dos manzanas

4

• Como punto de partida se propone un bloque horizontal para que sea el núcelo del proyecto,

CONEXIÓN VERTICALES

• Fragmentación de ambos volúmenes para crear escalonamiento en los siguientes volúmenes.

5

MODELAR Y DESFASAR

6

• Se superponen dos bloques con otras dimensiones para crear voladizos y tener dinamismo en los espacios.

• Se modela un volumen de menor dimensión como entrada principal del proyecto para aprovechar los demás ambientes.

Crecimiento de bloques para crear la torre vertical.

ESTRATEGIA
3 FRAGMENTAR CRECIMIENTO VERTICAL

• Uso de jardineras

• Obstrucción de algunos volúmenes para generar ventilación

VOLUMETRÍA Y ESPACIO PÚBLICO

• La vegetación rodea en las 4 fachadas y se introduce al espacio público y a la calle

• Vincular el paisaje con el proyecto

ORTOGONAL

7 ATERRAZAMIENTO 8 ASOLAMIENTO Iluminación
FORMA
9
TERRITORIO SECUENCIA RELACIONES ESPACIALES
N

PROGRAMA

S.S.H.H. Azotea

Oficina

S.S.H.H.

Oficina S.S.H.H.

Oficina S.S.H.H.

Oficina S.S.H.H.

Jardín

Centro de operación

Oficina
Azotea Azotea Azotea Azotea

EST RUCTURAS

marco estructural de acero

módulo de pabellón completado

pisos intermedios y vigas de madera

o EST RUCTURAL

- Acero estructural de alta resistencia

- Vigas de madera

o FACHADA

- Vidrio de baja emisividad

- Paneles de celosia de acero

o IN T ERIORES

- Madera laminada

- Lana de roca

- Espuma de poliuretano

- Paneles de poliestireno expandido (EPS)

Turn static files into dynamic content formats.

Create a flipbook
Issuu converts static files into: digital portfolios, online yearbooks, online catalogs, digital photo albums and more. Sign up and create your flipbook.
GRUPO III _ REFERENTES by Stephanie Huayhua - Issuu