大三下 - 第一次設計

Page 1

Interior design

University Department CYCU
01
111-2-1
品介紹 析 基析 設計 設計説 材質計劃 3D視
Table of contents
析 加利福亞·BigAndTiny⼦間設計
ZOOCOESTUDIO ⼦間是促家庭在⽣活各⽅⾯成⻑的⽅ “BigandTiny”的理由⽣ 2018年7 ⽉由ZOOCOESTUDIO設計的 家“BigandTiny”⼦間於加卡市成項⽬的設 計理基於兩個基本原則其 是在平⾯上規劃出兩個獨⽴的間別供成⼈兒童 使⽤同證兩個間之間的隔⾳效果其⼆是在每個間中利⽤相對封閉的私密 間圍合出室共場 ▼軸測析 櫃檯 兒童娛樂區與學⽣活動區 兒童聚會空間 成⼈區 ▼沉思室 ▼影⾳室 化髒間 廠庫 ▼平⾯
/
設計師利⽤隔⾳層的牆壁室成兩個部牆壁上設鏡⼦⾯在視覺上間 ⼤增加了間的豐富度整間劃完成ZOOCOESTUDIO事所⽤ 組的隔 牆伸縮圍合劃出不同尺度和不同的功的⼩間在⾜功求 的同出暢⽽富張⼒的間韻律 個結構形成了室場的⽴⾯⽽室場則是兒童學⽣活動 的重構成部根使⽤求功的不同組隔牆不同的形式材現在 視覺交的域隔牆轉為置物格 ⼝ ⽊製隔牆間成⼯作休閒

BOTTLE植物意⽣活

在上海⼤城8的BOTTLE植物意⽣活就可驗⼿作植物主題作品⽤製 作出裝畫景⽣品 ⽤植物作爲材利⽤⾃⼰的想⼒打 個⼩ 主客群是⼦和⽩來光 品介紹 店鋪⾥⾊的景⽣受 到不少客的種景 ⾥的植物容易店的 ⼝即使放上年它的顏 ⾊和狀可住
景⽣ ⾸先往玻⼦裡鋪⼭⽯在⼭⽯的上⾯鋪 層兩種材都可 到儲⽔的作⽤上⾯再鋪上⼟植先找到植物根根放到⽔裡盪 乾淨把根團來⽤⼦夾植物根⼟壤終在個⼩⼩玻⾥種植 出了⼀⼩ 另店鋪⾥裝畫植物品

碧桂園中央半島位於新埠島,緊鄰江東新區,總占地約6200畝,交通便利,分別與海新⼤ 橋、新東⼤橋、新埠橋三座⼤橋與海⼝市其他市區相連。

交通:公路,鐵路,⽔運,航空,公共交通

基析 美蘭站
25.9公⾥5⼩時16分鐘
美蘭站
34.2公⾥55分鐘 ⾞站&機場距離
中國海南省海⼝市 碧桂·中半島 停⾞場 住宅 海 會在個⽅是因爲和我的關 設計⽅向 讓⼈奇⼦間設計 設計視 1.基位置中國 海南省 海⼝市 埠環路和埠三路 住 別墅洋辦店 海⼝城獨島規劃約12⾥純淨海岸線之上國規劃⼤師執融灣江河 島灘林元素海上海島中島江江是不可製的景合 1 1⾥ 13鐘 1 1⾥ 13鐘 800尺 10鐘 商空
設計件 設計發想 間性味性 ⼦間 客⼈年輕⼈& ⼦ 間求 1. 間 2. 衛⽣間 3. 費間 4. ⼯作間 5. 儲間 6. 設計 7. 場 8. ⼿作室 本店售別 DIY⼿作 功活動域 ⾊ 景⽣ 主製作所材 植物
設計 設計 每個⽗⺟都會很關⼼⾃⼰的孩⼦⽗⺟因爲對⾃⼰的孩⼦强的欲因捨不 得放⼿强孩⼦讓孩⼦順從⾃⼰設計 個間讓⽗⺟和孩⼦擁屬於⾃⼰的間在 ⽗⺟和孩⼦隔的間讓⽗⺟不的去并且從⽽瞭⾃⼰的孩⼦增彼的關 ⽗⺟和孩⼦⾃⼰的間 可的視⾓ ⽤ 種⽅式去 去瞭⾃⼰的孩⼦
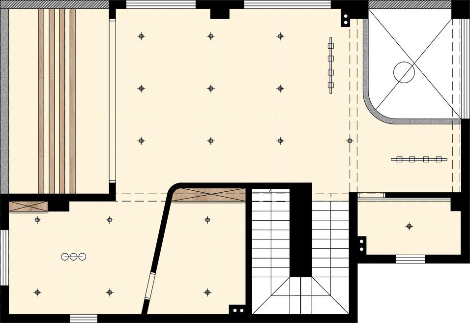
F1 平⾯ U:CMS:1/50 F1 天 U:CMS:1/50 平⾯ A A' B B' C' D' D C BAR台 ⼿做域 厠所 洗⼿臺 材櫃 室座位
F2 平⾯ U:CMS:1/50 F2 天 U:CMS:1/50 平⾯ A A' B B' C' D' D C 讀 厠所 閲讀室 游 兒童 陽臺
A-A' ⽴⾯ U:CMS:1/50 B-B' ⽴⾯ U:CMS:1/50 ⽴⾯
U:
:1/50
C-C' ⽴⾯
CMS
⽴⾯
D-D' ⽴⾯ U:CMS:1/50
材質計劃 稱 崁 吊 軌 具表 表⾯⽤⾊和紅⾊去做設計是形成了對代表兩個不同和⼈物關 家具的材質是使⽤⽊去製作 ⽤⽊和⽯頭表⾯的材質讓間⾃息 家具 天和 磚 浴室&陽臺 固定家具
3D視 設計 ⼝ ⼝
⼿作 F1
F2 閲讀 游 兒童 閲
讀室
室景⾊ 室座位 景墻 ⼆陽臺

Turn static files into dynamic content formats.

Create a flipbook
Issuu converts static files into: digital portfolios, online yearbooks, online catalogs, digital photo albums and more. Sign up and create your flipbook.