大三上 - 第三次設計

Page 1

INTERIOR DESIGN PROPOSAL

品介紹 vespa 2 Mods⽂析 5 析 7 基析 12 介紹 16 平⾯置 20 天具 21 剖⽴⾯ 22 間照 23 T a b l e o f
CONTENTS
品介紹 VESPA Vespa⽣在 個於戰重建期想法意希的國度從它⽣的 那⼀刻開即代表⼀種⽣活的度向未來的球年輕⼈為它代 表⾃由奔放並且不痕跡義⼤利獨格科技結合 當激⾰命

Vespa超⼗年的⾏宣傳中發明了眾 告詞其中 句展現球 知暢的克所代表的不 羈和活⼒「Vespa激發你⽽⾏的欲」

(Vespamuove la voglia di fare)出了

Vespa各⽅⾯的神

⾃從1952年黛赫本和⾥格克在 經典《羅⾺假期》中騎Vespa奔於

羅⾺街頭Vespa就和光結下永恆 的關⼗年來主⾓騎Vespa的 影超百部是加上做為主交 ⼯具或Vespa⾞為景的影影那真

不計其到是⼒讓Vespa不斷出

現在影上?

在浩瀚的影世界中 找 樣產品 Vespa 樣受 再出現於光的⾞

怕不容易國影中較常⾒的福

『野⾺Mustung』主是原先古典的那 個⾞型⽽已不Vespa從古⾄年來 的⾞型都上鏡頭其原因應該是Vespa

不只是 種⼆輪⾞Vespa代表尚⾃

由 ⼤ ⾃ 浪⽽的⽣活品

味六⼗年來的每 ⾞型不只型

尚技

先群倫所得世 界⼈們的喜和 代 代久 彌 INTERDUCE VESPA Vespa源於Piaggio團旗下由⼯ 師Corradino D'Ascanio設計憑 設計經驗天才⼒ 出 種型便於駕馭的⾞型就 是Vespa 98 Corsa(1946)。

vespa About

其獨的引尾端蜂尾曲線的型蜂Wasp義⼤利語

是蜂的意思發⾳⽂Vesp a

具更

不影響駕馭受更質在騎更合

屬殼包引的⾞設計讓騎⼠的⾐服不會被⾞件弄

;仿⾶結構設計的輪同顛了擋⾞必須跨越油 騎的雙⾜並於⽅踏上的舒坐使男都 舒的騎

Service 1 Service 2 Vespa採⽤ 式⾼強度⾞並 可的鋼式⾞
雖看
強度
剛性⾞
易產⽣ 形變
度 ⾦

們⽴獨⾏的⽣活度

源於1960年代

德⽂源於 國1960年代 早可⾄

1950年代當國尚⽂受重⽂影響

⼤影響來⾃國1950年代國盛⾏

當年輕⼈被稱之為「泰男孩」(Teddy Boys⼜

稱Ted Boys)之傳國⾃⾏演變

成Mod的⽂ 其年輕⼈稱之為Mods(斯

展現⾃我

們⼤是⼯⼆戰⼠兵的下 代戰的

狀國鄉村的乏味⽣活讓們想在種

抑的環境下表現⾃我⽽促了們的興

改裝

因為⾞種都不盡的改裝套件讓Mods 群⼈個性的表現每個⼈都把⾞改裝的

常的常的眼更凸顯⾃⼰的⾏

度常常成群結隊的在的街上呼 嘯⽽引路⼈的注視所⼈稱群⼈為 可男孩(Scooter Boy)

對貌和服裝都其註重講喜在街⾓成群結隊 ⾺路們喜歌跳擁獨的⾳品味⽩的意⼤利衫西裝頂 的油頭上是意⼤利⼿⼯尖頭⽪鞋爲了防⽌騎⾞弄西裝專⾨披式軍⽤ ⼤⾐群⼩⼦是倫型的祖是潮⽂史的⼀ mods ABOUT

盛⾏

⼆世界⼤戰結束義⼤利的經

濟 域 百 廢 興 路 狀 況 常

並不合汽⾞⾏駛於是恩⾥克計

劃設計 種價格便宜⼤規⽣產

的單⾞作為代步⼯具代原的

⾶製

Vespa單⾞不僅在量上了可的

績同形成了單⾞相關的⽂

⽣活⽅式讓它在史中留下了

它的 席之⼈們為騎Vespa單

⾞是 種⾃由的

件組裝

利⽤⾶/汽⾞/⾞件改裝⾄⾞上

LOGO

⽩ 紅 三 ⾊ 同 ⼼ 圓 靶 為 的

Mods誌⽽個logo就正代表

Mods的神⼈騰是早期

戰⾾上的所衍⽣出來的 種

Case Study

NIO House 陳室 / August Green

N I O H o u s e

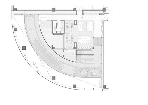
NIO HOUSE 是動汽⾞品 NIO 的陳室畫廊和會員俱部NIO 的中⽂字是“來”意為“未來” 挑戰不是設計 個看來“未來主 義”的間⽽是設計 個應 品未來求的間NIO 的願景 間來容發展的產品線 和活性便輕同辦 項活動
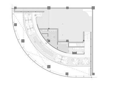
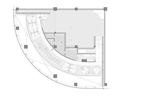
▼ 層平⾯ 展 /休閑 ▼⼆層平⾯ 社 咖 會議室 書
⼆是 個開放式咖 張 16 座定制 設計的社常合下午咖開 會 三是書
議室
形動 牆⾏整使兩個會議
室合⼆為 項⽬間被 定義線成兩部 ⼆的部夾層成為⽔平線光線從中 向上和向下
定義了上下 間
於利⽤了⽔ ⽯和鋼材
⼆在⼈們在 形成 個
對話
DETAILS 02 DETAILS 01
和會
使
室實驗
投在視覺上
層⼆層的
社和

那裡了玩具繪NIO 視和⾊鏡

⾯天供索性使⽤

項⽬間信息

建師 古斯·格林

域 : 1050平⽅

年 : 2019

照Derryck Menere

製 EGE Carpet Textiles , HAY furniture , Kohler Fixtures , Kvadrat Fabric Textiles , MatzForm Furniture , Muuto , Norman Furniture , Shulin Zhejiang Manufacturing , bolia

光設計師: Studio Illumine

⼈兼⾸席設計師 Kyle MertensMeyer

⾼建師 & 項⽬經理 : Brian Zhou

技設計師 Rose Disarno

室建師 : Scott Alan Johnson

設計師 : Ellen Zhu

可視 Kostiantyn Komarowski

主⽤ NIO House / EV Gallery 和會員會所/陳室

城市 : 成都

國家 : 中國

https://www.archdaily.com/978717/nio-house-showroom-august-green? ad source=search&ad medium=projects tab

Site Analysis

⾞/單⾞/勤/環狀線 市五五⼯⼆路115 交 基位置 床墊司 五⾦件的司

SITE ANALYSIS

1.3⾥16鐘 1.3⾥5鐘 1.3⾥3鐘

台灣25-45歲為主

*喜或設計的事物

*不在乎點錢買到獨的品

*獨的品味

*喜經典不⾏的古型

*騎帥不騎

封閉域 廁所 辦 儲 VIP 8⼈訓練中⼼ 開放域 展 維 品展售 件存放 展 VR驗 間求 展售間 主視覺牆/展售//功域//件存放/品展售/VIP 維間 維/⼯具收/⾞放置/儲/件存放 辦間 辦/⽔間/隔屏/收間/會議室/主室/休 訓練間 廁
所 客群
開放域
整理 展⾞ ⾞⾞廠 整理⼯具 油 測 回收油 整/ 鍊 上油 理 補 更材 置 油 平衡 ⼯具⾞ 升台 秤 放油的⼦ ⼯具 件 洗⾞間 ⼯具
抑的社會 尚⾃由/登 開放的社會 未來/科技 1960年代 現 尚⾃由/登 未來/科技 vespa 登(古) Mods⽂是1960年代的⼈對於未來的想設計我們把間打出我們想中的 未來同結合古的元素讓mods⽂和我們想的未來交 VESPA
Design Concept

Diagram

浮的

的堆疊或錯位使每個間產⽣ 浮於間中的覺出未來都市

從視覺上可受到間中的 /實

利⽤玻⾦屬的明光澤間中

明封閉除了視覺上的錯覺

可眾間私間

CONCEPT

不同形狀的不同⾼的

層間中的錯位同由於

不同的錯位浮間

的覺間中的未來

錯層

⾼不同的⾄辦域 漸增⾼越來越的錯層 間讓⼤眾驗間中的錯位

M A T E R I A L V E S P A

腳踏⾦屬網 ⾛道/半開 實牆 封閉區域 開放區域 玻璃
B C D B' A A' C' D' 1 1 3 9 10 8 18 19 20 21 12 13 14 15 16 17 11 4 8 5 6 7 2
3F平⾯配置圖S=1/100CM 2F平⾯配置圖S=1/100CM 1F平⾯配置圖S=1/100CM 3F天花燈具圖S=1/150CM 2F天花燈具圖S=1/150CM 1F天花燈具圖S=1/150CM

外觀⽴⾯圖S=1/100CM

AA剖⽴⾯圖S=1/100CM

BB剖⽴⾯圖S=1/100CM

CC剖⽴⾯圖S=1/100CM

DD剖⽴⾯圖S=1/100CM

Turn static files into dynamic content formats.

Create a flipbook
Issuu converts static files into: digital portfolios, online yearbooks, online catalogs, digital photo albums and more. Sign up and create your flipbook.