
1 minute read
UNIQUENESS
from PORTFOLIO - Inspiring Spaces for Creative Minds | Building Envelope and its Spatial Effects in JNM
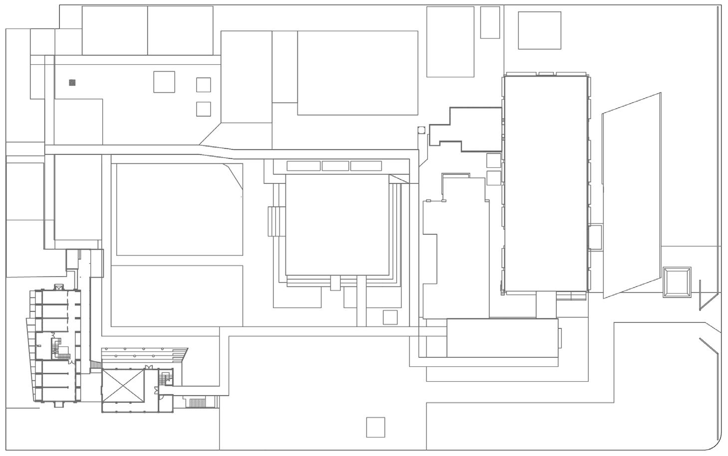
One of the phenomena the writer saw when she visited JNM is there are 2 types of morphologies that are present in JNM. First, shapes like traditional buildings and other shapes like colonial-influenced buildings. After further research, it seemed that these morphologies were created as a response to Jogjakarta’s climate. A book called ‘Tropical Urban Regionalism Building in a Southeast Asian City’ that was written by Ken Yeang, mainly discusses how settlements/buildings in Southeast Asia respond to its tropical climate. It examines the ideal elements that usually are present in this region, such: louvered windows, gable roofs, overhang eaves, verandahs, selective openings, air-well court, and latticework.
To respon to its climate, JNM seems to have two distinctive architectural styles. Each outlined area are the representation of the styles.
Advertisement
Users in Hamemayu would have a limited view of the landscapes/context because the building is massive and covered by blocks of bricks. While Pendopo only has a few columns to support, the users in Pendopo would have an unlimited view and get more fresh circulated air.
Even though the floor area is relatively narrow compared to Pendopo, users in Hamemayu would have more opportunities to see broader landscapes/context in different elevations.
The roof of Hamemayu has little overhang compared to Pendopo. Therefore, Hamemayu’s building approach to respond to the sunlight and rain is using the selective openings that are installed to the facade.
