BUILD TO SUIT.

Page 1

0
M I C H A T O Y A P A C Í F I C O
2
2 3 BUILD TO SUIT .
ÍND ICE. 01. 02. 03. BODEGAS Detalles PATIO MANIOBRAS Espacialidad RAMPA NIVELADORA Andén 04. DESARROLLO URBANO Masterplan Michatoya 01-03 06-11 04 05
06. 07. 05.
BTS PROPUESTA INVERSIÓN BTS SEGURIDAD INDUSTRIAL Siniestros 14-15 16-17 12-13
CONSULTAS ESPECIALES

01.

DETALLE CLUSTER BODEGAS

Especificaciones técnicas, secciones longitudinales. Muestra alturas y detalles constructivos

Sección longitudinal cluster de bodegas

Cubierta dos aguas

Altura a hombro 12 metros

Altura a Cumbrera 14.90 Metros

Estructuras diseñadas para espacios logísticos

01

Diseño arquitectónico para el cluster central de bodegas dentro de zona ZDEEP

Cluster de bodegas de 10,000 metros cuadrados mas patio de maniobras

02 01. 02.

Sistema de macrolosas con junta cosinus , cero mantenimiento de pisos de por vida. con un área de 900 m2 para la óptima circulación y espacios de almacenatimento.

Altos niveles de planicidad FF 50/FL 50 y asi almacenar unidades en un sistema selectivos hasta alturas de 10m

Tecnología de vanguardia para la fundición de pisos industriales

Espesor del piso es de 18 cm

Capacidad de carga estandar es de 12 toneladas por metro cuadrado

01. 03
02.

02. PATIOS DE MANIOBRA

Diseño de patios de maniobra contempla radios de giro comodos para trailers de mas de 22 metros de largo

El diseño del patio de maniobras Responde al flujo de contendedores que las empresas generan

Gabarito patio de maniobras y calle de acceso a cluster

01. 02. 04

DETALLE DE FOSA PARA RAMPA

SECCIÓN DE FOSA

ANDÉN CARGA/DESCARGA

Rampa niveladora hidraulica para el propio ajuste dependiendo el tipo de contenedor o vehículo para carga y descarga.

RAMPA NIVELADORA

03.
05

DESARROLLO URBANO

Entre las premisas de diseño , para el desarrollo del proyecto, se ha buscado el confort de los colaboradores que apoyan el crecimiento de las empresas y así hacer que se sientan identificados al trabajar en Michatoya Pacífico. Por esto mismo se han generado plazas de encuentro con entornos naturales, WI-FI sin costo, ciclovías internas, anfiteatros

para eventos y paradas de buses

Así mismo se ha diseñado un circuito interno para la circulación vehicular, tanto vehículo pesado como liviano, con amplios gabaritos, para la circulación de los mismos. De esta manera optimizar el tiempo para procesos de cada empresa.

04.

CONTROL DE INGRESO VEHICULAR

Garita vehicular para transporte pesado. Cuenta con una váscula de medición de carga.

Cámaras para reconocimiento de placas

Oficinas de SAT y ZOLIC ya en operación para brindar un servicio eficiente, y así agilizar los procesos de importación y exportación.

04. 01. 02. 06

Garita peatonal registro de ingreso para visitas y trabajadores del parque con sistemas de control

Acceso peatonal Reconocimiento facial y sistema biométrico para un control eficinte y ágil para el ingreso del personal operativo

07
01. 02.
CONTROL DE INGRESO PEATONAL

UBICACIÓN ESTRATÉGICA

Potenciando ventajas competitivas

Michatoya pacífico está ubicado a 70 kilometros de la ciudad de Guatemala y a unicamente 30 kilometros de Puerto Quetzal, el principal puerto de la región.

Michatoya pacífico se encuentra en la intersección de los ejes logísticos Norte América / Centro América y corredor interoceánico (Pácifico/Atlántico)

08
01.

MASTER PLAN MICHATOYA

Áreas, servicios y carreteras

Michatoya Pácifico es un polo de desarrollo de la región sur de Guatemala. Que junto con la zona industrial, tiene desarrollos de vivienda, educación, salud, cultura y deportes

09
01.

Acceso a las principales carretereas del país

Contstrucción fase 1 de calle privada para conectar las dos principales carreteras de la región

(CA-9 / CA-2 ORIENTE

CONECTIVIDAD 10 01.

02.

Michatoya Pacífico contara con subestaciones eléctricas distribuidas estrategicamente para abastecer la demanda de las empresas que se instalen dentro del proyecto.

Esta energía sera de calidad estable y redundante. La Subestación 2 y 3 tienen una proyección de 40 megas cada uno

Dentro de las fases del desarrollo eléctrico se contempla una planta de energía solar con capacidad de 50mv

CONJUNTO RED ELÉCTRICA 11

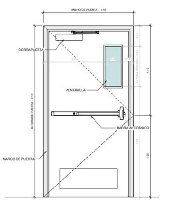
SEGURIDAD INDUSTRIAL

Detalle de salidas de emergencia, gradas y barandales

Puertas salida de emergencia cuentan con barras antipánico, señalización y ubicadas para la óptima evacuación del edificio.

Escaleras amplias con barandas que cumplen todas las especificaciones de la norma ante cualquier siniestro

12
05.
02. 01.

El sistema contra incendios una red independiente ante cualquier situación de emergencia. Cada bodega cuenta con hidrantes en el exterior y una red de rociadores dentro de las bodegas.

Rutas de evacuación perfectamente señalizadas con puntos de encuntro ante cualquier tipo de siniestro que se pueda presentar.

SEGURIDAD INDUSTRIAL 02. 01. Detalle de red contra incendios y rutas de evacuación B B B B B B RAMPA 8% B B S S B B ANTERIOR B RAMPA 8% B B S S S B4 PM CE-1 CH-1 CH-1 GABINETE CONTRA INCENDIOS PVC Ø 4 " GABINETE CONTRA INCENDIOS TOMA PARA GABINETE Ø 2 PVC Ø 4" PVC Ø 4" PVC Ø 4" BODEGA 3 HIDRANTE Ø 2 HIDRANTE Ø 2 1 2 " PVC Ø 4 " TOMA PARA GABINETE Ø 2 ARCHIVO CAD: NUMERO DE HOJA D E F H J M N O Q R S U W X 4 5 6 7 10 11 12 13 14 15 16 17 18 19 20 21 22 23 24 25 26 27 28 29 30 31 32 W X A TIMBRE CENTROS DE ACTIVOS RUTA AL PUERTO DE SAN JOSE PLANTA DE INSTALACIONES DE RED CONTRA INCENDIOS FORAGRO CLUSTER "B4" BODEGA & 4 FOR_I150 P A R Q U E N D U S T R I A L ZONA 2a. CALLE "A" 13-04 ZONA 15 COL. TECUN UMAN GUATEMALA, C. A. PBX: (502) 2463-9700 LA CENTRO DE ACTIVOS LA ZONA, S. A. N S W E PLANTA DE INSTALACIONES DE RED CONTRA INCENDIOS MICHATOYA PACIFICO PARQUE INDUSTRIAL A1 13 NPT NR
NPT 144.33
0+2560+140 0+160 0+180 0+200 0+220 0+020 0+040 0+060 0+080 0+100 0+104 0+120 0+220 0+222 0.37 0.37 EXTINTOR SIMBOLOGIA INDICA SIMBOLO INDICA UBICACION DE BOTIQUIN. INDICA UBICACION LUCES DE EMERGENCIA. INDICA RUTA DE EVACUACIÓN. INDICA RUTA HACIA SALIDA DE EMERGENCIA. INDICA SIMBOLO PUNTO DE REUNION. INDICA SALIDA DE EMERGENCIA. INDICA RUTA HACIA SALIDA DE A1 A6 A11 ROTULO PUNTO DE REUNIÓN PUERTA DE EGRESO SIN ESCALA M21 ZONA LA DEL PACIFICO KM. 72, CARRETERA CA-9 SUR ESCUINTLA, ESCUINTLA ADMINISTRADORA LOGISTICA DISEÑO: CALCULO: FECHA INICIO: CENTRO DE ACTIVOS MICHATOYA PACIFICO PARQUE INDUSTRIAL C D F H M O Q S W M O Q W REVISIONES MODIFICO FECHA TIMBRE PROPUESTA PARA APLICACION DE NRD2 P A R Q U E N D U S T R A L A21 NOTA: TODA LA ROTULACION ES DE METAL ALUCINC NO COMBUSTIBLE CON ALTA RESISTENCIA SEGUN LAS NORMAS DE SEGURIDAD NRD2 DE CONRED PROPUESTA PARA SEÑALIZACION INDUSTRIAL Y CUMPLIMIENTO DE NRD2 A REALIZAR POR CLIENTE. S S S MEZZANINE NPT 142.78 NR
NPT 144.33 1
4 0+2560+140 0+160 0+180 0+200 0+220 0+020 0+040 0+060 0+080 0+100 0+104 0+120 0+220 0+222 0.37 0.37 0.37 EXTINTOR 0.37 0.53 0.11 ROTULO CON SISTEMA BRAILE INDICA SIMBOLO INDICA UBICACION DE INDICA UBICACION LUCES EMERGENCIA. INDICA RUTA DE EVACUACIÓN. INDICA RUTA HACIA SALIDA EMERGENCIA. MICHATOYA PACIFICO PARQUE INDUSTRIAL ROTULO SALIDA DE EMERGENCIA SIN ESCALA A1 MICHATOYA PACIFICO PARQUE INDUSTRIAL ROTULO DIRECCIONAL SIN ESCALA A6 MICHATOYA PACIFICO PARQUE INDUSTRIAL ROTULO EXTINTORES SIN ESCALA A11 MICHATOYA PACIFICO PARQUE INDUSTRIAL ROTULO PUNTO DE REUNIÓN SIN ESCALA A16 MICHATOYA PACIFICO PARQUE INDUSTRIAL PUERTA DE EGRESO SIN ESCALA M21 c 1 B C D E F G H K L M N O P Q R S T U W X 2 3 4 5 6 7 8 9 10 11 12 13 14 15 16 17 18 19 20 21 22 23 24 25 1 2 3 4 5 6 7 8 9 10 11 12 13 14 15 16 17 18 19 20 21 22 23 24 25 A MICHATOYA PACIFICO PARQUE INDUSTRIAL EXTINGUIDOR DE POLVO QUIMICO SIN ESCALA A21 TODA LA ROTULACION METAL ALUCINC NO CON ALTA RESISTENCIA LAS NORMAS DE SEGURIDAD NRD2 DE CONRED PROPUESTA PARA SEÑALIZACION CUMPLIMIENTO DE NRD2 S S S MEZZANINE NR B3 NPT 144.33 3 0+2560+140 0+160 0+180 0+200 0+020 0+040 0+060 0+080 0+100 0+104 0+120 0+220 0+222 EXTINTOR EXTINTOR 0.37 0.37 0.37 0.37 EXTINTOR 0.37 0.53 0.11 ROTULO CON SISTEMA BRAILE MICHATOYA PACIFICO PARQUE INDUSTRIAL ROTULO SALIDA DE EMERGENCIA SIN ESCALA A1 MICHATOYA PACIFICO PARQUE INDUSTRIAL ROTULO DIRECCIONAL SIN ESCALA A6 MICHATOYA PACIFICO PARQUE INDUSTRIAL ROTULO EXTINTORES SIN ESCALA A11 o 1 B C D E F G H K L M N O P Q R S T U W X 2 3 4 5 6 12 13 14 1 2 3 4 5 6 7 8 9 10 11 12 13 14 A DUCTO S S S MEZZANINE NPT 142.78 NR B3 NPT 144.33 1 2
0+2560+140 0+160 0+180 0+200 0+220 0+020 0+040 0+060 0+080 0+100 0+104 0+120 0+220 0+222 0.37 0.37 0.37 EXTINTOR 0.37 0.53 0.11 ROTULO CON SISTEMA BRAILE SIMBOLOGIA INDICA SIMBOLO INDICA UBICACION DE BOTIQUIN. INDICA UBICACION LUCES DE EMERGENCIA. INDICA RUTA DE EVACUACIÓN. INDICA RUTA HACIA SALIDA DE EMERGENCIA. INDICA SIMBOLO PUNTO DE REUNION. INDICA SALIDA DE EMERGENCIA. INDICA UBICACION DE EXTINTOR. INDICA RUTA HACIA SALIDA DE EMERGENCIA. PACIFICO PARQUE INDUSTRIAL ROTULO SALIDA DE EMERGENCIA MICHATOYA PACIFICO PARQUE INDUSTRIAL ROTULO DIRECCIONAL A6 MICHATOYA PACIFICO PARQUE INDUSTRIAL ROTULO EXTINTORES SIN ESCALA A11 MICHATOYA PACIFICO PARQUE INDUSTRIAL ROTULO PUNTO DE REUNIÓN SIN ESCALA A16 MICHATOYA PACIFICO PARQUE INDUSTRIAL PUERTA DE EGRESO SIN ESCALA M21 3 4 8 9 10 11 12 13 14 15 16 19 20 21 22 23 24 25 26 27 28 29 3 4 5 6 7 8 9 10 11 12 13 14 15 16 17 18 19 20 21 22 23 24 25 26 27 28 29 MICHATOYA PACIFICO PARQUE INDUSTRIAL EXTINGUIDOR DE POLVO QUIMICO SECO. SIN ESCALA A21 NOTA: TODA LA ROTULACION ES DE METAL ALUCINC NO COMBUSTIBLE CON ALTA RESISTENCIA SEGUN LAS NORMAS DE SEGURIDAD NRD2 DE CONRED PROPUESTA PARA SEÑALIZACION INDUSTRIAL Y CUMPLIMIENTO DE NRD2 A REALIZAR POR CLIENTE. DUCTO S S S MEZZANINE NPT 142.78 NR B3 NPT 144.33 1 2 3 4 0+2560+140 0+160 0+180 0+200 0+220 0+020 0+040 0+060 0+080 0+100 0+104 0+120 0+220 0+222 EXTINTOR EXTINTOR EXTINTOR EXTINTOR EXTINTOR EXTINTOR 0.37 0.37 0.37 0.37 EXTINTOR 0.37 0.53 0.11 SISTEMA BRAILE MICHATOYA PACIFICO PARQUE INDUSTRIAL ROTULO SALIDA DE EMERGENCIA SIN ESCALA A1 MICHATOYA PACIFICO PARQUE INDUSTRIAL ROTULO DIRECCIONAL SIN ESCALA A6 MICHATOYA PACIFICO PARQUE INDUSTRIAL ROTULO EXTINTORES SIN ESCALA A11 MICHATOYA PACIFICO PARQUE INDUSTRIAL ROTULO PUNTO DE REUNIÓN SIN ESCALA A16 o 1 B C D E F G H J K L M N O P Q R S T U W X 2 3 4 5 6 7 8 9 10 11 12 13 14 15 16 17 18 19 1 2 3 4 5 6 7 8 9 10 11 12 13 14 15 16 17 18 19 A
B3
1 2 3 4
B3
2 3
3 4

Los servicios de drenajes sanitarios y planta de tratamiento para aguas residuales domiciliares (aguas de servicios sanitarios, duchas de trabajadores), serán proporcionados mediante la infraestructura construida por ALP (Michatoya) para estos fines.

Todo lo relativo a los drenajes sanitarios, planta de tratamiento y la regulación para aguas residuales especiales, producto de procesos industriales realizados dentro de los inmuebles en el área de la ZDEEP Michatoya Pacífico, deberán ser construidos y desarrollados por cada uno de los propietarios y/o usuarios de cada uno de los inmuebles que forman parte de ZDEEP Michatoya Pacífico

Para el diseño de la estructura para las naves industriales se contemplará una sobrecarga para el sistema del sprinklers de 8kgf/m2, por lo que en la oferta se tiene contemplado la instalación de los respectivos rociadores. Así mismo se contemplan gabinetes/hidrantes de manguera dentro de naves industriales

Si el cliente en dado caso necesitara algun sistema de rociadores específicos, tendrán que indicarlo al inicio del proyecto para realizar la evaluación por los costos de arrendamiento.

La ubicación de los hidrantes en las instalaciones cumple los requisitos los cuales dictaminan que mínimo se necesita un hidrante por cada 10,000 metros cuadrados. En este caso se colocarían dos hidrantes a una distancia de 40 metros entre ellas para el eficaz funcionamiento frente a una emergencia. Así mismo estos hidrantes deberan estar a no mas de 15 metros de la línea de fachada y no menos de 5 mentros.

Michatoya Pacífico cuenta con un centro de atención médico mediante Atenum Michatoya. Atenum Michatoya es un centro de atención primario al cual las empresas, ubicadas dentro del parque, se afilian mediante un pago mensual para brindar un seguro a cada trabajador y poder hacer uso de esas instalaciones.

06. CONSULTAS ESPECIALES
PLANTA DE TRATAMIENTO DE AGUA SISTEMA CONTRA INCENDIOS HIDRANTES
CLÍNICA MÉDICA 02. 01. 04. 03.
14

CONSULTAS ESPECIALES

COMEDOR ESTACIONAMIENTO

El area de comedor requerida queda dentro de las instalaciones del cliente, este espacio es diseñado especificamente para preparar, servir y comer. Dentro del parque industrial Michatoya Pacífico se tiene planificado un food court el cual se proyecta en una siguiente fase, asi como áreas comerciales guarderias etc.

El diseño de parqueo para transporte pesado se contempla con un espacio de área de maniobra optimo, cuidadosamente diseñado contemplando radios de giro ideales para facilitar la maniobra y hacer eficientes los tiempos de carga y descarga de vehiculos de transporte pesado de hasta 22 metros de largo. Estos patios de maniobra con pavimento rígido (concreto) con un espesor de 0.20 metros. (ver pagina No. 04)

El parqueo para transporte liviano queda tambien dentro de las instalaciones del proyecto, el cual se entrega con área jardinizada, banquetas, bordillos, topes de concreto, señalización y pavimentada con concreto con grosor de 0.18 metros. El costo ya esta contemplado en los montos de arrendamiento anexos en este documento (ver pagina No.14)

RACKS NAVES INDUSTRIALES

Para los racks en la naves industriales este sistema selectivo debera ser diseñado junto con el cliente para verificar especificaciones como tipo de carga de cada unidad, volumen, y altura de almacentamiento, para lo cual nuestros pisos industriales por su planicidad (descritas en la pagina No. 03) podemos almacenar hasta una altura de 10 metros . Estos sistemas son independientes al costo de arrendamiento establecido en este documento.

06. 05. 07.
15

PROPUESTA DE INVERSIÓN RENTA

POLO DE DESARROLLO MICHATOYA PACÍFICO

DESCRIPCIÓN DE ESPACIOS

Area de construcción (Área de techos) 10,000 m2

8 bahías de carga y descarga para contenedores de 48 pies.

Rampas hidráulicas con área de recibo.

Área bodega con altura a cumbrera de 15 metros.

Área de administración incluye servicios (baños A/C, iluminación, electricidad, punto de red.)

Área de operaciones 4 metros de altura

Área de parqueo y patio de maniobra. 6,000 m2

Área de expansión contigua sin construcción. 5,000 m2

ESPECÍFICACIONES COMPARITDAS

Área de parqueos vehículos livianos para 100 personas

Cafetería para 100 personas.

Clínica médica.

Planta de tratamiento de aguas residuales.

Sistema contra incendios - Hidrantes - sistema automático de rociadores (tuberías humedas)

PROPUESTA DE RENTA

Build to suit Área total m2

Lote con bodega Área de bodega

fase 1: 7,700m2 en un área de 21,000 m2

Costo por m2 renta bodega

USD 6.50 (incluye cuota de mantenimiento)

Costo por m2 de edificios administrativos

USD 8.00

PRECIO TOTAL (SIN IVA) USD

TIPO DE PROYECTO SECTOR BUILD TO SUIT ZDEEP
01 03 02 05 07 08 06 04
16

POLÍTICA DE PRECIOS

MICHATOYA PACÍFICO

Todo Precio es establecido en dólares EE UU, NO incluye IVA ni gastos de escrituración.

Plazo del arrendamiento: 10 años.

Gastos de mantenimiento: (La renta incluye el mantenimiento).

o Área techada u operativa (bodegas) USD 0.50 m2. La cuota de mantenimiento incluye seguridad interna 24/7 con circuito cerrado de cámaras y guardias, limpieza de calles exteriores, y uso de áreas comunes.

El cliente deberá responsabilizarse por todo tipo de desechos químicos o basura en general de procesos productivos propios especializada para dichos manejos.

17

VIDEO PARQUE INDUSTRIAL MICHATOTYA PACÍFICO

Turn static files into dynamic content formats.

Create a flipbook
Issuu converts static files into: digital portfolios, online yearbooks, online catalogs, digital photo albums and more. Sign up and create your flipbook.