Parque Industrial Michatoya Pacifico

Page 1

2 0 2 4 T. +502 2463 9700 2ª Calle “A” 13-04 Col. Tecun Umán, zona 15. Ciudad de Guatemala PARQUE INDUSTRIAL

ÍNDICE.

1. 2. 3.

ANÁLISIS MACRO Michatoya Pacífico DESARROLLO URBANO Diseño CONTROL DE INGRESO ZDEEP
BODEGAS Detalles 1-6 7-10 11-14 15-18
4.

6. 7. 5.

Espacialidad

RAMPA NIVELADORA Andén SEGURIDAD INDUSTRIAL Siniestros
PATIO DE MANIOBRAS
21-22 19 20

UBICACIÓN ESTRATÉGICA

Potenciando ventajas competitivas

1.1

Michatoya pacífico está ubicado a 70 kilometros de la ciudad de Guatemala y a unicamente 30 kilometros de Puerto Quetzal, el principal puerto de la región.

Michatoya pacífico se encuentra en la intersección de los ejes logísticos Norte América / Centro América y corredor interoceánico (Pácifico/Atlántico)

1

CORREDORES LOGÍSTICOS

Potenciando ventajas competitivas

1.2

Michatoya Pácifico es un polo de desarrollo de la región sur de Guatemala. Que junto con la zona industrial, tiene desarrollos de vivienda, educación, salud, cultura y deportes

2

CONECTIVIDAD

Acceso a las principales carretereas del país

1.3

Michatoya Pácifico es un polo de desarrollo de la región sur de Guatemala. Que junto con la zona industrial, tiene desarrollos de vivienda, educación, salud, cultura y deportes

3

CONECTIVIDAD

Acceso a las principales carretereas del país

1.4

Contstrucción fase 1 de calle privada para conectar las dos principales carreteras de la región

(CA-9 / CA-2 ORIENTE

4

MASTER PLAN MICHATOYA

Áreas, servicios y carreteras

1.5

Michatoya Pácifico es un polo de desarrollo de la región sur de Guatemala. Que junto con la zona industrial, tiene desarrollos de vivienda, educación, salud, cultura y deportes

5
6

DESARROLLO URBANO

2.

Entre las premisas de diseño , para el desarrollo del proyecto, se ha buscado el confort de los colaboradores que apoyan el crecimiento de las empresas y así hacer que se sientan identificados al trabajar en Michatoya Pacífico. Por esto mismo se han generado plazas de encuentro con entornos naturales, WI-FI sin costo, ciclovías internas, anfiteatros para eventos y paradas de buses

Así mismo se ha diseñado un circuito interno para la circulación vehicular, tanto vehículo pesado como liviano, con amplios gabaritos, para la circulación de los mismos. De esta manera optimizar el tiempo para procesos de cada empresa.

Carreteras y paradas de bus

Acceso a las principales carretereas del país

8

Ciclovía

ciclovia y plaza central

Acceso a las principales carretereas del país

9
viene de área de vivienda

Anfiteatro y jardinización

Acceso a las principales carretereas del país

ESCENARIO

10

3.

CONTROL DE INGRESO

MICHATOYA PACÍFICO ZDEEP

11
12

3.

CONTROL DE INGRESO VEHICULAR

3.1 3.2

Garita vehicular para transporte pesado. Cuenta con una váscula de medición de carga.

Cámaras para reconocimiento de placas

Oficinas de SAT y ZOLIC ya en operación para brindar un servicio eficiente, y así agilizar los procesos de importación y exportación.

13

CONTROL DE INGRESO PEATONAL

3.3 3.4

Garita peatonal registro de ingreso para visitas y trabajadores del parque con sistemas de control

Acceso peatonal Reconocimiento facial y sistema biométrico para un control eficinte y ágil para el ingreso del personal operativo

14

4.

DETALLE CLUSTER BODEGAS

Especificaciones técnicas, secciones longitudinales. Muestra alturas y detalles constructivos

Sección longitudinal cluster de bodegas

Cubierta dos aguas

Altura a hombro 12 metros

Altura a Cumbrera 14.90 Metros

Estructuras diseñadas para espacios logísticos

15
16

4.1

Diseño arquitectónico para el cluster central de bodegas dentro de zona ZDEEP

4.2

Cluster de bodegas de 10,000 metros cuadrados mas patio de maniobras

17

4.3

Sistema de macrolosas con junta cosinus , cero mantenimiento de pisos de por vida. con un área de 900 m2 para la óptima circulación y espacios de almacenatimento.

Altos niveles de planicidad FF 50/FL 50 y asi almacenar unidades en un sistema selectivos hasta alturas de 10m

4.4

Tecnología de vanguardia para la fundición de pisos industriales

Espesor del piso es de 18 cm

Capacidad de carga estandar es de 12 toneladas por metro cuadrado

18

5. PATIOS DE MANIOBRA

Diseño de patios de maniobra contempla radios de giro comodos para trailers de mas de 22 metros de largo

5.1

El diseño del patio de maniobras Responde al flujo de contendedores que las empresas generan

5.2

Gabarito patio de maniobras y calle de acceso a cluster

19

6.

RAMPA NIVELADORA

Rampa niveladora hidraulica para el propio ajuste dependiendo el tipo de contenedor o vehículo para carga y descarga.

DETALLE DE FOSA PARA RAMPA

SECCIÓN DE FOSA

ANDÉN CARGA/DESCARGA
2 0

7.

7.1

SEGURIDAD INDUSTRIAL

Detalle de salidas de emergencia, gradas y barandales

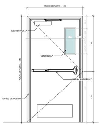
Puertas salida de emergencia cuentan con barras antipánico, señalización y ubicadas para la óptima evacuación del edificio.

7.2

Escaleras amplias con barandas que cumplen todas las especificaciones de la norma ante cualquier siniestro

21

SEGURIDAD

Detalle de red contra incendios y rutas de evacuación

El sistema contra incendios una red independiente ante cualquier situación de emergencia. Cada bodega cuenta con hidrantes en el exterior y una red de rociadores dentro de las bodegas.

Rutas de evacuación perfectamente señalizadas con puntos de encuntro ante cualquier tipo de siniestro que se pueda presentar.

INDUSTRIAL 7.4 7.3
B B B B B B RAMPA 8% B B S S B B ANTERIOR B NPT 143.98 RAMPA 8% B B S S S B4 PM CE-1 CH-1 CH-1 GABINETE CONTRA INCENDIOS PVC Ø 4 " GABINETE CONTRA INCENDIOS TOMA PARA GABINETE Ø 2 PVC Ø 4" PVC Ø 4" PVC Ø 4" BODEGA 3 BODEGA 4 HIDRANTE Ø 2 HIDRANTE Ø 2 1 2 " PVC Ø 4 " TOMA PARA GABINETE Ø 2 ARCHIVO CAD: NUMERO DE HOJA D E F H J M N O Q R S U W X 4 5 6 7 10 11 12 13 14 15 16 17 18 19 20 21 22 23 24 25 26 27 28 29 30 31 32 W X A TIMBRE CENTROS DE ACTIVOS RUTA AL PUERTO DE SAN JOSE PLANTA DE INSTALACIONES DE RED CONTRA INCENDIOS FORAGRO CLUSTER "B4" BODEGA & 4 FOR_I150 P A R Q U E N D U S T R I A L ZONA 2a. CALLE "A" 13-04 ZONA 15 COL. TECUN UMAN GUATEMALA, C. A. PBX: (502) 2463-9700 LA CENTRO DE ACTIVOS LA ZONA, S. A. N S W E PLANTA DE INSTALACIONES DE RED CONTRA INCENDIOS MICHATOYA PACIFICO PARQUE INDUSTRIAL A1 22 NPT NR B3 NPT 144.33 1 2 3 4 0+2560+140 0+160 0+180 0+200 0+220 0+020 0+040 0+060 0+080 0+100 0+104 0+120 0+220 0+222 0.37 0.37 EXTINTOR SIMBOLOGIA INDICA SIMBOLO INDICA UBICACION DE BOTIQUIN. INDICA UBICACION LUCES DE EMERGENCIA. INDICA RUTA DE EVACUACIÓN. INDICA RUTA HACIA SALIDA DE EMERGENCIA. INDICA SIMBOLO PUNTO DE REUNION. INDICA SALIDA DE EMERGENCIA. INDICA RUTA HACIA SALIDA DE A1 A6 A11 ROTULO PUNTO DE REUNIÓN PUERTA DE EGRESO SIN ESCALA M21 ZONA LA DEL PACIFICO KM. 72, CARRETERA CA-9 SUR ESCUINTLA, ESCUINTLA ADMINISTRADORA LOGISTICA DISEÑO: CALCULO: FECHA INICIO: CENTRO DE ACTIVOS MICHATOYA PACIFICO PARQUE INDUSTRIAL C D F H M O Q S W M O Q W REVISIONES MODIFICO FECHA TIMBRE PROPUESTA PARA APLICACION DE NRD2 P A R Q U E N D U S T R A L A21 NOTA: TODA LA ROTULACION ES DE METAL ALUCINC NO COMBUSTIBLE CON ALTA RESISTENCIA SEGUN LAS NORMAS DE SEGURIDAD NRD2 DE CONRED PROPUESTA PARA SEÑALIZACION INDUSTRIAL Y CUMPLIMIENTO DE NRD2 A REALIZAR POR CLIENTE. S S S MEZZANINE NPT 142.78 NR B3 NPT 144.33 1 2 3 4 0+2560+140 0+160 0+180 0+200 0+220 0+020 0+040 0+060 0+080 0+100 0+104 0+120 0+220 0+222 0.37 0.37 0.37 EXTINTOR 0.37 0.53 0.11 ROTULO CON SISTEMA BRAILE INDICA SIMBOLO INDICA UBICACION DE INDICA UBICACION LUCES EMERGENCIA. INDICA RUTA DE EVACUACIÓN. INDICA RUTA HACIA SALIDA EMERGENCIA. MICHATOYA PACIFICO PARQUE INDUSTRIAL ROTULO SALIDA DE EMERGENCIA SIN ESCALA A1 MICHATOYA PACIFICO PARQUE INDUSTRIAL ROTULO DIRECCIONAL SIN ESCALA A6 MICHATOYA PACIFICO PARQUE INDUSTRIAL ROTULO EXTINTORES SIN ESCALA A11 MICHATOYA PACIFICO PARQUE INDUSTRIAL ROTULO PUNTO DE REUNIÓN SIN ESCALA A16 MICHATOYA PACIFICO PARQUE INDUSTRIAL PUERTA DE EGRESO SIN ESCALA M21 c 1 B C D E F G H K L M N O P Q R S T U W X 2 3 4 5 6 7 8 9 10 11 12 13 14 15 16 17 18 19 20 21 22 23 24 25 1 2 3 4 5 6 7 8 9 10 11 12 13 14 15 16 17 18 19 20 21 22 23 24 25 A MICHATOYA PACIFICO PARQUE INDUSTRIAL EXTINGUIDOR DE POLVO QUIMICO SIN ESCALA A21 TODA LA ROTULACION METAL ALUCINC NO CON ALTA RESISTENCIA LAS NORMAS DE SEGURIDAD NRD2 DE CONRED PROPUESTA PARA SEÑALIZACION CUMPLIMIENTO DE NRD2 S S S MEZZANINE NR B3 NPT 144.33 3 0+2560+140 0+160 0+180 0+200 0+020 0+040 0+060 0+080 0+100 0+104 0+120 0+220 0+222 EXTINTOR EXTINTOR 0.37 0.37 0.37 0.37 EXTINTOR 0.37 0.53 0.11 ROTULO CON SISTEMA BRAILE MICHATOYA PACIFICO PARQUE INDUSTRIAL ROTULO SALIDA DE EMERGENCIA SIN ESCALA A1 MICHATOYA PACIFICO PARQUE INDUSTRIAL ROTULO DIRECCIONAL SIN ESCALA A6 MICHATOYA PACIFICO PARQUE INDUSTRIAL ROTULO EXTINTORES SIN ESCALA A11 o 1 B C D E F G H K L M N O P Q R S T U W X 2 3 4 5 6 12 13 14 1 2 3 4 5 6 7 8 9 10 11 12 13 14 A DUCTO S S S MEZZANINE NPT 142.78 NR B3 NPT 144.33 1 2 3 4 0+2560+140 0+160 0+180 0+200 0+220 0+020 0+040 0+060 0+080 0+100 0+104 0+120 0+220 0+222 0.37 0.37 0.37 EXTINTOR 0.37 0.53 0.11 ROTULO CON SISTEMA BRAILE SIMBOLOGIA INDICA SIMBOLO INDICA UBICACION DE BOTIQUIN. INDICA UBICACION LUCES DE EMERGENCIA. INDICA RUTA DE EVACUACIÓN. INDICA RUTA HACIA SALIDA DE EMERGENCIA. INDICA SIMBOLO PUNTO DE REUNION. INDICA SALIDA DE EMERGENCIA. INDICA UBICACION DE EXTINTOR. INDICA RUTA HACIA SALIDA DE EMERGENCIA. PACIFICO PARQUE INDUSTRIAL ROTULO SALIDA DE EMERGENCIA MICHATOYA PACIFICO PARQUE INDUSTRIAL ROTULO DIRECCIONAL A6 MICHATOYA PACIFICO PARQUE INDUSTRIAL ROTULO EXTINTORES SIN ESCALA A11 MICHATOYA PACIFICO PARQUE INDUSTRIAL ROTULO PUNTO DE REUNIÓN SIN ESCALA A16 MICHATOYA PACIFICO PARQUE INDUSTRIAL PUERTA DE EGRESO SIN ESCALA M21 3 4 8 9 10 11 12 13 14 15 16 19 20 21 22 23 24 25 26 27 28 29 3 4 5 6 7 8 9 10 11 12 13 14 15 16 17 18 19 20 21 22 23 24 25 26 27 28 29 MICHATOYA PACIFICO PARQUE INDUSTRIAL EXTINGUIDOR DE POLVO QUIMICO SECO. SIN ESCALA A21 NOTA: TODA LA ROTULACION ES DE METAL ALUCINC NO COMBUSTIBLE CON ALTA RESISTENCIA SEGUN LAS NORMAS DE SEGURIDAD NRD2 DE CONRED PROPUESTA PARA SEÑALIZACION INDUSTRIAL Y CUMPLIMIENTO DE NRD2 A REALIZAR POR CLIENTE. DUCTO S S S MEZZANINE NPT 142.78 NR B3 NPT 144.33 1 2 3 4 0+2560+140 0+160 0+180 0+200 0+220 0+020 0+040 0+060 0+080 0+100 0+104 0+120 0+220 0+222 EXTINTOR EXTINTOR EXTINTOR EXTINTOR EXTINTOR EXTINTOR 0.37 0.37 0.37 0.37 EXTINTOR 0.37 0.53 0.11 SISTEMA BRAILE MICHATOYA PACIFICO PARQUE INDUSTRIAL ROTULO SALIDA DE EMERGENCIA SIN ESCALA A1 MICHATOYA PACIFICO PARQUE INDUSTRIAL ROTULO DIRECCIONAL SIN ESCALA A6 MICHATOYA PACIFICO PARQUE INDUSTRIAL ROTULO EXTINTORES SIN ESCALA A11 MICHATOYA PACIFICO PARQUE INDUSTRIAL ROTULO PUNTO DE REUNIÓN SIN ESCALA A16 o 1 B C D E F G H J K L M N O P Q R S T U W X 2 3 4 5 6 7 8 9 10 11 12 13 14 15 16 17 18 19 1 2 3 4 5 6 7 8 9 10 11 12 13 14 15 16 17 18 19 A

VIDEO PARQUE INDUSTRIAL MICHATOTYA PACÍFICO

Turn static files into dynamic content formats.

Create a flipbook
Issuu converts static files into: digital portfolios, online yearbooks, online catalogs, digital photo albums and more. Sign up and create your flipbook.
Parque Industrial Michatoya Pacifico by andymurillo2 - Issuu