Samambaia Samambaia
sítio físico 102,92km²
232.893 moradores*
30km do Plano Piloto *dados
68.804 domicílios particulares*
ceilândia
samambaia
taguatinga
recanto das emas
O terreno onde o Hospital Pandêmico será implantado está localizado no centro urbano da XII Região Administrativa do DF, Samambaia. Na cidade já existe um hospital regional, o HRSam, além de cerca de outras 15 unidades de saúde diversas. O lote destinado a construção do HPS já se encontra ocupado por outras duas unidades de saúde que deverão ser consideradas no projeto. Durante a pandemia do Covid-19, notou-se a falta de estrutura dos hospitais públicos para lidar com a alta demanda de pessoas que necessitavam de atendimento, portanto o Hospital Pandêmico de Samambaia tem como foco proporcionar tal estrutura e ampliação do número de leitos para que demandas como essa sejam atendidas em contextos semelhantes. Além do atendimento especializado o hospital também atenderá o público normalmente em contextos que não haja pandemias e a ns.
H.P.S.
unidades de saúde existentes
plano piloto
serviço de manutenção
creche áreas industriais
residência ensino técnico
câmara de lixo casa de caldeiras cozinha farmácia
berçario e lactário UTIs internações solários centro obstétrico centro cirúrgico anat. patol[ogica
atendimento
• ambulatório
• emergência
• patologia clínica
• agência transfusional
• diagnóstico por imagem
heliponto almoxarifado
bens patrimoniais
diag. imagem
vestiários
emp. transporte
ambulatório
emergência
vigilância
ag. transfusional patologia clínica
• lavanderia
• cozinha
• C.M.E.
• farmácia
• limpeza e conservação
• vigilância
• unidade CBMDF
• empresa de transporte
• internações
• centro cirúrgico
• centro obstétrico
• U.T.Is.
• berçário
• lactário
serviço ensino
• creche
• ensino técnico
• anatomia patológica
• residência estudantil
• administração
• S.A.M.E.
• almoxarifado
• bens patrimoniais
cirurgia & internação apoio administrativo
• vestiários
• seção de ponto e controle
• câmara de lixo
• casa de caldeiras
• áreas industriais
• serviço de manutenção
CBMDF
fluxos pacientes visitantes roupas alimentos cadáveres lixo medicamentos
A gura 1 mostra a direção predominante da ventilação na área do terreno que é vinda do leste na maior parte do ano. Como as edi cações vizinhas ao lote são em sua maioria de pequeno porte e o tecido urbano é pouco compacto a situação é favorável para uma boa ventilação urbana, formando poucas barreiras. A gura 2 apresenta a quatidade de radiação solar em função da orientação e do horário que cada fachada receberá. Percebe-se que as fachadas voltadas para NE e NO são as que receberão maior incidência solar no período da tarde e por isso essas fachadas possuem poucas aberturas e coberturas que proporcionam o sombreamento para garantir o conforto térmico.

Para promover conforto foram adotadas estratégias de sombreamento nas fachadas com maior incidência solar e maiores aberturas, como circulações verticais voltadas para estas, calçadas com coberturas desempenhando a função de brises horizontais e na zona de internação e cirurgia, bem como a de ensino técnico receberam um painel metálico como segunda pele para barrar a incidência direta, aumentando a inércia térmica. Além disso, a presença da vegetação é também um dispositivo para melhorar o microclima e promover a sensação de conforto térmico e de bio lia, inclusive no solário que abarca todas as internações.
1
ventos predominantes sol nascente sol poente fachadas com maiores aberturas circulação vertical
áreas verdes e arborizadas
_plantas gerais_
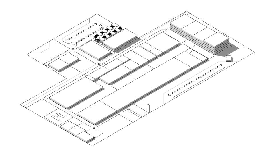
Implantação escala: 1:1000
Planta Baixa Térreo escala: 1:1000
Planta Baixa Primeiro Pavimento escala: 1:1000
Planta Baixa Segundo e Terceiro Pavimento escala: 1:1000
Planta Baixa Solário e cobertura escala: 1:1000
1- Seção de Bens Patrimoniais
Almoxarifado Hospitalar
Empresa de Transporte
Ambulatório
5- Emergência
6- Patologia Clínica 7- Agência Transfusional 8- Unidade do Corpo de Bombeiros 9- Segurança
10- Internações
Anatomia Patológica
Cozinha Hospitalar
Câmara de lixo
Casa de Caldeiras
Lavanderia Hospitalar
17- Farmácia Hospitalar
18- Serviço de Limpeza e conservação
19- S.A.M.E.
20- Central de Material Esterilizado
21- Administração
22- Vestiários
23- Seção de ponto e controle
24- Serviço de Diagnóstico por Imagem
0 2 5 10m
25- Serviço de Manuteção 26- Áreas Industriais
0 2 5 10m
11- UTI
30- Centro Cirurgico (pav. 1) / centro obstétrico (pav. 2) / berçário e lactário (pav. 3)
Elevação Frontal
Esc.: 1:750
Elevação Direita
Esc.: 1:750
Elevação Posterior
Esc.: 1:750
Elevação Esquerda
Esc.: 1:750
Esc.: 1:750
BB’ Esc.: 1:750
Corte AA’
Corte
PÚBLICO
= 9m²
ARQUIVO LÂMINAS
SALA EXAMES (MICROCOSPIA)
TÉCNICOS
HALL INTERNO P/ RECEPÇÃO
SALA EXAMES (LABORATORIAIS) ESPERA FAMILIARES
PÚBLICO
= 9m²
SALA DE NECRÓPSIA A = 120m²
FUNCIONÁRIOS
CÂMARA FRIGORÍFICA
EXPURGO GERAL A = 15m²
SALA DE SERVIÇOS A = 15m²
D.M.L. A = 18m²
CONSULTÓRIO PNEUMOLOGIA A = 15m²
CONSULTÓRIO CLÍNICA GINECOLÓGICA A = 30m²
SALA DE DISTRIBUIÇÃO DE MEDICAMENTOS A = 15m²
CONSULTÓRIO CLÍNICA PEDIÁTRICA A = 15m²
CONSULTÓRIO CLÍNICA PEDIÁTRICA A = 15m²
CONSULTÓRIO CLÍNICA PEDIÁTRICA A = 15m²
CONSULTÓRIO CLÍNICA PEDIÁTRICA A = 15m²
CONSULTÓRIO CLÍNICA PEDIÁTRICA A = 15m²
CONSULTÓRIO CLÍNICA MÉDICA MASCULINA A = 15m²
CONSULTÓRIO CLÍNICA GINECOLÓGICA A = 30m²
CONSULTÓRIO CLÍNICA MÉDICA MASCULINA A = 15m²
CONSULTÓRIO CLÍNICA MÉDICA MASCULINA A = 15m²
CONSULTÓRIO CLÍNICA MÉDICA MASCULINA A = 15m²
CONSULTÓRIO IMUNOLOGIA A = 15m²
CONSULTÓRIO CLÍNICA MÉDICA FEMININA A = 15m²
CONSULTÓRIO IMUNOLOGIA A = 15m²
CONSULTÓRIO IMUNOLOGIA A = 15m²
CONSULTÓRIO CLÍNICA CIRÚRGICA A = 30m²
CONSULTÓRIO CLÍNICA CIRÚRGICA A = 30m²
HIGIENIZAÇÃO DE PACIENTE A = 20m² HIGIENIZAÇÃO DE PACIENTE A = 20m²
CONSULTÓRIO CLÍNICA MÉDICA FEMININA A = 15m²
CONSULTÓRIO CLÍNICA MÉDICA MASCULINA A = 15m²
CONSULTÓRIO CLÍNICA MÉDICA FEMININA A = 15m²
SALA DE INALAÇÃO A = 100m²
CONSULTÓRIO CLÍNICA MÉDICA FEMININA A = 15m²
CONSULTÓRIO PNEUMOLOGIA A = 15m² SALA DE MEDICAÇÃO A 15m²
CONSULTÓRIO PNEUMOLOGIA A = 15m²
SALA DE PREPARO DE PACIENTE A = 15m²
SALA DE CURATIVOS A = 15m²
CONSULTÓRIO CLÍNICA MÉDICA FEMININA A = 15m²
SALA DE VACINAÇÃO A = 30m²
SALA DE GESSO A = 30m²
SALA DE REIDRATAÇÃO A = 100m²
CONSULTÓRIO DA CLÍNICA ORTOPÉDICA A = 15m²
PÚBLICO A = 17m²
SALA DE EXAMES PNEUMOLÓGICOS A = 25m²
SECRETARIA A = 15m² CHEFIA A = 18m² COPA A = 10m²
0 2 5 10m AMBULATÓRIO LAYOUT PAVIMENTO TÉRREO
A = 12m²
PÚB. A = 17m²
A = 12m²
COZINHA HOSPITALAR
LAVANDERIA HOSPITALAR
SECADORAS MÁQUINAS DE LAVAR COM BARREIRA BUFFET
UNIDADE
QUADRO DE ÁREAS E PROPORÇÕES
UNIDADE DE ADMINISTRAÇÃO HOSPITALAR
UNIDADE DE AMBULATÓRIO
SERVIÇO DE ARQUIVO MÉDICO E ESTATÍSTICO
AGÊNCIA TRANSFUSIONAL
LABORATÓRIO DE PATOLOGIA CLÍNICA
SERVIÇO DE DIAGNÓSTICO POR IMAGEM
UNIDADE DE ANATOMIA PATOLÓGICA
UNIDADE DE EMERGÊNCIA
UNIDADE DE TRATAMENTO INTENSIVO (4)
CENTRO CIRÚRGICO
CENTRO OBSTÉTRICO
CENTRAL DE MATERIAL ESTERILIZADO
UNIDADE DE FARMÁCIA HOSPITALAR
UNIDADE DE ALMOXARIFADO HOSPITALAR
SEÇÃO DE BENS PATRIMONIAIS
UNIDADE DE LAVANDERIA HOSPITALAR
UNIDADE DE COZINHA HOSPITALAR
SETOR DE VESTIÁRIOS
SEÇÃO DE PONTO E CONTROLE
SERVIÇOS GERAIS E MANUTENÇÃO (TOTAL)
CRECHE
RESIDÊNCIA ESTUDANTIL/MÉDICA
UNDIADE DE INTERNAÇÃO PEDIÁTRICA
UNIDADE DE LACTÁRIO
UNIDADE DE INTERNAÇÃO C. OBSTÉTRICA
UNIDADE DE BERÇÁRIO
UNIDADE DE INTERNAÇÃO C. CIRÚRGICA
UNIDADE DE INTERNAÇÃO C. MÉDICA
UNIDADE DE ENSINO TÉCNICO
ÁREA TOTAL